

Lana Dayle Roach
Selected Works 2023-2026
Virginia Tech Bachelor of Architecture







Multiplicity of Memory
Museum embedded in the landscape along the Ireland and Northern Ireland border
Undergraduate Thesis, Fall 2025
Duration: 14 In Progress


Ireland is a country whose culture, traditions, and sense of place is deeply rooted in the land and resiliency . For centuries, their place of being was taken under colonialism. Today, there are many lingering scars left in the country due to centuries of British rule, and there are many places in Ireland that are shaped by historical oppression and its lasting consequences. These lingering scars create tension between the two cultural identities present in Ireland, the Irish and the British.
Architecture in Ireland must address its historical and cultural context in order to mediate tension between two cultural identities. By utilizing ancient building techniques in a contemporary way, this thesis reinterprets historical symbols of separation. Architecture becomes a tool to create spaces that allow people to remember the past, coexist with their differences, and connect through similarities.
Lana Dayle Roach
Multiple Entry Points Correlating to Tower Allude to Museum Below
Ireland
Northern Ireland
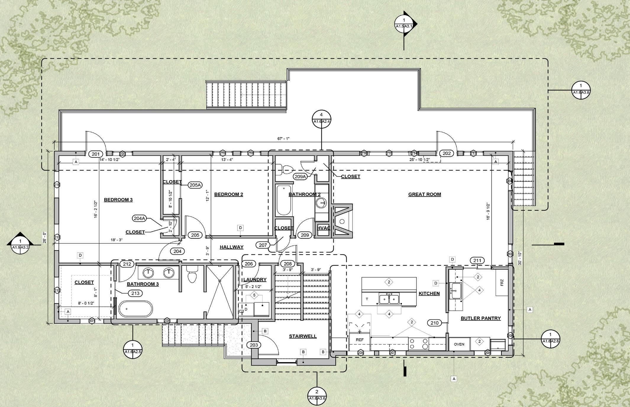
The thesis begins in Dublin, Ireland with a space to remember the lives lost during the Great Famine. The Memorial is situated along a raised train line, the same train line that Irish people all throughout the countryside came into Dublin on in the 1840’s seeking refuge during the famine. Many of those people were never able to return to their homes in the countryside due to the famine. The responsibility of this Memorial is not only in Dublin, but it reaches beyond Dublin and returns to the countryside. Following the train line north, it travels into the countryside until it reaches the border between Ireland and Northern Ireland . At the intersection of the train line and the Ireland and Northern Ireland’s border, a train station is proposed. Along the border, there is a Museum with artifacts honoring both countries.




Memorial in Dublin, Ireland
Train Journeys into the Countryside
Train Arrives, Museum seen Beyond
Approach to Museum

Ireland
Lana Dayle Roach
Memorial
Proposed Train Station Museum
Dublin
Northern Ireland
Pearse Station
Tenements
Peace Walls
The Troubles
0 5
Miles
0 500 Feet
Ireland
Northern Ireland
Northern Ireland
Ireland
Ireland



The Memorial is comprised of stone walls that reference the stone walls of ancient Irish architecture ; they are organized radially around a central point on the site. As they reach the central point, a negative space is formed at the ground plane that slopes inward, emulating the ancient huts. Each wall represents a different time, and their height represents the population during that period to show the drastic and tragic population changes throughout history. Some of the walls are not built yet but left empty to be built in the future in hopes that the population of Ireland will reach what it once was. Once a wall is built whose height surpasses the prefamine height, the Memorial will be complete. Throughout Irish history, walls have been an element that separates, in this Memorial , the walls test the ways in which this historical symbol of separation can be reinterpreted.

Process Diagrams





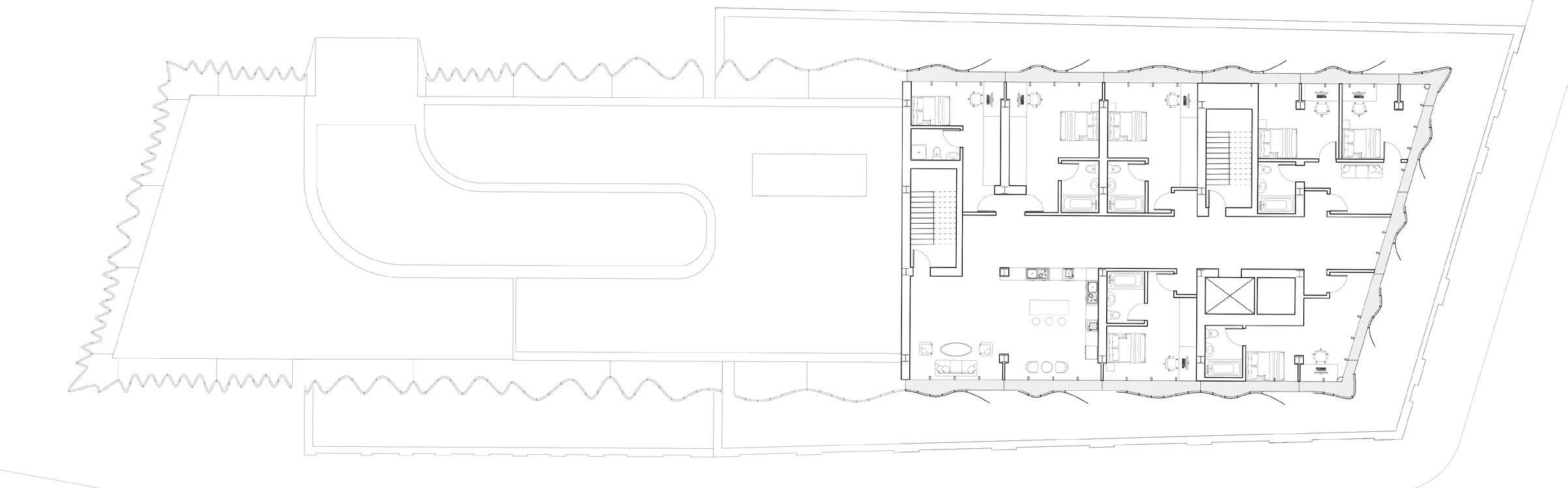
The Museum is situated along the border of Ireland and Northern Ireland, one of the most prominent lingering scars of the conflict. A stone tower acts as an anchor along with walls that emerge from the landscape that create thresholds to the museum below. Each entrance interacts with the tower differently, providing a multiplicity of experience in how the space is entered and how the architecture interacts with the border. The form and orientation of each entrance allude to the spaces of the Museum below.



Lana Dayle Roach
The Museum is a shared space for artifacts from Ireland and Northern Ireland, creating a space for reflection , remembrance , and education . The tower provides a space for reflection and meditation; the interior form references ancient Celtic architecture through corbelled stone walls that slope in. The tower is the only place where the architecture addresses the border, a linear split through the tower follows the border and abstracts the historical scar by using it as an element that brings light into the space. Stairs ascend to the top of the tower to an observation deck that allows views across the landscape or the two countries, as well as a visual connection to the train line.

Museum Embedded into the Landscape


Multiple Entry Points Correlating to Tower Allude to Museum Below
Ireland
Northern Ireland
Upper Level
1 - Observation Deck
2 - Sunken Entry

Framework for the Future
Adaptive Reuse building in Roxbury, MA Fall 2024
Duration: 12 weeks
Partner work with Pornsawan Boonaneksap
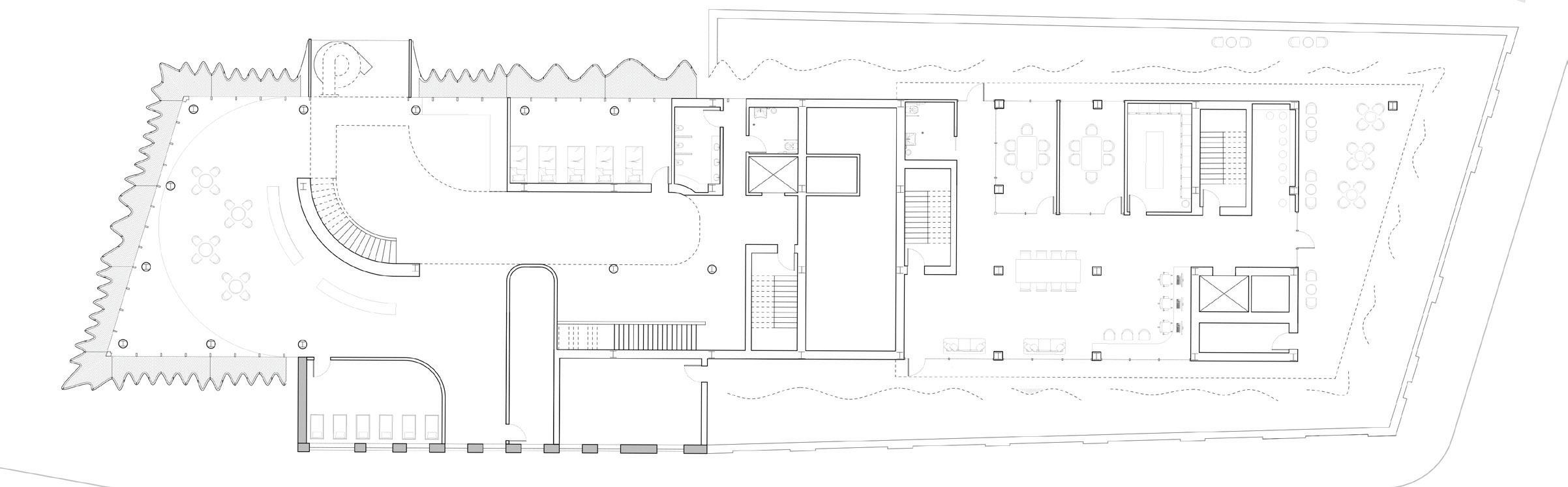
Located in Roxbury, Nubian Square, the site is situated between commercial and residential acting as a void. The edges and commercial hubs of Nubian Square create a gravitational force that is pulling away from the site. An existing building on the site provides a unique opportunity to reverse the gravitational force.
Nubian Square has many spaces that are unkept and underused, while its many vibrant communities lack the environment they need to reach their full potential. By repurposing the existing building on site, a convergence between old and new provides engaging spaces that accentuate the community and encourage intergenerational connections. This will preserve the neighborhoods’ identity while introducing new elements that support the next generations, fostering a better future for Nubian Square.


Playful Reveal of the Daycare
Three programs were selected to engage the community of Nubian Square; daycare, dance school, and student housing . Throughout these programs, moments of convergence between the existing brick building and the new happen at the human scale. A building that was once unfamiliar to the community is now allowing for interaction with it in meaningful ways. These programs, while different in needs and expression, are essential to the framework for the future of Nubian Square.





Student Housing Units
Double Height Space in the Daycare
Dance Studio
Studio Master Plan








Facade’s Full Journey Around Building
A modular screen system goes on a journey around the new forms and releases itself from the rigid geometry of the existing building. The module for this system follows the column grid of the existing building . Interior spatial qualities of the program beyond each module inform the exterior expression of the screen. The interior forces led to 13 panel types that make up the screen system. The panel types can be broken up into three different classifications: light, dense, and corners, each differing in function.















South Elevation
Screen as it Relates to the Existing Building
GALVANIZED

K-SERIES






Conceptual Form Models - Adaptive Reuse Strategies


Site Plan and Elevation produced by Pornsawan Boonaneksap.
Models, Plans, and Sections produced in collaboration with Pornsawan Boonaneksap.
1/16” = 1’-0” Model
Wrap
Parasite
Puncture

1/4” = 1’-0” Facade Model

Juncture for Static and Kinetic
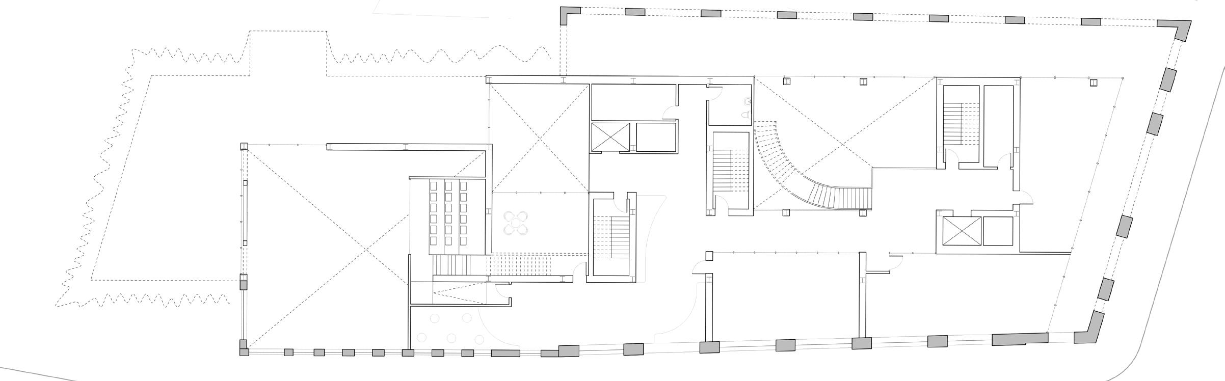
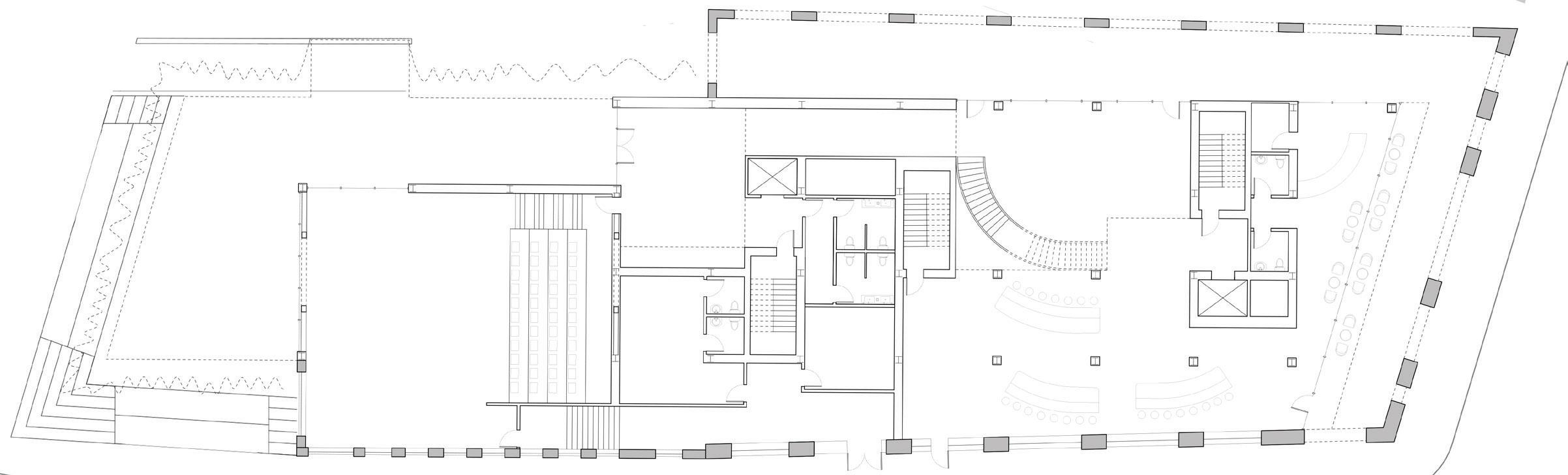
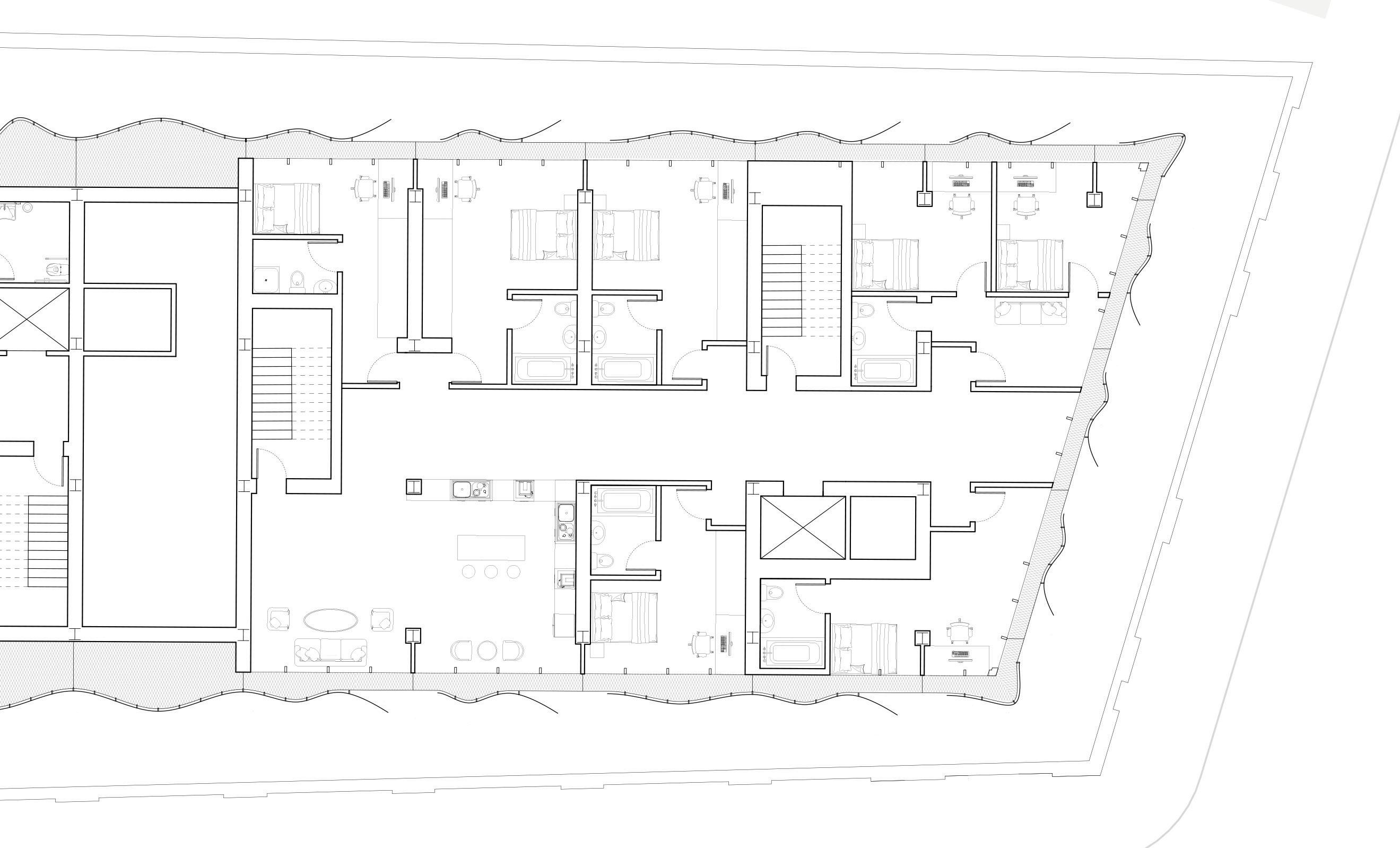
Mixed Use Building in Blacksburg, VA
Spring 2025
Duration: 10 weeks
Blacksburg’s student population, the kinetic, and its permanent population, the static, are both prevalent and thriving communities, but they do so separately. The site is situated between Main St. and the edge of Virginia Tech’s campus, providing an opportunity for the site to act as a juncture between the static and kinetic. The site should invite both populations in, allowing them to flow through the site, ultimately leading the two populations to connect.




Parti Model

The programs chosen to do this are a locally sourced grocery store, a cafe, housing, and a shared public realm . A grocery store is a program that both students and locals need and allows residents to connect with and support local businesses. A cafe is a program that invites people into the site and allows them to stay. Housing can provide a stronger sense of community within the site. The public realm that connects all three programs and the context beyond it by creating a sense of pull on the site, creating a juncture between the static and kinetic populations of Blacksburg.



Public Realm Created Between the Public and Private Forms
The southwest facade acts as a juncture for the site in a more conceptual way. Behind the facade are the private residential units, but the facade panels allow the building to open and change externally. The building itself is a static object, but the facade acts as its own kinetic being, as it is ever changing based on the residents inside. While there are over 100 operable panels on this facade, holistically, they read as one kinetic object on site. Internally, the facade gives the residents a sense of control and individuality to their living space, something that is often missing in big, homogenous housing complexes.



1 - Atrium Seating
Typical Upper Residential Floor Plan
Typical Lower Residential Floor Plan


Facades Interaction with Bedroom Unit Southwest
Conceptual Form Models




1/16” = 1’-0” Model
Stack
Curve
Offset






1/4” = 1’-0” Facade Model

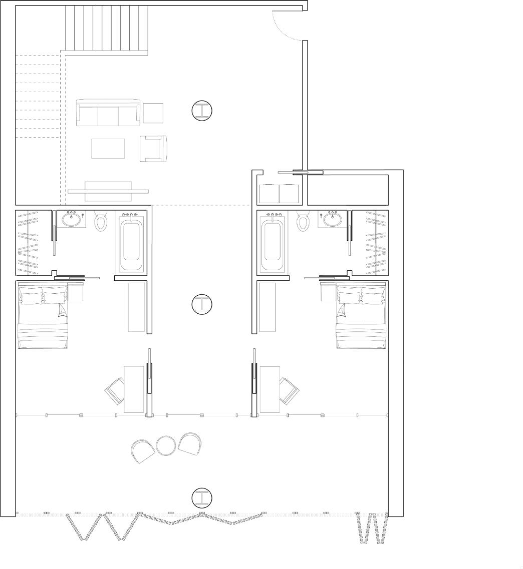
Transposing Suburbia
Single Family Home in Milton, MA
Spring 2025
Duration: 10 days
The site is located in Milton, MA, a suburb south of Boston, MA in a typical suburban neighborhood, surrounded by typical suburban houses.
By transposing the key spatial and material qualities of the typical suburban home, a home that challenges what a suburban home could be is created. Challenging these ideals creates a more engaging space for the single-family while simultaneously allowing the home to be unique in its expression.


Parti Model

Lana
Spatial Connection Between Levels
Through the simple move of reordering and opening spaces in the house, this home is defined by more than its suburban location.

Ground Level
Double Height Family Room


Brick walls on the upper level that do not reach the ceiling create an open space, allowing for visual connections and easier communication between family members.

Double Height Family Room Looking to Floor Above
Relation Between Public and Private Spaces in the Home


GRADE
VPOID
DRAINAGE
STANDING SEAM METAL ROOF
PLYWOOD UNDERLAYMENT
STRUCTURAL ROOF
50 MM RIGID INSULATION
TONGUE & GROOVE PINE - INT. FINISH
WOODEN BEAM BEYOND
STEEL LENTIL SPANNING WINDOW
WOODEN WINDOW FRAME
PLYWOOD
STRUCTURAL
Transposing Materials to Reflect Interior Spatial Qualities


Chapman Residence
Single Family Home in Radford, VA 2024
Phases: Schematic Design, Design Development, and Construction Documents
During my time interning at Colley Architects, P.C. I played a role in the project that included developing schematic design options for the client and contributing to construction documents under the mentorship of Nick Duncan and Tim Colley.
Located in Radford, VA in a forested area, the house sits at the peak of the site providing an opportunity for the house to be filled with views of the surrounding landscape. Working closely with the clients during the design process allowed for the spaces to directly fit their needs.

STANDING
OVER
5/8” PLYWOOD SHEATHING
R-38 BATT INSULATION
2X8 BLOCKING
DBL. 2X6 TOP PLATE
GUTTER
2X FASCIA
EXTERIOR FIB. CEMENT SOFFIT
BRICK VENEER
1” AIR GAP
3/4”
2X6 STUD WALL
1/2” GWB
INT. FLOOR FINISH BY OWNER
3/4” SHEATHING
BASEBOARD
2X6 BOTTOM PLATE
DBL. 2X6 BLOCKING
THRU. WALL FLASHING
FINISH GRADE
DRAINAGE BOARD & WATERPROOFING
2X6 BLOCKING
4” REINFORCED SLAB
MOISTURE BARRIER
R-10 RIGID INSULATION
#5 SIZE REBAR
CONCRETE FOUNDATION
6 MIL. VAPOR BARRIER
COMPRESSED GRAVEL
CONCRETE FOOTING
DRAINAGE

Upper Level
Spanning Length of the House

Porch
Double Height Great Room

The Joy of Sketching
Study Abroad in Rome, Italy
Summer 2023
Duration: 4 weeks
During my time studying history and theory of architecture in Rome I enjoyed sketching the sites we visited as well as moments of the city.


View from my apartment window
Window detail in Piazza Navona



Tempietto Del Bramante Window detail
Basilica di Sant’Andrea della Valle
Lana Dayle Roach
