マングローブの家
マングローブは、淡水と海水が混ざる場所に生息する。
私も、そのような場所で居場所を探しながら生活したい。
沖縄の伝統空間から考え、新しい私の居場所をつくった。
2年前期第一課題 「私の家」
学年内 最優秀賞 第30回合同設計発表会(2,3年合同) 優秀賞

出題/「私の家」
コロナ禍の生活を振り返り3年。なお収束の様相は見られない。 私たちの生活スタイル、習慣、意識は大きく変化した。
社会が劇的に変化していくなか、「私」をテーマとした、 「あなた自身」の住宅を自由に設計してほしい。
構想/沖縄特有のアマハジ(雨端)を再考する
私は、沖縄特有のアマハジの空間に魅せられた。
それは、縁側のようでそうではない特別な空間であった。
そこには、沖縄特有の気候や住宅の様式などもあると考え、 沖縄の古民家に学び、展開していこうと考えた。
提案/様々なレベルの広いアマハジ土間 沖縄の古民家には、玄関がない。
それは文化的、気象的側面があるが、現在は、薄れている。
現在の沖縄では、玄関は必須で、気候も変動した。
その中で現在の文化や気象にあった空間を生み出すことは できないか考えた。

プロセス/
1.おきなわに学ぶ
2.屋内土間・縁側・居室の 三層構造の模型スタディ
3.イメージスケッチ・プラン作成
屋根形状
4.模型・プランの観察 課題点を探る
5.土間の機能分化


中村家住宅(アマハジ)
沖縄の古民家 沖縄の豪農の住宅(500年前) 玄関のないアマハジ空間
名護市庁舎(アサギテラス) 今帰仁村中央公民館(回廊)
1.おきなわに学ぶ

象設計集団の建築 沖縄のヴァナキュラー建築 アサギとは古民家で離れのこと

2.屋内土間・縁側・居室の 三層構造の模型スタディ

3.イメージスケッチ・プラン作成 屋根形状

4.模型・プランの観察 課題点を探る

三間つづき・まわり土間プラン

5.土間の機能分 レベル差をつける


最終的な、半屋外空間


沖縄の伝統空間 沖縄の風と敷地
沖縄の古民家には、アマハジという深い軒下空間がある。
これは、強い日差しを遮り南東の風をうまく取り込む工夫である。
また、風と突然の雨を屋内に入れない工夫である。
この空間を原点に、新しい空間づくりを試みた。

初期の空間イメージ
敷地にはバナナの木があり、南に行くにつれ木の揺れが小さいことに気づいた。
これは、沖縄特有の夏に吹く南東よりの風である南風(パイカジ)が南側隣地の 建築事務所の塀で遮られていることを意味した。
そのため、建築物は北に配置し南側に風の入り込む隙を与えた。

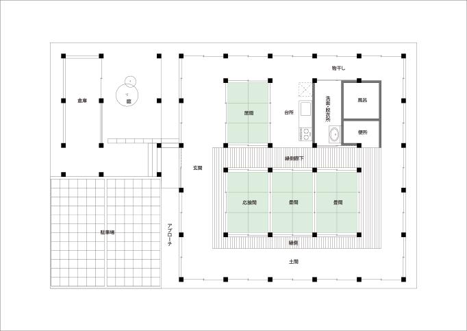
平面・配置計画について

周辺環境を考慮したことや、私の家という課題であり一人で生活することを想定していたことから平屋にすることにした。 そして、敷地を有効に使うため360角の柱を2400×2400mmのグリッド上に配置する計画とした。
アマハジをのばしたような新しい空間をつくるために、内部空間の東側に面するグリッドをすべて半屋外にした。

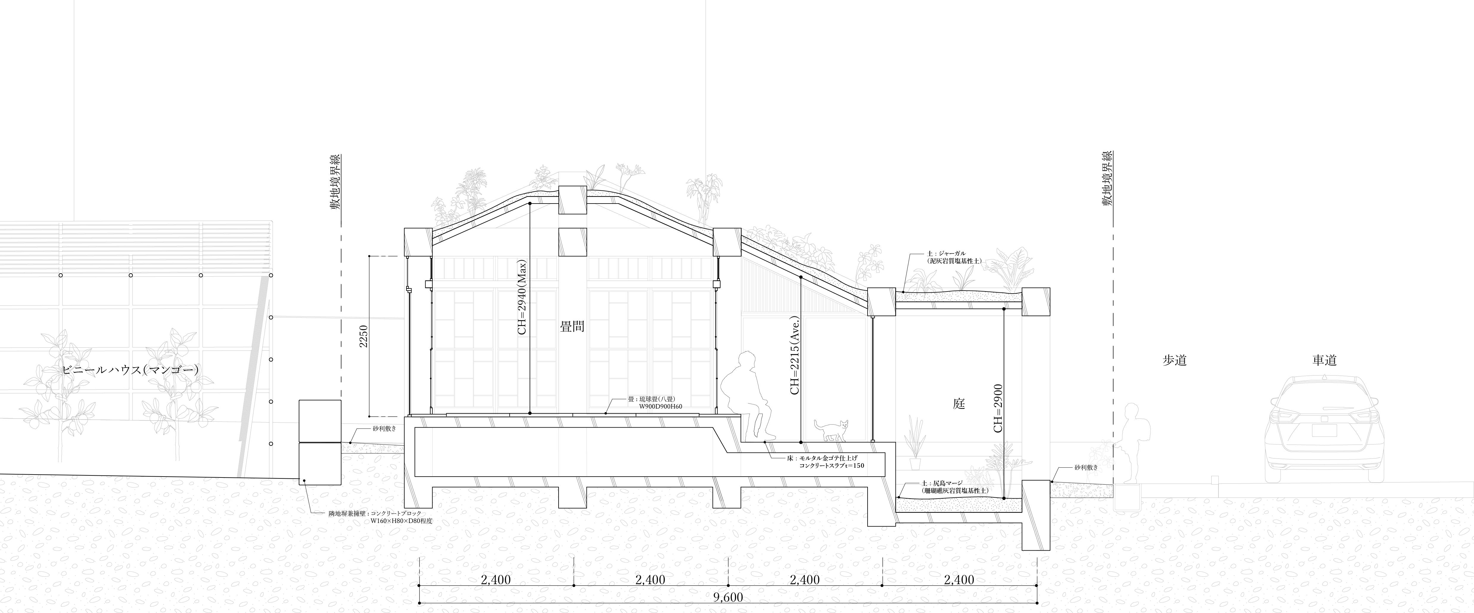
断面計画について
南北軸では、敷地の勾配とそれぞれの用途を考慮した。
前面道路に面した半屋外空間は、敷地の勾配に合わせて200mmずつ上がる。
内部の床は一定で、差が800,600,400...と変化し様々な用途に対応できる。
用途は1グリッド毎に変え、平面的なX・Y軸方向へのつながりを考えた
内部のような半屋外/外部のような半屋外の用途とした。
雨の日は、このスペースで傘を閉じ、応接土間から内部に入る。
人は天井が迫ってくることで、次第に内部に行くような感覚になり、 応接土間は、内部であり外部でもあるような空間になる。



土壌について 公私について
東西軸では、公私を考慮した断面計画とした。
内部に行くにつれて天井が上がっていくことで、内外の関係が緩やかになる。
畳間につながる半屋外空間は、遊び土間と上記断面において庭であり、 半屋外と屋内のレベル差が800・600となり東西軸のつながりは少なくなる。
台所に繋がる半屋外空間では、レベル差が400・200となることで、 より結びつきが強くなり、2,3グリッドを同時に使える計画としている。

土壌として用いたのは、ジャーガルと島尻マージである。 どちらも沖縄の土であり、用途別に使い分ける。
庭: 島尻マージ(珊瑚礁灰岩質塩基性土) 水はけがよく、塩基性で植物の成長に良い。
屋上緑化: ジャーガル(泥灰岩質塩基性土) 水を蓄える土で、塩基性で植物の成長に良い 敷地西側には、尻島マージでのマンゴー栽培が行われている。


御嶽(ウタキ)について
沖縄には、祈りの場所として至る所に御嶽(ウタキ)が存在している。
御嶽は、一般的に村の東端に位置していて、この地域では北側に位置している。ウタキは、祭りの際に重要な場所とされてきた。
しかし現在では、祭りの減少や意識が薄れたこと、村の人口増加に伴い、御嶽以東に住宅が建設されていることもある。
御嶽は、今後も祈りの場所として残っていき、意識を薄れさせないためにもランドスケープ的に御嶽を隠さず残していくことが重要であると考える。
そのために、平屋とし高さを抑えることとした。


