
Kakehashi Toshiki
Profile
2002 福岡県久留米市 2021- 琉球大学工学部建築学コース
Activity

2019 オーストラリア ホームステイ 2021-2024 アトリエ・nero 2023 Okinwa Idea Design contest 2024 沖縄市民会館調査 2024 建築学会コンペ 2024 タイワークショップ Market Makeover
2025 日本酒ボトルデザインコンテスト 2025 おきなわ建築ハンドブック 2025 ドラマ製作



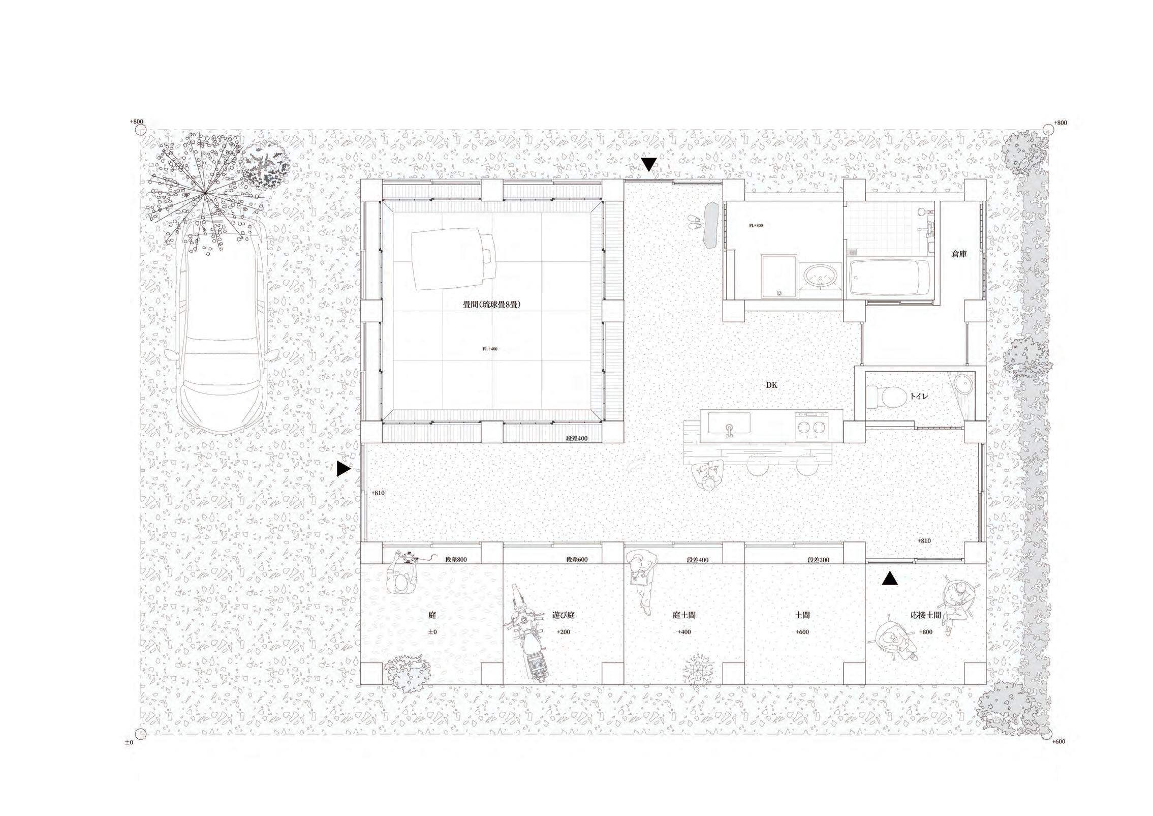
マングローブの家
マングローブは、淡水と海水が混ざる場所に生息する。
私も、そのような空間で居場所を探しながら生活したい。
沖縄の伝統空間から考え、新しい私の居場所をつくった。
2年前期第一課題 「私の家」
学年内 最優秀賞 第30回合同設計発表会 優秀賞

出題/「私の家」
コロナ禍の生活を振り返り3年。なお収束の様相は見られない。
私たちの生活スタイル、習慣、意識は、大きく変化した。
社会が劇的に変化していくなか、「私」をテーマとした、 「あなた自身」の住宅を、自由に設計してほしい。
構想/沖縄特有のアマハジ(雨端)を再考する
私は、沖縄特有のアマハジの空間に魅せられた。
それは、縁側のようで、そうではない特別な空間であった。
そこには、沖縄特有の気候や住宅の様式などがあると考え、 沖縄の古民家に学び、展開していこうと考えた。
提案/様々なレベルの広いアマハジ土間空間
沖縄の古民家には、玄関がない。
それは文化的、気象的側面があるが、現在は、薄れている。
現在の沖縄では、玄関は必須で、気候も変動した。
その中で現在の文化や気候にあった空間を生み出すことは できないか考えた。

プロセス/
1.おきなわに学ぶ
2.屋内土間・縁側・居室の
三つレイヤーの模型スタディ
3.イメージスケッチ・プラン作成
屋根形状
4.模型・プランの観察
課題点を探る
5.土間の機能分化 image study object


中村家住宅(アマハジ)
沖縄の古民家
沖縄の豪農の住宅(500年前) 玄関のないアマハジ空間
名護市庁舎(アサギテラス) 今帰仁村中央公民館(回廊)
1.おきなわに学ぶ

象設計集団の建築
沖縄のヴァナキュラー建築 アサギとは古民家で離れのこと

2.屋内土間・縁側・居室の 三つレイヤーの模型スタディ

3.イメージスケッチ・プラン作成 屋根形状
observe improve
4.模型・プランの観察
課題点を探る


三間つづき・まわり土間プラン

5.土間の機能分化 レベル差をつける


最終的な、半屋外空間

沖縄の伝統空間 沖縄の風と敷地
沖縄の古民家には、アマハジという深い軒下空間がある。
これは、強い日差しを遮り南東の風をうまく取り込む工夫である。
また、突然の雨を屋内に入れない工夫である。
この空間を原点に、新しい空間づくりを試みた。


敷地にはバナナの木があり、南に行くにつれ木の揺れが小さいことに気づいた。
これは、沖縄特有の夏に吹く南東よりの風である南風(パイカジ)が南側隣地の 建築事務所の塀で遮られていることを意味した。
そのため、建築物は北に配置し南側に風の入り込む隙間を与えた。

初期の空間イメージ

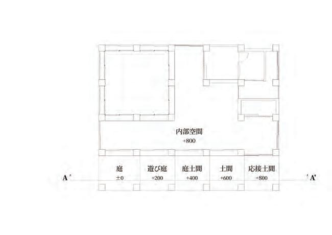
平面・配置計画について
周辺環境を考慮したことや、私の家という課題であり一人で生活することを想定していたことから平屋にすることにした。 そして、敷地を有効に使うため400mm角の柱を2400×2400mmのグリッド上に配置する計画とした。 アマハジをのばしたような新しい空間をつくるために、内部空間の東側に面するグリッドをすべて半屋外にした。
断面計画について

南北軸では、敷地の勾配とそれぞれの用途を考慮した。
前面道路に面した半屋外空間は、敷地の勾配に合わせて200mmずつ上がる。
内部空間は一定の高さで、半屋外との差が800,600,400...と変化する。
用途は1グリッド毎に変え、平面のX・Y軸方向へのつながりを考えた。
これらの用途は、内部のような半屋外/外部のような半屋外のものとした。
雨の日は、この半屋外のスペースで傘を閉じ、応接土間から内部に入る。
人は天井が迫ってくることで、次第に内部に行くような感覚になり、 応接土間は、内部であり外部でもあるような空間になる。



土壌について 公私について
東西軸では、公私を考慮した断面計画とした。
内部に行くにつれて天井が上がっていくことで、内外の関係が緩やかになる。
畳間につながる半屋外空間は、遊び土間と上記断面において庭であり、 半屋外と屋内のレベル差が800・600となり東西軸のつながりは少なくなる。
台所に繋がる半屋外空間では、レベル差が400・200となることで、 より結びつきが強くなり、2~6グリッドを同時に使える計画としている。

土壌として用いたのは、ジャーガルと島尻マージである。 どちらも沖縄の土であり、用途別に使い分ける。
庭: 島尻マージ(珊瑚礁灰岩質塩基性土) 水はけがよく、塩基性で植物の成長に良い。
屋上緑化: ジャーガル(泥灰岩質塩基性土) 水を蓄える土で、塩基性で植物の成長に良い 敷地西側には、尻島マージでのマンゴー栽培が行われている。

御嶽(ウタキ)について

沖縄には、祈りの場所として、いたる所に御嶽(ウタキ)が存在している。
一般的に村の東端に位置し、この地域では北側に位置する。
御嶽は、沖縄県民に祭りや行事ごとの際の重要な場所とされてきた。
しかし現在では、祭りの減少や意識が薄れ、沖縄の人口増加に伴い、 御嶽の東側に、住宅や公共施設が建設されていることもある。
御嶽を、今後も祈りの場所として残していくことは重要である。
そのために、計画住宅は平屋とし、高さを抑えることとした。




水と共に。
-水がつながり、人がつながり、領域がつながる-
計画地は、米軍基地内外の住宅地にまたがる。
フェンスをなくし、水と共に建築物を計画することで、 2つの住宅地を、緩やかにつないでいく。
3年後期第二課題 「二つの住宅地域をつなぐ公共施設」
学年内 最優秀賞 第33回合同設計発表会 第三位



閑散による歴史の保持
基地内のフェンス周辺は閑散としているが、基地内で 米軍の土地利用が、沖縄の古い遺構を守っていることも 確かである。
そのため、基地が将来的に開かれることは想定するが、
外国人住宅地のまま開くことを想定とする。

閑散と賑わいの境界
フェンス周辺は、基地内外でその様相を変える。
基地内では、歩道と森がつづき閑散としている。
一方、基地の外では、フェンスの建つ位置で 不法耕作をする人たちがいて、賑わっている。
敷地周辺の共同の農地は、荒地となっている。



水の問題
沖縄は、多くの水問題を抱えている。
水不足や、異常な頻度の洪水問題、水源の問題があり、 基地の内外で抱えている問題が、水汚染問題である。
基地北側の比謝川では、米軍基地内から排出される
汚染水が長年にわたり問題視されている。
沖縄は、石灰岩質の土壌であるため水が浸透しやすく 川が非常に少ない。また、冠水の問題もあるが、浸透 しやすく、川の整備が進んでいないように見える。
食の問題
基地内には、多くのファストフード店があり、日本にはないもの もある。またアメリカでは、肥満は大きな問題として挙げられる。
沖縄県ではひとり親世帯が多いことで、子どもの孤食などが問題 になっている。
基地内外において食は、別の観点で問題になっているといえる。


解決策
これらの問題と、米軍基地の基地機能以外(住宅地) の部分が将来的に開かれることを想定し、フェンスの 位置に川をつくり、計画地では子ども食堂を計画した。
水源は、標高の関係より沖縄市にある水源から引くこ ととし、おおよそフェンスの位置に設置するものとする。
軍基地機能の周囲には、フェンスを残していく。

地域性について
計画地は、基地周辺において唯一、基地を回る幹線道 路から基地側に入り込んでいるような特徴を持っている。
また地域の中でもより基地に近接している場所であり、 特定の人のみ訪れる場所になっている。
また、第一種低層住居専用地域であり、住宅が多い。

橙:フェンス位置(一周約20km) 黄色:水源位置(沖縄市)
緑:標高が一番高い位置
赤:計画敷地
青:水力発電所(予定)



建築物のかたちを考える上で、子供たちの動きや、かたちに対して人々がどう感じるかを考えた。
考えたイメージをそのまま、かたちにして、機能や構造を元に最終的な形状をつくりあげた。
回ってつながる

閉じて内に開く

敷地の西側は、昔の名残で行きどまりがあり、 フェンスがなくなると道路となることが想定される。
からまりながらつながる
この建築物は、橋ではない。
なかで人々が出会い、つながっていく。

じかんをつなげる
この建築物は、この敷地で完結しない。
未来に、つながっていく。

点線は、車道である(になる)ため閉じる。 子どもたちがのびやかに大きく動いて遊ぶ。
中心が川にあるような曲線 まっすぐな橋と違い、中の様子や隣の棟の様子、 人々の活動を見ながら人々がわたってゆく。
隣地に対して開く 一方は閉じ一方に開くことで隣地に開くことにした。 幼児が増えることを予想して隣地とつながるかたちに。
れきしをつなげる

フェンスから川へ
この建築物は、何かを壊すものではない。 フェンスがあった事実をつないでいく。
フェンスの位置には池ができ、やがて川になる。 川として、フェンスの記憶が残っていく。



現在フェンスがある位置がスロープの頂点となり、対岸をつなぐ。
スロープのアップダウンの体験と川の存在の認知により、人々は、フェンスよりも優しい境界を感じる。



からまりながらつながる
この建築物は、橋ではない。
中で植物のように巻きつき、なにかが生まれる。

じかんをつなげる
中心が川にあるような曲線
れきしをつなげる
この建築物は、この敷地で完結しない。
未来に、つながっていく。

まっすぐな橋と違い、中の様子や隣の棟の様子、 人々の活動を見ながら人々がわたってゆく。
隣地に対して開く
この建築物は、何かを壊すものではない。
一方は閉じ一方に開くことで少し閉じることにした。
幼児が増えることを予想して隣地とつながるかたちに。

フェンスから川へ

フェンスがあった事実をつないでいく。
フェンスの位置には池ができ、やがて川になる。 歴史として残っていく。

Y・Z棟
Y棟は、地域の人が移動する。Z棟は、幼児が利用する。
この2つの棟は、機能上関係は薄いが、一定の関係性を持つ。 Y棟を通る人は、スロープの上から幼児が遊ぶのを見る。
幼児は、地域の人が行きかう姿を見る。
触れ合うことはしないが、一定の関係性が生じる。
からまりながらつながる
この建築物は、橋ではない。
中で植物のように巻きつき、なにかが生まれる。

れきしをつなげる
中心が川にあるような曲線
この建築物は、何かを壊すものではない。
まっすぐな橋と違い、中の様子や隣の棟の様子、 人々の活動を見ながら人々がわたってゆく。

フェンスから川へ


フェンスがあった事実をつないでいく。
フェンスの位置には池ができ、やがて川になる。 歴史として残っていく。

この棟は、地域と一番つながりが強く、将来的に基地内外をつなぎ歩行者が、 渡るようになる。そのため、天井は一定の高さとしスロープが上がるに連れて、 天井が迫ってくる。通る人は、少し窮屈に感じる。
基地の外の前面道路には、コミュニティが回っており、バスの待合所を屋根を のばし計画した。地域に開いており、通りすがりの人が立ち寄る。
回ってつながる
敷地の西側は、昔の名残で行きどまりがあり、
フェンスがなくなると道路となることが想定される。

閉じて内に開く

点線は、車道である(になる)ため閉じる。
子どもたちがのびやかに大きく動くことができる。

れきしをつなげる
この建築物は、何かを壊すものではない。
フェンスがあった事実をつないでいく。

フェンスから川へ

フェンスの位置には池ができ、やがて川になる。
歴史として残っていく。

X棟
この棟は、中心性が高く中央の川を中心に、子供たちが走り回る。
屋根をフラットにすることで人の視野の方向性を限定せず、この建築物の空間 を中心に敷地の外まで広がっていく。
また、両側をガラスの引き違い戸にすることで、風や視線が通り、この敷地が 新たな障壁ではなく、基地の内外をつなぐものになる。
将来の展望
この地域は、SACO合意には含まれず返還は見込めないが、私は「水がつながることと共に返還されること」を想定する。
敷地に建築物ができ、水を沖縄市の一部の水源から引いてくる。川ができ、その周辺は人で賑わい建築物が次々に建ってゆく。
最終的に基地内外の住宅地はつながりながら、フェンスがあった歴史を川として残していく。
また、沖縄市には比謝川があるが水質汚染が問題視されている。計画地に引く川は、こどもたちが安全に遊ぶことができ、 不法耕作していた人たちも荒れた地域の農地に戻り農業用水とすることができる。





しんしょく
現在の小学校は、内部と外部が廊下によって分けられている。
そのため児童の居場所は、内部と外部に限定され、生徒の性格も 二分してしまっているように思われる。
様々な空間をつくり、小学校時代の大切な思い出として植物と 共に建築を考えた。
3年後期第 課題 「楽しい学び舎」

小学生は、幅を持った個性をもち、それぞれにあった居場所がある。
しかし、多くの小学校では居場所が、教室、図書館、運動場などと、分かれている。 そのうえ、閑散とした廊下が、居場所の分化に拍車をかけている。

休み時間の動線
一部の子供たちは、休み時間に教室から運動場に出る。 動線を描いてみると、廊下を通り外に出ていくことがわかる。

空間の抽象化
動線をあわせて、空間を抽象化すると、物理的に空間が大きく二分されていることがわかる。
感覚的にも、廊下という閑散とした空間が、空間にコントラストを生んでいる。


ありの行列と巣
ありは、広大な自然の中に行列をつくり、道をつくる。
廊下も直線で、ある必要はなく、意識的な廊下ができる。
また、雨が降ったらその道は、変化していく。

教室
教室の形状は、小学校の授業形態から9000mm角で固定した。
そこで、9000mmのグリッドを組んだ。

2~4の足をもつ床

2つの足は、となりの床と関係を持ち、回遊性を生む。
1つの足は、学年の居場所をつくる。
足の数は、学年や場所によって、多少の増減をする。
平坦に繋がっているが、そこには居場所の豊かさが生まれる。
教室
グリッド上に教室を配置し、曲線の床を配置したが、廊下が直線的に切り取られてしまう。 そのため、グリッドから1800mmずらし、廊下がより直線にならないようにした。

平面計画について
足を持つ床が学年の分かれ目をつくり、同じ階の中に学年の境界ができた。
教室と曲線の床による直線的でない廊下と、他の学年が干渉しない半屋外の 居場所ができた。
様々な性格の生徒に合わせた、様々な居場所をつくることができた。


鉄筋コンクリートのラーメン構造にしていたことで、できた空間は柱が大きく、イメージと少し異なるものであった。
また、教室の角が目立つことで、廊下が直線的に見えてしまう部分も出てきた。そのため、鉄骨造に切り替え、設計を進めることにした。



小学生の頃は、中学生の頃などと比較して、森や川、昆虫などと触れる機会は多い。
植物や昆虫の生きるすべや、特徴などから児童に、多く学んでほしい。

そのため、植栽の計画も共に進めていく。 ハンタ道(琉球王朝時代の道)
敷地東側には、琉球王朝時代の道であるハンタ道が通っている。(那覇~中城城跡) 私が、計画地から中城城跡までハイキングした際に見た植物と沖縄の植物を本計画に用いる。




□ クロトン
南アジアや太平洋諸島が原産。
葉の形や色が様々で100種以上あるとされる低木。赤 や黄色オレンジなどの色の葉がみられる。
観葉植物や生け垣などに使われる。

□ サンダンカ
花弁が三段になることからその名がつけられた。
沖縄では三大名花の一つである。
日本の中でも熱帯に近いので庭木として楽しめる。
街路樹等にも用いられる。

□ カンヒザクラ
沖縄にはソメイヨシノは、育たない。
その代わりに、二月中旬ごろに開花する、ピンク色の強 いカンヒザクラがある。
沖縄では、時期的な問題から桜も違った意味を持つ。

□ アロカシア・アマゾニカ
濃い緑に白い葉脈が入るのが特徴。 観葉植物などとしても楽しまれる。
東南アジアが原産ではあるが、沖縄の気候では庭木と して楽しむことができる。

□ ハイビスカス
ハワイ諸島原産の低木。5~3月にかけて開花する。
中城村(計画地)の、村花である
仏桑華(ブッソウゲ)ともいう。
沖縄方言でアカバナーという。

□ ツワブキ
半日陰の湿った環境を好む植物。
沖縄では、冬に黄色い花が開花する。
沖縄の気候では、生息に適している。
中城城跡は、ツワブキの観光で有名。

□ オオタニワタリ
主に、南日本から台湾などに生息しているシダ植物。 樹上や岩石に着生する。
落ち葉が中央に蓄積し、そこから養分を得るという面 白い特徴を持っている。

□ ブーゲンビリア
熱帯地域に生息する中高木。
和名でイカダカズラといい、蔓植物で木や壁を這う。
華のように見えるのは葉であり、赤い葉と緑色の葉を 持つおもしろい木である。

□ チャイナローズ
中国原産の低木。
琉球王朝時代、中国などから入ってきたと考えられる。
台湾などでは、自生していて沖縄の気候にも適している。








1Fダイアグラム
一階にすべての特別教室を集めることで、教室と比べ大きな特別教室の天井高をあげることができる。 また、特別教室は、教室によって行動が違うため、それぞれにあわせた設計を行う。
土壌をのせるスラブ 鉄筋コンクリート打ちっぱなし仕上げt=300
2Fダイアグラム
二階は、土壌を載せるスラブの上に、樹脂製のウッドデッキを載せる。
柱がなるべく通路側に出ないように、7800mmのグリッドに9000×9000の教室を置き教室の角の面取りをした。
丸型鋼管の柱
Φ=500 t=16
7800mmスパンのグリッド上に配置
特別教室群 ガラスのカーテンウォールを使用。
それぞれの教室に合わせた形状になっている。
CH=4500
曲線の床スラブ 鉄筋コンクリート打ち放し仕上げ。t=200
天井スラブ
鉄筋コンクリート打ちっぱなし仕上げt=150 部分的に切り取られ、自然光が入る。 H形鋼格子状梁 450(H)×300(D)×12(t) 格子状になっていて屋上からツタがおりてくる。
(ポトスなど)
教室群 9000×9000の教室。
ガラス張りで内側にカーテンを設ける。
天井高さはCH=3300
曲線の床 学年ごとに異なる曲線の床。
樹脂製デッキプレートt=50
土壌をのせるスラブ 鉄筋コンクリート打ちっぱなし仕上げt=300
中庭 一部は二階高さまで吹き抜けで、一部は全面吹き抜け。
吹き抜け 曲線のスラブを分けて重ねることによって、 天井スラブとは異なった吹き抜けができる。
丸型鋼管の通し柱 吹き抜けを通る柱は格子梁までのばす。 Φ=400





最終的に、構造を変更することで、イメージした空間に近づいた。








ヨミイチ
敷地周辺には、過去に闇市があった過去がある。
それは、観光地からも近く住宅地からも近い敷地が持つ特性である。
その特徴を活かし、いろいろな本や人が集まる図書館を設計した。
3年前期第一課題 「増床する図書館」
学年内 最優秀賞

出題/「増床する図書館」
敷地は、沖縄県那覇市の開南交差点付近、増床することを前提と した図書館を増床前と増床後に分けてプランニングする。
本の物質としての、重要性を考え直してほしい。
構想/敷地の特徴を活かした図書館
様々な人が行きかうことのできる図書館。
敷地は、国際通りから近く住宅街からも近い。
闇市もあった歴史を持つこの敷地で、多くの人が集まる 地域特性を活かした図書館。

提案/交差する筒と流れを変える本棚。
直線的な筒が交差するが、内部空間は、人の流れを考慮した 本棚を計画する。
単位として増床するが、建築物と本棚の新しい空間ができる。
プロセス/
1.ボリュームの検討
2.地域外と敷地内の関係
3.部分の操作

1.ボリュームの検討

敷地周辺には小学校や高校そして観光地からのびている アーケードがありその方向に筒をのばしていく
敷地内にも建物の間に異なる外構ができる
2.地域外と敷地内の関係



各部分は筒を切る、重ねる、つなぐなどの工程を経た
3.部分の操作
4.形態の性質を考える
5.改善と増床の考慮

4.形態の性質を考える

大 移動距離 小


5.改善と増床の考慮



闇市のあった地域性
敷地北側の前面道路以北は、観光地・商業地となっていて、 アーケードが広がり平和通りなどがあり国際道路へ繋がっている。
一方、南側は住宅地が広がっていたり、小学校中学校があり、 住人の生活圏となっている。
様々な人が行きかう、この地域にかつて闇市が存在した。
様々な人が行きかうことが特徴であるこの地域で、周辺の施設からの 動線を考え、それを切り取る形で建築物の形態と用途を考えた。

国際通りから続くアーケード
切り取った形態
小学校・中学校、高校、アーケードなどの敷地周辺の施設から、 この敷地へのアクセスを考え、動線を配置して切り取った。
敷地内での、つながりを考えて、黄色の線を付け加える。
小中学校

積層する本棚
長方形の平面に、半円を置くことで効率的に本棚を置くことはできなくなる。
しかし、本棚を積み上げ、床を持ち上げることによって、蔵書数を増やすことができる。
また、通路とは異なった静かな空間をつくることができる。



人の流れを歪める本棚
闇市の取引は、大きな道から少し入った小路を進んだ場所で行われた。
より人が関わらない、陰の空間で行われた。そのように、人の流れを考慮した本棚の計画をした。
この図書館は、直線的でありながらも、曲線の本棚が人の動きを歪める。 形状は、移動距離と流動性から考え、その均衡がとれる形として半円を選んだ。
断面的にも、B-B’断面に見てとれるように、北東に下る敷地形状を活かし一定の感覚で、レベル差を設けた。 階段では、人の流れが早くなり、段差のない床で人がたまる。






増床の計画
増床は、筒のはばが太くなるように計画する。
これにより、軸を持った長方形ではなくなり、新しい空間が広がる。
本棚も半円から円形にかたちを変え、新しい本棚となる。



増床後、半円の半棚は、円形になり新しい空間を作り出す。 そして、人々の流れは、長方形の軸がなくなったことにより、緩やかになっていく。




建築物はかたい。
かたい建築物をつくるうえで
まちと計画地、計画地の人と人、建築物と人の間に やわらかさをつくることはできないかを考えた。
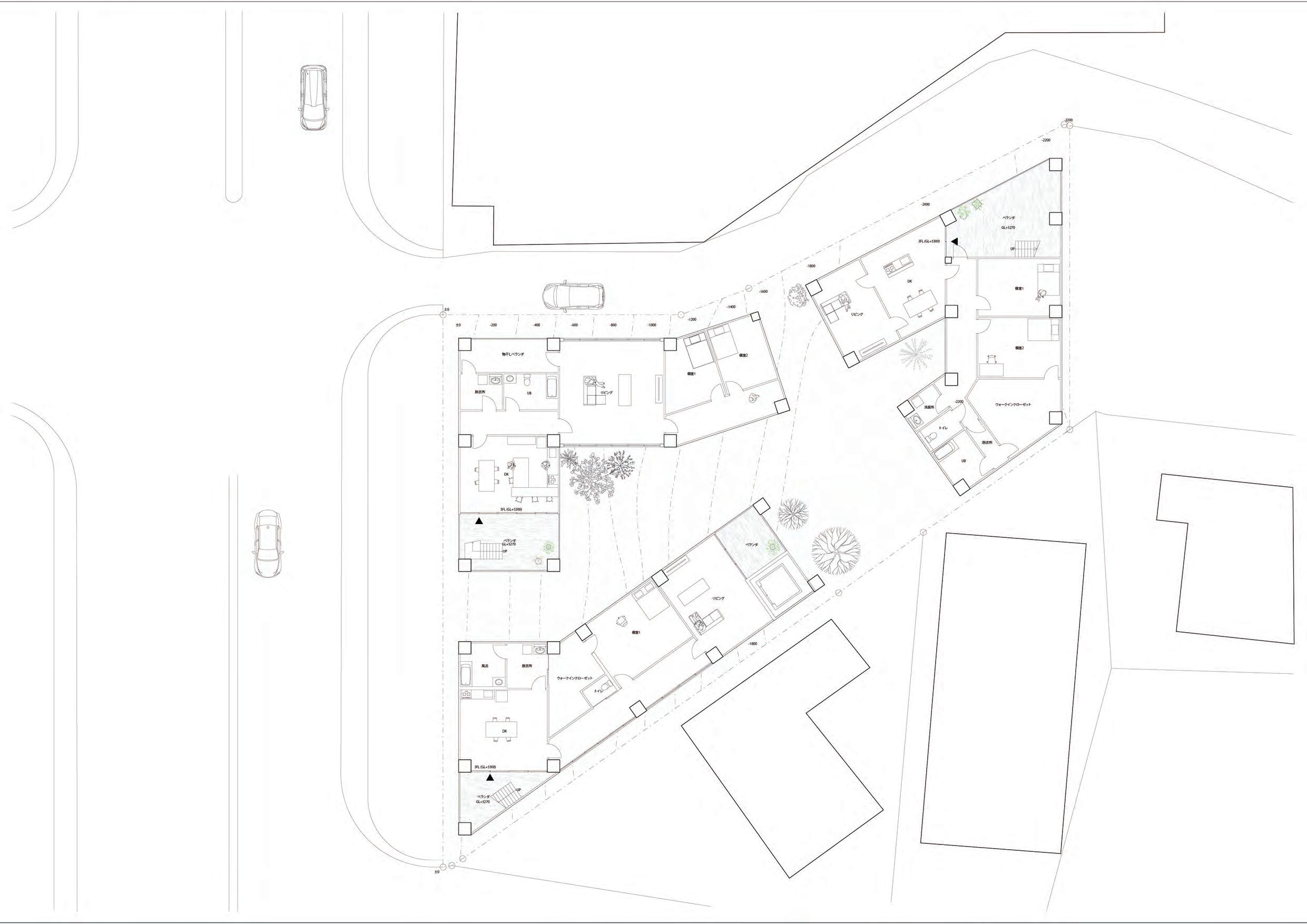
2年後期第二課題 「未来をつくる集合住宅」





スキップフロア みんなのベランダを用いたスキップフロアとした。
2階は、1階から階段でのアクセス 3階は、4階にEVで一度上がり階段で降りるアクセス 5階は、4階までEVで上がりそこから階段を上る。

日本人向け住戸群(空中ピロティを通る)
空中ピロティ(やわらかい空間)

外国人向け住戸群(空中ピロティを通る)
外国人向け住戸群(地上ピロティを通る)
地上ピロティ
水回りを一定の個所に集め、各居室の関係を考えながら設計を進めた。
ラフスケッチをもとに、手書きの図面とデジタルな図面を作成した。
また、住宅を契約する際に、様々な周辺環境とプランを準備することで、 部屋選びも楽しんでもらえると思い、手書きにより、周辺環境を考えた。

2F外国人向け住戸群

米軍は、基地の外に住むこともでき、外国人住宅が立ち並ぶ地域も存在する。
外国人住宅を見てみると、日本人の住宅に比べ床面積が大きい。
これらは、ライフスタイルの違いやアメリカからの補助金が影響している。
そのため外国人住宅として、200m²の住戸を計画した。

敷地向かい側の米軍基地
敷地前面道路をはさみ、米軍基地が存在している。
そのため、基地内へのアクセスが良く外国人が住むことが考えられた。
3F外国人向け住戸群
3Fは、空中ピロティからアクセスする。
2Fと異なり部屋にアクセスする際に、共用部を2つ通る。
ベランダからのアクセスを多く設けている。
1Fより住人への関わりが多くなる。

敷地から東側を見る

敷地の東側には、森が広がっている。
しかし、計画地の前面道路は、スマートICに接続しており、車線の増設も計画されている。
この計画地は沖縄中部でありながらも、沖縄南部に1時間以内に行くことができ、大きなショッ ピングモールもあるため、将来的にベッドタウンとして、発展することが予測される。
町の緑を減らすことのないように、中庭に続くスリットをつくる。
5F日本人向け住戸
2,3階の200m²を半分に分割し、日本人住戸とした。
4Fを空中ピロティとしたのは、異なる生活に対応するためである。
集合住宅での騒音トラブルは床での音が主であり、米軍基地に多く住んでいるアメリカ人の生 活スタイルとして、ホームパーティなどがあるため空中ピロティを設けた。
外国の方が、自分たちの生活スタイルを変えずに、また、日本人も対象とすることができる ように考えた。


団欒のカタチ
団欒は、家族コミュニティと感情の中にあると考える。
単に家族団欒の中に、据え置かれるボトルではなく、 ボトルを手に取って、回す体験や、触覚、視覚により 感情をくすぐるようなボトルに仕上げた。
日本酒ボトルデザインコンテスト Presented by アイ工務店






ボトル形状は、与えられていた。
平面による提出に限界を感じ、
ボトルの形状を活かすためにも 3Dプリントでボトル形状を出力し その上にデザインした。

まわす
線を追って回していく。
様々なカタチと出会っていく。
触る
テクスチャが変化する。
ザラザラ、ツルツル、バサバサ。
見る
色の変化、カタチの変化、テクスチャの変化。