KTIRIO - APRIL 2023

Page 1

ΤΕΥΧΟΣ 4 / ΑΠΡΙΛΙΟΣ 2023 / 10,00€ ΑΡΧΙΤΕΚΤΟΝΙΚΗ | ΤΕΧΝΟΛΟΓΙΑ | ΕΦΑΡΜΟΓΕΣ | ΥΛΙΚΑ | ΒΙΟΜΗΧΑΝΙΚΟ ΚΤΙΡΙΟ ΣΤΗΝ ΕΛΕΥΣΙΝΑ "MAGMA" RESORT & SPA ΣΤΗ ΣΑΝΤΟΡΙΝΗ "WEGDE HOUSE" ΣΤΗΝ ΠΥΛΟ Η ΓΗΡΑΝΣΗ ΤΩΝ ΔΟΜΙΚΩΝ ΥΛΙΚΩΝ ΣΥΝΘΕΤΑ ΘΕΡΜΟΜΟΝΩΤΙΚΑ ΠΕΤΑΣΜΑΤΑ ΓΙΑ ΕΠΙΣΤΕΓΑΣΕΙΣ ΑΝΤΙΚΕΡΑΥΝΙΚΗ ΠΡΟΣΤΑΣΙΑ ΚΤΙΡΙΩΝ

Πρώτες σελίδες

24 "2/3 complex"

Τουριστικές κατοικίες σε οικόπεδο με υφιστάμενο κτίσμα

Parti Architecture

28 "Amira Luxury Resort & Spa"

Ξενοδοχείο 5 αστέρων στο Ρέθυμνο

Ευάγγελος Ανδρεαδάκης & Συνεργάτες

32 Χώρος γραφείων και showroom στην Αθήνα

Σχεδιασμός στα όρια του άυλου και του υλικού

Architerra / Γιώργος Δημητριάδης

Αρχιτεκτονική

38 "Wedge House" στην Πύλο

Κατοικία με σφηνοειδή γεωμετρία Urban Soul Project

46 Κτίριο γραφείων και βιομηχανικών εγκαταστάσεων

ναυτιλιακής εταιρείας στην Ελευσίνα Parthenios architects + associates

58 "Magma Resort & Spa"

σε χαρακτηριστικό τοπίο της Σαντορίνης

People

Τεχνικές σελίδες

69 Εσωτερική ασφαλής διακίνηση στα ξενοδοχεία

Βασικές αρχές προσβάσιμου σχεδιασμού για την ισότιμη αντιμετώπιση

όλων των ατόμων και την εξασφάλιση άνεσης και ασφάλειας.

77 Αντικεραυνική προστασία κτιρίων

Οι απαιτήσεις και η διαδικασία σχεδιασμού και εγκατάστασης

ενός συστήματος εξωτερικής αντικεραυνικής προστασίας.

85 Η γήρανση των δομικών υλικών

Παράγοντες φθοράς και μορφές αλλοίωσης λόγω έκθεσης στο περιβάλλον.

95 Σύνθετα θερμομονωτικά πετάσματα

για επιστεγάσεις κτιρίων Εναλλακτική λύση της συμβατικής στέγης με υψηλή απόδοση και ιδιαίτερη αισθητική.

Εργοτάξιο

104 Ανακαίνιση και επανάχρηση πέτρινης κατοικίας

του 18ου αιώνα στη Θάσο

Μαρία Τσαμουρτζή

Σχεδόν το σύνολο των βασικών δομικών υλικών της αρχικής κατασκευής, η πέτρα και το ξύλο, επαναχρησιμοποιήθηκαν

αποτελώντας τον βασικό φορέα στις εργασίες ανακατασκευής.

108 Πτυχωτό κέλυφος στo "Westfield Mall" στην Ολλανδία

MVSA Architects

Εξώφυλλο: Κτίριο γραφείων και βιομηχανικών εγκαταστάσεων ναυτιλιακής εταιρείας στην Ελευσίνα, Parthenios architects + associates, Φωτογραφία: Γιώργος Σφακιανάκης Απαγορεύεται η αναδημοσίευση κειμένων & φωτογραφιών, χωρίς τη γραπτή άδεια του εκδότη. Το περιεχόμενο των άρθρων εκφράζει τον συντάκτη και όχι απαραίτητα τη διεύθυνση του περιοδικού.

Η ρευστή πρόσοψη αποτελείται από 2.900 προκατασκευασμένα στοιχεία διπλής όψης από σκυρόδεμα υψηλής αντοχής, τα οποία στηρίζονται σε σκελετό αλουμινίου.

Το βήμα των εταιρειών

113 Ειδήσεις - Απόψεις - Σύγχρονες τεχνολογίεςΥλικά και εφαρμογές τους

3 ΑΠΡΙΛΙΟΣ 2023
28 108 58 77 ΠΕΡΙΕΧΟΜΕΝΑ

ΑΝΑΓΚΑΙΑ Η ΠΕΡΙΦΕΡΕΙΑΚΗ

ΟΙΚΙΣΤΙΚΗ ΑΝΑΠΤΥΞΗ

Η έντονη ανάπτυξη των δραστηριοτήτων των επαγγελματιών και των επιχειρήσεων του κλάδου των

κατασκευών είναι γεγονός. Τώρα όμως απαιτείται η πολιτεία και οι φορείς του κλάδου να αξιοποιήσουν με σωστή διαχείριση αυτήν την αυξημένη δραστηριότητα του κλάδου.

Είναι πλέον αναγκαίες η κατάλληλη νομοθεσία και η αύξηση των ελέγχων των κατασκευών, με στόχο την παραγωγή κτιρίων με μειωμένη κατανάλωση ενέργειας και με σεβασμό στο περιβάλλον. Επίσης, στο ήδη επιβαρυμένο δομημένο περιβάλλον των πόλεων θα πρέπει να δοθούν ισχυρά κίνητρα μόνο για ανακαίνιση, αναδιαμόρφωση και ανακατασκευή των κτιρίων, όπως και διευκολύνσεις για αλλαγή των χρήσεων σ’ αυτά.

Μεγάλη παρέμβαση όμως θα είναι η περιφερειακή ανάπτυξη της χώρας και η ανάπτυξη οικιστικών

περιοχών στους κοντινούς οικισμούς των μεγάλων πόλεων.

Χρειάζεται, βέβαια, αρχικά να γίνουν εκτενείς χωροταξικές μελέτες και να δοθούν τα ανάλογα κίνητρα, ώστε οι μόνιμες κατοικίες που θα αναπτυχθούν σε περιφερειακούς οικισμούς να συνδεθούν με ένα

ολοκληρωμένο δίκτυο δημόσιων συγκοινωνιών.

Πρώτη η Αθήνα χρειάζεται "αποσυμπίεση", διότι η ποιότητα ζωής των κατοίκων της έχει μειωθεί

δραματικά και το ίδιο θα συμβεί και σε άλλες επαρχιακές μεγαλουπόλεις, αν δεν αντιδράσουμε σωστά σήμερα.

Πιστεύω ότι η μεταφορά εξουσίας και πόρων στις Περιφέρειες της χώρας, δηλαδή η πολυσυζητημένη

ΑΠΟΚΕΝΤΡΩΣΗ, θα κρατήσει τους νέους κοντά στους τόπους που γεννήθηκαν και αγαπούν!

Παράλληλα με την ανάπτυξη της τεχνολογίας θα μπορούν να δημιουργούν και να αναπτύσσουν

δράσεις και επιχειρήσεις στον τόπο τους, αυξάνοντας τις θέσεις εργασίας και ενισχύοντας τις τοπικές

οικονομίες, που είναι η βάση για την "υγιή" οικονομική ανάπτυξη της Ελλάδας.

Πιστεύω επίσης ότι μ’ αυτόν τον τρόπο στα κέντρα των πόλεων θα προκύψουν μείωση στις τιμές αγοράς

και ενοικίασης των ακινήτων, μείωση της κυκλοφορίας και της ατμοσφαιρικής ρύπανσης και ανάπτυξη της ποιότητας ζωής των πολιτών!

Παράλληλα, οι μικρές και μεσαίες τεχνικές εταιρείες και τα τεχνικά γραφεία στην περιφέρεια θα έχουν

τη δυνατότητα να δημιουργούν νέα ποιοτικά κτίρια και να αναβαθμίζουν το υφιστάμενο υποβαθμισμένο

κτιριακό περιβάλλον της επαρχίας, βελτιώνοντας το ευρύτερο δομημένο περιβάλλον της χώρας μας.

Πέτρος Παπαϊωάννου Εκδότης - Πολιτικός μηχανικός

2023

15
ΕΚΔΟΤΙΚΟ
ΑΠΡΙΛΙΟΣ

Αρχιτεκτονική μελέτη, μελέτη λεπτομερειών & επίβλεψη:

Ευάγγελος Ανδρεαδάκης & Συνεργάτες

Στατική μελέτη:

Κωνσταντίνος Κοσκινάς & Συνεργάτες

Η/Μ μελέτες:

Λευτέρης Κουκλάκης,

Κυριάκος Κουκλάκης, Ηλίας Κανατάκης

Φύτευση:

Κώστας Μπουγιούρης

Μελέτη κηποτεχνίας:

Γιώργος Μαθιουλάκης

Υπεύθυνος εργοταξίου κατασκευής:

"Επί του έργου ΕΠΕ" / Γιώργος Βασιλάκης, σε συνεργασία με Αριστοτέλη Καλοειδά, Ηλία Σπυρλιδάκη & Κωνσταντίνο Δαμανάκη

Ιδιοκτήτης:

ΑΡΙΩΝ Α.Ξ.Τ.Ε.

Τοποθεσία:

Αδελιανός Κάμπος Δήμου Ρεθύμνου

Εμβαδό:

12.400 m²

Έτος ολοκλήρωσης:

2022

Παρουσίαση:

Ευάγγελος Ανδρεαδάκης & Συνεργάτες

Φωτογραφίες:

Στέλιος Παπατζανάκης, Μιχαήλ Καψαλάκης

& ΑΡΧΙΤΕΚΤΟΝΙΚΑ ΓΡΑΦΕΙΑ

ΜΕ ΔΙΑΦΗΜΙΣΗ Σ' ΑΥΤΟ ΤΟ ΤΕΥΧΟΣ:

AKRON ΣΕΛ. 13

ALUMIL ΣΕΛ. 1

HAGER ΣΕΛ. 23

HANSGROHE ΣΕΛ. 27

STOHELLAS ΣΕΛ. 10 - 11

Το συγκρότημα κατασκευάστηκε σε παραλιακό οικόπεδο με νότιο όριο δημοτική οδό (παλαιά εθνική οδό) και διαθέτει 172 δωμάτια και 10 σουίτες. Κύρια στοιχεία της αρχιτεκτονικής σύνθεσης είναι η ενότητα του συνόλου και η αυτοτέλεια των μερών του, η δημιουργία ενός απλού φυσικού περιβάλλοντος με χρήση πρασίνου χωρίς τεχνητά όρια, η γενικευμένη εφαρμογή των καμπυλών και οι πισίνες με επιφανειακή υπερχείλιση. Με τον σχεδιασμό του επιδιώχθηκε ένας χαλαρός εξωαστικός χαρακτήρας, καθώς οι αρχιτέκτονες διαπίστωσαν την αστική κλίμακα των πολεοδομικών μεγεθών. Ταυτοχρόνως, έγινε προσπάθεια αποφυγής του μαζικού "ιδρυματικού" χαρακτήρα και της τυποποίησης και τονίστηκαν τα χαρακτηριστικά της πολυπλοκότητας των στοιχείων και της αρχιτεκτονικής σύνθεσης.

Ο όγκος του κτιριακού συγκροτήματος και των όψεων διασπάστηκε με ελαφρά και διάφανα υλικά. Χαρακτηριστικό είναι ότι από τον δρόμο φαίνεται η γραμμή του ορίζοντα και η θάλασσα. Οι υπαίθριοι ακάλυπτοι χώροι ενοποιήθηκαν με χρήση ενιαίων καμπύλων γραμμών. Στοιχεία νερού και γραμμικές πισίνες κυριαρχούν με κορύφωση την κεντρική με το "νησί" χαλάρωσης και εστίασης.

1

Σημαντική επίσης είναι η άμεση επαφή με το φυσικό περιβάλλον και η χρήση πολύ υψηλού πρασίνου. Έγινε μεταφύτευση πλατάνων, οι οποίοι είχαν πέσει σε πλημμύρα, οι οποίοι με το μεγάλο τους ύψος (10 - 17 m) βελτίωσαν τη σχέση κτιρίουπεριβάλλοντος, ειδικά για τα ισόγεια. Επιπλέον διατηρήθηκαν φυσικά χαρακτηριστικά της περιοχής: αμμόκηπος, βραχόκηπος και μεσογειακός κήπος. Τον επισκέπτη υποδέχεται μια διαφώτιστη στοά, που μέσω του κεντρικού πεζόδρομου οδηγεί στην

παραλία. Αριστερά βρίσκεται ο χώρος υποδοχής

με το μπαρ, που επεκτείνεται σε ημιυπαίθρια και

υπαίθρια αυλή με καταρράκτη, ενώ δεξιά βρίσκεται

το κύριο εστιατόριο. Στο συγκρότημα υπάρχουν

δύο ακόμη εστιατόρια: ένα μπροστά στην παρα -

λία και ένα στον πρώτο όροφο, το οποίο διαθέτει

βεράντα με "πράσινο τοίχο" με καταρράκτη και

ανεμπόδιστη θέα. Στο δυτικό άκρο, το "νησί" της

κεντρικής πισίνας συνδέεται με το μπαρ με τη

χαρακτηριστική μεταλλική διαφώτιστη πέργκολα.

Στο ημιυπόγειο αναπτύσσεται συνεδριακό κέντρο

με μεγάλη και μικρή αίθουσα και φουαγιέ. Στο ίδιο επίπεδο βρίσκεται θερμαινόμενη πισίνα με φωτεινή

οροφή και θέα στον κήπο, μεγάλο γυμναστήριο και χώροι ευεξίας (spa).

Τα δωμάτια είναι δύο τύπων: δίκλινα (σε τρεις χρωματικές συνθέσεις) και τρίκλινα (σε δύο χρωματικές συνθέσεις), σχεδιασμένα με διαφορετικούς

τύπους επίπλων. Όλα τα δωμάτια του ισογείου έχουν πρόσβαση και εξυπηρετούνται από γραμμικές πισίνες.

Οι 10 σουίτες έχουν πέντε διαφορετικές κατόψεις, με ξεχωριστή επίπλωση η κάθε μία. Βρίσκονται στη βορινή όψη και 8 απ’ αυτές έχουν ατομικές

πισίνες με ελεύθερη θέα και άμεση πρόσβαση

στην παραλία.

28 ΑΠΡΙΛΙΟΣ 2023 ΤΕΧΝΙΚΑ
"Amira Luxury Resort & Spa"
Ξενοδοχείο 5 αστέρων στο Ρέθυμνο
ΚΑΙ ΥΠΗΡΕΣΙΕΣ
©Στέλιος Παπατζανάκης
ΟΙ ΠΑΡΑΚΑΤΩ ΕΤΑΙΡΕΙΕΣ ΔΙΑΘΕΤΟΥΝ ΠΡΟΪΟΝΤΑ
ΣΤΟ ΕΡΓΟ ΚΑΙ ΣΥΜΜΕΤΕΧΟΥΝ

& ΑΡΧΙΤΕΚΤΟΝΙΚΑ ΓΡΑΦΕΙΑ

3

2 5 4

1. Το συγκρότημα χαρακτηρίζεται από έναν χαλαρό εξωαστικό χαρακτήρα. ©Στέλιος Παπατζανάκης.

2. Οι ελαφρές καμπύλες οριοθετούν και τις ζώνες χρήσης του ακάλυπτου χώρου. ©Μιχαήλ Καψαλάκης.

3. Η φωτεινή στοά υποδέχεται τον επισκέπτη. Εκατέρωθεν οργανώνονται κοινόχρηστοι χώροι. ©Μιχαήλ Καψαλάκης.

4. Τα δωμάτια είναι δύο τύπων, σχεδιασμένα με διαφορετικούς τύπους επίπλων. ©Στέλιος Παπατζανάκης.

5. Στο μεγάλο εστιατόριο του ισογείου δεσπόζει η εντυπωσιακή οροφή. ©Στέλιος Παπατζανάκης.

29 ΑΠΡΙΛΙΟΣ 2023 ΤΕΧΝΙΚΑ

Αρχιτεκτονική μελέτη & επίβλεψη: architerra / Γιώργος Δημητριάδης

Στατική μελέτη:

Γ. Παπαργύρης -

Α. Καρδούλα και Συνεργάτες

H/M μελέτη: Cambicci+Associates

Ιδιοκτήτης: KLEEMANN

Τοποθεσία:

Λεωφ. Συγγρού 334, Αθήνα Εμβαδό: 272 m²

Χρόνος κατασκευής: 2022

& ΑΡΧΙΤΕΚΤΟΝΙΚΑ ΓΡΑΦΕΙΑ

Χώρος γραφείων

και showroom

στην Αθήνα

του υλικού

Ο νέος εκθεσιακός χώρος αποτελεί παράλληλα και χώρο υψηλής αισθητικής, εναρμονισμένο με τα πρότυπα του σύγχρονου περιβάλλοντος εργασίας. Στόχος του σχεδιασμού ήταν να αποτυπώσει τη φιλοσοφία της εταιρείας μέσα από το πλάσιμο των χώρων, τις επιλογές των υλικών και των χρωμάτων, καθώς και τη διαχείριση του φωτός.

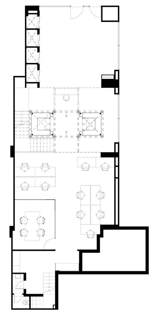
Είναι οργανωμένος σε δύο επίπεδα. Το ισόγειο περιλαμβάνει την υποδοχή, εκθεσιακό χώρο, εκθετήριο δειγματισμού προϊόντων, γραφεία, αίθουσα συναντήσεων και βοηθητικούς χώρους. Το δεύτερο επίπεδο περιλαμβάνει χώρους γραφείων διευθυντών, αίθουσα συσκέψεων, γραφεία και βοηθητικούς χώρους. Βασική ιδέα της σχεδιαστικής πρότασης αποτελεί το σύμπλεγμα των δύο γυάλινων ανελκυστήρων, που διατρέχουν καθ΄ ύψος τον χώρο, παραπέμποντας

συμβολικά στην κατακόρυφη κίνηση των προϊόντων

της εταιρείας. Αυτή η ιδιότυπη "πύλη" μορφοποιείται

ως μια διάφανη εγκατάσταση, που διαχέει το φυσικό

φως κατά τη διάρκεια της ημέρας, ενώ παράλληλα

ανταποκρίνεται ως λειτουργικό σημείο σύνδεσης, ενοποιώντας τον χώρο εκθέσεων με τον χώρο γραφείων. Στο δεύτερο επίπεδο πρωταγωνιστούν οι τρισδιάστατες χαράξεις. Το γυάλινο αυτοφερόμενο κλιμακοστάσιο και το διάφανο δάπεδο ολοκληρώνουν το σύμπλεγμα μετάλλου και γυαλιού των ανελκυστήρων, συνθέτοντας μια δυναμική εγκατάσταση. Ακροβατώντας στα όρια του άυλου και του υλικού, προσκαλούν στην εξερεύνηση του χώρου και νοηματοδοτούνται

μέσα από το φως.

Αξονικά στον διάδρομο κίνησης, που οριοθετούν οι ανελκυστήρες, οργανώνονται οι θέσεις εργασίας. Ακολουθώντας τη λογική της διάταξης ανοικτού

χώρου με "νησίδες" εργασίας εναλλάσσονται με

λιγότερο ή περισσότερο ιδιωτικούς χώρους συνεργασίας, χώρους για τη διοίκηση, καθώς και χώρους καθιστικού. Μέταλλο και γυαλί κυριαρχούν, συνθέτουν εναλλαγές όψεων και υλικών και προσδίδουν έμφαση στις ποιότητες διαφάνειας, ημιδιαφάνειας και αντανάκλασης των επιφανειών.

Ο αρχιτεκτονικός φωτισμός συμπληρώνει αρμονικά την αρχιτεκτονική σύνθεση. Η διάταξη τόσο των γραμμικών, όσο και των σημειακών φωτιστικών επιτείνει την αίσθηση συνέχειας και ροής στον χώρο. "Εστίες" πρασίνου εντάσσονται δυναμικά στον σχεδιασμό, εισάγοντας στοιχεία φύτευσης, με στόχο την ενίσχυση της ευεξίας των εργαζομένων και τη διαμόρφωση ενός φιλικού προς αυτούς περιβάλλοντος εργασίας.

32 ΑΠΡΙΛΙΟΣ 2023 ΤΕΧΝΙΚΑ
Μαριάνα Μπίστη 1 2
Παρουσίαση: architerra Φωτογραφίες:
Σ χεδιασμός στα όρια
του άυλου και

ΚΑΤΟΨΗ ΙΣΟΓΕΙΟΥ

1, 2. Το γυάλινο αυτοφερόμενο κλιμακοστάσιο ολοκληρώνει το σύμπλεγμα μετάλλου και γυαλιού των ανελκυστήρων.

3. "Εστίες" πρασίνου εντάσσονται δυναμικά στον σχεδιασμό.

4. Το μέταλλο και το γυαλί κυριαρχούν στον χώρο.

5. Ο χώρος είναι υψηλής αισθητικής και εναρμονισμένος με τα πρότυπα του σύγχρονου περιβάλλοντος εργασίας.

33
ΑΠΡΙΛΙΟΣ 2023
4 5 3

"WEDGE HOUSE"

ΣΤΗΝ ΠΥΛΟ

Κατοικία με σφηνοειδή γεωμετρία

Αρχιτεκτονική μελέτη: URBAN SOUL PROJECT

Υπεύθυνος μελέτης: Κώστας Φλώρος, Τάσος Γεωργαντζής, Μαρία Τσαυτάρη

Ομάδα μελέτης: Μαρία Κουκούτση, Δήμητρα Παραθυρά, Ζαχαριάς Κεχαγιόγλου,

Ευθυμία Κατσαρού, Ναταλία Παντελίδου

Η/Μ μελέτη: Γιώργος Θεοφιλογιαννάκος

Εσωτερική διακόσμηση: URBAN SOUL PROJECT

Επίπλωση και εξοπλισμός URBAN SOUL PROJECT

Επιφάνεια οικοπέδου: 1.052 m²

Συνολική επιφάνεια: 130 m²

Χρόνος αποπεράτωσης: 2022

Παρουσίαση: URBAN SOUL PROJECT

Φωτογραφίες: Kim Powell

38 ΑΠΡΙΛΙΟΣ 2023 ΑΡΧΙΤΕΚΤΟΝΙΚΗ
39 ΑΠΡΙΛΙΟΣ 2023 ΑΡΧΙΤΕΚΤΟΝΙΚΗ

ΚΤΙΡΙΟ ΓΡΑΦΕΙΩΝ

ΚΑΙ ΒΙΟΜΗΧΑΝΙΚΩΝ

ΕΓΚΑΤΑΣΤΑΣΕΩΝ

ναυτιλιακής εταιρείας

στην Ελευσίνα

©Γιώργος Σφακιανάκης

Αρχιτεκτονική μελέτη: Parthenios architects + associates

Ομάδα μελέτης: Παναγιώτης Παρθένιος, Ίνα Παρθενίου, Χρήστος Κύρου, Ιωάννα Φλουρή, Γιάννης Στάμου, Χριστίνα Αμανατίδου, Πηνελόπη Τριάντη

Στατική μελέτη: Μηχανικοί Μελετών και Εφαρμογών Α.Ε. -

Έργων Ανάλυσις Σύμβουλοι Μηχανικοί Ε.Ε.

Σύμβουλος στατικής μελέτης: Χ. Γαντές, καθηγητής Ε.Μ.Π.

H/M μελέτη: Μ.Κ.Α - Μελετητική & Τεχνική Ο.Ε.

Επίβλεψη: Ζήτα Τεχνική Έργων Ε.Π.Ε.

Υψηλή επίβλεψη: Parthenios architects + associates

Κατασκευή: TEΡNA A.E.

Ιδιοκτήτης: Asso.Subsea Ltd

Τοποθεσία: Ελευσίνα

Εμβαδό: 10.930 m²

Χρόνος μελέτης: 2018 - 2020

Χρόνος κατασκευής: 2020 - 2022

Παρουσίαση: Parthenios architects + associates

Φωτογραφίες: Γιώργος Σφακιανάκης

46 ΑΠΡΙΛΙΟΣ 2023
47 ΑΠΡΙΛΙΟΣ 2023 ©Γιώργος Σφακιανάκης ©Γιώργος Σφακιανάκης

"MAGMA RESORT & SPA"

Αρχιτεκτονική μελέτη: PEOPLE

Στατική μελέτη: Kamarinopoulos SA

Η/Μ μελέτη: PEOPLE

Σχεδιασμός εσωτερικών χώρων: PEOPLE

Styling: PEOPLE και Elastic Architects

Διεύθυνση έργου: PEOPLE

Τοποθεσία: Βουρβούλος, Σαντορίνη

Έτος ολοκλήρωσης: 2022

Παρουσίαση: PEOPLE

Φωτογραφίες: Χρήστος Δράζος

58 ΑΠΡΙΛΙΟΣ 2023 ΑΡΧΙΤΕΚΤΟΝΙΚΗ
σε χαρακτηριστικό τοπίο της Σαντορίνης
ΑΡΧΙΤΕΚΤΟΝΙΚΗ 59 ΑΠΡΙΛΙΟΣ 2023

ΕΣΩΤΕΡΙΚΗ ΑΣΦΑΛΗΣ ΔΙΑΚΙΝΗΣΗ

ΒΑΣΙΚΕΣ ΑΡΧΕΣ ΠΡΟΣΒΑΣΙΜΟΥ ΣΧΕΔΙΑΣΜΟΥ

ΓΙΑ ΤΗΝ ΙΣΟΤΙΜΗ ΑΝΤΙΜΕΤΩΠΙΣΗ ΟΛΩΝ ΤΩΝ ΑΤΟΜΩΝ

ΚΑΙ ΤΗΝ ΕΞΑΣΦΑΛΙΣΗ ΑΝΕΣΗΣ ΚΑΙ ΑΣΦΑΛΕΙΑΣ

Η ανάγκη και η επιθυμία για ταξίδια φαίνεται ότι ενυπάρχει σε όλους τους ανθρώπους. Ο τουρισμός αποτελεί έναν τομέα με συνεχή και σταθερή ανάπτυξη, καθώς τα ταξίδια αποτελούν μια ευκαιρία απόδρασης από την καθημερινότητα, μια ευκαιρία πνευματικής ανάτασης αλλά και κοινωνικοποίησης. Γι’ αυτό και η δυνατότητα άνετου τουρισμού και ασφαλούς διακίνησης θα πρέπει να είναι διαθέσιμη σε όλους, ειδικότερα δε στα άτομα με αναπηρία, με την ανάπτυξη ξενοδοχειακών μονάδων, οι οποίες λαμβάνουν υπόψη την άνετη και ασφαλή κίνηση των χρηστών, από την είσοδο και τους κοινόχρηστους χώρους ως τα δωμάτια.

Προσβάσιμος τουρισμός.

Η ελληνική

πραγματικότητα

Παρουσίαση: ΧΡΙΣΤΙΝΑ ΚΑΝΑΚΙΔΟΥ, διπλ. αρχιτέκτονας μηχανικός, MA

69 ΑΠΡΙΛΙΟΣ
2023
Ο προσβάσιμος τουρισμός –ως ορισμός– καλύπτει μία ποικιλία πελατών με διαφορετικές ανάγκες προσβασιμότητας (όχι πάντα εμφανείς),
ΣΤΑ ΞΕΝΟΔΟΧΕΙΑ

ΠΡΟΣΒΑΣΙΜΟΤΗΤΑ ΤΩΝ ΕΛΛΗΝΙΚΩΝ ΞΕΝΟΔΟΧΕΙΩΝ ΣΕ ΕΜΠΟΔΙΖΟΜΕΝΑ ΑΤΟΜΑ

Χώρος υποδοχής του ξενοδοχείου

Εγκατάσταση πρόσβασης σε πισίνα

Διαθέτει πισίνα Πισίνα προσβάσιμη

Μόλις 2,5%

των καταλυμάτων

που διαθέτουν

πισίνα δήλωσε

ότι έχει ειδικό

αναβατόριο για

τη διευκόλυνση

(π.χ. έντυπο

braille).

φόρτιση

ύψος που να είναι

Εγκαταστάσεις εισόδου στο κτίριο Εγκατάσταση πρόσβασης σε παραλία

Ύπαρξη παραλίας Παραλία προσβάσιμη

σε Α.μεΑ.

(ειδική διαδρομή)

Αυτόματη πόρτα ξενοδοχείου. Δυνατότητα χειροκίνητου ανοίγματος της πόρτας με διακόπτη

Εγκαταστάσεις πρόσβασης στο κτίριο

Σχεδόν 90%

των ξενοδοχείων έχει διαμορφώσει την κύρια πόρτα

της εισόδου ώστε να χωράει αμαξίδιο

Μόλις 5,7% των

καταλυμάτων που

διαθέτουν παραλία

δήλωσε ότι υπάρχει

ειδική ράμπα (sea trac)

για την είσοδο

των Α.μεΑ. και των

εμποδιζόμενων ατόμων

Εγκατάσταση πρόσβασης σε συνεδριακούς χώρους / γυμναστήρια / χώρους ευεξίας (spa)

Προσβασιμότητα χώρου από Α.μεΑ.

Εξοπλισμός και χρήση χώρου από Α.μεΑ.

Ειδική διαδρομή

προς το ξενοδοχείο για άτομα με προβλήματα όρασης.

Ράμπες

για την πρόσβαση αμαξιδίου στην είσοδο του ξενοδοχείου.

Κύρια πόρτα εισόδου του ξενοδοχείου, επαρκώς φαρδιά, για να χωράει αμαξίδιο (τουλ. 90 cm).

Συνεδριακοί χώροι

Γυμναστήρια

Χώροι ευεξίας (spa)

Εγκαταστάσεις για Α.μεΑ. στα δωμάτια - μπάνια

Πόρτες του δωματίου, κατάλληλες για την είσοδο του αμαξιδίου.

Πρίζες και διακόπτες εύκολα

προσβάσιμα από άτομα σε αμαξίδιο

και από άτομα με κινητικά προβλήματα.

Επαρκής χώρος για άνετη κίνηση του αμαξιδίου στο δωμάτιο.

Εύκολη πρόσβαση του αμαξιδίου από το δωμάτιο στο μπάνιο.

Προσαρμοζόμενα κρεβάτια στο ύψος του αμαξιδίου.

Ντους κατάλληλα διαμορφωμένο για άτομα σε αμαξίδιο.

Χειρολαβές στο μπάνιο για άτομα με κινητικά προβλήματα.

Ηλεκτρονικές συσκευές (ασύρματο τηλέφωνο, tablet, φορητός

υπολογιστής) κατάλληλες για άτομα με προβλήματα όρασης και ακοής.

Σήμανση μέσα στο δωμάτιο για άτομα με προβλήματα όρασης.

Από το 65% (6.487)

των ξενοδοχείων

που δεν διαθέτουν

ειδικά δωμάτια για Α.μεΑ. αλλά που οι υφιστάμενες εγκαταστάσεις τους διευκολύνουν τη διαμονή Α.μεΑ.

βάση.

70 ΑΠΡΙΛΙΟΣ 2023 Συμπεράσματα της έρευνας του Ινστιτούτου Τουριστικών Ερευνών και Προβλέψεων που διεξήχθη τον Ιούλιο 2021 κατόπιν ανάθεσης του Ξενοδοχειακού Επιμελητηρίου της Ελλάδας.
6,1% 58,6%
2,2% 29,0% 22,4% 9,9%
89,4%
στο κατάλληλο ύψος. Αμαξίδια για πελάτες με μειωμένη κινητικότητα. Ηχητικό σήμα πρόσβασης στην είσοδο του ξενοδοχείου για άτομα με προβλήματα όρασης. 5,3% 11,8% 20,2% 70,5% 76,6% Παροχή συσκευών αφύπνισης ή/και συναγερμού πυρκαγιάς με δόνηση σε πελάτες με προβλήματα όρασης ή ακοής. Οδηγίες για την ασφάλεια σε κατάλληλη μορφή για άτομα με
όρασης
σε
Υποδοχές για
ηλεκτρονικών συσκευών σε
από το
Εμφανής
διακριτή
για μετακίνηση των Α.μεΑ.
όλους
του ξενοδοχείου. Καρέκλες και τραπεζάκια κοντά στη ρεσεψιόν για άτομα με δυσκολίες στην κίνηση (ηλικιωμένα άτομα, έγκυες γυναίκες κτλ.). 74,8% 63,0% 59,1% 15,3% 10,3% 17,8% Ενώ η πλειονότητα αυτών των ειδικών χώρων είναι προσβάσιμοι από Α.μεΑ., δεν παρέχουν τον κατάλληλο εξοπλισμό για τη χρήση τους από αυτά τα άτομα. ΣΗΜΕΙΩΣΗ: Τα ποσοστά αναφέρονται σε διαφορετική
προβλήματα
προσβάσιμες
αμαξίδιο.
και
σήμανση
προς
τους χώρους
στη θάλασσα. Όχι: 80,5% Όχι: 54,3% Ναι: 45,7% Ναι: 19,5 Όχι: 53,6% Όχι: 58% Ναι: 42% Ναι: 46,4%
σε Α.μεΑ.
της εισόδου στο νερό ατόμων με κινητικά προβλήματα.
52,5% 45,5% 44,7% 30,4% 15,1% 10,2% 9,9% 5,2% 2,5%

Σκοπός της εγκατάστασης του συστήματος αντικεραυνικής προστασίας είναι να προστατεύει σε περίπτωση κεραυνοπληξίας τόσο τις κατασκευές, όσο και τον ηλεκτρικό και ηλεκτρονικό εξοπλισμό που βρίσκεται στο εσωτερικό τους από πυρκαγιά ή μηχανική καταστροφή και να αποτρέπει τον τραυματισμό ή ακόμη και τον θάνατο ατόμων που βρίσκονται εντός των κατασκευών.

Ένα συνολικό σύστημα αντικεραυνικής προστασίας αποτελείται από το σύστημα εξωτερικής αντικεραυνικής προστασίας (συλλεκτήριο σύστημα, σύστημα αγωγών καθόδου, σύστημα γείωσης) και το σύστημα εσωτερικής αντικεραυνικής προστασίας (απαγωγοί υπερτάσεων ή SPD).

Εφαρμογή κανονισμών και προτύπων

Η αναγκαιότητα εγκατάστασης συστήματος αντικεραυνικής προστασίας ορίζεται από το άρθρο 31 του Κτιριοδομικού Κανονισμού (Φ.Ε.Κ.

ΟΙ ΑΠΑΙΤΗΣΕΙΣ ΚΑΙ Η ΔΙΑΔΙΚΑΣΙΑ ΣΧΕΔΙΑΣΜΟΥ ΚΑΙ ΕΓΚΑΤΑΣΤΑΣΗΣ ΕΝΟΣ ΣΥΣΤΗΜΑΤΟΣ

Άρθρο των ΒΑΣΙΛΙΚΗΣ Θ. ΚΟΝΤΑΡΓΥΡΗ, δρ ηλεκτρολόγου μηχανικού και μηχανικού υπολογιστών Ε.Μ.Π., ΧΡΗΣΤΟΥ ΑΘ. ΧΡΙΣΤΟΔΟΥΛΟΥ, δρ ηλεκτρολόγου μηχανικού και μηχανικού υπολογιστών Ε.Μ.Π., επίκ. καθηγητή Ε.Μ.Π. ΙΩΑΝΝΗ Φ. ΓΚΟΝΟΥ, καθηγητή Ε.Μ.Π., Εργαστήριο Υψηλών Τάσεων και Ηλεκτρικών Μετρήσεων Ε.Μ.Π.

59/Δ/3-2-1989). Σύμφωνα με τον συγκεκριμένο κανονισμό, σε κάθε κτίριο ή δομικό έργο ή μεμονωμένο στοιχείο, που βρίσκεται σε έξαρση σε σχέση με τον περιβάλλοντα χώρο, επιβάλλεται η εγκατάσταση αλεξικέραυνου. Λόγω της μη έκδοσης μέχρι σήμερα κανονισμού εγκατάστασης αλεξικέραυνου, η εγκατάσταση γίνεται με βάση τα διεθνή πρότυπα, τα οποία έχει υιοθετήσει ο Ελληνικός Οργανισμός Τυποποίησης (ΕΛ.Ο.Τ.).

Η εγκατάσταση ενός συστήματος αντικεραυνικής προστασίας γίνεται σύμφωνα με την οικογένεια προτύπων ΕΛΟΤ ΕΝ 62305, η οποία περιλαμβάνει τα εξής πρότυπα:

• ΕΛΟΤ ΕΝ 62305-1 Αντικεραυνική προστασία - Μέρος 1: Γενικές αρχές. Περιγράφει τον κεραυνό και τις παραμέτρους του.

• ΕΛΟΤ ΕΝ 62305-2 Αντικεραυνική προστασία - Μέρος 2: Διαχείριση διακινδύνευσης. Αναφέρεται σε μελέτη εκτίμησης κινδύνου.

• ΕΛΟΤ ΕΝ 62305-3 Αντικεραυνική προστασία - Μέρος 3: Φυσική

καταστροφή σε κατασκευές και κίνδυνος για τη ζωή. Καθορίζει τις

77 ΑΠΡΙΛΙΟΣ 2023
ΑΝΤΙΚΕΡΑΥΝΙΚΗ
ΠΡΟΣΤΑΣΙΑ ΚΤΙΡΙΩΝ
ΕΞΩΤΕΡΙΚΗΣ ΑΝΤΙΚΕΡΑΥΝΙΚΗΣ ΠΡΟΣΤΑΣΙΑΣ

Συλλεκτήριο σύστημα Αγωγοί καθόδου

Μετρητής συμβάντων Σύστημα γείωσης

ΤΥΠΟΙ ΚΑΤΑΣΤΡΟΦΩΝ ΚΑΙ ΤΥΠΟΙ ΑΠΩΛΕΙΑΣ ΑΝΑΛΟΓΑ ΜΕ ΤΟ ΣΗΜΕΙΟ ΚΕΡΑΥΝΟΠΛΗΞΙΑΣ

Η κύρια λειτουργία ενός τερματικού

είναι να συλλαμβάνει και να κατευθύνει

το χτύπημα του κεραυνού σε ένα

προτιμώμενο σημείο, έτσι ώστε το

ηλεκτρικό ρεύμα εκφόρτισης να μπορεί να

κατευθυνθεί μέσω του (των) αγωγού(ων)

προς τα κάτω στο σύστημα γείωσης.

Ο αγωγός παρέχει μια μονωμένη

διαδρομή από τον ακροδέκτη

στο σύστημα γείωσης, έτσι ώστε το

ηλεκτρικό ρεύμα κεραυνού να μπορεί

να μεταφερθεί στη γη χωρίς την ανάπτυξη υπερβολικά μεγάλων τάσεων Ιστός στερέωσης

Μετρητής συμβάντων,

οποίος καταγράφει

ποσότητα, την ώρα

την ημερομηνία

κεραυνού

ανάκτηση

τη διάρκεια

επιθεωρήσεων

νοσοκομεία και άλλες κατασκευές, στις οποίες βλάβες εσωτερικών συστημάτων θέτουν αμέσως σε κίνδυνο την ανθρώπινη ζωή και κατασκευές με κίνδυνο έκρηξης.

b Για γεωργικές ιδιοκτησίες (απώλεια ζώων)

τητα 75% και για την τρίτη (LPL IΙΙ) και τέταρτη στάθμη (LPL IV) με πιθανότητα 50%. Για κάθε κατασκευή ορίζεται η επιθυμητή στάθμη αντικεραυνικής προστασίας ανάλογα με τα αντικειμενικά και υποκειμενικά κριτήρια που καθορίζουν την αναγκαιότητα προστασίας της κατασκευής. Η στάθμη προστασίας θα πρέπει να είναι τέτοια, ώστε ο κίνδυνος που υφίσταται μετά την εγκατάσταση του συστήματος αντικεραυνικής προστασίας να είναι μικρότερος από τον αποδεκτό κίνδυνο. Για παράδειγμα, ένα κτίριο οικιακής χρήσης απαιτεί λιγότερο αυστηρή στάθμη προστασίας σε σχέση με ένα εργοστάσιο, που χειρίζεται εύφλεκτα υλικά.

Εκτίμηση κινδύνου

Η ανάλυση κινδύνου είναι να εκτιμήσει τον κίνδυνο για τις κατασκευές, λαμβάνοντας υπόψη την πηγή του κινδύνου, το είδος του κινδύνου, καθώς και το είδος της απώλειας. Σύμφωνα με το πρότυπο ΕΛΟΤ ΕΝ 62305-2 οι πηγές του κινδύνου από κεραυνοπληξία χωρίζονται σε τέσσερις ομάδες:

• S1: Πηγή κινδύνου από άμεσο κεραυνικό πλήγμα επί της κατασκευής.

• S2: Πηγή κινδύνου από κεραυνικό πλήγμα κοντά στην κατασκευή.

• S3: Πηγή κινδύνου από άμεσο κεραυνικό πλήγμα επί εναέριας γραμμής δικτύου, που καταλήγει στην κατασκευή.

• S4: Πηγή κινδύνου από κεραυνικό πλήγμα κοντά σε εναέρια γραμμή δικτύου, που καταλήγει στην κατασκευή.

Οι παραπάνω πηγές κινδύνου ενδεχομένως να προκαλέσουν τους παρακάτω τύπους καταστροφών:

• D1: Τραυματισμό ζωντανών όντων από ηλεκτροπληξία, ως αποτέλεσμα τάσης επαφής και βηματικής τάσης.

• D2: Πυρκαγιά, έκρηξη, μηχανικές και χημικές αντιδράσεις, ως αποτέλεσμα των φυσικών επιπτώσεων του κεραυνού.

• D3: Βλάβη ηλεκτρικών και ηλεκτρονικών συστημάτων, ως αποτέλεσμα υπερτάσεων. Ανάλογα με τον τύπο κατασκευής, τη χρήση και το περιεχόμενο της κατασκευής, η σχετική απώλεια μπορεί να είναι πολύ διαφορετική. Το πρότυπο ΕΛΟΤ ΕΝ 62305-2 καθορίζει τους ακόλουθους τέσσερις τύπους απώλειας:

• L1: Απώλεια ανθρώπινης ζωής.

• L2: Απώλεια κοινωφελούς δικτύου.

2.

Σύστημα εξωτερικής αντικεραυνικής

3.

79 ΑΠΡΙΛΙΟΣ 2023 ΤΕΧΝΙΚΕΣ ΣΕΛΙΔΕΣ
προστασίας.
Λειτουργία
Πηγή:
ΠΗΓΕΣ ΚΙΝΔΥΝΟΥ,
Πηγή κινδύνου Τύπος καταστροφής Τύπος απώλειας S1, S3 D1 L1, L4b D2 L1a, L2, L3, L4 D3 L1a, L2, L4 S2, S4 D3 L1a, L2, L4
ενός συστήματος εξωτερικής αντικεραυνικής προστασίας.
Erico.
a Για
2
Σύστημα
γείωσης
ο
και
του
για
κατά
των
3
την

Οι κοινωνίες, τα οικοσυστήματα και το περιβάλλον εκτίθενται μόνιμα σε πολλούς φυσικούς και ανθρωπογενείς κινδύνους (σεισμούς, καταιγίδες, πλημμύρες, ερημοποίηση, πυρκαγιές, βιομηχανικούς κινδύνους και πρόσφατες πανδημίες). Σ’ αυτές τις συνθήκες τόσο οι πολύπλοκες κοινωνίες μας, όσο και το δομημένο και φυσικό μας περιβάλλον, παρά την τεχνολογική πρόοδο που σημειώθηκε τον περασμένο αιώνα, γίνονται πολύ εύθραυστα και ευάλωτα.

Η γήρανση και η φθορά των υλικών είναι βασικές διαδικασίες στη διαρκή μετατροπή της ύλης. Όσον αφορά στα ανόργανα υλικά, οι καιρικές συνθήκες είναι η κυρίαρχη φυσική διαδικασία γήρανσης. Αυτή η διαδικασία περιλαμβάνει μετασχηματισμό χημικών ενώσεων και προκαλείται από αβιοτικούς και βιοτικούς παράγοντες. Η γήρανση των υλικών συνεπάγεται αλλαγές της αρχικής κατάστασης, αλλά δεν περιλαμβάνει απαραίτητα μόνο φθορά ή υποβάθμιση. Η γήρανση (ωρίμανση) μπορεί επίσης να σημαίνει

85 ΑΠΡΙΛΙΟΣ 2023 ΤΕΧΝΙΚΕΣ ΣΕΛΙΔΕΣ ΠΑΡΑΓΟΝΤΕΣ ΦΘΟΡΑΣ ΚΑΙ ΜΟΡΦΕΣ ΑΛΛΟΙΩΣΗΣ ΤΩΝ ΥΛΙΚΩΝ ΛΟΓΩ ΕΚΘΕΣΗΣ ΣΤΟ ΠΕΡΙΒΑΛΛΟΝ, ΠΟΥ ΕΠΗΡΕΑΖΟΥΝ ΤΗΝ ΑΝΘΕΚΤΙΚΟΤΗΤΑ ΤΗΣ ΚΑΤΑΣΚΕΥΗΣ ΚΑΙ ΤΗ ΔΙΑΡΚΕΙΑ ΖΩΗΣ ΤΗΣ
σχηματισμό νέων ουσιών και σταθεροποίηση. Σε ορισμένες περιπτώσεις αυτό το αποτέλεσμα είναι Άρθρο της: ΜΑΡΙΑΣ ΣΤΕΦΑΝΙΔΟΥ, , καθηγήτριας Τμήματος Πολιτικών Μηχανικών Α.Π.Θ.
Η ΓΗΡΑΝΣΗ
ΤΩΝ ΔΟΜΙΚΩΝ ΥΛΙΚΩΝ

10. Η ορυκτολογική σύσταση, η θερμοκρασία έψησης των πλίνθων, οι καιρικές συνθήκες

και η θέση τους

στην κατασκευή μαζί

με τα φορτία που

δέχονται καθορίζουν

τη μορφή

και τον βαθμό

της διάβρωσης

των πλίνθων.

11.

Αλλαγές στη δομή των πλίνθων

Οι πλίνθοι είναι τεχνητά δομικά υλικά, που όταν εκτεθούν σε καιρικές συνθήκες, σταδιακά επέρχεται φθορά. Επιφανειακά

μπορεί να υπάρχει αποχρωματισμός και βιολογικές επικαλύψεις, αλλά αυτή η διαδικασία προκαλεί την ορυκτολογική, φυσική διάσπαση των κρυσταλλικών τους πλεγμάτων, επιτρέποντας ιοντική μετανάστευση για παραγωγή νέων ορυκτών με τάση εισόδου σε νέα θερμοδυναμική ισορροπία με το περιβάλλον.

Δημιουργούνται νέες ενώσεις, που οδηγούν σε ρηγμάτωση, απότριψη και μείωση των αντοχών των πλίνθων.

Ο χαρακτηρισμός των ιχνών των καιρικών συνθηκών σε

πλίνθους από μνημειακές κατασκευές και από ιστορικά κτίρια είναι κρίσιμος κατά τις δραστηριότητες καθαρισμού και

συντήρησης, για να αποφευχθεί περαιτέρω φθορά και απώ-

λεια του υλικού. Η ορυκτολογική σύσταση, η θερμοκρασία

έψησης των πλίνθων, οι καιρικές συνθήκες και η θέση τους

στην κατασκευή μαζί με τα φορτία που δέχονται καθορί -

ζουν τη μορφή και τον βαθμό της διάβρωσης των πλίνθων.

Υγρασία: Ο μεγάλος εχθρός

των μονωτικών υλικών

Η υγρασία, η θερμοκρασία

και η υπεριώδης

ηλιακή ακτινοβολία

είναι οι κύριοι

παράγοντες

γήρανσης

του ξύλου. ©Wikimedia Commons.

Μεταξύ όλων των μελετημένων κλιματικών παραγόντων

γήρανσης, τα υψηλά επίπεδα σχετικής υγρασίας φαίνεται

να έχουν τη μεγαλύτερη επίδραση στη θερμική απόδοση

αυτών των υλικών.

Η ιδιότητα, που συνήθως μετράται σ’ αυτήν την περίπτωση,

είναι η θερμική αγωγιμότητα. Σε ορισμένες περιπτώσεις ο συνδυασμός διαφορετικών συνθηκών, όπως έκθεση σε υπεριώδη ακτινοβολία που εναλλάσσεται με υψηλά επίπεδα υγρασίας και θερμοκρασίας, οδηγεί σε μεγαλύτερη αύξηση της θερμικής αγωγιμότητας σε σχέση με την απλή έκθεση σε υψηλή υγρασία. Γενικώς, όμως, η έκθεση σε υψηλά επίπεδα υγρασίας, ακόμη και όταν συνδυάζεται με άλλα καιρικά φαινόμενα, είναι πάντα υπεύθυνη για τις αλλαγές στη θερμική αγωγιμότητα.

Η γήρανση του ξύλου

Όταν το ξύλο εκτίθεται στο εξωτερικό περιβάλλον, η επιφάνειά του θα έχει ένα φυσικό φαινόμενο γήρανσης, με αποτέλεσμα μη αναστρέψιμες αλλαγές στη φυσική και στη χημική του δομή. Υπάρχουν πολλές πολύπλοκες διαδικασίες για γήρανση επιφάνειας ξύλου. Οι κύριοι παράγοντες γήρανσης είναι η υπεριώδης ακτινοβολία, η υγρασία, η θερμοκρασία και η έκθεση σε οξυγόνο, η οποία μπορεί να οδηγήσει σε ειδικές διεργασίες αποδόμησης, όπως σε φωτοχημική και φωτοφυσική οξείδωση. Η φωτοαποδόμηση εκδηλώνεται με μια αρχική αλλαγή του χρώματος της επιφάνειας, ακολουθούμενη από απώλεια γυαλάδας, τραχύτητα και ρωγμές. Η παρουσία ρωγμών ανοίγει έναν ευνοϊκό δρόμο για τη φυσική γήρανση με την επίδραση περιβαλλοντικών παραγόντων στο ξύλο από την επιφάνεια μέχρι το βάθος της δομής και επιδεινώνει την υποβάθμιση των συνολικών ιδιοτήτων του ξύλου, όπως την παραμόρφωση

92 ΑΠΡΙΛΙΟΣ 2023
και τη μείωση της αντοχής.
11 10 ΤΕΧΝΙΚΕΣ ΣΕΛΙΔΕΣ

Η επιστέγαση κτιρίων με προκατασκευασμένα πετάσματα αποτελεί μια πρακτική, που εφαρμόζεται διεθνώς ήδη για αρκετές δεκαετίες. Ειδικά τα τελευταία χρόνια, τα σύνθετα θερμομονωτικά πετάσματα οροφής έχουν επανέλθει δυναμικά ως υλικό επιστέγασης των κτιρίων λόγω των αναβαθμισμένων χαρακτηριστικών τους. Πρόκειται για πετάσματα τύπου "σάντουιτς" σε ποικιλία διαστάσεων, τα οποία απαρτίζονται από δύο, μεταλλικά κατά κύριο λόγο, φύλλα, που πλαισιώνουν τον πυρήνα από θερμομονωτικό υλικό. Τα κυριότερα πλεονεκτήματα των προκατασκευασμένων σύνθετων πετασμάτων οροφής είναι η εύκολη και γρήγορη εφαρμογή τους, η μειωμένη στατική επιβάρυνση σε σχέση με τα συμβατικά συστήματα επιστεγάσεων λόγω του περιορισμένου τους βάρους, η εξασφάλιση υδατοστεγανότητας, η αυξημένη θερμομονωτική ικανότητα και η ιδιαίτερη αισθητική τους, η οποία παρουσιάζει μεγάλη ευελιξία σε σχέδια και χρώματα. Τα θερμομονωτικά πετάσματα οροφής

95 ΑΠΡΙΛΙΟΣ 2023 ΤΕΧΝΙΚΕΣ ΣΕΛΙΔΕΣ
μπορούν να εφαρμοστούν Παρουσίαση: ΑΓΓΕΛΙΚΗ ΠΑΪΠΑΗ, αρχιτέκτονας μηχ. Α.Π.Θ., MSc ΜΙΑ ΕΝΔΙΑΦΕΡΟΥΣΑ ΕΝΑΛΛΑΚΤΙΚΗ ΛΥΣΗ ΤΗΣ ΣΥΜΒΑΤΙΚΗΣ ΣΤΕΓΗΣ ΜΕ ΥΨΗΛΗ ΑΠΟΔΟΣΗ ΚΑΙ ΙΔΙΑΙΤΕΡΗ ΑΙΣΘΗΤΙΚΗ
ΣΥΝΘΕΤΑ ΘΕΡΜΟΜΟΝΩΤΙΚΑ ΠΕΤΑΣΜΑΤΑ ΓΙΑ ΕΠΙΣΤΕΓΑΣΕΙΣ ΚΤΙΡΙΩΝ

Λεπτομέρεια σύνδεσης

σύνθετων πετασμάτων

στον κορφιά.

1. Κορφιάς, τοποθετημένος

επάνω σε βουτυλικό

σφραγιστικό κορδόνι.

2. Μεταλλικό στήριγμα με

εκατέρωθεν βουτυλικό κορδόνι,

αγκυρωμένο με αυτοδιατρητική

βίδα.

3. Αυτοδιατρητική βίδα.

4. Σύνθετο θερμομονωτικό

πέτασμα.

5. Μονωτικό υλικό.

6. Εσωτερικό τεμάχιο κορφιά.

7. Τεγίδα.

Σύνδεση υδρορρόης

σε μεταλλική επιστέγαση.

1. Βίδα εξαγωνικής κεφαλής.

2. Έλασμα ανάρτησης υδρορρόης

με εκατέρωθεν βουτυλικό

κορδόνι, αγκυρωμένο

με αυτοδιατρητική βίδα.

3. Οριζόντια υδρορρόη.

4. Έλασμα για το κλείσιμο

της οπής μεταξύ υδρορρόης

και κατακόρυφης επιφάνειας

με τυφλό πριτσίνι.

5. Βίδα εξαγωνικής κεφαλής.

6. Γαλβανισμένο κρυφό έλασμα.

7. Τεγίδα.

Τεχνικά χαρακτηριστικά

Τα τεχνικά χαρακτηριστικά ενός θερμομονωτικού πετάσματος

οροφής καθορίζονται από τα γεωμετρικά του χαρακτηριστικά

και τα υλικά των επί μέρους στοιχείων του. Γι’ αυτόν τον λόγο

είναι σημαντικό να προηγείται της εφαρμογής ολοκληρωμένη

μελέτη του συστήματος οροφής ως προς τη στατική συμπεριφορά, τη θερμομονωτική ικανότητα και τις απαιτήσεις πυροπροστασίας και ηχομόνωσης με γνώμονα τις λειτουργικές και αισθητικές απαιτήσεις του κτιριακού έργου.

Σε γενικές γραμμές τα αυτοφερόμενα σύνθετα πετάσματα παρουσιάζουν ικανοποιητική αντοχή σε εφελκυσμό, συμπίεση και διάτμηση και λόγω του χαμηλού τους βάρους, σε σύγκριση με άλλα συστήματα επιστέγασης, επιβαρύνουν λιγότερο τον φέροντα οργανισμό της κατασκευής. Ενδεικτικά αναφέρεται ότι τα πετάσματα πολυουρεθάνης έχουν βάρος μεταξύ 10 - 15 kg/m² ανάλογα με το πάχος του πετάσματος και των ελασμάτων και τα πετάσματα πετροβάμβακα μεταξύ 15 - 25 kg/m².

Η μεγάλη αντίσταση στη μετάδοση θερμότητας του θερμομονωτικού πυρήνα των πετασμάτων τα καθιστά δομικά υλικά υψηλής θερμομονωτικής απόδοσης. Λόγω του χαμηλού συντελεστή θερμικής αγωγιμότητας του πυρήνα πολυουρεθάνης, και λιγότερο του πετροβάμβακα, επιτυγχάνονται χαμηλές τιμές συντελεστή θερμοπερατότητας με σχετικά μικρά πάχη πετασμάτων, π.χ. ο συντελεστής θερμοπερατότητας 0,45 W/(m²·K) για την Α’ κλιματική ζώνη σύμφωνα με τον Κ.Εν.Α.Κ. μπορεί να επιτευχθεί με πάχος πετάσματος πολυουρεθάνης 50 mm και η αντίστοιχη τιμή 0,30 W/(m²·K) της Δ’ κλιματικής ζώνης με πάχος πετάσματος 80 mm. Η στεγανότητα των πετασμάτων οροφής τόσο από τον αέρα, όσο και από το νερό εξασφαλίζεται με την ειδική διαμόρφωση των ενώσεών τους και την ύπαρξη αφρώδους υλικού, με την προϋπόθεση βέβαια της ορθής εφαρμογής τους, σύμφωνα με τις προδιαγραφές του κατασκευαστή. Σύμφωνα με τα σχετικά πρότυπα, η διαπερατότητα του αέρα

ΤΕΧΝΙΚΕΣ ΣΕΛΙΔΕΣ 98 ΑΠΡΙΛΙΟΣ 2023
4 5 6 7 3 2 1 1 5 6 4 3 2 7

Ανακαίνιση και επανάχρηση

ΠΕΤΡΙΝΗΣ ΚΑΤΟΙΚΙΑΣ ΤΟΥ 18ου ΑΙΩΝΑ ΣΤΗ ΘΑΣΟ

Σχεδόν το σύνολο των βασικών δομικών υλικών της αρχικής κατασκευής, η πέτρα και το ξύλο, επαναχρησιμοποιήθηκαν αποτελώντας τον βασικό φορέα στις εργασίες ανακατασκευής.

Η εξοχική κατοικία "Maroyda Stonehouse" βρίσκεται στον παραδοσιακό οικισμό της Παναγίας Θάσου. Το χωριό αναπτύσσεται στη βορειοδυτική πλευρά του νησιού, ανατολικά του όρους Υψάριον, που αποτελεί την υψηλότερη κορυφή του βουνού, αλλά και τον κύριο ορεινό όγκο του νησιού. Η φιλοσοφία της μελέτης ανακατασκευής, επανάχρησης των βασικών δομικών υλικών, αλλά και εφαρμογής νέων υλικών

και τεχνικών, έγινε με απόλυτο σεβασμό και με τρόπο πλήρως εναρμονισμένο στον παραδοσιακό χαρακτήρα της περιοχής, με τη χαρακτηριστική μακεδονική αρχιτεκτονική να διατηρείται ανέπαφη. Βασικό άξονα της μελέτης και της κατασκευής της κατοικίας δεν αποτέλεσε μόνο ο σεβασμός στην ιστορία του σπιτιού και του ευρύτερου οικισμού, αλλά και η εξασφάλιση της αρμονικής συνέχειας στον χρόνο.

ΕΡΓΟΤΑΞΙΟ 104 ΑΠΡΙΛΙΟΣ 2023

Δωμάτιο

Δωμάτιο Κουζίνα Είσοδος ΚΑΤΟΨΗ ΟΡΟΦΟΥ

Η κατοικία αναπτύσσεται σε επικλινές επίπεδο, με ένα μέρος του ισόγειου χώρου να βρίσκεται κάτω από τη στάθμη φυσικού εδάφους. Λουτρό

Η κατοικία αναπτύσσεται σε επικλινές επίπεδο, με ένα μέρος του ισόγειου χώρου να βρίσκεται υπόσκαφα, κάτω από τη στάθμη φυσικού εδάφους. Οι λειτουργικοί χώροι του σπιτιού διαμορφώνονται σε δύο επί -

πεδα, τα οποία συνδέει εσω -

τερική ξύλινη σκάλα, με τα τρία πρώτα πατήματα να είναι πέτρινα, μαρτυρώντας έτσι ότι η αρχική κατασκευή αποτελούσε το ήμισυ της σημερινής κάτοψης, με τη σκάλα να συν-

δέει τον ισόγειο χώρο με τον όροφο εξωτερικά. Στο ισόγειο, έχει αναπτυχθεί κατά τη διαμήκη διεύθυνση η κουζίνα του σπιτιού, στην πλάτη της οποίας υπάρχει το υπόσκαφο υπνοδωμάτιο του κάτω ορόφου. Την μπροστινή όψη του άνω ορόφου διατρέχει η σάλα, το τέρμα της οποίας οδηγεί στο ένα από τα τρία υπνοδωμάτια του ορόφου. Το κυρίως μπάνιο της κατοικίας βρίσκεται στην ανατολική πλευρά της.

Το ξύλινο πάτωμα της κατοικίας "πάτησε" επάνω στα υπάρχοντα ξύλινα δοκάρια - γραδιές από πεύκο της περιοχής. Μόνο τοπικά και για τις ανάγκες ανά -

πτυξης του εξώστη στη βόρεια πλευρά, ενισχύθηκαν κατάλ -

ληλα από μεταλλικές διατομές

τύπου IPE. Για την ανακατασκευή της στέγης του σπιτιού εφαρμόστηκε η παραδοσιακή τεχνική

με χρήση των παλαιών σχιστολιθικών πλακών από παλαιά λατομεία του νησιού εξωτερικά, ενώ

ΕΡΓΟΤΑΞΙΟ 105 ΑΠΡΙΛΙΟΣ 2023
χρησιμοποιήθηκε μια σειρά σύγχρονων υλικών υγρομόνωσης και θερμομόνωσης στα επίπεδα κάτω από τη στρώση των πλακών. Εσωτερικά παρέμειναν εμφανή τα ξύλινα ζευκτά της στέγης, ώστε να διασφαλιστεί η πλήρης ανάδειξη του συνόλου του ξύλινου στοιχείου. Μ’ αυτόν τον τρόπο διατηρήθηκε η συνέχειά του από το δάπεδο και τα ξύλινα κουφώματα των κατωτέρων σταθμών προς τα ανώτερα της στέγης. ΚΑΤΟΨΗ ΙΣΟΓΕΙΟΥ Δωμάτιο Δωμάτιο Σαλόνι
113 ΑΠΡΙΛΙΟΣ 2023 Θερμομονωτικά ανοιγόμενα κουφώματα αλουμινίου ALUMINCO Α.Ε. Φωτιστικά σώματα PROLIGHT Φορητό φωτιστικό SOLOMON GROUP Μπαταρία μπάνιου HANSGROHE GROUP ΕΙΔΗΣΕΙΣ // ΤΕΧΝΟΛΟΓΙΕΣ // ΥΛΙΚΑ ΤΟ ΒΗΜΑ ΤΩΝ ΕΤΑΙΡΕΙΩΝ ΠΑΡΟΥΣΙΑΣΗ: ΛΕΥΤΕΡΗΣ ΠΑΧΗΣ, ΧΡΗΣΤΟΣ ΠΑΠΑΪΩΑΝΝΟΥ

Προκατασκευασμένες πισίνες ΚΑΤΡΑΝΤΖΗΣ

Η εταιρεία προμηθεύει και εγκαθιστά προκατασκευασμένες κολυμβητικές δεξαμενές από γαλβανισμένη λαμαρίνα με εποξειδική βαφή, σε διάφορα σχήματα και μεγέθη. Στα τοιχώματά τους τοποθετείται μεμβράνη διαφόρων μοτίβων και χρωμάτων. Η εταιρεία αναλαμβάνει επίσης τη μελέτη για πισίνα χωρίς άδεια. ΚΑΤΡΑΝΤΖΗΣ E. ΝΙΚΟΣ O.E., T: 2104329154, www.katrantzis.gr

Εύκαμπτη στεγανοποιητική μεμβράνη για άμεση τοποθέτηση πλακιδίων ARDATEC MEMBRAN Εύκαμπτη, στεγανοποιητική μεμβράνη έτοιμη προς χρήση, παραμορφώσιμη και αδιάβροχη με ικανότητα γεφύρωσης ρωγμών. Εξαιρετικό πλεονέκτημα η άμεση τοποθέτηση πλακιδίων μετά την εφαρμογή της. Αποτελείται από τροποποιημένο πολυαιθυλένιο, επενδυμένο και στις δύο πλευρές με ύφασμα πολυπροπυλενίου. Κατάλληλη για απορροφητικές και μη επιφάνειες σε τοίχους και δάπεδα. Για εσωτερικές, εξωτερικές και υποβρύχιες εφαρμογές όπως ορίζεται στα πρότυπα DIN 18534-3 W3-I, DIN 18531-5, DIN 18534-3, DIN 18535-3. Emicode EC1 PLUS - πολύ χαμηλές εκπομπές. BOSTIK, T: 2104831140, www.bostik.com/greece/el/

Κτιριακός αυτοματισμός

AS HELLAS

Ο τομέας κτιριακού αυτοματισμού της εταιρείας είναι γνωστός για τις ολοκληρωμένες λύσεις που σχεδιάζει και υλοποιεί, τη συνεχή υποστήριξη προς τους πελάτες και τις απροβλημάτιστες και αποδοτικές αναβαθμίσεις και επεκτάσεις. Έχει περισσότερα από 20 χρόνια εμπειρία σε συστήματα αυτόματης διαχείρισης των εγκαταστάσεων και είναι "Siemens Solution Partner Building Technologies".

Έχει υποστηρίξει ξενοδοχειακές μονάδες και αλυσίδες, αεροδρόμια, μεγάλες μονάδες υγείας και άλλα μεγάλα κτιριακά συγκροτήματα να αυξήσουν τη βιωσιμότητα, την άνεση και την απόδοσή τους. ΣΥΣΤΗΜΑΤΑ ΑΥΤΟΜΑΤΙΣΜΟΥ

ΕΛΛΑΔΟΣ Α.Ε. (AS HELLAS), T: 2310273762, www.ashellas.com

Θερμομονωτικά ανοιγόμενα κουφώματα αλουμινίου

ALUMINCO W4750

Το W4750 αποτελεί το προηγμένο ανοιγόμενοανακλινόμενο θερμομονωτικό σύστημα αλουμινίου νέας γενιάς της Aluminco, το οποίο συνδυάζει τα αποδεδειγμένα οφέλη των ανοιγόμενων

παραθύρων και θυρών –κομψή σχεδίαση και μέγιστη ασφάλεια– με τις υψηλότερες απαιτήσεις θερμομόνωσης. Οι εντυπωσιακές του επιδόσεις, το καθιστούν ιδανικό για ιδιωτικές κατοικίες και κτίρια υψηλών ενεργειακών απαιτήσεων και προδιαγραφών.

ALUMINCO Α.Ε., Τ: 2262047000, www.aluminco.com

Ταινία στήριξης μεταλλική γαλβανιζέ VIOFLEX

Είναι κατασκευασμένη από προγαλβανισμένο χάλυβα DX-51 με πάχος γαλβανίσματος πάνω από 140 μm. Κατόπιν επεξεργασίας παίρνει τη μορφή τσερκιού με συνεχόμενη διάτρηση. Η ταινία είναι κατάλληλη για τη συγκράτηση ηλεκτρικών καλωδίων (ενός ή και περισσότερων) χωρίς την ύπαρξη προστατευτικού σωλήνα και για ηλεκτρομηχανολογικές, βιομηχανικές, εργοστασιακές εγκαταστάσεις για τη συγκράτηση σωλήνων και καμινάδων.

VIOFLEX, T: 2109914347, www.vioflex.com.gr

Φωτιστικό σώμα LA LINEA

Σχεδιασμένο από τους BIG - Bjarke Ingels

Group για την Artemide Ιταλίας, τo φωτιστικό La Linea είναι ένας εύκαμπτος σωλήνας φωτός, ικανός να περιστρέφεται ελεύθερα στον χώρο, σχηματίζοντας διαφορετικά απροσδιόριστα γεωμετρικά σχήματα. Ταιριάζει τόσο σε εσωτερικούς, όσο και σε εξωτερικούς χώρους, συνδυάζοντας ποιότητα φωτός, προστασία IP και ευελιξία. Διατίθεται σε διάμετρο 40 mm και 25 mm για ακόμη περισσότερη λειτουργικότητα και εκφραστικότητα. Χάρη στον πρωτοποριακό σχεδιασμό και στην τεχνολογία του έχει αποσπάσει το Wallpaper Design Award 2020 και το Archiproducts Design Award 2019. ARTEMIDE HELLAS A.E., Τ: 2103646770, www.artemide.gr

117 ΑΠΡΙΛΙΟΣ 2023 ΒΗΜΑ ΕΤΑΙΡΕΙΩΝ - ΥΛΙΚΑ

Φωτιστικό σώμα VEGA

To φωτιστικό Vega της γερμανικής εταιρείας Siteco έχει αναπτυχθεί ειδικά για τη σύγχρονη και επιτυχημένη εφαρμογή του φωτός σε κλασικά περιβάλλοντα γραφείου. Διαθέτει πρωτοποριακή τεχνολογία LED, ελκυστικό σχεδιασμό και υψηλά επίπεδα απόδοσης. Χάρη στον άψογο έλεγχο αντανάκλασης είναι ιδανικό για τοποθέτηση ακριβώς επάνω από χώρους εργασίας και υπολογιστές.

SIELIGHT, Τ: 2107758570, www.sielight.gr

Ημικεντρικά κλιματιστικά δαπέδου - οροφής INVENTOR

Η σειρά δαπέδου - οροφής της Inventor δίνει τη δυνατότητα διαχείρισης έως και 64 κλιματιστικών, ενώ η λειτουργία Hotel Menu εξοικονομεί έως 70% περισσότερη ενέργεια. Ταυτόχρονα με τη λειτουργία Wi-Fi Ready ο χρήστης έχει τον πλήρη έλεγχο της συσκευής από παντού και επιτυγχάνει πιο οικονομική χρήση. Επιπλέον με τον έξυπνο αισθητήρα δημιουργεί τις ιδανικές συνθήκες στο σημείο που επιθυμεί, ενώ με το φίλτρο HEPA εξασφαλίζεται η υγιεινή ατμόσφαιρα στον χώρο. INVENTOR A.G. A.E., Τ: 2113003300, www.inventor.ac

Μικροβοτσαλωτά σε πισίνες και εξωτερικά δάπεδα

NOVACEM CREATIVE

Τσιμεντοειδές, υδραυλικό συνδετικό που αναμειγνύεται με χαλαζιακές ψηφίδες MQ ή S, μαρμαροψηφίδες MR, έγχρωμες υαλοψηφίδες LC ή/ και ψηφίδες από ανακυκλωμένο γυαλί RC Glass για δημιουργία μικροβοτσαλωτών υψηλής αντοχής σε οριζόντιες ή κατακόρυφες επιφάνειες. Μπορεί να αναμειχθεί και με αλκαλίμαχες χρωστικές όπως οι Novacolor Oxide, Novacolor Carbon ή Novacolor Universal. Εφαρμόζεται σε πάχος το οποίο εξαρτάται από την κοκκομετρία των ψηφίδων (5 - 6 mm για τοίχους και κατ’ ελάχιστο 10 mm για δάπεδα).

NOVAMIX, T: 2106893953, www.novamix.gr

Κουφώματα αλουμινίου, ανοιγόμενα - ανακλινόμενα

SMARTIA M15000

Το Smartia Μ15000 είναι ένα ανοιγόµενοανακλινόµενο σύστηµα που µπορεί να ικανοποιήσει πλήθος διαφορετικών απαιτήσεων, διαθέτοντας µεγάλη ποικιλία προφίλ για παράθυρα, µπαλκονόπορτες και πόρτες εισόδου.

ALUMIL Α.Ε., Τ: 2313011000, www.alumil.com

Τριφασικός διακόπτης wi-fi για μέτρηση κατανάλωσης

SHELLY 3EM

Το Shelly 3EM μπορεί να παρακολουθεί την κατανάλωση ενέργειας σε πραγματικό χρόνο για ένα σύστημα 3 φάσεων ή 3 σημείων ή ένα μονοφασικό ηλεκτρικό σύστημα ταυτόχρονα (έως 120 Α το καθένα). Επιτρέπει επίσης τη μέτρηση της ενέργειας που παράγει το ηλιακό σύστημα και την κατανάλωση ενέργειας ταυτόχρονα. Μπορεί επίσης να χρησιμοποιηθεί για την παρακολούθηση της κατανάλωσης ενέργειας σε πραγματικό χρόνο για κάθε φάση και τη σύγκριση με το ουδέτερο.

HELLAS DIGITAL, Τ: 2109611169, www.hellasdigital.gr

Φωτιστικά σώματα HILOW

Σχεδιασμένο από τον Matteo Thun για την Panzeri, το φωτιστικό Hilow μπορεί να εφαρμοστεί τόσο σε επαγγελματικούς, όσο και σε ιδιωτικούς χώρους. Επιτρέπει τη δημιουργία συστάδων από πολλά φωτιστικά, τα οποία δίνουν εντυπωσιακά αποτελέσματα και μοναδικό χαρακτήρα στον χώρο. Ο φωτισμός που εκπέμπει είναι 80% από τη μια πλευρά και 20% από την άλλη και ανάλογα με τις απαιτήσεις του χώρου μπορεί να τοποθετηθεί έτσι ώστε να παρέχει κυρίως άμεσο ή έμμεσο φωτισμό. Είναι ιδανικό για τον φωτισμό χώρων υποδοχής, αιθουσών συνεδριάσεων κ.ά.

PROLIGHT, Τ: 2106233537, www.prolight.gr

118 ΑΠΡΙΛΙΟΣ 2023
ΒΗΜΑ ΕΤΑΙΡΕΙΩΝ - ΥΛΙΚΑ

ΜΗΝΙΑΙO TEXNIKO ΠEPIOΔIKO

Νο 343 • ΑΠΡΙΛΙΟΣ '23 Κωδικός ΕΛ.ΤΑ.: 2554

EKΔOTHΣ - ΔIEYΘYNTHΣ

Πέτρος X. Παπαϊωάννου

πολιτικός μηχ.

ΔΙΕΥΘΥΝΣΗ ΣΥΝΤΑΞΗΣ

Δήμητρα Tσιώρα - Παπαϊωάννου

αρχιτέκτονας μηχ.

ΕΠΙΣΤΗΜΟΝΙΚΗ ΕΠΙΜΕΛΕΙΑ

Δημήτρης Αραβαντινός

δρ. πολιτικός μηχ., καθ. Εργ. Οικοδομικής & Φυσικής των Κτιρίων Α.Π.Θ.

ΕΠΙΣΤΗΜΟΝΙΚΟI ΣΥΝΕΡΓΑΤΕΣ

Αναστάσιος Κωτσιόπουλος

δρ. αρχιτέκτονας μηχ., ομότ. καθ.

Aρχιτεκτονικού Σχεδιασμού Α.Π.Θ.

Άγις Μ. Παπαδόπουλος

δρ. μηχανολόγος μηχ.,

καθ. Εργ. Κατασκευής Συσκευών

Διεργασιών Α.Π.Θ.

Κλειώ Αξαρλή

δρ. αρχιτέκτονας μηχ., ομότ. καθ. Εργ.

Αρχιτεκτονικής & Τεχνολογίας Α.Π.Θ. Γεώργιος Πενέλης

δρ. πολιτικός μηχ., ομότ. καθ. Εργ. Κατασκευών Οπλισμένου Σκυροδέματος και Φέρουσας Τοιχοποιίας Α.Π.Θ.

Δημήτρης Μπίκας

δρ. αρχιτέκτονας μηχ., ομότ. καθ. Εργ. Οικοδομικής & Φυσικής των Κτιρίων Α.Π.Θ.

Νικόλαος Μουσιόπουλος

δρ. μηχανολόγος μηχ., καθ. Εργ. Μετάδοσης Θερμότητας και Περιβαλλοντικής Μηχανικής Α.Π.Θ.

Χάρης Δημουλιάς

δρ. ηλεκτρολόγος μηχ., καθ. Εργ. Ηλεκτρικών Μηχανών Α.Π.Θ.

Μαρία Στεφανίδου

γεωλόγος, δρ. πολιτικός μηχ., καθ. Εργ. Δομικών Υλικών Α.Π.Θ.

https://www.facebook.com/ktirio.gr/ https://linkedin.com/company/-κτιριο-εκδοσεις-ktirio-editions-

https://www.instagram.com/ktirio_editions/ https://www.youtube.com/user/KTIRIOeditions

Γεώργιος Ι. Μαντάνης επιστήμων ξύλου, καθ. Εργ. Επιστήμης & Τεχνολογίας Ξύλου, Παν. Θεσσαλίας

ΤΜΗΜΑ ΣΥΝΤΑΞΗΣ

Τέτη Λάλου

πολιτικός μηχ. ΤΕ

Ιωάννα Καραμιχαηλίδου

αρχιτέκτονας μηχ., MSc

Πωλίνα Ροῒδη μηχανολόγος μηχ.

ΣΥΝΕΡΓΑΤΕΣ ΣΥΝΤΑΞΗΣ

Ελευθερία Τιτόνη

αρχιτέκτονας μηχ., MSc

Μαρτσέλα Ανθρακοπούλου

αρχιτέκτονας μηχ., μηχανικός πολεοδομίας, χωροταξίας & περιφερειακής ανάπτυξης

Αθανασία Χάρη

πολιτικός μηχ., MSc Αγγέλα Παϊπάη αρχιτέκτονας μηχ., MSc

Γιώργος Χατζηγεωργίου

πολιτικός μηχ., B.eng (Hons), MSc., σύμβουλος αρχιτεκτονικής ακουστικής - κτιριακής ηχομόνωσης Παναγιώτης Βεργούλης πολιτικός μηχ. & μεταλλειολόγος μηχ. Ε.Μ.Π. MSc περιβάλλοντος και ανάπτυξης

GRAPHIC DESIGN Κυριακή Παυλίδου

ΦΩTOΓPAΦIEΣ

M. Παππούς - K. Eυαγγελίδης O.E. Ιωάννα Νικολαρεῒζη

ΤΜΗΜΑ ΔΙΑΦΗΜΙΣΗΣ

Χρήστος Παπαϊωάννου mechanical engineer, MSc

Λευτέρης Παχής

μηχανολόγος μηχ., Α.Π.Θ.

Αριάν Αναστούλη

Νίκος Τσάμης

TMHMA EΞYΠHPETHΣHΣ

ΣYNΔPOMHTΩN

Iωάννης Κωνσταντινίδης

Παναγιώτης Χάιδας

Έλμα Πιστοφίδου

ΟΙΚΟΝΟΜΙΚΟ ΤΜΗΜΑ

Νίκος Παπαϊωάννου

πολιτικός μηχ.

Αντώνης Χατζόγλου Ιάκωβος Μαζαράκης

EKTYΠΩΣH - ΒΙΒΛΙΟΔΕΣΙΑ ThessPrint A.E.

ΔIANOMΗ ΑΡΓΟΣ Α.Ε.

KTIΡΙΟ ΕΚΔΟΣΕΙΣ Ι.Κ.E.

ΘΕΣΣΑΛΟΝΙΚΗ: Γ. Κρανιδιώτη 2, Τ.Κ. 555 35, Πυλαία, Τ.Θ. 8136 - Τ.Κ. 570 01 Έκδοση - Σύνταξη: τηλ.: 2310 480356, e-mail: ktirio@ktirio.gr

Πωλήσεις - Συνδρομές: τηλ.: 2310 480340, e-mail: sales@ktirio.gr, φαξ: 2311 826819

Διαφήμιση: τηλ.: 2310 480540, e-mail: adv@ktirio.gr

AΘΗΝΑ: Λεωφ. Κηφισίας 125 - 127, Cosmos Center Τ.Κ. 115 24, τηλ.: 210 7234591

ΕΓΓΡΑΦΗ ΣΥΝΔΡΟΜΗΤΩΝ

Τηλεφωνήστε στο: 2310 480340 ή μέσω διαδικτύου: www.ktirio.gr

EΞΥΠΗΡΕΤΗΣΗ ΣΥΝΔΡΟΜΗΤΩΝ

Για αλλαγές διευθύνσεων, παραγγελίες προηγούμενων τευχών και λοιπών εκδόσεων, προβλήματα στην παραλαβή των τευχών κτλ., τηλεφωνήστε στο: 2310 480340 ή στείλτε e-mail στο: sales@ktirio.gr

3 ΤΕΥΧΗ ΚΤΙΡΙΟ 1 ΤΕΥΧΟΣ ΞΕΝΟΔΟΧΕΙΑ 3 ΤΕΥΧΗ ΑΡΧΙΤΕΚΤΟΝΙΚΗ 1 ΤΕΥΧΟΣ ΟΔΗΓΟΣ ΚΑΤΑΣΚΕΥΗΣ 1 ΤΕΥΧΟΣ ΕΡΓΟΤΑΞΙΑ 1 ΤΕΥΧΟΣ ΕΝΕΡΓΕΙΑ Η ετήσια συνδρομή 2023 περιλαμβάνει: • 10 τεύχη & ελεύθερη πρόσβαση στην ιστοσελίδα μας σε περισσότερα από • 800 τεχνικά άρθρα & εκπτώσεις στα • τεχνικά και αρχιτεκτονικά βιβλία ΓΙΝΕ ΣΥΝΔΡΟΜΗΤΗΣ ΤΩΡΑ! ONLINE: ΤΗΛΕΦΩΝΙΚΑ: www.ktirio.gr 2310 480 340 ΠΑΡΑΓΓΕΛΙΕΣ: ΓΙΑ ΔΙΑΡΚΗ ΤΕΧΝΙΚΗ ΕΝΗΜΕΡΩΣΗ

Turn static files into dynamic content formats.

Create a flipbook
Issuu converts static files into: digital portfolios, online yearbooks, online catalogs, digital photo albums and more. Sign up and create your flipbook.