KTIRIO I NOVEMBER 2022

Page 1

ΜΗΝΙΑΙΟ ΤΕΧΝΙΚΟ ΠΕΡΙΟΔΙΚΟ ΤΕΥΧΟΣ 10 / ΝΟΕΜ. - ΔΕΚΕΜ. 2022 10,00 € ΑΡΧΙΤΕΚΤΟΝΙΚΗ | ΤΕΧΝΟΛΟΓΙΑ | ΕΦΑΡΜΟΓΕΣ | ΥΛΙΚΑ | "HILLS CLUBHOUSE" ΛΕΣΧΗ ΓΚΟΛΦ ΣΤΗΝ COSTA NAVARINO "GRAND HOTEL SAVOIA" ΣΤΗΝ ΚΟΡΤΙΝΑ ΙΤΑΛΙΑΣ "ANTIPAROS VILLA 2" ΥΠΟΣΚΑΦΗ ΚΑΤΟΙΚΙΑ ΚΤΙΡΙΟ ΣΤΑΘΜΕΥΣΗΣ ΣΥΜΜΕΙΚΤΗΣ ΚΑΤΑΣΚΕΥΗΣ ΣΤΟΝ ΒΟΛΟ ΣΥΣΤΗΜΑΤΑ ΑΥΤΟΜΑΤΗΣ ΚΑΤΑΣΒΕΣΗΣ ΔΙΑΚΟΣΜΗΤΙΚΑ ΚΡΥΣΤΑΛΛΑ ΕΣΩΤΕΡΙΚΩΝ ΧΩΡΩΝ ΗΧΟΜΟΝΩΤΙΚΕΣ ΠΟΡΤΕΣ & ΧΩΡΙΣΜΑΤΑ

| "αρχιτεκτονικό γραφείο 3" Αρχιτεκτονική

36 "Grand Hotel Savoia"

Ανακαίνιση ξενοδοχείου στην Κορτίνα Ιταλίας schema 4 architects

44 "Antiparos Villa 2"

Υπόσκαφη κατοικία σε τρία επίπεδα στην Αντίπαρο Τsolakis Architects

52 "Hills Clubhouse"

Κτίριο λέσχης γκολφ στην Costa Navarino | PEOPLE, LZAtelier Τεχνικές σελίδες

62 Διακοσμητικά κρύσταλλα εσωτερικών χώρων Οι σύγχρονες τεχνικές επεξεργασίας καθιστούν το γυαλί ένα εξαιρετικό υλικό αρχιτεκτονικής σύνθεσης.

71 Ηχομονωτικές πόρτες & χωρίσματα Η μείωση του θορύβου με τη σωστή επιλογή των υλικών και των δομικών συστημάτων συμβάλλει στην εξασφάλιση συνθηκών ακουστικής άνεσης στο εσωτερικό των κτιρίων.

81 Συστήματα αυτόματης κατάσβεσης Τα είδη και οι εφαρμογές τους στα κτίρια για την έγκαιρη ανίχνευση εκδήλωσης

3 ΝΟΕΜΒΡΙΟΣ - ΔΕΚΕΜΒΡΙΟΣ 2022 ΠΕΡΙΕΧΟΜΕΝΑ - ΝΟΕΜΒΡΙΟΣ / ΔΕΚΕΜΒΡΙΟΣ 2022 Εξώφυλλο: Τsolakis Architects, "Antiparos Villa 2", υπόσκαφη κατοικία σε τρία επίπεδα στην Αντίπαρο Φωτογραφία: Γιώργος Μεσσαριτάκης Απαγορεύεται η αναδημοσίευση κειμένων & φωτογραφιών, χωρίς τη γραπτή άδεια του εκδότη. Το περιεχόμενο των άρθρων εκφράζει τον συντάκτη και όχι απαραίτητα τη διεύθυνση του περιοδικού. Πρώτες σελίδες 26 "The heights building" Σχολική μονάδα με LEED Gold στη Βιρτζίνια | BIG 28 Κατοικία σε ελαιώνα με παλαιό πέτρινο τμήμα | Σοφία Αγγελάκη 30 Κτίριο βιοτεχνίας με βιοκλιματικό σχεδιασμό | Tzortzakis Architecture Studio 32 "Boxes in boxes" Επέκταση & διαρρύθμιση γραφείων & χώρου υποδοχής βιοτεχνίας
πυρκαγιάς, την άμεση κατάσβεσή της και την ασφαλή εκκένωση. 87 Κεραμικά πλακίδια Οι τεχνολογικές εξελίξεις έχουν οδηγήσει στην ανάπτυξη νέων προϊόντων πλακιδίων και νέων προοπτικών εφαρμογής τους. Εργοτάξιο 96 Σύμμεικτος σκελετός και θεμελίωση με τη μέθοδο top down σε κτίριο στάθμευσης αυτοκινήτων στον Βόλο Adamakis Architects & Associates, Κίων Μελετητική Α.Ε. Το δεκαπενταώροφο κτίριο διαθέτει μεταλλικό σκελετό και σύμμεικτες πλάκες. Τα 7 υπόγεια κατασκευάστηκαν με τη μέθοδο top down λόγω της υψηλής στάθμης του υδροφόρου ορίζοντα. Το βήμα των εταιρειών 103 Ειδήσεις - Απόψεις - Σύγχρονες τεχνολογίεςΥλικά και εφαρμογές τους 28 96 52 62

το τεύχος Νοεμβρίου - Δεκεμβρίου ολοκληρώνεται το 36ο έτος συνεχών εκδόσεων των τευχών ΚΤΙΡΙΟ με θέματα που έχουν στόχο τη ΔΙΑΡΚΗ ΕΠΑΦΗ του αναγνώστη με την ΑΡΧΙ ΤΕΚΤΟΝΙΚΗ και την ΤΕΧΝΟΛΟΓΙΑ ΤΩΝ ΚΑΤΑΣΚΕΥΩΝ. Όλα αυτά τα χρόνια οι αναγνώ στες του κατανόησαν ότι το ΚΤΙΡΙΟ δεν είναι ένα απλό περιοδικό με εφήμερο ενδιαφέρον, αλλά ένα "κανάλι" που εκπέμπει επιλεγμένες και σύγχρονες ιδέες αρχιτεκτονικής και τεχνολο γίας, σύγχρονη νοοτροπία και υψηλή ποιότητα κατασκευών, με στόχο την υποστήριξη του αναγνώστη του, στις προσπάθειες για επαγγελματική ανάπτυξη και καταξίωση. Οι απαιτήσεις των συνδρομητών μας για περισσότερη εξειδίκευση στην τεχνική ενημέρωση που παρέχουμε, μας "υποχρεώνουν" το 2023 να προχωρήσουμε σε μια σταδιακή αναδιοργά νωση της ύλης των τευχών συνδρομής ΚΤΙΡΙΟ και με νέους εξειδικευμένους τίτλους. Τα τεύχη θα έχουν περισσότερη ύλη και θα περιλαμβάνονται στο πακέτο των 10 τευχών της συνδρομής, χωρίς να επιβαρύνουν την τιμή της και τους συνδρομητές μας, διατηρώντας την στα 95€, ενώ θα διατίθενται με υψηλότερη τιμή στην ελεύθερη αγορά. Έτσι στα 10 τεύχη της συνδρομής του 2023 θα περιλαμβάνονται 3 τεύχη ΚΤΙΡΙΟ με Αρχιτε κτονική και Τεχνολογία, 3 τεύχη αφιερωμένα αποκλειστικά στην ΑΡΧΙΤΕΚΤΟΝΙΚΗ, ο ετήσιος ΟΔΗΓΟΣ ΚΑΤΑΣΚΕΥΗΣ με τα υλικά και τις εφαρμογές τους και άλλα 3 ετήσια τεύχη αφιε ρωμένα το καθένα στα παρακάτω θέματα: το πρώτο αποκλειστικά στο ΕΡΓΟΤΑΞΙΟ και στην τεχνολογία των κατασκευών, το δεύτερο στο μείζον θέμα για την ΕΝΕΡΓΕΙΑ και την εξοικονό μησή

ΞΕΝΟΔΟΧΕΙΑ, που είναι σήμερα

Παπαϊωάννου

- Πολιτικός μηχανικός

13 ΝΟΕΜΒΡΙΟΣ - ΔΕΚΕΜΒΡΙΟΣ 2022 ΕΞΕΙΔΙΚΕΥΜΕΝΗ ΕΝΗΜΕΡΩΣΗ ΕΚΔΟΤΙΚΟ Πέτρος
Εκδότης
Με
της στα κτίρια και το τρίτο στα
ο "ακρογωνιαίος λίθος" στήριξης του τουρισμού της χώρας μας. Πιστεύουμε ότι μ’ αυτήν την εξειδίκευση και τον εμπλουτισμό των τευχών αλλά και με την κυκλο φορία των τεχνικών και αρχιτεκτονικών βιβλίων του Εκδοτικού Οίκου ΚΤΙΡΙΟ, οι αναγνώστες μας θα αποκομίζουν μια ολιστική και "δια βίου μάθηση", που θα υποστηρίζει την ποιότητα των δραστηριοτήτων και την επαγγελματική τους ανάπτυξη.

Αρχιτεκτονική μελέτη: Bjarke Ingels Group (BIG)

Ομάδα αρχιτεκτονικής μελέτης: Bjarke Ingles, Daniel Sundlin, Beat Schenk, Thomas Chistoffersen

Διαχείριση έργου: Aran Coakley, Sean Franklin

Διεύθυνση έργου: Tony Saba Shiber, Ji Young Yoon, Adam Sheraden Συνεργάτες: LEO A DALY, Robert Silman Associates, Interface Engineering, Gordon, Theatre Projects, Jaffe Holden, Faithful+Gould, GHD, Hopkins Food Service, GeoConcepts, Haley Aldrich, The Sextant Group, Tillotson Design Associates, EHT Traceries, Lerch Bates, Sustainable Design Consulting

Τοποθεσία: Άρλινγκτον, Βιρτζίνια, Ηνωμένες Πολιτείες Αμερικής

Εμβαδό: 16.700 m²

Ολοκλήρωση κατασκευής: 2019

Επιμέλεια: Σπύρος Τσούτσος, αρχιτέκτονας μηχ. MSc Φωτογραφίες: Laurian Ghinitoiu

"The heights building"

Το κτίριο στεγάζει δύο σχολικές μονάδες δευτεροβάθ μιας εκπαίδευσης. Τοποθετείται σε ένα αμιγώς αστικό τοπίο, στο Άρλινγκτον της Βιρτζίνια και περιβάλλεται από τρεις κεντρικές αρτηρίες της πόλης, καθώς και από τμήμα του πάρκου Rosslyn Highlands. Το σχολείο μπορεί να φιλοξενήσει εκπαιδευτικές διαδικασίες, που αφορούν 775 μαθητές, αλλά και δημόσιες εκδηλώσεις, "ανοιχτές" προς τους κατοίκους του Άρλινγκτον. Μορφολογικά, το έργο συνίσταται από πέντε παραλ ληλεπίπεδους όγκους, οι οποίοι διαρθρώνονται ο ένας επάνω από τον άλλο και περιστρέφονται γύρω από έναν νοητό άξονα, σαν βεντάλια. Στο σημείο του άξονα βρίσκεται το κεντρικό κλιμακοστάσιο, το οποίο αποτελεί τη μοναδική εσωτερική κατακόρυφη σύνδεση όλων των όγκων. Εξωτερικά, η περιστροφή των όγκων δημιουργεί βατά δώματα σε όλα τα επίπεδα. Τα φυτεμένα δώματα χρη σιμοποιούνται για μελέτη και εκπαιδευτικές διαδικασίες, ως επέκταση των εσωτερικών αιθουσών διδασκαλίας. Το σύνολο των επιφανειών του έργου έχει επενδυθεί με λείο λευκό τούβλο, υλικό που αναδεικνύει τις προε

ξέχουσες γωνίες του κτιρίου και προσδίδει μια γλυπτική υπόσταση σ' αυτό. Η είσοδος στο σχολείο γίνεται μέσα από μια αίθουσα υποδοχής τριπλού ύψους. Σ' αυτό το σημείο, οι κλιμα κωτές εξέδρες σχηματίζουν ένα αμφιθέατρο, κατάλλη λο για εκδηλώσεις. Επίσης, στον ισόγειο χώρο στεγάζο νται επιστημονικά εργαστήρια, εργαστήρια ρομποτικής, ένα εργαστήριο καλλιτεχνικών, αίθουσες για μουσικές πρόβες και δύο μικρά θέατρα. Οι εν λόγω πολυσύχνα στοι χώροι χαρακτηρίζονται από μεγάλα υαλοστάσια, που τα συνδέουν με την καθημερινότητα της πόλης. Το σύνολο των επιφανειών κάθε τομέα αιθουσών διδα σκαλίας έχει βαφτεί εσωτερικά με διαφορετικό έντονο χρώμα, ώστε η εκπαιδευτική διαδικασία να αποκτήσει ζωντανή ατμόσφαιρα. Το έργο έχει λάβει την πιστοποίηση LEED Gold. Η βελ τιστοποίηση της ενεργειακής απόδοσης επιτεύχθηκε μέσα από τη χρήση ποικίλων συστημάτων βιοκλιματι κού σχεδιασμού. Η φύτευση στα δώματα καταλαμβάνει έκταση 1.730 m², προσφέροντας φυσική θερμομόνωση στους εσωτερικούς χώρους. Τα υαλοπετάσματα είναι υψηλής ενεργειακής απόδοσης, ενώ η ενισχυμένη μό νωση, που έχει τοποθετηθεί στους πλευρικούς τοίχους, ελαχιστοποιεί τη χρήση τεχνητού κλιματισμού. Όσον αφορά στην εξοικονόμηση νερού, όλες οι υδραυλικές εγκαταστάσεις είναι χαμηλής ροής, ενώ επιπροσθέτως γίνεται συλλογή, επεξεργασία και χρήση των ομβρίων υδάτων. Ο τεχνητός φωτισμός καλύπτεται εξ ολοκλή ρου από λάμπες εξοικονόμησης ενέργειας (LED), οι οποίες περιέχουν ροοστάτη για τον έλεγχο της έντα σης του φωτός και ενεργοποιούνται με αισθητήρες κί νησης, ώστε να μη μένουν άσκοπα σε λειτουργία.

26 ΝΟΕΜΒΡΙΟΣ - ΔΕΚΕΜΒΡΙΟΣ 2022 ΠΡΩΤΕΣ ΣΕΛΙΔΕΣ | ΕΡΓΑ
1
Σχολική μονάδα με LEED Gold στη Βιρτζίνια
27 ΝΟΕΜΒΡΙΟΣ - ΔΕΚΕΜΒΡΙΟΣ 2022 2 3 1. Η είσοδος γίνεται μέσα από χώρο τριπλού ύψους. Εκεί οι κλίμακες σχηματίζουν ένα αμφιθέατρο. 2. Πέντε παραλληλεπίπεδοι όγκοι διαρθρώνονται ο ένας επάνω από τον άλλο και περιστρέφονται γύρω από έναν νοητό άξονα. 3. Οι αίθουσες διδασκαλίας χωρίζονται σε τομείς, καθένας από τους οποίους έχει βαφτεί με έντονο χρώμα. ΚΑΤΟΨΗ

Αρχιτεκτονική μελέτη και επίβλεψη: Σοφία Αγγελάκη

Στατική μελέτη: Κωνσταντίνος Δαρμαράκης

H/M μελέτη: Κωνσταντίνος Βλαχάκης

Τοπογράφος: Νικόλαος Σπυριδάκης

Μελέτη εσωτερικών χώρων και φωτισμού: Σοφία Αγγελάκη

Τοποθεσία: Επισκοπή Αγιάς, Χανιά Συνολικό εμβαδό κτιρίου: 145 m²

Χρόνος κατασκευής: 2019 - 2021

Παρουσίαση: Σοφία Αγγελάκη

Φωτογραφίες: Γεώργιος Αναστασάκης

Σε παλαιό ελαιώνα ζητήθηκε ο σχεδιασμός ισόγειας κατοικίας με σοφίτα, τμήμα υπογείου και κολυμβητική δεξαμενή. Στο οικόπεδο προϋπήρχε πέτρινο περι τύπωμα, η παλαιά δίχωρη οικία της οικογένειας, που επί χρόνια είχε τον ρόλο αποθήκης. Αυτό το κτίσμα αποτελούσε σημείο αναφοράς και μνήμης των ιδιοκτη τών, που επιθυμούσαν την επαναλειτουργία του υπό το πρίσμα ενός σύγχρονου τρόπου κατοίκησης. Η σύνθεση οργανώθηκε με γνώμονα τη διατήρηση του πέτρινου κελύφους και την ενσωμάτωσή του στη νέα κα τοικία. Βασική συνθετική επιλογή ήταν το υπάρχον πέ τρινο να φιλοξενήσει τη διημέρευση / το δημόσιο και η υπόστασή του να βιώνεται τόσο από το εσωτερικό, όσο και από τον περιβάλλοντα χώρο. Έτσι οι δύο λειτουρ γικές ενότητες, χώροι ύπνου / ιδιωτική, διημέρευση / δημόσια, αντιμετωπίστηκαν σαν δύο δοχεία ζωής, που αναζητούσαν τη σύνδεσή τους. Ένας διώροφος διαμπε ρής χώρος υποδοχής και μετάβασης με υαλοστάσια υλοποίησε αυτήν τη σύνδεση. Ταυτοχρόνως, αποτελεί τη μετάβαση προς τη σοφίτα, επάνω από το πέτρινο, αλλά και προς τον ελαιώνα. Τα υπνοδωμάτια στο ισόγειο προστατεύονται οπτικά και ηχητικά από τη διημέρευση μέσω ενός σκληρού στοιχείου - πέτρινου τοίχου με κατακόρυφα επιμήκη ανοίγματα. Η κατοικία είναι οργανωμένη κατά τον άξονα ανατολήςδύσης. Η κύρια υπαίθρια εκτόνωση διαμορφώνεται στον

βορρά, στο επίπεδο της πισίνας, εκτός από τον χώρο διημέρευσης, που εκτονώνεται σε ανατολική βεράντα με μπάρμπεκιου. Η σοφίτα έχει τον χαρακτήρα ενός σύγχρονου "οντά" με ξύλινα καφασωτά στα στηθαία, σε οπτική επαφή με τη διημέρευση και την είσοδο και με άπλετη θέα στα Λευκά Όρη. Στέκεται σε ξύλινο δάπεδο επάνω σε μεταλλικές δοκίδες, που τοποθετήθηκαν κατά την κατασκευή του φέροντος οργανισμού. Το παλαιό πέτρινο ενισχύθηκε εσωτερικά με υποστυ λώματα οπλισμένου σκυροδέματος. Όμοιος είναι και ο φέρων οργανισμός του κτιρίου. Οι εσωτερικές τοι χοποιίες κατασκευάστηκαν από ξηρά δόμηση. Στους ημιυπαίθριους χώρους τοποθετήθηκε φίλτρο ηλιο προστασίας από μεταλλικές οριζόντιες περσίδες. Η περίφραξη είναι μια σύνθεση στοιχείων σκυροδέματος και πέτρας, δομικών συστατικών του κτιρίου, με πόρτες εισόδου από διάτρητη λαμαρίνα. Σχεδιάστηκαν ειδικές κατασκευές στα μπάνια και στα υπνοδωμάτια από μέταλλο, ξύλο, βιτρό και καφασω τό. Το εικονοστάσι της οικογένειας διατηρήθηκε, επι σκευάστηκε και αποτέλεσε μέρος της σύνθεσης του περιβάλλοντος χώρου. Έπιπλα της οικογένειας βρήκαν τη θέση τους στη νέα κατοικία, δημιουργώντας την αντίστιξη που αναζητεί η νέα κατασκευή. Εργόχειρα της οικογένειας διαφυλάχθηκαν μέσα σε κάδρα για να θυμίσουν την επιμονή των έργων των χεριών.

28 ΝΟΕΜΒΡΙΟΣ - ΔΕΚΕΜΒΡΙΟΣ 2022 ΚΑΤΟΨΗ ΙΣΟΓΕΙΟΥ ΤΕΧΝΙΚΑ & ΑΡΧΙΤΕΚΤΟΝΙΚΑ ΓΡΑΦΕΙΑ
Κατοικία σε ελαιώνα με παλαιό πέτρινο τμήμα 1 ΟΙ ΠΑΡΑΚΑΤΩ ΕΤΑΙΡΕΙΕΣ ΔΙΑΘΕΤΟΥΝ ΠΡΟΪΟΝΤΑ ΚΑΙ ΥΠΗΡΕΣΙΕΣ ΣΤΟ ΕΡΓΟ ΚΑΙ ΣΥΜΜΕΤΕΧΟΥΝ ΜΕ ΔΙΑΦΗΜΙΣΗ Σ' ΑΥΤΟ ΤΟ ΤΕΥΧΟΣ: ALUMIL ΣΕΛ. 2

Αρχιτεκτονική μελέτη: "αρχιτεκτονικό γραφείο 3"

& Χριστίνα Πλαΐνη

Νικολέττα Δρίτσα

Μελέτη εσωτερικών χώρων, φωτισμού & Η/Μ: "αρχιτεκτονικό γραφείο 3"

Συνεργάτες: Δήμητρα Κούτρα

Ιδιοκτήτης: Μerla Pack

Τοποθεσία: Πειραιάς

Εμβαδό: 70 m²

Χρόνος μελέτης: 2019

Χρόνος κατασκευής: 2020

Παρουσίαση: Χριστίνα

ύλη– αλλά και τα γραφεία της επιχείρησης. Στο εσωτερικό αναγνωρίζει κανείς τον βιομηχανικό χαρακτήρα ενός κτιρίου με ύψος 6 m, που επιστεγάζεται από μια δίριχτη, εμφανή, ξύλινη στέγη. Στη μια πλευρά του χώρου αναπτύσσεται το εμφανές μεταλλικό πατάρι, στο οποίο λειτουργούν τα γραφεία και άλλοι βοηθητικοί χώροι. Το ζητούμενο σχετικά με τη διαρρύθμιση των γραφείων εστιαζόταν κυρίως στην επέκτασή τους και στη δημιουργία άνετων θέσεων εργασίας. Σημαντική προϋπόθεση ήταν η σύνδεσή τους και η εύκολη διέλευση από και προς τους χώρους παραγωγής, ενώ απαραίτητη κρίθηκε και η δυνατότητα απομόνω σης του γραφείου της ιδιοκτήτριας της επιχείρησης.

Άλλη μια σημαντική παράμετρος για τον σχεδιασμό ήταν η δυνατότητα έκθεσης των κουτιών (του εμπο ρεύματος), τα οποία ποικίλλουν σε σχέδια, μεγέθη και χρωματισμούς. Η επέκταση των γραφείων επάνω στο πατάρι ακο λούθησε και ανέδειξε το μοτίβο των κλειστών μεταλ λικών κατασκευών, δημιουργώντας δύο "κουτιά", που διακόπτονται από τη διακριτή είσοδο ανάμεσα σε αυτά. Ο μεταλλικός σκελετός είναι παντού εμφανής και σε μαύρο χρώμα· εμφανείς είναι και οι σκάλες που συνδέουν τις στάθμες με κουπαστές από μεταλ λικά πλέγματα. Όταν τα γραφεία χρησιμοποιούνται και είναι φωτισμένα, ο μεταλλικός σκελετός διαγρά φεται καθαρά, κάνοντας την ιδέα των "κουτιών μέσα στα κουτιά" αντιληπτή. Με μια διάθεση "ανανέωσης" –καθώς πρόκειται για χώρους χωρίς φυσικό φωτισμό– επιλέχθηκαν φωτεινά χρώματα σε όλα τα βινυλικά δάπεδα των χώρων που σχεδιάστηκαν. Τα έπιπλα, αντιθέτως, ακολουθούν μια πιο ουδέτερη χρωματική παλέτα, όπως το γκρι, σε συνδυασμό με εφαρμογές ξύλου στα σημεία, τα οποία οι μελετητές θέλησαν να τονίσουν περισσότερο, όπως το σημείο εισόδου των γραφείων. Με παρόμοια διάθεση σχεδιάστηκε και ένας νέος χώρος υποδοχής στο ισόγειο. Εκτός από το προφα νές καλωσόρισμα στη βιοτεχνία, δημιουργήθηκε ένα κατάλληλο σημείο για την έκθεση παλαιών φωτογρα φιών, εγγράφων και αντικείμενων, που θυμίζουν τη μεγάλη πορεία της επιχείρησης αλλά και του κτιρίου μέσα στα χρόνια.

32 ΝΟΕΜΒΡΙΟΣ - ΔΕΚΕΜΒΡΙΟΣ 2022 ΤΕΧΝΙΚΑ & ΑΡΧΙΤΕΚΤΟΝΙΚΑ ΓΡΑΦΕΙΑ
/ Νικολέττα Δρίτσα
Επίβλεψη:
Πλαΐνη Φωτογραφίες: Δημήτρης Κλεάνθης Στη βιομηχανική ζώνη του Πειραιά, η επιχείρηση δραστηριοποιείται από το 1906 στον χώρο της λιθογραφίας, των γραφικών τεχνών, των εκτυπώ σεων κυτιοποιίας και στην παραγωγή συσκευασιών. Σε ένα παλαιό πέτρινο κτίριο στεγάζονται εδώ και 100 χρόνια περίπου, οι χώροι παραγωγής –με τις μηχανές και την πρώτη
"Boxes in boxes" Επέκταση & διαρρύθμιση γραφείων & χώρου υποδοχής βιοτεχνίας
2 1
36 ΝΟΕΜΒΡΙΟΣ - ΔΕΚΕΜΒΡΙΟΣ 2022 ΑΡΧΙΤΕΚΤΟΝΙΚΗ Αρχιτεκτονική μελέτη: schema 4 architects Υπεύθυνη αρχιτέκτων: Ελένη Σπάρτση Ομάδα μελέτης: Χριστίνα Ζαρομυτίδου, Ζωή Τσατήρη, Μαρίνα Διαμαντίδου, Εφραίμ Παπαθωμάς, Μυρτώ Γιαμπούρα Επιβλέπων αρχιτέκτων: Βίβιαν Γκέρου Κατασκευή και λειτουργία: Zeus International Τοποθεσία: Cortina d'Ampezzo Παρουσίαση: schema 4 architects Φωτογραφίες: ©Grand Hotel Savoia "GRAND HOTEL SAVOIA" Ανακαίνιση ξενοδοχείου στην Κορτίνα Ιταλίας
37 ΝΟΕΜΒΡΙΟΣ - ΔΕΚΕΜΒΡΙΟΣ 2022 ΑΡΧΙΤΕΚΤΟΝΙΚΗ
44 ΝΟΕΜΒΡΙΟΣ - ΔΕΚΕΜΒΡΙΟΣ 2022 Αρχιτεκτονική μελέτη - επίβλεψη: Τsolakis Architects / Γεώργιος Τσολάκης, Σοφία Λεπίδα, Ελένη Λάγκαρη Ομάδα μελέτης: Ιωάννα Γκριτζάνη, Άγγελος Παλάσκας, Miguel Munoz Ayllon Στατική μελέτη: Daidalos Engineering H/M μελέτη: Αγαπάκης Μελετητική & Συνεργάτες Αρχιτεκτονική τοπίου: Ελένη Τσιριντάνη Εσωτερική διακόσμηση - επίπλωση: Tsolakis Architects Κατασκευή: Tsolakis Architects Εμβαδό οικοπέδου: 4.500 m² Εμβαδό κτιρίου: 800 m² Χρόνος μελέτης: 2019 Χρόνος αποπεράτωσης: 2021 Φωτογραφίες: Γιώργος Μεσσαριτάκης "ANTIPAROS VILLA 2" Υπόσκαφη κατοικία σε τρία επίπεδα στην Αντίπαρο
52 ΝΟΕΜΒΡΙΟΣ - ΔΕΚΕΜΒΡΙΟΣ 2022 "HILLS CLUBHOUSE" Κτίριο λέσχης γκολφ στην περιοχή Navarino Hills της Costa Navarino ΑΡΧΙΤΕΚΤΟΝΙΚΗ Αρχιτεκτονική μελέτη & μελέτη εσωτερικών χώρων: PEOPLE, LZAtelier Στατική μελέτη: Lithos Consulting Engineers Η/Μ μελέτη: PEOPLE Μελέτη φωτισμού: NEA POLIS Ακουστική μελέτη: Gerasimos Efthymiatos Σχεδιασμός τοπίου: LANDMACON Σχεδιασμός γηπέδων γκολφ: Olazabal Design Κατασκευή: REDEX Κύριος του έργου: PANORAMA S.A. Εμβαδό: 2.631 m² Τοποθεσία: Κυνηγός Μεσσηνίας Χρόνος ολοκλήρωσης: 2022 Παρουσίαση: PEOPLE Φωτογραφίες: George Sfakianakis, Panagiotis Voumvakis
ΑΡΧΙΤΕΚΤΟΝΙΚΗ 53 ΝΟΕΜΒΡΙΟΣ - ΔΕΚΕΜΒΡΙΟΣ 2022
©Panagiotis Voumvakis
62 ΝΟΕΜΒΡΙΟΣ - ΔΕΚΕΜΒΡΙΟΣ 2022 Γυάλινοι εσωτερικοί τοίχοι από έγχρωμο πολυστρωματικό γυαλί σε κτίριο γραφείων στο Πεκίνο. Αρχιτεκτονική μελέτη: People’s Architecture Office. ©PAO.

Παρουσίαση:

Το βασικότερο χαρακτηριστικό και πλεονέκτημα του γυαλιού είναι η διαφάνεια, που επιτρέπει την είσοδο του φυσικού φωτός στους εσωτερικούς χώρους. Το φως λειτουργεί ως στοιχείο της αρχιτεκτονικής σύνθεσης, δημιουργώντας μια διαφορετική αίσθηση του χώρου ανάλογα με το χειρισμό του σε κάθε περίπτωση. Το γυαλί μπορεί να δημιουργήσει νέες χωρικές σχέσεις, προσφέροντας οπτική ελευθερία και συνέχεια και δημιουργώντας μεγάλους και φωτεινούς χώρους. Αποτελεί

Μέθοδοι κατασκευής γυαλιού Κάθε τύπος γυαλιού έχει συγκεκριμένες ιδιότητες, που καθοδηγούν τη χρήση του, και από αυτές η αντοχή παίζει καθοριστικό ρόλο. Η αντοχή του γυαλιού εξαρτάται άμεσα από τον τρόπο κατασκευής του ή από την επεξεργασία στην οποία υπόκειται. Οι βασικές τεχνικές που συναντώνται συχνότερα είναι τέσσερις, με τους ακόλουθους αντίστοιχους τύπους γυαλιού: • Ανοπτημένο (μη σκληρυμένο) γυαλί / βραδείας ψύξης.

γυάλινων

καθώς

στους χρήστες, τόσο σε δημόσιους, όσο και σε εμπορικούς χώρους, σε εστιατόρια και σε χώρους υγειονομικού περιεχομένου κ.ά.

• Θερμικά ενισχυμένο γυαλί. • Μερικώς σκληρυμένο (ή πλήρως σκληρυμένο) γυαλί. • Πολυστρωματικό γυαλί. Ανοπτημένο γυαλί Αποτελεί τον πλέον συνηθισμένο τύπο που συναντάται. Δεν διαθέτει τη δύναμη και την αντοχή του σκληρυμένου και δεν ενδείκνυται για χρήσεις στις οποίες η ασφάλεια αποτελεί προαπαιτούμενο. Η επιφάνεια του λειωμένου γυαλιού τείνει να ψυχθεί ταχύτερα από το κέντρο του, με αποτέλεσμα να αναπτυχθούν εσωτερικές τάσεις οι οποίες πιθανόν να προκαλέσουν ράγισμα ή θραύση. Με την επεξεργασία βραδείας ψύξης –ή αλλιώς ανόπτηση– αυτές οι τάσεις περιορίζονται ή και εξαλείφονται με την υποβολή του γυαλιού σε αυστηρά ελεγχόμενη ψύξη σε ειδικό κλίβανο, στον οποίο του επιτρέπεται να κρυώσει σε μια θερμοκρασία γνωστή ως σημείο ανόπτησης ή ψύξης. Όταν το γυαλί φθάσει σ'

63 ΝΟΕΜΒΡΙΟΣ - ΔΕΚΕΜΒΡΙΟΣ 2022 ΤΕΧΝΙΚΕΣ ΣΕΛΙΔΕΣ
ένα εξαιρετικά ευέλικτο υλικό, καθώς ένα υαλοπέτασμα μπορεί να είναι απολύτως διαφανές, ημιδιαφανές ή έγχρωμο, να φέρει εικόνες και σχέδια, να χρησιμοποιηθεί ταυτοχρόνως ως άνοιγμα ή και ως διαχωριστικό. Επιπλέον, η ποικιλία των εφαρμογών του και το εύρος χρήσης του τού επιτρέπει να χρησιμοποιηθεί επιτυχώς σε κάθε είδους εσωτερικό χώρο, π.χ. σε κατοικίες, χώρους εργασίας, δημόσια κτίρια κ.ά. Ως υλικό χαρακτήρισε την αρχιτεκτονική του 20ού αιώνα, καθώς οι τεχνολογικές εξελίξεις το μετέτρεψαν σε βασικό δομικό υλικό της εξωτερικής αρχιτεκτονικής, μια τάση που συνεχίζεται μέχρι σήμερα. Το μεγάλο εύρος εφαρμογής αλλά και τεχνικών επεξεργασίας και διακόσμησης έχει συμβάλει στην αυξανόμενη χρήση του στην εσωτερική διακόσμηση και στην αρχιτεκτονική. Σήμερα η χρήση των
διαχωριστικών εμφανίζει μια δυναμική,
παρέχει μια αίσθηση ασφάλειας
ΧΡΙΣΤΙΝΑ ΚΑΝΑΚΙΔΟΥ, διπλ. αρχιτέκτονας μηχανικός, MA ΔΙΑΚΟΣΜΗΤΙΚΑ ΚΡΥΣΤΑΛΛΑ ΕΣΩΤΕΡΙΚΩΝ ΧΩΡΩΝ ΟΙ ΣΥΓΧΡΟΝΕΣ ΤΕΧΝΙΚΕΣ ΕΠΕΞΕΡΓΑΣΙΑΣ ΚΑΘΙΣΤΟΥΝ ΤΟ ΓΥΑΛΙ ΕΝΑ ΕΞΑΙΡΕΤΙΚΟ ΥΛΙΚΟ ΑΡΧΙΤΕΚΤΟΝΙΚΗΣ ΣΥΝΘΕΣΗΣ

προβλημάτων ακουστικής στους

κτιρίων επη ρεάζει αρνητικά την παραγωγικότητα, την ικανότητα συγκέντρωσης, την ικανοποίηση και κατ’ επέκταση τη σωματική και ψυχολογική υγεία των χρηστών. Ο ακουστικός σχεδιασμός αποτελεί μια από τις πιο πολύπλο κες πτυχές της αρχιτεκτονικής, αλλά, αν συμπεριληφθεί από τα αρχικά στάδια της κατασκευής ή της ανακαίνισης ενός χώρου, μπορεί να εξα σφαλίσει τη δημιουργία ενός άνετου και υγιούς εσωτερικού περιβάλλο ντος, που εξυπηρετεί τις ανάγκες και τις προδιαγραφές του κάθε έργου. Ανάλογα με το σκοπό του κτιρίου ή του δωματίου, οι αρχικές ακου στικές απαιτήσεις μπορεί να περιλαμβάνουν τον έλεγχο των οχλήσεων

71 ΝΟΕΜΒΡΙΟΣ - ΔΕΚΕΜΒΡΙΟΣ 2022 Έχει διαπιστωθεί από πολλές μελέτες πως η ελλιπής αντιμετώπιση των
εσωτερικούς χώρους των
Παρουσίαση: ΕΛΕΥΘΕΡΙΑ ΤΙΤΟΝΗ, διπλ. αρχιτέκτονας μηχανικός, MSc ΗΧΟΜΟΝΩΤΙΚΕΣ ΠΟΡΤΕΣ & ΧΩΡΙΣΜΑΤΑ Η ΜΕΙΩΣΗ ΤΟΥ ΘΟΡΥΒΟΥ ΜΕ ΤΗ ΣΩΣΤΗ ΕΠΙΛΟΓΗ ΤΩΝ ΥΛΙΚΩΝ ΚΑΙ ΤΩΝ ΔΟΜΙΚΩΝ ΣΥΣΤΗΜΑΤΩΝ ΣΥΜΒΑΛΛΕΙ ΣΤΗΝ ΕΞΑΣΦΑΛΙΣΗ ΣΥΝΘΗΚΩΝ ΑΚΟΥΣΤΙΚΗΣ ΑΝΕΣΗΣ

χώρων ή εντός του ίδιου του χώρου, την αντιμετώπιση του θορύβου από το εξωτερικό περιβάλλον, αλλά και την ακουστική απόδοση, ειδικά σε χώρους με εξει δικευμένες απαιτήσεις, όπως σε αίθουσες συναυλιών ή διδα σκαλίας. Αν και συνήθως κατά τις μελέτες ακουστικής δίνεται προτεραιότητα στην ηχομόνωση

κελύφους (συστήματα οροφών

εστιάζουν την προσοχή τους στο τι συμβαίνει, όταν τα ηχη τικά κύματα συναντούν μια επιφάνεια (π.χ. οροφή, δάπεδο, πόρτα κτλ.). Ο ιδιαίτερος αντίκτυπος, που θα έχουν σ’ αυτήν

την επιφάνεια τα εκπεμπόμενα ηχητικά κύματα, εξαρτάται άμεσα από τα ακουστικά χαρακτηριστικά του υλικού που θα συναντήσουν. Όμως σε όλες τις περιπτώσεις, ένα μέρος τους θα ανακλαστεί από την επιφάνεια στην οποία θα πέσει (όσο πιο σκληρό είναι το υλικό, τόσο μεγαλύτερο ποσοστό ανακλάται), ένα μέρος θα απορροφηθεί (όσο πιο μαλακό και πορώδες είναι το υλικό, τόσο μεγαλύτερη είναι η απορ ρόφηση), ενώ η εναπομένουσα ενέργεια θα μεταδοθεί διά μέσου του υλικού. Τύποι ηχοπροστατευτικών προϊόντων Υπάρχουν διάφοροι τύποι ηχοπροστατευτικών προϊόντων, που χρησιμοποιούνται για ηχητική μόνωση και έλεγχο της ακου στικής στους εσωτερικούς χώρους. Κάθε περιβάλλον διαθέ τει μοναδικές παραμέτρους, που πρέπει να ληφθούν υπόψη κατά τον σχεδιασμό και την επιλογή των υλικών, καθώς όλα τα στοιχεία ενός χώρου επηρεάζουν σε μικρότερο ή μεγα λύτερο βαθμό την ακουστική του. Καμία λύση δεν μπορεί να εφαρμοστεί καθολικά σε όλες τις περιπτώσεις. Η επιλογή και ο συνδυασμός των κατάλληλων λύσεων εξαρτάται από τον τύπο των οχλήσεων, τα αρχιτεκτονικά χαρακτηριστικά και τις προδιαγραφές του χώρου, τη λειτουργικότητα, την αισθητική και τον διαθέσιμο προϋπολογισμό.

ΤΕΧΝΙΚΕΣ ΣΕΛΙΔΕΣ 72 ΝΟΕΜΒΡΙΟΣ - ΔΕΚΕΜΒΡΙΟΣ 2022 1. Γραφεία με κινητά γυάλινα ηχομονωτικά χωρίσματα, σε ζωηρά χρώματα, ενσωματώνονται στον ελεύθερο κοινόχρηστο χώρο του κτιρίου γραφείων στον Καναδά. Αρχιτεκτονικός σχεδιασμός: Inside Studio. Φωτογραφία: Stephane Brugger. Πηγή:v2com. μεταξύ γειτονικών
του
/ δαπέδων, εξωτερικές τοιχοποιίες), μόνο με την αποτελεσματική θωράκιση των θυρών και των διαχωριστι κών των εσωτερικών χώρων μπορεί να επιτευχθεί μια ολο κληρωμένη λύση και ένα ικανοποιητικό τελικό αποτέλεσμα. Ακουστική εσωτερικών χώρων Οι σχεδιαστές πρέπει να κατανοήσουν τον τρόπο που ταξι δεύει ο ήχος και τη δυναμική του φύση, προκειμένου να βελ τιώσουν την ακουστική ενός χώρου. Ο ήχος δεν ταξιδεύει μόνο σε ευθεία διαδρομή, αλλά αναπηδά, κινείται γύρω από εμπόδια και "πιέζεται" μέσω μικρών ανοιγμάτων, γεγονός που μπορεί να επιτρέψει στο θόρυβο να φτάσει εκπληκτικά πολύ πιο μακριά από το σημείο προέλευσής του. Στην περί πτωση των εσωτερικών χώρων, οι σχεδιαστικές στρατηγικές
1

καιόμενων

αέρια,

ιδιαίτερα

και οι απαιτήσεις χώρου για την τοποθέτηση

επί μέρους τμημάτων του συστήματος,

το κόστος εγκατάστασης και συντήρησης. Κύρια μέρη ενός συστήματος αυτόματης κατάσβεσης

συστήματα αυτόματης κατάσβεσης αποτελούνται από το τμήμα ανίχνευσης της πυρκαγιάς, την αποθήκη του κατασβεστικού μέσου, το τμήμα παροχής του κατασβεστικού μέσου στον προστατευόμενο χώρο και έναν ηλεκτρικό - ηλεκτρονικό πίνακα ελέγχου της λειτουργίας του συστήματος. Το τμήμα της ανίχνευσης πυρκαγιάς έχει στόχο την έγκαιρη ανίχνευση της εκδήλωσης της πυρκαγιάς. Αποτελείται είτε από συμβατικούς ανιχνευτές

81 ΝΟΕΜΒΡΙΟΣ - ΔΕΚΕΜΒΡΙΟΣ 2022 Άρθρο του: ΒΑΣΙΛΗ ΑΡΓΥΡΟΠΟΥΛΟΥ, μηχανολόγου μηχ. Στα σύγχρονα κτίρια υπάρχουν χώροι κύριας ή βοηθητικής χρήσης, που εμφανίζουν ιδιαίτερα αυξημένο κίνδυνο εκδήλωσης πυρκαγιάς ή το περιεχόμενο τους επιβάλλει την άμεση επέμβαση και κατάσβεση σε περίπτωση εκδήλωσης πυρκαγιάς. Αυτοί οι χώροι προσδιορίζονται στο Π.Δ. 41/2018 και χαρακτηρίζονται ως επικίνδυνοι χώροι. Οι επικίνδυνοι χώροι διαχωρίζονται σε δύο κατηγορίες, Α και Β. Το Π.Δ. 41/2018 επιβάλλει την ύπαρξη αυτόματης κατάσβεσης στους επικίνδυνους χώρους της κατηγορίας Β, στους οποίους εντάσσονται μεγάλα λεβητοστάσια με εγκατεστημένη ισχύ μεγαλύτερη των 50 kW, χώροι μετασχηματιστών κτλ. Τα συστήματα αυτόματης κατάσβεσης εγκαθίστανται επίσης όταν είναι επιθυμητή η αύξηση του μεγέθους των πυροδιαμερισμάτων ή η αύξηση του μέγιστου επιτρεπόμενου μήκους της όδευσης διαφυγής ή η μείωση του απαιτούμενου δείκτη πυραντίστασης της δομικής κατασκευής. Για την κατάλληλη επιλογή του συστήματος αυτόματης κατάσβεσης, οι κύριες εξεταζόμενες παράμετροι είναι: • το είδος των
υλικών (υγρά, στερεά,
λάδια,
υλικά), • το μέγεθος του προστατευόμενου χώρου - εξοπλισμού και οι πιθανές ΣΥΣΤΗΜΑΤΑ ΑΥΤΟΜΑΤΗΣ ΚΑΤΑΣΒΕΣΗΣ ΤΑ ΕΙΔΗ ΚΑΙ ΟΙ ΕΦΑΡΜΟΓΕΣ ΣΤΑ ΚΤΙΡΙΑ ΓΙΑ ΤΗΝ ΕΓΚΑΙΡΗ ΑΝΙΧΝΕΥΣΗ ΕΚΔΗΛΩΣΗΣ ΠΥΡΚΑΓΙΑΣ, ΤΗΝ ΑΜΕΣΗ ΚΑΤΑΣΒΕΣΗ ΚΑΙ ΤΗΝ ΑΣΦΑΛΗ ΕΚΚΕΝΩΣΗ διαρροές κατασβεστικού μέσου από τον χώρο, • ο τρόπος κατάσβεσης των καιόμενων υλικών και η συμπεριφορά τους έναντι των διάφορων κατασβεστικών υλικών, • η πιθανή ύπαρξη ή όχι ανθρώπων στον χώρο, • οι δυνατότητες απομάκρυνσης του κατασβεστικού μέσου μετά την κατάσβεση, • η ευκολία εγκατάστασης
των
Τα

Σύστημα αυτόματης κατάσβεσης με αέριο ως μέσο κατάσβεσης. Πηγή: Yilmaz.

1. Σύστημα ανίχνευσης με ανάλυση δείγματος

2. Άνοιγμα για

υπερπίεσης

ανακούφιση

την κατάσβεση.

3. Ακροφύσια κατακλυσμού του χώρου.

4. Ανιχνευτές καπνού.

5. Οπτική και ηχητική ένδειξη συναγερμού.

6. Πίνακας ελέγχου συστήματος κατάσβεσης.

7. Φιάλες κατασβεστικού μέσου.

σε περαιτέρω κατηγορίες ανάλογα με τον τρόπο ενεργοποίησης τους, το αποθηκευτικό μέσο και τα ακροφύσια έγχυσης του μέσου στον προστατευόμενο χώρο. Σε κάθε περίπτωση, όταν, εκτός του νερού, χρησιμοποιούνται χημικές ενώσεις είτε ως κύρια κατασβεστικά μέσα είτε ως πρόσθετα σε διαλύματα, θα πρέπει να υπάρχει αντίστοιχη πιστοποίηση για την

εξοπλισμό. Μειονέκτημα των συστημάτων είναι ότι πρέπει να λαμβάνονται ιδιαίτερα μέτρα πριν από την έναρξη της κατάσβεσης για την προστασία των ανθρώπων στον χώρο. Τέτοια είναι τα προειδοποιητικά φωτεινά και ηχητικά σήματα πριν από την έναρξη της κατάσβεσης, χρονοκαθυστέρηση μεταξύ συναγερμού και έναρξης κατάσβεσης, καθώς και κομβίο ή

μοχλός χειροκίνητης ακύρωσης της κατάσβεσης. Ως αέρια κατασβεστικά μέσα χρησιμοποιούνται το διοξείδιο του άνθρακα, αέρια μείγματα φιλικά προς τον άνθρωπο και διάφορα αερολύματα. Διοξείδιο του άνθρακα Το διοξείδιο του άνθρακα λόγω της σχεδόν μηδενικής αγωγιμότητας του αλλά και της υψηλής καθαρότητας που παρουσιάζει, καθώς δεν αφήνει κατάλοιπα, χρησιμοποιείται ευρέως στην κατάσβεση πυρκαγιών σε ηλεκτρολογικό εξοπλισμό υπό τάση όπως χώρους μετασχηματιστών και γεννητριών. Η χρήση του διοξειδίου δεν ενδείκνυται για την κατάσβεση πυρκαγιών σε υλικά, τα οποία περιέχουν επαρκές οξυγόνο για την καύση τους στη χημική τους σύσταση. Δεν χρησιμοποιείται επίσης

ολικής

καιγόμενα

τοπικής

Το κόστος

σχετικά μικρό, ενώ η απαίτηση του χώρου για την τοποθέτηση των φιαλών (εκτός του προστατευόμενου χώρου) εξαρτάται από τη συνολική απαιτούμενη ποσότητα διοξειδίου. Αέρια μείγματα φιλικά προς τον άνθρωπο Για την αποφυγή των κινδύνων που εγκυμονεί η χρήση του διοξειδίου για τον άνθρωπο έχουν αναπτυχθεί αέριες χημικές ενώσεις που μπορούν να χρησιμοποιηθούν σε χώρους που βρίσκονται άνθρωποι. Αυτές οι χημικές ενώσεις επιτυγχάνουν κατάσβεση της πυρκαγιάς είτε με τον περιορισμό του οξυγόνου

ΤΕΧΝΙΚΕΣ ΣΕΛΙΔΕΣ 83 ΝΟΕΜΒΡΙΟΣ - ΔΕΚΕΜΒΡΙΟΣ 2022
αποτελεσματικότητα του υλικού και την περιβαλλοντική του επίδραση. Συστήματα αυτόματης κατάσβεσης με αέρια κατασβεστικά μέσα Η κατάσβεση της πυρκαγιάς επιτυγχάνεται κυρίως με τον περιορισμό του διατιθέμενου οξυγόνου για την καύση. Η αποθήκη κατασβεστικού μέσου είναι συνήθως μία ή περισσότερες φιάλες, στις οποίες το αέριο βρίσκεται υπό πίεση. Για την αποφυγή της διαρροής κατασβεστικού μέσου και την αποτελεσματικότητα του συστήματος θα πρέπει να διακόπτεται η λειτουργία των συστημάτων εξαερισμού του προστατευόμενου χώρου. Το σημαντικό πλεονέκτημα αυτών των συστημάτων είναι ότι δεν επηρεάζουν τον εξοπλισμό του χώρου και χρησιμοποιούνται ευρέως σε χώρους με ευαίσθητο
σε περιπτώσεις πυρκαγιών που αφορούν σε
μέταλλα. Χρησιμοποιείται σε συστήματα ξηρού τύπου,
κατάκλυσης αλλά και σε συστήματα
εφαρμογής.
εγκατάστασης των συστημάτων είναι
αέρα.
την
της
κατά
1 2 3 4 5 6 7

αρκετούς αιώνες, όσο και στα σύγχρονα κτίρια, λόγω της χρηστικότητας και της αισθητικής τους αξίας. Αναμφίβολα πρόκειται για ένα υλικό επένδυσης με μεγάλη αντοχή σε μηχανικές καταπονήσεις, το οποίο δεν αλλοιώνεται οπτικά και δεν παραμορφώνεται λόγω της επίδρασης της ηλιακής ακτινοβολίας και συνεπώς έχει μεγάλη διάρκεια ζωής. Επιπλέον, τα κεραμικά πλακίδια παράγονται από φυσικές πρώτες ύλες, δεν καίγονται και σε περίπτωση πυρκαγιάς ή πλημμύρας δεν χρειάζονται αντικατάσταση σε αντίθεση με τα περισσότερα άλλα υλικά. Επιπροσθέτως, έχουν ελάχιστες απαιτήσεις συντήρησης, εύκολο καθαρισμό και είναι εφικτή η τοπική αποκατάσταση μιας φθοράς χωρίς την απαίτηση ολικής αντικατάστασής τους. Ακόμη, διακρίνονται για τις άφθονες δυνατότητες διακόσμησης που παρέχουν, καθώς ανάλογα με το σχήμα, το μέγεθος και τη διαμόρφωση της τελικής τους επιφάνειας προσφέρουν απεριόριστες επιλογές ως προς το επιδιωκόμενο αισθητικό αποτέλεσμα.

87 ΝΟΕΜΒΡΙΟΣ - ΔΕΚΕΜΒΡΙΟΣ 2022 ΚΕΡΑΜΙΚΑ ΠΛΑΚΙΔΙΑ ΟΙ ΣΥΓΧΡΟΝΕΣ ΤΕΧΝΟΛΟΓΙΚΕΣ ΕΞΕΛΙΞΕΙΣ ΕΧΟΥΝ ΟΔΗΓΗΣΕΙ ΣΤΗΝ ΑΝΑΠΤΥΞΗ ΝΕΩΝ ΠΡΟΪΟΝΤΩΝ ΠΛΑΚΙΔΙΩΝ ΚΑΙ ΚΑΙΝΟΥΡΙΩΝ ΠΡΟΟΠΤΙΚΩΝ ΕΦΑΡΜΟΓΗΣ Παρουσίαση: ΑΓΓΕΛΙΚΗ ΠΑΪΠΑΗ, αρχιτέκτονας μηχ. Α.Π.Θ., MSc Τα κεραμικά πλακίδια αποτελούν ένα διαχρονικό υλικό επένδυσης δαπέδων και τοίχων, εξωτερικών και εσωτερικών χώρων, με ισχυρή παρουσία τόσο στην παραδοσιακή αρχιτεκτονική εδώ και
ΤΕΧΝΙΚΕΣ ΣΕΛΙΔΕΣ
©Arcana

ορυκτά σε διαφορετική σύσταση και αναλογίες. Τα πλακίδια τελευταίας τεχνολογίας παρασκευάζονται από αργιλικά προϊόντα υψηλής ποιότητας, ακολουθώντας τις σύγχρονες μεθόδους πυροσυσσωμάτωσης και ψησίματος, ώστε να αποκτούν ενισχυμένη μηχανική αντοχή. Σε ειδικές περιπτώσεις ενισχύονται με πλέγμα υαλοϊνών για επιπλέον αντοχή. Σε πολλές περιπτώσεις, τα σύγχρονα κεραμικά πλακίδια, παρουσιάζουν ιδιαίτερες ιδιότητες, που επιτρέπουν την εφαρμογή τους σε κατασκευές ειδικών απαιτήσεων λόγω των πρόσμεικτων ουσιών που χρησιμοποιούνται στη σύστασή τους. Μία τέτοια κατηγορία ουσιών είναι τα ορυκτά οξείδια, τα οποία, ανάλογα με το είδος του οξειδίου που χρησιμοποιείται ως καταλύτης, αντιδρούν στην επίδραση του φωτός, ηλιακού ή τεχνητού, καταστρέφοντας οργανικούς ρύπους, όπως βακτήρια, που έρχονται σε επαφή με την επιφάνειά τους, και εξουδετερώνοντας ρύπους του αέρα. Άλλα πρόσμεικτα μπορούν να επηρεάσουν τις υδροφιλικές ιδιότητες της επιφάνειας του πλακιδίου, αναπτύσσοντας μεγαλύτερη επιφανειακή τάση, που επιτρέπει στο νερό να απομακρύνεται ταχύτερα, καθιστώντας τον καθαρισμό ευκολότερο ή ακόμη και αναπτύσσοντας αυτοκαθαριζόμενες ιδιότητες, π.χ. σε

ΤΕΧΝΙΚΕΣ ΣΕΛΙΔΕΣ 88 ΝΟΕΜΒΡΙΟΣ - ΔΕΚΕΜΒΡΙΟΣ 2022
Την τελευταία δεκαετία παρατηρείται μια δυναμική ισχυροποίηση της παρουσίας των κεραμικών πλακιδίων στον κατασκευαστικό κλάδο και μια διαρκώς αυξανόμενη προτίμηση των κατασκευαστών και των αρχιτεκτόνων σ' αυτό το προϊόν, γεγονός που ξεκίνησε από την Ισπανία και την Ιταλία, τις χώρες που παραδοσιακά ειδικεύονται στα κεραμικά πλακίδια, και υιοθετήθηκε από την παγκόσμια αγορά. Αυτή η στροφή της σύγχρονης αρχιτεκτονικής πρακτικής προς τα κεραμικά πλακίδια οφείλεται στις τεχνολογικές εξελίξεις της βιομηχανίας των κεραμικών ευρύτερα και αφορά ειδικότερα στον τρόπο παραγωγής και επεξεργασίας των κεραμικών πλακιδίων, διευρύνοντας τις προοπτικές εφαρμογής τους και ξεπερνώντας πρότερους περιορισμούς, τόσο κατασκευαστικούς, όσο και αισθητικούς. Ενισχυμένες πρώτες ύλες Οι ιδιότητες των κεραμικών πλακιδίων ποικίλλουν ανάλογα με τη σύστασή τους, τη θερμοκρασία στην οποία ψήνονται και τη διαδικασία παραγωγής τους. Αποτελούνται κατά 100% από φυσικά υλικά, όπως πηλό, άστριους, πυριτικά και 1 1. Τα κεραμικά πλακίδια μεγάλων διαστάσεων επιτρέπουν την επένδυση μεγάλων ενιαίων επιφανειών, ελαχιστοποιώντας τους αρμούς. Πηγή: Atlas Concorde.

οποίος

νήργησε διαγωνισμό για

αξι οποίησή του με χρήσεις χώρων στάθμευσης και καταστήματα στο ισόγειο. Το κτίριο τοποθετήθηκε σε επαφή με τα δύο πλαϊνά όρια του οικοπέδου αφήνοντας μικρό ακάλυπτο χώρο στην πίσω γωνία του (υλοποιώντας την υποχρεω τική απόσταση Δ = 4,90 m). Ο

κύριος ακάλυπτος χώρος δημι ουργήθηκε στο πρόσωπο της κεντρικής οδού Δημητριάδος. Η αρχική μελέτη του πρώτου επενδυτή με φέροντα οργανι σμό οπλισμένου σκυροδέμα τος πρότεινε πενταώροφο κτίριο με 5 υπόγεια χωρητικότητας 195 θέσεων στάθμευσης. Ο δεύτερος επενδυτής (μεγάλη τοπική εταιρεία μεταλλικών κατασκευών) ανέθεσε τη μελέτη με τη δέσμευση το έργο να υλο ποιηθεί με φέροντα οργανι

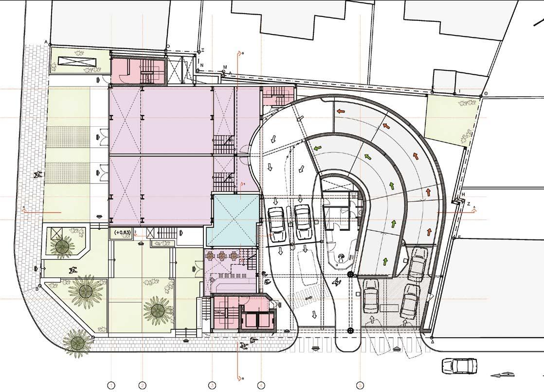
ΕΡΓΟΤΑΞΙΟ 96 ΝΟΕΜΒΡΙΟΣ - ΔΕΚΕΜΒΡΙΟΣ 2022
Το δεκαπενταώροφο κτίριο διαθέτει μεταλλικά υποστυλώματα, δοκούς και συνδέσμους, που καθορίζουν τη μορφολογία του, και σύμμεικτες πλάκες. Τα 7 υπόγεια κατασκευάστηκαν με τη μέθοδο top down λόγω της υψηλής στάθμης του υδροφόρου ορίζοντα. Σύμμεικτος σκελετός και θεμελίωση με τη μέθοδο top down ΣΕ ΚΤΙΡΙΟ ΣΤΑΘΜΕΥΣΗΣ ΑΥΤΟΚΙΝΗΤΩΝ ΣΤΟΝ ΒΟΛΟ Το κεντρικό οικόπεδο εμβαδού 1.296 m² βρίσκεται επί των οδών Φιλελλήνων και Δημητριάδος στον Δήμο Βόλου, ο
διε
την

σμό μεταλλικής κατασκευής,

ίδιο βάθος εκσκαφής και

χωρίς την αλλαγή του αρχικού

περιγράμματος, καθώς είχαν

οι περιμετρικοί

τοίχοι.

Ο μετασχηματισμός του φέρο

οργανισμού από οπλισμένο

σε

καλύτερη οργάνωση της κυκλοφορίας των οχημάτων στο εσωτερικό του σταθμού, μικρό τερες διαστάσεις των κατακόρυ φων φερόντων στοιχείων, άρα περισσότερος χώρος για άνετη και ασφαλή κίνηση των οχημά των, βελτίωση της λειτουργικότη τας αλλά και μείωση του χρόνου κατασκευής (λόγω της βιομηχα νικής παραγωγής των μεταλλι κών στοιχείων). Η είσοδος των οχημάτων στους

γίνεται

καθόδου

ΕΡΓΟΤΑΞΙΟ 97 ΝΟΕΜΒΡΙΟΣ - ΔΕΚΕΜΒΡΙΟΣ 2022
στο
κατασκευασθεί
διαφραγματικοί
ντος
σκυρόδεμα
μεταλλική κατα σκευή, λόγω των μικρών δια τομών των κατακόρυφων και οριζόντιων φερόντων στοιχείων και αντίστοιχη μείωση του μει κτού ύψους των ορόφων, έδωσε τη δυνατότητα στο ίδιο βάθος θεμελίωσης να κατασκευασθούν 7 υπόγεια και 7 υπέργειοι όρο φοι αντί των 5 και 5 αρχικά υπο λογισθέντων. Παράλληλα, λόγω της μείωσης του ύψους μειώθηκε και το ανάπτυγμα της ράμπας ανόδου - καθόδου με αντίστοιχη αύξηση του ωφέλιμου χώρου για στάθμευση. Αποτέλεσμα του μετασχηματισμού ήταν η αύξηση της χωρητικότητας από 195 σε 252 θέσεις στάθμευσης, με 5 θέσεις για Α.Μ.Ε.Α. Παράλληλα Τα μεταλλικά δομικά στοιχεία είναι εμφανή και καθορίζουν μορφολογικά το κτίριο. υπάρχει
χώρους στάθμευσης
ΚΑΤΟΨΗ ΙΣΟΓΕΙΟΥ ΤΟΜΗ από την οδό Φιλελλήνων με δύο ράμπες ανόδου -
κυκλικής μορφής. Έχει προβλε φθεί η δυνατότητα αναμονής τριών αυτοκινήτων μέσα από την οικοδομική γραμμή της οδού Φιλελλήνων (υποχρεωτικής από τη νομοθεσία), για να μην υπάρ ξει κυκλοφοριακή συμφόρηση. Το κτίριο εξυπηρετείται από δύο πυρασφαλείς κατακόρυφους κόμβους επικοινωνίας. Ο πρώ τος περιλαμβάνει το κύριο κλι μακοστάσιο και 2 ανελκυστήρες
103 ΝΟΕΜΒΡΙΟΣ - ΔΕΚΕΜΒΡΙΟΣ 2022 Μπαταρίες μπάνιου HANSGROHE GROUP Αντλίες θερμότητας ΘΕΡΜΟΓΚΑΖ Επίπεδη, βιοκλιματική πέργκολα ΓΕΡΑΚΗΣ Σύστημα υποδομής φυτεμένου δώματος LANDCO / ΠΡΑΣΙΝΗ ΣΤΕΓΗ ΕΙΔΗΣΕΙΣ // ΤΕΧΝΟΛΟΓΙΕΣ // ΥΛΙΚΑ ΤΟ ΒΗΜΑ ΤΩΝ ΕΤΑΙΡΕΙΩΝ ΠΑΡΟΥΣΙΑΣΗ: ΛΕΥΤΕΡΗΣ ΠΑΧΗΣ, ΧΡΗΣΤΟΣ ΠΑΠΑΪΩΑΝΝΟΥ

Η αποστράγγιση αποτελεί τον ασφαλέστερο τρόπο συλλογής και απο μάκρυνσης των υδάτων που συγκεντρώνονται στο έδαφος είτε από βροχοπτώσεις είτε από την άνοδο της στάθμης του υδροφόρου ορί ζοντα. Είναι απαραίτητη σε κάθε είδους θεμελίωση (όπως κτίρια ή τοι χία αντιστήριξης) για την προστασία από την υγρασία, καθώς και σε κάθε είδους καλλιέργεια (όπως κήποι και φυτεμένα δώματα). Ο καλύ τερος τρόπος αποστράγγισης είναι ο σχεδιασμός ενός συστήματος αποστράγγισης με αδρανή υλικά (χαλίκι), που βοηθούν στην καλύτερη απορροή του νερού, γεωυφάσματα, που αποτελούν πρόσθετα φίλτρα για το διαχωρισμό των στραγγιστικών στρώσεων από το περιβάλλον και διάτρητους πλαστικούς σωλήνες, ώστε να εξασφαλιστεί η σωστή συλλογή και απομάκρυνση των πλεοναζόντων υδάτων είτε σε φυσικούς αποδέκτες είτε σε δίκτυα αποχέτευσης λυμάτων ή ομβρίων. Μέσα από συνεχή έρευνα για την αποστράγγιση και διαθέτοντας την τεχνογνωσία παραγωγής πολυστρωματικών σωλήνων, η KOUVIDIS ανέπτυξε τον καινοτόμο σωλήνα αποστράγγισης τεσσάρων διαφορε τικών στρωμάτων Geodrain® Plus. Ο σωλήνας παράγεται από υψηλής πυκνότητας πολυαιθυλένιο (HDPE), διατίθεται με ακαμψία δακτυλίου SN4 και SN8 και αποτελεί ουσιαστικά την ολοκλήρωση του σωλήνα Geodrain®, που η εταιρεία διαθέτει στην αγορά από το 2014, καθώς με την προσθήκη του γεωυφάσματος αποτελεί την απόλυτη λύση για την αποστράγγιση των υδάτων. Ο διάτρητος σωλήνας Geodrain® Plus αποτελείται από τέσσερα δια φορετικά στρώματα. Το πρώτο στρώμα είναι μια εξωτερική

KOUVIDIS

αποτυπώματος των έργων.

107 ΝΟΕΜΒΡΙΟΣ - ΔΕΚΕΜΒΡΙΟΣ 2022 ΒΗΜΑ ΕΤΑΙΡΕΙΩΝ - ΤΕΧΝΟΛΟΓΙΑ Geodrain® Plus Διάτρητος 4-στρωματικός σωλήνας αποστράγγισης με ενσωματωμένο γεωύφασμα
1. Η αποστράγγιση είναι ο ασφαλέστερος τρόπος απο μάκρυνσης των υδάτων, που συγκεντρώνονται στο έδαφος από βροχοπτώσεις. 2. Σωλήνας αποστράγγισης τεσσάρων στρωμάτων Geodrain® Plus. 3. Οι σωλήνες Geodrain ® Plus συμβάλλουν στην εξοι κονόμηση χρόνου, κόστους και περιβαλλοντικού
www.kouvidis.gr • T: 2810831500 1 2 3
δακτυλιο ειδή επιφάνεια που προσφέρει ευκαμψία και υψηλή μηχανική αντοχή, το δεύτερο στρώμα είναι η εσωτερική επιφάνεια του σωλήνα, η οποία είναι λεία για την ομαλή διέλευση των υδάτων, το τρίτο στρώμα απο τελείται από 4 διαμήκεις μπλε γραμμές για τη χρωματική σήμανση των υδάτων και τέλος το τέταρτο στρώμα είναι ένα γεωύφασμα 150 gr/m², με προηγμένη τεχνολογία κόλλησης, που εγκαθίσταται περιμετρικά του σωλήνα (patent protected 1008995). Οι νέοι αποστραγγιστικοί σωλήνες Geodrain® Plus συμβάλλουν σε σημαντική εξοικονόμηση χρόνου, καθώς τουλάχιστον το 50% των εργατοωρών καταναλώνεται στο κόψιμο, άπλωμα και στην τοποθέ τηση του γεωυφάσματος. Επιπρόσθετα, με τη χρήση των σωλήνων Geodrain® Plus εξοικονομείται ποσότητα γεωυφάσματος που μπορεί να φτάσει και το 200%. Πέρα από τη μείωση του κόστους για το έργο, η σημαντικά λιγότερη ποσότητα γεωυφάσματος συμβάλλει και στη μεί ωση του περιβαλλοντικού αποτυπώματος. Χαρακτηριστικά παραδείγματα αποστράγγισης είναι η περιμετρική αποστράγγιση σε θεμελιώσεις κτιρίων, η αποστράγγιση σε δομική κατασκευή με φυτεμένο δώμα καθώς και η αποστράγγιση σε τοιχία αντιστήριξης. Οι σωλήνες Geodrain® Plus είναι επίσης κατάλληλοι για την αποστράγγιση εδάφους σε κήπους, καλλιέργειες και γήπεδα.

σχεδια σμό, η οποία ξεχωρίζει καθώς έχει τη δυνατότητα (χάρη στα προαιρετικά εξαρτήματα) να αποτελέ σει μια ολοκληρωμένη αυτόνομη κατασκευή. Στην πέργκολα μπορεί να τοποθετηθεί ένα σύστημα στερέωσης στο δάπεδο, ύψους 17,5 cm, ώστε να αντισταθμίσει τις υψομετρικές διαφορές και το οποίο μπορεί να συνδυαστεί με διαφορετικούς τύπους πατώματος. Κατόπιν παραγγελίας διατίθε ται χωρίς το πάτωμα, με δυνατότητα αποστράγγι σης του νερού της βροχής από όλες τις πλευρές. Χάρη στη μονάδα Closet μπορεί να χρησιμοποι ηθεί και ως αποθηκευτικός χώρος με απόλυτη στεγανότητα και δυνατότητα κλειδώματος. ΓΕΡΑΚΗΣ, Τ: 2373024704, www.tentesgerakis.gr

πρόσφυση και παρέχει υψηλή αδιαβροχοποί ηση, προστατεύοντας από τη διάβρωση του οπλισμού του σκυροδέματος. Παρουσιάζει μεγάλη αντοχή στα αλκάλια και εξαιρετική αντοχή στις καιρικές συνθήκες. Έχει μεγάλη καλυπτικότητα,

και δουλεύεται

Τ: 2105538700, www.vivechrom.gr

Αντλίες θερμότητας aroTHERM plus VWL/6 H αντλία θερμότητας αέρα νερού της Vaillant με το νέο ψυκτικό μέσο R290 διαθέτει πολύ χαμηλό συντελεστή GWP= 3, ενώ έχει τη δυνατότητα λειτουργίας σε πολύ υψηλές θερμο κρασίες έως και 75°C στη θέρμανση, αλλά και δυνατότητα λειτουργίας στην ψύξη με εξωτερι κές θερμοκρασίες έως 46°C. Χαρακτηρίζονται από την πολύ υψηλή τους ενεργειακή απόδοση Α+++ στους 35°C, την εξαιρετικά χαμηλή τους στάθμη θορύβου σ’ όλο το φάσμα λειτουργίας τους και την αξεπέραστη ποιότητα κατασκευής τους. Συνδυάζονται με ολοκληρωμένες εσωτερι κές μονάδες, με ή χωρίς ενσωματωμένο δοχείο ζεστού νερού χρήσης. ΘΕΡΜΟΓΚΑΖ, Τ: 2106665552, www.thermogas.gr

2114115050, www.salinox.gr

του εντατικού τύπου περιλαμβάνει τη ριζοαπωθητική μεμβράνη FLW-1000, τη μεμβράνη προστασίας και συγκρά τησης υγρασίας VLS-500, το αποστραγγιστικό δί κτυο DiaDrain-60H, το διηθητικό φύλλο VLF-200, το ελαφρύ φυτικό υπόστρωμα τύπου SRM πάχους 0,15-1,00 m. Η μεγάλη αντοχή του diadrain-60H επιτρέπει την υποστήριξη διαδρόμων κίνησης, κυκλοφορίας οχημάτων, παιδότοπων

110 ΝΟΕΜΒΡΙΟΣ - ΔΕΚΕΜΒΡΙΟΣ 2022 Μπαταρίες μπάνιου VERNIS Σειρά μπαταριών μπάνιου για τον νεροχύτη, την ντουζιέρα και την μπανιέρα. Ο αρμονικός σχεδιασμός της μπαταρίας Vernis Blend με τις καμπύλες της είναι μοντέρνος και κομψός. Χάρη στην τεχνολογία ComfortZone παρέχει άφθο νο χώρο μεταξύ του νεροχύτη και της βρύσης για λιγότερες πιτσιλιές νερού. Ταυτόχρονα, η τε χνολογία Airpower αναμειγνύει αέρα στο νερό για έναν απαλό πίδακα νερού χωρίς πιτσίλισμα και πλήρη ρίψη ντους. Επιπλέον με τη φιλική προς το περιβάλλον τεχνολογία EcoSmart, εξα σφαλίζεται εξοικονόμηση νερού και ενέργειας. Μέρος της σειράς των προϊόντων διατίθεται και με μοντέρνο μαύρο ματ φινίρισμα. HANSGROHE GROUP, www.hansgrohe.gr ΒΗΜΑ ΕΤΑΙΡΕΙΩΝ - ΥΛΙΚΑ Σύστημα υποδομής φυτεμένου δώματος DIADEM - 750 Ο εντατικός τύπος Diadem-750 επιλέγεται σε φυ τεμένα δώματα, στα οποία η βλάστηση μπορεί να ποικίλλει από χαμηλά φυτά μέχρι μεγάλα δέντρα, δημιουργώντας έναν κήπο επάνω από το κτίριο, ο οποίος απαιτεί τακτική συντήρηση (άρδευση, λίπανση κ.ά.). Η διαστρωμάτωση
κ.ά. LANDCO / ΠΡΑΣΙΝΗ ΣΤΕΓΗ, Τ: 2102515005, www.prasinistegi.gr Ακρυλικό τσιμεντόχρωμα νερού για τοίχους BETOCHROM ΝΕΡΟΥ Το Betochrom νερού εφαρμόζεται σε εξωτε ρικές και εσωτερικές επιφάνειες από εμφανές σκυρόδεμα, επίχρισμα, τούβλα. Έχει ισχυρή
πολύ υψηλή απόδοση
πολύ εύκολα. Vivechrom,
Γυάλινη κινητή οροφή με θερμοδιακοπή T-SR Η γυάλινη κινητή οροφή Τ-SR χρησιμοποιείται σε χώρους που είναι επιθυμητή η είσοδος φυσικού φωτός και αέρα μέσω της οροφής και έχουν επιπλέον απαιτήσεις βιοκλιματικού αρχι τεκτονικού σχεδιασμού. Χάρη στον ηλεκτρο κίνητο μηχανισμό που διαθέτει τα κινητά μέρη του συστήματος με το πάτημα ενός κουμπιού σύρονται και "σταθμεύουν" κάτω από το στα θερό μέρος. Το T-SR αποτελείται από διπλούς structural υαλοπίνακες και σκελετό αλουμινίου με θερμοδιακοπή. SALINOX, Τ:
Επίπεδη, βιοκλιματική πέργκολα IMAGO Επίπεδη βιοκλιματική πέργκολα από στοιχεία αλουμινίου, με απλό και εκλεπτυσμένο

Turn static files into dynamic content formats.

Create a flipbook
Issuu converts static files into: digital portfolios, online yearbooks, online catalogs, digital photo albums and more. Sign up and create your flipbook.