Kristabel Chung's Architecture Portfolio

Page 1


KRISTABEL CHUNG

Architecture Portfolio

“The Paradox of the Individual”, Acrylic, 35.5” x 48”

Selected Works

Higher Education Renovation and AdditionArchitecture Research Office

Spatial Practice of Migrant Domestic Worker Accommodations in Hong Kong Speculative Lab Fit-out - Perkins&Will

C2 Volpe - MITIMCo

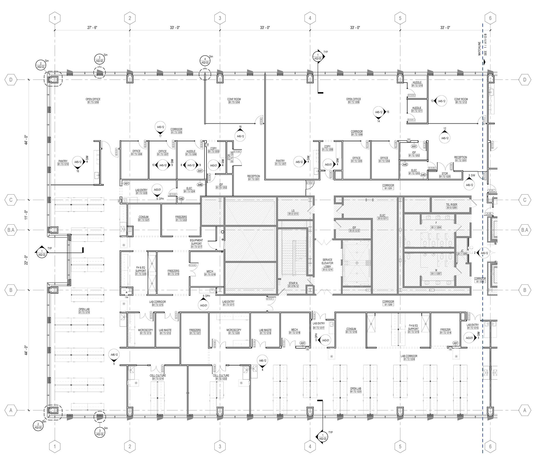
Core & Shell Science Commercial Building

Cambridge, MA | 2022

Perkins&Will, Schmidt Hammer Lassen, Studio Luz

Status: DD | 585,600 GSF | 315 Feet | 18 Levels

Responsibilities: SD, DD Sets, Core and Ground Floor Development, Test Fits, Comparative Analysis, BOMA, GFA, Sections

MIT seeks to develop a vibrant mixed-use center in Kendall Square by taking advantage of the unique opportunity to redevelop the Volpe parcel. The Institute plans to build upon the Cambridge community’s comprehensive urban planning and visioning initiatives to create a plan that enhances the neighborhood with new open spaces, pedestrian pathways, housing, retail options, and spaces for science and innovation.

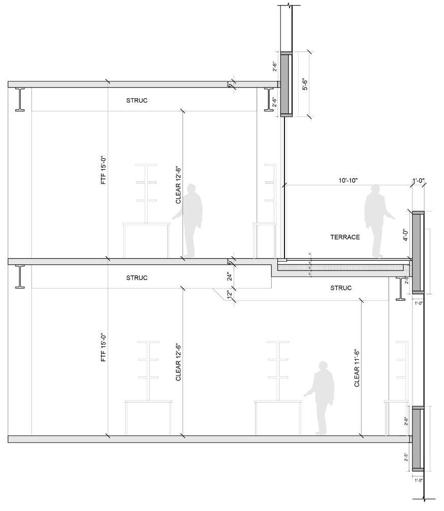
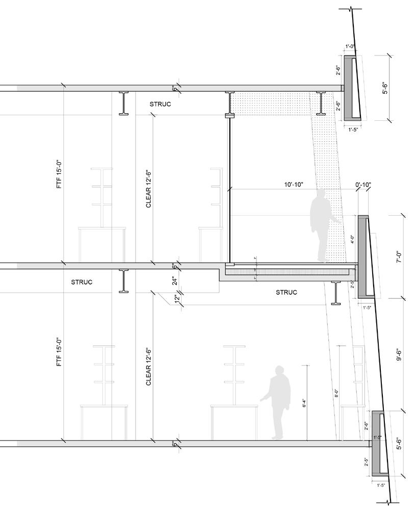
Steps - Massing

Steps - Terrace Section

Taper - Massing
Taper - Terrace Section

Comparative Analysis of Surrounding Buildings

Unique Program in Both C1 and C3 (Not C2)

Unique Program in Each Building

Same Program but Different Location

Same Program but Different Size Same Program, Size and Location

C3
C2
C1

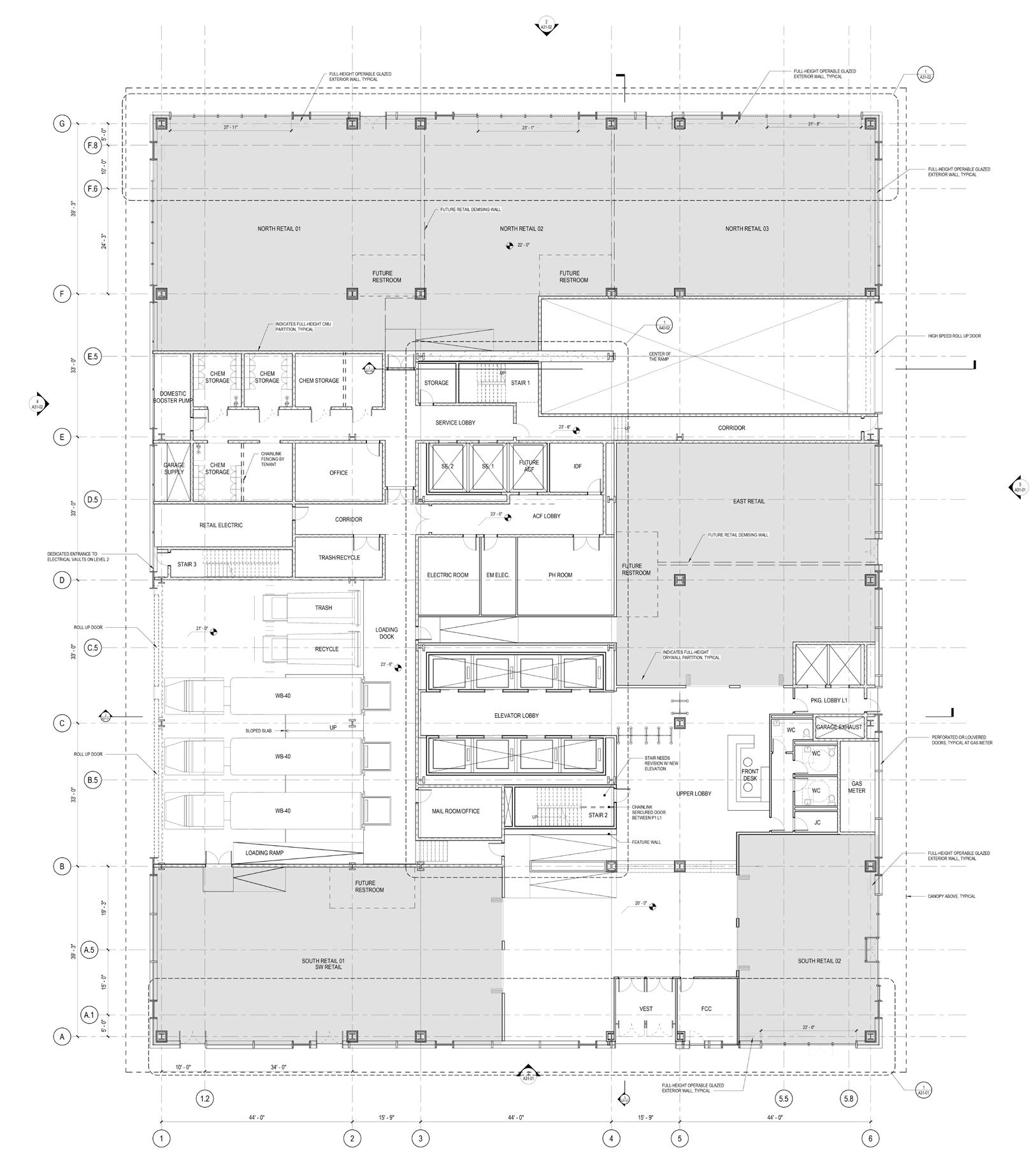
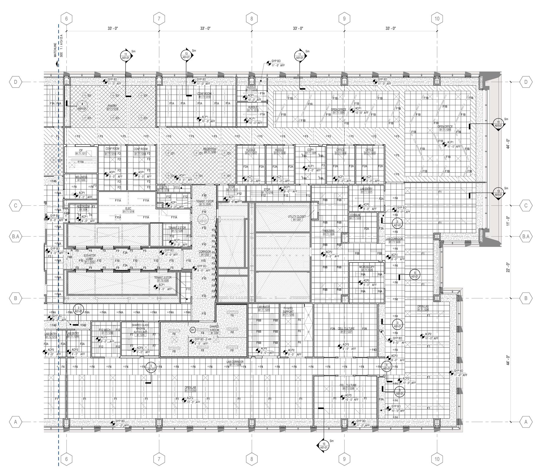
Assembly Row - BioMed Realty

Speculative Lab Fit-out

Sommerville, MA | 2023

Perkins&Will

Status: DD | 107,400 GSF | 3 Levels

Responsibilities: SD, DD Sets, Fit Out Designs, Plans, RCPs, Elevations, Details, Meeting Minutes, Presentation Materials

This project features three distinct floors with flexible lab fit-outs. The 10th floor accommodates one tenant, the 11th floor hosts two, and the 12th floor is designed for three, with 60% of the space dedicated to labs and 40% to offices. Special amenities like H-Rooms and Glass Wash/Autoclaves enhance its market appeal, while BioMed Realty, provides solutions for the life sciences and technology sectors within the Assembly Row A project in Somerville, MA.

11th Floor - 2 Tenants
10th Floor - 1 Tenant
Enlarged Floor Plan
Enlarged Reflected Ceiling Plan

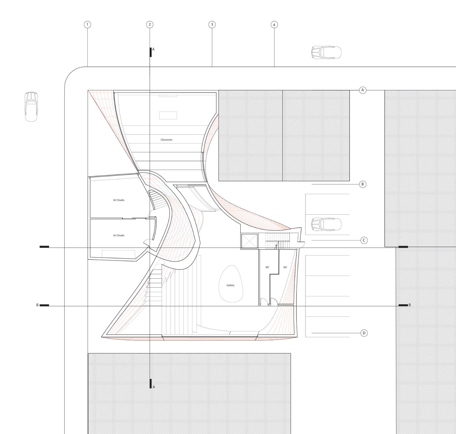
West Commons - Harvard Medical School

Higher Education Renovation and Addition

Boston, MA | 2024

Architecture Research Office (ARO)

Status: CD | 30,000 GSF | 69 Feet | 5 Levels

Responsibilities: DD, CD and Accessibility Sets, Facade Design, Model Making, Schedules, Surveys, Presentation Materials, Renders

The new West Commons is a collaborative gathering space for Harvard Medical School, situated within the historic 1906 campus context. The atrium encloses a 7,000 SF courtyard to connect researchers across three buildings. The design aims to rework the existing internally focused research space into a more collaborative working environment for researchers and students alike.

Sectional Perspective of Project
Parti and Study Model
South Facade 50% Glazing Option
North Facade 100% Glazing Option
Facade Axon Detail

Stored Labor

SOURCE Grant Recipient

Collaboration: Mission for Migrant Workers

Faculty Advisor: Prof. Lawrence Chua, Prof. Lawrence

This project looks at domestic labor laws and “spatial practices” (De Certeau, 1984) in Hong Kong and their impact on the design of private housing developments. While most studies of gendered space tend to use US and European domestic models, this study offers an alternative understanding of gender relations, rooted in an urban, post‐colonial context in Asia. Quantitative survey of 200 participants and in-person interviews developed design solutions for this condition.

Super Jury Britton Memorial Prize Winner
Davis
Spatial Practice of Migrant Domestic Worker Accommodations
Spring 2022 | Hong Kong, SAR

Accommodation Remodeled

Highlighted in red, Original in Yellow

Accommodation Remodeled

Highlighted in red, Original in Yellow

Axon of Accommodation
Axon of Accommodation
Cast of Wall to Ceiling Cracks due to Humidity from Laundry
Cast of Window Sill used for Hooking Ipad when Ironing Clothes
Social Logic Diagram of Drawn Floor Plans
Design Solution - Laundry Rack as Lock

Intersection of the Street and Cross Programing

Maker Space Design Proposal

Chattanooga, TN | Fall 2018

Professor: Molly Hunker Independent Project

Many abandoned or neglected sites in Chattanooga are being re-purposed to foster a creative and youthful environment. The city’s crosswalks and intersections provide space for pedestrians to appreciate its details, highlighted by Chattanooga logo banners that reinforce its image. These intersections serve as major resting areas, facilitating collaboration among the diverse programs surrounding them.

Graphic Narrative of Design Program and Form Diagram
Study Model
Final Model
Section AA

Labor Stories

Responsibilities: Design, Sections, Elevations,

Labor Stories reevaluates the social hierarchy between the architect, construction laborers, and the intended occupants of a contemporary dance theater. The modes of material construction integrates these characters within the same labor force to project new ideas of authorship. Learning from textile weaving, this project proposes a building experience hinging on social engagement with the goal of a greater sense of empowerment within their collectively crafted spaces.

Jacob’s Pillow Doris Duke Theatre Proposal
1st Place in Process III & King + King Nominee Partner: Alaina Marra | Professor: Roger Hubeli
Plans, Model Making, Details, Axons Becket, MA | Spring 2021
Bleed (Above) Undersweet (Below)
Terre O’ Connor Dances: Bleed (Above) Undersweet (Below)
Weaving on Facade and Stairs to Create Mold for Cast
Draped
Axon Detail
Facade Concrete Pillow Detail
Structural Axon
Facade Detail
Elevation
Section AA

Fabulous Fictions - Perry Kulper Workshop

Partner: Luis Lopez | Fall 2021

De-Mark

- Ifeoma Ebo and Nathan Williams Visiting Studio

Partner: Alex Michel | Fall 2020

Beyond the Surface - Stephanie Lin Workshop

(Top Left Page) The two images explore the acts of surveillance in the public and domestic realm. The multiple scales and objects show how little privacy subjects will have over their space. The varying use of screens and cameras is a direct symbolism of surveillance, however, the scaling of figures amplifies this act.

(Bottom Left Page) This studio investigates the past, current and future conditions of the 15th ward in Syracuse, NY. Even though Pioneer Homes is not fenced off, the blocks around the Homes actively guard or turn their backs against it. The drawing shows the four sides wrapped either through fencing or the looming buildings themselves. This disrupts members to conveniently access potential public spaces or useful facilities, leaving them in a health and resource-deprived community.

(Current page) This piece is part of the Stephanie Lin Beyond the Surface Workshop exhibition held in the Slocum atrium in Syracuse University. Each participant selects a corner as the site for a digitally fabricated world. Views are created into a two dimensional drawing, where they are printed and displayed as a three-dimensional spatial installation on chosen corners as “windows”. This piece attempts to appropriate the program and material of the Slocum Hall Atrium and the studio behind it. As the marbling from the right gets larger and plastic wrap covers the marble surface along with the warm light, the marble turns from rich to rotten. Furthermore, the printed view attempts to show the view from a 5’2” person standing by the door.

Abstracted Chess Board Set

Drawings for Chess Pieces
Chess Board Chess Board
Mentor: John Bryant | Spring 2022

Jewelry and Metal-smithing

Fall 2020 - Spring 2022

“Vex” - This piece stands in for the emotions I would like to express that often gets buried. Its raw surface is left untouched on the top to pay homage to the rock’s beginning, while the cut in the center resembles the joint of my finger. When worn as a pendant, its aggressive nature is gone and becomes a calmer object resembling a crystal pendant.

“Ouch!?!”- A three-scale C-clamp series reveal spots on the body with low nerve endings. When these pieces are worn on the designated body parts it is painless to pinch but so painful to bend. The form of the jewelry echoes the thick and melting form when the body is pinched. This set speaks to jewelry as ornamentation and instrument by stifling the body’s movement physically and measuring the amount of skin with low pain receptors, respectively.

Email: kristabelchung@gmail.com

Phone: (619) 808 7539

Turn static files into dynamic content formats.

Create a flipbook
Issuu converts static files into: digital portfolios, online yearbooks, online catalogs, digital photo albums and more. Sign up and create your flipbook.