







• Estimated energy costs were calculated based on
• Carbon footprint is based only on estimated home energy use.
• This report is valid for eight years from the assessment date. A free reprint of the report is available from us.greenbuildingregistry.com with updated utility and carbon information annually.
• This report meets Oregon’s Home Energy Performance Score Standard.
TACKLE ENERGY WASTE TODAY!
Enjoy the rewards of a comfortable, energy efficient home that saves you money.
□ Get your home energy assessment. Done! ✓
□ Choose energy improvements from the list of recommendations below.
□ Select a contractor (or two, for comparison) and obtain bids. Check with your local utility for a list. of contractors in your area
□ Learn more about Bend’s Home Energy Score Program at: www.bendoregon.gov/city-projects/ community-priorities/sustainability/energy/home-energy-score
□ Check out available incentives through your utility provider at the City’s website provided above.
L I S T K I T



OWNERSHIPINFORMATION
Customer Service Department
541 382 4201
cs deschutes or@firstam com 02/12/2026
Owner:Longwell, Paul S
CoOwner:Longwell, Linda M
Site:20977 Desert Woods Dr Bend OR 97702
Mail:20977 Desert Woods Dr Bend OR 97702
PROPERTYDESCRIPTION
Map Grid:181210--B-02200
CensusTract:001904 Block: 2008
Neighborhood:7 - Old Farm District School Dist:1 Bend-LapineAdmin
ImprType:
Subdiv/Plat:Desert Woods
Land Use:101 - Residential - Improved (typical of class)
Std Land Use:1001 - Single Family Residential
Zoning:Deschutes-RL- Low Density Residential
Lat/Lon:44 029972 / -121 274979
Watershed:McKenzie Canyon-Deschutes River
Legal:DESERTWOODS Lot: 6 Block: 7
Bedrooms:3
Baths,Total:2
Baths, Full:2
Baths, Half:0
Total Units:1
# Stories:1
# Fireplaces:1
Cooling:
Heating:Electric
Building Style:
Parcel #:120882
Ref Parcel #:181210BD02200
TRS:18S / 12E / 10 / NW
County:Deschutes
ASSESSMENTAND TAXATION
Market Land:$313,660 00
Market Impr:$384,720 00
MarketTotal:$698,380 00 (2025)
% Improved:55 00%
AssessedTotal:$206,930 00 (2025)
Levy Code:1-001
Tax:$3,496 37 (2025)
Millage Rate:16 7435
Exemption:$0 00
ExemptionType:
MAIN PROPERTYCHARACTERISTICS
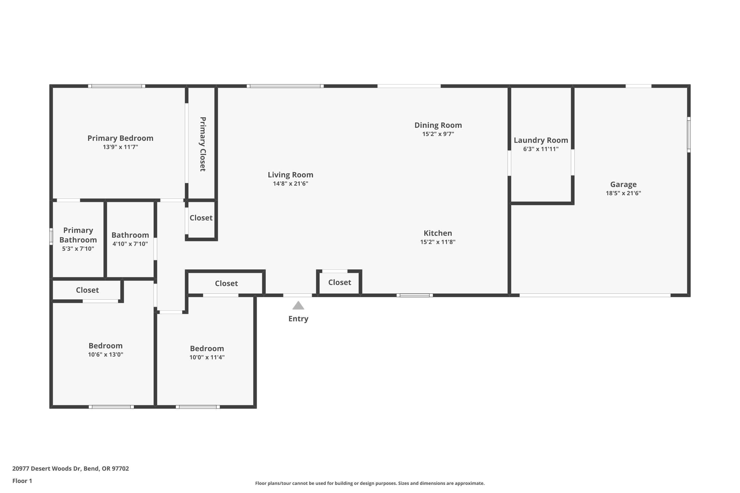
Total SqFt:1,382 SqFt
First Floor:1,382 SqFt
Second Floor:0 SqFt
Basement Fin:0 SqFt
Basement Unfin:0 SqFt
BasementTotal:0 SqFt
Attic Fin:0 SqFt
Attic Unfin:0 SqFt
AtticTotal:0 SqFt
Garage:334 SqFt
IMPROVEMENT: 99104
Year Built:1977
Bedrooms:3
BathTotal:2
Garage SqFt:334
Basement Unfin SqFt:0
Basement Fin SqFt:0
Floor Dsc:
Total SqFt:1,382
Finished SqFt:1,382
1st Floor SqFt:1,382
2nd Floor SqFt:0
Attic Fin SqFt:0
Attic Unin SqFt:0
Year Built:1977
EffYear Built:
Lot SizeAc:0 51Acres
Lot Size SF:22,216 SqFt
Lot Width:0
Lot Depth:0
Roof Material:Composition Shingle
Roof Shape:Gable
Ext Walls:15 - Other
ConstType:
PARCELID: 120882
Condition:
Unfinished SqFt:0
Carport SqFt:0
HeatType:
Ext Wall:
Foundation:
SALESAND LOAN INFORMATION
PAULS LONGWELL 05/27/2022 21729 $98,000 00 Transfer on Death Deed Conv/Unk
PAULS LONGWELL 05/31/2016 20983 StandAlone Mortgage $239,200 00 New Conv
PAULS LONGWELL 05/31/2016 20984 StandAlone Mortgage $18,000 00 Credit Line/HELOC
PAULS LONGWELL 12/10/2014 41475
00 Warranty Deed $254,308 00 FHA
NTC DESERTWOODS LLC 06/30/2014 21118 Assignment Deed (or Condo Deed if Land Use = "CND") Conv/Unk
NTC DESERTWOODS LLC 06/26/2014 20629 $86,600 00 Sheriff’s Deed
WILLIAM R PEACOCK 06/04/2013 23014 Intrafamily Transfer & Dissolution
Sentry Dynamics, Inc and its customers make no representations, warranties or conditions, express or implied, as to the accuracy or completeness of information contained in this report


Parcel ID: 120882
SiteAddress: 20977 Desert Woods Dr
Sentry Dynamics, Inc and its customers make no representations, warranties or conditions, express or implied, as to the accuracy or completeness of information contained in this report






























