BUILDING ARTS OTHER WORKS
"TIME MACHINE"
“SCALAE”
“SPIRALIS INCREMENTUM”
“PRISMIRROR”
“PARASITE”
“THE ARK HUB”
“TEXERE”
“REVELATIO”
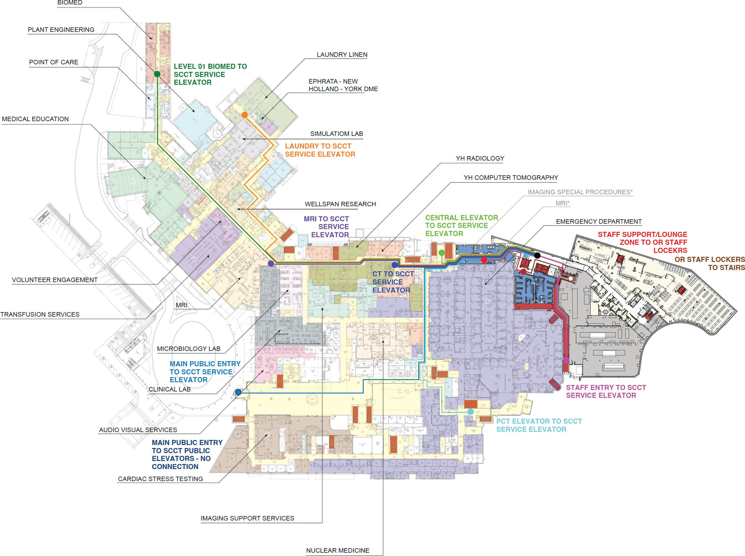
The Ark Hub in Buffalo, NY, embodies the city's resilience. Located on Erie Basin Marina, its design evokes boats, paying homage to Buffalo's renowned waterfront heritage. Built to withstand harsh winterstorms, it offers a welcoming space for all. A pedestrian bridge connects it to the urban contexts, acting as both an access point and a scenic promenade. The elevated entrance prevents snow blockage, ensuring accessibility year-round. Inside, the Hub fosters community engagement and provides a vibrant gathering place.

















The Ark Hub's distinctive building skin is an integrated system of GFRC-MU (glass fibre reinforced concrete-masonry unit) and tension wire network, inspired by enduring masonry arches that last for centuries. The shape and arrangement of these customised bricks, determined through mesh topology studies, ensure even load distribution. Interlocking mechanisms and tension wires woven through the brick matrix further enhance structural integrity, "knitting" the building together to withstand extreme weather.




The innovative bricks are crafted from a unique assembly of GFRC (glass fibre reinforced concrete) and PCM (phase change material). By adjusting the amount of glass fibre, the bricks allow varying degrees of daylight to filter through, creating a dynamic interior. The PCM embedded within the bricks provides remarkable thermal insulation, while it also helps melt accumulated snow on the roof, preventing excessive snow loads without significantly impacting the building's internal temperature.
The Ark Hub is designed not only for humans but also for the environment.
Beneath its waterfront deck, a modular "porcupine crib" matrix mimics natural habitats, providing shelter and breeding grounds for fish. This helps restore the ecological balance of the river's mudflats, crucial for biodiversity. Above the waterline, the building itself acts as a habitat island, offering a resting spot for migratory birds.
The Ark Hub prioritises accessibility even in the harshest weather. Its service core, housing a centralised MEPH (mechanical, electrical, plumbing, and heating) system, is strategically located near the plaza. This ensures easy access for maintenance and efficient operation of the building's essential services, regardless of snow accumulation.
The entrance lobby is a breathtaking double-height space that seamlessly blends a tribute to Buffalo's boat culture with the warmth of a community centre. Sunlight streams through the expansive glazed walls, illuminating a dramatic boat sculpture that commands attention. Above, the ceiling is supported by a network of sail-like mullions, creating a sense of airy lightness and echoing the nautical theme. This vibrant space acts as the building's central hub, connecting all its various functions and welcoming visitors arriving from the surrounding neighbourhood, the elevated pedestrian bridge, or the waterfront. This dynamic space acts as a central gathering point, easily accessible to visitors arriving from the surrounding neighborhood, the elevated pedestrian bridge, or the waterfront, accommodating various modes of transportation.
To maximise pedestrian comfort even in Buffalo's harshest winter weather, The Ark Hub's design strategically directs wind flow. Informed by careful wind study and aerodynamic simulation, the building's shape minimises gusts around key areas like the entrance plaza, elevated promenade, and other gathering spaces, ensuring a pleasant experience for visitors.
Texere, a vibrant library complex in the heart of Washington, DC's Judiciary Square, is designed to be a dynamic hub for the city's diverse community. More than just a conventional library, Texere embraces the concept of "interweaving"—of ideas, cultures, and people. The space is conceived as an interactive archive that encourages communication and collaboration, breaking the mold of the typical, quiet reading room. Its architectural design fosters a sense of community, inviting visitors to explore, connect, and engage with the rich tapestry of knowledge and perspectives within.





The two main volumes, formed by lofting squares that echo the site boundaries, intersect to create a dramatic negative space used for vertical circulation. This central void, illuminated by a translucent building skin, becomes a focal point where the edges of the masses and the circulation paths visually intertwine. This striking architectural feature not only facilitates movement within the building but also embodies the library's core theme of interconnectedness.
Texere's interior is designed for seamless flow and interaction. The three-level library space is carved from a single volume, creating a continuous landscape. Library areas in both volumes are connected on each level, their paths interwoven with diagonal stairs, escalators, and lifts. This dynamic layout encourages exploration and chance encounters, fostering a sense of community.
Texere's striking form is enabled by an exoskeleton framing system. This allows for open, flexible interiors and visually reinforces the theme of interweaving with its dynamic interplay of lines and angles. The exposed framework mirrors the convergence of ideas within, blurring the boundaries between inside and outside.
The digital-patterned glazing façade allows daylight to penetrate into the building while eliminating excessive glare and heat gain. The aluminium weaving grilles serve as aesthetic components that spot the design theme and help consolidate the steel skeleton framing structure as well.
Based on the sun path study, the ETFE (ethylene tetrafluoroethylene) foils are installed in a certain orientation on the roof to reflect, diffuse, and filter the direct sunlight to provide even and soft ambient daylight to the penthouse open offices.
In Tibetan Buddhist cosmology, squares symbolise the earth, anchored by Mount Meru, while circles represent the universe, embodying wisdom and divinity. The gradual shift from square to circle, centred around the existing Stupa, reflects the journey towards enlightenment. The sixteen layers honor the Sixteen Arhats, disciples of Buddha Shakyamuni, entrusted with safeguarding and spreading the Dharma. This symbolism reinforces the monastery's role as a sanctuary for spiritual learning.
The three-dimensional rotation of the arrayed shapes creates a unique spatial experience. A circular opening frames a breathtaking view of Mount Everest, illuminating the Main Shrine and Grand Buddha Statue. This arrangement also fosters a sense of humility and introspection in a semisubterranean space, echoing Buddhist principles.
These abstract shapes rise into solid forms, shallow at the center and deeper at the edges, symbolising the Buddhist practice of spreading the Dharma from the few elites to the mass beings. The building embraces the topography, creating a dramatic entrance that resembles a lifted silk scarf, revealing the treasures within. A grand staircase leads visitors upwards towards the Main Shrine and Stupa, mirroring the ascent towards enlightenment. This architectural journey encourages both physical and spiritual exploration.
Nestled amidst the awe-inspiring Himalayan landscape, Rongbuk Monastery stands as a beacon of Tibetan Buddhist tradition. Home to the Nyingma sect, the oldest lineage in Tibetan Buddhism, the monastery holds a profound connection to the practice of revealing "hidden spiritual treasures," or Terma. This new design for Rongbuk Monastery draws inspiration from the rich symbolism of Tibetan cosmology and the imagery of a silk scarf, delicately concealing sacred scriptures, to create a space that embodies both the physical and spiritual journey of discovery and enlightenment.
The Artscape breathes new life into an urban corner in a tranquil residential neighbourhood in the East Boston peninsula, transforming it into a vibrant cultural hub. The design seamlessly integrates an existing two-story house and an abandoned blacksmith workshop with the surrounding environment to create a captivating gallery experience.
Three distinct spaces form the heart of the project:
• The white box gallery: A pristine setting for showcasing professional artwork.
• The linear gallery: A dynamic space for art-related events, performances, and community engagement.
• The social hub: An inviting semi-roofed recessed garden, preserving an existing tree as its centerpiece, transforming the original outdoor area into a welcoming social space.
Together, these elements bridge the gap between professional and community-driven cultural experiences. The design incorporates varied floor heights to accommodate diverse art forms, from traditional paintings to large-scale installations, encouraging dynamic interactions between art and audience.
Inspired by Sean Canty's Double Dutch ADU, the spatial arrangement prioritises orientation and connection. Walls, roofs, and level changes subtly split or merge at certain angles and tangent points, creating a harmonious flow. Strategically placed openings invite natural light to dance within the space, highlighting the continuous roofline that stretches across the site, unifying the design.
An extended wall seamlessly connects the gallery with the sidewalk, drawing in residents and visitors alike. Inside, a rhythmic flow guides exploration through the galleries, culminating in the lively central garden plaza. This project reimagines the urban corner, creating a dynamic space where art, community, and environment intertwine.
Site Depiction
Case Study: Double Dutch ADU by Sean Canty Floor Plan
White Box Gallery Social Hub
Entry
Linear Gallery
“TERMINUS” This building is a monument of a massive and heartbreaking slave auction, known as the Weeping Time, that took place at the Ten Broeck Race Course not far from the site in Savannah, GA, in 1859. The design reflects the two images that have been most significant to the enslaved African Americans and their descendants today, which are the song Roll, Jordan, Roll and the “Underground Railroad.” Having Terminus as its name and inspired by the curled paper loop trapped in a box, the experience of using this building is like a journey of breaking the boundary. To avoid making commemoration mere formality, this building also serves as a communal centre for the black community in West Savannah, providing threshold-free workshops for after-school or after-work educational activities, venues for traditional cultural events, and a new sacred space taking the place of the dated building of the Solomon Temple Church of God in Christ a few blocks away. From a technical point of view, the project also explores the use of ETFE cushions and irregular column grid.














The building’s design strategically utilises an ETFE layer to mimic the River Jordan’s water, employing two ETFE cushion arrays of varying transparencies to optimise daylight. This approach ensures sufficient illumination within the two atriums while softening the ambient light for the rooftop landscape, effectively preventing excessive indoor heat gain; the border where these arrays meet, in conjunction with the rooftop landscape contours and atrium opening curves, completes the visual composition of trapped loops. Furthermore, the unconventional, asymmetrical steel framing serves a dual purpose, functioning both as a load-bearing structural system and as an aesthetic representation of the dynamic ripples of the River Jordan, with rotated girders and beams adapting to the floor plan layout, all intended to be exposed with simple finishes.

The Astor Tower, a slender high-rise nestled in a Chicago residential neighbourhood, presented a unique challenge: fostering community within a building typology known for its emphasis on individual units. This adaptive reuse project, Astor Vertical Park, seeks to transform the tower into a vibrant hub of community and culture, addressing the disconnect often found in such structures.
Recognising the neighbourhood's abundance of residential space and scarcity of communal areas, the project reimagines individual units as flexible spaces for cultural programming and community interaction. By drawing inspiration from the tower's verticality, the design visually and physically connects these spaces, creating a dynamic flow that extends upwards.
Astor Vertical Park envisions a spiral of activity "growing" from the streetscape into the sky, intertwining the tower with its surroundings. Architectural porosity, integrated vertical landscapes, and a diverse range of activities transform the tower into an "urban living room," fostering dialogue between residents and the neighbourhood. Like a green lung, the vertical park breathes life into the city, cooling and purifying the air.
More than just a space for activities, the new Astor Vertical Park becomes a symbol of social and environmental responsibility. This adaptable and resilient urban model catalyses community activation and regeneration, establishing the vertical park as a true focal point within the city.
Rhino, Twinmotion
+ 1)]
“THE
EIGHT”
points = [
curves = [
for v in v range:
| INSTR HESHAM SHAWQY + INSTR JAMES M c BENNETT
row = ] for u n u range:
x math.sin(u - v) * math.cos(u + v)
y math.sin(a * u) * math.sin(v z math.cos(u + b)
Rhino, Grasshopper, Python Programming
po nt = rg.Point3d(20 * x, 20 * , 20 * z)
ro .append(point)
curve rg.Curve.CreateInterpolatedC rve(row, 3) curves append(curve) points append(row)
flat point = [pt for row in points for t in row]
surface = g NurbsSurface CreateFromPoin s(flat points,count + 1, count + 1, 3, 3)
REFITTI G PANELS
CASE STUDY: WATERMOON MONASTERY
ARCHITECTURAL MODEL
2019 | SCAD INDS FORM, SPACE, AND ORDER | PROF RODRIGO BUELVAS
Completed in 2012, the Water-Moon Monastery is a serene sanctuary nestled within the verdant slopes of Dharma Drum Mountain in Taipei, Taiwan. Designed by renowned Taiwanese architect Kris Yao, this modern Zen temple seamlessly blends contemporary architectural principles with the timeless essence of Buddhist tradition.
This case study investigates the principles of "form, space, and order" through a meticulously crafted physical model. Constructed from wood cylinders and paper boards of varying thicknesses, the model employs a diverse colour palette achieved through the application of markers. This project represents a collaborative endeavour with Tiffany Wai-Ying Wong, whose artistic expertise was instrumental in the realisation of the model's visual aesthetic.
CASE STUDY: FACTOR WALK
SKETCHES + BAS-RELIEF MODELS
2021 | SCAD ARCH FUNDAMENTAL STUDIO III | PROF JULIE
ROGERS VARLAND
Factors Walk, perched on the bluff above Savannah's River Street, is a historic walkway with 19thcentury origins. These elevated paths and bridges once allowed "cotton factors" to access their offices and warehouses, playing a vital role in the city's cotton trade. Today, Factors Walk retains its charm, offering a unique blend of history and modern-day attractions. Cobblestone paths lead to a delightful collection of shops, cafes, and hotels, inviting visitors to experience Savannah's rich heritage.
This case study explores Savannah's historic Factors Walk through a captivating virtual tour. Five distinct scenes, each representing a key spatial element, bring the walkway's story to life. The experience combines evocative sketches and detailed bas-relief models to create a rich and immersive journey through time, showcasing the unique character and architectural heritage of this iconic Savannah landmark.
Handsketch, Handcrafts
AutoCAD, Laser Cutting, Handcrafts
•
•
•
•
•
•
•
•
•
•
•
•
•
•
•
•
Skip
Feasibility Study
Diagrams / Illustrator, InDesign
Rendering / Revit, Enscape
Materiality + Experience Diagram / Rhino, Photoshop
Baseball Trajectory Study / Rhinoceros + Grasshopper
“TIME MACHINE”
PHOTOGRAPHY 2018
The National Taichung Theatre is a stunning opera house designed by Pritzker-recognised Toyo Ito in collaboration with Cecil Balmond at Arup AGU. The building is curved with beautiful lines sculpting both the exterior and the interior. The finishing touch is the installation suspended from the ceiling of the atrium. It is a pendant light, a clock, and at the same time, a Sōmatō (trotting horse lantern). The revolving shadow casts on the light that washes down the wall, putting people in a contradictory universe between the stillness and flow of time.
Fujifilm GFX 50S Mirrorless Camera, Fujinon GF23mm f/4 R LM WR Lens, Capture One
FURNITURE DESIGN
2021 | SCAD FURN MATERIALS AND TECHNIQUES I | PROF AARON HEISLER
The Scalae table draws inspiration from the graduated arrangement of keys on musical instruments. Crafted from a single piece of poplar lumber, its design evokes a series of wooden blocks ascending in height, creating a visually dynamic and harmonious form.
Rhino, Woodworking
“SCALAE”
“ SPIRALIS INCREMENTUM”
LIGHTING FIXTURE DESIGN
2022 | SCAD FURN ELECTRONIC DESIGN AND VISUALISATION | PROF SHEILA EDWARDS
This lamp, also functioning as a vase, celebrates the beauty of spiral growth found throughout nature – in plants, cells, and even nanocrystals.
Its design echoes this organic yet structured pattern, creating a captivating object that seamlessly blends artistry and functionality.
Rhino, Grasshopper, SolidWorks, KeyShot, Laser Cutting, CNC Machining, 3D Printing (PolyJet + FDM)
“PRISMIRROR”
ILLUMINATING INSTALLATION ART
| SCAD DSGN 3D FORM IN SPACE
PROF MEREDITH LEAR
Prismirror is a captivating installation that seamlessly blends art and technology. Constructed from an array of acrylic singlesided mirrors and a fibre optic light source, it transforms from a crystalline sculpture when unlit to an interactive spectacle when illuminated. The fibre optic's light appears to bounce endlessly within the mirrored structure, creating a mesmerising illusion of infinite depth that shifts and changes with the viewer's perspective. This futuristic design explores the dynamic relationship between object and observer, inviting interaction and sparking curiosity.
Rhino,
Vase:
(PolyJet)
Cutting
Laser Cutting, Handcrafts
2020 | SCAD MOME SURVEY OF
MEDIA DESIGN | PROF
Photoshop “HISTORY OF MOTION DESIGN”
This exhibition graphic, designed for Atlanta's High Museum of Art, cleverly blends iconic imagery from different eras. A character from the popular video game Monument Valley is juxtaposed with Nam June Paik's signature Magnet and TV motif, bridging the gap between classic and contemporary media. Gaussian blur adds a grainy texture, while the typography mimics the style of painted museum wall text. This fusion of old and new elements creates a visual timeline, showcasing the evolution of motion graphic design over the decades.
FILM POSTER DESIGN + TITLE
SEQUENCE STORYBOARD
2020 | SCAD MOME SURVEY OF MOTION MEDIA DESIGN | PROF SHANNON DAVIS FORSYTH
This project reimagines the poster and title sequence for Bong Joon Ho's acclaimed film, Parasite, through the lens of graphic design legend Saul Bass. Departing from the original design, this reinterpretation delves into the film's deeper themes and metaphors. The poster and title sequence employ a minimalist aesthetic, utilising symbolic imagery and stark compositions to evoke a sense of unease and social commentary reminiscent of Bass's iconic style. This approach aims to create a more subtle and philosophical visual experience that resonates with the film's complex narrative.
Procreate, Photoshop
“PARASITE”
knyckchau@ateliers-unis.com
linkedin.com/in/knyckchau archinect.com/knyckchau