Wolfpack Brochure - Emerald Plaza Brochure

Page 1

EMERALD PLAZA

RENOVATED IN 2018

ENTIRE 3RD FLOOR AVAILABLE

14,280 RSF

LOCATION MAP PROPERTY HIGHLIGHTS Quality Ownership Centrally Located in the Quorum Market Near Numerous Restaurant and Retail Establishments Direct Access to the Dallas North Tollway, Inwood Road and LBJ Freeway Security Patrol Services 100% Underground Parking with Direct Elevator Access Recent Renovations Include: Lobby Entrance Parking Garage & Entries Interior Elevator Cabs Exterior Landscaping Common Area Lighting Entire 3rd Floor Available 14,280 RSF 635 635 NORTH 75 35E EMERALD PLAZA N DALLAS CBD LOVE FIELD AIRPORT QUORUM DR LANDMARK BLVD LANDMARK PLACE QUORUM DR BELT LINE EGRESS INGRESS NORTHBOUND TOLLWAY EXIT & ENTRANCE: SPRING VALLEY SOUTHBOUND TOLLWAY EXIT & ENTRANCE: BELT LINE NORTH N
BELT LINE RD INWOOD RD INWOOD DALLAS NORTH TOLLWAY RESTAURANT ROW VILLAGE ON THE PARKWAY EMERALD PLAZA N ABUNDANT WALKABLE RESTAURANTS / RETAIL RENOVATED LOBBY RENOVATED CORRIDORS

PROPERTY PHOTOGRAPHY

NEW TENANT FINISH-OUT UPGRADED GARAGE UPGRADED ELEVATOR LOBBIES

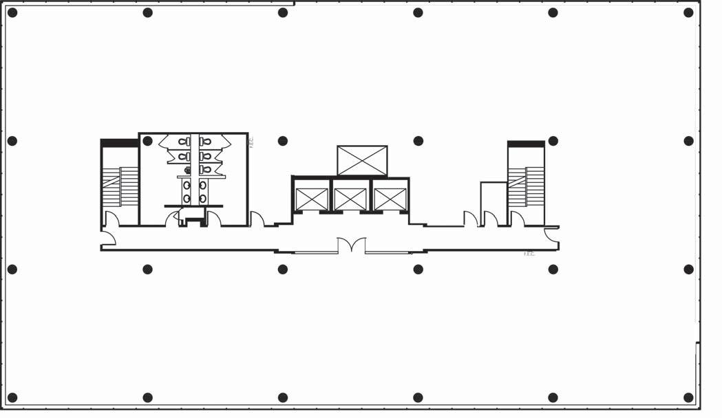
ENTIRE THIRD FLOOR AVAILABLE

THIRD FLOOR WHITEBOX SPACE - 14,280 RSF SUITE 300 6,315 RSF SUITE 325 2,745 RSF SUITE 320 5,220 RSF DW THIRD FLOOR AS BUILT - 14,280 RSF

SUITE 100-150

8,141 RSF

KEY PLAN N
SUITE 100 2,502 RSF DW 10'-8" x 14'-1"± 11 -0" x 10'-2"± 8'-0" x 10'-2"± 18'-11 x 10'-2"± 12'-9" x 10'-4"± 10'-9" x 11'-7"± 10'-8" x 6'-8"± 14'-5" x 11'-7"± 11 -6" x 9'-11"± 11 -0" x 14'-1"± 12'-8" x 10'-4"± 13'-5" x 9'-0"± 32'-7" x 19'-6"± 7'-11 x 9'-8"± 11'-3" x 30'-9"± 12'-7" x 15'-10"± 10'-9" x 16'-2"± 7'-7" x 12'-0"± 7'-7" x 12'-0"± 7'-5 x 9'-11"± 8'-0" x 9'-11"± 7'-2" x 9'-11"± 7'-7 x 9'-11"± 7'-7 x 9'-11"± 8'-0" x 9'-11"±
SUITE 150 5,639 RSF
SUITE 520-525 3,419 RSF SUITE 525 VACANT 1,330 RSF SUITE 520 VACANT 2,089 RSF
EMERALD PLAZA 14900 Landmark Blvd Dallas, TX 75254 LEASED & MANAGED BY: RODNEY HELM 972.663.9827 rodney.helm@cushwake.com WARD EASTMAN 972.663.9826 ward.eastman@cushwake.com A PROPERTY OF: ©2018 Cushman & Wakefield. All rights reserved. The information contained in this communication is strictly confidential. This information has been obtained from sources believed to be reliable but has not been verified. NO WARRANTY OR REPRESENTATION, EXPRESS OR IMPLIED, IS MADE AS TO THE CONDITION OF THE PROPERTY (OR PROPERTIES) REFERENCED HEREIN OR AS TO THE ACCURACY OR COMPLETENESS OF THE INFORMATION CONTAINED HEREIN, AND SAME IS SUBMITTED SUBJECT TO ERRORS, OMISSIONS, CHANGE OF PRICE, RENTAL OR OTHER CONDITIONS, WITHDRAWAL WITHOUT NOTICE, AND TO ANY SPECIAL LISTING CONDITIONS IMPOSED BY THE PROPERTY OWNER(S). ANY PROJECTIONS, OPINIONS OR ESTIMATES ARE SUBJECT TO UNCERTAINTY AND DO NOT SIGNIFY CURRENT OR FUTURE PROPERTY PERFORMANCE. EMERALD PLAZA

Turn static files into dynamic content formats.

Create a flipbook
Issuu converts static files into: digital portfolios, online yearbooks, online catalogs, digital photo albums and more. Sign up and create your flipbook.