









![]()










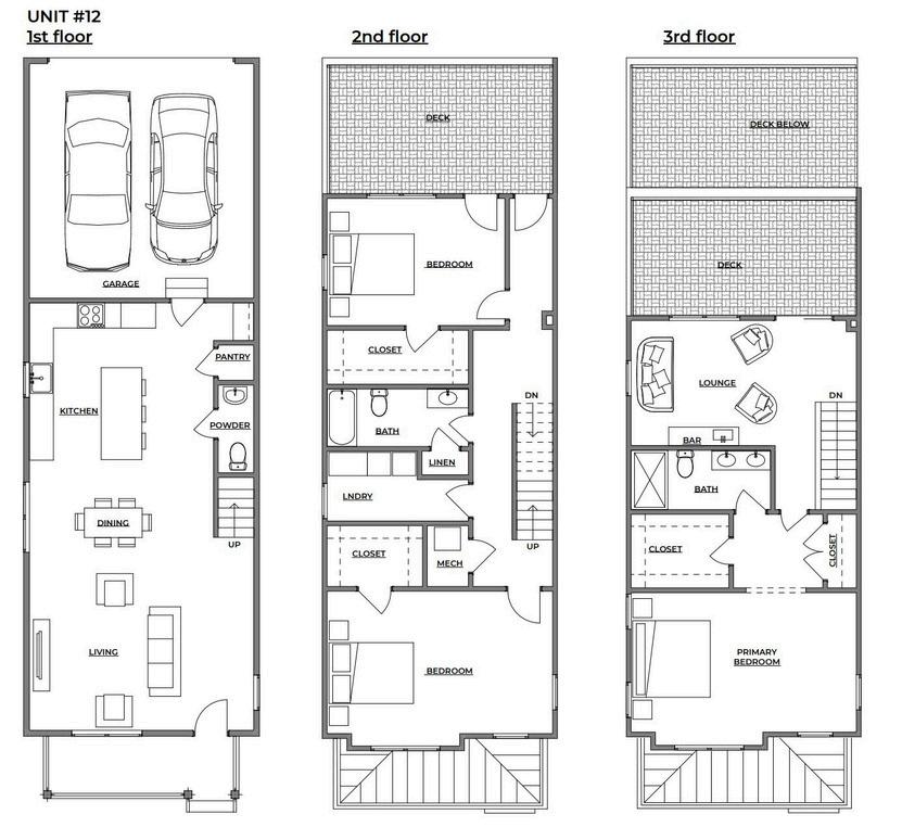
Become a neighbor to University Circle at Ashbury Pointe! Presenting 3 movein ready townhomes in this favored east-side neighborhood that sits moments away from Case Western Reserve Univerity’s Campus, the Cleveland Clinic, Little Italy, Downtown, and so much more!
Circle North becomes even more enticing knowing that residents of newlybuilt homes are eligible for Cleveland's 15-year tax abatement. The benefit is even stronger for qualifying employees of Case Western Reserve University, Cleveland Clinic, Cleveland Museum of Art, Judson at University Circle, and University Hospitals. With The Greater Circle Living Program and local institutions, these employees could gain up to a $30,000 Forgivable Down Payment Assistance with the purchase of their home



Aristokraft Vanities
Laminate Countertops
Pedestal Sink in Powder room
Full Width Vanity Mirrors in Full Baths
Moen Faucets
Mansfield China Lavatories
Exhaust Fans in all Baths
Tile Shower Units in Master Bath
One Piece Fiberglass Tub/Shower Units
Bath Hardware-Towel Bar, Towel Ring & Paper Holder
York 95% High Efficiency Furnace
13 SEER Central Air Conditioning System
50 Gallon High Efficiency Water Heater
Digital Thermostat
R-21 Exterior Framed Wall Insulation
R-10 Foundation Wall Insulation
R-38 Ceiling Insulation
Simonton Low E/Argon Filled Windows
Smooth Fiberglass Entry Doors
Granite or Quartz countertops
36” High Upper Aristokraft Cabinets
Built-in Stainless Steel Microwave Oven & Dishwasher
Icemaker Line with Shut-Off Valve
Deluxe Moen Faucet with Pullout Spout
Stainless Steel Sink
1/2 HP Badger Disposal
Large Penisula Units 1-5 or Large Islands 6-9
Stained wood stair treads in all stairwells
Hardwood or CorTec flooring in units
Mohawk carpeting in all bedrooms/closets
Painted Molded Interior Doors
Wall to Wall Carpeting –8# pad
Painted Trim Package 4 1/4” Base First Floor / 3” Base
Second Floor
Window Sills
Schlage Lever Style Locksets in Brushed Nickel
Textured Ceilings, Closets & Garage Walls
Wire Shelving in all Closets
Ceiling Fans in Bedrooms and Living Room
Eligible for Cleveland's 15-Year Tax Abatement
Pre-Wired Phone/Ethernet/Cable Jacks
Garage Door with Opener, Two Remotes & Keypad
Exterior Frost Free Hose Bib
GFCI Outlet at Front Garage
100% Energy Star Tested and Certified
Sound Deadening Construction Practices
One Year Builder Warranty
10’ First Floor Ceiling Height
Engineered Floor Joist
30 Year Dimensional Shingles
Plan Specific Exterior Materials
2 Car Garage (Site Specific)
Vented Soffits
Aluminum Gutters & Downspouts
Smoke Detectors
200 Amp Service
Passive Radon Mitigation System




