Skip to main content

Work Sample 2025

Page 1


Architecture is approached here as a medium of sensation and symbolism beyond structure or function. Infrastructural poetics reframes systems as more than technical frameworks, instead treating them as carriers of rhythm and atmosphere through material transformation, repetition, and generative geometry. Each work arises at the intersections of art and engineering, memory and ecology, the digital and the hand-drawn, forming a layered architectural language shaped by experimentation, iteration, and coexistence.

Robotic Hatchery 01

Spring 2025, Pratt Institute

Academic, Collaborative Work, Partner: Jonathan Lee

Professor: Fabian Llounch

Automatic Robotic System + Billion Oyster Project

Location: Brooklyn Army Terminal, Brooklyn, New York

Software: Rhino + Vray + Adobe Suite

Deep Sea Nautilus Diagrams showing external shell and internal chambered anatomy

How should architecture be designed for new oyster farming infrastructure?

This project encompasses infrastructure for automated oyster farming, reef production and maintenance, as well as public programs for education. Based on biological metaphors, we approached the design with a systems-thinking mindset rooted in scalable and selfsustaining biological processes.

Functioning as a local landmark, the building operates like a living organism—grafted onto existing structures and adapting to its surrounding environment.

3/16”=1’-0” Physical Model

Airbrushed PLA, UV Resin, PVC, Cast Acrylic, Plywood, Framing Lumber, HDU, 25” x 74” x 50”

Selected for 2025 Pratt Show Archived at Pratt Institute School of Architecture

For

This project focuses on oyster cultivation as a means of water purification. Research at both local and global scales shows that climate change and sea level rise are driving marine pollution. Building on the Billion Oyster Project, the site is proposed as a testing ground for an automated, globally adaptable purification system.

ADDED AQUA ROBOTICS PROGRAM

GIVEN

EARLY ED. ROBOTICS PROG. VENTURE CAPITAL BILLION OYSTER PROJECT

stack-wrap-reflect program-transparency fracture-layering circulation-site

for two generations

rebuild-fill-subtract bind-tear scars-infill operation-circulation

stack-wrap-pierce growth-interiority interiority-wrapping mass-program-in&out

pierce-protrude prosthestic-lift extend-mass program-circulation

stack-pierce-oblique intrude-disrupt mass-adjacency mass-interiority-program

high tide 2020s

high tide 2100

future flood plain 2020s

future flood plain 2100

existing - significant

design language - detail

program - circulation -section

skin - massing

Bug Model Taxonomy Diagram

The taxonomy diagram, integrated with the bug models, illustrates the flow of thought from site, building, and program research to the identification of issues, potentials, and design solutions. On the left, the 24 bug models represent iterations of program, building conditions, and design ideas, which converge into a cohesive narrative. This narrative unfolds into program organization, design language, and the relationship between people and infrastructure, ultimately extending beyond function and renovation toward metaphor, symbolism, and the role of the building as a landmark.

layering - cutting

program arrangement

human - robotics

nautilus

Existing Condition

Fabrication

Shell Conveyer

Shell Grinding

Concrete Batching & Printing

Oyster Reef Propagating

Reef Maturation Chamber

Robotic Reef Application

2. 3. 4. Chimney Coal Storage Steel Structure Pier (680feet)

Sectional Chunk Model

Isolated Water Testing Deep Water Testing Conveyer Pipe

Oyster Shell Grinding

Oyster Reef Fabricating

Oyster Reef Propagating Storage / Water Pump

3rd Floor Plan

Isolated

Deep

Conveying

Community Steps

Observatory Deck

Lounge

Cafe

Office

Open Education Space

The intersection of fabrication technologies, aquarobotic systems, and human-centered spaces generates a new kind of spatial experience distinct from conventional design approaches.

At these points of convergence, automated systems and human environments are intricately interwoven, producing complex spaces where technological precision and sensory engagement coexist.

Perpective View of Underwater

Summer 2025, Pratt Institute

Academic, Individual Work

Professor: Erich Schoenenberger, Alex Tahinos

Program: Hydro-Infrastructure, Mobility Network, Community Center

Location: Coyoacan, Mexico City, Mexico

Software: Rhino + Enscape, D5 + Adobe Suite

Speculative

This project is located near the Norte Stadium in Mexico City and speculates on the city’s future conditions before and after large-scale events such as the upcoming World Cup. It addresses the paradoxical challenges of water scarcity and flooding that affect the city, reconnects pedestrian networks fragmented by road infrastructure, and provides new public space. More importantly, through a speculative lens, the project extends beyond problem-solving to propose an experimental framework that reimagines how infrastructure and urban life can generate new possibilities for community activation and resilience.

Arial Perspective View Rhino, D5

The design connects multiple potential spots across the site, where public programs and an activated pedestrian network form key urban nodes. Simultaneously, rainwater collection and a flood-responsive plaza serve as passive strategies addressing water scarcity and flooding.

Typical Building Section

2. Pedestrian Network + Vendor Market
4. Flood Responsible Plaza Water-collecting Roof and Walkaways 1. Important Spot & Possibility
3. Enhancing Spots with Roofing and Programs
Station
Land
Community Center
Axonometric Building Section Rhino, Enscape

The floor plan integrates water collection, filtration, storage, and distribution while adapting to everyday use, flooding, and large-scale events such as the World Cup. The ground floor not only operates the rain harvesting system but also shifts between functions: a pond during floods, a public park in daily life, and a gathering space during events. The second floor serves primarily as circulation, hosting a vendor market and community space on ordinary days, but can be cleared to accommodate large flows of people during events. In the diagram, contrasting shading highlights differences in occupancy density between daily and event conditions.

Small Stadium Court Yard Rhino, D5

Inhale-Exhale 03

Fall 2024, Pratt Institute

Academic, Individual Work

Professor: Alex Tahinos

Program: Housing, Public Park + CO2 Capturing

Location: 395 Broome St, New York

Software: Rhino + Enscape + Adobe Suite

Arial Axonometiric View of Building Rhino, Enscape, Photoshop

Urban Sampling

This project explores the integration of CO₂-capturing technology with urban elements such as small parks in New York City. Its goal is to merge futuristic technology with familiar spaces, creating a new architectural experience where past and future intersect. Through this process, the project investigates how emerging technologies can organically embed themselves within the urban environment.

Phase 1: Representation to Hybrid

Through hybrid experimentation, the potential for integrating new technologies with the urban environment both systemically and sculpturally has been explored, and the process has now reached the stage of applying these concepts to architecture. This phase focuses on how hybrid objects can be incorporated into architectural design and their surrounding context. Flexible, Curved

Modular
1. CO2 Capturing System and Park
2. Sectional and Elemental Anatomy
3. Hybrid Objects

Phase 2: Architecturalization

The site is a corner lot previously used as a parking area, with balconies of adjacent buildings facing its rear. Additionally, the windows facing the street emphasize verticality.

Respecting this context, the CO2 Free Park is positioned towards the rear balconies of the site, while the exterior envelope aligns with the vertical rhythm of neighboring windows, creating a contrast with the interior conditions of the building.

Axonometric

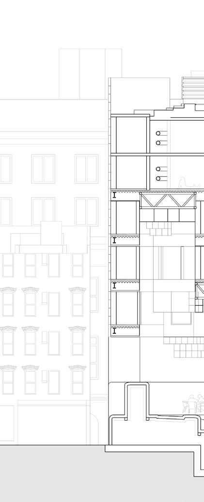
Vertical Dynamics 04

Fall 2024, Pratt Institute

Academic, Individual Work

Professor: Fabian Llonch

Proseminar: Skins

Location: 110 Prince St, New York

Software: Midjourney, Rhino, Enscape, Adobe Suite

Phase 1: AI Generative Image

Mid Journey

Based on images obtained through Midjourney’s blending feature, this project explores the potential of functioning as a skin by extracting forms, separating similar elements, and layering them.

Phase 2: Respect of Verticality

110 Prince St, Soho, Manhattan

With the goal of designing dynamism while respecting the strongly vertical context, the project was gradually developed by varying density, scale, layering, and assembly.

AI Generative Image
Think about Verticality Blurring Geometry
Different Density, Scale
Image to 3D Modeling Making Inital Geometry
Building Elevation Rhino, Enscape

Phase 3: Methaphor of Water Fall

The final façade, shaped through layering and density testing, metaphorically resembles a waterfall. It introduces a pocketpark quality into the city’s vertical monotony, with each layer abstracting elements of flowing water—streams, stones, and mist—turning the skin into both structure and poetic image.

Vertical Rain String
Circular window Circular window
(up)
Arial Axonometric View Rhino, Enscape

3/16”=1’-0” Study Models

PLA, 4” x 4”

3/16”=1’-0” Physical Model

Archived at Pratt Institute School of Architecture

PLA, 18” x 18” x 20”

551 Breezy Hill Villa (In progress)

Project Contributor(Full Time), Corals Inc

2024. 12 - 2025. 02

Professional, Intern Architect

Program: Villa

Project Type: Renovation

Location: 551 Breezy Hill Rd, Hillsdale, NY

Structure: Timber

Software: CAD, Rhino, Enscape

Future Generations Support Complex 02

Internship(Full Time), Busan Architecture

12. 2019 - 02. 2020

Professional, Collaborative Work (Member of 5)

Role: Intern | Massing & Layout Development, Facade Drafting, Case Studies

Program: Childcare Support Center

Project Type: Competition (2nd Prize)

Location: Busan, Republic of Korea

Software: CAD, SketchUp

929 437 7516

gkim32@pratt.edu

Turn static files into dynamic content formats.

Create a flipbook
Work Sample 2025 by GyuBeom Kim - Issuu