

TEBEA® Modulaarinen ulokeparvekeraudoite
ETA-hyväksytty ja CE-merkitty
Testattu ja luotettava ratkaisu.
120 mm eristepaksuus
Vettymätön kivivilla takaa hyvän lämmöneristävyyden.
Sisäänrakennettu palonkesto
Suunnittele ja asenna ilman palonsuojalevyjä.
Kustannustehokas
Modulaarinen rakenne yksinkertaistaa suunnittelua ja toteutusta tuoden säästöjä.

Katso lisätietoja: peikko.fi

Suunnittele parvekkeet nopeasti ja vaivattomasti Peikko Designer® BALCONY CONNECTION -pilvisoftalla.
Betoni 96. vuosikerta – volume
Ilmestyy 4 kertaa vuodessa
Tilaushinta 56 euroa (+ alv 10%)
Irtonumero 15 euroa (+ alv 10%)
Painos 12 500
ISSN-L 1235-2136
ISSN 1235-2136 (painettu)
ISSN 2323-1262 (verkkojulkaisu)
Aikakausmedia ry:n jäsen
Toimitus – Editorial Staff
Päätoimittaja – Editor in chief
Maritta Koivisto, arkkitehti SAFA
Taitto – Layout
Cleo Bade
Maritta Koivisto
Käännökset – Translations
Tiina Hiljanen
Osa käännöksistä yliopistojen ja alan erityisasiantuntijoiden kautta
Tilaukset, osoitteenmuutokset: betoni@betoni.com
BY-, BLY-, RIA-, RIL-, RKL-, SAFA-, VYRA-, Ornamo, MARK-, MAS-, -jäsenet omiin järjestöihinsä
Julkaisija ja kustantaja – Publisher
Betoniteollisuus ry –Association of Concrete Industry in Finland
PL 381, Eteläranta 10, 10 krs. 00130 Helsinki, Finland tel. +358 (0)9 12 991 www.betoni.com
Toimitusneuvosto – Editorial board
Arkkitehti SAFA Ville Hara Maisema-arkkitehti Pia Kuusiniemi
RI Petri Kähkönen
TkT Jukka Lahdensivu
DI Ari Mantila
TkT Jussi Mattila
TkT Jouni Punkki
TkT, arkkitehti SAFA Hannu Tikka
DI Mirva Vuori
Ilmoitukset – Advertising Manager
Nina Loisalo tel. +358 50 368 9072 nina.loisalo@rakennusteollisuus.fi
Ilmoitukset: betoni@betoni.com
Kirjapaino – Printers Punamusta, Joensuu
Kansi – Cover
Kruunuvuorensilta, Helsinki. Vuoden 2025 Betonirakenne.
Kuva: Jarno Haanpuro, 2026.
Takakansi – Back cover KAPA, Raitiolinja 13 Kalasatamasta Pasilaan, Helsinki.
Vuoden 2025 Ympäristörakenne.
Kuva: Rakennusteollisuus RT:n kuvapankki, 2025.
Asko Takala Pääkirjoitus – Suunnittelukilpailuilla kestävää rakentamista
Preface – Design competitions promote sustainable building
Maritta Koivisto Vuoden Betonirakenne 2025 – Kruunuvuorensilta on näyttävä maamerkki merellisessä kaupunkiympäristössä
Concrete Structure of the Year 2025 –
Maritta Koivisto Vuoden Ympäristörakenne 2025 KAPA, Raitiolinja 13 Kalasatamasta Pasilaan Tram route 13 from Kalasatama to Pasila
Asko Takala & Maritta Koivisto
Jyrki Tasa, Anne Kleemola & Maritta Koivisto
Heka Laajasalo Gunillantie 3
Heka Laajasalo, 3 Gunillantie Street, Helsinki
Marinrantaan rakennetaan lisää uusia asuntoja




8 Vuoden Betonirakenne 2025 – Kruunuvuorensilta
26 Heka Laajasalo Gunillantie 3
Vuoden Ympäristörakenne 2025 – KAPA, Raitiolinja 13
Espoon Marinranta





osaamista vaativiin hankkeisiin Betonirakentamisen

KEMIALLISELLA
UMBRA
värjäyskäsittelyllä saadaan myös ruiskubetoniin kestävä, vivahteikas ja persoonallinen sävy.
käsittelyt toteuttaa






Kuva: Eveliina Sinkkonen: ”Betonin työstöä tutkimustarkoituksessa”, Karelia AMK Joensuu. 2025









Suunnittelukilpailuilla kestävää rakentamista
Kestävään kehitykseen tähtäävä materiaalikulutuksen hillitseminen tekee rakennetun ympäristön suunnittelusta koko ajan vaativampaa. Rakentamisesta tulee aiempaa tarkempaa, reagoivampaa ja vuorovaikutteisempaa.
Uudisrakentamispainotteinen rakentamisen toimintakulttuuri ja sitä osaltaan ohjannut lainsäädäntö sekä perinteiset urakointitavat eivät selvästikään vastaa kestävän ympäristön haasteisiin riittävästi. Suunnittelu ja toteutus limittyvät totuttua enemmän. Määrällisesti uudistuotannon ohittavassa korjausrakentamisessa tämä on ilmeistä, mutta myös monet uudispuolen toteutusmallit vaativat syvempää suunnittelun ja toteutuksen yhteispeliä ja yksityiskohtaisempaa dokumentointia. Niinpä toteutus- ja suunnittelutyön kestävä, oikea-aikaisen tekemisen mahdollistava hinnoittelu edellyttää uudelleenajattelua.
Suunnittelun tilaamisen nykykäytännöt ovat usein ristiriitaisia. Tilaajat pyrkivät tilaamaan mahdollisimman vähän suunnittelua kiinteähintaisilla sopimuksilla samalla kun työmailla odotetaan aiempaa enemmän äärimmäisen tarkkoja ja yksityiskohtaisia suunnitelmia. Tämä koskee niin korjausrakentamisessa paljastuvia ennakoimattomia tilanteita kuin uudisrakentamisessa herkästi kuultavien ja palveltavien asiakkaiden muutostarpeita.
Lupaprosessit vievät yhä suuremman osan suunnitteluresursseista. Digitalisaatio ja tekoäly tukevat toki rutiineja ja vaihtoehtojen tuottamista, mutta ne eivät korvaa harkintaa, oivallusta ja kokonaisuuksien punnintaa.
Suunnittelupalveluja hankitaan silti usein kuin marjoja torilta: litrahinta ratkaisee. Valistunut kuluttaja tietää, ettei halvin litrahinta takaa parasta makua. Laatu selviää vasta maistamalla. Sama pätee suunnitteluun.
Varsinkin julkisissa hankinnoissa hinta painaa yhä usein eniten. Laatu ymmärretään helposti määrällisinä ja teknisinä minimivaatimuksina, ei kykynä vastata tilaajan todellisiin tarpeisiin ja odotuksiin. Rakenne-, talotekniikka- ja arkkitehtisuunnittelu valitaan usein pelkän hinnan perusteella. Rakenne- ja talotekniikan sekä muiden erityispalveluiden osalta valintaperusteena on lähes poikkeuksetta pelkkä hinta määrällisten minimivaatimusten täytyttyä. Vain satunnaisesti osaamista arvioidaan aiemmilla referensseillä. Hämmästyttävän harvoin haetaan parasta mahdollista ratkaisua juuri kyseiseen tehtävään suunnittelukilpailun avulla.
Suunnittelukilpailu on luontevin tapa hankkia laadukas, tarkoitukseen paras ja vertailukelpoinen ratkaisuehdotus. Kilpailu tarjoaa mahdollisuuden arvioida laatua konkreet-
Design competitions promote sustainable building
Sustainability requirements for built environments increase the complexity of design and highlight the close teamwork needed between design and execution in both newbuild and renovation projects. Current procurement practices often prioritise price over quality, which leads to a conflict: less is invested in design services, yet extreme precision and flexible solutions are expected on the worksites.
Digitalisation and artificial intelligence support routines, but cannot replace expertise, scrutiny, and the management of the whole. Design competitions are the best way to find

tisesti: ehdotuksia vertailemalla, ei lupausten tai yksikköhintojen perusteella.
Kilpailut on turhan usein rajattu vain rakennusten tai kaavaratkaisujen piiriin. Tässä numerossa esiteltävä Kruunuvuorensilta on hyvä esimerkki kilpailujen mahdollisuuksista.
Ensimmäisestä Suomessa järjestetystä arkkitehtuurikilpailusta tulee kuluneeksi 150 vuotta: vuonna 1876 Suomen Pankin rakennuksesta järjestettiin kansainvälinen yleinen kilpailu. Kilpailu hankintatapana on kestänyt aikaa, koska se vastaa olennaiseen kysymykseen: miten saada paras mahdollinen ratkaisu vaativaan suunnittelutehtävään.
Kilpailumuotoja on monia, ja niitä kehitetään jatkuvasti hankintalainsäädännön periaatteiden – avoimuuden, tasapuolisuuden ja reilun kilpailun – puitteissa.
Kun tavoitteena on kestävä, toimiva ja pitkällä aikavälillä taloudellinen rakennettu ympäristö, suunnittelukilpailu ei ole ylellisyyttä. Se on järkevä tapa tilata suunnittelua.
Asko Takala
Puheenjohtaja, Suomen Arkkitehtiliitto SAFA arkkitehti SAFA
Kirsti Sivén & Asko Takala Arkkitehdit Oy asko.takala@arksi.fi
a high-standard and effective solution for demanding projects, offering the opportunity to review quality based on concrete proposals instead of relying on just price or promises. When the goal is a sustainable and functional built environment offering long-term economy, a design competition is not a luxury but a rational and justified method for procurement.
Asko Takala Chairman, Finnish Association of Architects SAFA Architect SAFA, Kirsti Sivén & Asko Takala Arkkitehdit Oy, asko.takala@arksi.fi
1 Asko Takala
Katja Tähjä
Vuoden Betonirakenne 2025
–Kruunuvuorensilta on näyttävä
maamerkki merellisessä kaupunkiympäristössä
Maritta Koivisto, päätoimittaja, Betoni maritta.koivisto@betoni.com
Kruunuvuorensillan suunnittelusta
Kruunuvuorensillan suunnittelu käynnistettiin vuonna 2012 järjestämällä kansainvälinen suunnittelukilpailu, jonka tavoitteena oli suunnitella liikenneyhteys Nihdistä Korkeasaaren kautta Kruunuvuorenrantaan. Painopiste oli Kruunuvuorensillan suunnittelussa, joka muodostaa ylityspaikan Palosaaren ja Kruunuvuoren välille. Voittajaksi valikoitui WSP Finlandin ja Knights Architects suunnittelijaryhmän ehdotus "Gemma Regalis".
Sillan suunnittelussa huomioitiin vahvasti käyttäjänäkökulma sekä visuaalisen ilmeen että käytettävyyden osalta. Yli kilometrin mittaisesta sillasta haluttiin tehdä kevyt ja ilmava kokonaisuus, jotta maisemaa katkaiseva vaikutus olisi mahdollisimman vähäinen.
Sillan vaakakaarevuus perustuu rakenteellisten syiden ohella myös käyttäjäkokemuksen parantamiseen – kaarevaa siltaa kulkiessa ihminen hahmottaa paremmin matkansa määränpään. Sillan toiminnallisuus sekä sisustukselliset yksityiskohdat on mietitty harkiten sekä kävelijöiden, pyöräilijöiden että joukkoliikennevälineillä kulkevien tarpeisiin.
Kruunuvuorensilta tuo kokonaan uuden rakennetun elementin ja näyttävän merellisen maamerkin kaupunkiympäristöön. Silta yhdistää kasvavan Laajasalon alueen Helsin-
Helsingin Kruunuvuorensilta palkittiin tammikuussa Vuoden 2025 Betonirakenteena. Kruunuvuorensilta on esimerkillisesti johdettu suurhanke, jonka merkitys sekä kaupunkiliikenteelle että -ympäristölle on suuri. Hankkeessa toteutuvat kestävän kehityksen periaatteet ja sen seurannaisvaikutukset johtavat yhdyskunta- ja ympäristökehitystä vahvasti positiiviseen suuntaan. Kruunuvuorensillan parantaessa Helsingin alueellista poikittaisliikennettä vähäpäästöisen ja toimivan joukkoliikenteen kilpailukykyä voidaan lisätä entisestään. Sillan rakentamista on esitelty myös Betoni 1–2023 lehdessä ss. 64–73.
1 Kruunuvuorensilta ja Finkensilta.
2 Kruunuvuorensilta tammikuussa 2026. Kruunuvuorensilta luo kulkuyhteyden veden äärellä sijaitsevan Kruunuvuorenrannan asuinalueen, Korkeasaaren, Laajasalon ja Helsingin keskustan välille. Valmistuttuaan se tulee olemaan yksi maailman pisimmistä julkiselle liikenteelle, jalankulkijoille ja pyöräilijöille rakennetuista silloista.

Jarno Haanpuro

Vuoden Betonirakenne 2025Kruunuvuorensilta on näyttävä maamerkki merellisessä kaupunkiympäristössä
Kruunuvuorensillan suunnittelu ja rakenne


Vuoden Betonirakenne 2025Kruunuvuorensilta on näyttävä maamerkki merellisessä kaupunkiympäristössä

5
3 Kruunuvuorensilta on betoninen liittorakenteinen vinoköysi- ja palkkisilta, joka on koko pituudeltaan vaakakaareva. Sillan kokonaispituus on 1191 metriä, pisimmät jännevälit ovat 260 metriä, pylonin korkeus 135 metriä ja sillan alituskorkeus on 20 metriä.
4 Kruunuvuorensillan pyloniin on suunniteltu valaistus, jonka väriä voi muuttaa esimerkiksi juhlapäivien mukaan.
5 Toteutusmallinnuskuva. Kruunuvuorensilta voitti laajalla tietomallien ja rakentamisen tietojärjestelmien hyödyntämisellä projekti voitti arvostetun kansainvälisen Tekla Global BIM Awards pääpalkinnon.
gin keskustaan raitioliikenteellä, jalankululla ja pyöräilyllä, ja näin edistää kestävien kulkumuotojen käyttöä. Silta avaa meri- ja saaristomaisemaa kaikille sillä liikkujille uudella kiinnostavalla tavalla.
Hankkeessa on ollut tavoitteena, että silta liikenneväylineen sulautuu erilaisiin ympäristöihin linjan varrella, mutta muodostaa kuitenkin pääkaupunkiseudun joukkoliikennejärjestelmän tunnistettavan osan. Siltahankkeen kokonaisuuteen kuuluu myös Finkensilta sekä rantaväylän rakentaminen Korkeasaaren edustalle. Korkeasaaren uusi pääsisäänkäynti avautuu luontevasti reitin varteen.
Silta on osa Helsingin keskuspuistoa, jonka rannat ovat suojeltua aluetta. Sillan valaistuksen suunnittelussa pääpaino on ollut hillityn kokonaisuuden luomisessa, jossa hajavalon määrä ympäristöön on mahdollisimman vähäinen. Vinoköysisillan valaistu korkea keskipyloni muodostaa kaupunkiin uuden maamerkin. Pylonin julkisivuvalaistus elää vuorokauden- ja vuodenaikojen mukaan. LED-värivalojen avulla on pylonin sävyä mahdollista muuttaa esimerkiksi juhlapäivinä.
Betonirakenteiden vaativuus näkyi suunnittelussa ja eri työvaiheissa
Uuden Kruunuvuorensillan kokonaispituus on 1191 metriä, sillan teräsbetoninen pyloni nousee 135 metrin korkeuteen ja sillan alituskorkeus on 20 metriä.
Kruunuvuorensilta on betonikantinen liittorakenteinen vinoköysi- ja palkkisilta. Silta
on koko pituudeltaan vaakakaareva ja sillan pisimmät jännevälit ovat pituudeltaan 260 metriä. Sillan betonirakenteisiin on käytetty noin 22 000 kuutiometriä betonia.
Sillan pylonin rakenne kuvastaa hyvin hankkeen teknistä vaativuutta. Pylonin huippu on korkeudessa +135 metriä ja se on sijoitettu matalaan veteen Nimismies- ja Emäntäluotojen väliin.
Teräsbetoninen pyloni muodostuu pituussuuntaan käännetystä timanttirakenteesta, jonka poikkileikkaus muuttuu koko korkeuden matkalla.
Pylonin jalkojen poikkileikkaus on kannen tason alapuolella massiivipoikkileikkaus, kannen yläpuolisella osalla käytetään kotelopoikkileikkausta. Jalkojen poikkileikkaus on monikulmio, joka muuttuu koko pylonin matkalla. Vinoköydet kiinnittyvät pylonin yläpäässä olevaan teräskoteloon, jonka ympärille on valettu betonikuori.
– Pylonin jalat sidottiin kannen tasolla yhteen jännitetyllä betonisella sidepalkilla. Kannen teräsrakenteen ja pylonin toisiinsa yhdistävä sidepalkki oli yksi työmaan vaativimmista betonoinneista, sillä sen rakenne oli poikkeuksellisen tiheästi raudoitettu ja jännitetty. Lisäksi kannen teräspalkit lävistivät sidepalkin, mikä toi vinoköysiosuuden kuormia suoraan pylonin jalkaan. Näiden rakenteellisten vaatimusten takia betonointien ennakkovalmisteluihin panostettiin poikkeuksellisen paljon, kertoo TYL Kruunusiltojen projektipäällikkö Jari Humalajoki Kreatelta
TYL

6 Kruunuvuorensillan kannen valua. Suuressa osassa sillan betonirakenteiden vaatimuksena oli suola-pakkasrasitusta kestavä korkealujuusbetoni. Ruskon Betoni Etelä Oy toimitti hankkeen betonit..
7 Suomessa on otettu betonin jäähdyttäminen käyttöön erityisesti massiivisten infrarakenteiden osalta.
8 Sillan päällysrakenteen vaarnatapit.
9 Kruunuvuorensillan vinoköysiosuuden teräspalkit asennettiin paikoilleen merinosturilla kesällä 2023.
10 Kruunuvuorensillan työmaa kesällä 2023.
11 Kruunuvuorensillan pylonin valumuotti 135 metrin korkeudessa.
Pylonin rakennusaika oli noin vuosi ja töitä tehtiin kaikkina vuoden aikoina. 200 vuoden käyttöikävaatimus asetti betonoinnin onnistumiselle ja jälkihoidolle erittäin suuret haasteet. – Betonirakenteiden vaativuus näkyi jokaisessa työvaiheessa. Esimerkiksi pylonin timanttimainen rakenne toteutettiin infrarakentamisessa harvoin käytettävällä kiipeävällä muottikalustolla noin neljän metrin valujaksoissa. Tämä hanke nosti suomalaisen betonirakentamisen riman hyvin korkealle ja ylitimme sen, korostaa Humalajoki.
Betonin ja teräksen liittorakenne Sillan päällysrakenne on teräspalkkien ja betonilaatan muodostama liittorakenne.
Teräsrakenne koostuu kahdesta pituussuuntaisesta pääkannatinpalkista ja niiden väliin sijoittuvista poikkipalkeista. Teräsbetoninen kansilaatta kiinnittyy pää- ja poikkipalkkien ylälaippojen vaarnoihin. Kansirakenne tukeutuu pylonin jalkoihin niihin jäykästi kiinnitettyjen teräspoikkipalkkien kautta.
Sillan kannen betonointi eteni liittorakenteen asettamat erityispiirteet huomioiden.

Vuoden Betonirakenne 2025Kruunuvuorensilta on näyttävä maamerkki merellisessä kaupunkiympäristössä 6

Liitorakenteen betonointien haasteena oli kannen liikkuminen betonoitaessa kuorman lisääntyessä ja niistä johtuvat halkeilut sitoutuvassa betonimassassa. Kruunuvuorensillalla halkeilua ehkäistiin betonoinnin valujärjestyksellä, ja kansi valettiin noin 60 metrin osissa. Hidastinta ei kannen massoissa käytetty.
Välituet ovat muodoltaan V-pilareita. Välituen muodostaa kaksi toisistaan ylöspäin mentäessä sillan poikkisuunnassa erkanevaa teräsbetonista pilaria. Korkein välituki (T8) on noin 18 metriä korkea. Samalla lailla kuin pylonin poikkileikkaus, muuttui myös välitukien poikkileikkaus koko matkalla, lisäksi tiheä raudoitus ja välitukien yläpäässä oleva vetotanko hankaloittivat betonointeja. Välituet valettiin kolmessa valulohkossa.
Vuodenaikojen ja sääolosuhteiden vaihtelu on otettu huomioon myös vinoköysisillan teräsvaijereiden suunnittelussa. Talviajan mahdollinen lumi- ja jääkuorman kertyminen köysiin ratkaistiin jään muodostumista ehkäisevien rakenneratkaisujen ja jatkossa myös hyvän ylläpidon avulla.
Erityisbetonointia ja betonimassojen laadunvalvontaa
– Valut tehtiin merellisissä olosuhteissa, usein iltaisin, öisin ja viikonloppuisin vuorotyössä. Laadunvalvonta oli paikalla silloinkin, kun aikataulu venyi ja olosuhteet olivat haastavat. Tällaisessa hankkeessa jokainen valu sitoi yhteen tuotannon, laadunvalvonnan ja työmaan. Kun työmaalla valettiin, tuotanto mukautui työmaan aikatauluun, kuljetukset ajoitettiin tarkasti ja laadunvalvonta oli paikalla seuraamassa ja todentamassa, että betonimassa täytti sille asetetut vaatimukset, kertoo Ruskon Betoni Etelä Oy:n laatupäällikkö Tuomas Mannonen
Suuressa osassa rakenteista vaatimuksena oli suola-pakkasrasitusta kestävä korkealujuusbetoni C55/67 P50.
Hankkeessa valettiin onnistuneesti paljon vedenalaisia kohteita: paalut, kasuunien työbetonit ja pylonin alin antura. Kohteet betonoitiin valuputken kautta itsetiivistyvillä IT-massoilla ns. contractor-menetelmällä. Betonointi tehtiin valuputken kautta sukeltajien ohjaamana. Vedenlaisissa betonoinneissa huolellinen työn-
Vuoden Betonirakenne 2025Kruunuvuorensilta on näyttävä maamerkki merellisessä kaupunkiympäristössä



Jussi Laamanen
Vuoden Betonirakenne 2025Kruunuvuorensilta on näyttävä maamerkki merellisessä kaupunkiympäristössä


suunnittelu korostui, koska rakenteiden korjaus on käytännössä mahdotonta.
– Toteutus on vaatinut eri osapuolten ainutlaatuista yhteistyötä, tarkkaa suunnittelua, huolellista aikataulutusta sekä vaativia teknisiä ratkaisuja, kuten vedenalaisia massiivivaluja, mittatarkkoja merinosturilla tehtyjä kansilohkoasennuksia ja erittäin haasteellista logistiikkaa, huomioi tuomaristo perusteluissaan.
Kaikki betonimassat testattiin vaatimusten mukaisesti ennakkokokeilla, mutta myös useampia työmaakohtaisia mallivaluja tehtiin, jotta voitiin selvittää betonin valettavuus ja betonimassan toimivuus haastavissa rakenteissa.
Betonin laadunvarmistus oli normaalia infrarakentamista tiukempaa ja laadunvarmistuksen suoritti betonin valmistajasta ja urakoitsijasta riippumaton kolmas osapuoli.
Kaikkien rakenteiden lämpötilan- ja lujuudenkehitys mallinnettiin betonin toimittajan ennakkolaskentaohjelmalla ja tämän perusteella määritettiin mahdollinen tarve jäähdytykselle tai lämmitykselle. Kaikista rakenteista seurattiin lämpötilan kehitystä etäluettavilla loggereilla, joka mahdollisti kovettumisen aikaisen lämpötilan hallinnan muun muassa jäähdytyslaitteistoa säätämällä.
Lisäksi kaikki betonimassat testattiin vaatimuksia tiukemmilla ennakkokokeilla, ja rakenteista tehtiin useita mallivaluja, joilla varmistettiin betonin valettavuus ja toimivuus vaativissa rakenteissa.
Tietomalli apuna suunnittelussa Massiivinen hanke on toteutettu alusta alkaen tietomallipohjaisena kaikkien tekniikka-alojen osalta. Tämä on varmistanut hankkeen suju-
vuuden, tehokkuuden ja läpinäkyvyyden sekä tiukkojen ympäristö- ja käyttöikävaatimusten saavuttamisen.
Kruunuvuorensillan hanke on ollut ensimmäisiä siltakohteita maailmassa, jonka suunnittelussa hyödynnettiin parametristä mallinnusta. Yhteistyötä ja vuorovaikutusta eri sidosryhmien kanssa on tukenut tietomallin pohjalta tuotettu virtuaalimalli, jonka avulla on pystytty simuloimaan erilaisia suunnitteluvaihtoehtoja.
Rakennetusta sillasta tullaan tekemään myös digitaalinen kaksonen, joka toimii ylläpitomallina.
12 Kruunuvuorensilta marraskuussa 2025. Sillan päällysrakenne on teräspalkkien ja betonilaatan muodostama liittorakenne.
13 Työsillan purku käynnissä. Kaikkiaan sillan rakenteisiin käytettiin noin 22 000 kuutiometriä betonia.
14 Ruduksen Riimukiveä on käytetty sillan raiteiden välissä ja kivet on saumattu luonnonkasvisaumalla.
15 Kruunuvuorensilta tammikuussa 2026.
16 Kruunuvuorensillassa on vinoköysiä yhteensä 17 paria pylonin molemmin puolin. Vinoköysi koostuu köysiputkesta ja putken sisään asennettavista rasvapunoksista. Putket ovat pituudeltaan 90–260 metriä ja punoksia putkissa on 19–59 kappaletta. Köysiputken halkaisija vaihtelee 160–225 millimetrin välillä. Sillan kaide on teräsrakenteinen.

Rudus
Maritta Koivisto
Vuoden Betonirakenne 2025Kruunuvuorensilta on näyttävä maamerkki merellisessä kaupunkiympäristössä



Edistyksellistä betoniteknologiaa Tuomariston näkemyksen mukaan hankkeessa on kehitetty ja sovellettu edistyksellistä betoniteknologiaa, jossa on hyödynnetty erikoisbetoneja ja reaaliaikaista lämpötilan sekä lujuuden seurantaa.
– Työmaa on ollut myös kansallinen edelläkävijä betonin jäähdytyksen hallinnassa. Hankkeessa mallinnettiin tarkkaan betonin lämpötilan kehittymistä ja rakenteita jäähdytettiin massiivisten rakenteiden lämpötilojen rajoittamiseksi, tuomaristo totesi perusteluissaan.
Rakenteiden korkea 200 vuoden käyttöikä, erityishaasteet valmisbetonin kanssa ja suunnittelun innovatiivisuus ovat kehittäneet alan käytäntöjä valtakunnallisesti, korosti tuomaristo perusteluissaan.
Ympäristöarvoja kunnioittavaa infrarakentamista
Huomionarvoista on ollut myös rakentamisen mahdollistaminen ympäristö- ja luontoherkällä alueella. Rakentamisen aikataulutusta ohjasivat lintujen pesiminen, meritaimenen kutuvaellus ja vesistövaikutusten kokonaisuus sekä Korkeasaaren eläintarhan eläinten hyvinvoinnin huomiointi rakentamisen aikana.
Palkitsemalla Kruunuvuorensilta-hanke vuoden 2025 Betonipalkinnolla kilpailun tuomaristo halusi samalla kannustaa tulevien
merkittävien infra- ja joukkoliikennehankkeiden toteuttajia panostamaan ympäristön laatuun niin teknisin kuin arkkitehtonisin keinoin.
Kruunuvuorensilta on osa Kreaten ja YIT:n toteuttamaa Kruunusillat-kokonaisurakkaa, johon kuuluu myös Kalasataman eteläosan ja Korkeasaaren yhdistävä Finkensilta sekä Korkeasaaren esirakentamistyöt.
Hankkeen työt aloitettiin syksyllä 2021. Finkensilta avattiin kevyen liikenteen käyttöön syksyllä 2025. Korkeasaaren esirakentaminen valmistui alkuvuodesta 2025 ja Kruunuvuorensilta valmistui loppuvuodesta 2025.
Silta avataan jalankululle ja pyöräilylle vuoden 2026 aikana ja raitioliikenne alkaa kokonaisuudessaan alkuvuodesta 2027.
Kokonaisurakan arvo on noin 130 miljoonaa euroa. •
Suunnittelusta ja toteutuksesta palkittiin:
Kruunuvuorensilta lyhyesti
• Sijainti: Kruunuvuorenranta–Korkeasaari, Helsinki
• Käyttötarkoitus: Raitioliikenne, jalankulku ja pyöräily
• Siltatyyppi: Betoninen liittorakenteinen vinoköysi ja palkkisilta, joka koostuu tulosilloista sekä vinoköysiosuudesta
• Kokonaispituus: 1 191 metriä
• Pylonin korkeus: 135 metriä
• Pisimmät jännevälit: 260 metriä
• Alituskorkeus: 20 metriä
• Betonin kokonaismäärä: noin 22 000 m3
• Käyttöönotto liikenteelle: Jalankulku ja pyöräily 2026, raitioliikenne 2027 Vuoden Betonirakenne 2025Kruunuvuorensilta on näyttävä maamerkki merellisessä kaupunkiympäristössä
Tilaaja: Helsingin kaupunki, Kaupunkiympäristön toimiala
Suunnitteluttaja: Sitowise Oy
Suunnittelija: WSP Finland Oy
Urakoitsijat: TYL Kruunusillat: YIT Infra Oy, Kreate Oy
Siltaurakan valvonta: Rakennuttajatoimisto HTJ Oy
Betonirakenteiden säilyvyyssuunnittelu: Betoniviidakko Oy
Betonin toimittaja: Ruskon Betoni Etelä Oy
Vuoden Betonirakenne 2025Kruunuvuorensilta on näyttävä maamerkki merellisessä kaupunkiympäristössä
17 Kruunuvuorensilta heinäkuussa 2025. Pylonin poikkileikkaus on muuttuva; köydet kiinnittyvät huipun teräskoteloon.
18 Vuoden 2025 Betonirakenne-kilpailun palkittavien tahojen edustajat vastaanottivat kunniakirjat Espoon Dipolissa tammikuussa 2026.

Vuoden Betonirakenne -kilpailu on järjestetty vuodesta 1970 lähtien ja vuonna 2025 se järjestettiin 56. kerran. Tällä kertaa kilpailuun osallistui 10 korkeatasoista ehdotusta. Palkinto annetaan vuosittaisen kilpailun perusteella rakennuskohteelle, joka parhaiten edustaa suomalaista betonirakentamista. Tarkoituksena on tehdä tunnetuksi ja edistää suomalaista betoniarkkitehtuuria, -tekniikkaa ja -rakentamista. Kilpailun järjestää Betoniteollisuus ry.
Vuoden Betonirakenne 2025 -kilpailun tuomaristo:
Toimitusjohtaja, Jussi Mattila, Betoniteollisuus ry, tuomariston puheenjohtaja Arkkitehti SAFA, Samuli Miettinen, Suomen Arkkitehtiliitto SAFA
Rakennusarkkitehti RIA, Mika Suihko, Rakennusinsinöörit ja -arkkitehdit RIA
Dipl.ins., Pekka Talaskivi, RIL ry
Dipl.ins., Mirva Vuori, Suomen Betoniyhdistys ry Päätoimittaja, Tapio Kivistö, Rakennuslehti Päätoimittaja, arkkitehti SAFA, Maritta Koivisto, Betoniteollisuus ry, Betoni-lehti, tuomariston avustaja
Lisätietoja kilpailusta: http://www.betoni.com/tapahtumat/vuoden-betonirakenne
Vuoden 2025 Betonirakenne-ehdokkaat (10 kpl): Vuosaaren biolämpölaitos, Helsinki – Kivinen Rusanen Arkkitehdit Golfklubitalo Rock-Course, Siuntio – Huttunen-Lipasti Arkkitehdit Oy Villa Eerola-Vuorela, Espoo – HELST Oy
Project Sky, Prysmian, Kirkkonummi – Arkkitehtitoimisto Design Team Oy Kirjalansalmen silta, Parainen – WSP Finland Oy Kruunuvuorensilta, Helsinki – Knight Architects, WSP Finland Tuiran Monitoimitalo, Oulu – Verstas Arkkitehdit Oy Kottby grundskola, Käpylän ruotsinkielinen peruskoulu, Helsinki – AOR Arkkitehdit Oy As Oy Aallonharja -asuinkerrostalo, Jyväskylä – AOR Arkkitehdit Oy EriCa – Green Chemistry Park, Espoo – JKMM Arkkitehdit Oy
Concrete Structure of the Year 2025
– The new Kruunuvuori Bridge is an impressive landmark in urban waterfront environment
The new Kruunuvuori Bridge of Helsinki is an exceptional infrastructure project in terms of scale and execution, connecting Laajasalo with the city centre via light rail, pedestrian and bicycle routes. The bridge is a marked improvement to cross-city traffic in Helsinki and strengthens the competitivity of low-emission modes of transport while also providing a new, impressive marine landmark in the townscape.
With a length of 1191 metres, the Kruunuvuori Bridge is a composite cable-stayed and beam bridge with a concrete deck. Its pylon, rising to 135 metres, is a rarity in Finnish infra construction.
The development and use of advanced concrete technology in the project, such as special concrete types as well as real-time temperature and strength monitoring, aimed at a 200-year service life.
The construction stage was characterised by exceptionally precise design, challenging underwater concrete casting and consideration of the special conditions in an environmentally sensitive area.
According to the jury, the Kruunuvuori Bridge is an example of how technical quality, sustainable development, and architectural ambition can be combined in a large-scale infra construction project.
Jarno
Tero Pajukallio
Vuoden Ympäristörakenne 2025 KAPA, Raitiolinja 13
Kalasatamasta
Pasilaan

Maritta Koivisto, päätoimittaja Betoni maritta.koivisto@betoni.com
Kalasatamasta Pasilaan hankkeen keskiössä oli raitiotien rakentaminen Nihdistä Kalasataman kautta Pasilaan sekä lukuisia hankkeeseen kytkeytyviä katu- ja viheralueita. 4,5 kilometriä pitkä poikittaisyhteys liitettiin olemassa olevaan joukkoliikenneverkkoon, varmistaen sujuvat yhteydet työmatkalaisille ja alueen asukkaille. Ennusteiden mukaan Kalasatamassa asuu vuonna 2040 noin 25 000 asukasta ja alueella käy töissä 10 000 ihmistä. Raitiotien varrella katuympäristön viihtyisyys, houkuttelevuus ja turvallisuus paranivat. Jalankulun ja pyöräilyn olosuhteet paranivat myös merkittävästi. Lisäksi rakennettava raitiotie yhdistyy Nihdissä Kruunusillat-raitiotiehen, joka otetaan käyttöön vuonna 2027.
”Raitiotiehankkeessa rakennetaan ensisijaisesti toimivaa kaupunkia. Tehtyjen ratkaisujen täytyy kestää aikaa ja mukautua myös tulevaisuuden tarpeisiin. Ryhmällämme oli alusta asti yhteinen ajattelutapa. Halusimme tuottaa kaupunkilaisille ja tilaajalle aitoa arvoa ja optimoida toteutuksen soveltamalla muun muassa lean-rakentamisen menetelmiä”, toteaa hankkeen suunnittelupäällikkönä toiminut Jussi Borgenström
Hyvinvointia tuottavaa kaupunkisuunnittelua
Kestävät rakentamisen ratkaisut, luonnon monimuotoisuuden vaaliminen ja viihtyisän
kaupunkiympäristön rakentaminen olivat Kalasatamasta Pasilaan -hankkeen kantavia periaatteita. Esimerkiksi runsas ja monilajinen
KAPA, Raitiolinja 13 Kalasatamasta Pasilaan Helsingistä valittiin Vuoden Ympäristörakenne 2025 -kilpailun voittajaksi. Palkinto myönnetään tunnustuksena ansiokkaasta rakennetun ympäristön suunnittelusta ja toteutuksesta. Kunniamaininnan sai Kouvolassa oleva uudistettu Käyrälammen alue.
kasvillisuus muutti leveän Hermannin rantatien tunnelmaltaan viihtyisäksi ja kiinnostavaksi kaupunkitilaksi.
Vastuullisten toimenpiteiden toteutuminen vahvistettiin marraskuussa 2024 BREEAM Infrastructure -ympäristöluokituksella, jonka Kalasatamasta Pasilaan -hanke sai ensimmäisenä raitiotiehankkeena Suomessa.
”Hanke mahdollisti tavanomaista projektia huomattavasti laajemman asiantuntijaosaami-
1 Helsingin raitiolinja 13 kulkee Nihdistä (Sompasaari) Kalasataman metroaseman ja Vallilanlaakson kautta Länsi-Pasilaan. Reitti yhdistää uusia asuinalueita Pasilan työpaikka- ja palvelukeskittymään. Linjalla on 14 pysäkkiä suuntaansa.
2 Betonisessa Riimukivi-radassa on monilajista kuivuutta ja paahdetta kestävää kasvilajiketta. Nurmikiven kierrätyskasvualusta on kehitetty yhdessä Staran kanssa.


Vuoden Ympäristörakenne 2025 KAPA, Raitiolinja 13 Kalasatamasta Pasilaan



3 Paalulaatan betonivalua kesällä 2022. Ruskon Betoni Etelä Oy toimitti vuosien 2022 ja 2023 aikana hankkeeseen yli 14 000 kuutiota betonia erilaisiin infrarakenteisiin, kuten paalulaattoihin ja siltoihin. Valuissa käytettiin pääosin vähähiilistä betonia. Paalulaatoissa kuitumitoituksen ansiosta rakenne saadaan usein optimoitua, jolloin materiaalien käytön vähenemisen kautta myös päästöt vähenevät oleellisesti.
4 Radan rakennustyöt käynnissä Kalasatamassa.
5 Toteutuksessa ja ylläpidossa panostettiin kestävyyteen ja vastuullisuuteen. Hankkeessa kierrätettiin maamassoja sekä käytettiin kierrätyskiviä ja -kalusteita. Vähähiilistä betonia käytettiin paalulaatoissa, joita rakennettiin heikkojen pohjaolosuhteiden vuoksi merkittävä määrä.
6 Raitiolinja 13 liikennöi uudella 4,5 kilometrin rataosuudella, mahdollistaen matkustamisen Pasilan ja Kalasataman välillä alle vartissa. Rakentamisessa hyödynnettiin runsaasti kierrätyskiviä, kaduilta poistettuja luonnonkivilaattoja ja reunakiviä, kierrätyshiekkaa ja -kasvualustoja.
sen jakamisen, uudenlaisten mahdollisuuksien konkretisoinnin ja innovaatioiden syntymisen yli organisaatiorajojen. Säännölliset yhteiset suunnittelutapaamiset kahden allianssiryhmän välillä takasi, että raitiotien kaupunkiympäristön laaja kokonaisuus toteutui yhtenäisillä ja laadukkailla ratkaisuilla molempien allianssien osuuksilla", kaupunkimuotoilujohtaja Pia Salmi kertoo.
Vastuullisuus osana suunnittelua, toteutusta ja kunnossapitoa
Katuympäristöjen suunnittelussa vastuullisuus näkyy muun muassa kasvilajien kirjona ja kierrätettyjen materiaalien käyttönä.
Selkeät tavoitteet edistivät vastuullista suunnittelua ja rakentamista. Hankkeelle laadittiin kiertotalousmallit ja resurssiviisaan toiminnan periaatteet: purkumateriaaleista vähintään 50–80 % ohjattiin uudelleen rakentamiseen, PVC-muovin käyttöä vältettiin ja hankkeen tuotannossa käytettiin uusiutuvaa energiaa.
Toteutuksessa ja ylläpidossa panostettiin kestävyyteen ja vastuullisuuteen. Hankkeessa kierrätettiin maamassoja sekä käytettiin kierrätyskiviä ja alueelta kaadettuja puita maalahopuina. Vähähiilistä betonia käytettiin paalulaatoissa, joita rakennettiin heikkojen
Vuoden Ympäristörakenne 2025 KAPA, Raitiolinja 13 Kalasatamasta Pasilaan

pohjaolosuhteiden vuoksi merkittävä määrä. Vastuullisuustyö todennettiin BREEAM-sertifioinnilla.
Kunnossapidolle uusi raitiotie tuo myös uudenlaisia tehtäviä, kuten pysäkkien viherkattojen hoitamisen. Linjan 13 kaikille raitiotiepysäkeille on tehty viherkatot, jotka lisäävät kaupunkivihreää ja tarjoavat paikkoja hyönteisille.
Projektissa kiinnitettiin erityistä huomiota kestävien ratkaisujen toteutumiseen: materiaalien kierrätysaste oli 87 %, vihreän betonin käyttö vähensi hiilipäästöjä 17 % ja vähäpäästöiset polttoaineet työkoneissa tuottivat 97 % pienemmät päästöt kuin perinteiset polttoaineet.
Rakentamisessa hyödynnettiin runsaasti erilaisia kierrätyskiviä, kuten kaduilta poistettuja luonnonkivilaattoja ja reunakiviä, kierrätyshiekkaa ja -kasvualustoja sekä käytettiin ruokosilppua istutusten katemateriaalina.
Hulevesien hallintaan panostettiin rakentamalla viivytysratkaisuja, läpäiseviä pintoja ja ohjaamalla pysäkkien hulevedet puiden kasvualustoihin. Vallilanlaaksoon rakennettiin uusi avoin hulevesiuoma ja putkitettuja hulevesiviemäreitä avattiin luonnonmukaisiksi avopuroiksi.
Suunnittelua ohjasivat selkeät periaatteet, joita mittaroitiin ja toteutettiin koko projektin ajan. Asiakkaan, suunnittelijoiden ja rakentajien tiivis yhteistyö mahdollisti vaihtoehtojen arvioinnin ja parhaiden ratkaisujen tunnistamisen. Ihmisläheinen suunnittelu, luonnon monimuotoisuus ja dokumentoidut kestävät ratkaisut johtivat projektin "Kiitettävä" BREEAM Infrastructure -luokitukseen. Yhteistyötä tehtiin myös Aalto-yliopiston kanssa.
Esteettömyyskävelyillä ja tiiviillä yhteistyöllä varmistettiin hyvä kaupunkiympäristö kaikille sekä työmaan aikana että lopputoteutuksessa.
"Hankkeessa luodut kaupunkitilat tuovat käyttäjille positiivisia elämyksiä ja turvallisuuden tunnetta. Kohde on saanut kiitosta monimuotoisuudesta, innovatiivisuudesta ja vastuullisuudesta. Kohde toimii mallina kestävän kehityksen ja vastuullisuuden integroimisessa infrahankkeisiin", totesi tuomaristo.
Betonirakentamista ja betonin käyttöä Kalasatamasta Pasilaan -hankkeessa tehtiin vastuullisia valintoja käyttämällä pääosin vähähiilistä betonia.
Raitiotien rakentamisessa betonin käyttö muodostaa huomattavan suuren osan koko hankkeen hiilijalanjäljestä. Rakennuttajien arvion mukaan kokonaisuudessaan päästöjä hankkeessa vähennettiin noin 23 % verrattuna perinteisen betonin käyttöön.
Vähähiilistä betonia käytettiin paalulaatoissa, joita rakennettiin heikkojen pohjaolosuhteiden vuoksi poikkeuksellisen paljon.

Paalulaattojen lisäksi vähähiilistä betonia käytettiin muissakin rakenteissa aina, kun se aikataulusyistä tai muutoin oli mahdollista.
Erityisesti vähähiilistä betonia käytettiin esimerkiksi Hermannin rantatien pohjoispäässä. Vain paaluissa käytettiin tavallista betonia, koska vähähiilinen betoni ei soveltunut paalujen tekemiseen aikataulusyistä hitaamman lujittumisensa vuoksi.
"Ensimmäiset valut aiheuttivat meille haasteita, mutta betonin koostumusta muuttamalla pääsimme hyvään lopputulokseen", kertoo Niina Salojärvi, ympäristöasiantuntija Kaupunkiliikenteeltä.
Lisäksi hankkeessa käytettiin runsaasti betoni- ja hulevesikiviä.
Raitiolinja yhdistää monipuolisesti ympäristökokonaisuuksia Tuomariston mukaan voittajaksi valitussa KAPA, Raitiolinja 13 Kalasatamasta Pasilaan nousi esiin useita keskeisiä vahvuuksia. Kokonaisuutena raitiolinja nähtiin kunnianhimoisena hankkeena joka osa-alueella. Joukkoliikenne oli suunniteltu alusta alkaen osaksi jo olevaa kaupunkirakennetta sitä elävöittäen ja vihertäen. Raitiolinjaa kulkiessa ympäristöä seuraa mielellään.
"Raitiolinja on hieno esimerkki kokonaisuuksia yhdistävästä ja erilaisesta hankkeesta, joka näkyy myös hienosti kaupunkilaisten arjessa", kuvailee tuomariston puheenjohtaja Kaisa Koskelin Maisemasuunnittelijat ry:stä. •

7 Ruduksen Riimukiveä on käytetty raiteiden välissä ja kivet on saumattu luonnonkasvisaumalla. Kiveys toimii myös hulevesien imeyttäjänä.
8–9 Perinteisen nurmen sijaan viherradalla kasvaa monimuotoisempaa ja näyttävämpää monilajista paahde- ja niittykasvillisuutta sekä maksaruohoa ja sammalta. Erityisesti Vallilanlaaksossa ja Hermannin rantatien pohjoisosassa näyttää siltä, kuin raitiovaunu kulkisi kukkaniityn keskellä.
10–11 Ympäristö linjan 13 varrella on suunniteltu hyvin vaihtelevaksi: reitillä näkee niin kaupunkiympäristöä, ruderaatti- eli joutomaa-alueita, hulevesialtaita ja -uomia, aroistutuksia, merenrantakasvillisuutta kuin puistoympäristöäkin.

Kaupunkiliikenne
Kaupunkiliikenne
Aarni
Salomaa
Rudus
Kaupunkiliikenne


Vuoden Ympäristörakenne 2025 KAPA, Raitiolinja 13 Kalasatamasta Pasilaan

12 Hermannin rantatien tukimuuri on verhottu köynnöksin, jotka vähentävät melua ja sitovat pölyä. Köynnöspylväillä tuotiin vehreyttä kapeisiin katukuiluihin, joihin puita ei pysty istuttamaan. Rakentamisen tieltä siirrettiin katupuita uusille paikoille puistoalueille, jolloin osa puista voitiin jättää kaatamatta.
13 Hermannin rantatien kasvit ovat tottuneet karuihin oloihin ja matalakasvuisten lajien ansiosta rataa ei tarvitse hoitaa nurmiradan tyyliin.
Vuoden Ympäristörakenne -kilpailu on nostanut esille esimerkillisiä ympäristökohteita jo vuodesta 1992. Kilpailun järjestävät ja palkinnon myöntävät Betoniteollisuus ry, Kivi ry ja Viherympäristöliitto ry. Järjestäjätahojen lisäksi kilpailun tuomaristoon kuuluvat edustajat Suomen Arkkitehtiliitosta, ympäristöministeriöstä, Suomen Maisema-arkkitehtiliitosta, Viher- ja ympäristörakentajat ry:stä, Maisemasuunnittelijat ry:stä sekä lehdistöstä. Lue lisää kilpailusta: https://www.vyl.fi/vuodenymparistorakenne/

Tram route 13 from Kalasatama to Pasila Tram route 13, built in Helsinki from Kalasatama to Pasila, has won the Environmental Structure of the Year 2025 Award. The 4.5-kilometre long tram route connects key city areas, improves the effectiveness of public transport, and increases the appeal, safety, and accessibility of the urban environments.
The project was distinguished by its holistic urban design approach, a philosophy of strong responsibility, and extensive use of circular economy. The tram route serves as an example of how sustainable development, multidisciplinary cooperation, and human-driven design can be integrated into a complex infra project. Special attention was paid in the project to the execution of sustainable solutions: the recycling rate of materials was almost 90 percent and the use of low-carbon concrete, for example, reduced carbon emissions.
Recycled stone material was utilised in construction in an abundance, including natural stone slabs removed from streets, edging stones as well as recycled sand and growing media.
Mika Seppälä
Kalasatamasta Pasilaan -hanke, Pia Salmi
13 Kaupunkiliikenne
Vuoden

KAPA, Raitiolinja 13 Kalasatamasta Pasilaan -hankkeen palkitut tekijät:
• Kohteen tilaajat: Pääkaupunkiseudun Kaupunkiliikenne Oy ja Helsingin kaupunki
• Projektipäällikkö Mikko Asikainen
• Satu Talvio ja Niina Salojärvi vastuullisuus ja kaupunkiluonto
• Tuomas Lautaniemi, Tomas Palmgren, kaupunkitilat
• Kiertotalouden edistäminen, massakoordinaattori Mikko Suominen
Suunnittelu ja toteutus:
• Läpi linjan menevät ratkaisut, jotka koskevat koko raitiotietä:
• Kaupunkitilan suunnitteluvastaava Pia Salmi, WSP
• Vastuullisuuden johtaminen: Elisa Lähde, WSP ja Eija Multanen, Afry
Sörkan Spåra -allianssi Nihti – Hermannin rantatie
• Urakoitsija Destia Oy: projektipäällikkö Janne Korkalainen
• kaupunkiympäristön suunnittelijat: Janika Poltinoja, Laura Soosalu, Tuula Karhunen
• WSP Finland Oy: projektipäällikkö Jussi Borgenström
• kaupunkiympäristön suunnittelijat: Olivia Mahlio, Daniela Rosqvist, Johanna Petäjä, Sara Caetano, Satu Niemelä-Prittinen, Elina Regårdh, Pia Kurki, Jari Aaltonen,
• viherurakoitsija: VRJ: Marina Dolgorukovak, Jenni Salminen, Tuija Hakkarainen
Karaatti-allianssi Nylanderinpuisto – Länsi-Pasila
• Urakoitsija GRK Suomi Oy: projektipäällikkö Jonna Tuomiranta, viherrakentaminen: Sari Rinne, Anu Virranniemi
• AFRY Finland Oy: projektipäällikkö Pekka Saarinen, kaupunkiympäristön suunnittelijat: Hanna Ylitalo, Alina Juntunen, Lea Hettula, Ilkka Tiainen, Laura Eronen
• Maisema-arkkitehtitoimisto Näkymä: Vallilanlaakson puiston suunnittelu Yrjö Ala-Heikkilä, Katja Orrainen, Elina Renkonen
Valmistumisvuosi: valmistunut 2024
• Sijainti: Kohde sijoittuu välille Pasila – Kalasatama kulkien Vallilanlaakson kautta ja Hermannin rantatien suuntaisesti
Kouvolan Käyrälammen alueelle kunniamaininta Kilpailussa kunniamaininnan sai Käyrälammen alue Kouvolassa. Alue on ollut suosittu ulkoilukohde jo 1900-luvun alkupuolelta saakka ja se on uudistettu Kouvolan Kärkihankkeena 2020–2024. Hankkeessa osallistettiin monipuolisesti asiantuntijoita ja asukkaita. Alueelle rakennettiin esteetön ulkoilureitti, siihen liittyvä kevyen liikenteen silta ja uimaranta sekä Käyrälammenpuisto uudistettiin. Lopputuloksena on monipuolinen kohde, jossa kestävä ympäristörakentaminen on huomioitu ja alue on aiempaa huomattavasti saavutettavampi ulkoilukohde.
Tuomaristo halusi antaa kunniamaininnan kohteelle laadukkaasta suunnittelusta ja toteutuksesta erilaisille käyttäjäryhmille ja erityisesti esteettömyyden huomioon ottamisesta jokaisella osa-alueella. Kohdetta pidettiin onnistuneena ja se houkuttelee vierailemaan pidemmän matkankin päästä. •
14 Kouvolan Käyrälammenpuisto uudistettiin. Kohde palkittiin kunniamaininnalla.
Heka Laajasalo Gunillantie 3 – ilmeikkäitä valkobetonijulkisivuja
Asko Takala, arkkitehti SAFA Kirsti Sivén & Asko Takala Arkkitehdit Oy asko.takala@arksi.fi Tekstilisäykset:
Maritta Koivisto, päätoimittaja Betoni maritta.koivisto@betoni.com
Asuntoarkkitehtuurista ja tilasuunnittelusta
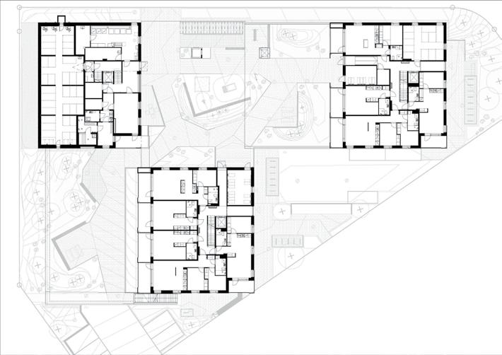
Hekan Laajasalon Gunillantie 3:n asemakaava räätälöitiin täydennysrakentamista varten. Kohde sijaitsee entisellä lämpökeskuksen tontilla, jossa toimi aiemmin kaupungin kiinteistöyhtiön huolto- ja varikkopiste.
Purettavien rakennusten paikalle rakennettiin asemakaavan mukaisesti kolme asuintaloa, pihakannen alainen autohalli sekä Heka:n varikkotilat, pääosin kannen alle. Kaavan mukaisesti rakennusten pohjamuoto on yksinkertainen ja rakennukset ovat tasakattoisia. Kohteen hintataso määräytyi ara-rahoituksen ehdoilla. Kustannushaasteita lisäsi haasteellinen maasto.
Taloissa on runsaasti asukkaiden yhteisiä tiloja: kaksi saunaa, maksuton pesula kuivaushuoneineen, kerhotila ja erilaisia varastoja. Toinen saunaosastoista sijaitsee pihatasossa ja toinen yhden talon ylimmässä kerroksessa.
Asukasautopaikkoja on 44. Piha-alueella ja pohjakerrosten varastotiloissa on yhteensä noin 200 polkupyöräpaikkaa.
Pistetalojen neliömäinen pohjamuoto ja lomittain sijoittelu tontille olivat antoisa lähtökohta hyville asuntopohjille.
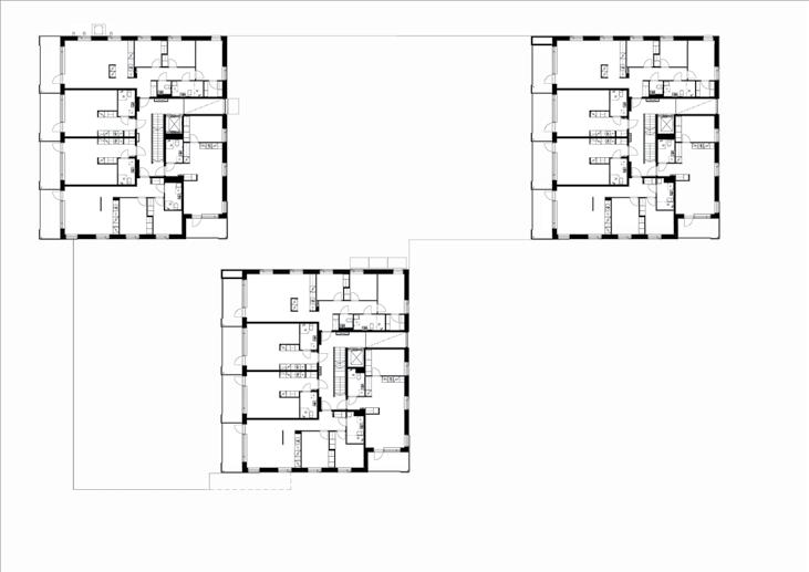
Talot ja asunnot on suunniteltu esteettömiksi ja niihin on esteetön kulku. Kohteessa on kolme hissillistä, 5–7-kerroksista taloa.
Asuntoja on yhteensä 81 yksiöistä liki sataneliöisiin perheasuntoihin. Asuntojen keskipinta-ala on 54,4 m2. Asuntokoot vaihtelevat välillä 35–99,5 m2
Heka Gunillantie 3 on Helsingin kaupungin asuntotuotannon kohde Laajasalossa, joka sijaitsee meren ja puistojen lähellä. Kokonaisuus koostuu kolmesta hissillisestä talosta, joissa on yhteensä 81 asuntoa yksiöistä perheasuntoihin. Kohteen pääsuunnittelijana on toiminut arkkitehti Kirsti Sivén arkkitehtitoimisto Kirsti Sivén & Asko Takala Arkkitehdit Oy:stä.
Kaikki asunnot ovat saunattomia ja jokaisessa on lasitettu parveke. Asuntoihin kuuluu myös lämmin irtaimistovarasto.
Asuntojen materiaalit ovat yhteneväiset: lattiat ovat vinyylilankkua ja kylpyhuoneiden lattiat on laatoitettu keraamisella laatalla. Asuntojen keittiöissä on tilavaraukset ja liitännät astianpesukoneelle ja mikroaaltouunille.
Gunillantie 3 on savuton kohde: tupakointi on kielletty asunnoissa, parvekkeilla ja yhteisissä tiloissa.
1 Pihapiirros Gunillantie 3:n tonttialueesta.
2 Osanäkymä parvekejulkisivusta lännestä, Aake Pesosen puistosta.

Kuvatoimisto Kuvio / Martin Sommerschield


Julkisivut tehtiin betonista
Asemakaavan mukaan julkisivujen tuli olla vaaleita pihakannen yläpuolella. Pihakannen alapuolella julkisivujen tuli poiketa muiden kerrosten julkisivuista värin, materiaalin tai pintakäsittelyn osalta.
Kohteen julkisivut ovat valkobetonisandwichin kunnianpalautus lähes parin vuosikymmenen pannassa olon jälkeen. – Otimme käyttöön vanhat ja hyväksi havaitut opit siitä, miten yksinkertaisin keinoin ja hyvällä yhteistyöllä rakenne- ja elementtisuunnittelun kanssa saadaan aikaan lopputulos, joka ei näytä pahamaineiselta elementtijulkisivulta, vaan muistuttaa rapattua julkisivua yksiaineisuudessaan, kertoo arkkitehti Kirsti Sivén.
Pelkistetty ikkunadetalji luo julkisivulle voimakkaan reliefin, joka riittää ilman erityisiä betonin pintatekstuureja.
Arkkitehdin lyijykynäskissi täydentyi rakennesuunnitelmiin ja elementtisuunnitelmiin juohevasti ja alkuperäisen idean säilyttäen. – Käytetyt keinot olivat aiemmissakin kohteissamme hyväksi havaittuja, kertoo Sivén.
Pystysaumoja siirrettiin ikkuna-aukkojen reunoihin ulkokuoren jatkeilla ja vaakasauma häivytettiin käyttämällä ikkunoiden alareunassa isoa viistettä vesipellin alla, jolloin tavanomaisella paikalla laatan yläpinnassa oleva

4 Julkisivut pohjoiseen.

5 Julkisivut länteen.
Kuvatoimisto

3 Ilmakuva.
6 Kansipiha. Kuvassa oikealla betoniset pinnoitetut savunpoistoikkunat.
7 Puistonäkymä lännestä.


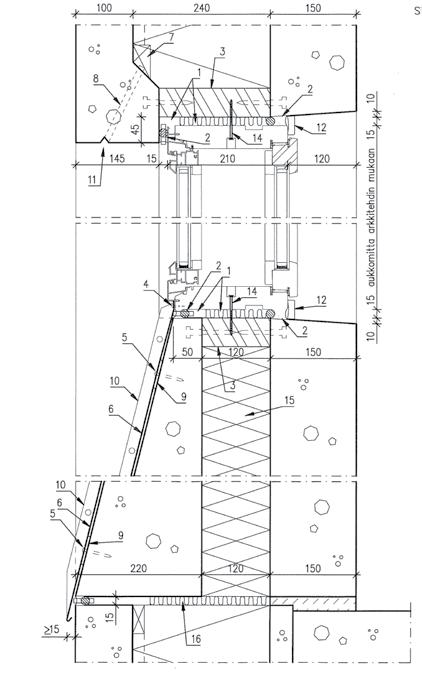
8 Ikkunan liittyminen sandwich-ulkoseinään. Rakennepystyleikkaus.

9 Perusikkunan sovitus ulkoseinään. Projektio, vaakaja pystyleikkaus arkkitehtisuunnitelmien mukaan.

10 Ikkunan liittyminen sandwich-ulkoseinään. Rakennevaakaleikkaus ikkunan tasossa.

Kirsti Sivén & Asko Takala Arkkitehdit Oy

sauma sijoittui vesipellin alareunan kohdalle. Viisteen luomaa julkisivureliefiä tuettiin tuuletusikkunoiden eteen sijoitetulla viistolla reikäpellillä. Tällä saatiin myös tuuletusikkunan jako häivytettyä.
Yhtenäisiä, länteen päin suuntautuvia parvekevyöhykkeitä jäsentelevät valkobetoniset pystynauhat. Parvekkeen kaiteet ovat kuvioitua lasia.
Pihakannen alapuoliset sivut ja tukimuurit tehtiin pystyuritetuista elementeistä, jotka pinnoitettiin työmaalla ruosteenruskean sävyisellä pinnoitteella (KEIM-tuotteilla).
– Käytetyissä keinoissa ei sinänsä ole mitään uutta tai vallankumouksellista: sauman siirtoja käytimme jo toimistomme ensimmäisessä isossa kerrostalokohteessa, joka valmistui vuonna 1989 Kampin kolmioon, kertaa Sivèn.
Asemakaavat ovat usein kieltäneet elementtien käytön, ja siten elementtijulkisivun on mielletty kuuluvan vain sellaisiin asuntokohteisiin, joissa halvan pitää myös näyttää halvalta. – Parempi detaljiikka ei maksa niin paljoa, ettei sitä saataisi ara-tuotannonkin hintaraamiin mahtumaan, muistuttaa Sivén.
Selkeät rakenteet ja laadukas toteutus Laadukas rakenne- ja elementtisuunnittelu ovat edellytys pelkistetyn betonielementtijulkisivun tyylikkäälle toteutukselle.
Maasto oli haastava. Rakennusten kantava runko muodostuu betonielementeistä ja väli- ja yläpohjat ovat paikallavalettuja betonilaattoja. Alapohjat ovat kantavia, tuuletettuja ja eristettyjä betonirakenteita.
11 Tonttinäkymä lännestä, parvekejulkisivuja.
12 Katunäkymä lounaasta, Gunillantieltä.
Ilmeeltään laadukasta elementtitekniikkaa on ollut käytössä kauan, mutta viime vuosina sen käyttö asuntokohteissa on rappeutunut.
Vesikatto on ns. tasakatto, jonka katemateriaalina on kumibitumikermi. Talojen katoille asennettiin myös aurinkopaneeleita. •
– ilmeikkäitä valkobetonijulkisivuja

HEKA Laajasalo Gunillantie 3

Osoite: Gunillantie 3, 00870 Helsinki Laajasalo 48, kortteli 49077 tontti 3
Valmistumisvuosi: 2024
Asuntopinta-ala 4 406 m2, liiketilaa 113 m2 ja varikkoa 525,5 m2. Hyötyala on 5044,5 m2. Bruttoala 7731 m2 Kiinteistön omistaja: Helsingin kaupunki, HEKA
Rakennuttaja: Helsingin kaupungin kaupunkiympäristö, Asuntotuotanto, KYMP/ ATT
Arkkitehtisuunnittelu: Kirsti Sivén & Asko Takala Arkkitehdit Oy/ pääsuunnittelija ja arkkitehtisuunnittelusta vastaava arkkitehti Kirsti Sivén, projektiarkkitehdit Aino Born ja Kristiina Timonen
Rakennesuunnittelu: Jonecon Oy / Jukka Kudjoi
LVI-suunnittelu: Hepacon Oy
LV-urakoitsijaksi: Krantec Oy
SähkösuunnittelU: Hepacon Oy
Elementtisuunnittelu: JL-Rakenne Oy/ Jorma Lyhty ja Mikko Havuaho
Pääurakoitsija EKE-Rakennus Oy / työpäällikkö Jarmo Lievonen, vastaava työnjohtaja Esa Haavasoja
Betonielementtitoimittaja, julkisivuelementit: Lahden Kestobetoni Oy
13 Näkymä etelästä, Gunillantieltä. Alakerrassa sijaitsevat liiketilat ja huoltovarikko. Katutason julkisivu on pystyuritettu ja pinnoitettu ruosteenruskealla pinnoitteella.
17 Porrashuoneen valokuilu, talo 3.
18 Porrashuoneen valokuilu, talo 2.
Heka Laajasalo, 3 Gunillantie Street, Helsinki
Heka Laajasalo, 3 Gunillantie Street is a housing development of the City of Helsinki in Laajasalo, in the vicinity of the sea and parks. The estate consists of three 5-7 storey buildings with lift access and a total of 81apartments from studios to large family units. The apartments are accessible and feature glazed balconies and heated storage rooms, but no saunas. The residents are able to enjoy plenty of communal spaces, including saunas, a free laundry and an assembly room, as well as parking space for 44 vehicles and for about 200 bicycles.
The project was carried out in compliance with the terms of ARA financing as an infill development on a property previously used by a heating plant. The architecture of the buildings is based on distinct masses with flat roofs and light-coloured concrete facades that utilise precast technology of a high standard and thought-out details. The load-bearing structures are precast concrete elements, and solar panels are installed on the roofs. Cost-efficiency, quality, and sustainability have been emphasised in the design, despite the challenging land contours. •
AUTOHALLI VARIKKO
14 Leikkaus
Kuvatoimisto Kuvio / Martin Sommerschield
Heka Laajasalo Gunillantie 3
Heka Laajasalo Gunillantie 3 – ilmeikkäitä valkobetonijulkisivuja

15 Pihataso
A,B,C porrashuoneet
S sauna
K kerhotila
H+KT asunnot nimetty
V väestönsuoja


16 2.–4. kerros
A, B, C porrashuoneet H+KT asunnot nimetty

Kirsti Sivén & Asko
Takala Arkkitehdit Oy
Kirsti Sivén & Asko Takala Arkkitehdit Oy
Kirsti Sivén & Asko Takala Arkkitehdit Oy
Espoon Marinrantaan rakennetaan lisää uusia asuntoja
Jyrki Tasa, professori, arkkitehti SAFA Arkkitehdit NRT Oy jyrki.tasa@arkkitehditnrt.fi
Anne Kleemola, arkkitehti SAFA, Arkkitehdit NRT Oy anne.kleemola@arkkitehditnrt.fi Tekstilisäykset:
Maritta Koivisto, päätoimittaja, Betoni maritta.koivisto@betoni.com
Marinrannan asuntoalueen rakentaminen sijoittuu kolmeen kaartuvaan rakennuslinjaan, jotka mukautuvat rinteiseen maastoon. Alueen rakentaminen aloitettiin jo vuonna 2017 ja se jatkuu edelleen.
YIT on käynnistänyt uusimman omaperusteisen Asunto Oy Espoon Vesta -nimisen asuinkerrostalon rakentamisen loppuvuonna 2025 ja kohde valmistuu 2026 loppuun mennessä.
Uuteen kahdeksankerroksiseen asuintaloon tulee yhteensä 30 kotia. Hankkeen arvo on noin 15 miljoonaa euroa. YIT on toteuttanut aiemmin samalle alueelle seitsemän kohdetta: Asunto Oy Neptunuksen, Apollon, Selenen, Helioksen, Kronoksen, Poseidonin ja Notoksen. Vuonna 2024 valmistunut Asunto Oy Espoon Notos on seitsemänkerroksinen kerrostalo, ja korttelin muut rakennukset ovat pääosin 8-kerroksisia, porrastuen maaston mukaan. Rakennusmassoista pisin jatkaa naapuritonttien kaartelevaa rakennusketjua ja Asunto Oy Notos on osa tätä ketjua.
Pienkerrostalot Vanhan Jorvaksentien ja Marinkallio-kadun vieressä ovat kolmekerroksisia. Maastonmuotoja mukaileva, kolmikerroksinen pysäköintilaitos integroituu luontevasti Länsiväylän varteen. Se tarjoaa pysäköintitilaa koko asuntoalueelle ja suojaa asuinkortteleita liikenteen melulta.
Rakennukset on sijoitettu kaareviin muotoihin ja myötäilemään kumpuilevaa rinteistä maastoa. Harkitulla ryhmittelyllä, asuntojen suuntamisella merelle ja etelä-lounaaseen sekä meluesteillä luodaan kokonaisuus, jossa on optimoitu sekä valo-olosuhteet että hiljaisuus.
Espoon Marinranta on osa Kivenlahden uudistuvaa merellistä asuinaluetta. Aluetta rakennetaan rinteiseen maastoon, jossa asuinrakennukset sijoittuvat kaareviin linjoihin ja suuntautuvat merelle päin.
Asuinrakennukset muodostavat suojaisia pihapiirejä, mutta säilyttävät myös välittömän yhteyden ympäröivään luonnonmukaiseen metsävyöhykkeeseen.
Asuntojen pohjaratkaisuissa on huomioitu merinäköalat ja pitkät näkymälinjat, ja niissä on panostettu sisätilojen selkeyteen. Asuntotyypit vaihtelevat kaksioista kuuden huoneen asuntoihin.
Rakennusten julkisivumateriaaleissa on huomioitu kestävyys
Myös julkisivujen suunnittelussa ja materiaalivalinnoissa on pyritty huomioimaan meluntor-
1 Marinrannan aluekuva.
2 Pienkerrostalot Vanhan Jorvaksentien ja Marinkallio-kadun vieressä ovat kolmekerroksisia.
3 Ilmanvaihtokonehuoneet jaksottavat muuten varsin sileäpintaista julkisivua Länsiväylän puolella.



4 Marinranta-alueen pohjapiirroksia.
5 Pienkerrostalojen julkisivuja rytmittävät valkobetoni, graafinen betoni ja lasipinnat.

Espoon Marinrantaan rakennetaan lisää uusia asuntoja
Maritta Koivisto

6 Marinrannan korttelin rakennuksia merelle päin.
7 Pohjapiirrokset: As Oy Kronos ja As Oy Helios.
8 Marinranta-alueen leikkauspiirros.
Marinsatama
Espoon Marinrantaan rakennetaan


9 10
junta ja luonnonläheiset näkymät.
Rakennusten rungot ovat betonielementtirakenteisia. Rakennusrunkoon nähden poikittain sijoitetut ilmanvaihtokonehuoneet ja niiden julkisivupinnan yli ulottuvat päädyt jaksottavat muuten varsin sileäpintaista julkisivua Länsiväylän puolella.
Pääasiallinen julkisivumateriaali Länsiväylän puolella ja päädyissä on valkobetoni ja sisäänkäyntejä on korostettu korkein vinolinjaisin lasiseinin ja niihin liittyvin graafisen betonin pinnoin. Kortteleissa rakennusten julkisivut meren suuntaan ovat pääosin lasisia parvekejulkisivuja.
Merellinen teema tulee esiin rakennustenkaarevissa muodoissa, vinolinjaisissa lasiseinissä ja parvekkeiden puupintaisissa taustaseinissä. Parvekkeet muodostavat meren puolen julkisivuilla linjakkaan yhtenäisen julkisivupinnan lasikaitein ja julkisivuja jäsentävin kuvioiduin lasituksin.
Julkisivujen ikkunat on ryhmitelty aaltoileviksi kokonaisuuksiksi, joissa ilmettä antavat vaalean harmaiksi maalatut ja osittain tumman harmaat pellitetyt syvennykset. Julkisivuja elävöittävät myös lasiseiniin liittyvät graafisen betonin seinäpinnat ja valkobetonielementtien valesaumat.
Graafista betonia on käytetty myös porrashuoneiden seinissä. Melu- ja tukimuureissa on käytetty samaa graafisen betonin kuviota hieman vaaleampana kuin rakennusten por-
rashuoneiden lasiseiniin liittyvissä graafisen betonin pinnoissa.
Julkisivujen betonielementeissä on käytetty valkosementtiä ja kiviaineksena Finnsementin maahantuomaa valkoista dolomiittia 42R, jonka suurin raekoko on 8 mm. Sileiden, muottia vasten valettujen pintojen laatuluokka on MUO-AA-VAL-S/AG-E. Valkobetonijulkisivuissa on käytetty myös valesaumoja, jotka ovat osa julkisivusommitelmaa.
Porrashuoneen lasiseinän viereisellä kapealla seinäosuudella on julkisivussa käytetty graafista betonia, jonka kuvio on arkkiteh-
din kortteliin erityisesti suunnittelema. Nämä osat julkisivusta on toteutettu valkosementtipohjaisena väribetonina graafisen betonin tekniikalla. Valkosementtiin on lisätty mustaa pigmenttiä 5 %. Runkoaineeksi suunnitelmissa
9 Sisäänkäyntijulkisivua.
10 Graafinen betoni toistuu julkisivupinnoissa.
11–12 Julkisivuja merelle. Lasiset parvekkeet muodostavat linjakkaan julkisivupinnan.

Espoon Marinrantaan rakennetaan lisää uusia asuntoja
Arkkitehdit NRT Oy
Maritta Koivisto
Maritta Koivisto

Espoon Marinrantaan rakennetaan lisää uusia asuntoja
Maritta Koivisto
Espoon Marinrantaan rakennetaan lisää uusia asuntoja

määriteltiin Hyvinkään musta gabro 35R, jonka suurin raekoko on 12 mm. Pinnan laatuluokka on PES-AA-MUS-S/AG-E.
Alueen veistoksellinen pysäköintilaitos sijaitsee Länsiväylän varrella Länsiväylän vieressä sijaitseva pysäköintilaitos palvelee kahdeksaa taloyhtiötä Marinkallion asuntoalueella. Rakennus toimii myös meluesteenä vilkkaasti liikennöidyn väylän ja asuinrakennusten välissä.
Taitteinen pääjulkisivu on välittävä vapaamuotoinen elementti maaston loivien muotojen ja tektonisten rakennusten välissä. Pysäköintilaitoksen julkisivun veistoksellisuus korostuu etenkin iltavalaistuksessa.
Rakennuksen kantava runko on betonia. Pitkän julkisivun rakenteet ovat terästä ja pinta rei’itettyä merialumiinia. Muissa julkisivuissa on käytetty Cor-Ten® -terästä ja Umbra-menetelmällä pintavärjättyä, patinoitua betonia.

Pysäköintilaitoksen rakennesuunnittelusta Marinrannan pysäköintirakennuksen 150 metriä pitkän ja kymmenen metriä korkean alumiinijulkisivun geometrisesti haastava muoto tuli sovittaa saumattomasti yhteen paikalla valetun pysäköintirakennuksen betonirunkoon. Alumiinijulkisivun tukirunko on kuumasinkittyä terästä.
Alumiinisten lohkojen elementit mitoitettiin yhteensopiviksi teräsrungon kanssa. Julkisivun päätyjen liittymät yhteensovitettiin Cor-Ten®-pintojen kanssa. Julkisivujen räystäät taipuvat yhteen pysäköintitalon katon kanssa.
Suunnittelussa otettiin huomioon teräsrungon säätömahdollisuudet betonirungon toleransseihin nähden. Itse tukirungon etäisyyttä betonirungosta voitiin asennettaessa säätää kierretankojen avulla.
Teräsrakenteiden hienosäätöä tehtiin asennuksen aikana teleskooppisten etäisyyssäätöjen kanssa. Tukirungon pystysuuntainen

suoruus säädettiin löysäämällä tai kiristämällä vetotankoja, ja pituussuuntaista tarkkuutta parannettiin pitkien reikien avulla.
Lähtötietoina suunnitelmille toimivat arkkitehdin piirustukset ja pintamalli, joka muokattiin algoritmiavusteisesti Grasshopperin avulla Teklan ohjelmistoon referenssitiedoksi.
Asuntoalue Marinranta ja pysäköintilaitos, Espoo
Rakennusaika: 2017–2029
437 asuntoa
Asunto Oy Espoon Notos:
Osoite: Marinkallio 10, 02320 Espoo
Valmistumisvuosi: 2024
Kiinteistön omistaja: Sirius Capital Partners
Tilaaja: Sirius Capital Partners
Arkkitehtisuunnittelu: Arkkitehdit NRT Oy / Jyrki Tasa, Anne Kleemola, Timo Arjanko, Olli Vuorinen, Jaan Gröndahl
Elementtisuunnittelu: A-Insinöörit Oy / Tampereen elementtisuunnittelutiimi/ suunnittelupäällikkö Jan-Erik Kivinen
Pääurakoitsija: YIT Housing Oy, alueen hankekehittäjä ja rakennuttaja
Betonielementtitoimittaja: OÜ TMB Element
Marinrannan pysäköintilaitos, Espoo
Arkkitehtisuunnittelu: Arkkitehdit NRT Oy: Jyrki Tasa, arkkitehti, professori, Anne Kleemola, arkkitehti, Olli Vuorinen, arkkitehti, Valtteri Osara, arkkitehti
Rakennesuunnittelu: A-Insinöörit Oy, Lauri Pennala, rakennesuunnittelija
Pääurakoitsija: YIT Suomi Oy
Metallijulkisivun urakoitsija: Pohjanmaan
Rakennuspelti Oy
Ulkovalaistuksen suunnittelu: Sweco Oy
Maritta Koivisto

13 Umbra-patinakäsitelty betonijulkisivu.
14 Pysäköintilaitoksen pitkässä sisäänkäyntijulkisivussa on käytetty Cor-Ten® -terästä ja Umbra-patinoitua paikallavalettua betonia.
15 Vanhan Jorvaksentien ja Marinkallio-kadun viereiset pienkerrostalot ovat kolmikerroksisia.
16 Länsiväylän vieressä sijaitseva pysäköintilaitos palvelee kahdeksaa taloyhtiötä Marinkallion asuntoalueella
17 Pysäköintilaitoksen julkisivun rei’itettyä Cor-Ten® -terästä ja merialumiinia.
Marinranta in Espoo is a maritime residential estate
Marinranta in the Kivenlahti area of Espoo is a maritime residential estate that has been under development in the sloped terrain since 2017. It is scheduled to be completed in phases by the year 2029.
The apartment buildings located in the curved lines of the area are mainly 7-8 storey high and feature sea views, noise abatement, and sheltered courtyards as highlights.
The most recent project, expected to be completed by the end of 2026, is Housing Company Espoon Vesta developed by YIT. The facades of the buildings showcase white concrete, glass balconies and graphic concrete with maritime motifs.
The sculptured above ground parking facility near Länsiväylä motorway is used by several Housing Companies and also serves as a noise barrier. •

Espoon Marinrantaan rakennetaan
16
Arkkitehdit
BIG HQ – Betonilinnake meren äärellä
Pertti Vaasio, rakennusarkkitehti RIA pertti.vaasio@elisanet.fi
Kerrosalaltaan 4 488 neliömetrin suuruinen pääkonttori on 27 metriä korkea ja seitsenkerroksinen rakennus. Lähtökohtana oli nelikerroksinen rakennus, joka muunnettiin puolittamalla kerrokset ja kaksinkertaistamalla tasojen määrä.
Keskuspilarin varassa olevat eri suuntiin kiertyvät kerrokset avautuvat atriumiin. Risteilevät mustaksi käsitellyt teräksiset portaat yhdistävät kerrokset toisiinsa. Näin muodostuu visuaalinen ja fyysinen tila.
Rakennuksen ulkoseinää kiertää 140 metriä pitkä portaikko kattoterassilta alas katutasolle. Hätäpoistumistienä toimivaan portaikkoon on pääsy jokaisesta kerroksesta.
LEAP
BIG pääkonttori on yrityksen prototyyppi täysin integroidusta LEAP-suunnittelusta – arkkitehtuurin, rakennesuunnittelun, taloteknisen suunnittelun, maisemasuunnittelun, ja tuotesuunnittelun yhteistyöstä. LEAP-tiimi on antanut muodon kaiken ovenkahvoista betonipilareihin ja kaupunkisuunnittelusta lasijulkisivuihin.
LEAP on lyhenne sanoista Landscape, Engineering, Architecture and Product, ja se on konsepti, jossa arkkitehtuuri, rakentaminen ja kestävyys ovat vuorovaikutuksessa.
Kööpenhaminan Nordhavnin Sundmolenin laiturin kärkeen valmistui keväällä 2024 Bjarke Ingels Groupin uusi pääkonttori BIG HQ, joka ankkuroitui varastojen, konttien ja laitureiden keskelle. Rakennus on ensimmäinen, jossa BIG vastasi kaikesta suunnittelusta ovenkahvasta maisemasuunnitteluun. Rakennus on mitoitettu 350 työntekijälle.
Uutta betonia
Rakennuksessa on käytetty Uni-Green -betonia. Siinä kolmannes sementtiklinkkeristä korvataan kalsinoidulla savella. – Uni-Green on kestävä, vähähiilinen valmisbetoni, jonka on kehittänyt tanskalainen Unicon. Siinä hyödynnetään Futurecem®-teknologiaa hiilijalanjäljen pienentämiseksi noin 25–50 % perinteiseen betoniin verrattuna.
Kalsinoidulla savella on useita etuja sementtiin verrattuna. Savi kalsinoituu 700–800 °C:ssa, kun taas kalkkikivi vaatii 1 500–1 600 °C:n lämpötilan. Koska savi ei sisällä hiiltä, hiilidioksidipäästöjä ei vapaudu kemiallisen reaktion aikana. Tämän seurauksena CO2-päästöjä on neljännes vähemmän perinteiseen betoniin verrattuna.
Sementtiklinkkerin korvaaminen johtaa yleensä lujuuden menetykseen, mutta uudella yhdistelmällä saavutetaan vertailukelpoinen puristuslujuus.
Betonimassaan lisättiin kovettumisainetta varmistamaan, ettei kalsinoitunut savi vaikuttanut kovettumisaikaan. Arkkitehdit olivat tyytyväisiä betonin hieman tavallista ruskeampaan sävyyn.
1 Työskentely tapahtuu avoimissa tiloissa, vain neuvottelutilat ovat eristettyjä. 1


Yhden pilarin varassa BIG HQ nousee pohjakerroksen lisäksi kuuteen puolikerrokseen. Perinteisen seinästä seinään ulottuvien lattiarakenteiden sijaan kerrokset on porrastettu niin, että niitä tukevat reunapalkit kulkevat rakennuksen keskellä olevan pilarin kautta. Ratkaisulla turvattiin päivänvalon saaminen myös rakennuksen keskiosaan.
Rakennuksen ulkoseinät koostuvat 28 ”megapalkista”, suurista 4 metriä korkeista ja jopa 20 metriä pitkistä betonilevyistä. Nämä on pinottu vuorotellen samankorkuisten lasiseinien kanssa. Levyt limittyvät rakennuksen nurkissa. Niiden suuri koko teki massatuotannon kannattamattomaksi. Megapalkit valettiinkin paikan päällä sandwich-elementtien tapaan.
Rakennuksen keskipisteen muodostavalle totemimaiselle pilarille on annettu sybolinen merkitys eri louhoksista peräisin olevien kivimateriaalien avulla: ylimpänä italialainen Carraran marmori, sitten ruotsalainen marmori ja alempana pohjoismaiset graniitit, jotka kantavat raskaimmat kuormat.
Rakennuksen sisällä on teollinen tunnelma; tavoitteena oli luoda avoin varastotyyppinen tila. Rakennuksen pohjoissivulle on keskitetty hissi, portaikko, saniteettitilat, varastot, tulostinhuoneet ja talotekniikan tarvitsemat kuilut.
Rakennus avautuu ympäristöönsä suurten ikkunoiden kautta. Rakennuksessa on 1 499 m2 erityyppistä kolminkertaista ikkunaa, joissa on hyvän lämmöneristyksen lisäksi tehokas suoja auringonsäteilyä vastaan.
Poikkeavat rakennusmenetelmät
Pääurakoitsijana toimineen LM Byg’in mukaan rakentaminen on ollut teknisesti haastavaa ja siinä on käytetty useita jännittäviä ja epätavanomaisia rakennusmenetelmiä.
Perinteisessä rakenteessa välipohja lepää alempana olevien palkkien, pilarien ja seinien varassa. Terrassimaisten puolikerrosten ja porrastettujen ulkoseinien takia tämä ei ollut mahdollista.
Rakennuksen betonirakenteet ovat paikalla valettuja lukuunottamatta väli- ja yläpohjan esijännitettyjä TT-laattoja. Ne tukeutuvat toisesta päästä perinteisen betonipalkin varaan. Laattojen toinen pää ripustettiin ulkoseinän massiivisen megapalkin alareunaan.
Rakennusta kiertävän portaikon kaide ja portaat valettiin paikalla teräsmuotteihin.
”BIG HQ on rehellinen rakennus. Kaikki pinnat ovat näkyvissä, kaikki betoniliitokset ja kulmat ovat näkyvissä. Myös kaikki pinnat ovat käsittelemättömiä. Se asetti lisävaatimuksia muotitukseen ja valuprosessiin. Meidän
2 BIG HQ sijaitsee Kööpenhaminassa meren äärellä aivan Nordhavnin Sundmolenin laiturin kärjessä.
3 Massiiviset ulkoseinät on valettu vähähiilisestä Uni-Green -betonista.
4 Rakennuksen pääsisäänkäynti on varsin vaatimaton. Ovesta vasemmalla on betoniin upotettu yrityksen nimi Morsen aakkosin.




6
5–6 Energiapaalut toimivat myös rakennuksen perustuksina. Pituudeltaan 14-metrisiä paaluja tarvittiin kaikkiaan 222 kappaletta.
piti valmistaa uudentyyppistä betonia, jota ei ollut vielä markkinoilla eikä se käyttäydy kuin klassinen betoni”, sanoo Frank Aarslew-Jensen, LM Byg’in rakennusaikainen toimitusjohtaja.
Energiapaalut perustuksena
Energian ja hiilidioksidin optimointi on ollut yksi lähtökohta BIG HQ:n kehittämisessä. Rakennus perustettiin 14-metristen betonisten energiapaalujen varaan. Niitä tarvittiin 222 kappaletta. Niiden sisällä olevien maalämpöputkien kautta tuotetaan vuosittain 132 MWh lämpö- ja 60 MWh jäähdytysenergiaa. Tämä vastaa 84 prosenttia rakennuksen kokonaislämmön tarpeesta ja 100 prosenttia jäähdytystarpeesta. Loput energiatarpeesta hoidetaan kaukolämmöllä.
Sähköä tuotetaan katolla olevilla aurinkopaneeleilla.
Rakennus on suunniteltu saavuttamaan Tanskan kestävän kehityksen rakennuksen DGNB-sertifikaatin Gold -tason. Tämän takia rakentamisessa on käytetty useita kestäviä toimenpiteitä, kuten uudentyyppisille betonipaaluille rakennettu perustus, upotetut maalämpöputket sekä hiilidioksidipäästöltään alhaisemman betonin käyttö. Konseptia
tarjotaan yrityksen asiakkaille, minkä vuoksi BIG:n uusi rakennus toimii sekä pääkonttorina että esittelykohteena.
Kööpenhaminan pyrkimys vihreäksi kaupungiksi edellyttää uudisrakennusten saavuttavan vähintään 60 prosentin riippuvuuden uusiutuvasta energiasta ja hyödyntävän passiivisia suunnittelustrategioita, kuten luonnollista ilmanvaihtoa. Rakennuksen 68 avattavaa ikkunaa toimivat hiilidioksidi-antureiden ohjauksella.
Parkkipaikasta puisto Rakennuksen vieressä ollut pysäköintialue muutettiin yleiseksi puistoksi, joka on saanut inspiraationsa tanskalaisen maiseman hiekkarannoista ja rannikkometsistä. Pohjoisen puolella rannikon puut suojaavat kovilta tuulilta. Etelän puolella rakennettiin alueita, joissa on istutusalueita, kiviä ja puita tukemaan elinympäristöjen monimuotoisuutta.
Puiden välissä oleva amerikkalaisen taiteilijan Benjamin Langholzin veistos ”Stone 40” koostuu kierremuotoon järjestetystä 40 kivestä.
Ulkoseinää kiertävän portaikon kaiteelle on istutettu tuulta sietäviä kasveja sekä yrttejä,
joita käytetään ruokalassa. Puulla päällystetty kattoterassi jatkaa puiston teemaa luoden yhteyden kaupunkitilan ja arkkitehtuurin välille tarjoten työntekijöille ja vieraille ainutlaatuisen näkymän kaupunkiin ja merelle.
Ristiriitainen vastaanotto
Rakennushankkeella oli ongelmia rakennusluvan saamisessa eikä sitä pidetty esteettisesti tyydyttävänä. Viranomaiset toivoivat myös ilmastoystävällisempiä materiaalivalintoja. Suunnitelmia jouduttiinkin kehittämään toivottuun suuntaan muun muassa istutuksia lisäämällä.
Valmistuttuaan jotkut ovat pitäneet rakennusta sijaintiinsa nähden sopimattomana ja jopa rumana. Toisten mielestä rakennus kuuluu jopa Kööpenhaminan uusimpien rakennusten parhaimmistoon ja se on saanut useita palkintoja.
Vaikka rakennuksessa on toteutettu monia uusia tekniikoita, joiden katsotaan vievän koko alaa eteenpäin, niin kriitikoiden mielestä BIG ei ole käyttänyt tilaisuutta hyväkseen tehdäkseen rakennuksen, jolla viitoitettaisiin arkkitehtuurin merkitystä vihreässä siirtymässä. •

7 Järeitä betonirakenteita koottiin kuin palapeliä, vaikka valut suoritettiin rakennuspaikalla.
8 Kerrostasojen TT-laatat ripustettiin ulkoseinien megapalkkien alareunaan.
9 Julkisivurakenne.
1 Paikallavalettu teräsbetoninen ”megapalkki”
2 Lämmöneristyskerros
3 Paikallavalettu teräsbetoninen julkisivulevy
4 Viimeistelty pintabetoni
5 Esivalmistettu TT-laatta
6 Lasijulkisivu
7 Teräksinen kiinnityskotelo
8 Teräksinen kotelopalkki
9 Neopreenilevy


10 Sisääntulokerros. 1 Sisäänkäynti

Hissi

Kolmas kerros.

13 Rakennuksen suunnittelu ulottuu pieniin yksityiskohtiin asti. Kuvassa teräksinen pesuallas.
15 Sisääntulokerroksessa on toimiston suunnittelemien töiden näyttely sekä ruokala. Mustaksi käsitellyt teräsportaat yhdistävät kerrokset toisiinsa. TT-laattojen ripojen välit on on peitetty akustisella EcoSUNDilla. Se on valmistettu 100 prosenttisesta polyesterikuidusta, josta puolet on peräisin kierrätetyistä PET-muovipulloista.

16 Toisessa kerroksessa on toimiston lisäksi pienoismallien valmistuspiste. Lasiseinän takana on Workshop.




Bjarke Ingels Group (BIG) on kansainvälisesti tunnetuin tanskalainen arkkitehtuuristudio. Sen perusti nyt 52-vuotias arkkitehti Bjarke Ingels vuonna 2005.
Kööpenhaminan pääkonttorin lisäksi toimistoja on Lontoossa, Barcelonassa, New Yorkissa, Shanghaissa, Los Angelesissa, Zürichissä ja Oslossa. BIG työllistää noin 700 henkilöä.
Lisätietoja: https://big.dk/
BIG’s new headquarters
BIG’s new headquarters, completed in spring 2024 at the tip of Sundmolen in Copenhagen’s Nordhavn district, is a 4,488 m², seven storey building that reflects the studio’s integrated LEAPP approach, combining landscape, engineering, architecture, planning, and product design. Set within a former industrial harbor environment, the building reinterprets maritime heritage through contemporary design and innovative construction methods.
The project is notable for its pioneering use of Uni-Green concrete, developed in collaboration with Unicon, which replaces part of
BIG HQ – Bjarke Ingels Groupin pääkonttori
Osoite: Sundkaj 165, 2150 Nordhavn, Kööpenhamina
Asiakas ja kokonaissuunnittelu: Bjarke Ingels Group A/S
Pääurakoisija: LM Byg A/S Ilmanvaihto- ja putkiurakoitsija: Kjellerup Group A/S
Sähköurakoitsija: EL-Team Vest A/S
Betonitoimittaja: Unicon A/S
Betoniset energiapaalut: Centrum Pæle A/S
Ikkunat: Glaseksperten A/S, Eiler Thomsen Alufacader A/S
Kerrosala: 4 488 m2
Suunnittelu alkoi 2017, rakennusvaihe 2021–2024
17 Julkisivussa vuorottelevat suuret betonipinnat ja samansuuruiset ikkunaosat. Julkisivua elävöittää rakennusta kiertävä varapoistumisportaikko.
18 Ylimmässä kerroksessa on suuri monikäyttötila, jonka yhteydessä on puolen kerroksen suuruinen kattoterassi.
19 Kerrostasoja kannattavat palkit liittyvät ulkoseinään ilman pilareita.
20 Keskuspilarin kivilaji vaihtuu kerroksesta toiseen.
traditional cement clinker with calcined clay and lime filler, achieving an estimated 25% reduction in CO₂ emissions compared to conventional concrete. Designed to meet DGNB Gold standards, the headquarters integrates solar and geothermal energy systems, enabling approximately 60% reliance on renewable energy and covering the majority of heating and all cooling demands.
Architecturally, the building is defined by open, interconnected spaces, a dramatic central staircase, and a unique structural concept relying on a single load bearing stone column.
An exterior staircase spirals around the façade, functioning both as circulation and as an additional fire escape, while providing outdoor terraces on every floor.
At ground level, the project extends into the public realm with a 1,500 m² landscape park inspired by Danish coastal nature, enhancing biodiversity and offering recreational space. Together, the headquarters and surrounding landscape demonstrate BIG’s ambition to merge sustainability, innovative materials, and social engagement into a cohesive architectural statement. •



Testauslaboratorioiden tasokokeet 2025
Jouni Punkki
Professori (POP), Betonitekniikka
Aalto-yliopisto jouni.punkki@aalto.fi
Taustaa
Vuoden 2025 tasokokeet keskittyivät betonin puristuslujuuteen. Kokeet tehtiin sekä laboratoriokoekappaleilla (150 mm lieriöillä) että porakoekappaleilla. Tasokokeisiin osallistui yhteensä 9 eri tahoa (yrityksiä ja korkeakouluja). Joistakin yrityksistä tasokokeisiin osallistui eri toimipisteitä tai useampi puristuskoneita. Siten laboratoriokoekappaleiden osalta osallistujia oli yhteensä 12 kpl ja rakennekoekappaleiden osalta yhteensä 11 kpl. Insinööritoimisto KJ Oy hoiti koekappaleiden valmistukset ja niiden lähetykset osallistujille, Aalto-yliopisto suoritti tulosten analysoinnin ja raportoinnin.
Tasokokeissa testattiin tällä kertaa ainoastaan puristuslujuutta. Myöhemmin vuonna -25 tehtiin kattavat tasokokeet pakkassuolakestävyyden laattakokeen osalta osana kansallista Pakkasprojekti25:ttä. Laattakokeen tasokokeiden tulokset raportoidaan erikseen.
Koejärjestelyt
Laboratoriokoekappaleet
Laboratoriokoekappaleet valmistettiin Pielisen Betoni Oy:n toimittamasta valmisbetonista, jonka lujuusluokka oli C35/45, rasitusluokka XC4, raekoko #18 mm, notkeus S3 ja käyttöikä 50 v. Sideaineena betonissa käytettiin CEM I 52,5 N-tyypin sementtiä. Koekappaleet valettiin muovisiin lieriömuotteihin ja ne tiivistettiin tärypöydällä. Koekappaleet merkittiin valu-
Vuosittain järjestetään tasokokeet akkreditoiduille testauslaitoksille. Tutkittavat testit vaihtelevat vuosittain ja vuonna
2025 testattiin betonin puristuslujuutta sekä laboratorio- että porakoekappaleilla. Laboratoriokoekappaleiden osallta tulosten hajonta oli vähäistä, mutta porakoekappaleilla hajonta oli yllättävänkin suurta.
järjestyksen mukaisesti tunnuksilla (1…72). Koekappaleet purettiin muoteista 1 vrk ikäisinä ja laitettiin vesisäilytykseen +20 ± 2°C. Koekappaleet otettiin pois vesialtaista 14 vrk ikäisinä ja lähettiin osallistujille. Koekappaleet jaettiin testauslaitoksille niin, että jokainen testauslaitos testasi järjestysnumeroiltaan vaihtelevia koekappaleita. Koekappaleiden testaus tehtiin 28 vrk iässä standardin SFS-EN 12390-3 mukaisesti ja ennen puristuskoetta määritettiin koekappaleiden tiheys. Standardista poiketen tiheys ilmoitettiin 1 kg/m3 tarkkuudella. Puristuspinnat voitiin hioa tai rikittää ja tämä raportoitiin tulosten ilmoittamisen yhteydessä. Puristuslujuustulokset on analysoitu lieriölujuuksina, koska koekappaleet olivat lieriöitä. Laboratoriokoekappaleiden osalta tasokokeeseen osallistuivat seuraavat testauslaitokset:
• Insinööritoimisto KJ Oy
• SGM Consulting – Suomen GPS-Mittaus Oy
• Kaakkois-Suomen ammattikorkeakoulu Oy / KymiLabs, 2 puristinta
• Labroc Oy, 3 toimipistettä / puristinta
• PBM Asiantuntijat Oy
• Seinäjoen ammattikorkeakoulu Oy
• AFRY Finland Oy
• Aalto-yliopisto, Rakennustekniikan laitos (ei-akkreditoitu testauslaboratorio)
Koetulosten osalta testausyksiköt on esitetty anonyymisti kirjaimilla A…L, jotka ovat eri järjestyksessä kuin ylläesitetyssä listauksessa.
1 Hiottuja lieriökoekappaleita odottamassa puristuslujuustestausta.

Porakoekappaleet
LABORATORIOKOEKAPPALEET,
Koekappaleen järjestysnumeron vaikutus
Koekappaleen järjestysnumero
Porakoekappaleet valmistettiin samasta betoniannoksesta kuin laboratoriokoekappaleet.
Betonista valettiin noin 1,5 m × 1,5 m × 0,2 m kokoinen testirakenne, joka tiivistettiin tärysauvalla. Valun jälkeen testirakenne säilytettiin laboratorio-olosuhteissa. Testirakenteesta porattiin poranäytteet 102 mm terällä. Poranäytteiden halkaisija oli noin 95 mm. Poranäytteet merkittiin juoksevalla numeroinnilla 1…66 ja poranäytteet pakattiin suljettuihin muovilaatikoihin.
Koekappalepaketit säilytettiin avaamattomana huone-/laboratorio-olosuhteissa, paketit avattiin edellisenä päivänä ennen puristuskoetta. Puristuskoe tehtiin standardin SFS-EN 12540-1 mukaisesti ja ennen puristuskoetta määritettiin koekappaleiden tiheys. Standardista poiketen tiheys pyydettiin ilmoittamaan 1 kg/m3 tarkkuudella. Poranäytteet olivat noin 200 mm pitkiä ja siten ajatuksena oli, että testauslaboratorio sahaavat poranäytteistä standardin SFS 7508:2021 mukaiset h/d = 1:1 muotoiset porakoekappaleet. Suomalainen soveltamisstandardi edellyttää nimenomaan 1:1 koekappaleita. Tätä ei kuitenkaan ollut ohjeistettu riittävän selkeästi ja 2 testausyksikköä testasi h/d = 2:1 muotoisia koekappaleita.
Puristuslujuustulokset on analysoitu kuutiolujuuksina, koska koekappaleiden h/d-suhde oli 1:1. Testitulos muunnetaan kokovaikutuskertoimella vastaamaan 150 mm kuutiolujuutta. 2:1-muotoisten porakoekappaleiden tuloksia ei sisällytetty tarkasteluihin, koska kyseiset tulokset eivät ole vertailukelpoisia 1:1 koekappaleiden kanssa.
Porakoekappaleiden osalta tasokokeeseen osallistuivat samat testauslaitokset kuin laboratoriokoekappaleiden osalta, mutta yksiköiden testausmäärissä oli pieniä eroja:
• Insinööritoimisto KJ Oy
• SGM Consulting – Suomen GPS-Mittaus Oy
• Kaakkois-Suomen ammattikorkeakoulu Oy / KymiLabs, 2 puristinta
• Labroc Oy, 2 toimipistettä / puristinta
• PBM Asiantuntijat Oy
• Seinäjoen ammattikorkeakoulu Oy
• AFRY Finland Oy
• Aalto-yliopisto, Rakennustekniikan laitos (ei-akkreditoitu testauslaboratorio)
Testausyksiköt on eritelty kirjaimilla a…k, kyseiset koodit ovat eri järjestyksessä kuin yllä olevassa taulukossa.
Puristuslujuus, laboratoriokoekappaleet Kaikkien laboratoriokoekappaleiden (72 kpl) keskimääräinen lieriöpuristuslujuus oli 41,1 MPa ja vastaava keskihajonta 1,08 MPa. Variaatiokerroin oli siten 2,6 %. Sekä keskihajonta että variaatiokerroin olivat alhaisempia kuin aikaisempina vuosina.
Valettaessa varsin suuri määrä koekappaleita yhdestä betoniannoksesta potentiaalisena riskinä on, että viimeisinä valmistetut koekappaleet voivat poiketa jossain määrin alkuvaiheen koekappaleista. Tätä on analysoitu kuvassa 1, jossa on esitetty puristuslujuus koekappaleen järjestysnumeron funktiona. Kuvan perusteella voidaan arvioida, että lujuustaso laski jossain määrin järjestysnumeron mukaan. Ero alku- ja loppupään koekappaleiden välillä ei
Kuva 1 Yksittäisten laboratoriokoekappaleiden puristuslujuus järjestysnumeron funktiona.
ole suuri, mutta korrelaatio on selkeä. Lineaarisen regression selitysasteeksi R2 saadaan 0,4261. Tämä tarkoittaa, että yli 42 % koekappaleiden hajonnasta johtui järjestysnumerosta. Regressioyhtälön mukaan ensimmäisen ja viimeisen koekappaleen puristuslujuuksien ero olisi 2,4 MPa. Koekappaleet jaettiin osallistujille niin, että kaikki saivat sekä alku- että loppupään järjestysnumeroita ja siten edellä mainittu lujuusvaihtelu ei vaikuttanut merkittävästi tasokokeen tuloksiin.
Eri testausyksiköiden koetulokset on koottu taulukkoon 1. Suurin yksittäinen testauslaitoksen keskihajonta oli 1,6 MPa. Testausyksiköiden F ja G osalta on huomattava, että kyseessä on saman testauslaitoksen kaksi eri puristinta. Koekappaleet oli jaettu puristinten kesken virheellisesti niin, että F testasi alkupään järjestysnumerot ja G testasi loppupään järjestysnumerot. Tämä selittää osin testausyksikön F korkeimman lujuustuloksen. Erot olivat kuitenkin varsin pieniä.
Eri testausyksiköiden tulosten keskiarvojen 95 % luottamusvälit on esitetty kuvassa 2. Luottamusvälien laskennassa huomioidaan testausyksikön tulosten keskihajonta sekä koekappaleiden lukumäärä.
Yksittäisten tulosten vaihteluvälit on esitetty kuvassa 3. Yksittäisiä tuloksia tarkasteltaessa on huomioitava, että vaihtelua aiheutuu myös koekappaleiden hajonnasta. Siten yksittäisien tulosten perusteella on vaikea arvioida testauslaitosten tarkkuutta. Tasokokeessa yksittäisten tulosten virhemarginaali oli korkeintaan -1,9 MPa…+1,4 MPa 95 % varmuustasolla. Mitatut suurimmat yksittäiset
Taulukko 1 Laboratoriokoekappaleiden lujuustulosten keskiarvot, keskihajonnat sekä variaatiokertoimet.
Kuva 2 Puristuslujuustulosten keskiarvot sekä keskiarvon luottamusvälit 95%:n varmuustasolla. Punainen viiva esittää aineiston keskimääräistä puristuslujuutta = 41,1 MPa.
Kuva 3 Puristuslujuustulosten keskiarvot sekä yksittäisten tulosten vaihteluvälit. Punainen viiva esittää aineiston keskimääräistä puristuslujuutta = 41,1 MPa. Testauslaboratorioiden
Testausyksikkö
Keskiarvo (MPa) Keskihajonta (MPa) Variaatiokerroin
LABORATORIOKOEKAPPALEET, PURISTUSLUJUUS Keskiarvojen luottamusvälit, 95%
Testausyksikkö
LABORATORIOKOEKAPPALEET, PURISTUSLUJUUS Yksittäiset tulokset
Testausyksikkö
Taulukko 2 Puristuspintojen käsittely vaikutus puristuslujuustuloksiin.
Käsittelytapa
poikkeamat koko populaation keskiarvosta olivat -2,75…+2,05 MPa.
Kuvien 2 ja 3 perusteella voidaan arvioida, että testausyksiköiden välillä ei ole tilastollisesti merkittäviä eroja. Esimerkiksi yksittäisissä tuloksissa koetulokset eivät mene ristiin niin, että yhden testausyksikön alhaisin koetulos olisi suurempi kuin jonkun toisen yksikön suurin tulos. Samoin keskiarvon luottamusvälit menevät kaikilta osin päällekkäin. Myös varianssianalyysi osoitti, ettei testauslaitosten välillä ole merkittäviä eroja.
Tasokokeessa oli mahdollisuus joko hioa tai rikittää puristuspinnat. Kaksi testausyksikköä ilmoitti käyttäneensä rikitystä ja loput 10 hiontaa. Lujuustulokset eriteltynä käsittelytavan mukaan on esitetty taulukossa 2. Kuten taulukosta havaitaan, pintojen käsittelytavalla ei ollut merkittävää vaikutusta puristuslujuuden keskiarvoon tai hajontaan. Rikityksen osalta lukumäärä on liian pieni luotettavan arvioinnin tekemiseksi.
Tiheys, laboratoriokoekappaleet Laboratoriokoekappaleiden keskimääräinen tiheys oli 2372 kg/m3 ja vastaava keskihajonta 9,7 kg/m3. Variaatiokertoimeksi tulee näin 0,4% (vuonna -24: 0,3%). Testausyksiköiden keskimääräiset tulokset ja yksittäisten tulosten vaihteluvälit on esitetty kuvassa 4.
Puristuslujuus, porakoekappaleet Kaikkien tarkasteltavien porakoekappaleiden (54 kpl) keskimääräinen muunnettu kuutiopuristuslujuus oli 45,5 MPa ja vastaava keskihajonta 3,78 MPa. Variaatiokertoimena tämä on 8,3 %. Hajonta oli siten selvästi suurempaa kuin laboratoriokoekappaleiden osalta.
Koska koekappaleet on porattu erillisestä testirakenteesta, on oletettavaa ettei järjestysnumero vaikuta puristuslujuuteen samalla tapaan kuin mitä havaittiin laboratoriokoekappaleilla. Lineaarisen regression selitysaste
Testausyksiköiden lukumäärä
Keskiarvo (MPa)
Testauslaboratorioiden
Puristuslujuus
Keskihajonta (MPa) Variaatiokerroin
Kuva 4 Testausyksiköiden tiheyksien keskiarvot sekä yksittäisten tulosten vaihteluvälit.
Punainen viiva esittää aineiston keskimääräistä tiheyttä = 2372 kg/m3
LABORATORIOKOEKAPPALEET, TIHEYS
Yksittäiset tulokset
B C D E F G H i J K L Tiheys, kg/ m 3
A
Testausyksikkö
jäikin hyvin alhaiseksi (R2 = 0,0083) eli järjestysnumerolla ei ollut vaikutusta koetuloksiin. Myöskään koekappaleiden tiheyden ja puristuslujuuden välillä ei havaittu merkittävää korrelaatiota.
Kaikkien yhdeksän testausyksikön koetulokset on koottu taulukkoon 3. Taulukko sisältää vain h:d = 1:1 tulokset.
Kaksi testausyksikköä (d ja g) ilmoittivat, että yhden koekappaleen suorakulmaisuusvaatimus ei täyttynyt. Kyseisten koekappaleiden puristuslujuus ei kuitenkaan poikennut merkittävästi muista tuloksista ja siten kyseisiä koetuloksia ei ole poistettu aineistosta. Kaikki testausyksiköt ilmoittavat tehneensä koekappaleet poralieriön keskiosasta. Pienenä poikkeuksena oli yksiköt g ja h, jotka ilmoittivat että poralieriön yläpinnasta poistettiin 30 mm. Tällä erolla koekappaleiden sijainnissa on tuskin merkittävää vaikutusta lujuustuloksiin.
Eri testausyksiköiden mittaustulosten keskiarvojen 95 % luottamusvälit on esitetty kuvassa 5. Luottamusvälien laskennassa huo-
mioidaan testausyksikön tulosten keskihajonta sekä koekappaleiden lukumäärä. Yksittäisten tulosten vaihtelut on esitetty kuvassa 6. Yksittäisiä tuloksia tarkasteltaessa on huomioitava, että vaihtelua aiheutuu myös koekappaleiden sisältämästä hajonnasta. Siten yksittäisien tulosten perusteella on vaikea arvioida testauslaitosten tarkkuutta.
Tasokokeessa yksittäisten tulosten virhemarginaali oli -7,4 MPa…+5,2 MPa 95 %:n varmuustasolla. Mitatut suurimmat yksittäiset tulosten poikkeamat koko populaation keskiarvosta olivat -9,18…+5,99 MPa. Kuvien 5 ja 6 perusteella voidaan helposti arvioida, että testausyksiköiden välillä on tilastollisesti merkittäviä eroja. Keskiarvon luottamusvälit eivät mene kaikilta osin ristiin eli joidenkin yksiköiden alhaisimmat koetulokset olivat korkeampia kuin joidenkin toisten suurimmat koetulokset.
Vaihtelut testauslaitosten välillä olivat huomattavasti suurempia kuin laboratoriokoekappaleiden osalta. Osa testausyksiköistä pääsi
Testauslaboratorioiden tasokokeet 2025
Taulukko 3 Porakoekappaleiden lujuustulosten keskiarvot sekä keskihajonnat. Testausyksiköt c ja f testasivat h:d=2:1 koekappaleita ja kyseisiä tuloksia ei ole huomioitu.
Kuva 5 Porakoekappaleiden keskiarvot sekä keskiarvon luottamusvälit 95 %:n varmuustasolla. Punainen viiva esittää aineiston keskimääräistä puristuslujuutta = 45,5 MPa.
PORAKOEKAPPALEET,
Kuva 6 Porakoekappaleiden puristuslujuuksien keskiarvot sekä yksittäisten tulosten vaihteluvälit. Punainen viiva esittää aineiston keskimääräistä puristuslujuutta = 45,5 MPa.
Kuutiopuristuslujuus,
Testausyksikkö
PORAKOEKAPPALEET, PURISTUSLUJUUS Yksittäiset tulokset
Testausyksikkö
Tiheys, kg/m3
PORAKOEKAPPALEET, TIHEYS
Yksittäiset tulokset
a b c d e f g h i j k
Testausyksikkö
varsin pieneen poikkeamaan, mutta suurin poikkeama keskiarvosta oli > 6 MPa. Tulosten perusteella voidaan arvioida, että porakoekappaleiden virhemarginaali tasokokeessa kuudella koekappaleella oli lujuusluokalla C35/45 luokkaa ± 6 MPa. Samasta betonista eri testausyksiköt saivat suurimmillaan noin 10 MPa poikkeavia lujuustuloksia (kuuden koekappaleen keskiarvo). Tämä vaikuttaa varsin suurelta vaihtelulta, varsinkin kun huomioidaan ettei rakennekoekappaleiden hajonta ole kokonaisuudessaan mukana tässä koesarjassa. Todellisen rakenteen valu ja koekappaleiden poraus eri toimijoiden toimesta todennäköisesti lisäisivät hajontaa verrattuna tasokokeessa havaittuun hajontaan. Lisäksi kuusi koekappaletta on jo varsin suuri määrä, pienemmällä otoksella vaihtelu olisi vielä suurempi.
Tiheys, porakoekappaleet Tiheyden osalta keskimääräiset tulokset sekä yksittäisten tulosten vaihteluvälit on esitetty kuvassa 7. Tiheyden keskihajonta oli 21,6 kg/m3 (laboratoriokoekappaleet: 9,7 kg/m3) ja variaatiokerroin oli 0,9 % (laboratoriokoekappaleet: 0,4 %). Yksittäisten koekappaleiden tiheyden hajonta on siten verrattain suurta, mutta keskimääräisissä arvoissa ei ole suurta vaihtelua. Tiheyden suurempi hajontaa selittyy ainakin osin porakoekappaleiden pienellä tilavuudella.
Laboratorio- ja porakoekappaleiden lujuustulosten vertailu Tasokokeessa valmistetiin samasta betonierästä laboratoriokoekappaleet sekä testirakenne, josta porattiin myöhemmin porakoekappaleet. Siten on mahdollista vertailla
valettujen ja porattujen koekappaleiden lujuustuloksia. Lisäksi porakoekappaleita testattiin normaalin h:d-suhteen 1:1 lisäksi myös suhteella 2:1. Suhde 1:1 vastaa kuutiolujuutta ja suhde 2:1 lieriölujuutta.
Rakennekoekappaleilla vaatimustasona on 85 % nimellislujuudesta, tosin osin myös hieman erilaiset laskentaperiaatteet. Periaatteessa 15 % alhaisempi vaatimustaso liittyy normaalin betonirakenteen valmistamisen eroihin verrattuna laboratoriokoekappaleisiin. Laboratoriokoekappaleet voidaan tiivistää lähes täydellisesti, kun taas rakenteen täydellinen tiivistäminen on mahdotonta. Samoin rakennekoekappaleissa kovettumisen aikainen korkeampi lämpötila voi aiheuttaa lujuuskatoa ja myös rakenteiden jälkihoito on harvoin vastaavalla tasolla kuin laboratoriokoekappaleilla. On kuitenkin jossain määrin kyseenalaista voidaanko 15 % vähennystä käyttää tällaisessa tapauksessa, kun kyseessä oli testirakenne, ei todellinen betonirakenne. Esimerkiksi testirakenteen tiivistäminen voi olla lähes vastaavaa kuin laboratoriokoekappaleiden. Koekappaleiden tiheydessä havaittiin kyllä keskimäärin 28 kg/m3:n ero pora- ja laboratoriokoekappaleiden välillä, mikä vastaisi noin 1 %-yksikköä korkeampaa tiivistysilman määrää porakappaleissa. Tämä puolestaan voisi alentaa puristuslujuutta noin 5 %. Lujuustulosten vertailu on koottu taulukkoon 4.
Verrattuna nimellislujuuteen porakoekappaleiden lujuudet jäivät oletetusti alemmalle tasolle kuin laboratoriokoekappaleiden lujuudet (Lieriölujuus). Eri porakoekappaleiden menetelmät antoivat kuitenkin varsin samantasoiset lujuusarvot. Samoin mikäli
Testauslaboratorioiden tasokokeet 2025
Kuva 7 Porakoekappaleiden tiheyksien keskiarvot sekä yksittäisten tulosten vaihteluvälit. Punainen viiva esittää aineiston keskimääräistä tiheyttä = 2344 kg/m3
hyödynnetään 85 % sääntöä porakoekappaleilla, kaikki lujuustulokset olivat varsin lähellä toisiaan. Siten laskentasäännöt vaikuttaisivat toimivan varsin hyvin. Epävarmaa kuitenkin on, voidaanko kyseistä 85 %:n sääntöä hyödyntää tällaisessa tapauksessa. Samoin analyysi perustuu pelkästään keskiarvojen vertaamiseen. Mikäli hajonnat otettaisiin huomioon, porakoekappaleiden tulokset heikentyisivät suhteessa laboratoriokoekappaleisiin.
Yhteenveto
Tasokokeessa 2025 testattiin betonin puristuslujuutta sekä laboratorio- että porakoekappaleilla. Tasokokeisiin on osallistunut yhteensä kahdeksan eri tahoa (yrityksiä tai korkeakouluja), joista osa osallistui testauksiin useammalla yksiköllä / puristuskokeella. Laboratoriokoekappaleiden (150 mm lieriöt) osalta tasokokeisiin osallistui yhteensä 12 testausyksikköä ja porakoekappaleiden osalta 11 yksikköä. Porakoekappaleiden osalta päädyttiin valmistamaan testirakenne (1,5 * 1,5 * 0,2 m3), josta järjestäjä porasi poranäytteet ja lähetti ne osallistujille. Siten tasokokeessa ei huomioida kaikkia rakennekoekappaleisiin liittyviä hajonnan lähteitä ja myös testirakenne poikkeaa normaaleista betonirakenteista. Laboratoriokoekappaleiden osalta havaittiin lujuuden alentuvan järjestysnumeron perusteella. Olettamuksena on, ettei loppupään koekappaleiden tiivistys onnistunut yhtä tehokkaasti betonin jonkin asteisen jäykistymisen johdosta. Järjestysnumeron vaikutus puristuslujuuteen oli pieni, mutta kuitenkin varsin selvä. Koekappaleet jaettiin osallistujille niin, että kaikki saivat sekä alku-
Testauslaboratorioiden
Taulukko 4 Eri koekappaleilla määritettyjen lujuustulosten vertailua. Mukana sekä laboratorio- että porakoekappaleet. Betonin lujuusluokka oli C35/45.
Kuutiolujuus (150 mm)
Muunnettu kuutiolujuus
Porakoekappaleet, h:d = 1:1, huomioitu kokovaikutuskerroin
Lieriölujuus Laboratoriokoekappaleet, Lieriö 150 mm
Lieriölujuus
Muunnettu lieriölujuus Porakoekappaleet, Muunnettu kuutiolujuudesta CLF-kertoimella
Ero nimellislujuuteen
Ero nimellislujuuteen, huomioiden 85% sääntö porakappaleilla

2 Koekappaleen mittaus käynnissä.
Lieriölujuus
Porakoekappaleet,
Testattu h:d = 2:1 koekappaleet (ei käytössä Suomessa)

3 Koekappeleen puristuslujuuden määrittäminen käynnissä.
Teemu
Ojala
XAMK
Kotka
että loppupään järjestysnumeroita ja siten edellä mainittu lujuusvaihtelu ei vaikuttanut merkittävästi tasokokeen tuloksiin. Jatkossa on kuitenkin kiinnitettävä enemmän huomiota koekappaleiden tasalaatuisuuteen.
Laboratoriokoekappaleiden hajonta oli alhaisella tasolla, keskimääräinen puristuslujuus (lieriölujuus) oli 41,1 MPa ja keskihajonta 1,08 MPa. Variaatiokerroin oli siten 2,6 %. Hajonta oli alhaisempaa kuin edellisinä vuosina koekappaleiden pienistä puutteista huolimatta. Testausyksiköiden tulosten välillä ei havaittu tilastollisesti merkittäviä eroja. Tulosten perusteella arvioitiin, että kyseisen betonin virhemarginaali tasokokeessa kuudella koekappaleella oli luokkaa ±0,8 MPa. Kokonaisuutena tasokokeen tuloksia laboratoriokoekappaleiden osalta voidaan pitää erittäin hyvinä, eivätkä tasokokeet aiheuta toimenpiteitä. Laboratoriokoekappaleiden tiheyden osalta keskihajonta oli pieni 9,7 kg/m3 (0,4 %). Hajonta oli hieman suurempaa kuin edellisenä vuotena, mutta myöskään tiheyden osalta tarvita toimenpiteitä.
Toisin kuin laboratoriokoekappaleilla, porakoekappaleiden puristuslujuuden hajonta oli varsin suurta, koko aineiston keskihajonta oli yli kolminkertainen verrattuna laboratoriokoekappaleiden keskihajontaan. Siten myös yksittäiset koetulokset vaihtelivat runsaasti, pienin yksittäinen lujuustulos oli 36,3 MPa ja suurin vastaavasti 51,5 MPa. Porakoekappaleiden tilavuus on varsin pieni ja tämä on varmasti osasyynä suurempaan hajontaan. Porakoekappaleiden osalta hajontaa tulee selvittää uusin tasokokein ja jatkossa myös koekappaleiden poraus tulisi ottaa mukaan tasotestaukseen. Käytännössä tämä tarkoittaisi sitä, että jokainen testauslaitos kävisi poraamassa näytteet testattavasta rakenteesta. Havaittu korkea hajonta herättää myös kysymyksiä tarvittavasta porakoekappaleiden lukumäärästä.
Kuinka monta porakoekappaletta tarvitaan, jotta voidaan saada luotettava arvio rakenteen lujuudesta.
Muita huomioita
Porakoekappaleiden lujuustulosten esittämisessä on runsaasti vaihtelua, mikä voi helposti aiheuttaa väärinkäsityksiä. Esimerkiksi osa testauslaitoksista ilmoitti muuntamattoman lujuustuloksen (= Testitulos), kun taas useimmat ilmoittavat kokovaikutuskertoimella korjatun lujuusarvon (= Muunnettu kuutiolujuus). Terminologian vaihtelu on tiedostettu jo aikaisemmin ja Betoniyhdistyksen alla on toiminut työryhmä, joka on valmistellut ohjetta lujuustestausten raportointikäytännöistä. Ohje tullaan julkaisemaan Betoniyhdistyksen web-sivuilla. Olennaista raportoinnissa on vakioitujen termien käyttäminen. Porakoekappaleisiin liittyviä olennaisia termejä ovat:
Poranäyte
Rakenteesta porattu lieriönäyte, josta valmistetaan porakoekappale. Samasta poranäytteestä voi valmistaa useampia porakoekappaleita.
Porakoekappale
Poranäytteestä valmistettu testattava koekappale, jonka pituus-halkaisijasuhde tulee olla 1:1 standardin SFS 7508 mukaisesti. Huom. porakoekappale ei saa sisältää teräksiä.
Testitulos
Puristuslujuustestauksessa valetun koekappaleen tai porakoekappaleen muuntamaton puristuslujuustulos, joka saadaan suoraan puristuslujuustestin tuloksena (MPa).
Kokovaikutuskerroin
Kerroin, jolla kertomalla muunnetaan porakoekappaleen testitulos särmältään 150 mm kuutiolujuudeksi.
Muunnettu kuutiolujuus
Särmältään 150 mm kuution puristuslujuudeksi muunnoskertoimella tai kokovaikutuskertoimella muunnettu testitulos.
Muunnettu lieriölujuus (vain infrabetonit) Halkaisijaltaan 150 mm ja korkeudeltaan 300 mm lieriölujuudeksi porakappaleen pituuskertoimella (CLF) muunnettu porakoekappaleen tai särmältään 150 mm kuution testitulos. Käytetään ainoastaan infrabetoneilla (InfraRYL).
Nykyisten vaatimusten (SFS 7022 ja BY65: 2025) mukaisesti puristuslujuustuloksia ei enää muunneta lieriö- ja kuutiolujuuksien välillä, poikkeuksena infrarakentamisen porakoekappaleet. Siten myöskään puristuslujuustestausten raportoinnissa ei tule tehdä muunnoksia, vaan tulokset ilmoitetaan joko lieriö- tai kuutiolujuus riippuen käytetystä koekappaleesta. Lisäksi on tärkeää ilmoittaa selkeästi, että lujuusarvo on joko lieriölujuus tai kuutiolujuus, termiä puristuslujuus ilman viittausta koekappaletyyppiin ei tule käyttää.
Tasotestausten organisointi
Aalto-yliopisto on koordinoinut tasotestauksia vuodesta 2022 lähtien. Betoniyhdistys ry ottaa hoitaakseen tasotestausten koordinoinnin vuoden 2026 alusta ja jatkossa kaikki tasokokeisiin liittyvä materiaali tulee löytymään Betoniyhdistyksen web-sivuilta: www.betoniyhdistys.fi •

4 Testattuja lieriökoekappaleita.
Round-robin tests 2025
In Finland, Round-robin tests have been organized annually for accredited concrete testing laboratories. In 2025, compressive strength testing was investigated both with laboratory specimens (150 mm cylinders) and drilled core specimens. The same concrete was used for the both test series, the strength class was C35/45. Totally 12 testing units were participated in the test with laboratory specimens and 11 units with drilled specimens.
With the laboratory test specimens, the average compressive strength was 41,1 MPa (cylinder
strength) and the standard deviation 1,08 MPa. The coefficient of variation was 2,6 %. Based on the results it was estimated that the margin of the error with C35/45 with six specimens would be app. ± 0,8 MPa. The average density of the test specimens was 2372 kg/m3 and the standard deviation 9,7 kg/m3. Generally in case of laboratory specimens, both the variations of compressive strength and density can be considered low. The drilled specimens showed clearly higher variation compared to the laboratory specimens. The average compressive strength was 45,5 MPa (cube strength) and the stand-
ard deviation 3,78 MPa. The average density was 2372 kg/m3 and the standard deviation 21,6 kg/m3. The coefficient of variation of density was 0,9 %. The average values (six specimens) of the test units varied app. ± 6 MPa. The single compressive strength results varied between 36,3 and 51,5 MPa. The variation in the test results is considered high and new roundrobin tests with drilled core specimems will be needed. •
Betonirakenne tulipalossa
Mika Oikari
Dipl.ins., vanhempi asiantuntija
AFRY Finland Oy mika.oikari@afry.com
Nykyaikainen tulipalojen sammutus pyrkii osaltaan minimoimaan myös jälkivahinkoja. Sammutustyön aikana ensisijainen tavoite on kuitenkin saada riistäytynyt tuli hallintaan ja palon vaikutukset rajattua mahdollisimman suppealle alueelle. Tästä johtuen betonirakenteisiin kohdistuu tulipalon seurauksena muitakin rasituksia kuin vain poikkeuksellisen korkea lämpötila.
Betonirakenteen vauriot tulipalossa Tyypillinen betonin vaurioittaja on sammutustyön aiheuttama lämpöshokki, kun kuuma betonipinta jäähtyy äkillisesti sammutusveden vaikutuksesta.
Lisäksi betonirakenteisiin voi syntyä sammutuksessa mekaanisia vaurioita rakenteiden yleensä melko väkivaltaisen ja vauhdikkaan purkamisen ja raivaamisen yhteydessä. Samankaltaisia vaurioita voi lisäksi syntyä rakenteiden osittaisen sortumisen yhteydessä, kun rakenneosia kaatuu tai putoaa toistensa päälle. Tällainen rakenteiden osittainen sortuminen voi merkittävästi muuttaa betonirakenteisiin kohdistuvia kuormia, jolloin on vaarana, että paikallisesti syntyy ylikuormituksesta aiheutuvia vaurioita betoniin tai laajemminkin betonirakenteisiin ja liitoksiin.
Niin kauan kuin on rakennettu, on rakennuksia myös vaurioitunut tulipaloissa. Vaikka Suomessa tapahtuneiden rakennuspalojen määrä on ollut kokonaisuutena hienoisessa laskussa, hoitaa pelastustoimi edelleen lähes 5000 niihin liittyvää tehtävää vuosittain. Viime aikoina julkisuudessa on rakennuspaloihin liittyen herättänyt keskustelua palokatkojen toteutus tai toteuttamattomuus merkittävänä tekijänä palojen leviämisessä. Palokatkojen tai muiden rakenneyksityiskohtien toimintaan ei betonia käyttämällä voida vaikuttaa, mutta betoni itsessään on turvallinen materiaali tulipaloissa.
Rakennuspaloissa, ja yleensäkin betonin palovaurioita arvioitaessa, tuleekin aina tarkastella rakenteita kokonaisuutena. Vaurioitumisen laajuuden ja merkityksen arvioimisessa betonin materiaalitutkimukset ovat kuitenkin tärkeässä osassa.
Näkyvimpinä vaurioina betoniin syntyy tulipalossa erilaista halkeilua ja säröilyä, pinnan lohkeamia sekä värimuutoksia. Kokonaisia betonirakenteita tarkasteltaessa tyypillisimpiä vaurioita ovat lisäksi erilaiset muodonmuutokset sekä raudoitukseen liittyvät vauriot.
Värimuutokset betonirakenteissa Värimuutosten luotettava havainnoiminen palaneista rakenteista edellyttää yleensä sitä, että palokohde on jo raivattu ja betonipinnat puhdistettu mekaanisesti noesta ja muusta liasta. Voimakkaan tulipalon jäljiltä rakenteen pinnat voivat olla myös täysin puhtaita noesta ilman puhdistustoimenpiteitäkin, jolloin betonipinta on hyvin nähtävissä ja vaurioituminen arvioitavissa aistinvaraisesti. Betonipintojen puhtaus palon jälkeen kertoo samalla yleensä siitä, että vallinnut lämpötila on ollut korkea ja mm. mahdollinen pinnoille kertynyt noki on palanut pois. Noettomuus ei kuitenkaan
Betoni -lehden uusi asiantuntijapalsta on toteutettu yhteistyössä AFRYn kanssa. AFRYCorner
Betoniyhdistys By on 100-vuotias ja Betoni -lehti 95-vuotias. Molemmat ovat tehneet pitkän uran suomalaisen betoniosaamisen eteen ja jatkavat tärkeää tehtäväänsä edelleen huippukunnossa.
Millä hartioilla 7-vuotias AFRY saa palstatilaa näin kovassa seurassa?
AFRYn juuret juontavat 130 vuoden päähän Ruotsin höyrypannuyhdistykseen, josta syntyi konsulttitalo ÅF. Suomessa juuret ovat vuonna 1958 perustetussa Jaakko Pöyry Oy:ssä. Näiden vahvojen vaikuttajien yhdistyttyä seitsemisen vuotta sitten syntyi AFRY (ÅF ilman ruotsalaisen oon pallukkaa ja loppuosa Pöyrystä).

1 Betoni kestää korkeita lämpötiloja.
AFRY vahvisti betoniteknologian osaamistaan ostamalla vuonna 1955 perustetun Vahasen (alun perin Insinööritoimisto Mikko Vahanen Oy) nelisen vuotta sitten. Vahasen betonitutkimuksilla ja omalla betonilaboratoriolla on yli 30-vuotinen historia, johon mahtuu soveltavaa tutkimusta niin kentällä kuin laboratoriossa sekä yhteistyötä eri alojen suunnittelijoiden kanssa. Yhtä lailla on vaikutettu alan kehitysryhmissä ja koulutuksissa. Erityisasiantuntijuudellamme osallistumme uuden "cornerin" ylläpitoon.
Cornerin isäntänä häärin minä, Sami Niemi. Minulla ei ole niin suuria betonisia saappaita, kuten isänsä Mikko Vahasen jälkeen yrityksen vetovastuun ottaneella Risto Vahasella. Betonitekniikka vei kuitenkin sydämeni vuonna 1992, kun syksyllä syvennyin TKK:lla Betonitekniikkaan. Betonilta se oli kova suoritus, koska rakastuin vaimooni vain muutama kuukausi aiemmin. Valmistuttuani ajauduin ikisuosikkiaiheeseeni: betonin kosteuteen, joista olen
kirjoittanut useita artikkeleita Betoni -lehteen ja luennoinut monilla tahoilla. Asioiden kehittäminen on intohimoni, ja tykkään erityisesti soveltaa asetuksia, ohjeita ja standardeja. Koko totuushan ei ole niissä, vaan kovassa osaamisessa ja ilmiöiden ymmärtämisessä.
AFRYllä on suuri joukko rakennusalan asiantuntijoita, joita kannustan jatkossa kirjoittamaan eri aiheista Betoni -lehteen. Tulen itsekin tarttumaan ajankohtaisiin tai muuten mielenkiintoisiin aiheisiin. Yksi kiinnostavista käsiteltävistä aiheista on muun muassa kuntotutkimukset ja se, miten usein niissä pyritään säästämään ja loppujen lopuksi säästämisellä hanke tulee kalliiksi.
Tämän ensimmäisen AFRY-Cornerin ammatillisen katsauksen kirjoitti kuntotutkimusten konkarimme ja opiskelutoverini Mika Oikari. Koko Suomessa on ollut varsin kylmää edellisen Betoni -lehden ilmestymisen jälkeen – suoranaisia tulipalopakkasia. Niinpä Mika kertoo yhdestä erikoisosaami-
salueestaan: betonirakenteista tulipalossa – tarkemmin ottaen tulipalon jälkeen. Mika kirjoitti paloaiheesta myös Betoni 3/2017 -lehdessä kollegoidensa kanssa otsikolla "Betonin palovaurioiden tutkiminen". Artikkeli tarkasteli tuolloin aihetta tutkimisen näkökulmasta, mutta samalla käsiteltiin jonkin verran myös kosteusvahinkoja. Uudessa artikkelissa keskitytään betonirakenteen vaurioitumiseen materiaalin näkökulmasta.
Kuulumisiin jatkossakin tällä palstalla ja hyviä lukuelämyksiä asiantuntijoidemme artikkelien parissa. Sami Niemi Kehityspäällikkö
AFRY Finland Oy
Rakennusfysiikka ja erikoisasiantuntijapalvelut sami.niemi@afry.com




2 Esimerkki tyypillisestä näkymästä palokohteessa betonirakenteiden vaurioitumista selvitettäessä. Betonisen välipohjan alapinnassa näkyy erilaisia ja eri-ikäisiä vaurioita. Erityisesti korvausvastuukysymyksiä selvitettäessä on tärkeää erottaa tulipalon aiheuttama vaurioituminen tavanomaisesta ikääntymisestä sekä aiemman käytön aikana syntyneistä vaurioista.
3 Kuumuuden aiheuttamia pinnan lohkeamia betoniseinässä. Seinää vasten varastoituna ollut materiaalikasa (betonipinnassa näkyvän tumman vinon rajan alapuolella) on suojannut seinän alaosaa kuumuudelta, mutta kasan yläpuolelle on syntynyt vaurioita. Lisäksi aivan kuvan yläosassa näkyy betonin raudoituksen tukemisessa käytettyjen muovisia välikkeitä, jotka ovat kuumuuden vaikutuksesta sulaneet.
4 Tyypillinen sekundäärinen havainto palokohteessa tulipalon aikana vallinneista lämpötiloista. Alumiininen kaapelihylly on irronnut katosta ja pudonnut yläpohjan lämmöneristeiden päälle. Sulanut metalli on jähmettynyt uudelleen jäähdyttyään.
Mika Oikari, AFRY Finland Oy
Mika Oikari, AFRY Finland Oy
Mika Oikari, AFRY Finland Oy
5 Palojälkiä betonisen välipohjan alapinnassa. Kaikki liittyvät rakenteet on jo purettu pois, mutta palon vaikutuksia arvioitaessa myös niiden merkitys lämpötiloihin ja vaikutusaikoihin täytyy huomioida.

aukottomasti ilmaise betonipinnan lämpötilaa, koska palokaasujen virtaukset vaikuttavat nokeentumiseen joskus hyvinkin paikallisesti ja lisäksi pinnoille voi kertyä uudelleen nokea ja likaa myös varsinaisen palorasituksen jo hellitettyä.
Betoniin kohdistuva kuumuus muuttaa vähitellen näkyvästi betonin väriä. Matalissa, alle 300 oC:n lämpötiloissa mitään muutosta ei ole havaittavissa, mutta lämpötilan edelleen noustessa betonin väri alkaa muuttua, ensin vaaleanpunaiseksi ja noin +600 oC:n jälkeen edelleen valkoisenharmaaksi. Todella korkeissa lämpötiloissa betonin väri tummuu uudelleen muuttuen ruskeankellertäväksi.
Värimuutoksiin, kuten yleisemminkin betonin palonkestävyyteen on vaikutusta käytetyn sementin koostumuksella. Tämän asian osalta olemme uuden äärellä, koska betonin valmistukseen on tullut ja tulee jatkossakin uusia, erilaisia side- ja seosaineita, joiden vaikutusta betonin käyttäytymiseen tulipalon kaltaisessa poikkeustilanteessa ei vielä kattavasti tunneta.
Halkeilu ja lohkeilu betonirakenteissa Värimuutosten lisäksi toinen tulipalon seurauksena betonipinnoissa näkyvä vauriotapa on eriasteinen halkeilu ja lohkeilu. Ensimmäinen tulipalossa betonipintaan näkyvää säröilyä aiheuttava tekijä on kuivuminen. Pinnan lämpeneminen haihduttaa betonin huokosrakenteesta kaiken irtoavan veden, jolloin betoni luonnollisesti kutistuu, mikä näkyy pinnan voimakkaana säröilynä.
Koska betonin lämmönjohtavuus on varsin huono, syntyy palotilanteessa aina suuria lämpötilaeroja rakenteen pintaosien ja syvemmällä
olevan betonin välille sekä betonirakenteen eri puolien välille. Tästä johtuen betoni vaurioituu palossa kerroksellisesti alkaen kuumimmasta pinnasta ja vaurioituminen etenee syvälle betoniin yleensä varsin hitaasti. Suoraan kuumuudelle altistuvassa betonin pintakerroksessa olevan vapaan veden höyrystyessä ja laajentuessa äkillisesti syntyy jopa räjähdysmäisesti pinnan lohkeamia. Tämä tapahtuu tyypillisesti varsin varhaisessa vaiheessa palon alussa. Myöhemminkin vastaavan kaltaisia lohkeamia voi edelleen syntyä lämpölaajenemiserojen seurauksena sekä rakenteen raudoituksen kuumenemiseen liittyen. Lohkeamat voivat korkeammissa lämpötiloissa liittyä myös betonin kemiallisen rakenteen muutoksiin, erityisesti lämpötila-alueella noin +500 – +600 oC.
Lujuusominaisuuksien muutokset Betonin lujuusominaisuudet heikkenevät korkean lämpötilan vaikutuksesta pysyvästi eli lämpötilan noususta johtuva lujuudenmenetys palon aikana ei juurikaan palaudu rakenteen jäähdyttyä.
Jo siinä vaiheessa, kun betonista on aistinvaraisesti havaittavissa vasta ensimmäisiä merkkejä värinmuutoksesta, on betonin lujuus jo selvästi alentunut. Jos betonin lämpötila kohoaa yli +500 oC:n, on lujuudesta jäljellä enää noin puolet. Lujuudenmenetystä arvioitaessa on tärkeää muistaa betonin huono lämmönjohtavuus eli esim. pintaosien värinmuutoksen perusteella ei voida arvioida syvemmällä rakenteessa olevan betonin lujuutta.
Palovaurioita arvioitaessa rakenteista valikoiduista kohdista irrotetut rakennekoekappaleet ovat ainoa luotettava tapa määrittää
betonin todellinen jäljellä oleva lujuus. Pintaosan lujuutta ja potentiaalisesti vaurioituneita rakenteita voidaan kartoittaa aistinvaraisesti mm. koputtelemalla sekä paikan päällä tehtävillä vertailevilla mittauksilla, kuten kimmovasaroinnilla. Betonin lujuusominaisuuksien muutoksen osalta on huomattava, että betonin kimmomoduuli ja taivutusvetolujuus heikkenevät lämpötilan noustessa huomattavasti aikaisemmin kuin puristuslujuus. Tämä yhdessä lämpötilan noustessa tapahtuvan raudoituksen lujuuden alenemisen kanssa edesauttaa muodonmuutosten syntymistä rakenteisiin, esim. palkkien taipumista, vaikka betonissa ei merkittävää vaurioitumista vielä olisikaan nähtävissä.
Betonirakenteiden palovaurioita arvioitaessa merkittävässä roolissa on aina raudoituksen sekä erilaisten teräksisten kiinnitysosien vauriot. Betonin ja raudoitusterästen huomattavan erilaiset lämpölaajenemiskertoimet ovat tärkeä syy betonirakenteen vaurioitumiseen korkean lämpötilan vaikuttaessa rakenteisiin pidemmän aikaa. Raudoituksen osalta keskeistä on huomioida erikseen, jos palolle on altistunut jännitettyjä betonirakenteita.
Tavanomaisen raudoitusteräksen lujuus palautuu melko hyvin rakenteen jäähtyessä, mutta jänneteräksessä korkean lämpötilan vaikutuksesta tapahtuvat lujuusmuutokset ovat luonteeltaan pysyviä. Tavanomaisissa teräsbetonirakenteissa raudoituksen vaurioituminen ei yleensä ole rakenteen korjattavuuden kannalta määräävässä asemassa, jos rakenteeseen ei palon aikana ole syntynyt poikkeavia muodonmuutoksia. Jännitetyissä rakenteissa raudoitus, nimenomaan jännepunokset, on sitä
Mika Oikari, AFRY Finland Oy

vastoin voinut vaurioitua merkittävästikin ilman, että betonissa tai rakenteessa kokonaisuutena on aistinvaraisesti havaittavissa vaurioita. Tästä syystä rakenteessa palotilanteessa vallinneiden todellisten lämpötilojen määrittäminen on korjattavuutta arvioitaessa välttämätöntä jännitettyjen rakenteiden osalta, ellei ulkoisten sekundääristen havaintojen perusteella voida luotettavasti varmistaa, että ko. rakenteiden ympärillä vallinnut lämpötila on tulipalon aikana ollut vaurioitumisen kannalta alhainen tai hyvin lyhytkestoinen.
Raudoituksen jäännöslujuuksia voidaan tarvittaessa selvittää jälkikäteen myös laboratoriotutkimusten avulla, mutta koska se edellyttää raudoituksen katkaisemista soveltuvan näytteen irrottamiseksi, tulee näytteenoton tarve erikseen arvioida ja huomioida sekä näytteenoton että tulevan korjauksen suunnittelussa. Maksimilämpötila, jossa raudoitussyvyydellä oleva betoni on käynyt tulipalon aikana, on selvitettävissä laboratoriotutkimuksin, jolloin jännepunosten vaurioitumista voidaan luotettavasti arvioida.
Sekundääriset havainnot rakenteista Betonirakenteiden tulipalovaurioiden arvioinnissa palopaikalta tehdyillä sekundäärisillä havainnoilla on suuri merkitys. Muista rakenteista ja materiaaleista tehtävät havain-

not auttavat arvioimaan palossa vallinneita lämpötiloja ja niiden vaikutusaikoja.
Aiemmin mainitusta betonin huonosta lämmönjohtavuudesta johtuen korkeiden lämpötilojen vaikutusaika on keskeinen tekijä, kun arvioidaan, onko edes ollut mahdollista, että betonirakenne on palossa merkittävästi vaurioitunut.
Tyypillisiä sekundääristen rakenteiden havaintoja, joiden avulla lämpötiloja ja vaikutusaikoja voidaan arvioida, ovat puuosien hiiltyminen, muoviosien sulaminen ja palaminen, lasin pehmeneminen, alumiiniosien sulaminen, erilaisten lämmöneristeiden vaurioituminen sekä teräsosien muodonmuutokset.
Sekundääristen havaintojen arvioinnissa on oleellista huomioida niiden paikallisuus. Tulipalon aikana rakennuksen sisällä vallitsee yleensä hyvin erilaiset olosuhteet lämpötilojen osalta johtuen mm. palokaasujen virtauksista.
Kaikki palopaikan lämpötiloista kerätty tieto auttaa myös muiden rakenneosien potentiaalisen vaurioitumisen arvioinnissa. Tyypillinen esimerkki on elementtirakenteisten palkkien laakerointikumit, joilla on merkitystä betonirakenteen toimintaan kokonaisuutena ja joihin voi syntyä toimenpiteitä vaativia vaurioita jo alhaisemmissa lämpötiloissa kuin niiden varassa olevaan palkkiin.
Laboratoriotutkimukset apuna betonin vaurioitumisen arvioinnissa
Kuten aiemmin esitettiin, laboratoriotutkimuksin voidaan selvittää betonin sisäosien maksimilämpötila palon aikana.
Tärkein laboratoriomenetelmä betonin vaurioitumisen arvioimiseksi on ohuthieanalyysi, jonka avulla voidaan tutkia betonin sisäistä vaurioitumista mikroskoopin avulla. Ohuthietutkimuksessa rakenteesta timanttiporaamalla irrotetusta betoninäytteestä valmistetaan lasilevylle noin 0,025 mm:n paksuinen leike, jota voidaan tutkia valomikroskoopin avulla.
Tyypillisiä muita laboratoriotutkimusmenetelmiä, joita käytetään betonin palovaurioiden ja korjattavuuden arvioimisessa, ovat puristus- ja vetolujuuden määritys sekä kloridianalyysi.
Kuten rakenteiden tutkimuksessa yleensäkin, palovaurioiden ja rakenteiden korjattavuuden arvioinnin kannalta materiaalinäytteiden oikea kohdistaminen sekä asiantunteva näytteenotto ovat keskeisessä roolissa siinä, että saadut tulokset kuvaavat tutkittavan rakenteen kuntoa luotettavasti.
Palovaurioiden korjaaminen on käsiteltävä omana aihekokonaisuutena, mutta pääosin korjaamisessa voidaan soveltaa, lääkäriterminologiaa käyttäen, oireenmukaista hoitoa. Koska vauriot aiheuttaneet ulkoiset 6
Sonja Nieminen-Kahra, AFRY Finland Oy
Mika Oikari, AFRY Finland Oy

8
6 Materiaalinäytteiden ottoa betoniseinästä. Lieriönäytteet irroitetaan timanttiporaamalla ja toimitetaan laboratorioon tutkittavaksi.
7 Betonin pinnan mikrorakenne kuvattuna tasopolarisoidussa valossa, pinta on kuvassa vasemmalla. Pinta on voimakkaan epätasainen, betonia on irronnut. Kiviaines näkyy kuvassa vaaleina rakeina, sideainematriisi koostumuksesta ja tiiviydestä riippuen vaalean kellertävän ruskeana - tumman ruskeana. Halkeamat ja huokoset ovat keltaisia. Betonin pinnassa on epäsäännöllistä ja voimakasta tulipalon aiheuttamaa halkeilua. Kuvan lyhyt sivu vastaa näytteessä 3,5 mm.
8 Rouhepinnoitettu betonisokkeli rakennuspalon jälkeen. Pinnoitteet vaurioituvat palossa helposti, mutta usein ne suojaavat vielä irrottuaankin hyvin alla olevaa betonipintaa. Erilaisia näkyviä kiteytymiä voi syntyä sammutusveden kuivumisen seurauksena, mutta ne voivat olla kertyneet betonin pintaan pinnoitteen alle myös jo paljon aikaisemmin.
tekijät ovat poistuneet, voidaan korjaustoimet ensisijaisesti suunnitella niin, että niillä palautetaan rakenteen alkuperäinen toimintakyky. Lisäksi voi olla tarvetta toteuttaa rakenteisiin tarttuneen noen ja hajujen vuoksi erilaisia kapselointeja ja tiivistyksiä sekä kastumisen seurauksena kuivaustoimenpiteitä.
Palovauriokorjauksissa on tärkeää muistaa, että korjauksella tulee palauttaa rakenteen varmuus myös seuraavaa vastaavaa poikkeustilannetta kuormitustilannetta ajatellen eli rakenteen tulee toimia esimerkiksi uudessa tulipalossa samalla varmuudella kuin sen on alunperinkin suunniteltu käyttäytyvän. •
Concrete structures in a fire
As a rule, concrete is a safe building material in a fire but it may sustain severe damage from both fire and extinguishing efforts. In addition to high temperatures, factors affecting concrete structures include rapid cooling by firewater, mechanical disassembly and demolition as well as a partial structural collapse.
Fire-induced damage of concrete typically occurs as cracking, scaling, discoloration, deformations, and reinforcement damage. The damage usually spreads deeper quite slowly into the structure from the surface due to the poor thermal conductivity of concrete.
The strength of concrete deteriorates permanently with increasing temperature and will not be restored when the structure cools down. The very first discoloration already indicates a clear loss of strength and at high temperatures, it is possible that the concrete only has a part of its strength left. Prestressed structures are especially challenging and may sustain severe damage without any visible indications on the concrete. For this reason, the assessment of fire damage calls for a comprehensive analysis, observations made at the scene of the fire, and often also laboratory tests.
Repairs must be designed to restore the safety and functionality of the structure also in any future abnormal conditions. •
Heikki Kamula, AFRY
Aalto-yliopiston arkkitehtuurin laitoksen Betonistudio 2025
Aistipaviljonki
Simon Mahringer, yliopisto-lehtori, Dipl.Arch. ETH
Aalto-yliopisto
Taiteiden ja suunnittelun korkeakoulu Arkkitehtuurin laitos simon.mahringer@aalto.fi
Kurssiin liittyvässä harjoitustyön suunnittelutehtävässä opiskelijat tarkastelivat betonin rakenteellista ja arkkitehtonista potentiaalia valumateriaalina. He käsittelivät muun muassa monoliittisen rakentamisen, positiivisen ja negatiivisen tilan sekä yhtenäisen valumateriaalin mahdollisuuksia.
Tehtävänä oli suunnitella Aistipaviljonki Otaniemen Aalto-kampuksen viereisen meren lahden alueelle. Opiskelijat suunnittelivat yksittäisiä ja yksilöllisiä, noin 30 m2 suuruisia teräsbetonipaviljonkeja, jotka sai sijoittaa vapaasti maastoon. Jokaisen paviljongin teeman tuli perustua erilaisiin aistikokemuksiin, joissa mukana voivat olla eri luonnonelementit, näkymät, äänet, vesi, päivänvalon kiertokulku tai istutukset.
Paviljongit rakennettiin katettuina rakenteina ja myös ympäröivät alueet voitiin haluttaessa käsitellä ja peittää. Paviljongit rakenteineen suunniteltiin ja lopuksi työryhmä valoi betonista paviljongin mittakaavassa 1:10. Valettuja paviljonkeja valmistui 12 kappaletta, jotka olivat nähtävillä Aalto-yliopiston kampuksella kesän 2025.
Tällä kurssilla yksi paviljonki (ryhmä 5) valettiin erityisbetoniseoksella, jossa sementtiä korvattiin muun muassa kivihiilen polttojätteenä syntyvällä lentotuhkalla. Betoniseos ja valmistusprosessi toteutettiin yhteistyössä Aallon Rakennustekniikan laitoksen tutkija Ville Revon kanssa.
Jo yli 20 vuoden studiokurssin perinteeseen on kuulunut myös kurssin alussa järjestettävät
Aalto-yliopiston arkkitehtuurin laitoksella perusopintoihin kuuluu yleisimpiin rakennusmateriaaleihin tutustuminen luentojen ja erilaisten harjoitustöiden kautta. Keväällä 2025 kestävän rakentamisen professuurin kurssilla opiskelijat tutustuivat betoniin, sen rakenteellisiin ja materiaali- sekä erityisominaisuuksiin.
kohde-excursiot, mutta tällä kertaa excursiota ei järjestetty kurssin kiireisen aikataulun vuoksi. Opiskelijoilla oli mahdollisuus tutustua betoniarkkitehtuurin ja -rakenteiden kohteisiin omalla ajalla.
Finnsementti Oy lahjoitti kurssilla tarvittavat sementit, erilaisia kiviaineksia sekä pigmentti- että seosaineita.
Tavoitteena kurssilla on tutustua betonirakentamisen mahdollisuuksiin, betonipintoihin ja ajankohtaisiin betonirakentamisen mahdollisuuksiin sekä rakennusten ikääntymiseen että kierrätykseen liittyviin betonirakentamisen teemoihin. Myös betonin CO2 päästöihin ja betonin tulevaisuutta käsiteltiin luennoilla. •
Kurssilla opettajina ja ohjaajina toimivat:
Professori: Matti Kuittinen
Yliopisto-lehtori: Simon Mahringer
Opettajat: Arkkitehdit Mikko Liski ja Miina Vuorinen
Betoniasiantuntijoina, luennoitsijoina ja ohjaajina:
Maritta Koivisto, arkkitehti SAFA
Seppo Petrow, dipl.ins.
Ville Repo, väitöskirjatutkija, Aalto yliopisto
Työpajan vastuuhenkilöt:
Ville Auvinen
Joshua Krute
Jari Simanainen
Pavilion of senses 2025
In the Department of Architecture at Aalto University, basic studies include getting familiar with the most common building materials through various exercises. In the course of the professorship “Sustainable Construction“ in the spring of 2025, students were introduced to mineral building materials and their specific properties.
In a practical design task, they examined the constructive and architectural potential of concrete as a cast material. Among other things, they covered the topics of monolithic construction, positive and negative space, and solid construction. The specific task was to design a sensory pavilion in the bay area of the Aalto Campus in Otaniemi.
The students developed individual pavilions approximately 30 sqm in size that were placed freely in the area as open and cold structures. The theme of each pavilion had to be based on the experience the place provides to the senses or on a natural element, such as a view, a sound, a water body, a daylight cycle, or a plantation. The pavilions were to be built as massive and monolithic structures designed in groups at a scale of 1:10 and finally cast into their shape.
This year, one pavilion (Group 5) was cast in a sustainable concrete mix where the cement aggregate was substituted with fly ash from combustion waste. The development of the mix and the manufacturing process was carried out in collaboration with the Aalto School of Engineering and researcher Ville Repo. •


Olli Mattila, Peppi Heikkinen, Ava Linden, Annariina Nyrövaara, Veera Schrey, Pihla Junnila
Suunnittelun lähtökohtana oli betonin käyttö materiaalille ominaisella tavalla. Materiaalina se mahdollistaa jännitteisen, jopa painovoimaa uhmaavan rakenteen tekemisen, mitä halusimme hyödyntää. ”Loikka” onkin jatkuvassa jännitteessä, kun se taipuu kauniisti ja soljuvasti venyvään muotoonsa.
Paviljongin käyttäjää suojaa ylitse kurkottava katto, mutta seinät ovat kolmeen suuntaan avoimet, mikä maalattian kanssa tekee tilan rajauksesta häilyvän. Paviljongin sisälle kääntyvä jalka toimii penkkinä, ja ulospäin kääntyvä kutsuu uskaliaimpia löytämään rakenteen katolta toisen tilan.
Kokosimme CNC-jyrsimellä muotoonsa leikatut polyuretaanilevyt päällekkäin ja valoimme betonin niistä kasattuun muottiin. Emme halunneet silotella muotin pintaa, sillä se sai aikaan rouhean pinnan. Levyjen väliset raot jättivät rakenteeseen muottibetonille tyypillisen liikkeen suuntaisen kauniin tekstuurin. Käytimme harmaata betonia, joka koostui tummasta kivirouheesta ja harmaasta sementistä. Koska pyrimme kunnioittamaan betonia materiaalina, seokseen ei lisätty väriaineita betonille ominaisen värin saavuttamiseksi.

Paviljonkimme perusidea lähti sienestä, jonka sisällä olisi ollut ontto tila. Idean kypsyessä päädyimme sieneen, jonka painopistettä on siirretty kohti kokonaisuuden reunaa. Lisätäksemme paviljongin rakenteellista kestävyyttä, sienen jalka muuttui peilikuvaksi sienen hatusta.
Toteutuksessa hyödynsimme styroksilevyjä, joihin leikkasimme kunkin kerroksen muodon. Kasattuamme styroksilevyjen negatiivit, saimme muotin betonivalulle. Betoni-
Saimi Koskivainio, Daniela Lindborg, Aarne Luokkakallio, Fanny Merinen, Hilla Pennanen, Sofia Sirén
Paviljongin muotokielen taustalla oli ajatus kaikkiin suuntiin avautuvista näkymistä, istuskelupaikkojen luomisesta sekä palikkamaisesta rakenteesta. Kaksi toisiinsa limittyvää kappaletta yhdessä täydentävät toisensa, mutta ne on myös mahdollista erottaa ja käyttää uudelleen ympäristön muuttuessa.
Valua varten rakennettiin kaksi lähes identtistä laatikkoa, joiden sisälle asetettiin sisätilan massan mukainen foam-muotti. Seinät asetettiin tiukasti muotin ympärille ylimääräisen betonipinnan muodostumisen estämiseksi. Hyödynsimme vanerilevyn sisäpintaa lopullisen valun seinän tekstuurina. Lisäksi käytimme kanaverkkoa ja rautatankoa tukirakenteina. Betonimassaan käytimme erikokoisia kiviaineksia ja sementtiä, mutta ainesosien loputtua jouduimme käyttämään myös kuivabetoniseosta. Valu sujui hyvin ja lopputuloksesta tuli juuri visioimamme kaltainen.
massan sisälle lisäsimme hattua kannattelevan raudoituksen, sekä kivipainon sienen runkoon. Betoniseoksena käytimme kuivabetonia, jossa kiviaines-sementtiseoksen sekaan lisättiin vesi. Lisäsimme myös raekooltaan isompia kiviä tuodaksemme esiin tietynlaista tekstuuria.
Tuotantoprosessin ongelmaksi koitui tapamme liittää muotin kerrokset yhteen. Kaksipuoleinen teippi ei riittänyt pitämään palasia kiinni toisissaan, vaan valamisvaiheessa betonimuotti alkoi vuotaa. Pyrimme

saamaan styroksilevyt uudelleen kiinni toisiinsa käyttämällä ruuveja. Tämä auttoi, mutta osa ruuveista läpäisi negatiivilevyt siten, että ruuvit jäivät kiinni lopulliseen malliin.
Viimeistelyvaiheessa sahasimme mallista ruuvien törröttävät osat pois. Irrotimme myös mallin yli valuneen betonin lopullisesta paviljongista. Hiomisen jälkeen vahinkoja tuskin erottaa lopputuloksesta.

Iiris Honkala, Jannica Björkqvist, Johan Frondelius, Mirjam Ahonen, Touko Manner


Wim Andersson, Iina Clerc, Aali Gubaydullina, Milla Hölsö, Anneli Trifonova
Halusimme hyödyntää valettavan materiaalin mahdollisuuksia tekemällä vapaan ja orgaanisen muodon, joka avautuu eri suuntiin. Aaltomaisessa rakennelmassa on kaksi ”aallonharjaa”. Niiden korkeusvaihtelu luo erilaisia käyttömahdollisuuksia: korkeamman aallon alle mahtuu seisomaan ja matalamman päälle voi kiivetä istumaan. Toimme pintaan vaihtelua aaltopahvin päälle valettujen uurteiden avulla aktivoidaksemme erityisesti kosketusaistia.

Epäsäännöllinen muotomme teki muotin rakentamisesta melko haastavaa. Päädyimme kasaamaan muotin oikeaan muotoon taivutetuista peltilevyistä, jotka kiinnitettiin uretaanilevystä leikattuun pohjaan. Rakennelma kiinnitettiin vaneriin ja tuettiin puisilla tukipaloilla. Käytimme valamiseen hieman alle 10 litraa betoniseosta, jonka valmistimme harmaasta kuivabetoniseoksesta. Tukirakenteeksi paviljongin sisään aseteltiin kanaverkkoa.
Anni Kostilainen, Sade Kauppila, Helinä Lämsä, Oona Montin, Eini Perhola
Paviljonki suunniteltiin sijaitsevan keskellä lampea veden ympäröimänä. Veden pinta ulottuu pohjan kalteviin osiin, jolloin keskelle muodostuu pilareiden ympäröimä saareke. Paviljongin perusideana on yhdistää orgaanisia ja jäykkiä muotoja. Ulkoreunoiltaan se on miltei kuutio, mutta sisätila koostuu kaarevista muodoista. Pyrimme suunnittelemaan reunojen raot niin, ettei rakennelmasta näe suoraan läpi. Muotin sisäosa tehtiin uretaanilevyistä leikkaamalla monta samanlaista palaa CNC-laserleikkurilla Rhino-tiedoston perusteella. Vanerimuotti rakennettiin sisuksen ympärille, jotta siitä saatiin mahdollisimman tiivis. Ennen valua muotin saumat tiivistettiin silikonilla ja uretaanimuotin pinnat valeltiin muottiöljyllä. Betoniksi valikoitui vaaleanharmaa betoni, jonka seos koostuu karkeasta ja hienosta kiviaineksesta, sementistä sekä vedestä. Työn aikana Pajalta kuitenkin loppuivat betonin materiaalit kesken, joten osa työstä on valettu rautakaupan valmiista kuivabetoni-seoksesta.
Veera Turunen, Liivia Soikkeli, Joonas Väinölä, Nelli Ansakorpi, Armi Illikainen, Sofia Emelianov
Ryhmällämme oli alusta asti yhteinen näkemys orgaanisten muotojen inspiroimasta paviljongista, jossa paviljongin ulkomuoto ei paljastaisi täysin sitä miltä rakennelma näyttää sisältä. Sisätilan inspiraation lähteenä toimivat erityisesti valon kulku sisäseinän pintoja myöden sekä kallioiden röpyläiset muodot.
Valumuotin rakentaminen oli melko suoraviivaista, teimme muottivanerista suorakulmion muotoisen laatikon (30x30x60cm), jonka sisälle asettelimme ja liimasimme paviljongin sisätilan muotoisen polyuretaanilevyistä tehdyn kappaleen. Kappaleen teimme ruuvaamalla noin 5 cm paksuisia leikeltyjä palasia kiinni toisiinsa ja lopuksi päällystimme valmiin kappaleen foliolla antaaksemme sisätilalle orgaanisemman tekstuurin. Folion päälle laitoimme vielä elmukelmua estääksemme folion jäämisen kiinni ekobetoniseokseen. Paviljonkimme materiaalina ei käytetty tavallista betoniseosta, vaan siinä käytettiin kehitteillä olevaa ekobetonia, jonka valmistamiseen ei ole käytetty sementtiä, vaan teollisuuden sivuvirroista syntyneitä kuonaa ja erilaisia tuhkia.
Aalto-yliopiston



Ida-Rosa Kippo, Jure Kukkonen, Lumianna Niemi, Vega Raad Salih, Meri Suisto
Ruoto on suunniteltu Servinniemen kärkeen, veden ja rannan rajaan. Paikka tarjoaa avarat näkymät itään, pohjoiseen ja länteen. Virkistyskäytössä olevalle alueelle jääneet nuotiopaikat kertovat, että paikka kutsuu viihtymään pidempään. Tarkoituksenamme oli luoda inspiroiva ja kutsuva paviljonki, joka yhdistää valon kierron, meren läheisyyden sekä avaran maiseman harmoniseen ja suojaisaan betonirakenteiseen tilaan.
Aloitimme projektin tekemällä luonnoksia. Valitsimme pisimmälle mietityn luonnoksen, joka miellytti koko ryhmää. Projektin tiiviin luonteen vuoksi teimme tarkan ajankäyttösuunnitelman, jotta pystyimme viemään toteutuksen loppuun aikataulussa.
Laadimme luonnoksia ja pienoismalleja, jotka auttoivat visualisoimaan paviljongin rakenteen ja toiminnallisuuden. Keskityimme erityisesti päivänvalon kierron ja meren läheisyyden huomioimiseen.
Jo luonnosvaiheessa pohdimme betonivalun toteutettavuutta, ja tämä ohjasi myös suunnittelua. Toteutimme paviljongin käyttäen betonia ja rakennetta vahvistavaa teräsverkkoa. Betonia valmistettiin noin 25 litraa, joka sisälsi kahta erikokoista kivirouhetta, harmaata sementtiä sekä vettä. Muotti valmistettiin filmivanerista ja uretaanilevyistä.




Elias Axelsson, Kasperi Eurasto, Meri Niini, Jussi Takkinen, Anna Vuola
Paviljongin lähtökohtana oli useilla aisteilla koettava suljettu tila, joka muodostaa vahvan kontrastin ulko- ja sisäpuolen välille. Ulkohahmo on sileä horisontaalisesti haljennut kuutio, jonka yläpuoli seisoo kapeiden teräspylväiden varassa. Tämä luo illuusion leijumisesta, mikä leikittelee betonin raskaudella.
Halkeama antaa vihjeen sisätilasta, jossa betonin pinta on karheampaa ja muodot orgaanisempia. Valoa pääsee sisään halkeaman ja oviaukon lisäksi vain vähän pienestä kattoaukosta. Sisätilan keskellä oleva vesiallas luo heijastuksia ja korostaa kattoaukosta satavan veden ropinaa, joka kaikuu suljetussa tilassa.
Paviljongin ylä- ja alapuoli valettiin kahdella lähes identtisellä muotilla. Tarkoituksena oli käyttää samaa muottia kahdesti, mutta lopulta muotin purkaminen ehjänä oli mahdotonta.
Betoniseos sisälsi ainoastaan S30-kuivabetonia, jotta se olisi varmasti tarpeeksi juoksevaa. Valun pintaan teimme kuivemman seoksen, jolloin pinta jäi epätasaiseksi halkeamaa varten.
Olli Koho, Aino Kuosmanen, Viivi Malinen, Roo Nieminen, Jaakko Ristimäki
Idea lähti entisistä musiikkitapahtumista tunnetusta alikulusta Otaniemessä. Paviljongissa on ääniaaltojen muovaama sisätila, jossa on huomioitu erityisesti akustiikan toimivuus uusia musiikkitapahtumia varten.
Muotin sisätila leikattiin kerroksittain uretaanilevyistä ja osat kiinnitettiin päällekkäin. Tämä rakennelma muodosti tilan negaation, jonka ympärille sitten rakennettiin vanerista laatikko. Sisätilan kerrokset haluttiin myös ulkopuolelle näkyviin, joten laatikon sisäreunaan kiinnitettiin uretaanisuikaleita samalla tavalla kerroksittain.
Tarkoitus oli korostaa kerroksia myös eri sävyisillä betonimassoilla. Päällimmäisin osa on täysin vaaleaa, joka on tehty valkosementistä ja hienosta, valkoisesta kiviaineksesta. Alempiin kerroksiin käytettiin mustaa pigmenttiä sekä harmaata sementtiä eri suhteissa, jotta eri sävyt saatiin näkyviin.
Aalto-yliopiston arkkitehtuurin laitoksen Betonistudio 2025 Aistipaviljonki



Paviljongin konseptiksi muodostui vauhdin ja tasapainon kokemus. Tilan kaareva kulhomainen sisäosa kutsuu kokeilemaan erilaisia paviljongin käyttötapoja ja vauhtia keinona saavuttaa kaikki alueet. Kiipeäminen vaatii tasapainoa ja samalla itse rakenne uhmaa painovoimaa. Paviljonkiin muodostuu istuma-alueita ja aukotukset luovat valon ja varjon vaihtelua kolmen osan asettelun ansiosta.
Muotokieli rakentuu hyvin yksinkertaisista geometrisista muodoista, kuutiosta ja pallosta. Halusimme, että paviljonki on modulaarinen ja se koostuu kolmesta identtisestä palasta. Kaikki palat valettiin samalla muotilla. Muottimme oli tehty pinnoitetusta filmivanerista ja pyöreä muoto saatiin aikaan styroksisella puolipallolla. Muotin sisäpinta öljyttiin, jotta palat irtoaisivat hyvin ja muot-
tia voisi käyttää varmasti useamman kerran. Prosessissa oli paljon sokkona kokeilua ja tutkimalla toteuttamista. Painovoimaa uhmaavaan palaan teimme toiseen päähän kevennyksen ja toiseen lisäsimme painoa, jotta pala pysyisi tasapainossa, mutta jouduimme siitä huolimatta lisäämään metallitangon pitämään palaa ilmassa. Työ valettiin harmaalla betonimassalla.
Anja Ash, Fanny Erlund, Tiina Hahl, Lilli Takala, Jussi Valjus


Suunnittelu lähti paviljongin sijoittamisesta Otarantaan, jossa ohikulkija voi aistia meren, valon ja ilmavirrat Geodin suojassa. Lähdimme lohkomaan kuutiomuotoa, mietimme ja kokeilimme voimien vaikutusta massiiviseen rakeneeseen. Suuremman kappaleen jyrkkä viisto pinta ohjaa kulkijan porttimaisen rakenteen läpi. Kappaleet vain hipaisevat toisiaan niiden kohtauspisteessä. Yksi ajatuksista oli yllätyksellisyys: harmaan betonikuution sisältä pal-
jastuukin kotoisa puoliavoin tila, jonka seinät säihkyvät auringon valossa.
Halusimme kokeilla betonipinnan tekstuurin muokkaamista lasimateriaalilla. Painoimme murskattua kierrätyslasia betonimassan päälle. Lasilla käsiteltävä pinta tuli jäädä ylöspäin betonia valaessa, mikä teki muotin rakentamisesta haastavaa paviljongin seinien vinouden vuoksi. Tavoitteemme oli lasinsirujen avulla luoda betonin pintaan yllätyksellisiä

valoilmiöitä auringonvalon osuessa niihin. Kappaleet levenevät ylöspäin, minkä vuoksi laitoimme kappaleiden sisään vahvistavan metalliverkon ja keventävän uretaanilevyn lisäksi kierretangon, joka pultataan maahan kappaleiden tukevoittamiseksi. Paviljongit tulivat näytille betonilaattojen päälle, jonka vuoksi jouduimme poraamaan laattoihin reiät kierretankoa varten.
Paviljonki valettiin s100-kuivabetonilla.
Natalia Tyni, Onni Apilo, Hannu Enqvist, Kaisa Heikura, Julia Jaakkola
Paviljonkimme perusideana oli luoda päältä päin yksinkertaisen betoniharkon näköinen rakenne, jonka aisteja herättävä sisätila on kuin railo kalliossa. Ulkopäin paviljonki on sileä suorakulmio, jonka sisältä paljastuu röpelöinen, kallion seinämää muistuttava sisäpinta.
Katon railosta valo luo salaperäisen tunnelman jykeväseinäiseen paviljonkiin. Muutoin pimeä tunneli päättyy paviljongin kaaripäätyyn, josta aukeaa näkymä ja pääsy merelle. Paviljongin päädystä mereen laskeutuvat betoniportaat. Sataessa railo puolestaan tuo paviljonkiin mukaan myös äänimaailman, kun vesi valuu ”kallionseinämiä" pitkin lattian vesikouruihin johdattaen sadeveden mereen.
Betonimassassa on käytetty S100-kuivabetonia ja vettä. Seosta tehtiin viidessä erässä yhteensä 140 kg ja valutettiin 80×40×40 cm kokoiseen vanerimuottiin. Betonia kevennettiin uretaanilevyillä, joista muotoiltiin myös sisätila. Rakenteen lujuutta vahvistettiin metalliverkolla pitkillä sivuilla ja päädyssä.
Aada Kärkkäinen, Hilma Hedback, Aaro Talvitie, Timo Jakkula, Ella Matalamäki
Henkilökuvassa
Annina Tuominen
Betoni-lehden henkilögalleriassa on haastateltavana Finnsementti Oy:n tuore toimitusjohtaja, dipl.ins., MBA Annina Tuominen, o.s. Alanen (s. 1981 Vaasa).
Teksti: Dakota Lavento, toimittaja
Viime syyskuun puolivälissä Finnsementin toimitusjohtajana aloittanut Annina Tuominen on haastateltaessa suorastaan ylitsevuotavan hyväntuulinen, motivoitunut, innostunut ja energinen. Mitä ilmeisimmin kysymyksessä on hänelle varsin tavanomainen olotila, jota vielä vahvistaa mielenkiintoinen työ kaikkine mukanaan tuomine haasteineen.
Haasteisiin Annina Tuominen on tottunut tarttumaan ja kääntämään vaikeudet voitokseen. Jännittävät tilanteet ovat hänestä innostavia.
Suomalaisella rakennusalalla ja erityisesti betonirakentamisen johtotehtävissä sellaisista ominaisuuksista on varmasti juuri nyt etua.
Annina Tuominen on raikas tuulahdus alan ulkopuolelta ja häneltä odotetaankin alalle uusia näkökulmia. –Vastassa olisi saattanut olla hienoista varautuneisuuttakin, hän sanoo, – mutta vastaanotto on ollut todella lämmin.
Kehityksen kärjessä Finnsementille vihreässä siirtymässä aivan eturintamassa taisteleminen on ehdoton prioriteetti. Sen on pienennettävä omia päästöjään ja kotimaisena toimijana sillä on velvollisuus auttaa asiakkaitaan ja koko toimialaa vähentämään hiilidioksidipäästöjään.
Rakennusala on ollut perinteisesti hitaan muutoksen ala, mutta kehitys on viimeaikoina kiihtynyt räjähdysmäisesti. Annina Tuominen havainnollistaa muutosta Finnsementin esimerkillä: viime vuonna markkinoille tuotiin lujuusluokaltaan paranneltu Oiva-sementti ja
täysin uusi Rene-sementti. Kaikkiaan Finnsementti on vuodesta 2020 lähtien lanseerannut kuusi vähähiilisempää sementtiä.
–Tällä vauhdilla rakentaminen ja siinä käytetyt tuotteet eivät ole uudistuneet koskaan. Aika haastaa meidät aivan uudella tavalla. Meidän on pysyttävä muutoksessa mukana eikä siinä ole vaihtoehtoakaan.
–Toimialana meidän on yhdessä varmistuttava, että olemme valmiita tulevaisuuteen ja sen tuomiin haasteisiin ja mahdollisuuksiin. Meidän on pidettävä huolta, että viestimme kuullaan yhteiskunnassa laajemminkin, jotta toimintaedellytyksemme säilyvät. Kyllähän betonilla on jatkossakin paikkansa eniten käytettynä rakennusmateriaalina.
Lähitulevaisuuden näkymät eivät ole muutamaan vuoteen herättäneet riemunkiljahduksia alan yritysten toimitusjohtajissa. Käännettä parempaan on ennusteltu toiveikkaana yhä uudestaan ja uudestaan. Annina Tuominen ei halua lähteä spekuloimaan rakentamisen alakulon päättymisen ajankohtaa.
–Hirveän pitkän ajan normaali tämä nykyinen ei voi olla. Lopulta käänne tulee, se on varmaa. Asuntorakentamisen velkaa kasvatetaan joka vuosi. Viime vuonna rakennettiin 18 000 uutta asuntoa, kun tarve olisi ollut 30 000–40 000 välissä. Paine kasvaa ja vuosi vuodelta siihen on haastavampaa vastata.
Juuret lakeuksilla
Annina syntyi kovasti odotettuna ja toivottuna esikoisena pankinjohtaja-isän ja taloushallinnossa työskentelevän äidin perheeseen. Van-
hemmat olivat tutustuneet kauppaopistossa opiskellessaan.
Anninan sukujuuret ovat Pohjanmaalla ja sukua asuu siellä edelleen, mummikin Ilmajoella.
Veljen Annina sai ollessaan kolmivuotias. Hän olisi toivonut enemmänkin sisaruksia. –Olen aina ollut hyvin perhekeskeinen ja nauttinut, kun ympärillä on paljon porukkaa, hän kertoo.
Anninan kolme poikaserkkua olivat suunnilleen saman ikäisiä. Viisikko leikki yhdessä ja leikit olivat aika rämäpäisiä: majojen rakentamista, rosvoa ja poliisia, vakoiluleikkiä. Veljen kanssa Anninalla oli yhteiset kiinnostuksen kohteet. Hän ei välittänyt barbeista tai nukeista vaan enemmänkin pikkuautoista.
Perhe muutti isän työn vuoksi usein. Vaasasta he siirtyivät ensin Jalasjärvelle ja seuraavaksi edessä oli Oripää. Muutto Varsinais-Suomeen oli Anninalle melkoinen kulttuurishokki. Siellä puhuttiin aivan erilaista murretta, melkein kuin uutta kieltä.
Viisivuotiaana lukemaan oppinut Annina oli kovasti odottanut kouluun pääsyä. Onneksi ilo kouluun pääsemisestä kantoi pitkälle. Annina oli aktiivinen ja todella motivoitunut oppimaan uutta, ja tykkäsi koulussa kaikesta, erityisesti matikasta ja kielistä. Ehkä historiasta ja uskonnosta hieman vähemmän. Hän arvelee olleensa jopa ärsyttävän ylimotivoitunut.
Hajuton ja mauton mallioppilas Annina ei kuitenkaan ollut, sillä hän osasi myös haastaa ärhäkästi, jos oli eri mieltä. Opettajien kanssa

1 Annina Tuominen on raikas tuulahdus betonialan ulkopuolelta ja häneltä on lupa odottaa alalle uusia näkökulmia.
hän muistelee käyneensä välillä tiukkojakin keskusteluja. Aina hän ei muistanut tehdä läksyjä, eivätkä kirjatkaan olleet välttämättä oikeassa paikassa.
Musiikkia Annina harrasti läpi kouluajan. Pianotunnitkin hän oli aloittanut jo viiden vanhana. Tavoitteellisena harrastuksena se vei paljon aikaa: oli viikoittaiset piano- ja teoriatunnit sekä kuoroharkat.
Urheilu ei ollut Anninan juttu, mutta partio oli lähellä sydäntä hyvin pitkään. –Tykkäsin telttailla ja käydä yöretkillä. Oli hienoa laittaa metsässä teltta pystyyn, nuotio valmiiksi makkaranpaistoon ja istua kipinävahtina.
Teininä Annina kolusi jamboreet ja hänen partiouransa huipentui Naantalin Sinisten lippukunnan johtajana reilu parikymmentä vuotta sitten.
Seuraava kulttuurishokki 15-vuotiaalla Anninalla oli edessä, kun perhe muutti pikkukaupunki Naantaliin. Hän oli käynyt yläastetta 150 oppilaan koulussa ja siirtyi Naantalissa Maijamäen yläasteelle, jossa oppilaita oli yli 900.
Harrastukset tukivat suuressa muutoksessa, auttoivat löytämään oman paikan ja porukan uudella paikkakunnalla.
Lukiossa Naantalissa Anninan opiskelumotivaatio oli korkea. Hän valitsi pitkän matikan, fysiikan ja kemian, mutta myös pitkän englannin ja ruotsin sekä c-kielenä saksan ja ranskan.
–Siihen aikaan lukiossa oli pakollisena 75 kurssia. Minulla oli 99. Vieläkin harmittaa, etten saanut sataa täyteen!
Prosessikemiaa ja keikkailua
Annina oli päättänyt opiskella lääkäriksi. Ajatus oli ehkä, että ammatti on arvostettu ja sitä on vaikea päästä opiskelemaan. Hän halusi näyttää, että pystyisi siihen.
Lääkäriopiskelijat eivät kuitenkaan voineet lähteä ulkomaille vaihtoon ja se oli Anninalle kynnyskysymys. Hän halusi ehdottomasti maailmalle. Niinpä lääketiede vaihtui tekniikkaan. Åbo Akademin Annina valitsi, koska halusi oppia paremmin ruotsia. –Kemia taas on kiehtonut minua aina.
Hän läpäisi kielikokeen, pääsi sisään eikä katunut jälkikäteen valintaansa. –Vaikka ensin ajattelinkin, että katson vuoden, miten viihdyn. Tykkäsin sitten sekä opinnoista että Turusta opiskelukaupunkina. Kivaa oli. En osaisi tänäänkään tehdä parempaa valintaa!
Opiskelu ruotsiksi oli haastavaa, mutta ainakin Annina oppi kielen. Siinä sivussa hän löysi huikean kaveriporukan, jonka kanssa hän opiskeli ja vietti vapaa-aikaa.
Opintojen ohessa on yleensä tehtävä työtä toimeen tullakseen, ainakin kesäisin. Anninalle avautui musiikkiharrastuksen kautta erittäin mieluinen työ keikkamuusikkona.
Teini-iässä Annina oli vaihtanut pianonsoiton laulamiseen, käynyt laulutunneilla ja ottanut osaa karaoke- sekä laulukisoihin. Vuonna 2003 hän pääsi Seinäjoen Tangomarkkinoilla finaaliin, mikä poiki menestyksekkään keikkamuusikkouran bändin laulusolistina. Keikkailu toi hyvää vastapainoa opiskelulle.
–Pohjalaisjuuristani kumpuaa ehkä myös viehätys perinteisiin lavatansseihin. Olen itsekin käynyt kaikki mahdolliset tanssikurssit. Nautin suunnattomasti humppakeikkojen heittämisestä.
Annina pääsi kesätöihin polymeerikemian laboratorioon. Sen jälkeen hänelle tarjottiin mahdollisuutta tehdä diplomityönsä Rautaruukille kattopinnoitteiden ominaisuuksista.
–Joten työskentelin Turussa pinta-analytiikkaa tekevässä Top Analytica Ltd:ssä selvittämässä, saisiko kattopinnoitteiden antimikrobisia ja mekaanisia ominaisuuksia parannettua nanopartikkeleilla.

Anninan lopputyö tietyllä tapaa määrittikin hänen uransa suunnan, mutta vaihto-oppilaaksi hän ei vieläkään ollut ehtinyt lähteä. Viimeiseksi opiskeluvuodekseen hän suuntasi Ranskaan Roueniin.
–Syksy opiskeltiin ja kevääksi piti etsiä työharjoittelupaikka. Työskentelin viisi kuukautta pinnoitusfirman labrassa optimoimassa säilykepurkkien sisäpinnoitteiden sideaineiden reaktioaikaa.
Siinä sivussa Annina oppi puhumaan sujuvasti ranskaa, sillä laboratorion kokeneet työntekijät eivät puhuneet englantia. – Hyvin pienellä sanavarastolla aloitin, Annina muistelee. –Kun lähdin Ranskaan, ajattelin vielä, etten ikinä opi puhumaan niin, että joku minua ymmärtäisi.
Kollegat jaksoivat juurta jaksaen selittää ja toistaa toistamasta päästyäänkin. Onneksi Anninalla oli motivaatio oppia, sillä edessä oli todellinen koettelemus.
Kolmen vartin loppuesitelmä yliopistossa oli pidettävä ranskaksi. Ilman papereita.
–Se oli kyllä minun Mount Everestini. Oli huikea tunne, kun huomasin, että selvisin siitä. Kotimaahan oli mukava palata. Jäljellä opinnoista oli vain muutamia rästikursseja.
Jo ennen joulua Anninalle oli tarjottu Top Analyticasta työpaikkaa kehitysinsinöörinä, tekemään täysipäiväisesti töitä Rautaruukille.
Nuori kehitysinsinööri oppi kolmen vuoden kuluessa rutkasti lisää katto- ja seinäpinnoitteista, maaleista, teräksestä ja tietenkin pintaanalytiikasta.
MBA ja ulkomaan uraa
Nuori kehitysinsinööri alkoi olla levoton. Hänestä oli alkanut tuntua, että hänen taipumuksensa ja lahjansa eivät ehkä sittenkään viitanneet niinkään tekniseen asiantuntijuu-
teen vaan projektinjohtamiseen.
Annina Tuominen ei halunnut työskennellä laboratoriossa loppuikäänsä.
Hän kaipasi hyvin teknisen koulutuksensa rinnalle lisäoppia yritys- ja henkilöstöjohtamisesta, markkinoinnista ja taloudesta.
Lisäksi hän halusi takaisin maailmalle.
Annina Tuominen teki rohkean päätöksen ja muutti takaisin Ranskaan opiskelemaan. MBA-tutkinto Rouen Business Schoolissa, (nykyisin NEOMA Business School) tarjosi kaikkea, mitä hän oli kaivannut ja erittäin kansainvälisessä joukossa. Suomalaisen lisäksi opiskelijoita oli Kiinasta, Intiasta, Etelä-Amerikasta, Lähi-Idästä ja Afrikasta.
Antoisan vuoden jälkeen Annina Tuominen pääsi töihin Pariisin lähelle tuotepäälliköksi Motul-nimiseen yritykseen, mutta jo muutaman kuukauden jälkeen Rautaruukin silloinen tuotekehitysjohtaja soitti ja kertoi, että Brysseliin etsitään teknistä päällikköä Euroopan maalipinnoitetun teräksen ja alumiinin kattojärjestöön. European Coil Coating Association ECCA ajaa alan etuja, kehitystä ja on mukana standardien ja lainsäädännön kehitystyössä Euroopan tasolla. Teknisen päällikön tehtävänä on muun muassa vetää yhteisprojekteja ja kehittää testausmenetelmiä.
–Se oli hieno työ. Hyvin kansainvälinen näköalapaikka yhden teollisuusalan toimintaan Euroopan tasolla. Ympäristölainsäädäntö ja erityisesti REACHin kautta tulevat eri kemikaalien käyttöön liittyvät rajoitteet teettivät silloin paljon työtä. Niihin mietittiin yhdessä ratkaisuja ja viilattiin yhteistä kantaa. Se oli välillä haastavaa, mutta opetti paljon.
Vaikka Annina Tuominen piti työstään, hänestä alkoi viiden vuoden jälkeen tuntua, että pitäisi päästä teolliseen ympäristöön järjestötyön sijaan. Juuri sopivassa vaiheessa
2 Tuoreen toimitusjohtajan päiviin on kuulunut uuden opettelua ja tuotantoon tutustumista. Vasemmalta oikealle: HR johtaja Sonja Lillhonga, tuotantojohtaja Jarkko Riepponen ja Paraisten tehtaan sataman ja lisäaineosaston työnjohtaja Timo Rantanen
3 Viime syksynä Annina ja Tomi Tuominen olivat isoissa rooleissa Lohjan teatterin Bonnie ja Clyde -musikaalissa.
4 Keikalla KalkkiRockissa.
5 Pyhällä on erinomaiset mahdollisuudet kaikenlaiseen ulkoiluun.
SSAB:ltä tuli tarjous. Silloin Rautaruukki ja SSAB olivat jo yhdistyneet. Tuotantojohtaja tarvitsi Hämeenlinnan tehtaalle tuotantopäällikön ja arveli, että vaikka Annina Tuomisella ei ollutkaan kokemusta tuotannosta tai organisaation johtamisesta, hänellä oli oikeanlaista asennetta.
Mikä tärkeintä, hän oli osoittanut saavansa asioita aikaan.
Edessä oli kolmas suuri kulttuurishokki. –Osoittautui, että Suomeen palaaminen oli vaikeampaa kuin täältä lähteminen. Huomasin myös, että olemisen ja puhumisen tapa Varsinais-Suomen ja Hämeen välillä on hyvin erilainen.
Annina Tuominen on kuitenkin kokenut erilaisiin ympäristöihin päätymisen ja sopeutumisen elämää rikastuttavaksi kokemukseksi.
Tehtaalla tuotantopäällikkönä toimiminen oli Annina Tuomiselle lopullinen johtamiskoulu. Toki hän oli ehtinyt toivoa pääsevänsä jonakin päivänä oman organisaationsa johtajaksi. Nyt hän pääsi testaamaan ideoitaan. Osa niistä toimi, osa ei. Onneksi hänellä oli esihenkilönään kokenut tuotantojohtaja, joka auttoi välttämään suurimmat karikot. – Minun hienot uudet ideani ja hänen kokemuksensa olivat aika hyvä yhdistelmä.
Tuotantopäällikkö vietti kaiken aikansa tuotannossa. Se auttoi ymmärtämään kenttää ja alaiset selvästi myös arvostivat läsnä olevaa, osallistavaa ja keskustelevaa johtamista, mikä ei ainakaan vielä silloin ollut perinteisessä tuotantoympäristössä valtavirtaa.
Kun amerikkalainen maalintoimittaja Sherwin-Williams etsi tehdaspäällikköä Vantaan tehtaalle, headhunter lähestyi Annina Tuomista. Nyt hänellä olikin johdettavanaan koko tehdas. Siitä kolmen vuoden kuluttua hän siirtyi yrityksessä tuotannosta myynnin


puolelle ja lopulta koko Euroopan päällystysliiketoiminnan johtoon. Siellä SSAB oli muuten yksi hänen tärkeimmistä asiakkaistaan. –Toimitimme maalit Hämeenlinnan tehtaalle.
Sherwin-Williamsin vuosina erityisesti hiilineutraalius nousi isoon rooliin. Asiakkaiden kanssa kehitettiin yhdessä mm. biopolymeereihin perustuvia pinnoitteita, jotka auttoivat pienentämään pinnoitusprosessin hiilijalanjälkeä.
Annina Tuominen on ehtinyt vaihtaa työpaikkaa kunnioitettavaan tahtiin. Hienot tilaisuudet ovat tulleet eteen, kuten hän itse sanoo.
Kun Annina Tuominen oli ollut SherwinWilliamsilla kahdeksan vuotta, headhunter soitti. Finnsementti etsi toimitusjohtajaa.
–Intuitio sai lähtemään prosessiin mukaan, Annina Tuominen kertoo.
Aika tuntui sopivalta siirtyä kansainvälisestä liiketoimintaympäristöstä kotimaan teollisuuteen.
–Tutustuin Finnsementtiin, sen merkitykseen yhteiskunnassa, yrityksessä työskenteleviin ihmisiin ja heidän uratarinoihinsa. Perehdyin rakennusalaan ja sen haasteisiin, erityisesti ympäristön suhteen. Huomasin, että merkittävät investoinnit hiilineutraaliin tuotantoon ja vihreään betoniin ovat hyvässä vauhdissa. On todella motivoivaa olla mukana koko toimialaa koskettavassa merkittävässä muutoksessa ja tekemässä sitä yhdessä kaikkien sidosryhmien kanssa.
Vaikka oppimista riittää, tuore toimitusjohtaja tuntee olevansa oikeassa paikassa. –Alku on ollut todella mielenkiintoinen!
Vauhdikasta vapaa-aikaa
Annina asuu miehensä Tomi Tuomisen kanssa Lohjalla, vuonna 1947 rakennetussa puutalossa, jota he laittavat pikkuhiljaa omannäköisekseen. Tomi Tuominen tekee työkseen MTV3:lle
rallilähetyksiä ja harrastaa myös musiikkia. Pariskunta tapasi Lohjan teatterissa vuonna 2016 My Fair Lady -musikaalissa.
Tuomisilla on yhteinen bändi. Kotona on studio ja uusi levy on tulossa. Anninalla on myös pari muuta bändiprojektia. Viime syksynä Tuomiset olivat isoissa rooleissa Lohjan teatterin Bonnie ja Clyde -musikaalissa.
Tuomisten elämä pyörii musiikin ja työn parissa. Heidät saattaa löytää myös lenkki-
polulta. Lohjalla ja mökkimaisemissa Lapissa Pyhällä on erinomaiset mahdollisuudet hiihtää, vaeltaa ja maastopyöräillä.
Perheeseen kuuluu myös Tomin Nanette-tytär sekä 17-vuotiaat Pyhä Birma -kissat Elsa ja Elmo, serkukset samalta kasvattajalta. •

Lohjan

1 Pystymme tulevaisuudessa sitomaan betoniin tuhansia tonneja hiilidioksidia vuosittain – ja samalla tuomaan markkinoille vastuullisempia tuotteita, joilla on kysyntää nyt ja tulevaisuudessa", kertoo Lakan toimitusjohtaja Juho Hiltunen.
Lakan vähähiilisiä betonituotteita valmistukseen Carbonaide-menetelmällä
Lakka Rakennustuotteet ottaa betonituotteidensa teolliseen valmistukseen käyttöön Carbonaiden kehittämän, ilmastopäästöjä vähentävän menetelmän. Carbonaiden teknologiassa hiilidioksidi kovetetaan osaksi betonia. Tällöin perinteisen sideaineen, sementin tarve vähenee.
Lakka Rakennustuotteiden Carbonaide-teknologialla valmistettujen kaupallisten betonituotteiden valmistus otetaan käyttöön maaliskuussa 2026 Joensuun tehtaalla. Uusien tuotteiden hiilijalanjälki on jopa 50 % pienempi kuin perinteisesti valmistetuilla betonikivillä. – Tarkoituksemme on, että parin seuraavan vuoden aikana puolet Joensuun tehtaan tuotannosta ajetaan hiilidioksidikäsittelyllä. Pystymme tulevaisuudessa sitomaan betoniin tuhansia tonneja hiilidioksidia vuosittain ja samalla tuomaan markkinoille vastuullisempia tuotteita, joilla on lisääntyvää kysyntää, kertoo Lakan toimitusjohtaja Juho Hiltunen
Menetelmä on ilmaston kannalta kestävämpi, sillä betoniteollisuuden ilmastopäästöt ovat lähes kokonaan seurausta sementin valmistuksesta. Hiltusen mukaan investointi osuu hyvään saumaan, koska sementin hinta on noussut ja kiinnostus ympäristöystävällisiä rakennusmateriaaleja kohtaan on kasvanut.
Mikä on CO2-karbonointimenetelmä?
Carbonaide-teknologia on menetelmä, jossa betonituotteet jälkihoidetaan hiilidioksidiatmosfäärissä. Hiilidioksidia lisätään tuoreeseen betoniin kovetusvaiheessa, jolloin se reagoi kovettuvan betonin kanssa, parantaa tuotteen ominaisuuksia ja pienentää tuotteen hiilikuormaa. Hiilidioksidi muuttuu prosessissa erilaisiksi mineraaleiksi ja varastoituu betoniin pysyvästi. Kun CO2 sitoutuu pysyvästi betoniin, sementin määrää voidaan vähentää – ja samalla päästöjä leikata merkittävästi.
Carbonaiden teknologia mahdollistaa jopa 20 % pienemmän sementin tarpeen ja samalla se parantaa betonin mekaanisia ominaisuuksia. Tuotannosta tulee kustannustehokkaampaa, nopeampaa ja ilmastoystävällisempää, vastaten vähähiilisen rakentamisen tarpeisiin teollisessa mittakaavassa. Tulevaisuudessa betoni voi olla jopa hiilinegatiivinen.
Rakennusalalla on vahvaa kysyntää päästöjä vähentäville ratkaisuille, mikä osoittaa, että ala on kääntymässä kohti vähähiilistä tulevaisuutta.
Carbonaide-menetelmällä piloteista kaupalliseen tuotantoon
Carbonaiden toimitusjohtaja Tapio Vehmas kertoo, että Lakka on tärkeä päänavaus: Lakka on ensimmäinen asiakas, joka saa käyttöönsä Carbonaiden teknologian kaupallisen version. Tämä moninkertaistaa karbonoitujen tuotteiden tuotantokapasiteetin Suomessa.
Carbonaide on testannut teknologiaansa tuotantolinjastolla Hollolassa Rakennusbetoni ja Elementti Oy:n tehtailla. Vehmaksen mukaan materiaalitestaus pysyy Hollolassa, mutta tuotantoprosessin ja laitteiston kehitys tapahtuu Joensuussa. Carbonaiden tavoitteena on teknologian vieminen myös kansainvälisille markkinoille.
Carbonaiden teknologia on ollut kaupallisessa käytössä vuodesta 2024. Carbonaide-teknologia on alun perin Teknologian tutkimuskeskus VTT:n laboratorioissa kehitetty prosessi. Vuoden 2023 alussa käynnistettiin jo
teknologian teollisen mittakaavan pilotointiin tähtäävä projekti yhteistyössä Rakennusbetoni ja Elementin kanssa. Rakennusvaihe valmistui elokuussa 2023 ja tuotantoon laitteisto siirtyi vuoden 2024 alkupuoliskolla. Rakennusbetonija Elementti Oy:n tuotantolinjalta valmistuivat keväällä 2024 ensimmäiset kaupalliset Carbonaide-menetelmällä valmistetut betonituotteet.
Lisätietoja: juho.hiltunen@lakka.fi ja tapio. vehmas@carbonaide.com •
Maritta Koivisto, päätoimittaja Betoni

2 Carbonaide-teknologiassa hiilidioksidipäästöt kivetetään betoniin kovetusvaiheessa. Kyseessä on luonnollinen ilmiö, koska hiilidioksidi pyrkii sitoutumaan takaisin sementtikiveen. Carbonaiden kehittämällä teknologialla betoniin saadaan sidottua vuorokaudessa jopa satojen vuosien edestä hiilidioksidia.
Jarno
Artika
Jarno Artika
Enemmän tai vähemmän?
”Meillä on liikaa sääntelyä!” Tätä mieltä ollaan aika yleisesti rakennusalalla. Rakentamiseen pitää hakea lupa, etäisyyksiä naapureihin ja rantaan säännellään, jopa julkisivun väri voi olla ennalta päätetty. Jossain mennään niin syvällisiin asioihin, että määritellään jopa rakennuksen rungon materiaali kaavassa.
Sääntelyllä yleensä tarkoitetaan hyvää: suojellaan ympäristöä, minimoidaan haittaa naapurustolle, vähennetään korttelin kirjavuutta. Joskus tuntuu, että sääntely menee liian pitkälle, esimerkiksi silloin kun asuntojen keskikoko tai rakennettavien autopaikkojen lukumäärä on määritelty jo etukäteen. Myös näiden jälkimmäisten määräysten syyt on helppo ymmärtää, ainakin isommissa kaupungeissa.
Rakennusalalla sääntelyä on kahden tasoista: lainsäädäntöä ja kuntien omia määräyksiä. Monesti tästä syntyy harha, kun hallitusohjelmaan kirjataan sääntelyn purkaminen, mutta eniten rakentamista haittaavaksi koettua sääntelyä onkin kuntatasolla. Eikä erityisen tarkkoja määräyksiä kukaan kaavoihin pahuuttaan ole kirjoittanut. Niille kaikille on varmasti ollut aikanaan ihan hyvät perustelut, mutta maailma niiden ympärillä on muuttunut. Esimerkiksi nk. autopaikkanormi on vanhentunut sitä mukaan kun ympäristöarvot ovat nousseet tärkeämmäksi. Silti kevyttä liikennettä ja joukkoliikennettä voisi suosia kaupunkien kaavoituksessa vielä monilla uusilla tavoilla, joita näkee esim. Kööpenhaminassa ja Amsterdamissa.
Voiko sääntelyä sitten olla liian vähän? Mitä enemmän sääntelyyn jää tulkinnan varaa, sitä enemmän viranomaisten tulkinnat asian suhteen vaihtelevat. Rakennus-
hankkeissa tärkeää on linjausten ennakointi. Jos sääntely on tiukkaa, ei tulkinnan varaa jää ja ennakointi paranee.
Tiukka sääntely johtaa kuitenkin yleensä kustannusten nousuun. Siksi liiasta sääntelystä ei pidetä. Periaatteessa esimerkiksi asuntojen keskikoko määräytyisi oikeaksi kysynnänkin mukaan. Asuntojen rakentaminen on kuitenkin vuosien prosessi ja asuntojen käyttöikä on yleensä kymmeniä, jopa yli sata vuotta. Siksi asuntojen keskikokoa ei voi jättää markkinoiden määrättäviksi.
Mistä meillä sitten puuttuu sääntelyä? Olen itse kiinnittänyt huomiota erilaisten infrarakenteiden sääntelyyn tai oikeastaan sen puutteeseen. Meillä ei ole lainsäädäntöä, joka koskisi esimerkiksi siltoja. Rakenteiden luotettavuus pysyy niissä riittävällä tasolla, koska tilaajat tietävät mitä tekevät: Väylällä on hyvät tilaajaohjeet ja monet kunnatkin vaativat niiden noudattamista.
Tapiolan onnettomuus osoitti, mihin sääntelyn puute voi johtaa: jalankulkijoi-
den käyttöön oli tehty siltamainen rakenne pelkillä rakennustelineillä. Suunnittelijalta ei vaadittu pätevyyttä, eikä prosessiin kuulunut viranomaisvalvontaa. On selvää, että rakennustelineitä ei voida mitoittaa kuin pysyviä rakenteita. Kuitenkin kun rakennustelineitä käytetään jalankulkuun, meillä pitää olla yksikäsitteiset säännöt siitä, mitä suunnittelu- ja pätevyyden toteamisjärjestelmää käytetään.
Liiasta sääntelystä on myös haittaa valvonnan näkökulmasta. Esimerkiksi silloin kun rakennustuotteiden CE-merkintävaatimus tuli voimaan vuonna 2013, se herätti rakennusvalvonnassa pelkoa valtavasta työmäärästä lisää entisten päälle. Prosessi näyttää sittemmin vakiintuneen ja työmäärän lisäys on saatu hallintaan.
Uusin sääntely eli rakentamislupien 3 kk käsittelyaikavaatimus ja hiilijalanjäljen raja-arvon seuraaminen ovat nyt luupin alla. Aika näyttää mihin ne johtavat. •

Auli Lastunen Eurokoodiasiantuntija Rakennustuoteteollisuus RTT auli.lastunen@rakennusteollisuus.fi

Päivi Kankare

Betonielementtien
uudelleenkäyttö osoittautui toimivaksi
ReCreate-minipiloteissa
Kansainvälisessä ReCreate-tutkimushankkeessa on testattu purettavista rakennuksista irrotettujen betonielementtien uudelleenkäyttöä uudisrakentamisessa. Kolmen minipilotin kokemukset osoittavat, että uudelleenkäytettyjen elementtien käyttö on sujuvaa ja tukee rakentamisen päästövähennyksiä.
Hankkeessa hyödynnettiin Tampereella 1980-luvulla rakennetun toimistorakennuksen betonielementtejä, jotka irrotettiin ehjinä ja kunnostettiin uudelleenkäyttöä varten. Elementtejä käytettiin kolmessa Skanskan rakennushankkeessa: A-Kruunun asuinkerrostalokohteessa Tampereen Härmälänrannassa, Metson Lokomotion-teknologiakeskuksessa sekä TA-Asumisoikeus Oy:n kohteessa Hiedanrannassa.
Minipilotit tarjosivat yrityksille mahdollisuuden kehittää uudelleenkäyttöosaamistaan vaiheittain. Kokemusten mukaan asennukset sujuivat vaivattomasti eikä työ eronnut merkittävästi uusien elementtien käytöstä. Hankkeen seuraavissa vaiheissa keskitytään muun muassa ympäristövaikutusten arviointiin ja suunnitteluohjeiden laatimiseen.
ReCreate-hanketta johtaa Tampereen yliopisto, ja mukana ovat muun muassa Skanska, Consolis Parma, Ramboll Finland, Umacon sekä Tampereen kaupunki. Hanke saa rahoitusta EU:lta ja jatkuu syyskuuhun 2026 saakka.
Lisää aiheesta:
Tutustu ReCreate-tutkimushankkeeseen Tampereen yliopiston verkkosivuilta: https://webpages.tuni.fi/recreate/
Lisätietoja:
• Tampereen yliopisto, professori Satu Huuhka, satu.huuhka@tuni.fi
• Ramboll Finland Oy, Competence Lead Transformation, Inari Weijo, inari.weijo@ ramboll.fi


Vähähiilinen betoni on jo täällä!
Oletko valmis?
Vähähiilinen betoni on betonia, jonka hiilidioksidipäästöt ovat perinteisiä betoneita pienemmät. Vähähiilisen betonin valmistus perustuu vähähiilisen sementin käyttöön. Suomessa vähähiiliset sementit valmistetaan pääosin korvaamalla osa sementtiklinkkeristä pienempipäästöisellä masuunikuonalla.
Vähähiiliset betonit luokitellaan BY-Vähähiilisyysluokituksella®. Lähtötasona on GWP.REF eli perinteisten betonien päästötaso. Betonin päästöt alenevat tästä päästöluokittain 15 % portain, esim. GWP.85, GWP.70 jne.
Vähähiilisen betonin työmaakäyttö: Vähähiiliset betonit täyttävät samat lujuusja säilyvyysvaatimukset kuin tavanomaiset betonit. Lisäksi on huomioitava hitaampi alkulujuuden kehitys ja pidempi jälkihoidon tarve, korostuen vähähiilisimmissä luokissa ja viileissä olosuhteissa.
Vähähiilisten betonirakenteiden suunnittelu: Betonin vähähiilisyysluokka määritetään rakennekohtaisesti sen mukaan, miten hyvin vähähiilinen betoni soveltuu kyseiseen rakenteeseen. Perinteisiä betoneita hitaamman lujuudenkehityksen takia rakentamisessa kannattaa hyödyntää pidempää, 91 d lujuudenarviointi-ikää. Vähähiilisen betonin lujuudenkehitys saattaa edellyttää valun lämmittämistä.
Vähähiiliset betonit tilaajan näkökulmasta: Voidaan käyttää samoissa käyttökohteissa kuin perinteisiä betoneita. Lisäksi:
• Hitaampi alkulujuuden kehitys ja pidempi jälkihoidon tarve, korostuen vähähiilisimmissä luokissa ja viileissä olosuhteissa
• Vähäisempi lämmönkehitys kovettumisen aikana, mikä on eduksi massiivivaluissa
• Kuivattamisen suhteen voidaan noudattaa samoja periaatteita kuin perinteisillä betoneilla
• Betonin toimittajilta on saatavissa lisätietoa Lisätietoja: vähähiilinenbetoni.fi

Suomen Betoniyhdistys palkitsi kiitettäviä opinnäytetöitä
Suomen Betoniyhdistys palkitsee vuosittain apurahalla korkeimman arvosanan saaneita maisteritasoisia opinnäytetöitä. Opinnäytetyön tulee liittyä betonin materiaali- tai valmistustekniikkaan, betonirakenteiden suunnitteluun, toteuttamiseen tai korjaamiseen.
Apurahahakemuksen tekevät kyseisten töiden ohjaajat. Apurahat maksetaan opinnäytetyön tekijälle Betoniyhdistyksen hallinnoimasta Kerttu ja Jukka Vuorisen rahastosta. Päätöksen tekee rahaston hoitokunta.
Lukuvuonna 2024–2025 palkittuja oli yhteensä ennätykselliset 11 henkilöä ja kuusi heistä pääsi paikalle Betonipäivään kukitettavaksi.
Lukuvuoden 2024–2025 palkinnon saajat ovat:
• Finerus Olli, Tampereen Yliopisto: Jatkuvan teräsbetonisen kotelopalkkisillan toiminnan analysointi koekuormitusten avulla
• Myöhänen Samuli, Tampereen Yliopisto: Vähähiilisten betonien säilyvyysluokitus: Kloridien tunkeutuminen betoneihin
• Nieminen Tuomas, Tampereen Yliopisto: Kiviset holvisillat: Luonnonkivirakenteiden erityispiirteet, rakenteellinen toiminta, analysointi ja kantavuus
• Näyrä Eetu, Tampereen Yliopisto: Hydrataatiolämmön aiheuttaman vaurioitumisriskin hallinta massiivibetonivaluissa
• Paavilainen Riku, Tampereen Yliopisto: Vähähiilisien betonien säilyvyysluokitus: Karbonatisoituminen
• Pennanen Kasper, Tampereen Yliopisto: Vanhojen rautatiesiltojen värähtely suurnopeuksilla
• Ruuhonen Joona, Tampereen Yliopisto: Sillan työnaikaisen kasuunin suunnittelu
• Muhammad Umer, Aalto-yliopisto: Hydration Kinetics and Compressive Strength of Low Carbon Concrete
• Pinja Moilanen, Oulun yliopisto: ”Impact of project lead time on construction-phase CO2 emissions of concrete-framed apartment buildings
• Roni Piispanen, Oulun yliopisto: Kevennysputkien käyttö betonisten siltojen hiilijalanjäljen pienentämisessä
• Teemu Turpeinen, Oulun yliopisto: Leijukerrospedin yhteispolton pohjatuhkan hyödyntäminen luonnon hienojen kiviainesten korvaamisessa betonin valmistuksessa.
Lisätietoja: mirva.vuori@betoniyhdistys.fi
By65 Betoninormit 2025
By 65 Betoninormit 2025 sisältää eurokoodeilla suunniteltujen kantavien betonirakenteiden säilyvyyssuunnittelua, valmistusta, laadunvalvontaa ja kelpoisuudenosoittamista koskevat ohjeet talonrakennuksessa. Normit korvaavat aikaisemman by 65 Betoninormit 2021 -julkaisun pohjautuen kuitenkin pitkälti siihen.
Normia on täydennetty ja täsmennetty etenkin standardin SFS 7022 Betoni, Standardin SFS-EN 206 käyttö Suomessa pohjalta.
Uusien vuoden 2025 normien suurin muutos vuoden 2021 normeihin verrattuna on muutokset sallittujen sementtien taulukossa, joka sallii muun muassa uusien sementtilaatujen käytön betonin valmistuksessa. Lisäksi normeissa on selitetty uuden konseptin betonin vastaavien toiminnallisten ominaisuuksien periaatteet.
Kirja on tarkoitettu betonin ja betonielementtien valmistajille, rakennesuunnittelijoille, rakennusvalvonnoille, rakennusurakoitsijoille, työmaamestareille, betonityönjohtajille ja valvojille.
Lisätietoja: Suomen Betoniyhdistys ry https://www.rakennustietokauppa.fi/sivu/by/

Betonin yhteystiedot 2026 – osoite: Eteläranta 10
PL 381 (Eteläranta 10, 10. krs) 00131 Helsinki etunimi.sukunimi@rt.fi vaihde: (09) 12 991
Betoniteollisuus ry:
Toimitusjohtaja Jussi Mattila 0400 637 224 etunimi.sukunimi@rt.fi
Jaospäällikkö Janne Kihula 040 514 65 10 etunimi.sukunimi@rt.fi
Jaospäällikkö Ari Mantila 0400 201 507 etunimi.sukunimi@rt.fi
Jaospäällikkö Antti Taivalkangas 050 432 3360 etunimi.sukunimi@rt.fi
Päätoimittaja, arkkitehti SAFA Maritta Koivisto 040 900 3577 etunimi.sukunimi@betoni.com etunimi.sukunimi@rt.fi
Viestintäassistentti Nina Loisalo 050 368 9072 etunimi.sukunimi@rt.fi
Betoniyhdistys ry: etunimi.sukunimi@betoniyhdistys.fi
Toimitusjohtaja Mirva Vuori 040 765 7672
Erityisasiantuntija Johanna Tikkanen 040 518 1641
Erityisasiantuntija Kim Johansson 050 550 6556
Koulutuskoordinaattori Anu Kurkela 0400 228414
Ilmoittajaluettelo 1 2026
Betoninäyttely ja opastus on avoinna Eteläranta 10:ssa ja 10. kerroksessa
Betoniyhdistys ry ja Betoniteollisuus ry muuttivat Rakennustuoteteollisuus RTT:n mukana 1.2.2018 Eteläranta 10:een ja 10. kerrokseen. Yhteisissä tiloissa toimii betonipintanäyttely, joka esittelee mm. erilaisia betonin väri- ja pintakäsittelytapoja. Näyttely on avoinna toimiston aukioloaikoina klo 8.15–16.00.
Esittelystä voi sopia etukäteen arkkitehti Maritta Koiviston kanssa, gsm 040–9003577 tai maritta.koivisto@betoni.com. www.betoni.com
Betoniteollisuus ry:n jäsenyritykset ja tuotteet hakemisto
Betoniharkot
Betonin pumppaus
Elementtien asennus
Erikoiselementit
Eristeharkot
Hissikuiluelementit
Hormielementit
Hulevesituotteet
Jännebetonipalkit
Kalusteet, istutusastiat yms.
Kanavaelementit ja kourut
Kattotiilet
Kevytsoraharkot
Kuitubetonielementit
Kuivalaastit ja kuivabetonit
Kylpyhuone-elementit
Maakellarit
Maatalouselementit
Meluseinät, törmäyskaiteet
Ontelolaatat, kuorilaatat
Paalut
Parvekepielet
Parvekkeet, massiivilaatat
Perustuselementit
Pilarit ja palkit
Porraskivet ja -elementit
Portaat
Putket, kaivot ja hulevesijärjestelmät
Päällystekivet ja -laatat
Rappauselementit
Ratapölkyt
Reunatuet
Sandwich-elementit
Siilot ja säiliöt
Sillat, laiturit ja tukimuurit
Sisäkuoret
TT- ja HTT-laatat
Valmisbetoni
Valuharkot
Väestönsuojat
Väliseinäharkot
Väliseinät
Alavuden Betoni Oy Ansion Sementtivalimo Oy Arkta Laatuseinä Oy Betonilaatta Oy Betoniluoma Oy Betroc Oy Joutsenon Elementti Oy Kankaanpään
Betoni ja Elementti Oy Lammin Betoni Oy Lipa-Betoni Oy Napapiirin Betoni Oy Pielisen Betoni Oy Rakennusbetonija Elementti Oy Rudus Oy Ruskon Betoni Oy SCHWENK Betoni Oy Suomen Kovabetoni Oy Suutarinen Yhtiöt/ SBS Betoni Oy Swerock Oy VaBe Oy
Betoniteollisuus ry:n jäsenyritysten tuotteet, palvelut ja toimipisteet

Alavuden Betoni Oy
Peräseinäjoentie 210, 63300 Alavus
Puh 050 453 1520 www.alavudenbetoni.fi timo.asunmaa@alavudenbetoni.fi

Ansion Sementtivalimo Oy
Lohipurontie 2 (PL 48), 21530 Paimio
Puh 02 4770 100 www.asv.fi ari-p.ansio@asv.fi
Arkta Laatuseinä Oy
Kiuaskatu 1, 18100 Heinola
Puh 0500 442 810 www.lslaatuseina.fi pekka.kuurne@lslaatuseina.fi
b
Betonilaatta Oy
Sorvarinkatu 3, 20360 Turku
Puh 02 511 8800 www.betonilaatta.fi myynti@betonilaatta.fi etunimi.sukunimi@betonilaatta.fi

Betoniluoma Oy
Horontie 176, 64700 Teuva
Puh 010 8410 140 www.betoniluoma.com info@betoniluoma.com

Betroc Oy
Valimontie 1, 99600 Sodankylä
Puh 020 7579 080 www.betroc.fi betroc@betroc.fi
cConsolis Parma (Parma Oy)
Yhteystiedot: ks. www.parma.fi
Consolis Parma on Suomen johtava betonielementtien valmistaja ja elinkaariviisaan betonirakentamisen suunnannäyttäjä. Yhtiöllä on toimintaa 12 paikkakunnalla ja se työllistää noin 450 henkilöä.
Consolis on Euroopan johtava teollisuuskonserni, joka tarjoaa kestäviä ja älykkäitä betonielementtirakenteita rakennusteollisuuden tarpeisiin. Consolis työllistää noin 7 600 työntekijää 17 maassa eri puolilla maailmaa.

jJoutsenon Elementti Oy
Puusementintie 2, 54100 Joutseno
Puh 0207 659 880 www.joutsenonelementti.fi etunimi.sukunimi@joutsenonelementti.fi myynti@joutsenonelementti.fi
Tehtaat: Joutseno Kotka Kouvola
Ilmoitathan mahdollisista tietojen muutoksista tai korjauksista osoitteeseen betoni@betoni.com
Ilmoitathan mahdollisista tietojen muutoksista tai korjauksista osoitteeseen betoni@betoni.com

Kankaanpään Betoni ja Elementti Oy Kuusikonkatu 4 (PL 96), 38700 Kankaanpää Puh 050 300 4197 www.elementti.fi juha.kuusniemi@elementti.fi
Tuote- & palveluosio webissä
www.betoni.com www.betoniteollisuus.fi/yritykset www.betoniteollisuus.fi/tuotteet
https://betoni.com/ https://betoni.com/valmistajat-tuotteet-ja-projektit-hakusivu/tuotehaku/ https://betoni.com/tietoa-alasta-2/tietoa-jarjestosta/
Tuote- & palveluosio webissä

Lakan Betoni Oy konserni
Muuntamontie 2, 80100 Joensuu
Puh 0207 481 200 www.lakka.fi myynti@lakka.fi
Lakan Betoni Oy on kotimainen vuonna 1965 perustettu perheyritys. Tuotamme kiviainespohjaisia rakennustarvikkeita ja niihin liittyviä palveluita asiakkaittemme tarpeisiin. Vuoden 2021 alussa yritys järjesteli eri liiketoimintansa omiksi, Lakan Betoni Oy:n täysin omistamiksi tytäryhtiöikseen. Yrityksen betonija kuivatuoteliiketoiminta siirtyivät Lakka Rakennustuotteet Oy:lle, ja elementti- ja valmisbetoniliiketoiminta siirtyivät Lakka Elementti ja valmisbetoni Oy:lle.
Tuotantolaitoksemme sijaitsevat ympäri Suomea neljällä paikkakunnalla: Joensuussa, Lopella, Jalasjärvellä ja Varkaudessa. Lakka-tuotteita myyvät jälleenmyyjät kautta maan.
Lakka tuoteperheeseen kuuluvat kivitalot, harkot, pihakivet, laastit, tasoitteet, elementit ja valmisbetoni.

Lammin Betoni Oy Paarmamäentie 8, 16900 Lammi Puh 020 753 0400 www.lammi.fi etunimi.sukunimi@lammi.fi
Muut toimipisteet:
Lammi-Kivitalot
Katso kaikki toimipisteet www.lammi.fi/kivitalo
Lammin Betoni on Suomen vanhin ja suurin betoniharkkojen valmistaja. Meidät tunnetaan erityisesti tinkimättömyydestämme tuotteiden laadun suhteen. Tuotteiden laadun, asiantuntevan palvelun ja yli 70 vuoden kokemuksen avulla olemme raivanneet tiemme suomalaisen kivirakentamisen suunnannäyttäjäksi.
Olemme erikoistuneet laadukkaiden betoniharkkojen, valmisanturamuottien ja muurikivien valmistamiseen. Innovatiiviset tuotteet ja tarkoin mietityt kokonaisratkaisumme on kehitetty helpottamaan rakentamista. Laadukkaiden tuotteiden lisäksi haluamme osaltamme olla varmistamassa hankkeiden onnistumisen ensiluokkaisella palvelulla ja toimitusvarmuudella sekä toimimalla alamme edelläkävijänä.
Lipa-Betoni Oy
Lipatie 1, 76850 Naarajärvi
Puh 040 300 0530
www.lipa-betoni.fi
etunimi.sukunimi@lipa-betoni.fi

Lujabetoni Oy
Harjamäentie 1, 71800 Siilinjärvi
Puh 020 7895 500 www.lujabetoni.fi
etunimi.sukunimi@luja.fi
Lujabetoni Oy Suomen suurimpia betoniteollisuusyrityksiä Suomessa. Palvelemme kestävässä betonirakentamisessa niin ammatti- kuin omakotirakentajiakin. Olemme puhtaasti kotimainen perheyritys jo kolmannessa polvessa.
Lujabetonilla on 30 elementti-, betonituote- ja valmisbetonitehdasta Suomessa ja Ruotsissa. Suurimmat tehtaamme sijaitsevat Hämeenlinnassa, Taavetissa, Siilinjärvellä, Järvenpäässä ja Kärsämäellä. Tuotevalikoimaamme kuuluvat elementit, valmisbetonit, paalut sekä lukuisa määrä infratuotteita, kuten ratapölkkyjä, pylväsjalustoja, Luja-moduleita ja muita erikoistuotteita. Viimeisimpiä tuoteuutuuksiamme ovat LujaSuperlaatta, Luja-Superkylpyhuone, vähähiiliset betoniratkaisut ja tuulivoimalaelementit.
mMH-Betoni Oy
Läsäntie 3, 41660 Toivakka Puh 040 727 1760 www.mh-betoni.fi henri.sahlman@mh-betoni.fi

Napapiirin Betoni Oy
Jämytie 2, 96910 Rovaniemi
Puh 020 7933 200 www.napapiirinbetoni.fi
Pielisen Betoni Oy
www.pielisenbetoni.fi/yhteystiedot/ Keskus 044 3400 800 myynti@pielisenbetoni.fi
Elementtimyynti: 040 3400 130
Ontelolaattamyynti: 040 3400 125
Pielisen Betoni – 50 vuotta laatua ja toimitusvarmuutta.
Tuotevalikoimaamme kuuluu mm. teräsbetoni- ja jännebetonipalkit, pilarit, ontelolaatat, seinät, HTT-ja TT-laatat sekä valmisbetoni. Tehtaamme viidellä eri paikkakunnalla, palvelevat asiakkaitamme valtakunnallisesti. Meidät tunnetaan hyvästä kotimaisesta laadusta sekä toimitusvarmuudesta. Haluamme osaltamme edistää asiakkaiden rakennusprojektien sujuvuutta, kannattavasti ja laadukkaasti. Olemme vahva yhteistyökumppani hiilineutraalin yhteiskunnan rakentamisessa.
Teemme sen, minkä lupaamme.

rRakennusbetoni- ja Elementti Oy
Kukonkankaantie 8 (PL 102), 15870 Hollola
Puh 03 877 200 www.rakennusbetoni.fi etunimi.sukunimi@rakennusbetoni.fi
Elementtitehdas:
RB Laatuseinä Oy
Kiuaskatu 1, 18100 Heinola
Rakennusbetoni- ja Elementti Oy ja RB Laatuseinä Oy valmistavat vastuullisia erikoisbetonituotteita Suomen sekä lähialueiden rakentajille. Konserni työllistää 130 työntekijän lisäksi yhteistyöyrityksissä yli 120 henkilöä lähinnä suunnittelussa, kuljetuksissa ja asennuksissa. Haluamme olla rohkea suunnannäyttäjä vastuullisissa erikoisbetonituotteissa ja niihin liittyvissä palveluissa. Toimintatapoihimme kuuluvat uudesta innostuminen, palvelu, lupauksien pitäminen sekä vastuullinen toiminta. Olemme suomalainen perheomisteinen yritys, jonka tuotteet ja palvelut tuotetaan kotimaassa.

Rudus Oy
Karvaamokuja 2a (PL 42), 00380 Helsinki
Puh 020 447 711 www.rudus.fi
etunimi.sukunimi@rudus.fi
Rudus Oy on kestävien ja laadukkaiden kivipohjaisten rakennusmateriaalien kehittäjä ja toimittaja. Rakentaja saa Rudukselta kaiken tarvitsemansa saman katon alta: betonit, betonituotteet, kiviainekset, Betoroc-murskeen ja betonin kierrätyksen. Useat tuotteet voidaan suunnitella yksilöllisesti asiakkaiden tarpeita vastaaviksi Ruduksen ammattitaitoisen henkilökunnan ja asiakkaan kanssa yhteistyössä.
Tuotevalikoimaamme kuuluu kattava valikoima talo- sekä infrarakentamisen betonituotteita ja -ratkaisuja: julkisivut, portaat, elpo-hormit, tie-, rata-, energia- ja telerakentamisen elementit. Lisäksi valikoimasta löytyy kunnallistekniset putkija kaivotuotteet mm. hule- ja jätevesien hallintaan sekä laaja valikoima maisematuotteita: pihakivet ja -laatat, betoniset reunakivet, luonnonkivet, porras- ja muurikivet sekä istutuslaatikot.
Rudus Ämmän Betoni Oy on vahvistanut Ruduksen talonrakentamisen elementtituotantoa vuodesta 2020 alkaen tuotteinaan mm. parvekepielet, parvekkeet, massiivilaatat, sisäkuoret ja väliseinät.

Ruskon Betoni Oy
Piuhatie 15, 90620 Oulu Puh 020 7933 400 www.ruskonbetoni.fi etunimi.sukunimi@ruskonbetoni.fi
Ruskon Betoni Oy on valmisbetonin valmistamiseen ja siihen liittyviin palveluihin erikoistunut kotimainen perheyritys ja konserni, joka toimii usealla paikkakunnalla ympäri Suomea. Tytäryhtiömme Ruskon Betoni Etelä Oy tarjoaa valmisbetonia ja siihen liittyviä palveluja Etelä-Suomen, Kaakkois-Suomen ja Varsinais-Suomen alueilla. Ruskon Betoni Etelän Hollolan tuotetehdas on puolestaan erikoistunut betoniputkien ja -kaivojen valmistamiseen.
Vastuullinen kumppanuutemme perustuu suoraviivaiseen ja läpinäkyvään toimintatapaan, lupausten lunastamiseen sekä korkeaan laatuun. Laatu ja toimitusvarmuus ovat koko toimintamme peruspilareita. Ymmärrämme aidosti asiakkaan tarpeen. Toimintamme on kestävää ja kehittävää nyt ja tulevaisuudessa.
Tutustu meihin lisää osoitteissa www.ruskonbetoni.fi, www.ruskonbetonietela.fi ja www.rbinfra.fi
sSuomen Kovabetoni Oy
www.kovabetoni.fi
myynti@kovabetoni.fi
Tiemestarinkatu 7, 20360 Turku Elementintie 10, 15550 Nastola

SBS Betoni Oy
Sora ja Betoni V. Suutarinen Oy
Puh 0207 940 640 www.suutarinen.fi etunimi.sukunimi@suutarinen.fi
Elementti- ja valmisbetonitehtaat: Sora ja Betoni V. Suutarinen Oy Kangaslammenraitti, 52700 Mäntyharju
SBS Betoni Oy
Tikkalantie 8, 50600 Mikkeli
Sora ja Betoni V. Suutarinen Oy
SBS Betoni Oy, toimitusjohtaja
Juho Suutarinen, juho.suutarinen@suutarinen.fi
Puh 040 740 1532
Tehtaanjohtaja:
Janne Vilve janne.vilve@suutarinen.fi, 040 531 99 35

Peab Industri Oy / Swerock Valmisbetoni
Karvaamokuja 2a, 00380 Helsinki
Puh 0440 111 008
www.swerock.fi info@swerock.fi
Liedon toimisto
Hyvättyläntie 10 B 5, 21420 Lieto
Puh 02 4845 600 www.swerock.fi
Valmisbetonitehtaita ja toimipisteitä:
Kalasataman betoniasema
Kyläsaarenkatu 8, 00580 Helsinki
Puh 0290 091 093
Kirkkonummen betoniasema
Ojangontie 20, 02480 Kirkkonummi
Naantalin betoniasema
Prosessikatu 17, 21100 Naantali
Puh 0290 091 092
Salon betoniasema
Uitonnummentie 82, 24260 Salo
Puh 0290 091 092
Tampereen betoniasema
Jalkaharpinkatu 7, 33840 Tampere
Puh 0290 091 094
Voutilan betoniasema
Tikkurilantie 161, 01740 Vantaa
Puh 0290 091 093
SCHWENK Betoni Oy
https://schwenkbetoni.fi/
Myyntipalvelu: 0102790200
Tilauspalvelu: 0102790201
Sähköpostit: etunimi.sukunimi@schwenk.com
Myynti: myynti.betoni@schwenk.com
Toimisto: info.betoni@schwenk.com
Valmisbetonitehtaiden toimipisteet: Vantaan tehdas
Jännekuja 10 01740 Vantaa
Tuusulan tehdas
Pihasauniontie 5 04300 Tuusula
Hyvinkään tehdas
Kerkkolankatu 26 05800 Hyvinkää
Tervakosken tehdas
Maunontie 10 12400 Tervakoski

YBT Oy
Valimotie 1, 95600 Ylitornio
Puh 0400 93 0400 www.ybt.fi ybt@ybt.fi
YBT Oy on betonivalmisosia valmistava perheyritys. Toteutamme korkealaatuiset ja vastuullisesti valmistetut betonivalmisosat rakentamisen kaikkiin eri tarpeisiin.
Toimipisteet:
YBT Ylitornio
Valimotie 11, 95600 Ylitornio
Puh 0290 091 093
Liedon betoniasema
Pääskyntie 5, 21420 Lieto
Puh 0290 091 092
Puh 0290 091 093 hakemisto
Lohjan betoniasema
Pysäkkitie 12, 08680 Muijala
YBT Vaala
Ouluntie 115, 91700 Vaala
Kuhmon Betoni Oy
Valimontie 11, 88900 Kuhmo
Betoniteollisuus ry:n kannatusjäsenyritysten tuotteet, palvelut ja toimipisteet
b
BAU-MET Oy
Kärsämäentie 72, 20360 Turku Puh 0207 433 700 www.bau-met.fi myynti@bau-met.com

cCemex Oy
Sotungintie 421, 00890 Helsinki
Puh. +0400 200 840 https://www.cemex.fi juha.lundgren@cemex.fi
Tuotteet: sementit; harmaa CEM I 52,5 N ja valko CEM I 52,5 R
D

Doka Finland Oy
Selintie 542, 03320 Selki Puh 09 224 2640 www.doka.com finland@doka.com
Oulun toimipiste
Vesuritie 8, 90820 Haukipudas
Puh 0400 696 425
Kirkkonummella, Koverharissa, Maarianhaminassa, Oulussa, Pietarsaaressa, Porissa ja Vaasassa. Finnsementti on Suomalaisen Työn Liiton jäsenyritys. Sementtimme kotimaisuusaste on noin 90 prosenttia. Valikoimaamme kuuluvat sementin lisäksi myös kuonajauhe, betonin seosaineet ja kivirouheet.
Kuulumme kansainväliseen CRH-konserniin, joka on yksi maailman suurimmista rakennusmateriaaliyrityksistä m
Master Builders Solutions
Finland Oy
Lyhtytie 3, 11710 Riihimäki PL 17, 11101 Riihimäki
Puh 010 830 2000 www.master-builders-solutions.fi tilaukset-riihimaki@masterbuilders.com
Pintos Oy
Raudoitteet | Tarvikkeet | Kiinnikkeet
Pysäkintie 12, 27510 Eura www.pintos.fi pintos@pintos.fi
Muut tehtaat ja toimipisteet:
Rauma
Yrittäjäntie 9, 27230 Lappi
Raisio
Tuotekatu 12 21200 Raisio s
Salon Tukituote Oy
Kaskiahonkatu 8, 24280 Salo
Puh 02 731 2415 www.tukituote.fi tukituote@tukituote.fi
Master Chemicals Oy
Kauppiaskatu 9b A6
20100 Turku
Puh. 020 730 8600 www.master-chemicals.fi
Tarjoamme laadukkaat ja kestävän kehityksen mukaiset pinnoitteet kaikkiin tarpeisiin, sekä betonin suoja-aineet että laadun parantajat.

pPeikko Finland Oy
Voimakatu 3, 15100 Lahti
Puh 020 707 511 www.peikko.fi myynti@peikko.fi
SCHWENK Suomi Oy
Fiskarsinkatu 7 A 2. krs, 20750 Turku Puh 020 7121 433 www.schwenk.fi
Fabianinkatu 5 LH 40, 00130 Helsinki
Puh 020 7121 430 jussi.thureson@schwenk.fi www.schwenk.fi
Terminaalit:
Naantali, Satamatie 14, 21100 Naantali Loviisa, Valkon satama, 07910 Valko Raahen terminaali, Lapaluoto, FI-92100 Raahe
Tuotteet: sementti
Semtu Oy
Martinkyläntie 586, 04240 Talma
Puh 09 2747 950 www.semtu.fi mailbox@semtu.fi

f Finnsementti Oy
Skräbbölentie 18, 21600 Parainen
Puh 0201 206 200 www.finnsementti.fi info@finnsementti.fi etunimi.sukunimi@finnsementti.fi Lappeenrannan tehdas
Poikkitie 105, 53500 Lappeenranta
Puh 0201 206 200
Finnsementti on suomalainen sementinvalmistaja. Meillä finnsementtiläisillä on 110-vuoden kokemus sementin valmistuksesta. Olemme jatkuvasti kehittyvä, laajan tuotevalikoiman omaava sementin valmistaja, teollisuudenalan kotimainen työllistäjä ja vaikuttaja. Merkittävä osa Suomen sementintarjonnasta tuotetaan Paraisilla ja Lappeenrannassa sijaitsevilla sementtitehtaillamme. Lisäksi meillä on kuonajauhetehdas ja terminaali Raahessa. Terminaalejamme sijaitsee myös
Peikko on vuonna 1965 perustettu perheyritys, jonka pääkonttori sijaitsee Lahdessa. Peikko valmistaa monentyyppisiä betoniliitoksia ja liittopalkkeja elementti- ja paikallavalurakentamiseen. Innovatiiviset ratkaisut tekevät rakentamisesta nopeampaa, tehokkaampaa ja turvallisempaa.
Peikon tavoitteena on tarjota asiakkailleen alan johtavia ratkaisuja, ja siksi Peikko investoi alallaan laajimmin tutkimukseen ja tuotekehitykseen. Peikko työllistää maailmanlaajuisesti yli 2 000 henkilöä yli 30 maassa.

PERI Suomi Ltd Oy
Muotit | Telineet | Suunnittelu
Hakakalliontie 5, 05460 Hyvinkää
Puh 010 8370 700 info@peri.fi www.peri.fi
Vanerimyynti
Juha Riikonen
050 411 1978 juha.riikonen@peri.fi

7 Steel Service Finland Oy
Valssaamontie 171, 10410 Åminnefors
Puh 019 22 131 https://7-steelservice.fi/
Muut toimipisteet:
Espoo
Juvan teollisuuskatu 19 ( PL 24), 02920 Espoo
Puh 019 22 131
Kaarina
Autoilijankatu 30, 20780 Kaarina
Puh. 0400 811 833
Pälkäne
Kankaanmaantie 25, 36600 Pälkäne
Puh 019 221 31
Suomen Betonilattiayhdistys ry
Kuhatie, 02170 Espoo www.bly.fi toiminnanjohtaja@bly.fi
Puh. +358(0)400 493 445

CEM II/A-LL 52,5 R
Erittäin nopeasti kovettuva
portlandseossementti
