B.ARCH-INTERNSHIP PORTFOLIO-2022-23

Page 1

PROFESSIONAL TRAINING EXPERIENCE

An architectural practice which is based in Mysore and Mangalore, 2PKM Architects has a team of young, motivated architects and engineers who strive to deliver projects of different typologies and scale. As an intern, the firm assisted me in improving various software skills as well as artistic and creative skills with daily and weekly activities. The office also provides exposure to the system of running a firm, communication with the vendors, meeting with clients, and the technical aspects of a drawing that has to be sent to the site with never-ending deadlines and a few sleepless nights, the firm helped me take one step closer to confidence.

CONTENT INLAY PENTHOUSE BANGALORE 01 ISBR LAW COLLEGE BANGALORE 02 VOLUMEN RESIDENCE BANGALORE 03 LINEA APARTMENT BANGALORE 04 ARUN RESIDENCE BANGALORE 05 SITE VISIT VOLUMEN RESIDENCE BANGALORE 06 CASE STUDY JEWEL MANDIR MYSORE 07 MATERIAL STUDY HDHMR PANEL 08

INLAY PENTHOUSE BANGALORE

The design boasts sleek, utilitarian, curved features and pastel tones, creating a modern and sophisticated aesthetic. The curved features add a soft, organic touch to the otherwise clean lines of the home, while the pastel tones adds a touch of playfulness to the space, making it feel welcoming and approachable. Overall, these features gives this home a unique look.

WORKED ON: 3D CORRECTIONS AND RENDERINGS

01

DESIGN APPROACH

FOR REFERENCE

MATERIAL PALATTE

FOR REFERENCE

LOWER FLOOR

FOR REFERENCE

UPPER FLOOR

FOR REFERENCE

ISBR LAW COLLEGE BANGALORE

Located in Bangalore, ISBR is a 30,000 square foot institutional complex. For both long span classrooms and accelerating construction, steel is the primary building material employed. The usage of lighting along the arrangement of the false ceiling profile is an intresting component of the project.

WORKED ON: DRAINAGE LAYOUT AND DOOR DRAWINGS

02
FOR REFERENCE

VOLUMEN RESIDENCE BANGALORE

Volumen is a 20000 sq ft residential project located in Bangalore. The project seeks to achieve the ideal of togetherness with added privacy. The building is a perfect example of simplicity and elegance.

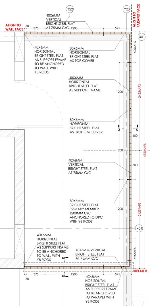
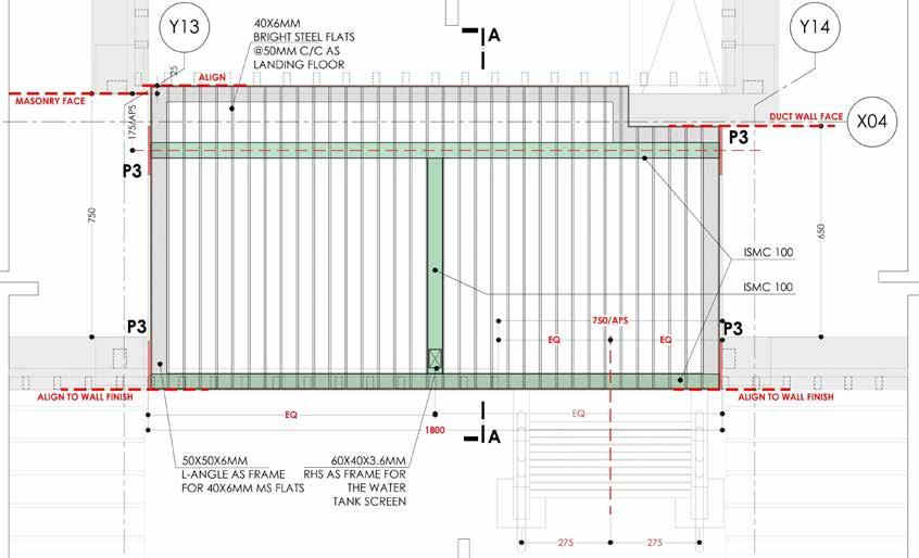
WORKED ON: FLOORING DRAWINGS, WINDOW DRAWINGS, STONE JAMB DETAILS, WALL PANELING LAYOUT, BORE WELL PIT DETAILS, TOILET DETAILS, COMPOUND WALL DETAILS,FABRICATION DRAWING, WORKING 3D, RENDERINGS AND BOQ.

03
SL NO.TYPE OPENING NAMEWIDTHHEIGHT INTERMEDIATE JAMB HEIGHT RUNNING LENGTH STONE JAMB WIDTH QUANTITY OF WINDOW QUANTITY QUANTITY MM MM MM SQ.MM SQ.MTR WINDOWS BFW1 900 1200 4200 230 3 2898000 2.898 BF-W2 600 600 2400 230 4 2208000 2.208 WINDOWS GFW1 1750 2700 8900 230 1 2047000 2.047 GF-W2 3350 2700 12100 230 1 2783000 2.783 GF-W3 2300 600 5800 400 1 2320000 2.32 GF-W4 1150 2700 7700 400 1 3080000 3.08 GF-W5 1050 2700 7500 230 2 3450000 3.45 GF-W6 3550 2775 12650 230 2 5819000 5.819 GF-W8 1925 2700 9250 230 1 2127500 2.1275 GF-W9 2950 2700 11300 230 1 2599000 2.599 GF-W10 1000 2700 7400 230 1 1702000 1.702 GF-W11 4650 2700 14700 230 1 3381000 3.381 GF-W12 1825 2700 9050 230 1 2081500 2.0815 GF-W13 3350 2700 12100 230 1 2783000 2.783 GF-W14 1150 2700 7700 400 1 3080000 3.08 GF-W15 2500 600 6200 400 1 2480000 2.48 GF--SD01 3500 2475 11950 250 2 5975000 5.975 VENTILATORS GF-V1 450 900 2700 230 2 1242000 1.242 GF-V2 850 900 3500 230 1 805000 0.805 WINDOWS FF-W1 6910 2700 19220 230 1 4420600 4.4206 FF-W3 4750 2700 14900 230 1 3427000 3.427 FF-W5 3550 2700 12500 230 1 2875000 2.875 FF-W8 1950 2700 9300 230 2 4278000 4.278 FF-W9 2100 2700 9600 230 1 2208000 2.208 FF-W10 1700 2700 8800 230 1 2024000 2.024 FF-SD01 3600 2775 12750 250 1 3187500 3.1875 VENTILATORS FF-V5 900 900 3600 230 1 828000 0.828 WINDOWS FF-W2 800 1950 5500 400 2 4400000 4.4 FF-W4 850 2775 7250 400 1 2900000 2.9 FF-W5 3550 2700 12500 400 1 5000000 5 FF-W7 950 2700 7300 400 1 2920000 2.92 FF-W11 850 2700 7100 400 1 2840000 2.84 FF-W12 2450 2700 10300 400 2 8240000 8.24 VENTILATORS FF-V1 950 900 3700 400 1 1480000 1.48 FF-V2 600 900 3000 400 1 1200000 1.2 FF-V4 1075 900 3950 400 1 1580000 1.58 FF-V5 900 900 3600 400 2 2880000 2.88 FF-V7 1150 900 4100 400 1 1640000 1.64 TYPE 3 FF-W7 950 2700 7300 500 1 3650000 3.65 FF-V3 1950 900 900 7500 400 1 3000000 3 FF-V6 1500 900 900 6600 400 1 2640000 2.64 WINDOWS SF-W2 1925 2775 9400 230 1 2162000 2.162 SF-W7 3550 2775 12650 230 1 2909500 2.9095 SF-W11 1050 2375 6850 400 1 2740000 2.74 SF-W12 1150 2375 7050 400 1 2820000 2.82 SF-SD01 4100 2700 13600 250 1 3400000 3.4 SF-SD02 3500 2400 11800 250 2 5900000 5.9 SF-SF01 1775 2700 8950 250 1 2237500 2.2375 VENTILATORS SF-V2 850 900 3500 230 1 805000 0.805 WINDOWS SF-W3 1650 1500 6300 400 1 2520000 2.52 SF-W4 3300 1200 9000 400 1 3600000 3.6 SF-W5 950 2700 7300 400 1 2920000 2.92 SF-W7 3550 2775 12650 400 1 5060000 5.06 SF-W8 1000 2400 6800 400 1 2720000 2.72 SF-W9 1000 2700 7400 400 1 2960000 2.96 SF-W13 3500 1200 9400 400 1 3760000 3.76 VENTILATORS SF-V1 450 1200 3300 400 2 2640000 2.64 SF-V2 850 900 3500 400 1 1400000 1.4 TYPE 3 SF-W8 1000 2400 6800 500 1 3400000 3.4 WINDOWS TF-W2 1375 2700 8150 230 1 1874500 1.8745 TF-W3 15745 3125 37740 250 1 9435000 9.435 TF-W6a 850 2700 7100 230 1 1633000 1.633 TF-W9 13485 3350 33670 250 1 8417500 8.4175 TF-W6b 850 2700 7100 500 1 3550000 3.55 WINDOWS TF-W1a 1000 2400 6800 400 1 2720000 2.72 TF-W4 850 1950 5600 400 4 8960000 8.96 TF-W5 2450 2700 10300 400 1 4120000 4.12 TF-W7 3550 2775 12650 400 1 5060000 5.06 TF-W8 2400 2700 10200 400 1 4080000 4.08 VENTILATORS TF-V1 1250 900 4300 400 1 1720000 1.72 TFF-V2 900 900 3600 400 1 1440000 1.44 TF-V3 1150 900 4100 400 1 1640000 1.64 TF-V4 600 900 3000 400 1 1200000 1.2 TF-V5 1500 900 4800 400 1 1920000 1.92 TF-V6 1825 1200 6050 400 1 2420000 2.42 TYPE 3 TF-W1b 1000 2400 6800 500 1 3400000 3.4 WINDOWS TRF-W1 950 2700 7300 400 1 2920000 2.92 TRF-W2 1150 2700 7700 400 1 3080000 3.08 TRF-W3 1150 2400 7100 250 2 TOTAL= 3.55 VENTILATORS TRF-V1 1000 900 3800 400 1 1520000 1.52 TOTAL= 249.0931 ST SF-W10 15833 2325 36316 1000 1 36316000 36.316 ST SF-W01 4500 2325 13650 200 1 2730000 2.73 RUNNING LENGTH17470 0 34940 670 1 23409800 23.4098 TOTAL= 62.4558 G.TOTAL= 311.5489 CLADDING 0 19.4 TYPE-1 DILIP NAHAR RESIDENCE, BANGALORE THIRD FLOOR TYPE-2 TERRACE FLOOR TYPE-2 SF FIRST FLOOR TYPE-1 TYPE-2 SECOND FLOOR TYPE-1 TYPE-2 WINDOWS GRANITE JAMB QUANTITY CALCULATION BASEMET FLOOR TYPE-1 GROUND FLOOR TYPE-1 TYPE-1
SL NO. OPENING NAME WIDTH HEIGHT LENGTH QUANTITY AREA AREA ALL THE DIMENSIONS ARE IN MM MM MM NO MM SQ.MM SQ.MTR WINDOWS GFW1 1750 2700 2 50 1 445000 0.445 GF-W2 3350 2700 2 50 1 605000 0.605 GF-W3 2300 600 2 50 1 290000 0.29 GF-W4 1150 2700 2 50 1 385000 0.385 GF-W5 1050 2700 2 50 1 375000 0.375 GF-W6 3550 2775 2 50 1 632500 0.6325 GF-W7 650 900 2 50 1 155000 0.155 GF-W8 1925 2700 2 50 1 462500 0.4625 GF--SD01 3500 2475 2 50 1 597500 0.5975 GF-W9 2950 2700 2 50 1 565000 0.565 VENTILATORS GF-V1 450 900 2 50 1 135000 0.135 GF-V2 850 900 2 50 1 175000 0.175 TOTAL= 4.8225 WINDOWS GF-W10 1000 2700 2 50 1 370000 0.37 GF-W11 4650 2700 2 50 1 735000 0.735 GF-W12 1825 2700 2 50 1 452500 0.4525 GF-W13 3350 2700 2 50 1 605000 0.605 GF-W14 1150 2700 2 50 1 385000 0.385 GF-W15 2500 600 2 50 1 310000 0.31 GF-W5 1050 2700 2 50 1 375000 0.375 GF-W6 3550 2775 2 50 1 632500 0.6325 GF-W7 650 900 2 50 1 155000 0.155 GF--SD01 3500 2475 2 50 1 597500 0.5975 VENTILATORS GF-V1 450 900 2 50 1 135000 0.135 GF-V2 850 900 2 50 1 175000 0.175 TOTAL= 4.9275 WINDOWS FF-W1 6910 2700 2 50 1 961000 0.961 FF-W2 800 1950 2 50 2 550000 0.55 FF-W3 4750 2700 2 50 1 745000 0.745 FF-W4 850 2775 2 50 1 362500 0.3625 FF-W5 3550 900 2 50 1 445000 0.445 FF-W6 650 2700 2 50 1 335000 0.335 FF-W7 950 2700 2 50 1 365000 0.365 FF-SD01 3600 2775 2 50 1 637500 0.6375 VENTILATORS FF-V1 950 900 2 50 1 185000 0.185 FF-V2 600 900 2 50 1 150000 0.15 FF-V3 1950 900 2 50 1 285000 0.285 FF-V4 1075 900 2 50 1 197500 0.1975 TOTAL= 5.2185 WINDOWS FF-W8 1950 2700 2 50 2 930000 0.93 FF-W9 2100 2700 2 50 1 480000 0.48 FF-W10 1700 2700 2 50 1 440000 0.44 FF-W11 850 2700 2 50 1 355000 0.355 FF-W12 2450 2700 2 50 2 1030000 1.03 FF-W5 3550 900 2 50 1 445000 0.445 FF-W6 650 2700 2 50 1 335000 0.335 FF-W7 950 2700 2 50 1 365000 0.365 FF-SD01 3600 2775 2 50 1 637500 0.6375 VENTILATORS FF-V5 900 900 2 50 2 360000 0.36 FF-V6 1500 900 2 50 1 240000 0.24 FF-V7 1150 900 2 50 1 205000 0.205 TOTAL= 5.8225 HOUSE-1 10.041 HOUSE-2 10.75 TOTAL 20.791 WINDOWS SF-W1 4500 2325 2 50 1 682500 0.6825 SF-W2 1925 2775 2 50 1 470000 0.47 SF-W3 1650 1500 2 50 1 315000 0.315 SF-W4 3300 1200 2 50 1 450000 0.45 SF-W5 950 2700 2 50 1 365000 0.365 SF-W6 1050 2700 2 50 1 375000 0.375 SF-W7 3550 2775 2 50 1 632500 0.6325 SF-W8 1000 2400 2 50 1 340000 0.34 SF-SD01 4100 2700 2 50 1 680000 0.68 SF-SD02 3500 2400 2 50 1 590000 0.59 SF-SD03 1775 2700 2 50 1 447500 0.4475 VENTILATORS SF-V1 450 1200 2 50 1 165000 0.165 SF-V2 850 900 2 50 1 175000 0.175 TOTAL= 5.6875 WINDOWS SF-W9 1000 2700 2 50 1 370000 0.37 SF-W10 15,833 2325 2 50 1 1815800 1.8158 SF-W11 1050 2375 2 50 1 342500 0.3425 SF-W12 1150 2375 2 50 1 352500 0.3525 SF-W13 3500 1200 2 50 1 470000 0.47 SF-W7 3550 2775 2 50 1 632500 0.6325 SF-W8 1000 2400 2 50 1 340000 0.34 SF-SD02 3500 2400 2 50 1 590000 0.59 VENTILATORS SF-V1 450 1200 2 50 1 165000 0.165 SF-V2 850 900 2 50 1 175000 0.175 TOTAL= 5.2533 WINDOWS TF-W1 1000 2400 2 50 2 680000 0.68 TF-W2 1375 2700 2 50 1 407500 0.4075 TF-W3 4630 X 9560 X 1555 3125 2 50 1 312500 0.3125 TF-W4 850 1950 2 50 2 560000 0.56 TF-W5 2450 2700 2 50 1 515000 0.515 TF-W6 850 2700 2 50 1 355000 0.355 TF-W7 3550 2775 2 50 1 632500 0.6325 VENTILATORS TF-V1 1250 900 2 50 1 215000 0.215 TF-V2 900 900 2 50 1 180000 0.18 TF-V3 1150 900 2 50 1 205000 0.205 TOTAL= 4.0625 WINDOWS TF-W8 2400 2700 2 50 1 510000 0.51 TF-W9 5030X8455 3350 2 50 1 335000 0.335 TF-W1 1000 2400 2 50 2 680000 0.68 TF-W4 850 1950 2 50 2 560000 0.56 TF-W6 850 2700 2 50 1 355000 0.355 VENTILATORS TF-V4 600 900 2 50 1 150000 0.15 TF-V5 1500 900 2 50 1 240000 0.24 TF-V6 1825 1200 2 50 1 302500 0.3025 TOTAL= 3.1325 HOUSE-3 9.75 HOUSE-4 8.3858 TOTAL 18.1358 TRF-W1 950 MM 2700 MM A3 1 TRF-W2 1150 MM 2700 MM A3 1 TRF-V1 1000 MM 900 MM B1 1 TRF-D3 HOUSE-TWO HOUSE-ONE DILIP NAHAR RESIDENCE, BANGALORE WINDOWS MARBLE JAMB QUANTITY CALCULATION TRC.FL HOUSE-TWO HOUSE-ONE SECOND FLOOR HOUSE-THREE HOUSE-FOUR THIRD FLOOR HOUSE-THREE HOUSE-FOUR GROUND FLOOR FIRST FLOOR
FOR REFERENCE
WORKING 3D FOR DECKING SHEET SLAB AND UTILITY GRILL FABRICATION
THE VOLUMEN RESIDENCE, BANGALORE 21.12.2022 FABRICATION WORKS QUANTITY CALCULATION NOTE : THIS SCHEDULE IS FOR REFERENCE ONLY. REFER TO GFC STRUCTURAL DRAWINGS FOR FABRICATION SIZES SL.NO. FABRICATION WORK DESCRIPTION OF ELEMENT UNIT WEIGHT (KG/M or KG/SQM) UNIT LENGTH (M/SQM) NO. OF MEMBERS TOTAL WEIGHT (KG) 1WATER TANK SCREEN AT OHT LEVEL 1. PRIMARY VERTICAL MEMBER RHS60 X 40 X 3.6MM 5.07 1.9 43 414.219 2.SECONDARY VERTICAL MEMBER RHS20 X 40 X 1.6MM 1.39 1.8 620 1551.24 3.HORIZONTAL MEMBER RHS25 X 50 X 2.6MM 2.76 27.9 6 462.024 4.BRIGHT STEEL FLAT FLAT-50X6MM 47.1 3.0305 2 285.4731 2OHT LEVEL BRIDGE 1.PRIMARY MEMBER X-DIRECTION ISMC-100 9.2 1.76 2 32.384 2.PRIMARY MEMBER Y-DIRECTION ISMC-100 9.2 0.64 1 5.888 3.L ANGLE FRAME WORK L-ANGLE-50X50X6MM 4.47 5.19 1 23.1993 4.FLATS MEMBERS Y-DIRECTION BRIGHT STEEL FLATS-40X6MM 47.1 0.03716 34 59.508024 3TERRACE FLOOR BRIDGE 1. PRIMARY MEMBER X-DIRECTION ISMB-100 11.5 1.78 3 61.41 2. PRIMARY MEMBER X-DIRECTION ISMC-100 9.2 1.78 4 65.504 3. PRIMARY MEMBER Y-DIRECTION ISMB-100 11.5 5.442 1 62.583 4. PRIMARY MEMBER Y-DIRECTION ISMC-100 9.2 5.442 2 100.1328 5.SECONDARY MEMBER XDIRECTION SHS-32X32X 3.2MM 2.76 1.636 8 36.12288 6.SECONDARY MEMBER YDIRECTION SHS-32X32X 3.2MM 2.76 5.362 5 73.9956 7.LADDER BASE SUPPORT XDIRECTION ISMC-100 9.2 1.78 2 32.752 8.L-ANGLE AT EDGE CONDITION LANGLE-75X75X6 6.85 1.78 2 24.386 9.G.I SHEET 2MM THICK G.I SHEET 2.16 4TERRACE FLOOR BRIDGERAILING A 1. HORIZONTAL MEMBER SUPPORT TIES RHS50 X25 X 2.6MM 2.76 2.08 2 11.4816 2.VERTICAL MEMBERS BRGHT STEEL FLAT40 X 6MM 47.1 0.0548 29 74.85132 3.HORIZONTAL MEMBERS BRGHT STEEL FLAT80 X 6MM 47.1 0.1664 1 7.83744 TERRACE FLOOR BRIDGERAILING SCREEN B 1.VERTICAL MEMBER RHS20 X 40 X 1.6MM 1.39 3.43 16 76.2832 2.VERTICAL MEMBER END SUPORTS RHS60 X 40X 3.6MM 5.07 3.15 2 31.941 3.HORIZONTAL MEMBER RHS25 X 50 X 2.6MM 2.76 1.66 2 9.1632 5LADDER AT BRIDGE 1.STRINGER RHS-96X48X3.2MM 6.78 3.34 2 45.2904 2.HAND RAIL 25 DIA PIPE 0.87 4.305 2 7.4907 3.RISERS 25 DIA PIPE 0.87 0.5 10 4.35 6RAILING AT TERRACE EXTENSION 1.BRIGHT STEEL FLAT-01 HORIZONTAL FLAT 40X6MM 47.1 0.36 2 33.912 VERTICAL FLAT 40X6MM 47.1 0.036 70 118.692 2.BRIGHT STEEL FLAT-02 HORIZONTAL FLAT 80X6MM 47.1 0.36 2 33.912 VERTICAL FLAT 80X6MM 47.1 0.072 10 33.912 8OHT LEVEL RAILING 1.HORIZONTAL MEMBERS BRIGHT STEEL FLATS-40X6MM 47.1 0.4048 2 38.13216 2.VERTICAL MEMBERS BRIGHT STEEL FLATS-40X6MM 47.1 0.024 11 12.4344 9LADDER-01 1.STRINGER RHS-96X48X3.2MM 6.78 3.26 2 44.2056 2.HAND RAIL 25 DIA PIPE 0.87 3.89 2 6.7686 3.RISERS 25 DIA PIPE 0.87 0.5 10 4.35 10LADDER-02 1.STRINGER RHS96X48X3.2MM 6.78 4.41 2 59.7996 2.HAND RAIL 25 DIA PIPE 0.87 4.43 2 7.7082 3.RISERS 25 DIA PIPE 0.87 0.5 11 4.785 4.LANDING CHECKERED PLATE-3MM THICK 23.55 0.175 1 4.12125 5.LANDING SUPPORT L-ANGLE-20X20X4MM 1.15 0.29 2 0.667 11ENTRANCE STEPS AND DECKING SHEET SLAB 1.PRIMARY MEMBER-1 X-DIRECTION ISMB-200 24.2 4.16 1 100.672 2.PRIMARY MEMBER-2 X-DIRECTION ISMB-150 15 24.94 1 374.1 3.SECONDARY MEMBER AT Y-DIRECTION RHS-96X48X3.2MM 6.78 18.627 4 505.16424 4.SHORTER MEMBERS AT JUNCTIONS RHS-96X48X3.2MM 6.78 0.3 2 4.068 5.STEPS FRAME WORK-1 Y-DIRECTION SHS-40X40X3MM 3.36 1.56 4 20.9664 6.STEPS FRAME WORK-1 X-DIRECTION SHS-40X40X3MM 3.36 2.38 14 111.9552 7.STEPS FRAME WORK-2 Y-DIRECTION SHS-40X40X3MM 3.36 0.508 4 6.82752 8.STEPS FRAME WORK-2 X-DIRECTION SHS-40X40X3MM 3.36 1.78 5 29.904 9.L-ANGLE AS EDGE CONDITIONS LANGLE-75X75X3MM 6.85 8.39 1 57.4715 10.CHECKERED PLATE-1 CHECKERED PLATE-3MM THICK 23.55 7.0744 1 166.60212 11.CHECKERED PLATE-2 CHECKERED PLATE-3MM THICK 23.55 2.106 1 49.5963 12THIRD FLOOR FABRICATED LINTEL 1.CSECTION ISMC-100 9.2 15.4 1 141.68 2.CHECKERED PLATE CHECKERED PLATE-3MM THICK 23.55 3.85 1 90.6675 3.STIFFENER PLATE STIFFENER PLATE-8MM THICK 62.8 0.018 11 12.4344 13FABRICATED LINTEL AT DINNING 1.VERTICAL MEMBER RHS-96X48X3.2MM 6.78 0.726 4 19.68912 2.HORIZONTAL MEMBER SHS-50X50X 3.2MM 4.56 3.45 4 62.928 3.CHECKERED PLATE CHECKERED PLATE-3MM THICK 23.55 3.55 1 83.6025 13TERRACE PERGOLA CIRCULAR COLUMN BASE 1.PLUS SHAPE COLUMN L-ANGLE-50X50X6MM 4.47 0.9 32 128.736 2.BASE PLATE M.S PLATE-250X250X12MM 5.89 0.0625 8 2.945 3.ROUND BARS Y12-BARS 0.89 0.075 32 2.136 SUB TOTAL= 5935.056174 BASEPLATES 1 BASE PLATE-P1 1.TERRACE FLOOR BRIDGE M.S PLATE-175X175X10MM 78.5 0.03062 10 24.0367 2 BASE PLATE-P2 1.TERRACE FLOOR BRIDGE M.S PLATE-200X200X10MM 78.5 0.04 2 6.28 2.LADDER AT BRIDGE M.S PLATE-200X200X10MM 78.5 0.04 2 6.28 3.ENTRANCE STEPS AND DECKING SHEET SLAB M.S PLATE-200X200X10MM 78.5 0.04 34 106.76 4.FABRICATED LINTEL AT DINING M.S PLATE-200X200X10MM 78.5 0.04 4 12.56 5.THIRD FLOOR FABRICATED LINTEL M.S PLATE-200X200X10MM 78.5 0.04 12 37.68 3 BASE PLATE-P3 1.OHT LEVEL BRIDGE M.S PLATE-150X150X08MM 62.8 0.0225 4 5.652 2.TERRACE FLOOR BRIDGERAILING A M.S PLATE-150X150X08MM 62.8 0.0225 4 5.652 4 BASE PLATE-P4 1.WATER TANK SCREEN AT OHT LEVEL M. S PLATE125 X125 X 6MM 47.1 0.015 42 29.673 5 BASE PLATE 1.LADDER-01 M.S PLATE-200X200X08MM 62.8 0.04 4 10.048 2.LADDER-02 M.S PLATE-200X200X08MM 62.8 0.04 4 10.048 6 BASE PLATE-P1 1.ENTRANCE STEPS AND DECKING SHEET SLAB M.S PLATE-200X250X12MM 94.2 0.05 4 18.84 7 BASE PLATE-P1 1.TERRACE FLOOR M.S PLATE-300X250X12MM 94.2 0.075 22 155.43 8 BASE PLATE-P2 1.TERRACE FLOOR M.S PLATE-200X250X12MM 94.2 0.05 7 32.97 9 BASE PLATE-BP1 1.TERRACE FLOOR PERGOLA BASE M.S PLATE-300X300X12MM 94.2 0.09 8 67.824 SUB TOTAL= 529.7337 BOLTS 1 10MM DIA ANCHOR BOLTS 1. WATER TANK SCREEN 84 2 16MM DIA ANCHOR BOLTS 1. OHT LEVEL BRIDGE 8 2.TERRACE FLOOR BRIDGE 24 3.TERRACE FLOOR BRIDGERAILING A 8 4.FABRICATED LINTEL AT DINING 8 5.TERRACE FLOOR 116 6.TERRACE FLOOR PERGOLA BASE 32 3 12MM DIA ANCHOR BOLTS 1.LADDER-01 8 2.LADDER-02 8 3.ENTRANCE STEPS AND DECKING SHEET SLAB 136 4.THIRD FLOOR FABRICATED LINTEL 24 456 TOTAL= 6994.523574 5% ADDITIONAL 349.7261787 G.TOTAL IN KG = 7344.249753 TOTAL TONNAGE (ROUNDED OFF) 7.344 TONNES
15.12.2022 INTERIOR WALL PANELING QUANTITY CALCULATION DILIP NAHAR RESIDENCE, BANGALORE

LINEA APARTMENT BANGALORE

A residential apartment building project with a simple design approach would focus on creating a minimalist and modern aesthetic. This would involve using clean, geometric lines and a neutral color palette. The interior spaces would be designed to maximize natural light and create a sense of openness and airiness. The use of materials, such as glass and aluminium panel, would be emphasized to create a connection with the surrounding environment. Simplicity would be key elements of the design, with an emphasis on creating comfortable and practical living spaces.

WORKED ON: ILLUSTRATIONS OF MASSING, FACADE OPTIONS AND CONTEXT

04
FOR REFERENCE
1 2 3
CUTTING PLANE CUTTING PLANES

ARUN RESIDENCE BANGALORE

The intention of the design was to create a habitate with the no compromise on space. Within limited spread of land. In this endeavour explored the voids and volumes to accomodate as to make it intresting. The minimalistic shell of the residence hides a surprising diversity of spaces inside.

05
WORKED ON: CONDUIT LAYOUT.
FOR REFERENCE

SITE VISIT VOLUMEN RESIDENCE BANGLORE

Volumen is a 20000 sq ft residential project located in Bangalore. The project seeks to achieve the ideal of togetherness with added privacy. The building is a perfect example of simplicity and elegance.

06

Project Name : DRB

Project Location : BANGALORE

Date : 26 10 2022

PERSONS PRESENT:

1 Mr Dil p Nahar (cl ent)

2 Ar Sabir Baputty (Arch tect - 2PKM)

3. Ar Nithya Surabh B A (Architect - 2PKM)

4. Mr. Ranjeet (window vendor)

5 K rankumar K Bandi (Intern - 2PKM)

6 Mr Jagadish (Marble layer)

SITE PROGRESS:

SITE PHOTOGRAPHS

TILL: 26 / 10 / 2022

DESCRIPTION

CLINTES QUERRIES AND INPUTS:

Basement f oor:

1 The cl ent has requested to el minate the door for the ut l ty area next to the l ft lobby

Ground floor:

Cl ent has requested for seating at house-02 ba cony

First floor:

Cl ent has requested for updated nter or renders for house 2 kid’s bed rooms and iv ng room

Second floor

Cl ent has conf rmed fixed skyl ght nstead of open-ab e skyl ght at second floor Water out to be addressed

Terrace floor:

1 Glass door at home theatre to be addressed for acoust cs

2 Mode of Transportat on of VRF un ts to OHT level was nquired Same to be addressed

STONE JAMB AND WINDOW DISCUSSIONS WITH THE CORTIZO VENDOR MR RANJEET:

1 Note: Fo owing are the c ear depth requ red for the cort zo w ndow systems:

- COR v sion - 44mm

- COR v sion p us - 80mm -

2 COR v s on p us w indow systems w ere not feas b e for our current f ooring depth. Same to be addressed

2. The cl ent requested for parapet nstead of ful he ght w al s at l ft core of basement Gr ls w ere requested on top of it

3. 4mm s ope for the stone amb w as agreed by Mr Ran eet

4 10mm drop w as agreed for COR

SITE VISIT REPORT Page 1 of 5 2PKM ARCHITECTS - DOCUMENT
SITE VISIT REPORT Page 2 of 5 2PKM ARCHITECTS - DOCUMENT

vis on w indow system, t has to be dec ded f the level difference has to be cont nued on the other 3 s des.

5 t w as noted that since the w ndow SF W10 at second f oor has a fabricated s l and ntel, the f x ng of the w ndow systems w ou d be d fferent.

OTHER OBSERAVTIONS:

1 t w as noted that the p anter box edge w a l w as ow er than the fabricated s l of w ndow SF W10 at house 4

2 t w as noted that the si l of w ndow SF W11 and W12 w ere f nished at 450mm because of the DPC band

OBSERVATIONS IN PLUMBING

1 t w as not ced that beam core cutt ng w as done for the beams of to et B03 and DO2 for WC out pipes

Later w as nquired from Kumar, that the re nforcements w ere not cut

3 Clos ng of Ducts needs to be addressed at balconies

2 t w as observed that the w ash bas n out ets w ere not provided at site yet

Later w as nquired from Kumar that the out ets wou d be prov ded on top of the w aterproofing ayer

3 t w as noted that plumb ng ine in the ground f oor k tchen w as taken on the top of w a .

4 Automat on condu ts w ere observed at un t 1 l ft core w here adder pos t on w as conf rmed at terrace f oor.

SITE VISIT REPORT Page 3 of 5 2PKM ARCHITECTS - DOCUMENT
SITE VISIT REPORT Page 4 of 5 2PKM ARCHITECTS - DOCUMENT
3” 2

5 SCB blockwork on top of the retaining wal was observed to be not done on site yet

SUMMARY:

1 A l the points mentioned above to be discussed and rectified

2 In case of any changes or discrepancies as per site in the given deta ls, the same to be brought into the notice of design team

SITE VISIT REPORT Page 5 of 5 2PKM ARCHITECTS - DOCUMENT

CASE STUDY JEWEL

MANDIR MYSORE

The essence and intent of the design reflects in its materiality and aesthetics. The design is transparent. Most of the jewellery exhibits are intended to be gleaming, hence the room is flooded with lights. Here rather, they have instrumentalised materials and lighting to bring about subtleness to the ambience not overthrowing the lights, but giving the required attention to the displayed products.

07

LOCATION

The façade proposed for Jewel Mandir is a combination of glass and metal plates to achieve simple and elegant appearance. Light plays a key role in the design with an attempt to highlight the jewellery by keeping the background subtle. The contrast between the glass and the metal plates in the façade makes the structure attractive, where the glass gives glimpse of the interiors and metal plates gives feeling of solidarity. A similar language is kept up between the exterior and interior of Jewel Mandir by following the same architectural grid.

Jewel Mandir is situated in one of the prime streets of Mysuru; Devraj Urs Road . Devraj Urs Road

GROUND FLOOR PLAN

1 - ENTRY

2 - PREMIUM DISPLAY 1

3 - CASH COUNTER

4 - OUTDOOR DISPAY

5 - BUYING COUNTER 1

6 - DISPLAY 1

7 - PREMIUM DISPLAY 2

8 - LAUNGE

9 - BUYING COUNTER 2

10 - DISPLAY 2

11 - PREMIUM DISPLAY 3

CARPET AREA- 76.61 SQM

PLINTH AREA- 87.02 SQM

FIRST FLOOR PLAN

1 - PREMIUM DISPLAY 3

2 - BUYING COUNTER 3

3 - DISPLAY 3

4 - BUYING COUNTER 4

5 - DISPLAY 4

6 - STRONG ROOM

7 - PREMIUM DISPLAY 4

8 - CUTOUT SEEN BELOW

CARPET AREA- 64.72 SQM

PLINTH AREA- 76.46 SQM

NEXION VITRIFIED TILES FOR WALL CLADDING NEXION VITRIFIED TILES FOR FOR FLOORING M.S.PLATES FOR DISPLY UNITS AND FACADE DESIGN
MATERIAL PALETTE

SECOND FLOOR PLAN

1 - SERVICE AND ACCOUNTS

2 - STORAGE

3 - PANTRY

4 - STAFF STORAGE

5 - WORK TABLE

6 - ADMIN ROOM

7 - ADMIN TOILET

8 - STAFF TOILET

CARPET AREA- 56.2 SQM

PLINTH AREA- 87.02 SQM

GLASS FOR DISPLAY UNITS BLACK MARBLE FOR COUNTER DISPLAY UNITS MATERIAL PALETTE
FIN DISPLAY UNIT DETAILS

MATERIAL STUDY

HDHMR PANELS

08

THE BOARDS ARE BROADLY CLASSIFIED AS PLYBOARD, BLOCK BOARD, PARTICAL BOARD AND MDF BOARD. HDHMR BOARD IS A TYPE OF MDF BOARD.

HOW IS THIS MADE ? – AN HDHMR BOARD IS MADE USING A HOMOGENOUS MANUFACTURING PROCESS THAT COMBINES FIBRE CHIPS AND FOREST WOOD WASTE. THE FIBRE CHIPS ARE PRESSED TOGEHER TO FORM A SINGLE LAYER, AFTER WHICH SMALL AMOUNTS OF WOOD ARE REMOVED TO CREATE A MORE STURDY BOARD WITH HIGHER DENSITY.

THE FIRST MAIN ATTRACTIVE THING ABOUT HDHMR BOARD WE WANT TO FOCUS IS, WATER RESISTANCE. AS YOU CAN SEE IN THE NAME THE TERM, HIGH DENSITY IS ACHIEVED THROUGH THE COMBINATION OF THE HARD WOOD PARTICLE BOARD ALONG WITH THE SPECIAL GLUE PRESSING TECHNIQUE. THESE HARDWOOD PARTICLES WHEN PRESSED THROUGH THE GLUE, THEY FORM A UNIQUE WATER RESISTANCE LAYER THROUGH THE BOARD. DUE TO THIS FEATURE, THESE BOARDS WILL TAKE OVER PLYWOOD IN KITCHEN FURNITURE SOON AND CAN BE USED AS LAMINATED FLOORING.

DUE TO PRESSING TECHNIQUE SMALL UNUSABLE PARTICLE GET REMOVED FROM THESE BOARDS, WHICH MAKES THEM TERMITE FREE TOO. IN PLYWOOD MAKING PROCESS SOME CONTENT OF WOOD GET STUCK, WHICH PROVIDE EASY ACCESS TO TERMITES IN TERMS OF FOOD; BUT IF YOU ARE USING HDHMR BOARD THAN THERE IS NO NEED TO WORRY ABOUT TERMITES. DUE TO PRESSING TECHNIQUE OF HDHMR BOARD, SEVERAL SMALL FIBERS OF WOOD COMBINES TILL THE TIME IT REQUIRED DENSITY IS NOT ACHIEVED.

PROPERTIES

1. HIGH – DENSITY (850 KG/M3)

2. TOUGHER THAN PLYWOOD

3. NOMINAL COST

4. HIGHLY WATER RESISTANCE

5. BORER RESISTANCE

6. MULTI DIMENSIONAL BONDING TECHNOLOGY

7. HIGHER SCREW HOLDING STRENGTH IN CORE

8. ZERO BUBBLE FINISH

9. TRUTH CALIBRATED PANEL

10. ENVIRONMENT FRIENDLY

11. NO SPLINTERS/CHIPING

12. IDEAL ROUTABLE SUBSTRATE

LIFE SPAN

DRY CONDITION – LIFE UPTO 15YEARS WITH LAMINATION – LIFE UPTO 17-20YEAR

DISADVANTAGE

AFTER LONG-TERM USE, SOME HDHMR BOARDS MIGHT BEND AND LOSE SHAPE.

MARKET AVAILABLITY AND RATES

• 3MM THIK 8’X4’ - 20RS PER SQ.FT

• 5.5MM THIK 8’X4’ - 35RS PER SQ.FT

• 8MM THIK 8’X4’ - 50RS PER SQ.FT

• 12MM THIK 8’X4’ - 75RS PER SQ.FT

• 16MM THIK 8’X4’ - 100RS PER SQ.FT

• 16.75MM THIK 8’X4’ - 105RS PER SQ.FT

• 18MM THIK 8’X4’ - 115RS PER SQ.FT

THE KEY APPLICATION AREAS OF HDHMR

•KITCHEN SHUTTERS •FURNITURE WHERE RISK OF MOISTURE EXIST •DOORSHUTTERS •PACKING INDUSTRY •SHOE HEEL• PARTITIONS •OUTDOOR FIXTURES LIKE ELECTION CUTOUTS OR SIMILAR APPLICATIONS •WALL PANELING.

FOR REFERENCE

PLYWOOD

1.PLYWOOD IS MADE WITH WOOD VENEERS WHICH ARE LAID IN SUCH A MANNER THAT GRAINS OF ADJACENT LAYERS ARE IN PERPENDICULAR DIRECTION TO EACH OTHER.

2. PLYWOOD USES VENEERS PEALED FROM THE TRUNK OF MATURE HARD WOOD TREES ONLY. HENCE 50% OF THE TREE REMAINS UNUSED OR WASTED.

3. SINCE MADE FROM VENEERS, DISADVANTAGES OF WOOD LIKE TERMITE/BORER ATTACK AND UNCONTROLLED EXPANSION/CONTRACTION REMAINS THERE.

4. TRUE THICKNESS IS NOT AVAILABLE AS CORE & FACE THICKNESS VARY WITH THE PEELING & THE CAN BE CONTROLLED ONLY TO A CERTAIN EXTENT.

5. OVER THE PASSAGE OF TIME, PLYWOOD LAYERS TENDS TO PEEL OFF FROM THE EDGES

6.PLYWOOD & BLOCK BOARD TEND TO HAVE DENSITY VARIATION DUE THE VARIABLE GRAIN DENSITY, HENCE HAS VARIED PHYSICAL & MECHANICAL PROPERTIES. HAS CORE GAPS.

7.PLYWOOD HAS A SURFACE THAT NEEDS TO BE FINISHED/PREPARED LIKE SANDING AND PUTTY FILLING BEFORE PAINTING/ POLISHING OR OTHER FINISHING PROCESSES .

8.DUE TO UNCONTROLLED THICKNESS VARIATION ACROSS THE BOARD AND ROUGH SURFACE, PRELAMINATION OF RESIN IMPREGNATED PAPER IS NOT POSSIBLE

9.PLYWOOD CANNOT BE CARVED OR ROUTED OR PROFILED

10.DENSITY LIES IN NORMAL MEDIUM DENSITY I.E AROUND 750 KG/M3

HDHMR

1.HDHMR IS MADE WITH WOOD FIBRE/WOOD CHIPS AND SYNTHETIC THERMOSETTING RESIN IN A HOMOGENEOUSLY SPREAD MAT & PRESSED IN TEMPERATURE AND PRESSURE CONTROLLED PRESS.

2. HDHMR IS MADE FROM WOOD FIBRES/CHIPS THAT IS PRODUCED FROM PLANTATION WOOD, AGRICULTURAL WASTE OR FROM THE FOREST WOOD WASTE & USES 95% OF THE TREE. HENCE SAVES THE ENVIRONMENT.

3. MADE FROM FIBRES OF LIGNOCELLULOSIC MATERIALS, DURING PROCESS OF MAKING FIBRES THE WOOD CHIPS ARE STEAM COOKED RESULTING IN REMOVAL OF ALL FOOD CONTENT THEREBY MAKING IT TERMITE/BORER RESISTANT, AS THESE INSECTS ATTACK THE WOOD IN SEARCH OF FOOD ONLY.

4. TRUE THICKNESS IS AVAILABLE AS PRESSING PARAMETERS ARE PERFECT. PRECISE UNIFORMS THICKNESS CAN BE MANUFACTURED.

5. HDHMR HAS A MULTI-DIMENSIONAL BOND BETWEEN FIBRE WHICH IS STRONGER WITH HIGHER BONDING SURFACE BETWEEN FIBRES.

6.HDHMR HOMOGENEOUSLY CONSTRUCTED WITH UNIFORM SPREAD OF FIBRE/CHIPS, HENCE HAS UNIFORM PHYSICAL & MECHANICAL PROPERTIES.

7.IN HDHMR/MDF THERE’S PAINT/POLISH READY SURFACE. PASTING OF VENEER/HPL IS EASIER RESULTING SMOOTH FINISH WITHOUT ANY UNDULATION UNLIKE PLYWOOD OR BLOCK BOARD.

8.DUE TO UNIFORM THICKNESS AND SMOOTH SURFACE, PRE-LAMINATION ON HDHMR WITH RESIN IMPREGNATED PAPER GIVES A PERFECT FINISH

9.HDHMR DUE TO ITS FIBROUS HOMOGENEOUS CONSTRUCTION CAN BE PROFILED, CARVED, MOULDED, ROUTED

10DENSITY MORE THEN 850 KG/M 3 RESULTING IN BETTER COMPACTNESS AND STRENGTH

PLYWOOD VS HDHMR

Turn static files into dynamic content formats.

Create a flipbook
Issuu converts static files into: digital portfolios, online yearbooks, online catalogs, digital photo albums and more. Sign up and create your flipbook.