







36 Unit Housing
2401 EL CAJON BLVD, SAN DIEGO, CA 92104
THIRD-year design studio
Spring 2024, professor Phillip Bosshart
LOCATED IN NORTHPARK, SAN DIEGO THIS PROJECT FEAUTES A 36-UNIT HOUSING PROJECT THAT EMPHASIZE NATURAL VENTILATION AND SUNLIGHT, DESIGNED TO ENHANCE THE LIVING QUALITY OF THE RESIDENTS. cOMPOSING OF STUDIO AND STUDIO-LOFT UNIT PLAN, THE BUILDING PROVIDE THE RESIDENTS WITH A WIDE RANGE OF LIVING CONDITIONS.






First FLOOR: 1/8” = 1’0”
second Floor: 1/8” = 1’0”
third Floor: 1/8” = 1’0”
Fourth Floor: 1/8”= 1’0”
fifth Floor: 1/8”= 1’0”


Case study facade
Crematorium Hofheide

Location: Holsbeek, Belgium
The use of the panel attachment on this facade inspired me to create a similar method on the building that I created. The use of the facade on this for shading had me discovering transparency differences with solar influence & advantages.
Arte vela house
Third-year design studio Winter 2024, professor PHILLIP BOSSHART
During this projected we focused and maximixing the square footage given to 3 seperate residence by also giving them unique excperiences. This lead to the creating of Arte Vela House focusing both light and scenery giving eveyone outdoor space to view from to its surroundings.


a

section b 1/8’ = 1’0”

c

section d

First Floor 1/8’ = 1’0”

Second Floor
1/8’ = 1’0”



PHYSICAL MODEL
Case study 1
HERZONG & DE MEURON 56
Third-year design studio
FALL 2020, Professor PHILLIP BOSSHART
This case study helped me develop my revit skills by looking into the detail of a wall section on a big scaled building.




SDAAMFA - Encanto , CA
Group project w/ Quang Vu Ngyuen
Forth-year design studio
FALL-Spring 2023-24’, professor Daniela Deutch
The San Diego African American Museum of Fine Arts, located in the vibrant Encanto neighborhood, is a visionary project that aims to celebrate and preserve the rich cultural heritage of the African American community while introducing new amenities and spaces for the residents of Encanto. The museum’s mission goes beyond simply showcasing art and artifacts; it seeks to create a dynamic hub that fosters a sense of community, promotes cultural exchange, and serves as a catalyst for growth and empowerment.
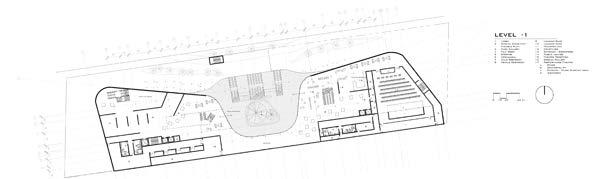
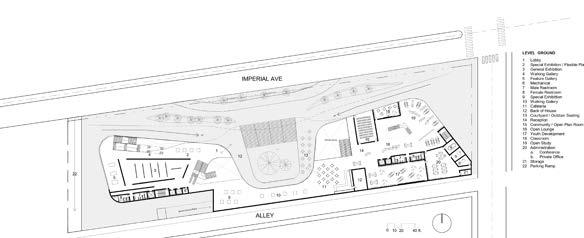
S D A A M F A
ENCANTO - CALIFORNIA
VICTOR NGUYEN & KIMBERLY BUENO PACHECO
The San Diego African American Museum of Fine Arts, located in the vibrant Encanto neighborhood, is a visionary project that aims to celebrate and preserve the rich cultural heritage of the African American community while introducing new ame-






cultural
museum’s mission goes beyond simply showcasing art and artifacts; it of community, promotes cultural exchange, and serves as a catalyst for
the district. SDAAMFA is a long-standing Black arts orCouncil District Four office, the San Diego Black Arts + CulSan Diego Commission on Arts + Culture, corporations’ sure the district, funding and the recommended programonly feature exhibition spaces and other community amespaces and courtyards on every levels, completely open
museum aspires to become the new epicenter for African American arts in collection of fine arts, showcasing the works of renowned African AmerBeyond the traditional gallery spaces, the museum will incorporate a encourage community engagement and participation. These will include perproductions, as well as dedicated areas for workshops, lectures, and edfeature outdoor plazas and gardens, providing a serene environment for artistic installations.


Encanto Neighborhoods residents envision their community as a scenic, vibrant and healthy community recognized as a jewel in San Diego. The Encanto Neighborhoods will be known for their panoramic views, unique arts and culture, night life and entertainment, employment, education, and housing opportunities.
The community will boast great parks and high-quality recreational facilities including multi-use trails along Chollas Creek, area canyons and other open spaces. The community will offer opportunities for high educational attainment and an overall unmatched quality of life and environment for children to learn, play and grow, nurturing the next generation of great community leaders.
The community will enjoy new mixed-use transit-oriented development and a diversity of housing types clustered close to the intermodal transit stations. Historic single family neighborhoods in the northern and eastern parts of the community enjoy a semi-rural “country living in the city” atmosphere.


The community will enjoy new mixed-use transit-oriented development and a diversity of housing types clustered close to the intermodal transit stations. Historic single family neighborhoods in the northern and eastern parts of the community enjoy a semi-rural “country living in the city” atmosphere.

Cultural Appreciation

AFRICAN CULTURES TAKE GREAT PRIDE IN ART, ESPECIALLY IN TEXTILE, WITH BOLD GEOMETRIC DESIGNS AND VIBRANT COLORS. SDAAMFA FEATURES VERTICAL FACADE THAT TAKE INSPIRATION FROM TRADITIONAL AFRICAN PATTERN, REMINISCENT OF PATTERNS ASSOCIATED WITH THE KENTE CLOTH OF THE ASHANTI AND EWE PEOPLE OF GHANA.
development and a diversity of housing types clustered to the intermodal transit stations. Historic single neighborhoods in the northern and parts of the community enjoy a semi-rural “country living in the city” atmosphere.
unique arts and culture, night life and entertainment, employment, education, and housing opportunities.
development and a diversity of housing types clustered close to the intermodal transit stations. Historic single family neighborhoods in the northern and eastern parts of the community enjoy a semi-rural “country living in the city” atmosphere.
employment, education, and housing opportunities.
The community will enjoy new mixed-use transit-oriented development and a diversity of housing types clustered close to the intermodal transit stations. Historic single family neighborhoods in the northern and
ed development and a diversity of housing types clustered close to the intermodal transit stations. Historic single family neighborhoods in the northern and eastern parts of the community enjoy a semi-rural “country living in the city” atmosphere.
tional attainment and an overall unmatched quality of life and environment for children to learn, play and grow, nurturing the next generation of great community leaders.
concept development
transit-oriented clustered single
enjoy new mixed-use transit-oriented diversity of housing types clustered intermodal transit stations. Historic single in the northern and community enjoy a semi-rural city” atmosphere.
The community will enjoy new mixed-use transit-oriented development and a diversity of housing types clustered close to the intermodal transit stations. Historic single family neighborhoods in the northern and eastern parts of the community enjoy a semi-rural “country living in the city” atmosphere.
ed development and a tered close to the intermodal


Cultural Appreciation
cultural acknowledgement
ic single family neighborhoods
ed development and a diversity of housing types clustered close to the intermodal transit stations. Historic single family neighborhoods in the northern and eastern parts of the community enjoy a semi-rural “country living in the city” atmosphere.
the community enjoy a semi-rural the city” atmosphere. life and environment for children to grow, nurturing the next generation leaders.
eastern parts of the “country living in the
Establish 2 main vantage points that as the main gathering zones. The vantage point on the ground level funnels circulation on imperial avenue, the upper platform funnels circufrom imperial avenue
UTILIZING NATURAL ELEMENTS
Cultural Appreciation
The community will enjoy new mixed-use ed development and a diversity tered close to the intermodal transit toric single family neighborhoods eastern parts of the community ral constraints and opportunities
AFRICAN CULTURES TAKE GREAT
The community will enjoy new mixed-use transit-oriented development and a diversity of housing types clustered close to the intermodal transit stations. Historic single family neighborhoods in the northern and eastern parts of the community enjoy a semi-rural “country living in the city” atmosphere.

AFRICAN CULTURES TAKE GREAT PRIDE IN ART, ESPECIALLY IN TEXTILE, WITH BOLD GEOMETRIC DESIGNS AND VIBRANT COLORS. SDAAMFA FEATURES VERTICAL FACADE THAT TAKE INSPIRATION FROM TRADITIONAL AFRICAN PATTERN, REMINISCENT OF PATTERNS ASSOCIATED WITH THE KENTE CLOTH OF THE ASHANTI AND EWE PEOPLE OF GHANA.
the formal concept of the sdaamfa is inspired by the form of the traditional African hat, kufi, featuring organic shape, highlighting the cultural significance that sdaamfa will features within not encanto district but also for san diego county.
the central courtyard extend from top level to the bottom leve, allowing natural sunlight and ventilation to penetrate even to the darkest point
Green Zones
cultural acknowledgement the formal concept of form of the traditional organic shape, highlighting cance that sdaamfa will district but also for san
Green

various ramps, open plazas, courtyards, and walkways encourage outdoor activities for visitors, even when the museum is closed. the open space will be public-use, serving as a community’s central hub various activities and events.
BOLD GEOMETRIC DESIGNS AND VERTICAL FACADE THAT TAKE TERN, REMINISCENT OF PATTERNS THE ASHANTI AND EWE PEOPLE
various ramps, and walkways ities for visitors, um is closed. lic-use, serving hub various initial concept



















































































































