Kiara Frost Portfolio

Page 1


Kiara Frost

Roseville Rennovation & Extension

Interior & Joinery Design

Roseville Sydney, NSW Location

As part of my SketchUp and Layout Interior Design course, I completed the Roseville Renovation and Extension project, which focused on transforming an existing California Bungalow. The scope involved redesigning the original layout and adding an extension to improve the home's overall functionality for the family. Particular attention was given to spatial planning, materials selection, joinery design, and finishes. This project enabled me to refine my skills in SketchUp and Layout, while deepening my understanding of residential interior design principles, workflow, and presentation techniques.

portfolio kiara frost ELEVATIONS

FRONT BACK
portfolio kiara frost MASTER BATHROOM

Novopalast Precinct design development

Wickham Newcastle, NSW

The Newcastle Novopalast Precinct aims to transform Honeysuckle into a vibrant gateway for the city and harbor It will be a hub for entertainment, recreation, culture, and social activity, incorporating spaces for artists, a theatre, exhibition areas, a multipurpose hall, and an outdoor auditorium. The heritage-listed Wickham School of Arts will be preserved and integrated into the design. The project focuses on innovative structural solutions and user experience, fostering community engagement, cultural growth, and economic development, while supporting Newcastle’s artistic expression.

construction & elevation drawings

Urban Synergies

The Urban Synergies Project located at the old BHP Steelworks, is a direct response to Australia’s ever growing housing crisis, with the project s primary focus on expanding social housing to create equitable spaces and stable living for all Drawing inspiration from the concept of synergy - the cooperation of elements to produce a combined effect greater than the sum of their individual parts- The project imagines a community where people live and work together, promoting inclusivity and control over living conditions. By rethinking home design and shifting the focus away from private ownership, Urban Synergies encourages shared spaces that enhance equality and sustainability.

Mayfield North Newcastle, NSW Location:

masterplan

99 Selwyn St, Mayfield North

Urban Synergies masterplan reveals a sustainable city that integrates natural ecosystems, communal amenities, and residential spaces. The site features 22 north-facing buildings that maximise natural light for energy efficiency and comfort A network of pathways and elevated bridges connects the residential buildings and repurposed structures, encouraging community interaction. To the west, a pedestrian bypass over Industrial Drive links Mayfield East to a central pond surrounded by native greenery, promoting car-free movement and sustainable design. The overall layout prioritises connectivity, blending built and natural environments for a vibrant, cohesive community.

CLUSTER FLOOR PLAN

APARTMENT

ADAPTIVE REUSE OF BHP ROLLING SHED INTO A RECREATIONAL AND GREENHOUSE FACILITY

GROUND FLOOR PLAN

House Renovation & Addition

complying development set

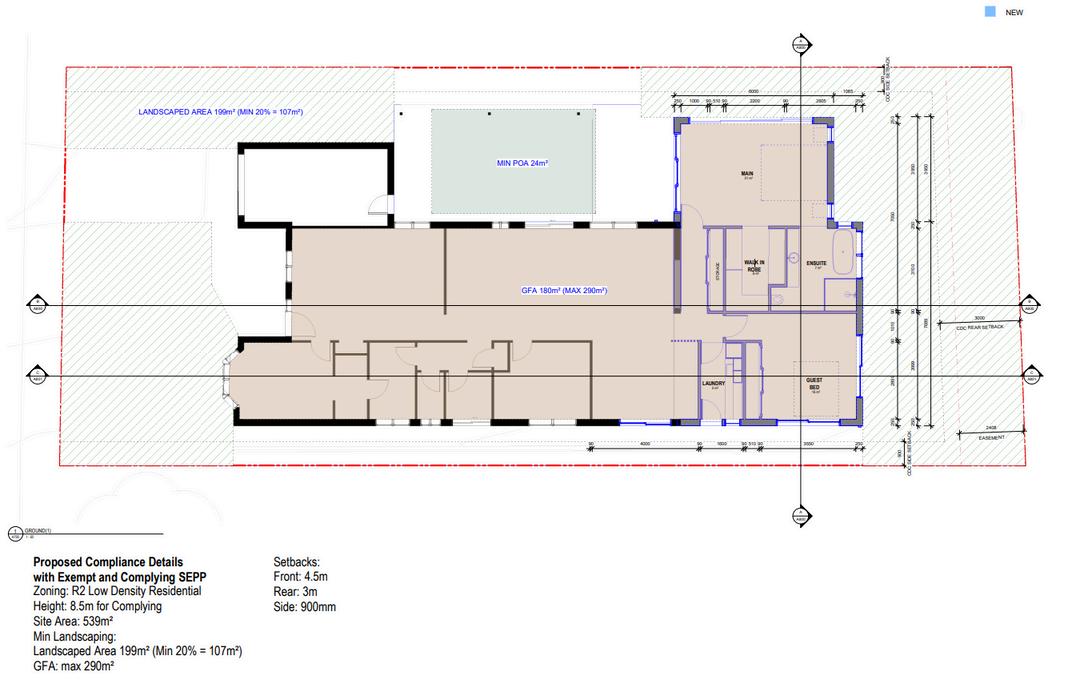
During my work placement, I had the opportunity to contribute to a residential extension and renovation project that involved adding a new master suite, laundry, and guest bedroom. Working closely with the Director and clients, I developed a complying development documentation set in Revit, ensuring precision and alignment with the project vision. This experience enhanced my technical proficiency in Revit and strengthened my ability to collaborate within a professional design team.

Erina, Central Coast Location:

ProposedCompianceDetails withExemptandComplyng

SEPPSetbacks Front:45m Rear 3m

Side 900mm

Zoning R2LowDensty ResidentialHeight 85mfor Complyng

SiteArea 539m²

MinLandscaping Landscaped Area199m² Min20%=107m² GFA max290m²

GROUND FLOOR PLAN

SOUTH ELEVATION

SECTION C

Turn static files into dynamic content formats.

Create a flipbook
Issuu converts static files into: digital portfolios, online yearbooks, online catalogs, digital photo albums and more. Sign up and create your flipbook.