Architecture Portfolio by Khansa Saskara

Page 1


PORTFOLIO

byKhansaAthaSaskara

Before you delve into these pages.

I've selected these works from my college class projects, internship program, and my final project. These projects are deeply inspired by my surroundings, my understanding of architecture, and my quest to find my own place and style in this field.

It has been a pleasure curating these works, and I appreciate the time and interest you take in reviewing them.

+6281287799902

khansa.saskara@gmail.com @seskuru

https://www.linkedin.com/in/khansaskara/

KHANSA ATHA SASKARA

Hello,mynameisKhansa,andIamafreshgraduate of BINUS University with a Bachelor’s Degree in Architecture.Ihaveakeeninterestinsimplicityand nature in architecture and find great comfort in designs that embody these principles. I would describe myself as a responsible and resilient person, always open to learning new things, and capableofworkingeffectivelyunderpressure.

EDUCATION

SMAN 6 Jakarta

Bina Nusantara University

WORK EXPERIENCE

Architectural Intern at Studio Archonicplus

2017 - 2020

2020 - 2024

Architectural Intern at PT Gujo Batavia 2023

PROJECT EXPERIENCES

Cafe Renovation

Feelin Coffee, Kebagusan, South Jakarta

2023

LANGUAGE

Bahasa Indonesia (Native) English (Fluent)

SOFT SKILL

Creative Teamwork

Resilient

Responsible

Strategic Planning

Adventurous

Problem Solving

SOFTWARE SKILLS

SketchUp

AutoCAD

House Renovation

Contribute in designing outdoor area and drafting architectural working drawings. 2023

West Tebet, South Jakarta

Pasar Minggu, South Jakarta

Contribute to designing house facades, drafting architectural working drawings, and interior design.

Mosque Renovation

Cijeruk, West Java

Cianjur, West Java

Contribute in drafting architectural working drawings.

Interior Design

House in Yogyakarta, Yogyakarta

Pilates Studio in Rawa Barat, South Jakarta

Contribute in interior design.

COMPETITION EXPERIENCE

Screen 7.0 Design Competition

Archicad

Enscape

Photoshop

Microsoft Office

Canva

2023 2023

2023

Tebet House Aksara Library
KOIMEI Interior
Kuro House
Carapacea Theatre

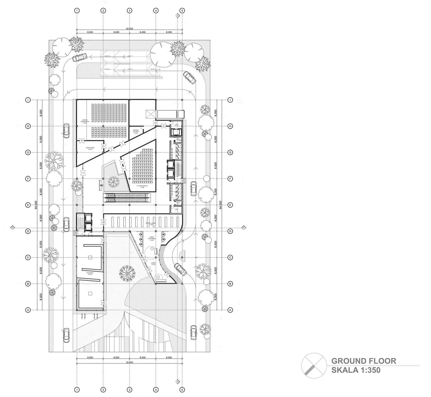
PROJECT DATA

ProjectType Location SiteArea :Library :PondokIndah,SouthJakarta :4673m²

AksaraisalibraryinSouthJakartawhichaimstoaccommodate the community's need for library and co-working space. With an activity-based working approach, libraries are created as a solution to the new "work from cafe" trend which gives people freedominchoosingtheirwork/readingenvironment.

MRT LebakBulus

The first and second floors are designated as public creative support spaces, such as a multipurpose room, audiovisual room,gallery.Onthesecondfloor there is a special reading area for childrenandthedisabled.

The third floor is dedicated to activities which include activitybased working, such as meeting cubicles and silent pods. On this floor, visitors can read or do assignments according to their preferences; private or semiopen.

The fourth floor and mezzanine floor are generally intended as collection rooms and reading, along with discussion rooms. Thesetwofloorsareopenspaces toemphasizeopenfunctions.

Aksara Library provide spaces that support creativity, such as audiovisual, meeting rooms, and gallery which can encourage the continuity of the work and learning process of visitors.

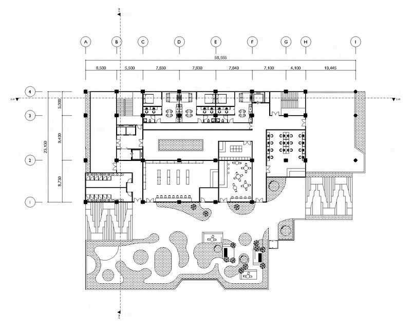
02 TEBET HOUSE

HOUSE RENOVATION PROJECT (DURING INTENRSHIP PROGRAM / 2023)

PROJECT DATA

ProjectType

Location

SiteArea

Height

:TwoStoreyHouse

:WestTebet,SouthJakarta

:94.25m²

:TwoStorey

Tebet House is a house renovation project with American Classic style designed for a family of 6 and a maid. This project was done during the internship program where I participated in designing the house facade, drafting architectural drawings, such as plans,sections,elevations,anddetails,aswellasdesigningtheinteriorofthehouse.

MATERIAL BOARD

Cat Mowilex Putih Prima 1.

Putih

Keramik Lantai Habitat Ciro Blanco 60X60 Polos Glossy 5.

Cat Mowilex
Elok 2. Dinding Gipsum 3. Kusen Aluminium HItam 4.
Panel Screen CNC PVC Motif Daun 6. Besi Hollow Hitam 10x10 7. False Ceiling Gypsum Victorian Cornice 8.

DETAIL DRAWINGS

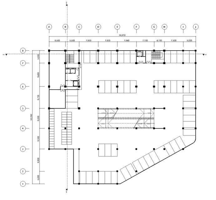
03 ARMAIN APARTMENT

ARCHITECTURAL DESIGN V PROJECT

PROJECT DATA

ProjectType

Location

SiteArea

Height :Apartment :Thamrin,KebonMelati,CentralJakarta :5529m²

:19Storey

Armain Apartment is an upper-to-middle-type apartment with flexible features, which can be found in the communal garden design and the interior of the individual units. Theseflexiblefeaturesaimtoaddresstheissueoflimitedspacecausedbylandscarcity andalsoaccommodatethegrowingtrendofindividualisticcultureinsociety.

BASEMENTFLOOR

LEGENDS

SECONDFLOOR

1.

Mass following the site shape and backed up 3 to 4,5metersfromsetback

2.Subtractiontocreategreen space and away from noise andsmell

3. Linear manner with the longer side facing north and south to reduce heat gain fromsunglare

4. Podium mass pulled down to create communal garden andpodiumdeck

5. Balcony facing all sides for natural lighting, air circulation, andviewinroomunits

The flexibility aspect in 1-bedroom units is the sliding door/wall that can open oneroomandclosetheother,whetherit is the bedroom or the workspace. The slidingdoor/wallallowsasenseofspace and allows light to shine through. Furthermore, the dining area, kitchen, and living room have an open plan design, accompanied by a full-length balcony.

The flexibility aspect in studio units is the Murphy bed, which is integrated along with bookshelves and a wardrobe to save space. The small space also includes a balcony to allow natural air and light to circulatethroughoutthearea.

04 CARAPACEA THEATRE

BUILDING TECHNOLOGY III FINAL EXAM PROJECT

PROJECT DATA

ProjectType

Location

SiteArea :Theatre :AmphitheaterParkGBK,CentralJakarta :775m²

Carapacea Theatre is a theatre for performing arts, such as dance, drama, and music. The shape of this wide span hybrid structure is inspired by the shell of a turtle, which is called carapace, hence the name. This theatre has a size of 25 m x 31 m and has a structure of membrane and space truss structure, with bamboo as the main structure. Moreover, Carapaceahasaconceptofsurroundedbynaturebecauseit isanopentheatre.

BLOCKPLAN

Theturtleshapedroofwas madefrombamboo

Bamboo bending beams were used to stabilize the structure by transferring forces from one arch to another, creating a strong androbustdesign

"All

these places had theirmoments With lovers and friends, Istillcanrecall"

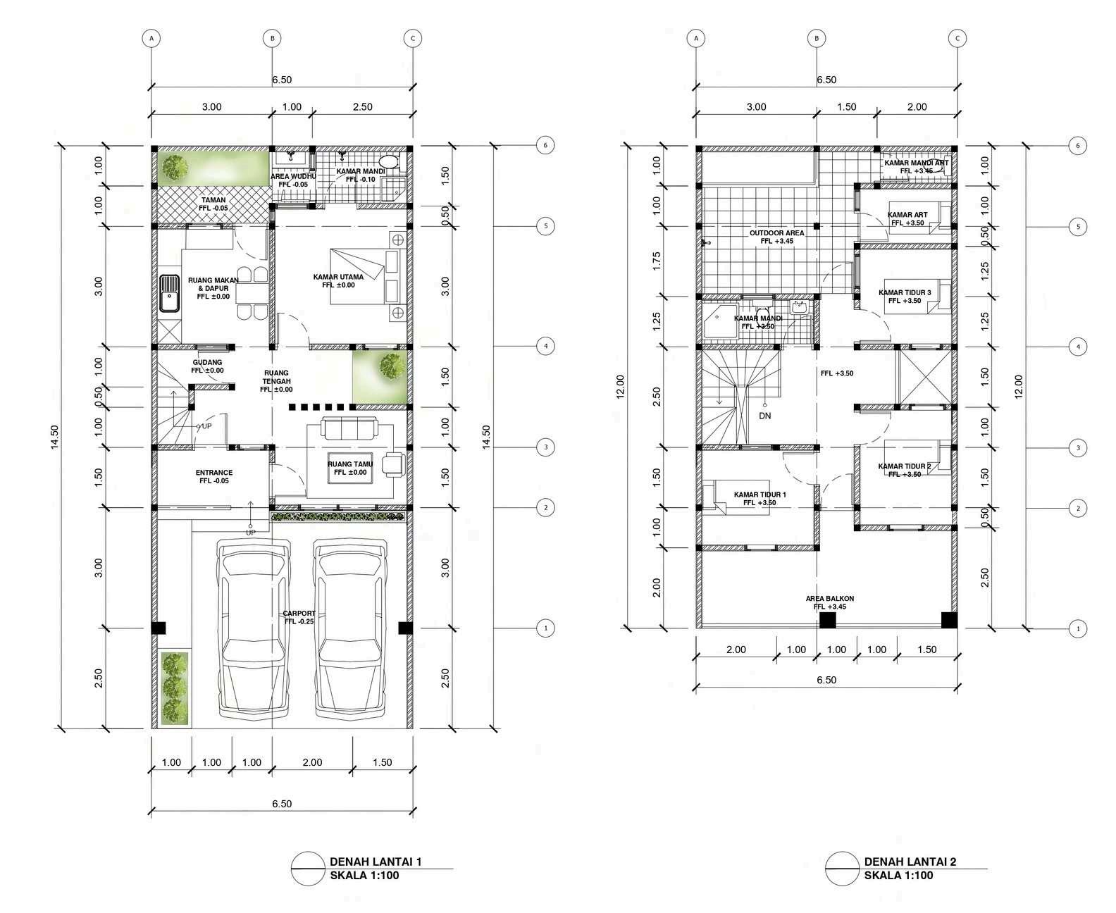
05 KURO HOUSE

ARCHITECTURAL DESIGN II PROJECT

PROJECT DATA

ProjectType

Location

SiteArea

Height

:TwoStoreyHouse

:Kembangan,WestJakarta

:314m²

:TwoStorey

KuroHouseisdesignedforafamilyof6.DuringtheCovid-19pandemic, people are suddenly obligated to work and perform other daily activities from home to minimize the spread of the virus. Therefore, a design approach that fulfills these needs becomes necessary. This house addresses the pandemic's challenges through its space programming, which includes dedicated workspaces at home and a vast green area. Additionally, numerous openings are incorporated throughoutthehousetoallowcrossventilationandnaturallighting.

LEGENDS

Bydesigningnecessary openings on the east and north sides of the house,itnowhascross ventilation, allowing air toflowthroughthearea from one side to anotherandcooldown indoorspaces.

Thenaturallightingcan be found throughout everysideofthehouse except the south. By creating openings and avoidontheeastside, then adding open area spaces (pond and garden) on the north and west sides, it allows adequate sunlight to illuminate thehouse.

COOLAIR

The living room is where the family welcomes guests. It is located on the north side, in response to the wind direction. It faces the pond and also offersaviewthroughthediningroom.

Mass following the setbacks
2. Subtraction to create carport and garden
3. Balconies facing the best view
5. Sloped roof to drain rainwater down

The workspace is where family members can work from home and attend online meetings during these pandemictimes.Thisroomfaceseast, allowingittoreceiveadequatenatural lightfromtherisingsun.

bedroom is located in the northeast side, which is the side facing the hook road. Therefore furnishedwithstudydesk

Kid's

06 KOIMEI

REDESIGN SANGDAN RESTAURANT

INTERIOR BY DENNY SETIAWAN

PROJECT DATA

ProjectType

Location

SiteArea :Restaurant :Manado,NorthSulawesi :875m²

ThisprojectisaredesigninteriorprojectofSangdan RestaurantbyDennySetiawan.

InspiredbyWongKarWaimovies,KOIMEIrestaurant pursues a new yet nostalgic Retro Chinese concept byusingvintagefurniture,artificiallightsthatcreate an ambiance, and materials such as tiles, terrazzo, and a color palette mainly featuring teal and red. This restaurant will serve Chinese food, desserts, andsnacks.

Furniture and Decoration
Red Wooden Sofa Chair with Cushion 1. Modern Brass LED Mount Ceiling Light 2. Murano Glass Chandelier 3.
Emeralite Sandwich Glass Table Light 4.
High Solid Wood Stool 5.
Palm Tree in Cement Pot 6.
Potted Bonsai Tree 7.
Broadway Fiber Terrazo Table 8. Wooden Tufted Velvet Sofa Bench Booth Seating 9.
Square Red Terrazo Table 10.

The first floor has an indoor area which can serve two groups of six. Inthisroom,thefurniture and materials are made different to emphasize a different space than the outdoorarea.

The furniture are more bigger in sizes and the materials used are brick andpatternedtile.

A koi pond can be found around the said room before. This pond is a representation of the Chinese culture that loves koi pond. Customers inside the indoor area can enjoy theviewofthepond.

Turn static files into dynamic content formats.

Create a flipbook
Issuu converts static files into: digital portfolios, online yearbooks, online catalogs, digital photo albums and more. Sign up and create your flipbook.