
ARCHITECTURE PORTFOLIO
EDUCATION
M.Sc. Building Architecture (Erasmus) Politecnico di Milano
![]()

ARCHITECTURE PORTFOLIO
M.Sc. Building Architecture (Erasmus) Politecnico di Milano
Architectural Assistant II

Architect with international experience across Germany, Italy, and Jordan, combining design, technical development, and project coordination across multiple scales. Educated at Anhalt University and Politecnico di Milano, with professional experience spanning early-stage design, competition support, permitting, technical detailing, BIM-based coordination, and site-related processes in Germany, Italy, the UAE, and Jordan.
Arabic Native
English Full Professional Proficiency
German Full Professional Proficiency
Address 12 Antoinettenstr., Dessau, Germany
Phone +4915906170381
E-mail: khalidalabdulh@gmail.com
LinkedIn www.linkedin.com/in/khalid--jamal
M.A. Architectural and Cultural Heritage
M.A. Architecture School of Anhalt Bauhaus
Bachelor’s Degree in Architecture
Applied Science Private University
Junior Technical Project Manager
TSC Realestate Berlin
• Support in the technical management of existing properties
Milan; Italy
Feb 2021 - Jul 2021
Dessau; Germany
Oct 2012 - Jan 2018
Amman; Jordan
Oct 2011 - Oct 2017
Computational Designer
INDEXLAB Politecnico di Milano
• Creation of complex parametric structures using computational design.
• Searching fabrication methods for material efficienct designs.
• Creating physical and digital models using 3D-printing and robotic arms.
• Developing robotic fabrication techniques for architectural applications.
• Softwares: Rhino, Grasshopper, C#, Prusa, Twinmotion, AR, VR, Mix-Reality.
Participation and delivery of the following project
Discrete Architecture- Politecnico Campus (2022)
Type Collaborative Research in Computational Desing and Digital Fabrication
Architectural Intern Wael Al-Masri Planners and Architects
Berlin; Germany
Nov 2025 - Present
• Support in the initiation and implementation of maintenance and repair measures by third parties/service providers, as well as construction and restoration works to maintain and increase value.
• Monitoring and documentation of inspection, maintenance, and repair measures to be carried out by tenants and operators.
• Communication with third parties involved in the ongoing management process and in projects, primarily tenants and operators, but also service support in the preparation and processing of reports for German and international clients.
• Supporting the technical team with regard to evaluation, reporting and controlling.
Architectural Assistant II
Planungsbüro Baumert & Peschos
Magdeburg; Germany
Sep 2023 - Mar 2025
• Participation in all design phases and technical coordination for mid-sized industrial , research laboratory, and office projects.
• Production of detailed technical drawings for tender and construction phases.
• Managing site inspections, client and contractor meetings, and project coordination.
• Handling building permits, ensuring compliance with building laws including fire protection, soil examination tests, water flood levels, and sustainability requirements.
• Preparation of cost calculation and contract amendments.
• Assisted in perparation of drawings of a multi-use project in Austria (govermental, residential, commercial).
• Softwares: AutoCAD, Revit, Photoshop, Allplan.
Participation and delivery of the following project
1. Cotbus Fast Trains (2023 - 2024)
Type : Building permit planning
2. DB Maintenance Facility Neumünster/ Hall Conversion (2023)
Type : Conceptual Design
3. Drink Water Distribution Center (2024 - 2025)
Type : Conceptual Design / Building Permit / Excution Details
Nov 2017 - March 2018
• Interpreted and translated design briefs into early-stage concepts through diagrams, sketches, and spatial narratives.
• Produced and developed drawings, 3D models, and visual material to support design evolution and communication.
• Contributed to competition entries, including spatial planning and coordinated design packages for complex, high-end projects.
• Supported internal team coordination through research, site and environmental analysis, and design development input.
• Assisted in the preparation of presentations and visual documentation for internal design reviews.
• Collaborated within fast-paced team environments, adapting to tight deadlines and iterative design workflows.
• Explored concept-to-presentation processes, integrating storytelling, analysis, and visual clarity.
• Softwares: AutoCAD, SketchUp, 3dsMax, Photoshop.
Participation and delivery of the following project
Al Badayer Retreat (2017-2018)
Conceptual Design / Building Permit
• Professional Training in Site Constuction Management
• Rhino Inside Revit, By Dusan Cvetkovic
• Gerrit Rietveld Military table, Bauhaus Furniture
• Heritage Restoration Summercamp
• PRINT in PRINT: Advanced Robotic 3D Printing
Major
• AutoCad
• Revit
• Rhino & Grasshopper
• InDesign
• Enscape
• Photoshop & illustrator
• Krea & Nano-Banana AI Tools
Minor
• Twinmotion
• Dynamo
• Blender
• Prusa Slicer / Bambu Studio
• 3DsMax
• Python
• C-Sharp





Discrete Architecture in Contemporary Ornament
Modular Performance-driven Pavilion
- MArch 2024/2025 - PBBP Planning Office Baumert & Peschos
2 - MArch

Politecnico di Milano - MArch
2021
The project is conceived as an exploration of geometry as a primary driver of architectural expression. Form is developed through a controlled system of variation and repetition, generating a spatial language that is both precise and fluid. The architecture emerges as a continuous interplay between order and complexity, where each element is part of a coherent geometric logic.
Polymers are employed to reinforce this expression, enabling seamless surfaces and smooth transitions that emphasize continuity and lightness. The material supports the creation of sculptural forms in which structure and envelope merge into a unified composition.
Algorithmic design processes guide the articulation of these geometries, allowing intricate patterns and tectonic systems to evolve from simple rules. The result is an architecture defined by clarity of form, rhythm, and proportion, where aesthetic expression is rooted in the logic of its geometry.
Location: IndexLab, Lecco, Lombardi, Italy
Type: Individual/academic work
Software: Rhino, Grasshopper, Blender, Illustrator, Nano-Banana


Cross-shape essential module
Discrete part assembly
Recursive subtraction is a process in design or geometry in which a shape is iteratively and repeatedly subtracted from a larger shape, often resulting in intricate, complex forms. This technique is used to create patterns or textures by gradually removing parts from the whole.
Field-controlled modular assembly showing the aggregation process of a single module in response to vector fields with Rhino and Grasshopper. Modules align, orientate and vary their density depending on field strength and flow direction. This demonstrates a scalable system that can generate both finite structures and continuous architectural fields.
Discrete part

































Politecnico di Milano University - MArch
2021
The project investigates new formal approaches to articulate architecture through geometry, surface, and light. It is conceived as a pavilion where spatial experience is shaped by the interaction between solid and void, creating a dynamic architectural presence.
The perforated outer skin becomes the defining design element, generating a layered façade that filters light and produces a constantly shifting play of shadows within the interior. The variation in perforation sizes introduces rhythm and depth, transforming the envelope into a visually active surface.
This pattern is not applied but developed as part of a coherent geometric system, where density and openness are carefully balanced. The result is a structure that expresses both precision and fluidity, with a strong visual identity rooted in repetition, variation, and the modulation of light.
Location: Leonardo campus, Politecnico di Milano, Milan, Italy
Type: Individual / academic work
Software: Rhino, Grasshopper, Lumion, Illustrator, Krea AI, Nano-Banana



This illustration describes the translation of a continuous freeform pavilion into an articulated architectural system. The surface is decomposed into a series of modular panels, establishing a clear geometric order between overall form and individual elements.







Anhalt Architecture School Bauhaus - MArch 2020
The historic building, formerly a soap factory, has been developed into a meeting place for artists and musicians The proposed adaptive reuse aims to preserve the significance of the site and create a sustainable solution.
Consists of a student residence, a music school with recording studios and auditorium, and dance areas. Addaptive reuse will make the building more efficient with a long-term positive impact on the surrounding area.
Location: Berlin, Germany
Type: Individual / academic work
Software: Revit, AutoCAD, Lumion, Illustrator, Photoshop, Krea AI




EXISTING BUILDING MASSES CONNECTION BETWEEN PARTS AND COURTYARD SURFACE


LEVELING THE COURTYARD AREA BUILDING EXTENTION THROUGH ADDITIONAL STORIES


ANNEX FOR OUTDOOR AREA ANNEX FOR CIRCULATION


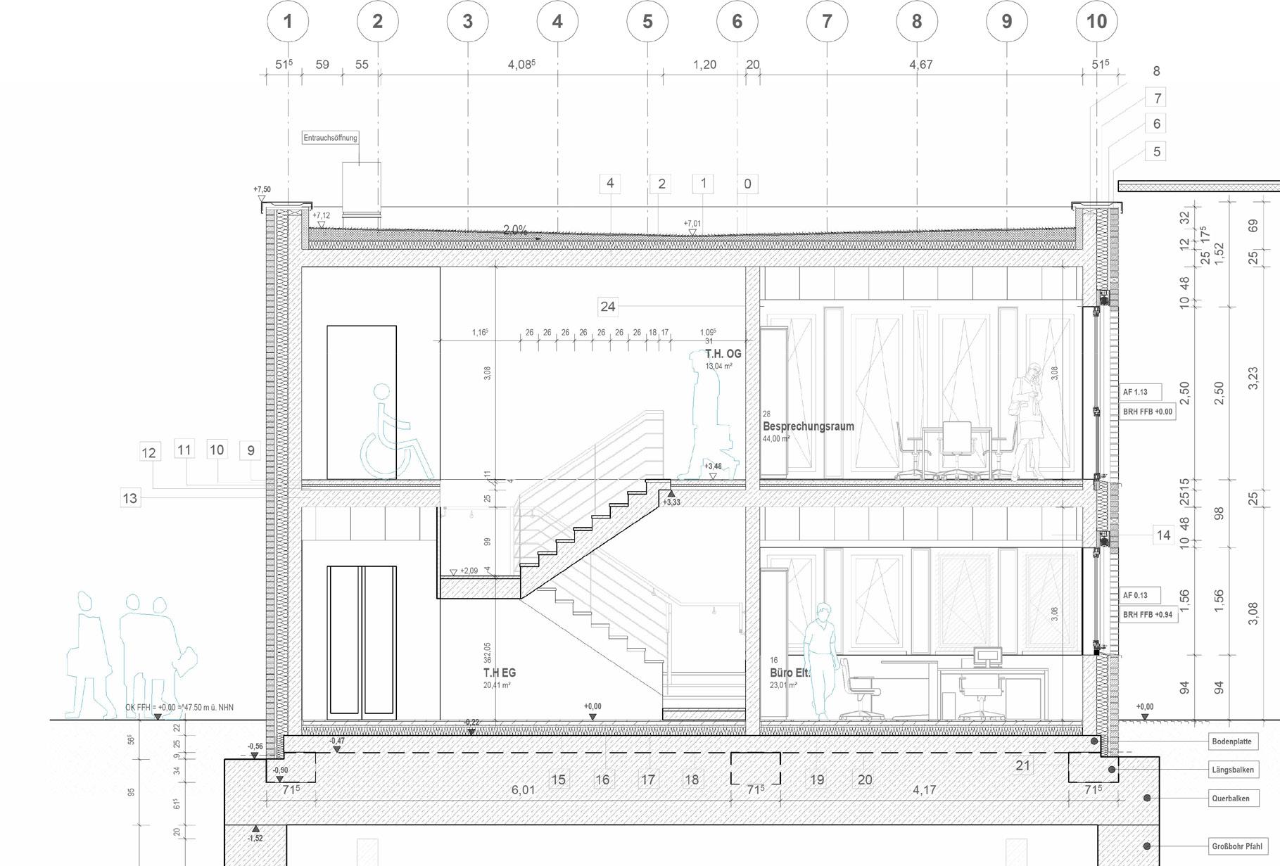
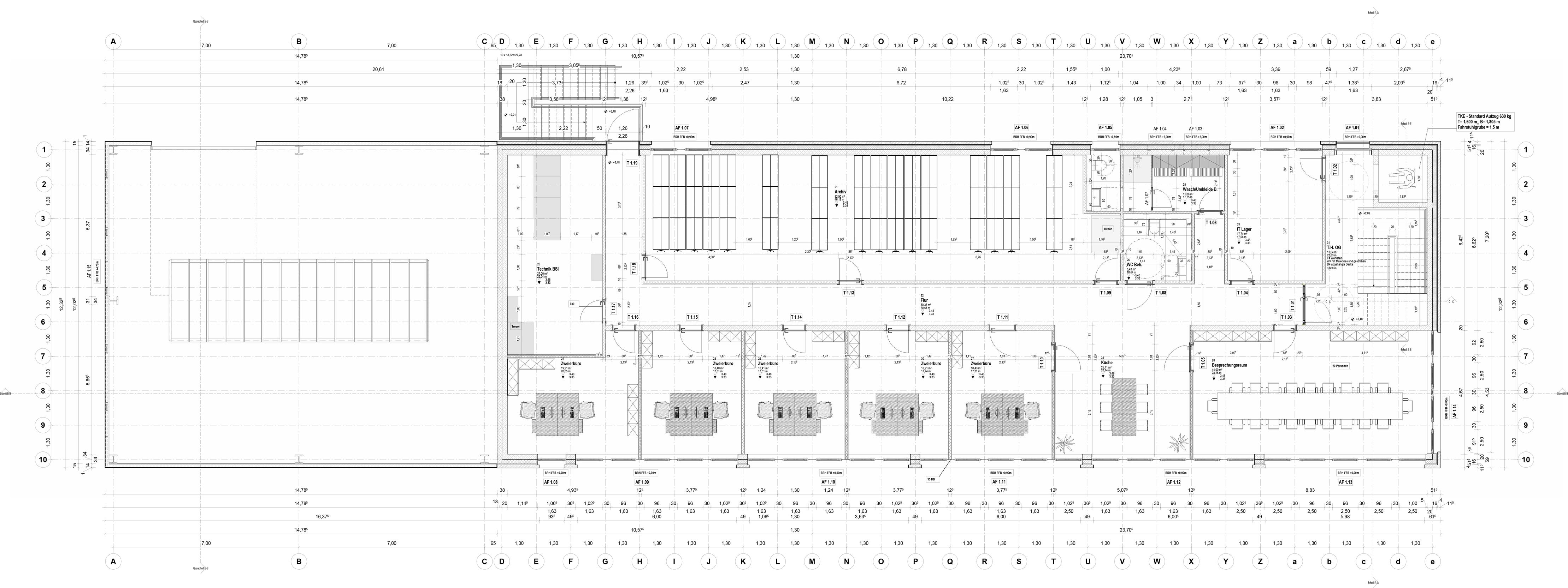
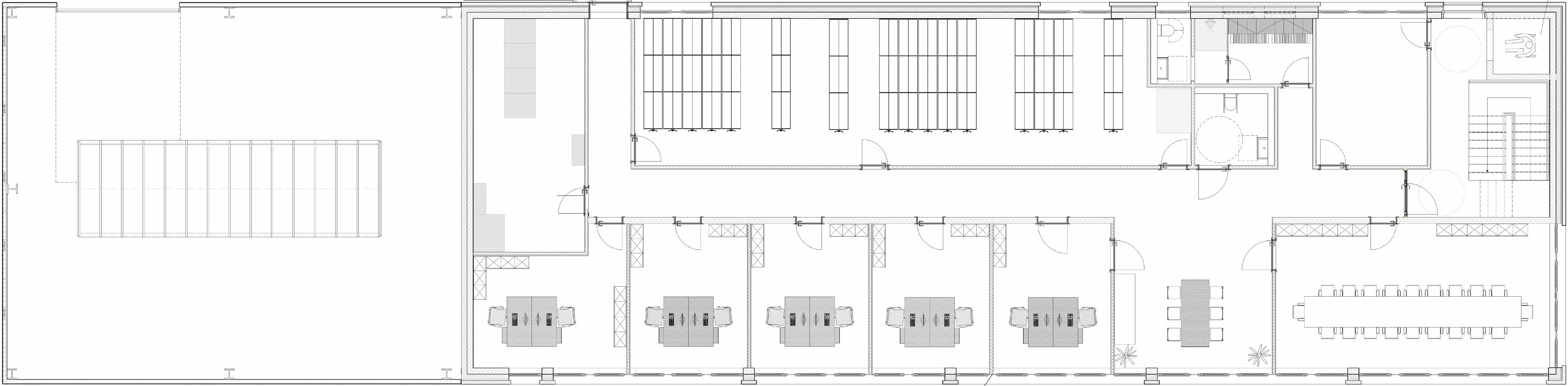
Planning Office PBBP - Junior Architectural Designer
2024
A two-storey industrial facility with multifunctional use was planned and realized on behalf of a private company in the water recycling and treatment sector. The building combines office space with technical areas for research, water treatment and storage.
The building was constructed using prefabricated reinforced con crete.
In order to integrate the design into the local surroundings, the façade was designed with red-brick exterior walls to match the traditional building style of the surrounding area. The facility consists of two functionally separate structures: an administration area and a section for technical processes and storage areas.
Location: Magdeburg, Germany
Type: Research-oriented industrial facility for water treatment and recycling.
Work Phases: Conceptual Design- Building Permit - Excution
Software: AutoCAD, Revit, Photoshop, Krea AI

[ PLAN AND SECTION ]
The floor plan was developed and optimized in close coordination with the client and the specialist planners and contractors involved. Coordination took place in parallel with the overall architectural management of the project.
The design and approval planning was implemented in accordance with the requirements of the building regulations and subsequently released for the execution phase. The execution drawings were prepared in collaboration with the structural engineers and handed over to the contractors and site management.

























































Politecnico di Milano University - MArch
2021
The project for San Fedele reinterprets the historic Cascina as a central element within a broader spatial composition, integrating it into a continuous architectural narrative across the site.
A network of pedestrian paths connects the Cascina to its surroundings, guiding movement through a sequence of defined spaces. Along these routes, small geometric interventions create moments of pause and visual emphasis within the landscape.
The conference pavilion is conceived as a clear and contemporary volume, acting as a gathering space where interior and exterior flow together. Its form reinforces the dialogue between geometry, movement, and the surrounding context.
Location: Monza Royal Park, Italy
Type: Group / academic work
Software: AutoCAD, Rhino, Grasshopper, Nano-Banana, Photoshop, Illustrator



Rounded geometery welcoming the users coming to the backyard

Geometries wind around the trees. serpentine-like form in red colour.
The conference and event pavilion is created from a simple circular shape that develops into an organic, serpentine structure in response to the natural surroundings. Instead of removing the existing trees, the architecture integrates them into the spatial concept. The result is a harmonious combination of landscape and built space - a place that unites encounters, tranquillity and the experience of nature. The pavilion becomes a living landscape element, a symbol of the respectful interplay between architecture, environment and user.

The curved geometry is devided into several elements serving the landscape and providing a space for social events.

The building transformation included south building extention with the landscape installations creating a unique atmospher for the visitors [ CONCEPT ]








Algorithmic Articulation of Mass, Void, and Surface
This project explores a speculative architectural language generated through algorithmic manipulation of stereotomic logic , the art of carving and assembling mass.
Software: Rhino, Grasshopper, V-Ray


The Public Capsule is a spatial prototype that redefines the boundary between privacy and publicity. This capsule responds to that need by offering a micro-architecture of solitude, crafted for reflection, conversation, or remote work, without total disengagement from the urban field.
Software: Rhino, Grasshopper, V-Ray




Organic cellular modular system
Voronoi Metamorphosis reimagines the architectural block as a living structure, one that grows, adapts, and reshapes itself through algorithmic intelligence. The project translates organic cellular modules into a buildable tectonic language.
Software: Rhino, Grasshopper, V-Ray



This design reimagines the traditional ways in building minimal spaces using timber lattice. The goal was to experience the spatial impact on the user and the orginality resulted by using these patterns to creat simple but rather sacred spaces.
Software: Rhino, Grasshopper, V-Ray



A conceptual exploration into the intersection of biomimicry, computational design, and natural logic. As an attempt to capture the complex morphology of the sea sponges, the design reinterprets organic marine architecture into a structure.
Software: Rhino, Grasshopper, V-Ray


A design idea that explores the authenticity existed in a geometric platonic shape and the hybrid material systems. Aarchitectural concept targeting icosahedronal outer cladding covering inner supportive tessellated surface.
Software: Rhino, Grasshopper, V-Ray

