Skip to main content

Khalid_ CV & Portfolio

Page 1


KHALID JAMAL

Architectural Assistant II

Architect with international academic and professional experience across Germany, Italy, and Jordan, combining innovative design with technical architectural practice.

Trained at the Bauhaus-oriented Anhalt University and Politecnico di Milano, with a strong focus on the integration of digital design methodologies and advanced fabrication in architecture through research experience at INDEXLAB focusing on parametric design, 3D-printing, and robotic fabrication. Professional work involved early-stage design and competition support in UAE, computational design research in Italy, and the development of industrial and infrastructure projects in Germany, contributing from concept design through permitting and technical coordination using BIMbased workflows. Experience includes preparing building permit documentation, coordinating with clients and contractors, and supporting site inspections and technical detailing. My current experience in technical asset and project management enabled me to improve my understanding of building systems, project delivery, and lifecycle performance. Proficient in Rhino, Grasshopper, and Revit, with a strong interest in technologically driven architecture, material innovation, and performance-oriented design.

English

German

Italian Elementry

German, born September 19th, 1993

Address: 12 Antoinettenstr., Dessau, Germany

Phone +4915906170381

E-mail: khalidalabdulh@gmail.com

LinkedIn: www.linkedin.com/in/khalid--jamal

EDUCATION

Politecnico di Milano University

M.Sc. Building Architecture (Erasmus)

M.A. Architecture School of Anhalt Bauhaus

M.A. Architectural and Cultural Heritage

Applied Science Private University

Bachelor’s Degree in Architecture

EXPERIENCE

Milan; IT

Feb 2021 - Jul 2021

Dessau; GER

Oct 2012 - Jan 2018

Amman; JO

Oct 2011 - Oct 2017

Berlin; GER

Nov 2025 - Present

• Support in the technical management of existing properties, mainly senior citizen facilities, medical care, and rehabilitation facilities.

• Support in the initiation and implementation of maintenance and repair measures by third parties/service providers, as well as construction and restoration works to maintain and increase value.

• Monitoring and documentation of inspection, maintenance, and repair measures to be carried out by tenants and operators.

• Communication with third parties involved in the ongoing management process and in projects, primarily tenants and operators, but also service support in the preparation and processing of reports for German and international clients.

• Supporting the technical team with regard to evaluation, reporting and controlling.

Planungsbüro

Baumert & Peschos Indexlab

Magdeburg; GER

Sep 2023- Mar 2025

• Participation in all design phases and technical coordination for mid-sized industrial , research laboratory, and office projects.

• Production of detailed technical drawings for tender and construction phases.

• Managing site inspections, client and contractor meetings, and project coordination.

• Handling building permits, ensuring compliance with building laws including fire protection, soil examination tests, water flood levels, and sustainability requirements.

• Preparation of cost calculation and contract amendments.

• Assisted in perparation of drawings of a multi-use project in Austria (govermental, residential, commercial).

• Softwares: AutoCAD, Revit, Photoshop, Allplan.

Creativity & Technology

• Creation of complex parametric structures using computational design.

• Searching fabrication methods for material efficienct designs.

• Creating physical and digital models using 3D-printing and robotic arms.

• Developing robotic fabrication techniques for architectural applications.

• Softwares: Rhino, Grasshopper, C#, Prusa, Twinmotion, AR, VR, Mix-Reality.

Discrete Architecture- Politecnico Campus (2022)

Collaborative Research in Computational Desing and Digital Fabrication

DB Maintenance Facility Neumünster/ Hall Conversion (2023)

Conceptual Design

Drink Water Distribution Center (2024 - 2025)

Conceptual Design / Building Permit / Excution Details

• Contribution to early-stage design concepts through diagrams and sketches.

• Assisted in developing competition entries, layout design, architectural drawings, and 3D modelling of various facilities in luxurious complex building.

• Supported the design team in site and enviromental analysis, case study research, and design solutions.

• Prepared presentations for internal reviews.

• Collaboration in team environment under tight competition deadlines.

• Explored conceptual design strategies, narrative development, and design-topresentation workflows.

• Softwares: Revit, Sketchup, 3DsMax, AutoCAD, Photoshop.

Al Badayer Retreat (2017-2018)

Conceptual Design / Building Permit

Certifications and Workshops

Gerrit Rietveld

Heritage Restoration Summercamp

PRINT in PRINT: Advanced Robotic 3D Printing

SKILLS

• AutoCad

• Revit

• Rhino & Grasshopper

• InDesign

• Enscape

• Photoshop & illustrator

• Krea & Nano-Banana AI Tools

• Twinmotion

• Dynamo

• Blender

• Prusa Slicer / Bambu Studio

• 3DsMax

• Python • C-Sharp

Rhino, Grasshopper, Rhino Inside Revit, By Dusan Cvetkovic
Military table, Bauhaus Furniture
Cotbus Fast Trains (2023 - 2024) Building Permit

00 Discrete Architecture in Contemporary Ornament 01 Modular Performance-driven Pavilion

Addaptive Reuse of Old Ice Factory

[ 00 Rethinking Ornament ]

2021

Traditional construction processes are rapidly evolving due to the need for more time, cost and energy efficient construction processes, leading us to be better able to fulfil our current needs. On the one hand, this means a rapid shift towards automation, which is an effective solution to reducing the construction’s environmental footprint, and on the other, the search for alternative material resources. Polymers are widely used and wasted in construction, therefore considered smart materials used widely in today’s architecture.

Algorithmic design has enabled the exploration and creation of complex geometric tectonics that can be assembled in various ways to create customised architectural elements. Robotic 3D-printing offers efficient approach that enables real-time physical simulation, creating an interactive experience between the designer and the product.

Location: IndexLab, Lecco, Lombardi, Italy

Type: Individual/academic work

Software: Rhino, Grasshopper, Blender, Illustrator, Nano-Banana

Cross-shape essential module

Cutting geometryCompound of two Tetrahedron

Horizontal cutting plane

Discrete parts

CONCEPT ]

Recursive subtraction is a process in design or geometry in which a shape is iteratively and repeatedly subtracted from a larger shape, often resulting in intricate, complex forms. This technique is used to create patterns or textures by gradually removing parts from the whole.

Vertical cutting plane

Cross-shape essential module

Cutting geometryCompound of two Tetrahedron

Discrete part assembly

Horizontal cutting plane

Discrete parts

Discrete part assembly

Discrete part

ASSEMBLY ]

Field-controlled modular assembly showing the aggregation process of a single module in response to vector fields with Rhino and Grasshopper. Modules align, orientate and vary their density depending on field strength and flow direction. This demonstrates a scalable system that can generate both finite structures and continuous architectural fields.

Vertical cutting plane

Discrete part assembly

Scale-up

Discrete part

Scale-up

Lighting and Shadow Analysis

[ 01 Smart Pavilion ]

Politecnico di Milano University - MArch

2021

This project pursues new design approaches to tackle environmental problems in the construction sector. It aims to improve energy efficiency in the construction industry and reduce material waste.

The pavilion utilises perforated outer skin to control the amount of sunlight entering the interior and create a comfortable temperature for users.

Comprehensive environmental and structural analyses were used to calculate the diameter of the perforations and the structure of the steel frame. Structural optimisation algorithms were used.

Location: Leonardo campus, Politecnico di Milano, Milan, Italy

Type: Individual / academic work

Software: Rhino, Grasshopper, Lumion, Illustrator, Krea AI, Nano-Banana

Radiation Analysis and Structural Assembly

[ 02 Tunnel of the Artists ]

Anhalt Architecture School Bauhaus - MArch 2020

The historic building, formerly a soap factory, has been developed into a meeting place for artists and musicians The proposed adaptive reuse aims to preserve the significance of the site and create a sustainable solution.

Consists of a student residence, a music school with recording studios and auditorium, and dance areas. Addaptive reuse will make the building more efficient with a long-term positive impact on the surrounding area.

Location: Berlin, Germany

Type: Individual / academic work

Software: Revit, AutoCAD, Lumion, Illustrator, Photoshop, Krea AI

Concept Development Diagram

A-A
A-A

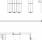
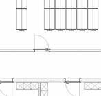
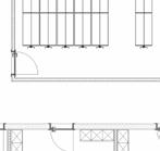
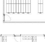
[ 03 Brickline Officehaus ]

Planning Office PBBP - Junior Architectural Designer

2024

A two-storey industrial facility with multifunctional use was planned and realized on behalf of a private company in the water recycling and treatment sector. The building combines office space with technical areas for research, water treatment and storage.

The building was constructed using prefabricated reinforced con crete. In order to integrate the design into the local surroundings, the façade was designed with red-brick exterior walls to match the traditional building style of the surrounding area. The facility consists of two functionally separate structures: an administration area and a section for technical processes and storage areas.

Location: Magdeburg, Germany

Type: Research-oriented industrial facility for water treatment and recycling.

Work Phases: Conceptual Design- Building Permit - Excution

Software: AutoCAD, Revit, Photoshop, Krea AI

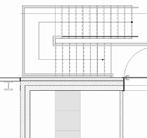
[ PLAN AND SECTION ]

The floor plan was developed and optimized in close coordination with the client and the specialist planners and contractors involved. Coordination took place in parallel with the overall architectural management of the project.

The design and approval planning was implemented in accordance with the requirements of the building regulations and subsequently released for the execution phase. The execution drawings were prepared in collaboration with the structural engineers and handed over to the contractors and site management.

[ 04 The Reclaimed Garden of Cascina San Fedele ]

Politecnico di Milano University - MArch

2021

The project presented for San Fedele focuses on restoring the historic Cascina San Fedele, earlier used as royal vacation house, and using it as a boutique park offering organic products. The main goal of the project is to attract more visitors in order to convey the unique charm of Monza through local products.

The connection between San Fedele and the surrounding historic buildings will be strengthened by creating new pedestrian paths that include small structures for visitors’ spatial experiences and activities. The conference pavilion represents an event hall for the people to sell organic products and do related activites togather.

Location: Monza Royal Park, Italy

Type: Group / academic work

Software: AutoCAD, Rhino, Grasshopper, Nano-Banana, Photoshop, Illustrator

[ Concept ]

The conference and event pavilion is created from a simple circular shape that develops into an organic, serpentine structure in response to the natural surroundings.

Instead of removing the existing trees, the architecture integrates them into the spatial concept. The result is a harmonious combination of landscape and built space - a place that unites encounters, tranquillity and the experience of nature.

The pavilion becomes a living landscape element, a symbol of the respectful interplay between architecture, environment and user.

a) Rounded geometery welcoming the users coming to the backyard

d) The curved geometry is devided into several elements serving the landscape and providing a space for social events.

c) Geometries wind around the trees. serpentine-like form in red colour.

d) The building transformation included south building extention with the landscape installations creating a unique atmospher for the visitors

Stereotomic Evolution

Algorithmic Articulation of Mass, Void, and Surface

This project explores a speculative architectural language generated through algorithmic manipulation of stereotomic logic , the art of carving and assembling mass.

Software: Rhino, Grasshopper, Rhino V-Ray

Public Capsule

A Stereotomic Shelter for Privacy in the Public Realm

The Public Capsule is a spatial prototype that redefines the boundary between privacy and publicity. This capsule responds to that need by offering a micro-architecture of solitude, crafted for reflection, conversation, or remote work, without total disengagement from the urban field.

Software: Rhino, Grasshopper, Rhino V-Ray

Voronoi Metamorphosis

Organic cellular modular system

Voronoi Metamorphosis reimagines the architectural block as a living structure, one that grows, adapts, and reshapes itself through algorithmic intelligence. The project translates organic cellular modules into a buildable tectonic language.

Software: Rhino, Grasshopper, Rhino V-Ray
Front view
Axonometric Diagram
Section Elevation Section
Units Assembly

Space of Origin

Design Exploration of Light and Geometric Patterns

This design reimagines the traditional ways in building minimal spaces using timber lattice. The goal was to experience the spatial impact on the user and the orginality resulted by using these patterns to creat simple but rather sacred spaces.

Software: Rhino, Grasshopper, Rhino V-Ray

Spongia Pavilion

A Biomimetic Structure Inspired by Marine Morphologies

A conceptual exploration into the intersection of biomimicry, computational design, and natural logic. As an attempt to capture the complex morphology of the sea sponges, the design reinterprets organic marine architecture into a structure.

Software: Rhino, Grasshopper, Rhino V-Ray

Synergistic Symmetry

Nature and Architecture through Icosahedral Pavilion

A design idea that explores the authenticity existed in a geometric platonic shape and the hybrid material systems. Aarchitectural concept targeting icosahedronal outer cladding covering inner supportive tessellated surface.

Software:

Rhino, Grasshopper, Rhino V-Ray
Exploded Axonometric Diagram
Biomimetic Structure
Icosahedral Cladding
Innner Tessellation
Front Elevation
Section

Turn static files into dynamic content formats.

Create a flipbook