
MOHAMEDKCHAOU

ARCHITECTURE 2024






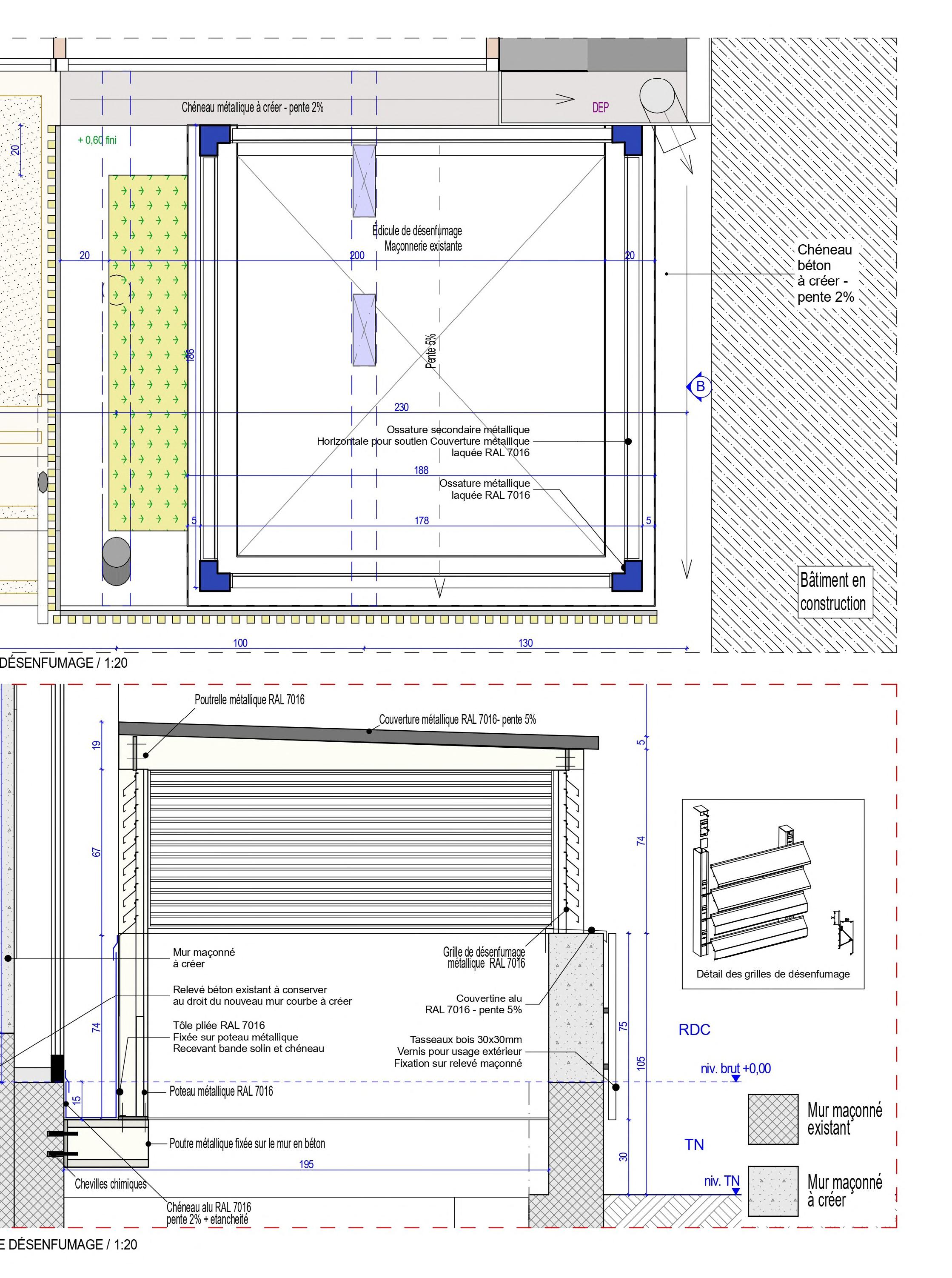
![]()


ARCHITECTURE 2024






PROGRAMME: Aménagement d’un centre d’affaire
SITUATION : Pointe Noire, Congo
SURFACE PLANCHER: 8500 m²
MAÎTRE D’OUVRAGE : Groupe Régal
TRAVAIL : En collaboration avec OSA - France









Caissons + contreplaqué

Alcôve prépa : - crédence : faience Bright onyx - panneaux latéraux contreplaqué + plan de travail : lamellé - collé ép 3 cm / en saillie de 3 cm
Crédence - Stock GF Bright ony x
Plan de travail + panneaux latéraux de l ' alcôve : lamellé collé ép . 3 cm en saillie de 3 cm
- cloison ép 1
tasseaux bois 30 x 30 mm dans la continuité des lisses au plafond x 6 - hauteur selon façade
tasseaux bois 30 x 30 mm dans la continuité des lisses au plafond x 6 - hauteur selon façade
Alcôves : contreplaqué + polyrey M 047 Mousse sur les faces intérieures lisses bois suspendues contrecloison peint






















PROGRAMME: Aménagement d’un centre de formation
SITUATION : Issy-les-Moulineaux, France
SURFACE PLANCHER: 476 m²
MAÎTRE D’OUVRAGE : Groupe GENES
TRAVAIL : En collaboration avec OSA - France














1.4.6 Ensemble menuisier cuisine agent forf
1.4.7 Ensemble menuisier comptoir forf
1.4.8 Etagères et placards
Coffre cache chauffe eau
OPTION : étagères aggloméré, mélaminé blanc (80x40)
OPTION : étagère aggloméré, mélaminé blanc (150x40)
OPTION : Placard direction,ouvrants toute hauteur placage bois suivant choix MOE/MOA, étagères x4 de dim 123x1,00, en mélaminé blanc
1.4.9 Plinthe
1.4.10 vitrophanie
rue


PROGRAMME: Rénovation énergétique d'une école + Extension local CTA
SITUATION : Milly-la-Forêt, France
SURFACE PLANCHER: 6382 m²
MAÎTRE D’OUVRAGE : Commune de Milly-la-Forêt
TRAVAIL : En collaboration avec B&S CONCEPTION - France












soubassement project on de trémie TE p a r p a n g p e n d e 1 5 c m pro ection canal sation EP 8 2 1 soubassement E P P 1 : 2 1 5 X 2 0 0
im te réfection du so Entrée 2
l m i t e a r e d e j e u s u p e rp o s itio n p o s s b le ? s u p e
s u p e rp o s tio n p o s s ib le ? à re c a le r s e lo n la a rg e u r c o rre

PROGRAMME: Construction d'une maison (Promotion privée)
SITUATION : Fontenay-sous-Bois, France
SURFACE PLANCHER: 145 m²
MAÎTRE D’OUVRAGE : La Parisienne de Rénovation
TRAVAIL : En collaboration avec OSA - France












PROGRAMME: Rénovation d'un établissement d'accueil médicalisé
SITUATION : Paris, France
SURFACE PLANCHER: 4709 m²
MAÎTRE D’OUVRAGE : Association Œuvres d’Avenir (ODA)
TRAVAIL : En collaboration avec ATELIER 23JUIN - France











PROGRAMME: Réaménagement et agrandissement d'un parking relais
SITUATION : Savigny-le-Temple, France
SUPERFICIE DU TERRAIN: 26781 m²
MAÎTRE D’OUVRAGE : Grand Paris Sud Seine Essonne Sénart
TRAVAIL : En collaboration avec B&S CONCEPTION - France















PROGRAMME: Requalification des espaces publics d'un centre commercial
SITUATION : Courdimanche, France
SUPERFICIE DU TERRAIN: 2976 m²
MAÎTRE D’OUVRAGE : Ville de Courdimanche
TRAVAIL : En collaboration avec B&S CONCEPTION - France








Accès piéton
Accès
Voie
PL:

PROGRAMME: Requalification des rues Paul Langevin et Frères Lumière
SITUATION : Plaisir, France
LINÉAIRE: 1179 m
MAÎTRE D’OUVRAGE : Communauté d’Agglo de Saint-Quentin-en-Yvelines
TRAVAIL : En collaboration avec B&S CONCEPTION - France
















Téléphone / Whatsapp
(+33) 6 04 06 62 03 (+216) 20 677 890
E-mail mekchaou@gmail.com mekarchitectures@gmail.com
Linkedin linkedin.com/in/mekchaou Behance behance.net/mohamedkchaou