




Why Dayfield Park?












![]()


































ARCH. CODE COMPLIANCE: CODE SEARCH
ARCH. CODE COMPLIANCE: LIFE SAFETY PLAN
ARCH. CODE COMPLIANCE: COMCHECK
SLAB PLAN
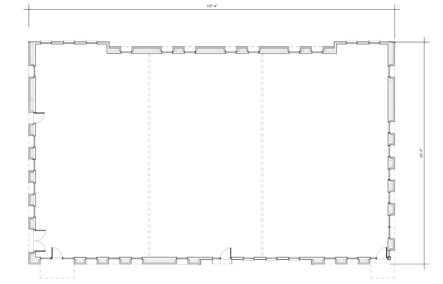
FLOOR PLAN
REFLECTED CEILING PLAN
ROOF PLAN
EXTERIOR ELEVATIONS
EXSITING CONTEXT
BUILDING SECTIONS
BUILDING SECTIONS
BUILDING SECTIONS
RAINSCREEN ASSEMBLY - EAST ELEVATION
RAINSCREEN ASSEMBLY - NORTH ELEVATION
RAINSCREEN ASSEMBLY - WEST ELEVATION
RAINSCREEN ASSEMBLY - SOUTH ELEVATION
ENLARGED DETAILS
ENLARGED DETAILS
ENLARGED DETAILS
ENLARGED DETAILS
ENLARGED DETAILS
ENLARGED DETAILS
ENLARGED DETAILS
ENLARGED DETAILS
ENLARGED DETAILS
ROOF DETAILS
SAMPLE PANEL
WINDOW & DOOR SCHEDULES
WINDOW & DOOR DETAILS
WINDOW & DOOR DETAILS
BAY WINDOW (ALTERNATE #1) DETAILS
BAY WINDOW (ALTERNATE #2) DETAILS
WINDOW FLASHING DETAILS
GENERAL NOTES & DESIGN CRITERIA
FOUNDATION PLAN - BUILDING "A"
SLAB & WALL PLAN - BUILDING "A"
ROOF PLAN - BUILDING "A"
HIGH ROOF PLAN - BUILDING "A"
PLAN DRAWING NOTES AND DETAILS
TYPICAL FOUNDATION AND SLAB DETAILS
TYPICAL FOUNDATION AND SLAB DETAILS
TYPICAL STEEL DETAILS
TYPICAL STEEL DETAILS
TYPICAL STEEL BRACED FRAME DETAILS
TYPICAL WOOD FRAMING DETAILS
SECTIONS AND DETAILS
SECTIONS AND DETAILS
SECTIONS AND DETAILS
SECTIONS AND DETAILS
SECTIONS AND DETAILS
SECTIONS AND DETAILS

414 Brighton Park Blvd / 10,229 SF


414 Brighton Park Blvd / Floor Plan



























































639 & 641 Scholar Way / 6,215 & 6,240 SF


639 & 641 Scholar Way / Floor Plan





















LOCATED IN THE CHARLESTON REGION, A TOP CITY IN THE U.S.
LOCATED IN SUMMERVILLE, AN AREA EXPERIENCING UNPRECEDENTED GROWTH
LOCATED WITHIN IN NEXTON, AN AWARD-WINNING COMMUNITY
• Charleston remains in the spotlight as one of the country’s top small cities.
• Charleston was voted “No. 1 City in the U.S.” from 2014 - 2023.
• Approximately 30,000+ residential units surround Nexton, with 8,500 units in Nexton. Summerville is experiencing unprecedented population growth as more jobs are coming into the area.
• Crescent Offices are located in Summerville within Nexton, a 4,500 acres, master-planned award-winning community.
• Nexton can be accessed via two interchanges at exits 197 and 199 and is located 25 miles to downtown Charleston.





















































RESTAURANTS
Bad Daddy’s Burgers
Carolina Ale House Chicken Salad Chick Chick-fil-A
Cracker Barrel DB’s Cheesesteaks
Dunkin Donuts Eggs Up Grill Five Guys Five Loaves
Sushi Hall’s Chophouse



Jersey Mike’s
Logan’s Roadhouse
McAlister’s Deli Mellow Mushroom Moe’s
Newk’s Eatery Nothing Bundt Cakes Page’s Okra Grill Panera Bread Poogan’s Southern Kitchen
Chico
Fingers
(NS)
2 minute drive or 15 minute walk to Nexton Square



























Nexton is an award-winning, master-planned community thoughtfully designed to live and work like a town. Nexton offers a mix of residential and commercial components including including single-family homes, townhomes, apartments, 55+, hotels, retail, office, and medical office. The community features GigaFi, high speed internet throughout.
Nexton mixes together apartments, entertainment, homes, hotels, offices, parks, restaurants, shops, and schools. Tying everything together with a network of trails and pathways. Creating a walkable, bikeable, and golf-cartable place for residents and businesses alike.
AWARD-WINNING COMMUNITY
+ 2023 Residential Housing Community of the YearMasterplan Grand Aurora Award
+ 2022 Best Mixed-Use Community National Association of Home Builders + 2022 Best Green Community National Association of Home Builders
+ 2021 Best Master-Planned Community National Association of Home Builders
+ 2020 Pinnacle AwardBest Community Home Builders Association of South Carolina
+ 2020 Best Community Land Plan Pacific Coast Builders Conference Gold Nuggets’ Award
+ 2019 Best Mixed-Use Community Charleston Home Builders Association
+ 2019 Best 55+ Community Charleston Home Builders Association


































Comprised of three counties – Berkeley, Charleston and Dorchester – the Charleston region is a highly diverse market, advantageously located on the Atlantic coast half-way between New York and Miami. The region, which covers more than 3,100 square miles (8,192 kilometers), combines a thriving economy, rich history and breathtaking environment to ofer an outstanding business climate and a quality of life that is second to none.
The Charleston metro’s economy has transformed over the past decade from service-based to STEM-based, thanks in large part, to Boeing, Mercedes, Volvo and many others calling our region home. Charleston ranks number 20 among the nation’ s top 100 metros for growth in the Advanced Industry Sector, according to the Advanced Industries Study by the Brookings Institution, which examines growth in STEM-intensive occupations including logistics and transportation, advanced manufacturing and healthcare. The growth of this sector is helping to fuel the region’s overall economic growth and transform the economy from a service-based to skills-based job market. Advanced Industry jobs are among the nation’s fastest growing and highest paying.
Charleston Harbor will soon be the deepest port on the East Coast of the U.S. – all in time to welcome Post Panamax ships 24/7. There is no question that the Charleston metro is a profoundly different place than it was 25 years ago when the economy was centered on the nation’s third largest Navy Base. And there is no doubt that we will be profoundly different a decade from now when Boeing, Volvo and Mercedes are all fully operational with their supply chains in place and our airport and port are offering thriving logistics and transportation options to reach the global supply chain. Charleston has earned its place on the global map as a visitor destination and now we are also recognized as a global business destination.
-Charleston Metro Chamber of Commerce










Charleston is one of the fastest growing metropolitan areas, growing at a rate 3X faster than the U.S. average. Currently, the population is 760,000 and grows at approximately 33 new people per day. Approximately 34,000 new homes are planned in close proximity to the site; making this location ideally positioned to capture the demand.
With it’s central location to one-third of the U.S. market, Charleston is positioned for continued growth. The favorable business environment in the State of South Carolina, coupled with the location advantages of Charleston, has led to economic growth rivaling larger U.S. metros.
Charleston’s population growth has far outpaced the rate of growth of the whole nation. By 2023, Charleston’s population is expected to exceed 850,000 residents, growth of over 55% since 2000.

TOTAL PEOPLE PER DAY GROWTH
tween work and play - and a warm climate, food, attractive cost of living, European sensibilities, miles of beaches, diverse housing options, and one of the best medical hubs in the Southeast.”
--CRDA
















EXCLUSIVELY MARKETED BY:
MCKENZIE DEUSTCH
+1 540 287 4914
mckenzie.deutsch@bridge-commercial.com
DANIEL PELLEGRINO
+1 850 728 1050
daniel.pellegrino@bridge-commercial.com
MARK MATTISON, SIOR, CCIM
+1 843 437 1545 mark.mattison@bridge-commercial.com

BRIDGE COMMERCIAL 25 Calhoun Street, Suite 220 Charleston, SC 29401
WWW.BRIDGE-COMMERCIAL.COM
Bridge Commercial makes no guarantees, representations or warranties of any kind, expressed or implied, including warranties of content, accuracy and reliability. Any interested party should do their own research as to the accuracy of the information. Bridge Commercial excludes warranties arising out of this document and excludes all liability for loss and damages arising out of this document.