
MARK A. MATTISON, II CCIM SIOR
Executive Vice President
DIR: +1 843 437 1545
mark.mattison@bridge-commercial.com
COLBY FARMER
Associate Vice President
• $26.50/RSF Full Service
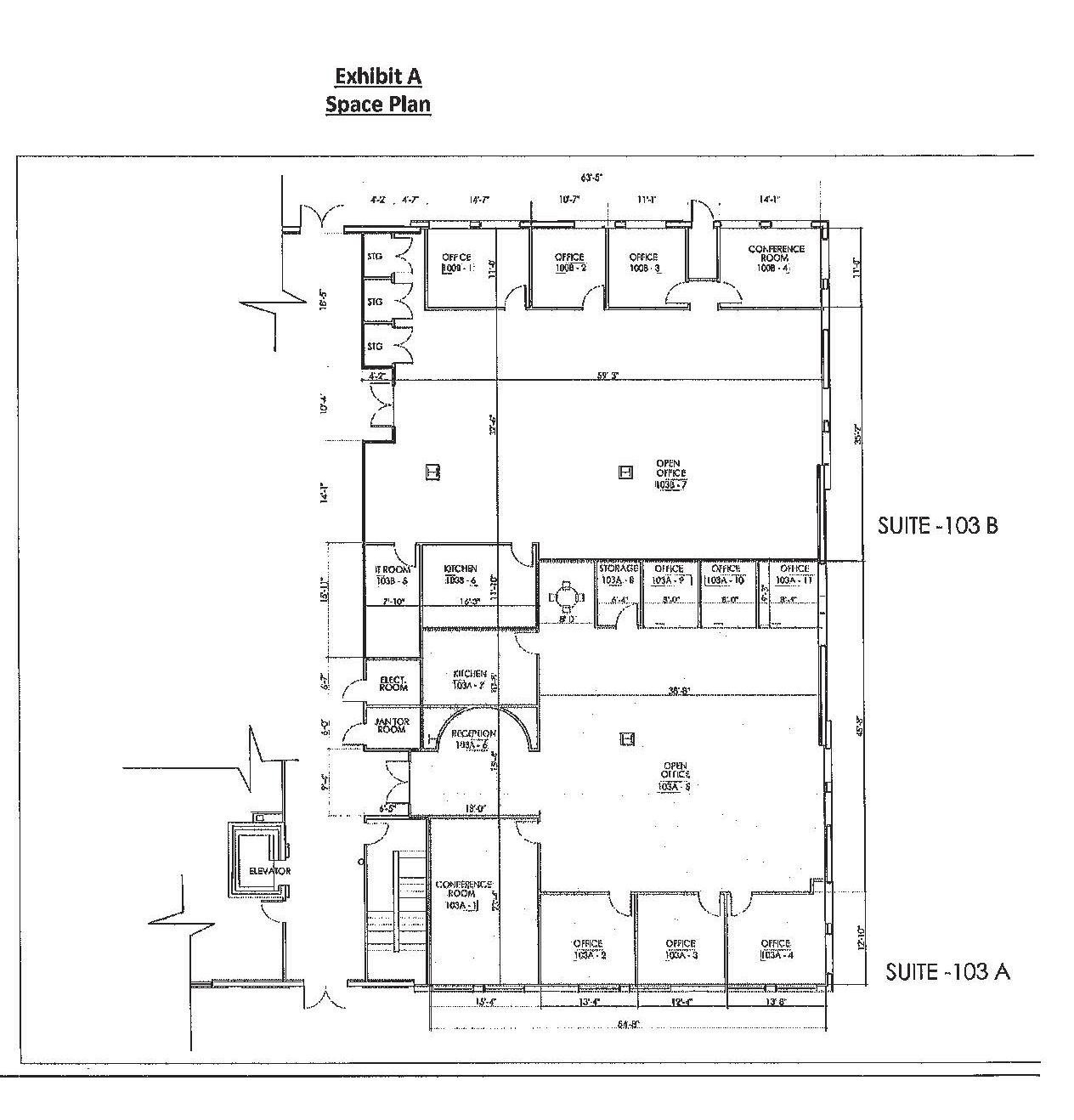
• Suite 103 A: 3,124 RSF
• Suite 103 B: 4,344 RSD
• Suite 103 A&B: 7,468 SF
• Suite 201: 2,000-6,960 RSF
DIR: +1 978 998 9243
colby.farmer@bridge-commercial.com
BRIDGE COMMERCIAL
DIR: +1 843 535 8600
25 Calhoun Street, Suite 220 Charleston, SC 29401





























