



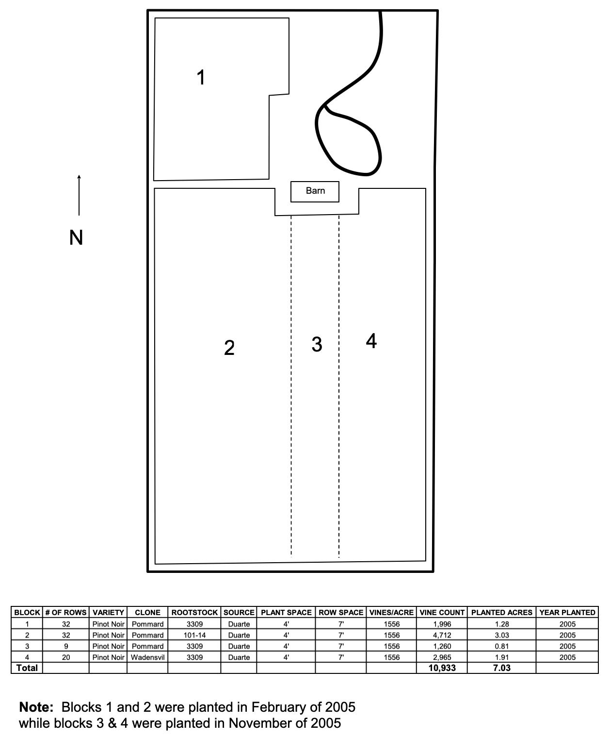
Welcome to Coats and Whitney vineyard: an exceptional and well-established quality vineyard in the heart of the Yamhill-Carlton AVA surrounded by such notable vineyards as Stag Hollow, Savoya, Yamhill, McCrone, and Wahle. Located at the top of Blackburn Road, high on a hill, you will find the exquisite 7.03 acre vineyard planted in 2005 Adjacent to the vineyard is a 3 bedroom & 2 bath manufactured home with a front and back porch totaling 360 degree views A tall shop with RV sized doors offers extensive storage as well as a studio room that could convert to a lab or workshop space, as needed, with its own separate entrance To the south is an "Agricultural Building" lovely enough to spend time in being equipped with a family room, office/bdrm, and modified kitchen area including beautiful built-in cabinetry, refrigerator and dishwasher The Ag barn has both living space and an equipment storage room for farm implements. Barn doors open out to a striking south westerly view. The well house is to the west of the driveway Enjoy sunrises and sunsets from nearly every inch of this 10 acre parcel Call Kendall Bergstrom, Sotheby's Realty, for further details and a private tour.



