17660 Wayside Lane

Page 1

1 7 6 6 0 W A Y S I D E L A N E L A K E O S W E G O , O R 9 7 0 3 4

AN EXTRAORDINARY & RARE OPPORTUNITY IN THE SOUGHT AFTER

SKYLANDS

NEIGHBORHOOD OF LAKE OSWEGO!

Welcome to this fully permitted mid-century home just waiting for someone to purchase as is and then make it their own! Have you ever said to yourself; wouldn’t it be great to find a home in the right location, with a stunning Mt Hood view, fully permitted, gutted and opened up and ready for completion so I can make all of my own design choices with my own contractor? Well, this is it! Rare opportunity to pay for and complete this fully permitted home by year end to enjoy for a lifetime! The current homeowners have invested over $3M in this home including the original home purchase, the architect, design and engineering fees, removal of interior walls, framing, strengthening and rough in fees for mechanical, electrical and plumbing A new metal roof was just installed and the envelope is ready for siding and completion upon buyers choosing With the additional investment of likely $1M, this home represents an opportunity for a new buyer to now make it their own for a completed investment of approx $3 6M Work with your own designer and contractor OR work with the existing designer Betsy Brandenburg of Brandenburg Designs This unique opportunity awaits! (and wont last long )

1 7 6 6 0 W A Y S I D E L A N E

HISTORY

The current owners purchased this home in May of 2021 and proceeded to gather an incredible team to create a vision that would bring to life a fresh floor plan, a new modern luxurious aesthetic and, ultimately, an extraordinary place to call home. The following pages will take you through a visual representation of the current owners vision. Given new circumstances, these owners will not be completing the home in its entirety and are now offering it for sale in its’ current state A new buyer will likely either be a contractor who will continue the built out themselves, or a home owner wishing to purchase the home at $2 6M and investing into the full completion of this home - likely investing an additional $1M on their own resulting in a reflection of their true personal taste.

CURRENT STATE

This Wayside home is ready for interior fit and finish.

Estimated Completion: 10-12 months

Price: $2 35M for Current State of Construction

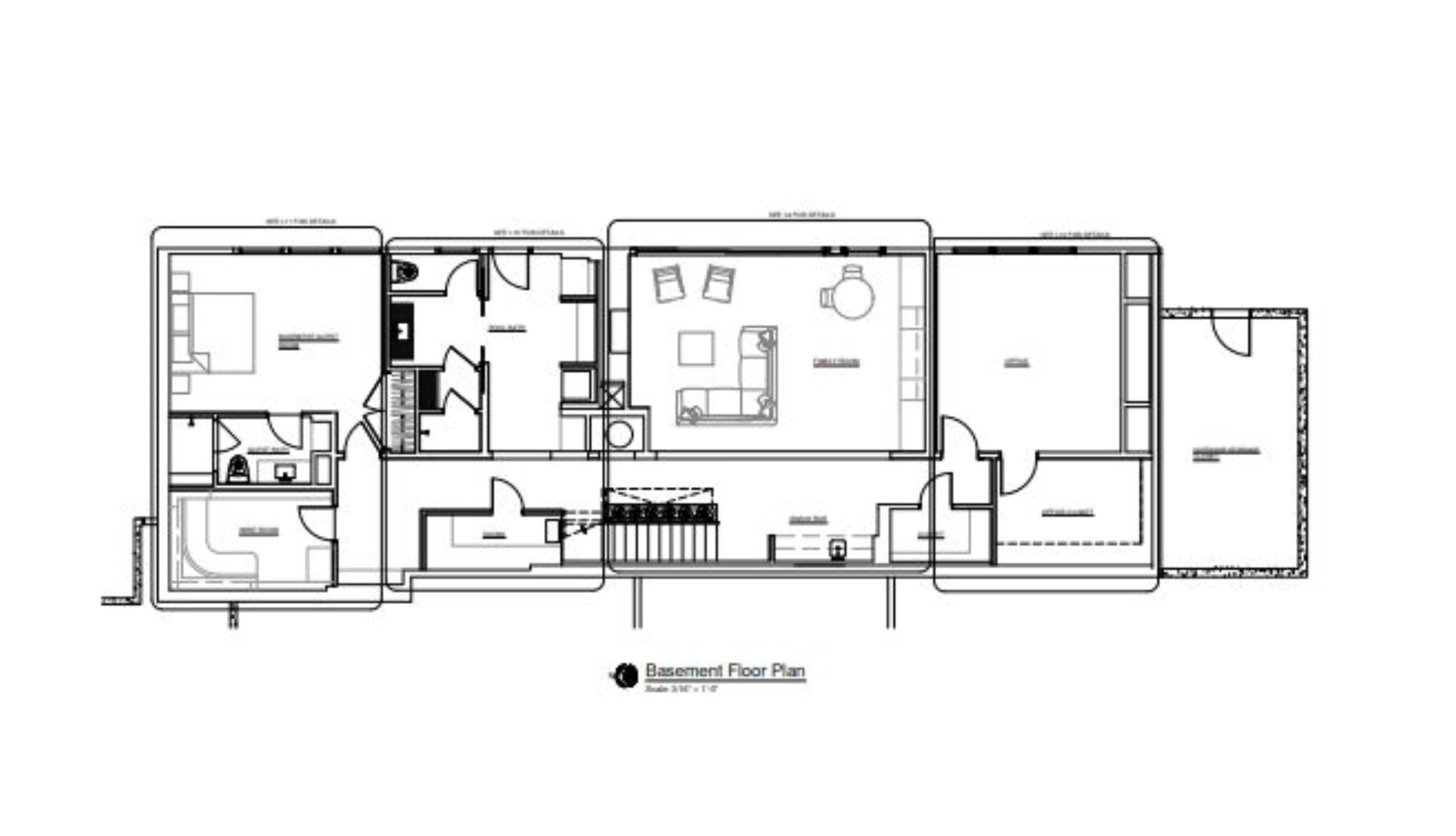
Home Details: 6,000 Sq Ft, 4 ensuite bedrooms, space for caterers kitchen, wine room, gym & sauna

Appraised Complete Value: Sept 2023 $4 75M

Opportunity for significant upside potential while choosing your own interiors with a fully permitted home to make your own!

As of January 2024:

All new structural engineering and interior walls, new roof, new septic tanks and MEP (mechanical, electrical and plumbing) rough ins.

All permits for work done to date are cleared

The home will include all interior and exterior current plans Choose to work with the existing designer or complete to reflect your own individual style

Please call Kendall Bergstrom for a private showing: 503-799-2596.

LANDSCAPE & POOL
FLOOR PLAN

THE VISION

The current owners have collaboratively crafted this striking mid-century modern residence The design is complete, and the choice of its utilization rests entirely with you.

1 7 6 6 0 W A Y S I D E L A N E L A K E O S W E G O , O R KENDALL BERGSTROM 503-799-2596 KENDALLBERGSTROM COM KENDALL BERGSTROM@SOTHEBYSREALTY COM ©2023 Sothebys International Realty Al Rights Reserved The Sothebys Internatonal Realty trademark is icensed and used wth permssion Each SothebysInternatona Reatyofficeisindependentyownedandoperated exceptthoseoperatedbySothebysInternatona Realty Inc TheSothebys Internatona ReatynetworkfulysupportstheprincipesoftheFarHousingActandtheEqua OpportunityAct Thsmaterialbasedupon nformation whichweconsiderreiablebutbecauseithasbeensuppledbythirdparties wecannotrepresentthatitisaccurateorcompleteandshouldnotbereied uponassuchAl offeringsaresubecttoerrorsomissonschanges ncudingpriceorwithdrawa withoutnotice fyourpropertyis istedwtharealestate brokerpleasedsregardItisnotour ntentiontosolcttheofferingsofotherrealestatebrokersWearehappytoworkwiththemandcooperatefuly

Turn static files into dynamic content formats.

Create a flipbook
Issuu converts static files into: digital portfolios, online yearbooks, online catalogs, digital photo albums and more. Sign up and create your flipbook.
17660 Wayside Lane by Kendall Bergstrom Properties - Issuu