
kayomiisabella@live.com




![]()

kayomiisabella@live.com




Entry for Buildner’s Museum of Emotions Contest, 2025
The Museum of Emotions project is about creating a museum with two spaces that evoke a positive and negative emotion. For our architecture studio, we designed this museum in downtown Pullman, WA. In our site, we kept the existing building with a restaurant and repurpose part of it into our design. The inspiration and basis of my design came from my Lamp Study (pg. 05). My goal for this competition submission was to create purposeful ambiguity on the emotions and the architecture. My goal for this museum of emotions board was to successfully communicate the story of inner reflection.



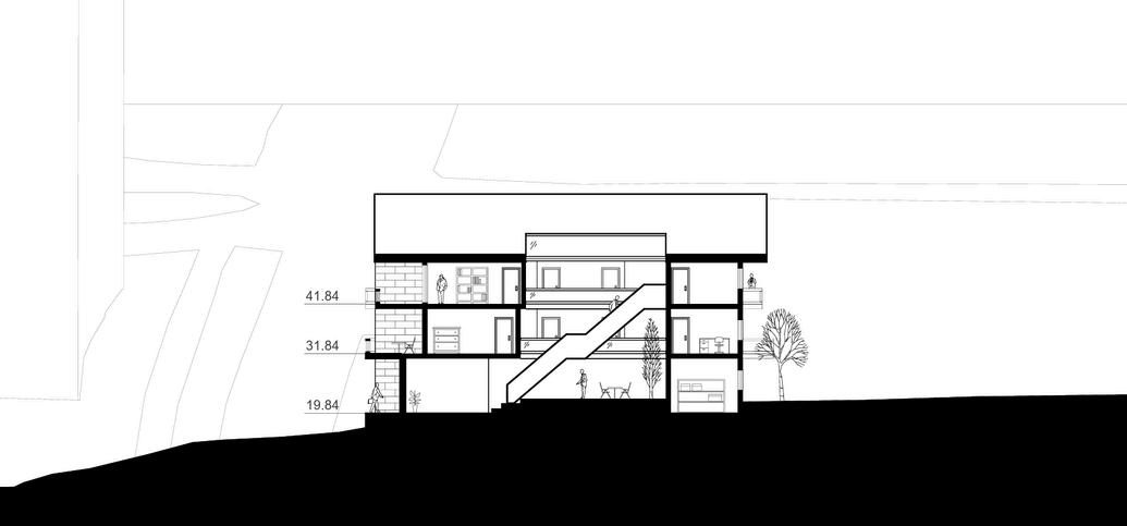
The Museum of Emotions started with a lamp study and deconstruction. I observed and studied a desk lamp by digitally modeling it on Rhino, creating elevations and an axonometric drawing. Then I disassembled the lamp into all its components. Using these components, I created a new piece, an assembly. Seeking an inspirational emotion from the assembly, I found the word vulnerability. This is inspired by not being able to hide from the darkness any longer as its previous form did.
This became my inspiration for one of my emotion spaces in the museum. The other space came from seeking inspiration of what an opposing emotion would be, which was security. Vulnerability as negative, and security as positive. However, as I was reflecting on these emotions, I noticed that vulnerability can often be considered positive, and feeling too secure and stuck can be negative. This became my goal for my design, for visitors to feel too secure that it would cause similar feelings of claustrophobia. To the point they want to escape that space to become vulnerable and into the open air and light.
The section of the assembly became the inspiration for the building design. I used an inverted version of the assembly section and extruded it onto the site, and explored the options with the result.


The Palouse Aquarium is a practice of using existing structures to design something new for the community. My inspiration for designing an aquarium came from the narrative story Statehood, which is told through the perspective of a young boy who had to grow up too soon due to his environment. Aquariums remind me of child-like wonder and exploration, which I believe the character from the story needed. On the site of Pullman, WA, there's no entertainment around the area, only food or amenity spaces and an elementary school.
For the main concept of my design, I researched the Palouse River and studied its patterns through the map. This was the inspiration for the façade and circulation of my design. Another concept I had was using the existing structure of the original building to map the program of the building. To further emphasize this concept and elevate the existing structure, I designed it so the top part of the structure still pokes out, creating a grid roof. The goal for this design was to create curiosity, wonder, and entertainment in this part of Pullman.










This project was based on creating a space that evoked self-reflection and growth. It’s a studio exercise on joinery and how we can create architectural spaces with an emphasis on how elements can come together.






The building is designed with the purpose of efficiency, which reflects the priorities of research students and professors who value productivity and functionality. This building serves as a flexible and comfortable space for individuals to focus on their work while having the necessary amenities for a temporary stay. A couple examples of efficiency in this building includes a study room in each living floor that allows researchers to work right outside their rooms, which reduces distractions and increases focus. Another example is multiple large windows that reduce the need for artificial lights and promotes a healthier and more productive environment. The building has five private rooms for residents, a common lounge, a kitchen, bathrooms, a dining room, and a courtyard.











This building has a hexagonal structure that emphasizes the strength and fostering of community. In nature, beehives are structured around the collective health and happiness of the hive and honeycomb, which are multiple hexagons adjacent to each other. This honeycomb is the inspiration for the hexagon-shaped beehive buildings. Even though they seem separated, all the hexagon sections are connected to encourage interactions between the sections. Through its meeting, lecture, and exhibit spaces, this structure emphasizes bringing people together in order to serve as a vibrant hub that celebrates collaboration and the strength found in the community.







