Roads 101 Engineering

Page 1

Engineering and Corporate Assets: Roads Capital

Organizational Chart

FT (Wages charged to WWW budget)

FTE charged to WWW budget)

kawarthalakes.ca Slide 2
1.00
Manager,
1.00
Asset
1.00
Senior
1.00
Student
(1
Supervisor,
1.00
3.00
Engineering
2.00
(1.00
Supervisor,
1.00
3.00
(1.00
Engineering
3.00
(1.00
Engineering
0.50
Supervisor,
1.00
Senior
Senior
1.00
Engineering
2.00
Engineering Tech (Cont) 0.50
Airport
1.00
Executive
1.00
Administrative
1.00
Director of Engineering & Corporate Assets
FT
Corporate Assets
FT
Management Coordinator
Accounts Clerk
FT
680 hours
student)
Development Engineering
FT Senior Engineering Tech
FT
Tech(s)
FT
FTE charged to WWW budget)
Infrastructure Design & Construction
FT Senior Engineering Tech(s)
FT
FTE charged to WWW budget)
Tech(s)
FT
Tech (Cont)
(Temp)
Technical Services
FT
Engineering Tech 2.00 FT
Engineering Tech (Municipal Drains)
FT
Tech(s)
FT
(Temp)
Manager
Contract
Assistant
FT
Assistant
FT
Engineering
4,320
(6
Students
hours
students)

Who we are

Implementation of Roads Capital Programs are primarily managed in the following two divisions, which includes:

Infrastructure Design & Construction

 Supervisor (1)

 Senior Engineering Tech (3)

 Engineering Tech (3)

 Construction Tech (0.5)seasonal 6 month period

 Students (2)

Technical Services

 Supervisor (1)

 Senior Engineering Tech (2)

 Engineering Tech (2)

 Municipal Drainage Superintendent (1)

 Construction Tech (0.5)seasonal 6 month period

 Students (3)

Slide 3
kawarthalakes.ca

Who we are

In addition, the following Divisions provide support:

Development Engineering

Oversees and manages the implementation of private development, which includes plans of subdivision and development of unopen road allowances. Conducts review of and provides approval for capital design on behalf of the Ministry of Environment, Conservation and Parks.

Corporate Assets

Provides asset management support for roads assets, determines sustainable long-term capital expenditure and funding levels, and develops long-term financial plans and annual capital budgets.

kawarthalakes.ca Slide 4

2019 Capital Roads Program

kawarthalakes.ca Slide 5
Infrastructure Design & Construction  RD1901 – Bridges $ 1,539,000  RD1903 – Urban/Rural Reconstruction $ 8,370,351  RD1904 – Urban/Arterial Resurfacing $ 4,610,133  RD1909 – Sidewalks $ 342,586 $14,862,070 Technical Services  RD1902 – Culverts $ 940,250  RD1905 – Rural Resurfacing $ 3,674,550  RD1906 – Gravel Resurfacing $ 1,403,689  RD1907 – Lifecycle Management $ 1,219,800  RD1914 – Gravel Rehabilitation** $ 1,468,893 $ 8,707,182 Total 2019 Capital Roads Program $23,569,252 ** temporary 3 year program

Road Types

kawarthalakes.ca Slide 6
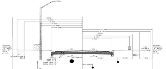
Standard
Urban Road

Types

kawarthalakes.ca Slide 7
Standard
Road
Rural Road
Asphalt Surface

Road Types

Rural Road Standard

Hi-Float Surface

Gravel Surface

kawarthalakes.ca Slide 8

Roads Classifications

Under O.Reg. 239/02 (Minimum Maintenance Standards), highways fall into classes 1-6 based on speed and volume:

AADT means Annual Average Daily Traffic. It is derived from the total volume of vehicular traffic on the road divided by 365 days

kawarthalakes.ca Slide 9
Speed Column 1 Column 2 Column 3 Column 4 Column 5 Column 6 Column 7 Column 8 Average Daily Traffic (number of motor vehicles) 91 - 100 km/h speed limit 81 - 90 km/h speed limit 71 - 80 km/h speed limit 61 - 70 km/h speed limit 51 - 60 km/h speed limit 41 - 50 km/h speed limit 1 - 40 km/h speed limit 53,000 or more 1 1 1 1 1 1 1 23,000 - 52,999 1 1 1 2 2 2 2 AADT 15,000 - 22,999 1 1 2 2 2 3 3 12,000 - 14,999 1 1 2 2 2 3 3 10,000 - 11,999 1 1 2 2 3 3 3 8,000 - 9,999 1 1 2 3 3 3 3 6,000 - 7,999 1 2 2 3 3 4 4 5,000 - 5,999 1 2 2 3 3 4 4 4,000 - 4,999 1 2 3 3 3 4 4 3,000 - 3,999 1 2 3 3 3 4 4 2,000 - 2,999 1 2 3 3 4 5 5 1,000 - 1,999 1 3 3 3 4 5 5 500 - 999 1 3 4 4 4 5 5 200 - 499 1 3 4 4 5 5 6 50 - 199 1 3 4 5 5 6 6 0 - 49 1 3 6 6 6 6 6

Roads Classifications

Based on the provincial and the City’s classification systems, the City’s road network is distributed as follows:

kawarthalakes.ca Slide 10

2016 Roads Needs Assessment

The purpose of a Road Needs Study is to provide an overview of the overall condition of the road system and to provide the municipality with a working tool when budgeting and determining which roads to improve and when.

The assessment of the City’s road inventory is done every 5 years, where roads are prioritized based on condition rating, traffic volume and classification by local, collector and arterial status.

kawarthalakes.ca Slide 11

Asset Management Plan

• 2016 Roads Needs Assessment was incorporated into the 2017 Asset Management Plan.

• In the Asset Management Plan, useful life by road surface assumes lifecycle management interventions occur.

General Useful Lives for Road Surfaces

Road Surface Type

Roads Needs Study: Without Lifecycle Management

Gravel 10 Years

Hi-Float (LCB) 12 Years

Asphalt (HCB) 20 Years

Asset Management Plan: With Lifecycle Management

10 Years*

15 Years

30 Years

*High-volume gravel roads have a 5-to-7-year lifecycle.

kawarthalakes.ca

Slide 12

Asset Management Plan

kawarthalakes.ca Slide 13

Asset Management Plan

kawarthalakes.ca Slide 14
Bridges 10.06% Culverts 1.25% Road Base
Gravel Surface 0.86% Hi-Float Surface 5.45% Asphalt Surface 21.35% Sidewalks 1.57% Distribution of $1.75B Estimated 2019
59.46%
Replacement Cost of Major Road Assets

Long-Term Financial Plan

• Asset Management Plan was incorporated into the LongTerm Financial Plan (2018-2027).

• Long-Term Financial Plan phases in overall sustainable capital replacement and renewal investment over 20182022.

• Long-Term Financial Plan to be updated in 2019; Asset Management Plan in 2021.

kawarthalakes.ca Slide 15

Average Annual Need, Past Funding and Forecasted Expenditure Respecting Major Roads Capital Programs

Average Annual Need (Indexation at 2%/Year)

Past Funding and Forecasted Expenditure

Past Funding and Forecasted Expenditure (One-Time 20182020 Gravel Rehabilitation Program Excluded)

Slide 16 $0 $2,500,000 $5,000,000 $7,500,000 $10,000,000 $12,500,000 $15,000,000 $17,500,000 $20,000,000 $22,500,000 $25,000,000 $27,500,000 2014 2015 2016 2017 2018 2019 2020 2021 2022
kawarthalakes.ca

Lifecycle Management Program

In order to keep the good roads good (and off the capital improvements list), they have to be resurfaced and treated regularly before they become significantly distressed.

The Lifecycle Management Program utilizes interventions such as:

- Crack sealing

- Single surface treatment

- Slurry sealing

- Micro resurfacing

-

Asphalt overlays

- Drainage improvements

kawarthalakes.ca Slide 17

Lifecycle Management Program

kawarthalakes.ca Slide 18
“Keep the Good Roads Good”

Urban/Rural Reconstruction Program

Complete reconstruction of existing roadways to an urban standard, including all removals, trenching, new storm sewer, water main, sanitary sewer construction, followed by the placement of new base material and pavement along with curb and gutter and sidewalk installation.

The program also encompasses the cost for the design , utility relocates and property acquisition.

kawarthalakes.ca Slide 19

Urban/Arterial Resurfacing Program

The resurfacing of arterial roads and urban streets within towns, villages and hamlets with hot mix asphalt pavement to provide safe, assessable, maintainable and sustainable roads.

Projects are prioritized through the asset management plan with a focus on roads associates with high traffic volumes and/or those in a stage of their lifecycle where resurfacing will extend useful life.

kawarthalakes.ca Slide 20

Rural Resurfacing Program

The resurfacing of low-volume rural roads involving the pulverization of existing distressed surface treatment followed by the placement of granular material and the application of a double surface treatment, including base repair, ditching and culvert replacement as needed.

kawarthalakes.ca Slide 21

Gravel Resurfacing Program

Based on the 10-Year Gravel Resurfacing Plan incorporated into the Asset Management Plan.

Summary of 10-Year Gravel Resurfacing Plan (2018-2027)

kawarthalakes.ca Slide 22
Year Estimated Tonnes Estimated Cost (2017$) 2018 104,130 1,448,448 2019 104,170 1,449,005 2020 105,950 1,473,765 2021 104,610 1,455,125 2022 107,640 1,497,272 2023 105,070 1,461,524 2024 100,990 1,404,771 2025 99,790 1,388,079 2026 101,260 1,408,527 2027 101,370 1,410,057 Average 103,498 1,439,657
Lifecycle
AADT Range Quantity (Km) Lifecycle (Years) 0-199 843.2 10.0 200-299 40.8 7.0 300-399 9.2 5.0 ≥ 400 1.8 5.0 Total 895.0 9.8
Distributed
of Gravel Roads

Municipal Class EA Process

Environmental Assessment is a planning and decision making process used to promote environmentally responsible decisions.

The Municipal Class Environmental Assessment process has been approved under the Environmental AssessmentAct and it sets out the process that municipalities follow while planning most sewer, water, road, and transit projects.

kawarthalakes.ca Slide 23

EA Flow Chart

kawarthalakes.ca Slide 24

Municipal Class Environmental Assessment

Project Types

Projects undertaken by municipalities can vary widely in their environmental impact. Consequently, projects are classified into one of four types:

• Schedule A

• Schedule A+

• Schedule B

• Schedule C

25
kawarthalakes.ca Slide

Municipal Class Environmental Assessment Project Types

Schedule A

Schedule A projects are limited in scale, have minimal and predictable environmental effects, and usually follow established best practices. Projects include maintenance and normal operational and repair projects.

Schedule A projects are pre-approved and may proceed without further EA consideration.

kawarthalakes.ca Slide 26

Municipal Class Environmental Assessment

Project Types

Schedule A+

Schedule A+ projects are also pre-approved but have the potential for local impacts. These projects are generally rehabilitating existing facilities.

There is a requirement to notify those directly impacted by the project to encourage discussion of any issues between the proponent and those impacted.

kawarthalakes.ca Slide 27

Municipal Class Environmental Assessment

Project Types

Schedule B

Schedule B projects have the potential for some environmental effects and consultation with affected public and relevant review agencies is mandatory. These projects are generally improvements or minor expansions to existing facilities. For Schedule B projects, the information gathered during the process is documented in a project file. Anyone can appeal the preferred solution if concerns remain unaddressed at the conclusion of the process.

kawarthalakes.ca Slide 28

Municipal Class Environmental Assessment

Project Types

Schedule C Schedule

C projects generally include the construction of new facilities or major expansions to existing facilities and have the potential for significant environmental effects. These projects require notice to the affected public and relevant review agencies and formal public meetings must be held.

kawarthalakes.ca
29
Slide

Municipal Class Environmental Assessment

Project Types

Schedule C

For Schedule C projects, all of the information related to identifying the problem, the evaluation of the alternative solutions considered and the selection of the preferred solution is compiled in an Environmental Study Report. This report is then available for public review for 30 days. Anyone can appeal the preferred solution if concerns remain unaddressed at the conclusion of the process.

kawarthalakes.ca
30
Slide

Municipal Class Environmental Assessment Project Types

A detailed listing of the projects included in each type is included in Appendix 1 of the Municipal Class Environmental Assessment book.

kawarthalakes.ca Slide 31

Questions?

Turn static files into dynamic content formats.

Create a flipbook
Issuu converts static files into: digital portfolios, online yearbooks, online catalogs, digital photo albums and more. Sign up and create your flipbook.
Roads 101 Engineering by kawarthalakes - Issuu