
KATRÍN ÓLAFSDÓTTIR
/01 - BACHELORPROJEKT
/02 - UDVEKSLING SEMESTER
/03 - ADMINISTRATION BYGNING
/04 - BYGNINGSSTATIK
/05 - PRÆFABRIKATION
/06 - LANDSKABSARKITEKTUR OG BYLIV
SELECTED WORKS 2022-2026
BYGNINGSKONSTRUKTØR SKOLEOPGAVER
HØJE TAASTRUP RÅDHUS
Bachelorprojekt er et bæredygtigt træbyggeri i limtræ og CLT, hvor konstruktion, materialitet og arkitektonisk form er tænkt som en samlet helhed.
Projektet har fokus på detaljering, rumlig kvalitet og en klar sammenhæng mellem koncept og konstruktion.






MATTERSCAPES OG ARCHITECTURAL COMMUNICATIONS: MODELLING
Under mit udvekslingssemester arbejdede jeg med materialitet, konstruktion og integration af konceptuelle rumidéer med teknologiske og byggetekniske strategier.
Jeg udviklede både digitale modeller i Rhino og fysiske modeller for at udforske og formidle rumlige idéer.






4.SEMESTERPROJEKT
Semesterprojekt:
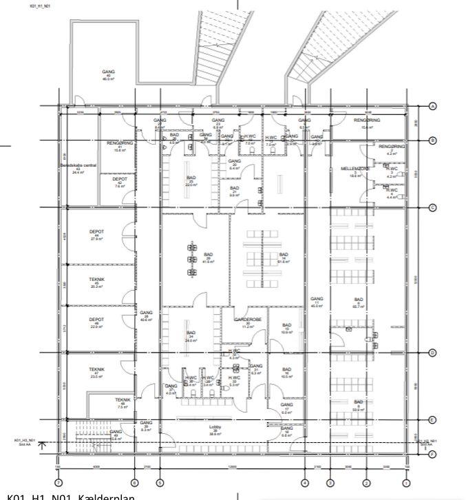
Administrationsbygning med 6 etager, atrium, kælder og kantine.
Fælles projektforslag med fokus på lavt CO₂-aftryk i betonbyggeri og individuelt udbudsprojekt med fokus på fundament.





4.SEMESTER VALGFAG
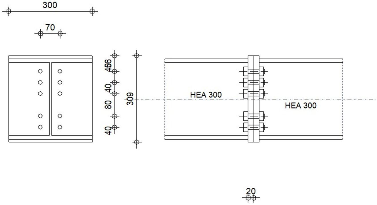
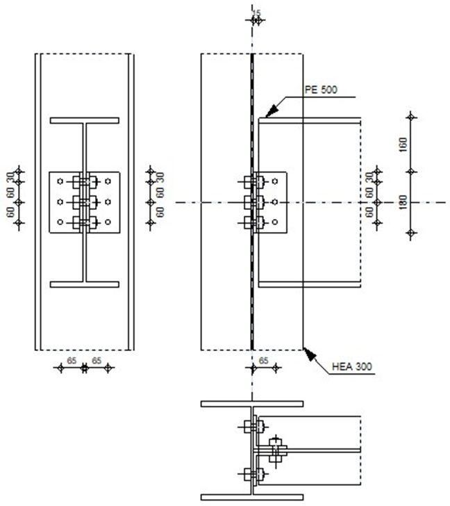
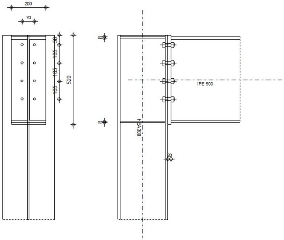
Statiske analyser og beregninger af komplexe bygninger i programmer som FEM design og Robot.
Vind- og stabilitetsanalyser, spændinger og deformationer samt detaljering af stålsamlinger.






3.SEMESTERPROJEKT
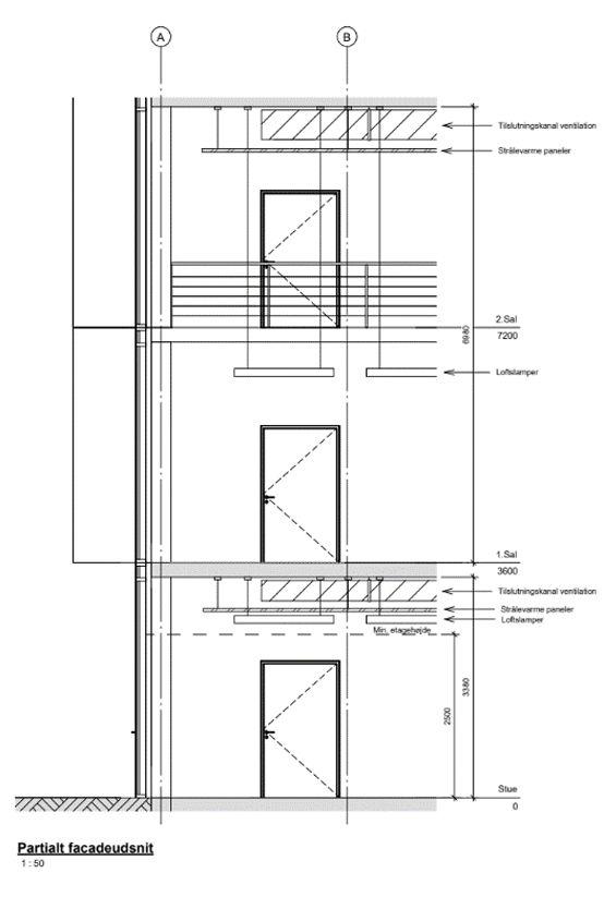
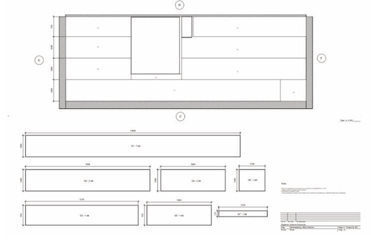
Semesterprojekt: Modulbyggeri, rækkehus i træ.
Fælles projektforslag og individuelt udbudsprojekt med fokus præfabrikation og produktionsfase.






3.SEMESTER VALGFAG
Valgfag i landskabsarkitektur og byliv med fokus på analyse, konceptudvikling og formidling af et landskabsarkitektonisk forslag til et nyt offentligt byrum på Ofelia Plads.




