CONSTRUCTION DOCUMENTS
Kate Rudini
CONTENTS:
selected works
01. NEXT Law Firm LA
Workplace / 2025 / Collaboration: Individual / Interior Design Studio
02. Office Building Chesterson IN
Workplace / 2025 / Collaboration: Individual / Construction Studio
03. The Retreat
Mixed-use / 2025 / Collaboration: Individual / Construction Studio
This separate Construction Documents portfolio was created to highlight my technical skill set beyond conceptual design. It showcases comprehensive CD sets and detailed drawings developed across both interior design studios and construction-focused coursework. By isolating this work, I am able to emphasize my strengths in documentation, detailing, coordination, and constructability. The portfolio demonstrates my ability to translate design intent into clear, buildable drawings while navigating codes, standards, and real-world constraints. This body of work reflects my excecution in the intersection of design and construction and my commitment to precision + clarity.
NEXT -LAW FIRM

DRAWING SHEET INDEX
LOS ANGELES, CA
757 S Alameda St., Suite 400, Los Angeles, CA 90021
DESIGNED BY: KATE RUDINI































https://www.mohawkgroup.com/product/carpet-tile/chromatic-cadence-bt596/555-blueberry-hill
https://www.steelcase.com/eu-en/products/finishes/materials/glass/
https://www.steelcase.com/eu-en/products/finishes/materials/paint/
https://www.steelcase.com/eu-en/products/finishes/materials/paint/
https://www.steelcase.com/eu-en/products/finishes/materials/glass/
https://www.steelcase.com/eu-en/products/finishes/materials/glass/
https://www.mohawkgroup.com/product/carpet-tile/dimensional-fade-gt372/929-wistful-mountain
https://www.steelcase.com/eu-en/products/finishes/materials/glass/
https://www.sherwin-williams.com/homeowners/color/find-and-explore-colors/paintcolors-by-family/SW7004-snowbound
https://www.steelcase.com/eu-en/products/finishes/materials/glass/
https://www.steelcase.com/eu-en/products/finishes/materials/glass/
https://www.steelcase.com/eu-en/products/finishes/materials/glass/
https://www.steelcase.com/eu-en/products/finishes/materials/paint/
https://www.steelcase.com/eu-en/products/finishes/materials/paint/
https://www.steelcase.com/eu-en/products/finishes/materials/paint/
https://www.steelcase.com/eu-en/products/finishes/materials/paint/
https://www.homedepot.com/p/ROPPE-700-Series-White-4-in-x-1-8-in-x-120-ftThermoplastic-Rubber-Wall-Cove-Base-Coil-HC40C74P170/100164026

https://www.steelcase.com/
https://www.steelcase.com/eu-en/products/finishes/materials/metal/
https://www.homedepot.com/p/ROPPE-700-Series-White-4-in-x-1-8-in-x-120-ftThermoplastic-Rubber-Wall-Cove-Base-Coil-HC40C74P170/100164026
https://www.concretenetwork.com/sealers/
https://www.steelcase.com/eu-en/products/finishes/materials/wood-veneer/
https://www.steelcase.com/eu-en/products/finishes/materials/wood-veneer/







R100
R101


1. GENERAL BUILDING INFORMATION
The project consists of a one-story bank building with an approximate total area of 3,440 square feet and a building height of 24 feet.
The structure includes a fully sprinklered system to comply with applicable fire and life safety codes.
Additional areas include:
Unenclosed covered spaces such as the drive-thru canopy, carport, and porches totaling 5,200 square feet.
Total building and uncovered parking area is approximately 5,940 square feet.
2. OCCUPANCY CLASSIFICATIONS
A. Primary Building Use - Business Occupancy (Group B)
The primary function of the building is a bank, classified under Group B (Business) occupancy per the International Building Code (IBC).
This occupancy classification includes, but is not limited to:
Banks and financial institutions
Office spaces for administrative and service-related activities
Client-facing transaction areas
B. Covered Parking & Utility Structures - Group U (Utility/Carport)
The covered parking area (carport) and drive-thru canopy are categorized as Group U (Utility) occupancy.
Per Section 312.1, miscellaneous Group U structures include: Carports
Unenclosed storage areas incidental to a principal occupancy
Group U structures are not considered parking garages or Group S (Storage) unless enclosed and used primarily for vehicle storage.
3. TYPE OF CONSTRUCTION & ALLOWABLE AREA
A. Construction Type
The building is classified as Type II-B (non-combustible construction) per IBC standards.
Type II-B structures feature non-rated structural elements and are composed of steel, concrete, or masonry without fireproofing.
B. Allowable Area Calculation
Per Table 506.2, the allowable area for Group B occupancy is 5,500 square feet.
An area increase is permitted due to frontage exposure per Section 506.3
South side (street frontage): 100 feet
East side (dedicated access easement): 50+ feet
Required minimum public way width: 30 feet
1Frontage Increase Calculation (Equation 5-1) Increase

Final allowable area (including 25% increase for frontage): 6,875 square feet
4. MIXED USE & OCCUPANCY SEPARATION REQUIREMENTS
A. Non-Separated Occupancies (Per Section 508.3)
The bank and covered parking areas do not require fire-rated separation as they are considered non-separated occupancies.
Buildings complying with non-separated occupancy provisions use the most restrictive occupancy group for code compliance.
B. Assembly Areas (Conference & Break Rooms)
Small conference and break rooms within the bank are considered accessory uses and classified under Group B (Business).
Per Section 303.1 exceptions, rooms less than 750 sq. ft. used for assembly purposes and directly accessory to a primary occupancy do not require separate classification.
C. Accessory Occupancies (Per Section 508.2)
Storage rooms (<10% of total area) are classified under Group S-2 (Storage, Low Hazard) but do not require a rated separation.
Mechanical and electrical rooms are classified as Group U (Utility/Misc.) and do not require separation.
Aggregate accessory occupancies cannot exceed 10% of the total building area on the story in which they are located.
5. FIRE PROTECTION SYSTEMS & SPRINKLER REQUIREMENTS
A. Automatic Sprinkler System (Section 903.3)
The entire building is fully sprinklered in compliance with NFPA 13 and local codes.
Automatic sprinkler protection is not required for Group B occupancy but is installed as a life safety enhancement.
B. Draft-Stopping & Concealed Spaces
Raised floor systems, if present, create a concealed space but do not require sprinkler coverage.
Attic and concealed spaces exceeding 1,000 sq. ft. require draftstopping.
Draft-stopping shall be installed in combustible concealed spaces to subdivide areas exceeding 1,000 sq. ft.
Exceptions:
Draft-stopping is not required in buildings with full sprinkler protection.
6. FIRE SEPARATION DISTANCE & EXTERIOR WALL RATINGS
A. Fire Separation & Distance Requirements
Per Table 602, exterior walls require fire resistance based on their distance from property lines.
Walls located more than 30 feet from property lines are not required to have fire-rated protection.
No limits on openings (windows, doors, etc.) if fire separation exceeds 30 feet.
B. Fire Protection for Openings

Exterior openings do not require fire-rated protection unless within close proximity (≤10 feet) to property lines.
7. FIRE RESISTANCE & MATERIAL REQUIREMENTS
A. Construction Materials (Per Table 601 & 602)
Type II-B Construction Ratings:
Primary structural frame: No fire rating required
Exterior bearing walls (if applicable): No fire rating required
Nonbearing exterior walls: No fire rating required
Interior walls and partitions: No fire rating required
B. Concealed Spaces & Additional Fire Safety Provisions
No special concealed space requirements due to the fully sprinklered system.
Fireblocking & draft-stopping will be provided per code where required.
8. SUMMARY OF CODE COMPLIANCE FEATURES
One-story, Type II-B, fully sprinklered bank building
Primary Occupancy: Group B (Business)
Additional Structures: Covered carport (Group U)
Non-Separated Occupancy Classification
No required fire-rated separations between major spaces
Allowable Area (including frontage increase): 6,875 sq. ft.
Fire protection & life safety features fully compliant with CBC & IBC
CONSTRUCTION NOTES
1. GENERAL CONSTRUCTION REQUIREMENTS
REFER TO ALL CONSTRUCTION DOCUMENTS AND SPECIFICATIONS FOR ADDITIONAL REQUIREMENTS.
ALL WOOD COMPONENTS IN CONTACT WITH THE GROUND OR EMBEDDED IN CONCRETE SHALL BE PRESSURE-TREATED OR NATURALLY DURABLE PER IBC REQUIREMENTS.
FASTENERS FOR PRESSURE-TREATED WOOD SHALL BE HOTDIPPED GALVANIZED, STAINLESS STEEL, OR APPROVED NONCORROSIVE MATERIALS.
METAL FLASHINGS SHALL BE NON-CORROSIVE, MINIMUM 26 GAUGE GALVANIZED STEEL, ALUMINUM, OR COPPER.
2. FIRE BLOCKING & DRAFT STOPS
INSTALL FIRE BLOCKING AND DRAFT STOPPING AS REQUIRED BY CODE TO PREVENT THE PASSAGE OF FLAMES AND SMOKE.
LOCATE FIRE BLOCKING AT ALL CONCEALED SPACES, INCLUDING VERTICAL AND HORIZONTAL OPENINGS AT FLOORS, CEILINGS, AND WALLS.
PROVIDE FIRE BLOCKING AROUND VENTS, PIPES, DUCTS, AND AIR OPENINGS WHERE REQUIRED.
MATERIALS USED FOR FIRE BLOCKING SHALL BE NONCOMBUSTIBLE OR FIRE-RATED PER CODE.
3. INSULATION REQUIREMENTS
INSTALL SOUND INSULATION IN ALL DESIGNATED WALLS AS SPECIFIED.
ALL INSULATION SHALL COMPLY WITH ENERGY CODE REQUIREMENTS AND MANUFACTURER’S INSTALLATION GUIDELINES.
4. WOOD FRAMING & WALL CONSTRUCTION
REFER TO STRUCTURAL PLANS FOR FRAMING DETAILS, BRACING, AND FASTENING REQUIREMENTS.
STUD SPACING: PER STRUCTURAL DRAWINGS OR MINIMUM CODE REQUIREMENTS.

NOGGING AND BLOCKING: PROVIDE AS REQUIRED FOR STRUCTURAL STABILITY AND INSTALLATION OF WALLMOUNTED COMPONENTS.
A. BUILDING WRAP & WEATHER BARRIERS
INSTALL WEATHER-RESISTIVE BARRIER (WRB) AS REQUIRED BY CODE AND PER MANUFACTURER S RECOMMENDATIONS.
SEAL ALL JOINTS, CORNERS, AND OPENINGS IN WEATHER BARRIER WITH COMPATIBLE TAPE OR SEALANT.
INSTALL FLASHING AT ALL WINDOW AND DOOR PENETRATIONS.
5. WINDOWS, GLAZING & DOORS
ALL EXTERIOR GLAZING SHALL BE SAFETY GLAZING WHERE REQUIRED BY CODE.
INSTALL WINDOWS AND DOORS PER MANUFACTURER S SPECIFICATIONS.
PROVIDE SEALANT AND WEATHERPROOFING AT ALL WINDOW AND DOOR OPENINGS.
INSTALL FIRE-RATED GLAZING WHERE REQUIRED PER CODE.
6. ROOF AND CEILING FRAMING
INSTALL ROOF SHEATHING AS SPECIFIED IN STRUCTURAL PLANS.
PROVIDE BLOCKING FOR ATTACHMENT OF ROOF COMPONENTS.
SECURE CEILING FRAMING TO RESIST DEFLECTION AND MOVEMENT.
A. ROOF TRUSSES
INSTALL PER ENGINEERED SHOP DRAWINGS.
PROVIDE ADDITIONAL BLOCKING WHERE TRUSSES MEET WALL PLATES.
7. WATERPROOFING & SEALANTS
PROVIDE SEALANT AT ALL PENETRATIONS, FLASHINGS, AND TRANSITIONS.
INSTALL WATERPROOF MEMBRANES AT DESIGNATED LOCATIONS PER SPECIFICATIONS.
8. FOUNDATION REQUIREMENTS
REFER TO STRUCTURAL DRAWINGS FOR FOUNDATION DETAILS.
SLAB THICKNESS: PER STRUCTURAL ENGINEER’S SPECIFICATIONS.
SOIL PREPARATION: EXCAVATE AND PREPARE SUBGRADE PER GEOTECHNICAL RECOMMENDATIONS.
PROVIDE VAPOR BARRIER UNDER ALL SLAB-ON-GRADE FOUNDATIONS.
FOOTINGS TO BE PLACED ON UNDISTURBED, COMPACTED SOIL OR ENGINEERED FILL.
9. TERMITE CONTROL
OWNER TO HIRE PROFESSIONAL TERMITE CONTROL SERVICE.
CONTRACTOR TO COORDINATE WITH SERVICE PROVIDER FOR INITIAL AND FINAL CHEMICAL APPLICATIONS.
APPLY TERMITE TREATMENT AT ALL FOUNDATIONS, SLABS, AND WOOD COMPONENTS IN CONTACT WITH THE GROUND.
10. SITE PLAN NOTES
REFER TO CIVIL AND SITE PLANS FOR ADDITIONAL REQUIREMENTS.
CONTRACTOR SHALL NOTIFY LOCAL AUTHORITIES IF HAZARDOUS MATERIALS OR UNDERGROUND STRUCTURES ARE ENCOUNTERED.
ALL EXCAVATION SHALL COMPLY WITH OSHA SAFETY REQUIREMENTS.
STORMWATER MANAGEMENT: CONTRACTOR SHALL COMPLY WITH LOCAL STORMWATER CONTROL REGULATIONS AND EROSION PREVENTION MEASURES.
FINAL GRADING SHALL PROVIDE POSITIVE DRAINAGE AWAY FROM THE STRUCTURE.






















































































































1. GENERAL REQUIREMENTS
CONTRACTOR SHALL REVIEW ALL SITE CONDITIONS PRIOR TO COMMENCEMENT OF LANDSCAPE WORK AND REPORT ANY DISCREPANCIES OR UNFORESEEN CONDITIONS TO THE OWNER’S REPRESENTATIVE BEFORE PROCEEDING.
CONTRACTOR IS RESPONSIBLE FOR LOCATING ALL UNDERGROUND UTILITIES BEFORE EXCAVATION OR PLANT INSTALLATION.
ALL PLANT MATERIAL SHALL BE SOURCED FROM APPROVED NURSERIES AND MEET OR EXCEED ANSI Z60.1 STANDARDS. A SOURCE LIST FOR PLANT MATERIAL SHALL BE PROVIDED TO THE OWNER S REPRESENTATIVE PRIOR TO PROCUREMENT.
2. SOIL PREPARATION & AMENDMENTS
CONTRACTOR SHALL PERFORM SOIL TESTING TO DETERMINE NECESSARY AMENDMENTS FOR OPTIMAL PLANT GROWTH.
PLANTING AREAS SHALL BE TILLED AND LOOSENED TO A DEPTH OF AT LEAST 12 INCHES BEFORE INSTALLATION.
ALL BACKFILL MIXES SHALL BE PREPARED PER SPECIFICATIONS, INCORPORATING ORGANIC MATTER AND NUTRIENTS AS REQUIRED.
FERTILIZER AND SOIL CONDITIONERS SHALL BE APPLIED PER SOIL ANALYSIS RECOMMENDATIONS.
3. PLANT INSTALLATION & SPACING
TREES AND SHRUBS SHALL BE POSITIONED PER LANDSCAPE PLANS AND VERIFIED ON-SITE BEFORE FINAL INSTALLATION.
TREES SHALL BE INSTALLED SO THAT THE ROOT FLARE IS VISIBLE AT GRADE AND NOT BURIED.
SPACING FOR ALL PLANT MATERIALS SHALL BE AS SHOWN ON PLANS, WITH NO ADJUSTMENTS WITHOUT PRIOR APPROVAL.
ROOT BALLS SHALL BE PLACED ON UNDISTURBED OR COMPACTED SOIL TO PREVENT SETTLING.
4. MULCHING & WATERING
ALL PLANTING BEDS SHALL RECEIVE A MINIMUM OF 3 INCHES OF SPECIFIED MULCH MATERIAL.
MULCH SHALL BE KEPT AT LEAST 3 INCHES AWAY FROM TREE TRUNKS TO PREVENT ROT.
A PERMANENT IRRIGATION SYSTEM SHALL BE INSTALLED TO SUPPORT ESTABLISHMENT OF ALL PLANTINGS.
CONTRACTOR SHALL BE RESPONSIBLE FOR INITIAL WATERING AND MAINTENANCE UNTIL FINAL ACCEPTANCE.
5. MAINTENANCE & WARRANTY
CONTRACTOR SHALL GUARANTEE ALL PLANT MATERIALS FOR A PERIOD OF ONE YEAR FROM FINAL ACCEPTANCE.
ANY DEAD OR DECLINING PLANTS DURING THE WARRANTY PERIOD SHALL BE REPLACED AT NO ADDITIONAL COST TO OWNER.
LANDSCAPE WORK SHALL BE INSPECTED 30 DAYS PRIOR TO FINAL COMPLETION TO ENSURE COMPLIANCE.
ALL DISTURBED AREAS SHALL BE RESTORED TO THEIR ORIGINAL CONDITION AFTER WORK COMPLETION.
GENERAL IRRIGATION NOTES
1. GENERAL REQUIREMENTS
ALL IRRIGATION WORK SHALL BE INSTALLED PER MANUFACTURER’S SPECIFICATIONS AND LOCAL CODE REQUIREMENTS.
CONTRACTOR SHALL COORDINATE WITH OTHER TRADES TO AVOID INTERFERENCES BEFORE INSTALLATION.
IRRIGATION MATERIALS, INCLUDING PIPING, SPRINKLERS, AND CONTROLLERS, SHALL BE SUPPLIED BY THE CONTRACTOR UNLESS OTHERWISE NOTED.
SYSTEM SHALL BE PRESSURE TESTED TO VERIFY PERFORMANCE BEFORE FINAL ACCEPTANCE.
2. PIPE INSTALLATION
MAINLINES SHALL BE INSTALLED WITH A MINIMUM COVER OF 18 INCHES (CLASS 200 PVC UNLESS SPECIFIED OTHERWISE).
LATERAL LINES SHALL HAVE A MINIMUM COVER OF 12 INCHES.
ALL PIPING SHALL BE INSTALLED AS PER MANUFACTURER’S RECOMMENDATIONS AND PLAN DETAILS.
ROCKS, BOULDERS, OR OTHER OBSTRUCTIONS ENCOUNTERED DURING INSTALLATION SHALL BE REMOVED OR REPORTED FOR RESOLUTION.
3. SPRINKLER HEADS & COVERAGE
SPRINKLER HEADS SHALL BE INSTALLED TO ENSURE 100% HEAD-TO-HEAD COVERAGE.
SPRINKLER TYPES SHALL BE SELECTED BASED ON PLANTING REQUIREMENTS AND PRESSURE RATINGS.
LOW-PRESSURE SPRAY HEADS SHALL BE USED WHERE REQUIRED TO AVOID OVERSPRAY.
ALL SPRINKLER HEADS SHALL BE INSTALLED PER DETAILS ON PLANS.
4. VALVES, CONTROLS & ELECTRICAL CONNECTIONS
IRRIGATION CONTROL SYSTEMS SHALL BE LOCATED IN ACCESSIBLE, DESIGNATED AREAS PER PLANS.
ALL ELECTRICAL CONNECTIONS SHALL BE WEATHERPROOF AND INSTALLED IN JUNCTION BOXES AS REQUIRED.
WIRING SHALL BE PROTECTED IN PVC CONDUIT AND LABELED FOR EASY IDENTIFICATION.
5. TESTING & COMMISSIONING
CONTRACTOR SHALL TEST AND ADJUST IRRIGATION SYSTEM TO ENSURE UNIFORM WATER DISTRIBUTION.
A PRESSURE TEST SHALL BE CONDUCTED BEFORE FINAL APPROVAL TO VERIFY SYSTEM INTEGRITY.
SYSTEM OPERATION SHALL BE DEMONSTRATED TO OWNER UPON COMPLETION.
6. WARRANTY & FINAL ACCEPTANCE CONTRACTOR SHALL PROVIDE A ONE-YEAR WARRANTY ON ALL IRRIGATION COMPONENTS.
FINAL INSPECTION SHALL BE COMPLETED PRIOR TO SUBSTANTIAL COMPLETION.
AS-BUILT IRRIGATION DRAWINGS SHALL BE PROVIDED TO OWNER AT THE CONCLUSION OF WORK.




1.0 CODES & STANDARDS
1.1 ALL STRUCTURAL WORK SHALL COMPLY WITH THE REQUIREMENTS OF THE BUILDING CODE REFERENCED BY THE GOVERNING AUTHORITY, ALONG WITH ALL APPLICABLE CODES, ORDINANCES, AND REGULATIONS.
1.2 STRUCTURAL DESIGN SHALL BE IN ACCORDANCE WITH:
ACI 318 – BUILDING CODE REQUIREMENTS FOR REINFORCED CONCRETE
AISC STEEL CONSTRUCTION MANUAL – LATEST EDITION
AWS D1.1 – STRUCTURAL WELDING CODE
IBC (LATEST EDITION) – INTERNATIONAL BUILDING CODE
1.3 THESE STRUCTURAL DOCUMENTS ARE PART OF THE OVERALL CONSTRUCTION DOCUMENT SET AND MUST BE REVIEWED IN CONJUNCTION WITH ARCHITECTURAL, MECHANICAL, AND OTHER DISCIPLINES.
1.4 DO NOT SCALE DRAWINGS. DIMENSIONS SHALL BE VERIFIED FROM SITE CONDITIONS OR COORDINATED WITH ARCHITECTURAL DRAWINGS.
2.0 CONTRACTOR RESPONSIBILITIES & COORDINATION
2.1 THE CONTRACTOR SHALL COORDINATE WITH THE DESIGN TEAM TO RESOLVE ANY DISCREPANCIES OR CONFLICTS BEFORE INITIATING WORK.
2.2 ALL DIMENSIONS AND ELEVATIONS MUST BE FIELD VERIFIED PRIOR TO MATERIAL FABRICATION OR INSTALLATION.
2.3 CONTRACTOR SHALL VISIT THE SITE PRIOR TO COMMENCEMENT OF WORK TO VERIFY EXISTING CONDITIONS. ANY DISCREPANCIES SHALL BE REPORTED TO THE OWNER OR ENGINEER IMMEDIATELY.
2.4 THE CONTRACTOR IS RESPONSIBLE FOR THE PROTECTION OF ALL STRUCTURAL COMPONENTS DURING CONSTRUCTION, INCLUDING BRACING OF ELEMENTS TO ENSURE STABILITY UNTIL FINAL LOAD PATHS ARE ESTABLISHED.
2.5 ALL PENETRATIONS THROUGH STRUCTURAL ELEMENTS MUST BE REVIEWED AND APPROVED BY THE STRUCTURAL ENGINEER BEFORE PROCEEDING.
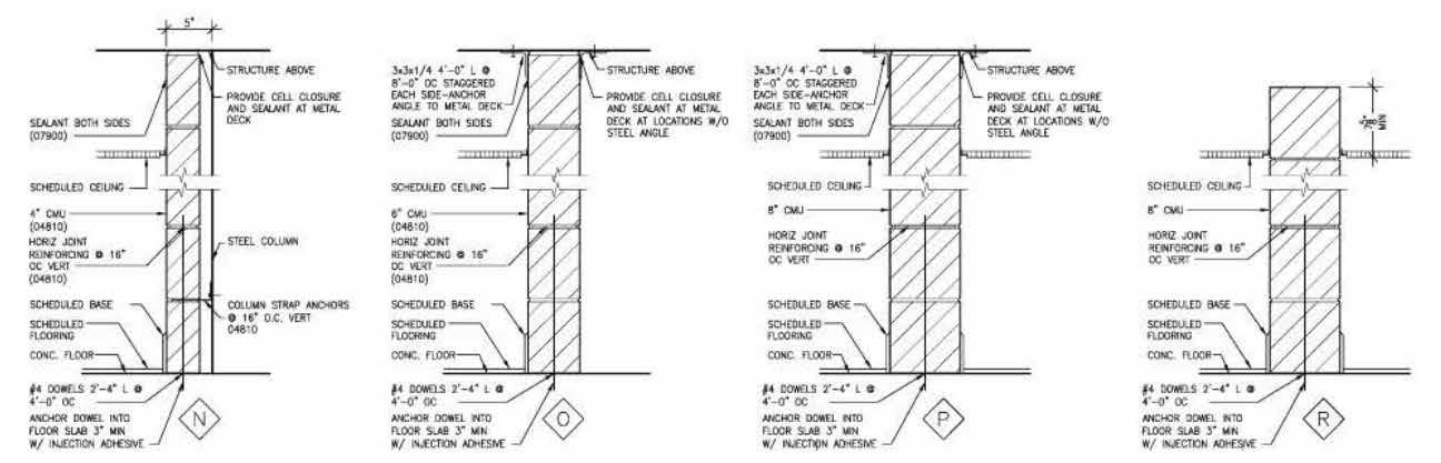
3.0 CONCRETE & MASONRY REQUIREMENTS
3.1 CONCRETE WORK SHALL CONFORM TO ACI 301 AND BE TESTED TO ENSURE MINIMUM COMPRESSIVE STRENGTHS AS FOLLOWS:
FOUNDATIONS: 3,000 PSI
SLABS-ON-GRADE: 4,000 PSI
STRUCTURAL COLUMNS & BEAMS: 4,000 PSI
3.2 ALL CONCRETE MIX DESIGNS SHALL BE REVIEWED AND APPROVED BY THE ENGINEER PRIOR TO PLACEMENT.
3.3 CONTRACTOR SHALL PROVIDE EXPANSION JOINTS AT LOCATIONS SPECIFIED IN THE STRUCTURAL DRAWINGS.
3.4 ALL FORMS SHALL BE REMOVED ONLY AFTER THE CONCRETE HAS ACHIEVED THE SPECIFIED DESIGN STRENGTH.
3.5 NO ALUMINUM MATERIALS SHALL COME INTO CONTACT WITH WET CONCRETE TO PREVENT ADVERSE REACTIONS.
4.0 REINFORCEMENT
4.1 ALL REINFORCING STEEL SHALL MEET ASTM A615 GRADE 60 REQUIREMENTS UNLESS NOTED OTHERWISE.
4.2 MINIMUM CONCRETE COVER REQUIREMENTS FOR REBAR SHALL BE AS FOLLOWS:
FOOTINGS: 3”
SLABS ON GRADE: 1.5”
COLUMNS & BEAMS: 2”
EXPOSED SURFACES: 1.5”
4.3 ALL STEEL SHALL BE CLEAN, FREE OF RUST, AND PROPERLY TIED AND SUPPORTED BEFORE CONCRETE PLACEMENT.
4.4 CONTRACTOR SHALL COORDINATE WITH ENGINEER FOR ANY REQUIRED SHOP DRAWINGS OR DETAIL MODIFICATIONS.
5.0 STRUCTURAL STEEL & DECKING
5.1 ALL STRUCTURAL STEEL COMPONENTS SHALL CONFORM TO THE FOLLOWING STANDARDS:
WIDE-FLANGE BEAMS & COLUMNS: ASTM A992 GRADE 50
ANGLES, CHANNELS, & PLATES: ASTM A36
HIGH-STRENGTH BOLTS, NUTS, & WASHERS: ASTM A325 OR A490
5.2 STEEL FLOOR & ROOF DECK SHALL BE INSTALLED PER MANUFACTURER’S SPECIFICATIONS AND WELDED WITH A MINIMUM OF TWO CONTINUOUS STITCH WELDS.
5.3 OPEN WEB STEEL JOISTS SHALL BE DESIGNED PER SJI LOAD TABLES AND SHALL MEET ALL APPLICABLE LOAD AND DEFLECTION CRITERIA.
5.4 ALL WELDING SHALL BE PERFORMED BY AWS-CERTIFIED WELDERS AND INSPECTED BY A QUALIFIED TESTING AGENCY WHERE REQUIRED.
5.5 ALL BOLTED CONNECTIONS SHALL BE TIGHTENED TO SPECIFIED TORQUE VALUES USING PRE-TENSIONING METHODS.
6.0 DESIGN CRITERIA
6.1 THE STRUCTURE IS DESIGNED BASED ON THE FOLLOWING LOADING CRITERIA:
FLOOR LIVE LOAD: 100 PSF
ROOF LIVE LOAD: 20 PSF
WIND LOAD: PER ASCE 7-16
SEISMIC DESIGN CATEGORY: AS DETERMINED BY LOCAL CODE
6.2 THE DESIGN CONSIDERS REGIONAL SNOW LOADS AND ENVIRONMENTAL CONDITIONS BASED ON CODE REQUIREMENTS.
7.0 MISCELLANEOUS STRUCTURAL COMPONENTS
7.1 ALL EMBEDDED ITEMS, SUCH AS ANCHOR BOLTS AND CONNECTION PLATES, SHALL BE POSITIONED PRIOR TO CONCRETE PLACEMENT.
7.2 NO FIELD MODIFICATIONS TO STRUCTURAL ELEMENTS SHALL BE MADE WITHOUT PRIOR APPROVAL FROM THE STRUCTURAL ENGINEER.
7.3 CONTRACTOR SHALL VERIFY ALL ANCHOR POINTS FOR MEP AND ARCHITECTURAL SYSTEMS TO ENSURE THEY DO NOT COMPROMISE STRUCTURAL COMPONENTS.
7.4 ANY UNFORESEEN CONDITIONS AFFECTING STRUCTURAL STABILITY SHALL BE IMMEDIATELY REPORTED TO THE ENGINEER.








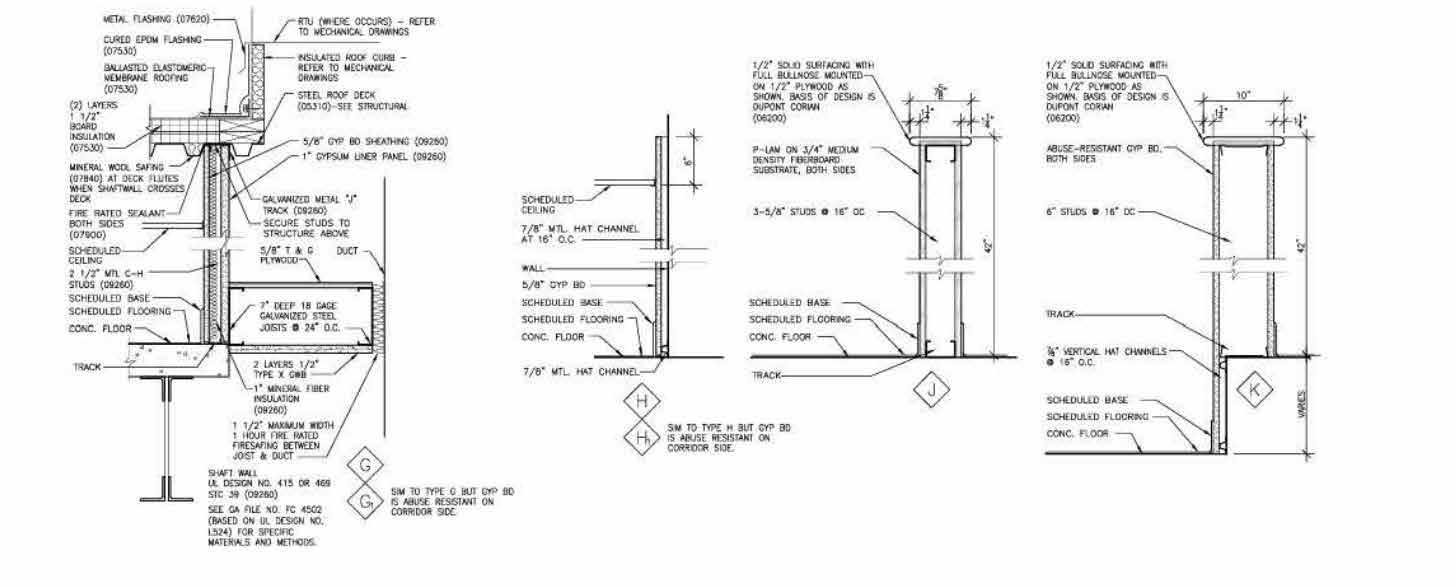
BOARD OVER 1-5/8 METAL STUDS, EXTENDING 6 ABOVE THE CEILING.
STUDS SHALL BE CLIPPED TO STRUCTURAL FRAMING AS REQUIRED FOR STABILITY.
FIRE-RATED CONSTRUCTION REQUIREMENTS:
ROOMS 111 AND 116 SHALL HAVE 1-HOUR FIRE-RATED PARTITIONS EXTENDING FULL HEIGHT.
DIMENSION NOTES
1. GENERAL DIMENSIONING REQUIREMENTS
ALL DIMENSIONS ARE TO BE TAKEN FROM ONE OF THE FOLLOWING REFERENCE POINTS: FINISHED FACE OF DRYWALL STRUCTURAL CENTERLINES
FACE OF MASONRY OR CONCRETE (UNLESS NOTED OTHERWISE)
REFER TO INTERIOR ELEVATIONS, BUILDING SECTIONS, AND DETAILS FOR HEIGHTS OF OPENINGS, COUNTERS, SHELVING, AND OTHER BUILT-IN FEATURES.
DO NOT SCALE DRAWINGS. IF DIMENSIONAL DISCREPANCIES EXIST, THE CONTRACTOR SHALL OBTAIN CLARIFICATION FROM THE ARCHITECT BEFORE PROCEEDING WITH WORK.
ARCHITECTURAL DIMENSIONS TAKE PRECEDENCE OVER STRUCTURAL DIMENSIONS UNLESS NOTED OTHERWISE.
REFER TO WALL SECTIONS AND PLAN NOTES FOR INFORMATION ON WALL AND FURRING THICKNESSES.
2. WALL & DOOR FRAME INSTALLATION
ADA COMPLIANCE:
ALL DOORS SHALL HAVE A MINIMUM OF 18 CLEARANCE FROM THE LATCH SIDE AT PERPENDICULAR WALLS ON THE PULL SIDE.
ANY CONFLICTS SHALL BE REVIEWED WITH THE ARCHITECT BEFORE INSTALLATION.
THICKENED OR FURRED WALL REQUIREMENTS:
ALL PARTITIONS CONTAINING PLUMBING, ELECTRICAL PANELS, OR ROOF DRAIN LEADERS SHALL BE FURRED OUT OR THICKENED AS NECESSARY.
REFER TO ENGINEERING DRAWINGS FOR ADDITIONAL REQUIREMENTS.
NON-MASONRY INTERIOR WALLS SHALL BE CONSTRUCTED AS FOLLOWS:
3-5/8 METAL STUDS @ 16 O.C.
5/8 DRYWALL ON EACH SIDE, U.N.O. (Unless Noted Otherwise)
MECHANICAL ELECTRICAL PLUMBING (MEP) NOTES
1. GENERAL REQUIREMENTS
THE CONTRACTOR(S) SHALL BE RESPONSIBLE FOR THE DESIGN, INSTALLATION, AND COORDINATION OF MECHANICAL, ELECTRICAL, AND PLUMBING (MEP) SYSTEMS.
PRIOR TO INSTALLATION, THE CONTRACTOR SHALL EVALUATE EXISTING CONDITIONS AND COORDINATE WITH ARCHITECTURAL, STRUCTURAL, AND OTHER DISCIPLINES.
ALL TIE-INS TO EXISTING UTILITY SYSTEMS SHALL BE PERFORMED IN COMPLIANCE WITH LOCAL CODES AND REGULATIONS.
2. PROTECTION & COORDINATION
CONTRACTOR(S) SHALL PROTECT ALL EXISTING UTILITIES AND SERVICES TO PREVENT DISRUPTION TO OPERATIONS.
ALL EXISTING SYSTEMS THAT REMAIN IN OPERATION SHALL BE MAINTAINED IN FUNCTIONAL CONDITION THROUGHOUT CONSTRUCTION.
SERVICE SHUTDOWNS & UTILITY OUTAGES:
CONTRACTOR SHALL COORDINATE ALL REQUIRED SHUTDOWNS WITH THE OWNER.
A MINIMUM OF 2 DAYS NOTICE SHALL BE PROVIDED FOR ANY SERVICE DISRUPTIONS.






































































































































































































































































1
1
1






















NOT ALL GAS, POWER, OR TELEPHONE LINES, WHETHER ABOVE OR BELOW GROUND, HAVE BEEN SHOWN ON THE DRAWINGS. ANY UNDERGROUND INFORMATION SHOWN ON THE DRAWINGS HAS BEEN OBTAINED FROM THE BEST AVAILABLE INFORMATION AND IS GIVEN FOR THE CONTRACTOR S BENEFIT. THE CONTRACTOR SHALL ASSUME ALL RESPONSIBILITY FOR PROTECTING ALL UTILITIES IN HIS WORK AREA WHETHER SHOWN OR NOT, AND MUST REALIZE THAT THE ACTUAL LOCATION OF THE UTILITIES MAY BE DIFFERENT FROM THAT SHOWN ON THE DRAWINGS. ALL EXISTING UTILITIES ENCOUNTERED IN THE WORK, WHETHER IN PUBLIC RIGHTS OF WAY OR ON PRIVATE PROPERTY, SHALL BE THE CONTRACTOR’S RESPONSIBILITY TO MAINTAIN IN SERVICE ANY UTILITIES WHICH CANNOT BE REMOVED DURING CONSTRUCTION WITHOUT UNDUE INTERRUPTION TO SERVICE MAY BE REMOVED AND REPLACED BY THE CONTRACTOR WITH THE PERMISSION OF THE UTILITY, IF MINOR CONFLICTS ARISE THE CONTRACTOR MAY SHIFT THE PROPOSED LOCATION OF THE INSTALLATION OF THE WORK. BEFORE WORKING ON OR AROUND UTILITIES, THE APPLICABLE UTILITY COMPANY SHALL BE NOTIFIED BY THE CONTRACTOR.
SAFETY PROVISIONS FOR THE WORK SHALL BE IN FULL COMPLIANCE WITH ALL APPLICABLE RULES AND REGULATIONS OF THE INDIANA OSHA AND ANY OTHER APPLICABLE STATE OR FEDERAL AGENCY HAVING JURISDICTION. IN ACCORDANCE WITH GENERALLY ACCEPTED CONSTRUCTION PRACTICES, THE CONTRACTOR WILL BE SOLELY AND COMPLETELY RESPONSIBLE FOR CONDITIONS OF THE JOB SITE, INCLUDING SAFETY OF ALL PERSONS AND PROPERTY DURING PERFORMANCE OF THE WORK. CONTRACTOR SHALL AT MINIMUM, PROVIDE TRAFFIC CONTROL AS REQUIRED TO SAFELY PROTECT THE GENERAL PUBLIC, THE CONTRACTOR S WORK FORCES AND THE WORK. TRAFFIC CONTROL SHALL CONFORM TO THE REQUIREMENTS OF THE LATEST EDITION OF THE MANUAL ON UNIFORM TRAFFIC CONTROL DEVICES FOR STREETS AND HIGHWAYS, AND THE INDIANA DEPARTMENT OF TRANSPORTATION STANDARD SPECIFICATIONS, SPECIAL PROVISIONS, STANDARD DETAILS AND GENERAL INSTRUCTIONS TO FIELD EMPLOYEES. THE REQUIREMENT WILL APPLY CONTINUOUSLY AND WILL NOT BE LIMITED TO NORMAL WORKING HOURS. THE OFFICE OF THE OWNER AND/OR ENGINEER TO CONDUCT CONSTRUCTION SITE REVIEW OF THE CONTRACTOR S WORK AT INSIST INTERVALS AND TO VERIFY COMPLIANCE WITH THE ADEQUACY OF THE CONTRACTOR S SAFETY MEASURES, IN, ON OR NEAR THE CONSTRUCTION SITE. CONTRACTOR WILL BE RESPONSIBLE FOR PROVIDING AND MAINTAINING ALL BARRICADES, FENCES, WARNING DEVICES, FLASHING LIGHTS, TEMPORARY WALKWAYS, AND TRAFFIC CONTROL DURING CONSTRUCTION. CONTRACTOR TO COMPLY WITH ALL OSHA REGULATIONS, REQUIREMENTS, SAFETY MEETING REQUIREMENTS, AND ANY AGENCY REQUIREMENTS FOR TRAFFIC CONTROL AND SAFETY PRECAUTIONS, THERE WILL BE NO SEPARATE OR ADDITIONAL PAYMENT FOR THIS WORK.
WHERE PROPERTY MARKERS, SECTION CORNERS, SURVEY MARKS OR BENCHMARKS, SUCH AS STONES, PIPES, OR OTHER SUCH MONUMENTS ARE ENCOUNTERED THAT CONFLICT WITH THE WORK, THE ENGINEER SHALL BE NOTIFIED BEFORE THEY ARE DISTURBED. THE MARKERS SHALL BE PROTECTED AFTER THE OWNER, ENGINEER, AND AUTHORIZED SURVEYOR OR AGENT HAS WITNESSED OR REFERENCED THEIR LOCATIONS. ALL MATERIALS DENOTED “SALVAGED” SHALL BE STORED AND PROTECTED AT THE SITE FOR THE OWNER TO COLLECT OR FOR THE CONTRACTOR TO RE-USE AS INDICATED. THERE SHALL BE NO CHANGES WITHOUT WRITTEN APPROVAL OF ENGINEER. PLANS AND SPECIFICATIONS REFERENCE ARCHITECT, ENGINEER AND LANDSCAPE ARCHITECT INTERCHANGEABLY THROUGHOUT.
THE CONTRACTOR SHALL DEMOLISH AND REMOVE FROM THE SITE ALL MATERIALS INDICATED ON THE PLAN. GENERALLY, DEMOLITION AREAS AND FACILITIES ARE INDICATED WITH BOLD LINES AND/OR SHADED AREAS. DISPOSAL OF SITE MATERIALS SHALL BE IN ACCORDANCE WITH APPLICABLE STATE AND FEDERAL GUIDELINES. THE CONTRACTOR IS RESPONSIBLE FOR THE PROTECTION OF ALL EXISTING FEATURES WHICH LIE ALONG THE PERIMETER OF THE SITE. THESE FEATURES INCLUDE, BUT ARE NOT LIMITED TO: BUILDINGS, PAVEMENTS, FENCES, VEGETATION, UTILITIES, OR PROPERTY MARKERS, ETC. CONTRACTOR IS RESPONSIBLE FOR ANY DAMAGE WHICH OCCURS DURING OR AS A RESULT OF CONSTRUCTION ACTIVITY. REPLACEMENT OF DAMAGED PROPERTY SHALL BE EQUAL TO EXISTING CONDITIONS. FOLLOWING REMOVAL OF INDICATED NATURAL FEATURES AND SITE IMPROVEMENTS, AND FOLLOWING THE COMPLETION OF EARTHWORK AS INDICATED ON THE GRADING PLAN, CONTRACTOR SHALL GRADE DISTURBED AREAS TO FULL TIE IN THE PROPOSED GRADES INDICATED ON THE GRADING PLAN. TOPSOIL FILL SHALL THEN BE PLACED IN LOOSE EVEN LIFTS, UNIFORMLY MATERIAL, AND SHALL BE MODERATELY COMPACTED AND SMOOTHLY GRADED IN ACCORDANCE WITH THE SITE GRADING PLAN. THE FINISHED SURFACE GRADES SHALL NOT VARY MORE THAN 0.1 FOOT ABOVE OR BELOW THE GRADES INDICATED ON THE PLANS. PROVIDE A SMOOTH TRANSITION BETWEEN EXISTING GRADES AND THE ADJACENT FILL ALL TREES, BRUSH, STUMPS AND GRUBBING DEBRIS SCHEDULED FOR DEMOLITION ARE TO BE REMOVED FROM THE SITE.
TOPOGRAPHIC AND UTILITY DATA SHOWN ON THIS PLAN ARE FROM A SURVEY. CURRENT FIELD CONDITIONS MAY VARY SOMEWHAT FROM THOSE INDICATED ON THIS PLAN. THE INFORMATION SHOULD NOT BE CONSIDERED AS EXACT OR COMPLETE.
A) THE CONTRACTOR SHALL FIELD VERIFY ALL EXISTING UTILITY LINE LOCATIONS PRIOR TO CONSTRUCTION. CONTACT THE INDIANA UNDERGROUND UTILITY PROTECTION SERVICE AT 1-800-382-5540.
B) THE CONTRACTOR SHALL NOTIFY ALL APPROPRIATE UTILITY COMPANIES AT LEAST 48 HOURS PRIOR TO THE COMMENCEMENT OR RESUMPTION OF WORK WHICH COULD DISRUPT THE RESPECTIVE UTILITY SERVICE.
C) ANY DEVIATIONS FROM THE UTILITY LOCATIONS OR ELEVATIONS FROM THOSE SHOWN ON THE PLANS SHALL BE REPORTED TO THE ENGINEER BEFORE CONSTRUCTION PROCEEDS AT THAT LOCATION. ANY OTHER DEVIATIONS FROM THE IMPROVEMENTS FROM THOSE SHOWN ON THE PLANS OR FROM EXISTING SITE IMPROVEMENTS SHALL BE REPORTED TO THE ENGINEER BEFORE PROCEEDING WITH IMPROVEMENTS AT THAT LOCATION.
D) THE CONTRACTOR SHALL BE RESPONSIBLE FOR THE RELOCATION OF ALL EXISTING UTILITIES WHICH ARE IN CONFLICT WITH THE IMPROVEMENTS SHOWN ON THE SITE PLANS.
E) ANY DAMAGE TO EXISTING UTILITY LINES SHALL BE REPAIRED AT THE EXPENSE OF THE CONTRACTOR.
6. UNLESS NOTED OTHERWISE, ALL UNDERGROUND UTILITIES SCHEDULED FOR DEMOLITION SHALL BE COMPLETELY EXCAVATED AND REMOVED, AND THE TRENCH BACKFILLED WITH STRUCTURAL FILL PLACED IN ACCORDANCE WITH THE EARTHWORK SPECIFICATIONS.
















PROJECT INFORMATION:
THIS CONSTRUCTION PROJECT IS INITIATED TO MODERNIZE A MULTI-USE BUILDING DATING BACK TO THE 1940S OR 1950S. THE AIM IS TO ADAPT THE STRUCTURE TO CONTEMPORARY STANDARDS AND FUNCTIONALITY WHILE PRESERVING ITS HISTORICAL ESSENCE.
KEY REASONS FOR THE PROJECT INCLUDE:
FUNCTIONAL UPGRADES: THE CURRENT BUILDING LAYOUT MAY NOT MEET MODERN REQUIREMENTS FOR COMMERCIAL AND RESIDENTIAL SPACES, NECESSITATING A REDESIGN TO OPTIMIZE FUNCTIONALITY.
MECHANICAL AND STRUCTURAL IMPROVEMENTS: THE ADDITION OF A BASEMENT FOR MECHANICAL EQUIPMENT ENSURES EFFICIENT HVAC SYSTEMS, WHILE STRUCTURAL UPGRADES ACCOMMODATE THE ADDITION OF NEW FLOORS AND ENHANCE OVERALL STABILITY. RETAIL SPACE ENHANCEMENT: WITH THE GROWING DEMAND FOR ATTRACTIVE RETAIL ENVIRONMENTS, REDESIGNING THE RETAIL SPACE LAYOUT AND FURNISHING IT WITH MODERN AMENITIES AIMS TO ATTRACT TENANTS AND CUSTOMERS.
RESIDENTIAL EXPANSION: ADDING NEW FLOORS WITH MULTIPLE APARTMENT UNITS NOT ONLY INCREASES THE BUILDING S POTENTIAL FOR REVENUE GENERATION BUT ALSO ADDRESSES THE NEED FOR CONTEMPORARY LIVING SPACES IN THE AREA.
SAFETY AND CODE COMPLIANCE: ENSURING COMPLIANCE WITH CURRENT BUILDING CODES, INCLUDING PROPER EXITS, STAIRS, AND STRUCTURAL INTEGRITY, PRIORITIZES THE SAFETY OF OCCUPANTS AND MEETS REGULATORY REQUIREMENTS.
AESTHETIC ENHANCEMENT: THE PROJECT INCORPORATES MULTIPLE EXTERIOR FACADES, DETAILED DESIGN ELEMENTS, AND LANDSCAPING TO ENHANCE THE BUILDING S CURB APPEAL AND BLEND SEAMLESSLY WITH THE SURROUNDING URBAN ENVIRONMENT.
TECHNOLOGICAL INTEGRATION: INTEGRATION OF REVIT SOFTWARE FOR MODELING AND DOCUMENTATION, ALONG WITH AUTOCAD COMPATIBILITY FOR INDUSTRY-STANDARD FILE EXCHANGE, REFLECTS A COMMITMENT TO MODERN CONSTRUCTION PRACTICES AND COLLABORATION WITHIN THE INDUSTRY.
CLIENT PERSUASION: THROUGH PERSUASIVE PRESENTATIONS AND COMPREHENSIVE RENDERINGS, THE PROJECT AIMS TO SHOWCASE THE BENEFITS OF THE PROPOSED DESIGN, PERSUADING STAKEHOLDERS TO ADOPT THE VISION FOR THE BUILDING’S TRANSFORMATION.
IN SUMMARY, THIS PROJECT ADDRESSES A RANGE OF NEEDS, FROM FUNCTIONAL AND SAFETY UPGRADES TO AESTHETIC ENHANCEMENTS AND TECHNOLOGICAL INTEGRATION, ULTIMATELY REVITALIZING THE BUILDING FOR CONTEMPORARY USE WHILE RESPECTING ITS HISTORICAL SIGNIFICANCE.



OR PORTIONS THEREOF PROVIDED BY CONTRACTOR, WHICH ARE LEGALLY ENACTED AT TIME OF CONTRACT EXECUTION. CONTRACTOR SHALL SUPERVISE AND DIRECT THE WORK USING CONTRACTOR S BEST SKILL AND ATTENTION. CONTRACTOR TO BE SOLELY
RESPONSIBLE FOR ALL CONSTRUCTION MEANS, TECHNIQUES, SEQUENCES AND PROCEDURES, AND SHALL COORDINATE ALL PORTIONS OF THE WORK. CONTRACTOR SHALL BE RESPONSIBLE TO OWNER FOR THE ACTS AND OMISSIONS OF THE CONTRACTOR S EMPLOYEES, SUBCONTRACTORS AND THEIR AGENTS AND EMPLOYEES, AND OTHER PERSONS PERFORMING ANY OF THE WORK UNDER A CONTRACT WITH CONTRACTOR.
CONTRACTOR AT ALL TIMES SHALL DIRECT STRICT DISCIPLINE AND GOOD ORDER AMONG CONTRACTOR S EMPLOYEES AND NOT EMPLOY AT THE WORK ANY UNFIT PERSON OR ANYONE NOT SKILLED IN THE TASK ASSIGNED TO THEM.
CONTRACTOR WARRANTS TO THE OWNER THAT MATERIALS AND EQUIPMENT FURNISHED UNDER THIS CONTRACT WILL BE NEW, UNLESS OTHERWISE SPECIFIED, AND ALL WORK WILL BE OF GOOD QUALITY, FREE FROM FAULTS AND DEFECTS AND IN CONFORMANCE WITH CONTRACT DOCUMENTS. ALL WORK NOT CONFORMING TO THESE REQUIREMENTS, INCLUDING SUBSTITUTIONS NOT PROPERLY APPROVED AND AUTHORIZED, MAY BE CONSIDERED DEFECTIVE AND SHALL BE REJECTED BY OWNER OR THE CONSTRUCTION OBSERVER. CONTRACTOR WILL BE PRESUMED TO HAVE EXAMINED THE SITE TO HAVE READ AND TO BE THOROUGHLY FAMILIAR WITH THE CONSTRUCTION DOCUMENTS, FAILURE OR OMISSION OF ANY CONTRACTOR TO RECEIVE OR EXAMINE ANY FORM, INSTRUCTION OR DOCUMENT SHALL IN NO WAY RELIEVE THE CONTRACTOR FROM ANY OBLIGATION IN RESPECT TO CONTRACTOR S BID. ALL FINISHES, SYSTEMS OR NOT, SHALL BE APPROVED BY OWNER-ARCHITECT FOR SUITABILITY PRIOR TO APPLICATION.
16. WHERE SPECIAL ITEMS REQUIRED BY OWNER ARE TO BE PREVENTED OR ARE PROTECTED FROM VIEW IN PANEL, CONTRACTOR IS TO PROPOSE AN AVAILABLE SUBSTITUTE FOR APPROVAL OF OWNER/ARCHITECT AND ALSO MAKE PRICING FOR POSSIBLE TEMPORARY ASSEMBLIES AND/OR ARTICLES.
17. ALL CONSTRUCTION TO BE PER APPLICABLE AND GOVERNING CODES AND AUTHORITIES. THE CONTRACTOR SHALL NOTIFY MALONE MAXWELL BORSCH ARCHITECTS IF CONSTRUCTION DEVIATES FROM THE DRAWINGS OR SPECIFICATIONS PRIOR TO BEGINNING CONSTRUCTION.
18. ALL PLANS ARE DRAWN TO SCALE AS NOTED AND ARE NOT INTENDED TO BE AND SHOULD NOT BE SCALED.
19. CONTRACTOR TO VERIFY ALL DIMENSIONS, CONDITIONS, ETC., PRIOR TO SUBMISSION OF PROPOSALS AND TO FAMILIARIZE THEMSELVES WITH EXISTING CONDITIONS AS WELL AS NATURE AND SCOPE OF THE WORK. NOTIFY ARCHITECT IN WRITING OF ANY VARIATIONS OR DISCREPANCIES PRIOR TO BEGINNING CONSTRUCTION.
20. CONTRACTOR TO VERIFY SIZE, LOCATION AND CHARACTERISTICS OF ALL MECHANICAL AND ELECTRICAL EQUIPMENT AND PREPARE ALL SURFACES ACCORDINGLY.
21. TYPICAL MEANS TYPICAL FOR ALL SIMILAR CONDITIONS UNO.
22. ALL 6"GYPSUM BOARD PARTITION RETURNS SHALL HAVE METAL L- CORNER BEADS FLOOR TO CEILING.
23. ALL ITEMS SHALL BE SECURELY ANCHORED OR CONSTRUCTION (I.E. WALLS, STUDS, ETC.) SHALL ALLOW ANCHORS/VOIDS OR EXISTING WALL.
24. GENERAL CONTRACTOR TO COORDINATE EVENTS WITH THE OWNER.
25. ANY AREAS OF PENETRATION IN SOUND INSULATED PORTION OF WALLS BY PIPES, DUCTS AND OTHER ELEMENTS IN THE PLENUM IS TO BE SEALED OFF TO PREVENT SOUND TRANSMISSION.
26. CONTRACTOR TO REVIEW FLOOR PLAN, ANCHORING AND DRY JOINT SPACING AND SHOP PARTITIONS AS NECESSARY. CONTRACTOR SHALL FLASH WET AREAS WHERE FLOOR IS SLOPED AND CRACKED TO PREVENT INFILTRATION OF FLOORING AND IS TO REMOVE ALL OBSTRUCTIONS, AND IS TO PROVIDE AN EVEN FLOOR FINISH FOR SCHEDULED FLOORING INSTALLATION.
27. SLAB IS NOT TO BE POURED OVER V.I.F UPPER ELEV. U.O.N. – U.O.N. = UNLESS OTHERWISE NOTED.
28. ALL MILLWORK ASSEMBLIES TO BE SCHEDULED AS REQUIRED.
29. ALL REQUIRED FIREPROOFING IS TO BE U.L. APPROVED OR EQUAL.
30. OWNER, WITH EITHER FINAL DESIGN OR DESIGN DEVELOPMENT DRAWINGS MAY MAKE CHANGES BY ALTERING, ADDING TO, OR DEDUCTING FROM THE WORK.




























































































































































































































































































































































































































































































































































































































































































































































All roofing work shall comply with local building codes and manufacturer requirements.
Provide minimum slope of 1/4" per foot to ensure proper drainage.
Flash all roof penetrations, edges, and curbs watertight.
Coordinate roof drains and overflows with plumbing.
Use tapered insulation where needed to direct water flow.
Roof membrane shall extend up parapet walls and terminate properly.
Protect roof surface at high-traffic areas with walk pads.
Provide warranty per specifications and perform water testing f required.
Contractor to verify all conditions in field prior to installation.
Coordinate roof layout with all trades before work begins.



















































































































































































































































































































































































































































































































































































































































































