Skip to main content

Portfolio KH inredning & design 251110

Page 1


”Inredning skapas med både förnuft och känsla.”

Inredningsdesigner:

Katarina Holmström +46 70 4825509

katarina_holmstr@hotmail.com

Inredningsprojekt–FlyttfrånKinatillSverige

- Moodboard sid 4

- Motivering och Referensbilder sid 5

- Vardagsrummet sid 6

- Köket sid 7

Inredningsprojekt–Poolhuset”AquaNature”

- Moodboard, Design Concept Statement + Planskiss sid 8

- Produktkollage för hand och digitalt sid 9

”SkapaettSkandinavisktKina”

MotiveringochReferensbilder

Familjen, bestående av mamma Maria, pappa Karl, dottern Ylva 12 år och sonen Knut 8 år, flyttar från Kina och hem till Sverige och vill ha hjälp med att inreda vardagsrummet och köket i sitt nya hus. De älskar fredagsmys och att laga god mat, samt har ett stort intresse för hälsa och välmående och att umgås med nära och kära. Detta ska båda rummen spegla. Som inspiration har familjen med sig en kinesisk skänk, ett sidobord och en taklampa och dessa vill de integrera i inredningen och kombinera med skandinavisk design och ljust trä. Hemmet ska vara ljust och kännas välkomnande och ombonat. Balansen mellan de olika elementen gör att hemmet känns både tryggt, hälsosamt och stressfritt, men också glatt, aktivt och socialt. Här kan familjen spendera mycket tid tillsammans.

”Ljust,varmt,välkomnandeochsocialt.”
”Ljust, varmt, välkomnande och socialt.”
”Ljust, varmt, välkomnande och socialt.”

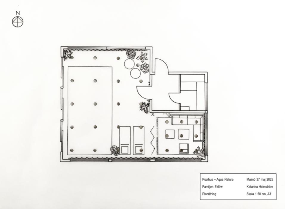
Inredningsprojekt–Poolhuset”AquaNature”

Poolhuset ”Aqua Nature”, förmedlar just det! Det är vatten och natur som står i centrum. Här ska man bada, ta det lugnt och umgås, i en inredning som klarar blöta badkläder.

Längst in i poolhuset hittar man sällskapsdelen med en soffgrupp för hela familjen att umgås i året runt och för dem som hellre vill njuta av poolen, finns två solsängar att ligga i mellan baden.

En flyttbar vikvägg skiljer de båda delarna åt, om man vill. Denna rumavdelare, kan lätt vikas ihop och ställas undan, om man vill öppna upp hela rummet.

Väggar, tak och lister är målat i en vit nyans och golvet är sandfärgat klinker. Inredningen och möblerna är i brunt akaciaträ, beigt tyg och inslag av svarta detaljer, så som vikväggen och skjutdörrarna.

Textilierna och mattan går i ljusblått, för att förstärka vattenkänslan, samt i beigea och sandfärgade nyanser. Golvlamporna och ljuslyktan är i brun rotting och tillför stämningsbelysning och punktbelysning till sällskapsdelen och till myshörnan med puffarna.

Infällda spotlights med dimmer finns i taket och står för allmänbelysningen i hela rummet. Spotlightsen är indelade i två grupper kopplade till en dubbel strömbrytare, som gör det enkelt att reglera ljuset efter behov och gör att man kan ha olika styrka på belysningen över pooldelen, respektive över sällskapsdelen. Spotlightsen över pooldelen, har även en strömbrytare vid dörren, så att man lätt kan tända ljuset när man kommer in i rummet.

Skira vita gardinlängder hänger vid alla fönster, som går att dra för om solen är för stark eller om man vill ha det lite mer privat.

Runt om i rummet står stora gröna växter i ljusa lerkrukor, för en känsla av natur inomhus och det gröna följs upp av den gröna fondväggen i hexagonformat kakel, bakom soffan.

Det är ett ljust och varmt rum, som är avslappnade att umgås i. Här trivs hela familjen

Produktkollageförhand

Produktkollagedigitalt

Turn static files into dynamic content formats.

Create a flipbook