





The design progressed through different phases, including schematic design, executive design development, interior design, and MEP installations
For the university of Nuevo Leon

Break room


Interior design- Torre LIV
nterior design for apartments in the Liv Tower, a multi-family development in Monterrey, featuring 3D floor plans with furniture layouts that define spaces and dimensions.


Design



Street view
Back Facade

Interior Design


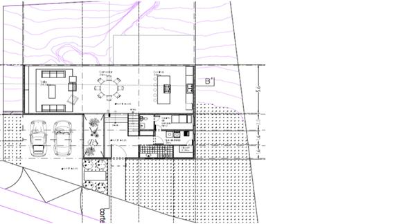
This residence has 4 bedrooms with open common areas, a terrace and an interior garden in an area of 350m2 on a cliff that allows panoramic views to the user as well as a connection with the nature through passive design



















