Kanor-Doublier | Arch Portfolio 2022

Page 1

KALEEL KANOR-DOUBLIER
DESIGNS 2022
PORTFOLIO ARCHITECTURAL

BELMONT CIRCULAR

Gingerbread House Documentation & Backyard Entertainment

During my time at Ackee Workshop’s Belmont office, I was finally able to explore a gingerbread house up close and personal. I was given the opportunity to document the building for preservation as well as design the backyard’s entertainment space to be used by Wajang Diskotheque to host small events. The project allowed me to gain experiences with as-built documentation as well as the chance to design a performance space, two passions I was very excited to explore.

199
Main Building Axon
Main Building Elevation

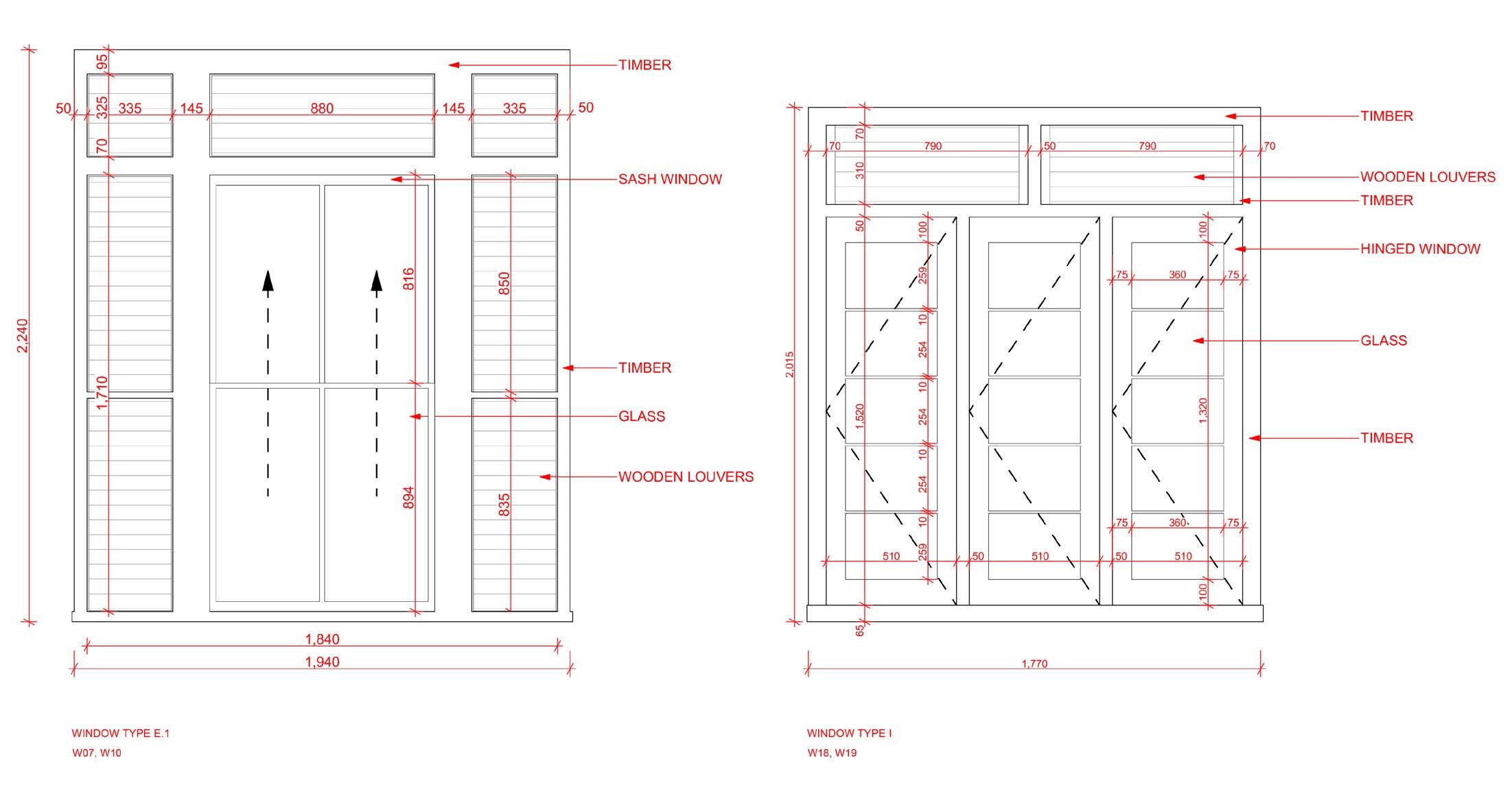
Main Building Window details

Main Building Axon
KEE ORKS HOP 9 Wood ord S Por o Sp 745 5103 n o@ackeewo obe t Thompson RA 130 1 CURROGATED ALU ZINC ROOF SHEETING S NGLE RUN W TH M LL F N SH 150 DP GALV PURLIN BOLTED TO CLEATS WITH GRADUATED HOLES TO FORM ROOF SLOPE 4 006 3 356 100X100 RHS COLUMN 100X150 MS BEAMS 600MM DP STEEL TRUSS
Backyard Axon

Kaleel Kanor-Doublier |issuu.com/kaleelkanor-doublier (868) 712-9728|kkanordoublier@gmail.com

Turn static files into dynamic content formats.

Create a flipbook
Issuu converts static files into: digital portfolios, online yearbooks, online catalogs, digital photo albums and more. Sign up and create your flipbook.