Undergraduate Architecture Portfolio

Page 1

PORTFOLIO

University Pop-Ups

Diane’s ADU

CONTENT XARTS Expansion
Oakland Affordable Living
Work
Additional

building parking lot at the

Architecture + Arts building, the project will be built upon but not

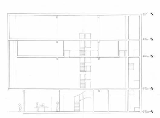
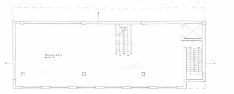
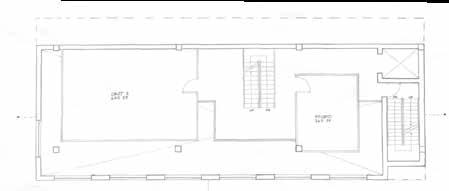
XARTS EXPANSION

UNI. POP-UPS

NAPPING LOUNGE
CAFE

DIANE’S ADU

In the heart of the community garden, this 600 SF ADU is built around the exis�ng university landscape. The client, Diane, will find comfort in cul�va�ng her own garden in a garden that is tended to by the university students. The primary focus of this design is the large lemon tree already rooted into the ground. Large windows on curved wall surround this natural element. To ensure the programma�c ac�vity of accessible gardening, Diane’s home will surrounded in her own garden as well as the community garden. The Pa�ern Language for this design, inspired by Christopher Alexandre is home for one, entry transition, and farmhouse kitchen.

MAIN VIEW

OAKLAND AFFORDABLE LIVING

place for seniors in Oakland and Alameda.

AVE
COLLEGE
CLAREMONTAVE
AVE FLORIO ST 62ND ST
CLAREMONTAVE
COLLEGE
-
62 TOTAL CLINIC ADULT DAYCARE COMMUNITY ROOM LOBBY COMPUTER STATION KITCHEN COMMUNITY ROOM OUTDOOR COURTYARD FIRST FLOOR SECOND FLOOR THIRD FLOOR ENLARGED COMMUNITY FLOOR PLAN COURTYARD

ADDITIONAL WORK

Turn static files into dynamic content formats.

Create a flipbook
Issuu converts static files into: digital portfolios, online yearbooks, online catalogs, digital photo albums and more. Sign up and create your flipbook.
Undergraduate Architecture Portfolio by Justine Balon - Issuu