UŽUTEKIS_view

Page 1


DVIBUTIS GYVENAMAS NAMAS PARDUODAMAS 155 kvm. BUTAS

DUOMENYS APIE PARDUODAMĄ PUSĘ

PLOTAS: 155 kvm.

AUKŠTAI: 3 aukštų kotedžo tipo

LANGAI: orientacija - pietūs ir vakarai

SKLYPO DALIS: tenkantis sklypo dalies plotas - 3,5a

LIFTAS: yra galimybė įsirengti liftą kylantį nuo 1 iki 3 a aukšto.

KONSTRUKCINIAI ELEMENTAI:

langai mediniai, kaustyti aliuminiu metalinės kolonos išorinės mūro sienos

FASADO APDAILA

skarda (RAL 7016)

degintos medienos dailylentės

LED apšvietimas po konsole sieniniai fasado šviestuvai

DVIBUČIO NAMO LOKACIJA - SENAJAME BUKČIŲ GYVENAMAJAME RAJONE, VILNIUJE, ANT NERIES UPĖS KRANTO

NUMATOMAS AUTOMOBILIŲ STATYMAS PO PASTATO KONSOLE

PO

PARDUODAMA DVIBUČIO PUSĖ
SKLYPO DALIES PLOTAS3,5a
NUMATOMA POILSIO ERDVĖ
PASTATO KONSOLE

0 A. PLANAS - PAGRINDINIS ĮĖJIMAS

NUMATYTA ŠACHTA LIFTO ĮRENGIMUI

PLANE VAIZDUOJAMAS

GALIMAS PATALPŲ

IŠPLANAVIMAS

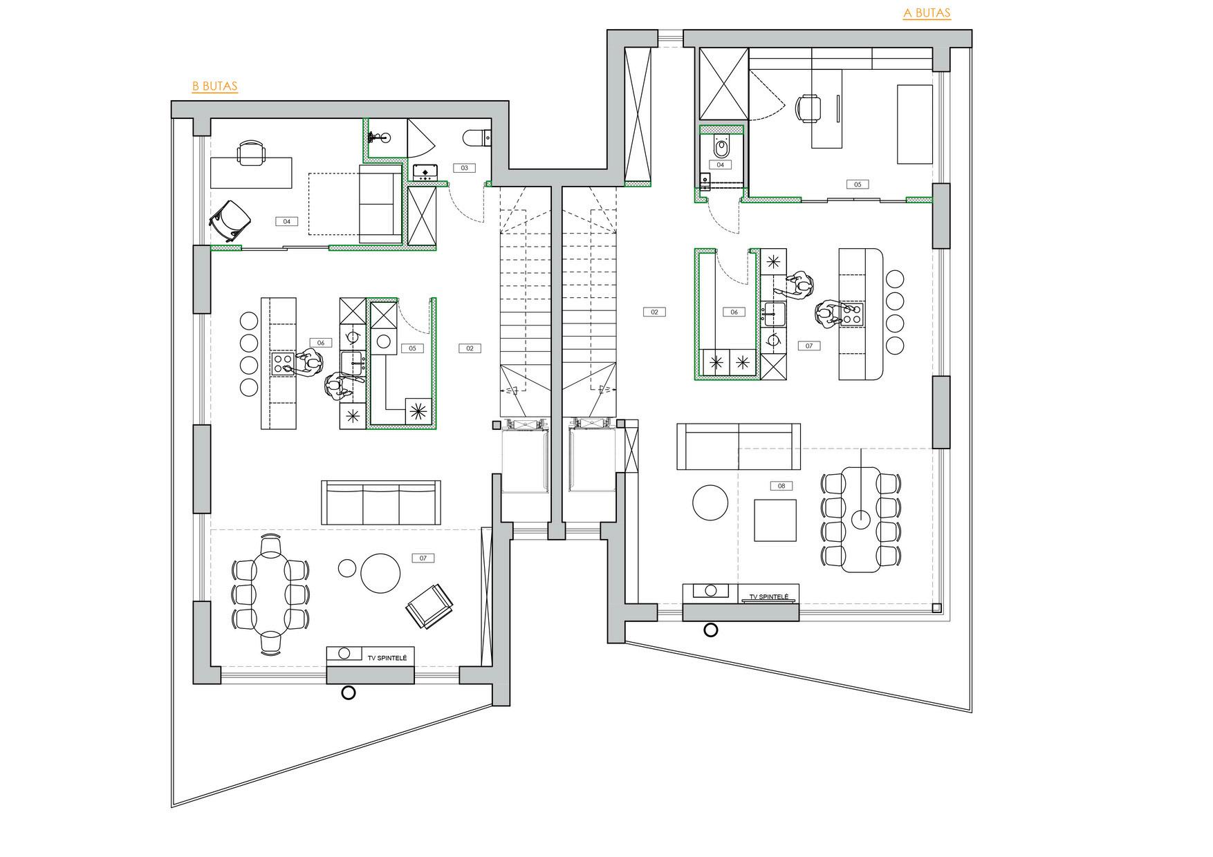
1 A. PLANAS

GALIMAS PIRMO AUKŠTO IŠPLANAVIMAS

SVETAINĖS IR VALGOMOJO ERDVĖ

SVETAINĖ IR VALGOMASIS - LANGAI Į UPĖS PUSĘ

ERDVI VIRTUVĖS ERDVĖ SU SALA

TAMSUS KAMBARIUKAS - SANDĖLIUKAS

VONIOS KAMBARYS SU DUŠU

DARBO / SVEČIŲ KAMBARYS

ŽIDINYS SVETAINĖJE

GALIMYBĖ ĮRENGTI LIFTĄ

BALKONAS

ERDVĖ PER DU AUKŠTUS

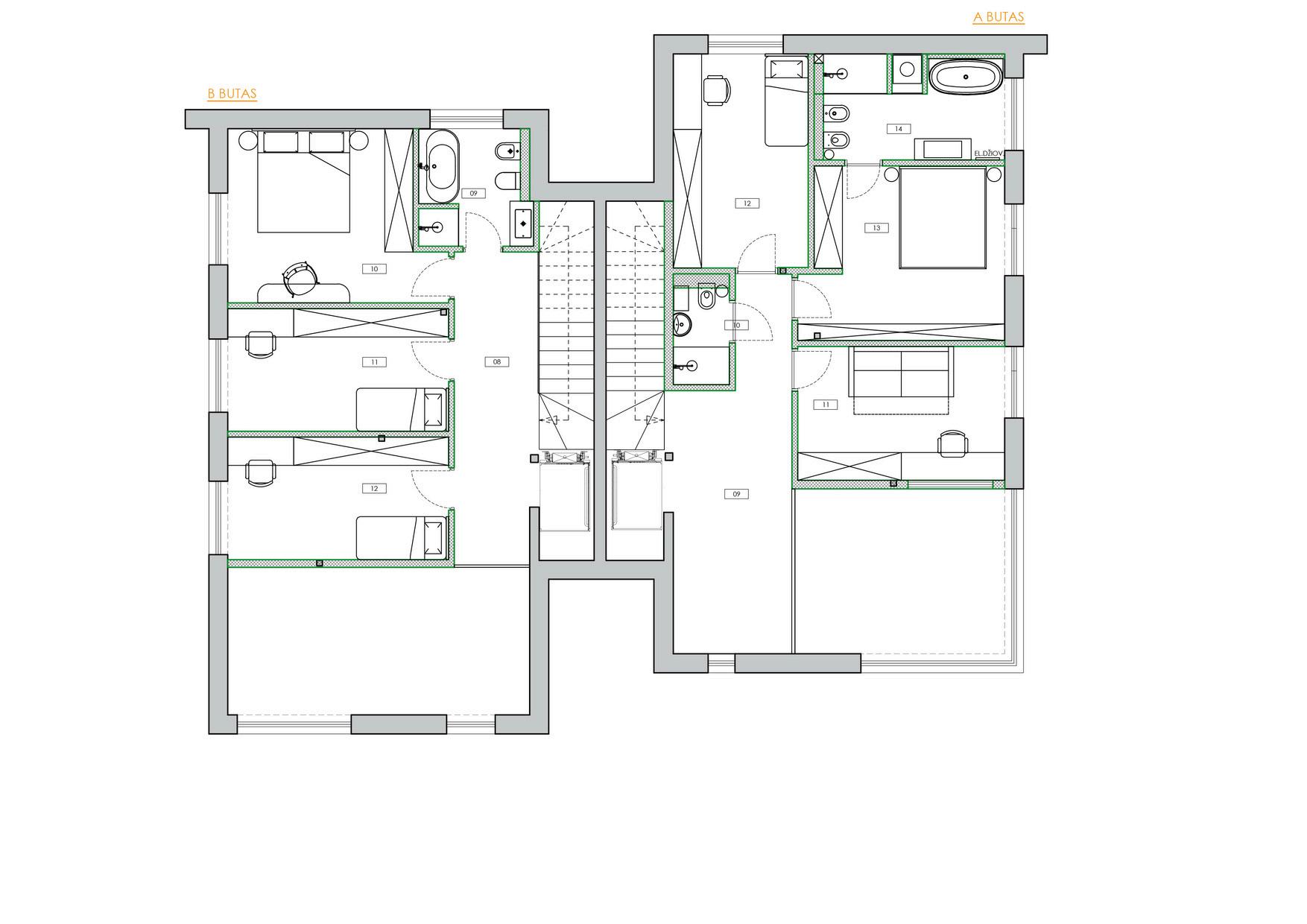
2 A. PLANAS

PLANE VAIZDUOJAMAS

GALIMAS PATALPŲ

IŠPLANAVIMAS

GALIMAS ANTRO AUKŠTO IŠPLANAVIMAS

TĖVŲ MIEGAMASIS

FUNKCIONALUS VONIOS KAMBARYS SU DUŠU BEI VONIA DU VIENODO PLOTO VAIKŲ KAMBARIAI

Turn static files into dynamic content formats.

Create a flipbook
Issuu converts static files into: digital portfolios, online yearbooks, online catalogs, digital photo albums and more. Sign up and create your flipbook.
UŽUTEKIS_view by Justina Biek - Issuu