Justin Dean Mortman | Extended Architecture Portfolio

Page 1


SOCIAL

Cornell University B. Arch 2025 / Intro to Architecture Summer Program

Washington University Architecture Discovery Summer Program

Princeton Day School 2020

New York, New York

jdmortman@gmail.com

908.809.5137

jdmortman.arch

www.linkedin.com/in/justin-mortman-3950ba1b3 justinmortman.net

This portfolio is a collection of narratives, interventions, spaces, models, drawings, and explorations that have developed during my time as a Bachelor of Architecture student at Cornell University and beyond. While each of these projects individually addresses its particular prompt, they have still worked together to build upon my foundational knowledge of the field of architecture. By working through various scales and mediums, I have grown accustomed to the idea of iteration and experimentation. None of these projects ever had or ever will have one clear answer. However, through research, contemplation, conceptualization, and development, each of these projects reached a level of resolution that enabled them to articulate clear spatial relationships to address the problems at hand. As I continue my studies in the field of architecture, my love and appreciation for this process of architectural design and problem-solving continues to grow.

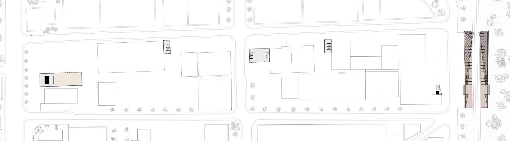
PRESERVING THE ARCHIPELAGO

Brooklyn, NY

Cornell University

David Moon

Design IX // Fall 2024

In collaboration with Julian Helbling

This project reimagines Floyd Bennett Field in Brooklyn, NY, restoring its landscape to its original 1890s form while addressing rising sea levels. Once an archipelago, the island was filled with dredged soil from Jamaica Bay in the 20th century. The design reintroduces this archipelago layout, creating berms around historical structures to protect them from flooding.

The project includes excavating the historic runway, creating a boat route, and removing toxic soil. It also enhances the ferry route and introduces 10 architectural interventions, such as a site museum, connecting different parts of the islands and improving site-wide connectivity. An elevated light rail with a pedestrian path will provide better access from Brooklyn.

This vision integrates infrastructure, ecology, and architecture, offering a dynamic, water-responsive space that preserves the site’s history.

Original archipelago form of the island filled by dredged soil
Formation of Floyd Bennett Field (current-day site)
Proposed archipelago restoration and new site interventions

HOUSING+GARDEN

RESEARCH CENTER

MARINA
KAYAK LAUNCH
RC CENTER
SITE MUSEUM

DESIGN DEVELOPMENT

These interventions not only enhance the existing programs but also introduce new ones necessary for a site increasingly defined by water. They also serve as a means of bridging different parts of the islands, fostering unique foot travel and improving connectivity across the site. Our proposed programs include a new archery structure, an RC plane and car center, an extension of the airplane museum, and a site museum to provide insights into the site’s geographic and ecological evolution. Additionally, we propose a kayak launch, emergency housing, café and commercial spaces, a marina, ferry stops, and an aquatic research center, which could be connected to the newly developed Launch School. We also introduce an elevated light rail that runs flush with the higher elevations of the berms, linking the site to Brooklyn and providing improved access for local residents. This light rail also features a walking path alongside it, offering additional routes for easy foot travel. Together, this comprehensive design fosters a dynamic, water-responsive space while ensuring better connectivity for the community.

HISTORICAL SIGNIFICANCE

A key architectural intervention is the extension of the airplane museum, expanding its capacity while preserving its role in showcasing Floyd Bennett Field’s aviation history. The museum, which displays planes from its military base days, is a significant historical landmark. The extension emphasizes connectivity, flood resilience, and historical preservation.

AIRPLANE MUSEUM EXTENISON

PROGRAM DEVELOPMENT

The new structure will bridge a waterway, enhancing the site’s connection to nature and providing space for historical military ship displays. The original museum will remain at its original elevation, protected by berms from flooding. Expanding the museum allows for more unique exhibits, preserving the site’s aviation legacy and ensuring its resilience against rising waters for future generations.

RC PLANE TAKEOFF RECREATIONAL FIELD
COMMUNITY GARDEN MUSEUM EXTENSION
PICINC ON SITE SITTING ALONG PATH
WAITING FOR FERRY HOLE IN FLOOD WALL

TRANSIT HUB

Rome, Italy

Cornell University

Martin Miller

Design VIII // Spring 2024

This project creates a bustling hub for tourism and transportation within PIazza Dell’ Oro, one of the many busy traffic intersections within the fabric of Rome. By including new bus terminals, a subway stop, and an e-bike/e-scooter station, this transit hub opens tourists and locals up to several modes of transportation to navigate the city. The design also maintains car paths so as not to cut off daily commuter traffic. While bringing together these modes of transportation, this hub also introduces two dining experiences for commuters and tourists on the go. On the first level, there is a grab-and-go style of dining for those in a rush, and on the second level, there is a sit-down restaurant for those who have more time between their daily activities. The hub also includes its own greenhouse to grow some of its ingredients on-site.

PROGRAM DEVELOPMENT

This project began by examining the bustling intersection of Piazza Dell’Oro, a key junction for various travel routes leading to major Roman attractions like the Vatican and Castel Sant’Angelo. Located on Via Vittorio Emanuele II, one of Rome’s main thoroughfares, the plaza attracts a significant number of tourists, providing valuable insights for this new intervention. The project also analyzed existing bus and subway routes to design an efficient transit hub where multiple lines can converge, enhancing the overall effectiveness of the station.

Interior view of main corridor with a glance into the on-site vertical garden greenhouse

Cut through main corridor showing public transit below and gastronomic programs above

Interior view of main waiting area, which includes an informal convenient store for travellers/commuters in a rush

Cut through main waiting area, showing vertical navigation between the structure down to subway

ONONDAGA LAKE REVIVAL

Syracuse, New York

Cornell University

Ian Fletcher

Design VII // Fall 2023

Throughout the past century, Onondaga Lake in Syracuse has been plagued by industrial pollution, leading to bans on fishing and swimming and harming local ecosystems. This intervention seeks to restore the community’s connection to the lake by creating a community center where people can learn about its history, research, enjoy a park, and appreciate its beauty. Although the lake is the cleanest it has been in over 100 years, concerns about safety remain. The center includes a pool that filters lake water and reintroduces it into the ecosystem, offering a safe place to swim while helping restore the lake’s environment.

Exterior view of wood cladding and boardwalk that connects visitors to Onondaga Lake

View of pool filled with filtered lake water and the sloping roof meant to imply the structure is being pulled up from the site

Section and isometric drawing showing sloping features, interior structure, and new filtered lake water pool

FORMAL DEVELOPMENT

The structure is designed to not only draw the people of Syracuse back to this overlooked site but also to appear as though it is being lifted from the ground itself. It seems to be peeled away from the site, creating a void beneath the building that transforms into a pool filled with filtered lake water. This pool visually connects the structure to the lake it overlooks, enhancing the relationship between the two.

PROGRAM DEVELOPMENT

The structure aims to reestablish a connection with the site by offering spaces for visitors to explore its history through a reading area and gallery. For a different experience, the restaurant features stunning lake views. Additionally, outdoor amphitheaters and walkways provide inviting spots to relax and enjoy the tranquil surroundings.

Interior view of the main building axis , showing work spaces leading to the cafe and the panoramic lake view

CARNIVAL EFFECT

Little Haiti, Miami

Cornell University

Val Warke

Design VI // Spring 2023

Awarded the Addison G. Crowley B.L. Arch ‘38 Prize for best design presentation

This proposal aims to create a large-scale housing and community complex within Little Haiti, Miami. The form of this design is rooted in its context. Using the idea of masking, which is very prevalent in Haitian culture and carnival, as a common theme of design, this building aims to “protect” and “mask” the preexisting structures on the site, which consist primarily of local businesses. This structure, which creates many new programs for locals to enjoy, is masking this context from the metaphorical “threat” on the north edge of the site, the location of the Magic City Development. The Magic City Development is a large-scale real estate development project, approved by Miami’s local government, that is currently in the works and will introduce modern, luxurious commercial and residential spaces into the small town of Little Haiti. This development completely ignores the local cultural environment of Little Haiti. My proposal aims to show how to introduce large-scale developments into a culturallyrich neighborhood, such as Little Haiti, without disregarding the local cultural fabric of the city. All in all, this design provides the people of Little Haiti with a protected oasis of spaces that allow them to take part in different elements of their culture, such as art, dance, and a general sense of community.

Section showing vertical navigation through structure and elevated walking paths in central courtyards

PROGRAM DEVELOPMENT

This proposal aims to develop a large-scale housing and community complex in Little Haiti, Miami, while protecting local businesses. The design creates a safe space for residents to engage with their culture through art, dance, and community activities, featuring open areas for dancing and galleries for local artists. It also includes office spaces for small startups to promote local entrepreneurship and economic

STRUCTURAL DEVELOPMENT

Drawing inspiration from the black caster oil Haitian vodou carnival masks, this structure features a dark screen system designed to provide privacy from the expansive Magic City real estate development to the north. The metal mesh mask, or structural shell, allows light to filter through while distorting the view into the interior spaces of the center.

Exterior elevation view of the structure’s “mask” or outer shell

Chunk model of the structure, showing the outer shell and vertical navigation tower

above showing the interlocking of different residential spaces around the main perimeter corridor.

Diagrams

SAN JUAN CULTURAL CENTER

New York, New york

Cornell University

Curt Gambetta

Design V // Fall 2022

This proposal seeks to enhance the Schomburg Center for Research in Black Culture by focusing on the performing arts, particularly music and dance. The new community center will welcome people from all backgrounds, providing dedicated spaces for practice and performance. Located at the base of Lincoln Towers, this facility stands on the historic San Juan Hill, once a vibrant hub for legendary jazz musicians such as Thelonious Monk (pianist), Howard McGhee and Roy Eldridge (trumpeters), and Teddy Hill (Minton’s Playhouse manager and band leader). In addition to its core functions, the center will serve as an educational resource, offering programs and exhibitions that explore the rich musical and cultural histories of San Juan Hill. It aims to celebrate the area’s artistic legacy while fostering contemporary expression. By promoting inclusivity and understanding, this initiative strives to strengthen community ties in a neighborhood with a complex history, inspiring future generations through learning and cultural exchange.

Section showing the lifted roofscape, interior intrument practice rooms, and open dancing spaces in the lower level

Section showing one of the main entrance spaces with vertical navigation tower

Section showing organic roofscape and museum entrance space

Practice rooms and grand entryway

Steps up and practice room

Practice rooms and open area below

Practice rooms

Slope, practice rooms, amphitheater
Entrance to gallery

Exterior view from W 68th St showing one the main entrances and the stairways/sloping roofs to the upper level of the site

DESIGN DEVELOPMENT

The proposed structure integrates seamlessly into the green space at the western edge of Lincoln Towers, situated about 20 feet above street level (Freedom Pl). This elevation creates a natural barrier between the western and eastern areas of the site. The design enhances circulation by incorporating stairs and walkways aligned with the existing street grid, facilitating movement between street level and the green roof. Some sections of the roof will slope down to street level, making it easy for people to navigate the elevation change. Elevated areas will provide views into practice and performance spaces below, inviting passersby to observe music and dance activities. Unlike the imposing Lincoln Center, this center fosters a more intimate atmosphere, inspired by the community that once thrived in this area.

Exterior view of the upper level of the site, showing how the roofscape becomes a reimagined park space

SENECA LIBRARY

Seneca Falls, New York

Cornell University

Michael Jefferson

Design IV // Spring 2022

Seneca Falls, New York, has a troublesome relationship with its local environment. One example of this maltreatment of the environment is how the town established the Seneca Landfill, which is only about 2 miles from their downtown area, contaminating the air and local vegetation. This library and community center aims to create a space where locals can learn about their local environment and how to take better care of their surroundings. This structure directs the view towards the lake to remind the locals of the environment they should try to protect and preserve. This building consists of three blocks that are stacked upon one another in a stepping formation. This stepping formation creates abundant outdoor rooftop spaces, such as an outdoor classroom, sitting areas, and a garden. All of these spaces were determined and delineated by the structure grid of the library. This grid frames the partitions, the vertical navigation (stairs/elevator), and a central greenhouse, which acts as the structure’s core. This greenhouse would serve as a two-story atrium space that allows light to flow between the first two floors of the library. This greenhouse, which would house local flora, is symbolic of the fact that, at its core, this building is meant to show the locals who visit this space the beauty of their surroundings, hopefully inspiring them to take better care of the natural landscape around them.

FIRST FLOOR PLAN

Local flora guides you into the building and leads you to the heart of the strucure: a two story greenhouse atrium.

SECOND FLOOR PLAN

This floor contains the library’s bookshelves, classrooms, conference rooms, and outdoor workspaces.

Interior view of the second floor bookshelves and tables for studying/working with peers

Exterior view of the upper level of the structure, featuring rooftop garden and work benches/tables

THIRD FLOORPLAN

The third floor features staff offices, a quiet study area, classrooms, and outdoor reading/workspaces.

OVERALL STRUCTURE

The building opens up to its surroundings, offering stunning views of the adjacent lake.

Section showcasing the two-story greenhouse atrium at the core of the structure

Section showing the cantilevered classroom and work spaces

Section showing the vertical navigation and second level conference room

Section model showcasing the cantilevering structure with a detailed modeled interior spaces providing a real feeling of the work space

DESIGN DEVELOPMENT

The structure’s form is inspired by the site’s geometry, allowing it to open at the center for a clear public entrance. As you ascend, the design directs attention toward the lake, enhancing its connection to the environment. At the heart of the building, a two-story greenhouse atrium brings in natural light, symbolizing the importance of appreciating Seneca Falls’ natural beauty.

CONSTRUCTION

This design includes large concrete wide-flange beams that enclose sections of the structure and serve as load-bearing elements. These substantial beams define the structural orientation of each floor, creating a striking backdrop for the interior spaces. Complementing the concrete, a network of lighter steel wide-flange beams and columns balances the weighty presence of the concrete.

Structural model of the library showing the pre-cast concrete beams and secondary steel structural grid

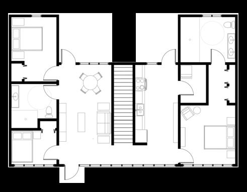
ACCESSIBLE ABODE

Ithaca, New York

Cornell University

Rosalind Barr

Design III // Fall 2021

This dwelling creates a comfortable living space for one individual with a physical disability, specifically a person in a wheelchair. The house consists of an outer shell structure, and interior volumes that intersect with the outer shell membrane. The outer shell structure creates this in-between space, where the boundary between inside and out is blurred. For example, when entering this structure, the individual still interacts with the external environment (they can feel wind flow or the outside temperature) while being sheltered by its canopy design. The house includes two levels that can be accessed through the platform lift in the front of the home, which also acts as the porch/front entrance.

WELCOME BRIDGE

The resident can easily reach their home by driving over a bridge that leads directly to the driveway. The bridge features a public garden space as well.

VERTICAL LIFT

Every other house in this neighborhood is inaccessible because of their porch. This house uses the porch as a vertical lift, creating easy vertical circulation

OFFICE & PARKING

The home features a work space with tall ceiling hight to maximize daylighting. The car is tucked deep into the home to create better access to the interior spaces.

LIVING SPACE

The living and kitchen spaces are on the second floor within a wider volume. This becomes the main gathering space for the home.

LAUNDRY & BATH

The laundry and master bathroom are on the second floor, with the living room below. The laundry is conveniently located near the bedrooms and close to the kitchen plumbing.

BEDROOMS & LIVING

The master bedroom is on the top floor. The master includes a balcony that looks out onto the backyard. The second bedroom is located on the first floor next to the living room.

Model of the home (made from basswood) that gives an immersive depiction of the overall structure and interior spaces

Sections show the interior spaces (blocks) that are housed under the protective outer shell

First Floor Plan
Second Floor Plan

Turn static files into dynamic content formats.

Create a flipbook
Issuu converts static files into: digital portfolios, online yearbooks, online catalogs, digital photo albums and more. Sign up and create your flipbook.