PROYECTOS DESTACADOS
Análisis competencias BANCOMEXT FEATURED PROJECTS
BANCOMEXT competencies analysis
Proyecto Arquitectónico Obregón Obregón Architectural Project
Booklet Ruta Crítica Critical path booklet
Análisis de obra conforme al Programado, Real y Estimado
Construction work analysis according to scheduled, actual, and estimated.
Visitas de obra
Construction site visit
Infografías CMIC-ICI
CMCI-ICI Infographics
CERTIFICADOS
Certificados BANCOMEXT CERTIFICATES
BANCOMEXT Certificates
Certificados SOYLIDER NET
SOYLIDER.NET Certificates
Constancia de idioma
N Á L I S I
C
M P E T E N C I A S
A N C O M E X T
N A L Y S I S O F B A N C O M E X T ' S
A P A B I L I T I E S
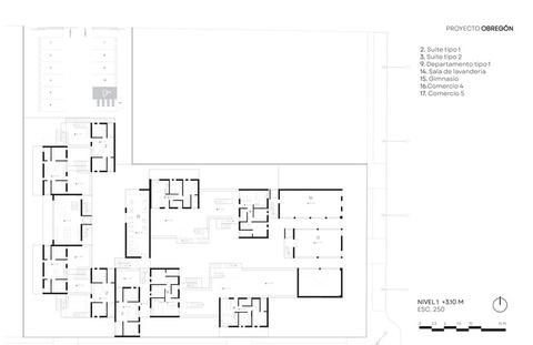
El proyecto está compuesto por cinco áreas principales, interconectadas mediante patios interiores y terrazas
Patios: Funcionan como espacios de transición y descanso mejorando la ventilación y la iluminación natural
Terrazas: Proporcionan una experiencia al aire libre ofreciendo vistas y conexión con el entorno
Este diseño equilibra espacios compartidos y privados, promoviendo funcionalidad y bienestar para los usuarios
The project is composed of five main areas interconnected through interior patios and terraces
Patios: Serve as transition and resting spaces, improving natural ventilation and lighting
Terraces: Provide an outdoor experience offering views and a connection with the surroundings
This design balances shared and private spaces promoting functionality and the well-being of its users
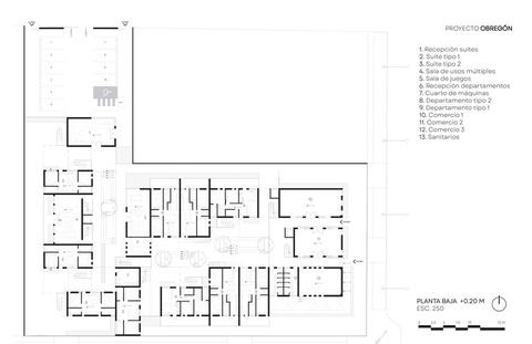
Las suites están diseñadas para estancias temporales ideales para estudiantes profesionales turistas y personas en reubicación Hay dos tipos:
TIPO 1: Incluye terraza privada perfecta para relajarse y conectar con el entorno
TIPO 2: Ofrece un baño adicional, ideal para mayor comodidad y flexibilidad Una solución versátil adaptada a diversas necesidades
The suites are designed for temporary stays, making them ideal for students, professionals, tourists, and individuals in relocation There are two types:
TYPE 1: Includes a private terrace, perfect for relaxation and connection with the surroundings TYPE 2: Offers an additional bathroom ensuring greater comfort and flexibility A versatile solution tailored to diverse needs
DEPARTAMENTO TIPO 1
DEPARTAMENTO TIPO 2
Las suites se adaptan a usuarios con estancias temporales como estudiantes profesionales turistas o personas en reubicación
TIPO 1: Terraza privada para relajación y conexión con el entorno TIPO 2: Baño adicional para mayor comodidad y flexibilidad
The suites are designed for temporary stays making them ideal for students professionals tourists or individuals in relocation
TYPE 1: Features a private terrace perfect for relaxation and connecting with the surroundings
TYPE 2: Includes an additional bathroom, offering enhanced comfort and flexibility Adaptable solutions for diverse needs
ARQUITECTAS
ARCHITECTS
Julieta Becerril Figueroa
Yanelli Guadalupe Espinosa Buenfil
Natalia Hernández Sánchez Maria Fernanda Rodríguez Moreno
A D M I N I S T R A C I Ó N
D M I N I S T R A T I O N
COLABORADORES COLLABORATORS
Innovación
continua
Buscamos soluciones creativas y tecnológicas que mejoren el diseño y la fabricación del proyecto, manteniéndonos a la vanguardia del sector
Diseñar fabricar y montar estructuras efímeras (stands) para todo tipo de eventos, exposiciones y pasarelas, utilizando materiales modulares y sostenibles técnicas de construcción rápida y diseño adaptable a diferentes espacios y conceptos
OBJETIVO OBJECTIVE
To design, manufacture, and assemble ephemeral structures (stands) for all types of events exhibitions and runways using modular and sustainable materials fast construction techniques and adaptable design suited to different spaces and concepts
MISIÓN
En Modularq, diseñamos, fabricamos y montamos estructuras efímeras para eventos exposiciones y pasarelas haciendo cada proyecto una experiencia única Combinamos innovación, funcionalidad y sostenibilidad para crear entornos que cautiven y conecten con el cliente
Nos comprometemos a ofrecer soluciones de alta calidad y bajo impacto ambiental asegurando que cada estructura refleje la identidad de nuestros clientes y contribuya a un entorno más
MISSION
At Modularq we design manufacture and assemble ephemeral structures for events, exhibitions, and fashion runways, turning each project into a unique experience We blend innovation functionality and sustainability to create environments that captivate and connect with the audience
We are committed to delivering high-quality low-impact solutions ensuring that each structure reflects our clients identity and contributes to a more sustainable environment
We seek creative and technological solutions that improve the design and manufacturing of the project keeping us at the forefront of the industry
Materiales ecoamigables
Estamos comprometidos a utilizar recursos sostenibles y técnicas responsables para la reducción del impacto ambiental sin comprometer la calidad del diseño
We are committed to using sustainable resources and responsible techniques to reduce environmental impact without compromising design quality
Flexibilidad
y personalización
Adaptamos cada proyecto a las necesidades específicas de nuestros clientes asegurando que refleje su identidad y objetivos
We adapt each project to the specific needs of our clients ensuring it reflects their identity and goals
Responsabilidad social
Diseñamos, promoviendo el uso de materiales ecológicos, responsables que beneficien tanto a las personas como al entorno
We design by promoting the use of eco-friendly responsible materials that benefit both people and the environment
Colaboración
Fomentamos el trabajo en equipo con nuestros clientes proveedores y colaboradores, asegurando que cada proyecto sea un esfuerzo conjunto
Ser líderes en diseño y fabricación de stands innovadores y sostenibles, transformando la conexión entre marcas y público con espacios impactantes funcionales y responsables alcanzando reconocimiento internacional
VISIÓN VISION
To be leaders in the design and manufacturing of innovative and sustainable stands, transforming the connection between brands and audiences through impactful functional and responsible spaces achieving international recognition
We encourage teamwork with our clients suppliers and collaborators ensuring that each project is a joint effort
Compromiso con la calidad
Garantizamos buena calidad en diseños fabricación e instalaciones asegurando proyectos funcionales estéticos y duraderos
We guarantee high quality in design, manufacturing, and installations, ensuring functional aesthetic and durable projects
Julieta Becerril Figueroa
Nathalia Melissa Gómez Burgos
Joseph Saamuel Saloma Ocampo
Melanie Vivian Herrejon Carreon
José Alberto Argoty Perez
¡QUÉ ES UN ORGANIGRAMA?
Un organigrama es una representación gráfica de la estructura organizativa de una empresa o institución Muestra cómo se dividen, agrupan y relacionan las funciones áreas o departamentos así como las jerarquías y líneas de autoridad entre los miembros de la organización Ayuda a visualizar quién hace qué quién reporta a quién y cómo fluye la comunicación interna
WHAT IS AN ORGANIZATIONAL CHART?
An organizational chart is a graphic representation of a company ’ s or institution’s structure It shows how functions, areas, or departments are divided, grouped, and related as well as the hierarchy and lines of authority among members of the organization It helps visualize who does what, who reports to whom and how internal communication flows
ORGANIGRAMA RADIAL
EmilianoOrozco
RaúlMartínez
Contabilidad
LuisFuentes
BeatrizMendoza
Jefade Proyectos
ElenaMontoya
JoséRamírez
Director financiero
JuanTorres
Director general
Ana Martínez
DirectorAdministrativo
ArmandoIbarra
AdriánCastañeda
Tesorería
AlmaFigueroa
Controlde gestión
juanPabloRuiz
Impuestos
AlondraCastañeda
AlejandraCruz
JesúsOrtega
Un organigrama radial es una representación gráfica en la que la estructura de la organización se muestra de forma circular con el núcleo en el centro y los diferentes departamentos o áreas distribuidos a su alrededor Representa una estructura más flexible y colaborativa
ORGANIGRAMA RADIAL
A radial organizational chart is a graphic representation where the structure of the organization is shown in a circular format, with the core in the center and the various departments or areas arranged around it It represents a more flexible and collaborative structure
PORTAFOLIO DE SERVICIOS
Servicios completos y además también ofrecemos diseños PERSONALIZADOS o PREMIUM que cautivan a tu audiencia con tecnología de punta que promueve tu empresa, materiales sostenibles y reutilizables para múltiples proyectos y experiencias sensoriales que toman en cuenta el confort del usuario para hacerte destacar en cualquier evento
Fabricación de estructuras
Diseño de estructuras
Crear un diseño de acuerdo a las ideas y necesidades del cliente
Fabricación del espacio diseñado con elementos de alta calidad y bajo impacto ambiental
Ambientación del estante
Decoración e implementació n de elementos para generar confort en el usuario y reforzando identidad del cliente
Stands interactivos
Integración de tecnologías como pantallas táctiles, realidad aumentada o proyecciones interactivas que permitan a los visitantes interactuar de manera directa con el contenido del stand
Experiencias sensoriales
incorporación de elementos que apelan a los cinco sentidos para crear una atmósfera única que refuerce el mensaje de la marca
Diseño modular y reutilizable
Creación de estructuras adaptables y desmontables que puedan ser reutilizadas en diferentes eventos o espacios
PLAN DE MARKETING
COSTO APROXIMADO DE HONORARIOS
PAQUETESTANDMODULAR
StandModubase (3X3M)
StandModuplus (4X3M)
StandModumaster (6X3M)
StandModumasterplus (6X4M)
$3,000-$5,500
$3500-$6500
$4,500-$7,500
Diseño,conceptualización,fabricación, construcciónyusodematerialesinteligentes y/oreciclables
Diseño,conceptualización,fabricación, construcción,instalacióndetecnologíasy usodematerialesinteligentesy/oreciclables
Diseño,conceptualización,fabricación, construcción,instalacióndetecnologíasy usodematerialesinteligentesy/oreciclables
$5,500-$10,500
Diseño conceptualización fabricación construcción instalacióndetecnologíasy usodematerialesinteligentesy/oreciclables
Mobiliariobásico:Mesas,sillasymostrador
Mobiliariobásico:Mesas sillasymostrador Elementosmodulares:mamparas
Mobiliariodealtagama:Mesas,sillasy mostradorpersonalizados Elementosmodulares:mamparas Iluminaciónambiental
Mobiliariodealtagama:Mesas sillasy mostradorpersonalizados Elementosmodulares:mamparasymuros Iluminaciónambientalypantallas
Lascotizacionesestánsujetasacambios dependiendodeltipodeevento,losmateriales,elusodetecnologíasyladuracióndelstand
PLAN DE MARKETING
COSTO APROXIMADO DE HONORARIOS PLAN PREMIUM
Stand PERSONALIZADO (24 m2 en adelante) $7,000 - $12,000
Stand PREMIUM (36 m2 en adelante)
$10,500 - $15,500
Diseño, conceptualización, fabricación, construcción instalación de tecnologías uso de materiales inteligentes y/o reciclables, diseño modular libre, adaptación de materiales y servicios
Diseño, conceptualización, fabricación, construcción, instalación de tecnologías, uso de materiales inteligentes y/o reciclables, diseño modular libre, adaptación de materiales y servicios seguridad
Mobiliario de alta gama: Mesas, sillas y mostrador personalizados
Elementos modulares: mamparas y muros
Iluminación ambiental, pantallas, tecnologías interactivas
Mobiliario de alta gama: Mesas, sillas y mostrador personalizados.
Elementos modulares: mamparas y muros
Iluminación ambiental, pantallas, tecnologías interactivas
Seguridad durante la duración del evento
Mobiliario interactivo
Lascotizacionesestánsujetasacambios dependiendodeltipodeevento,losmateriales,elusodetecnologíasyladuracióndelstand
Video
Un programa de obra es una herramienta de planificación y gestión en la construcción que organiza y controla las actividades del proyecto optimizando recursos estableciendo plazos y asegurando el cumplimiento de tiempos y costos Permite hacer seguimiento del avance prevenir retrasos y facilitar la toma de decisiones ante imprevistos, representándose comúnmente en un diagrama de Gantt
A construction schedule is a planning and management tool that organizes and controls project activities, optimizing resources, setting deadlines, and ensuring time and cost compliance It allows for progress tracking, prevents delays, and facilitates decision-making in case of unforeseen events, commonly represented in a Gantt chart
El avance programado es la planificación del progreso de una obra con base en el programa de trabajo establecido Define los tiempos y metas parciales que deben cumplirse en cada etapa del proyecto permitiendo comparar el desarrollo real con lo planificado Su principal función es detectar posibles desviaciones optimizar la asignación de recursos y tomar decisiones oportunas para evitar retrasos o sobrecostos, asegurando así el cumplimiento de los objetivos del proyecto en tiempo y forma
The scheduled progress is the planned development of a construction project based on the established work schedule It defines the timelines and partial goals that must be met at each stage allowing for a comparison between actual and planned progress Its main function is to identify possible deviations optimize resource allocation and make timely decisions to prevent delays or cost overruns, ensuring that the project meets its objectives on time and within budget
Las estimaciones en construcción son cálculos financieros que determinan los costos de los trabajos ejecutados en una obra dentro de un período determinado Sirven para gestionar pagos a contratistas y proveedores, asegurando que los avances físicos se reflejen en los pagos correspondientes Estas pueden realizarse de forma periódica (semanal quincenal o mensual) y suelen incluir conceptos como materiales mano de obra, maquinaria y otros gastos asociados al proyecto
Estimates in construction are financial calculations that determine the costs of the work executed within a given period They are used to manage payments to contractors and suppliers, ensuring that physical progress is reflected in the corresponding payments These estimates can be made periodically (weekly, biweekly, or monthly) and typically include items such as materials labor machinery and other expenses related to the project
El avance real es el progreso tangible y medible de una obra en un momento específico que refleja la cantidad de trabajo efectivamente realizado en comparación con lo que estaba previsto en el programa de obra Su función principal es proporcionar una evaluación precisa del estado actual del proyecto permitiendo identificar cualquier desviación entre lo planificado y lo ejecutado Esto facilita la toma de decisiones para ajustar el cronograma, gestionar los recursos de manera más eficiente y corregir posibles problemas que puedan generar retrasos o costos adicionales Además, el avance real permite llevar un control más preciso sobre el presupuesto, los tiempos de ejecución y la calidad del trabajo asegurando que el proyecto avance de manera controlada hacia su finalización
The actual progress is the tangible and measurable progress of a construction project at a specific time reflecting the amount of work actually completed compared to what was planned in the project schedule Its main function is to provide an accurate evaluation of the current status of the project allowing for the identification of any deviations between what was planned and what has been executed This facilitates decision-making to adjust the timeline manage resources more efficiently and correct any issues that may lead to delays or additional costs Furthermore, actual progress allows for more precise control over the budget, execution times, and work quality, ensuring that the project moves forward in a controlled manner toward its completion

El avance estimado es la proyección del progreso de una obra según lo planificado en el programa de trabajo calculando lo que se espera haber ejecutado en un determinado periodo A diferencia del avance real que se basa en lo que efectivamente se ha realizado el avance estimado sirve para prever el ritmo de ejecución del proyecto y ajustar la planificación en función de las circunstancias que puedan influir en el desarrollo de la obra Su función principal es proporcionar una estimación anticipada de los logros y anticipar posibles desviaciones permitiendo tomar medidas preventivas para garantizar que se mantenga el control del proyecto y se cumplan los plazos establecidos
The estimated progress is the projection of a construction project's progress based on the planned work schedule, calculating what is expected to have been completed during a specific period Unlike actual progress, which is based on what has actually been done, estimated progress serves to predict the project's execution pace and adjust the planning based on circumstances that may influence the development of the work Its main function is to provide an early estimation of achievements and anticipate possible deviations allowing for preventive measures to be taken to ensure the project remains on track and meets the established deadlines




Las gráficas en la gestión de proyectos de construcción son herramientas visuales que ayudan a monitorear el progreso de la obra Permiten comparar el avance real con el estimado y programado facilitando la identificación de desviaciones y tomando decisiones informadas Estas gráficas mejoran la comunicación y ayudan a gestionar los recursos y tiempos de manera eficiente
Graphs in construction project management are visual tools that help monitor the progress of the work They allow for the comparison of actual progress with estimated and planned progress, making it easier to identify deviations and make informed decisions These graphs improve communication and help manage resources and timelines efficiently
En conclusión las herramientas de planificación y seguimiento como el avance programado real estimado y las gráficas son fundamentales en la gestión de proyectos de construcción Estas herramientas permiten monitorear el progreso detectar desviaciones, optimizar recursos y asegurar el cumplimiento de plazos y objetivos Su uso efectivo facilita la toma de decisiones y mejora la comunicación entre los equipos, contribuyendo al éxito y la eficiencia del proyecto
In conclusion planning and monitoring tools such as scheduled actual estimated progress and graphs are essential in construction project management These tools help monitor progress detect deviations optimize resources and ensure deadlines and objectives are met Their effective use facilitates decision-making and improves communication among teams, contributing to the success and efficiency of the project
DATOS DE LA OBRA CONSTRUCTION DATA
En esta visita de obra realizamos un croquis donde nos dimos cuenta que el terreno no era cuadrado los espacios entre castillos no son iguales por lo tanto los ejes no coincidían Cuenta con 465 m2 de construcción
La bitácora de obra debe de llevar una nota de apertura, la bitácora tiene una hoja original y 2 hojas calcas
DRO: Es como un árbitro de parte del ayuntamiento y este puede llevar hasta 5 obras
Coordinación: Superintendencia de la obra este nunca puede ser el contratista, debe ser alguien por parte del dueño o de la supervisión
On this site visit, we created a sketch and noticed that the land was not square, the spaces between columns were uneven, and the axes did not align
The construction covers 465 m²
The construction logbook must include an opening note and consists of an original sheet and two carbon copies
DRO (Director Responsible for Construction): Acts as a referee on behalf of the municipality and can oversee up to five projects
Coordination: The site superintendent manages the project but can never be the contractor; they must be appointed by the owner or the supervision team
Apertura de bitácora de obra
Construcción nave industrial
Hoja original de la bitácora de obra
Tabique rojo recocido
DATOS DE LA OBRA
CONSTRUCTION DATA
Una cisterna se mide en m3 o en litros
Visualizamos en obra distintos materiales tales como tubería hidráulica, PAD, instalación eléctrica, alambrón cernidor
Para amarrar dado con dado se necesita una contratrabe de lo contrario las columnas se abren Es necesario crear un marco rígido
La altura de las columnas es de 4 50 metros
La sección de cada columna es de 30 cm por 30 cm el número de las varillas equivale a octavos de pulgada
A cistern is measured in cubic meters (m³) or liters, depending on the context
During the site visit we observed various construction materials such as hydraulic piping PAD (high-density polyethylene pipes) electrical installations tie wire and a sieve
To properly connect one footing to another, a tie beam is required; otherwise, the columns may spread or lose stability
It is essential to form a rigid frame to ensure structural integrity
The columns have a height of 4 50 meters with a cross-section of 30 cm by 30 cm
The rebar size is identified by a number that corresponds to eighths of an inch in diameter
Las instalaciones para esta obra son: Hidráulica eléctrica sanitaria red contra incendio extracción ventilación voz y datos para paneles solares en la techumbre tiene que estar adecuada y con una inclinación
The installations for this project include: plumbing, electrical, sanitary, fire protection system, extraction, ventilation, voice and data For solar panels on the roof, it must be properly adapted and have the correct inclination
Construcción de cisterna
Tubería hidráulica
Cernidor
Polietileno de Alta Densidad
DATOS DE LA OBRA
CONSTRUCTION DATA
En esta visita de obra observamos el proceso de fabricación de mezclas de concreto, el cual esta compuesto de cemento agua grava y arena Estos mismos materiales son pesados en básculas
Los materiales son pesados por separado
El agua y el aditivo se dosifican a través de una bomba cuentalitro la cual cuenta cuántos litros van pasando de acuerdo al diseño que se estableció
En la segunda imagen los depósitos que se pueden observar en la parte superior son llamados “silos” aquí es donde se deposita el cemento
Una góndola contiene de 44-45 000 kg de concreto
La unidad de medida del concreto se mide em m3
Lo más común es que se suministre concreto 250 u otras resistencias entre 200 300 150 entre otras
Lo más común es que el concreto sea a 28 días también este puede ser a 14 7 o 3 días
El cuarto de curado de piletas debe matenerse en 23°C +- 2°C
During this site visit we observed the concrete mix manufacturing process which is composed of cement water gravel and sand
These materials are weighed separately on scales
The water and additive are dosed using a liter-counting pump which tracks how many liters pass through according to the established design
In the second image, the containers visible at the top are called "silos " This is where the cement is stored
A gondola contains 44-45 000 kg of concrete
The unit of measurement for concrete is in m3
The most common concrete supplied is 250 or other strengths such as 200 300 150 among others
Typically concrete is designed for 28 days but it can also be for 14 7 or 3 days
The curing room for the pools should be maintained at 23°C ± 2°C
Silos
Camión revolvedora de concreto
Silos y vásculas
PRUEBAS EN OBRA
ON-SITE TESTS
Prueba de Revenimiento: La prueba de revenimiento es un ensayo utilizado en la construcción para medir la consistencia o fluidez del concreto fresco
Estudio de peso volumétrico: Consiste en traer una muestra del agregado y se inserta el agregado en la tara de masa unitaria para hacer pruebas de compactación Se hacen 3 capas con 25 inserciones y después se pesa ese material Después se convierte a través de un factor de corrección que tiene la tara y así se determina el peso volumétrico
Slump Test: The slump test is an experiment used in construction to measure the consistency or fluidity of fresh concrete
Bulk Density Test: This involves taking a sample of the aggregate and inserting it into a unit mass tare to perform compaction tests Three layers are made with 25 insertions and then the material is weighed Afterward it is converted using a correction factor based on the tare, and this determines the bulk density
Documento de Remisión: El documento de remisión en una concretera es un comprobante que detalla la entrega de concreto incluyendo información sobre la cantidad tipo de mezcla y datos del proveedor y cliente Su función principal es garantizar que la entrega cumpla con los requisitos establecidos, servir como registro para ambas partes y facilitar la facturación y control de los volúmenes entregados
Delivery note: The delivery note in a concrete plant is a document that details the concrete delivery, including information about the quantity, mix type, and supplier and client details Its main function is to ensure that the delivery meets the established requirements serve as a record for both parties and facilitate invoicing and control of the delivered volume
Revisión a la unidad
Revisión a la unidad
Remisión
Normas
Ensayo de compresión
I N F O G R A F Í A S C M I C - I C I
( C Á M A R A M E X I C A N A D E L A
N D U S T R I A D E L A C O N S T R U C C I Ó N ) I N F O G R A P H I C S C M I C - I C I
Julieta Becerril Figueroa Marco Castillo Macías
Julieta Becerril Figueroa Marco Castillo Macías
Julieta Becerril Figueroa Marco Castillo Macías
Julieta Becerril Figueroa Marco Castillo Macías
Julieta Becerril Figueroa Marco Castillo Macías
Julieta Becerril Figueroa Marco Castillo Macías
Julieta Becerril Figueroa Marco Castillo Macías
Julieta Becerril Figueroa Marco Castillo Macías
C
P R Ó X I M O S P A S O S
N E X T S T E P S
Realizar prácticas profesionales y servicio social (2025-2026)
Internships and social service (2025-2026)
Titularme (Primavera 2026)
Graduate (Spring 2026)
Aplicar para un beca para maestría en Madrid (2026-2027)
Apply for a master's scholarship in Madrid (2026-2027)
Hacer un doctorado en el extranjero (2028-2029)
Pursue a PhD abroad (2028-2029)
Hacer voluntariados en distintos países
Do volunteer work in different countries
Participar en creación o restauración de refugios animales aplicando lo aprendido en mis estudios
Participate in the creation or restoration of animal shelters, applying what I have learned in my studies
Revisado por la Dra. Elizabeth Vázquez Quitl