Portfólio de Júlia Mendes - 2024

Page 1

2024

PORTFÓLIO DE PROJETO

CV MULTIFUNCIONAL SESC MOOCA

APTO TUCA

PORTFÓLIO DE CGI

CABANA TRI

APTO BOTTEH

JÚLIA DA SILVA MENDES

São Caetano do Sul - SP

Idade: 22 anos

Estado Civil: Solteira

Sempre estou à disposição e gosto de aprender Gosto muito do que faço, adoro o processo criativo e as representações para o entendimento do projeto Sendo que por isso estou sempre me atualizando com o pacote adobe para uma melhor representação. Os meus softwares favoritos são: Archicad para desenhos técnicos, 3ds Max para modelagem e Corona Render como renderizador.

@jusmendess

www.linkedin.com/in/jusmendess

Contato

E-mail: juliadasilvamendes2@gmailcom

Cel: (11) 95357-4155

Idiomas

Espanhol Intermediário

Inglês Básico

Formação Acadêmica

Bacharelado Arquitetura e Urbanismo - Início 2020

Universidade Municipal de São Caetano do Sul

Ensino Médio - Conclusão 2019

Instituo de Ensino Sagrada Família

Experiências Profissionais

Freelancer de Arquitetura e designer de interiores

Archfull Studio | Atualmente

Faço desde levantamento até detalhamento de executivo. Faço projeto

Preliminar, Projeto Básico, Projeto Legal, Projeto Executivo Além disso, serviços terceirizados para escritórios de arquitetura e/ou arquitetos autônomos

Estagiária de Arquitetura e Interiores

Studio Adi | Mai de 2022 a Jun de 2023

Faço desde o levantamento ao detalhamento do executivo Faço as etapas de projeto: Levantamento, Projeto Preliminar, Projeto Básico, Projeto Executivo e Detalhamento de Projeto executivo. Além disso, faço orçamento, apresentação para o cliente e renders fotorealistas

Estagiária de Gerenciamento da Obra e Administrativo

Conrado Ceravolo Arquitetos | Ago de 2021 a Mai de 2022

Fiz gerenciamento de obras residências, corporativas e comerciais; Fiz controle financeiro e administrativo do escritório; Elaboração de propostas para projetos e gerenciamentos da Obra; Conversas diretamente com os fornecedores;

Estagiária de Arquitetura para postos de Gasolina/Comercial

On Line Designer Eireli | Out de 2020 a Ago de 2021

Montei e acompanhei processos de aprovação de prefeitura e demais órgãos públicos Corrijei e desenhei plantas de arquitetura padrão prefeitura e demais órgãos envolvidos Busquei e atualizei as leis e decretos de aprovação de plantas e obras no estado de SP Desenhei em 3D os projetos e criei layouts. Fiz vistoria/levantamento.

Softwares Archicad SketchUp 3ds Max Autocad Photoshop InDesign Illustrator Corona Render Enscape Unreal ..... ..... ..... ..... ..... ..... ..... ..... ..... .....

M U L T I F U N C I

O N A L

O Complexo Multifuncional Tamanduateí foi pensado para trazer tecnologia e inovação para a região. Com o formato diferenciado e sistema estrutural complexo trouxeram essa forma monumental para o complexo.

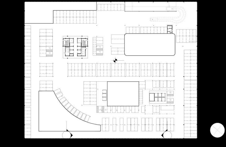
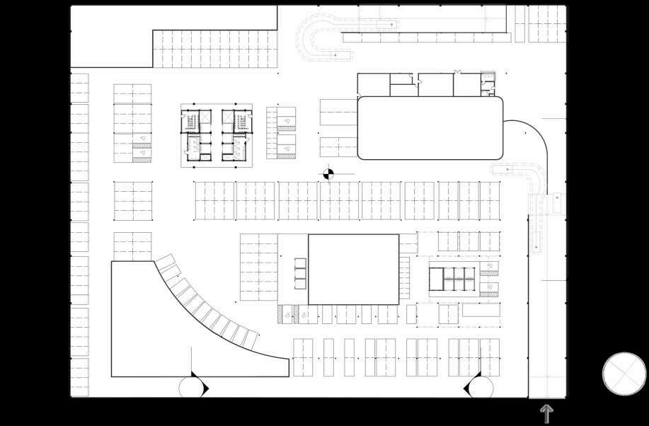
A quadra esta localizada na Avenida Presidente Kennedy com a Rua Vemag, em São Paulo perto da Estação Tamanduateí. O Projeto tem conceito de quadra aberta, tendo acesso por todos os lados da quadra. E, também, acesso de veículos para os subsolos

A mesma rampa de acesso de veículos é a mesma da saída, o primeiro subsolo foi pensado para moradores e Carga e Descarga Por isso, temos menos “vagas presas ” do que no segundo subsolo O vallet é super importante para os dois subsolos, é com eles que teremos uma fiscalização de automóveis

Para o complexo funcionar, setorizamos o prédio em 4 partes: Comércio, Lazer, Residencial e Corporativo. O comércio e o lazer precisam ter fácil acesso ao público, por isso, ficaram no térreo e no primeiro Pavimento. Além disso, são os andares que interligam as duas torres.

Logo, a partir do segundo pavimento começa as torres corporativa e residencial. Pensando na insolação do terreno, as torres tem alturas diferentes. A residencial tem 50 metros de altura e a Corporativa tem 85,5 metros de altura

A planta tipo do corporativo é livre, podemos mudar as paredes de lugar e fazer novas aberturas que não afetarão a estrutura Temos um núcleo de circulação vertical onde segura toda a parte central estrutural A estrutura do prédio é por meio de treliças metálicas, elas seguem com os pisos e os pilares A partir dos nós delas temos a fixação com todos os andares com o núcleo central.

Processo da Volumetria

Setorização Estrutura

Implantação com Térreo

ENTRADAESAÍDADE VEÍCULOS

AVENIDAPRESIDENTEWILSON

Primeiro Pavimento

DD D D S S DD S S S G A H D D D B C E E F 1 2 3 4 4 5 6 7 8 9 10 11 12 % ENTRADADE
RECÚO +550
PEDESTRES RECÚO
E N T R A D A D E P E D E S T R E S E N T R A D A D E P E D E S T R E S
R U A V E M A G B A B A C C D D N R E C Ú O R E C Ú O S G A H D D D B C E E F 1 2 3 4 4 5 6 7 8 9 10 11 12 % +1070 B A B A C C D D D S N

Primeiro Subsolo

Segundo Subsolo

D D G A H D D D B C E E F 1 2 3 4 4 5 6 7 8 9 10 11 12 ±000
VEÍCULOS P e su za ão Ge ado M C n odeM ção B A B A C C D D N D S D G A H D D D B C E E F 1 2 3 4 4 5 6 7 8 9 10 11 12 -550 Mo os B A B A C C D D N
ENTRADAESAÍDADE

Plata Tipo Corporativo

Apartamento A

Apartamento B

D S S D +1650
-550 -850 ±000 550 +8550 8250 +7950 +7650 7350 +7050 +6750 6450 +6150 +5850 5550 +5250 +4950 4650 +4350 +4050 3750 +3450 3150 +2850 +2550 2250 +1950 +1650 1350 +1050 10 11 12 -550 -850 ±000 550 +8550 8250 +7950 7650 +7350 +7050 6750 +6450 +6150 5850 +5550 +5250 4950 +4650 +4350 4050 +3750 +3450 3150 +2850 +2550 2250 +1950 1650 +1350 +1050 Corte AA
Corte BB
Corte Corte DD A B C D D D E E F G H 708 961 738 701 1200 903 867 1140 1345 925 -550 -850 ±000 550 +8550 8250 +7950 +7650 7350 +7050 +6750 +6450 +6150 5850 +5550 +5250 +4950 +4650 4350 +4050 +3750 +3450 +3150 2850 +2550 +2250 +1950 +1650 1350 +1050 H G F E E D D D C B A -550 -850 ±000 +550 +8550 +8250 +7950 7650 +7350 +7050 6750 +6450 6150 +5850 +5550 5250 +4950 4650 +4350 +4050 3750 +3450 +3150 +2850 +2550 2250 +1950 +1650 +1350 +1050 924 1345 1140 866 903 1200 701 738 9608 707

A

S E S C M O O C

SESC MOOCA está localizado na Mooca e traz sua personalidade para o local Como está localizado em uma região fabril e ao lado da Casa Vanorden - um bem tombadoo projeto traz modernidade e integração com o bem tombado.

Contendo 7 andares, contando com o subsolo, o SESC traz o conceito de quadra aberta. Tendo um pátio central descoberto e áreas de “respiro” para com a Casa Vanorden. No subsolo se encontra o teatro e a sala de música, tendo acesso pelo lado de fora da quadra e pelo elevador. A partir do térreo é onde tem atividades extras e oficinas, além de comedorias e cafeterias

O projeto teve de referência o SESC 24 de Maio, onde há um espelho d’água na área de convivência coberta Além disso, tem acesso e visualização dos 4 cantos do edifício

O edifício, além de trazer funcionalidade e modernidade, traz sustentabilidade e conforto O uso de brises com cores diferentes e um telhado verde que compõem o telhado inteiro.

A P T O T U C A

O Apartamento Tuca possui uma área de 75,35 m ² e destacase por suas paredes internas flexíveis que não comprometem a estrutura do edifício Ele foi concebido como uma opção "ideal" que inclui duas suítes e destina o centro do espaço como área comum, abrangendo sala de estar, sala de jantar e cozinha Adicionalmente, apresenta uma jardineira externa que integra harmoniosamente a fachada do prédio.

Ao contrário do projeto anterior, no qual os quartos e os banheiros eram segmentados por numerosas paredes internas, o Apartamento Tuca adota uma abordagem mais eficiente. Mesmo com um espaço central desimpedido, o design prioriza a acessibilidade, eliminando obstáculos que poderiam dificultar a circulação de pessoas com mobilidade reduzida

Um projeto de arquitetura de interiores destinado a pessoas com deficiência motora que utilizam cadeira de rodas deve contemplar diversas características ergonômicas e projetuais para assegurar acessibilidade, segurança e conforto Damos prioridade a espaços amplos e desobstruídos, visando facilitar a circulação e manobras das cadeiras de rodas, com o intuito de proporcionar um acesso fácil a todos os ambientes propostos no layout. Desse modo, garantimos que o ambiente seja totalmente acessível para pessoas com mobilidade reduzida, incluindo corredores generosos e portas amplas para permitir a passagem de cadeiras de rodas, andadores e muletas.

Criamos ambientes integrados com divisórias em marcenaria, como painéis e armários, para atender aos gostos e necessidades do casal para o qual o projeto foi destinado Este casal, que aprecia viagens, encontros com amigos, a natureza e momentos de apreciação de uma boa taça de vinho, apresenta particularidades em suas atividades diárias A esposa, uma artista plástica, ocasionalmente trabalha em casa, enquanto o marido, praticante de esportes paraolímpicos, tem uma vida social movimentada. O objetivo do projeto é unir funcionalidade, estética e independência, formando os três pilares primordiais para o casal.

C G I

O que significa?

São reproduções virtuais da realidade, utilizando softwares de 3D e renderizadores temos uma simulação da realidade.

Sempre me encantei com essa área, de cinema e animações Aprendi no decorrer da minha carreira profissional a como fazer imagens realistas

Pensando em cada detalhe, desde um simples vaso até a configuração de lentes de câmeras.

Ser um artista 3D é ir muito além de uma simples imagem, é transportar pessoas para projetos incríveis e ter a melhor experiência possível naquele projeto.

É uma área de complementa a de projeto, para vender o seu projeto precisamos mostrar para o cliente como ficará e assim ser aprovado Quanto mais realismo, mais fácil de ser realizado daquela forma

Softwares utilizados 3ds

Photoshop Corona Render ..... ..... .....
Max

C A B A N A T R I

Trazendo aconchego para uma floresta no clima frio, o chalé foi feito para isso Suas linhas atenuas e chamativas são o que chamam atenção

O quarto é onde tem a vista da floresta, uma vista tranquila e perfeita para uma lareira.

Toda em madeira e aço na cor preta, ela traz a sensação de frieza e o fogo como o aconchego que necessita.

A P T O B O T T E H

Um apartamento localizado no centro de São Paulo, traz sua personalidade com cores quentes. A admiração por móveis diversificados e marcenaria contemporânea, a sala de estar, sala de jantar e a cozinha formam um único núcleo

Sendo totalmente integrado, a utilização de linhas paralelas no ambiente. Tendo duas linhas de circulação e respiro de um ambiente para o outro.

A janela grande e com um banco acoplado é onde podemos ter nitidamente a junção desses ambientes Sendo refletida pelo corredor com as portas escondidas dos outros ambientes.

2024 juliadasilvamendes2@gmail.com (11) 95357-4155

Turn static files into dynamic content formats.

Create a flipbook
Issuu converts static files into: digital portfolios, online yearbooks, online catalogs, digital photo albums and more. Sign up and create your flipbook.