Design VIII Process Book

Page 1

STUDIO ADDITION

THE C.A.B.E. CONNECTOR
JEFFERSON UNIVERSITY DESIGN 08 PROFESSOR JAMES MCKENNA FALL 2022 PROCESS BOOK CREATED BY JESSICA FORSSELL & JULIANNE GROVE
SLOPED CAP FLASHING SELF-ADHERED MEMBRANE WOOD STUD BLOCKING 7" MINERAL WOOL INSULATION SELF-TAPPING SCREWS EPDM 1/8" COVERBOARD 13" RIGID INSULATION 8" CLT 1/2" VERTICAL TEAK SIDING 1" VERTICAL METAL FURRING CASCADIA RAINSCREEN CLIPS 3" MINERAL WOOL INSULATION BETWEEN FURRING VAPOR BARRIER 3/8" OSB 1/2" CLT 2" MINERAL WOOL BETWEEN STUD CAVITY 1/2" GYPSUM 1/2" ENGINEERED WOOD FINISH 0.20" POLYESTER FIBER MAT 1/2" OSB GYPCRETE BETWEEN 2X4 BLOCKING 1/2" RIGID FOAM INSULATION 10" CLT W21 62 I-BEAM 6" CLT LED RECESSED LINEAR LIGHT METAL BRACKET WITH SELF-TAPPING SCREWS MINERAL WOOL INSULATION BETWEEN STUD CAVITY 1/2" GYPSUM BOARD FOUNDATION DAMP PROOFING 4" RIGID INSULATION 12" CONCRETE FOUNDATION WALL 2X8 WOOD BLOCKING FLASHING J-BOLT ANCHOR FINISH GRADE CONTINOUS SEALANT BEAD SILL SEALER 6" CONCRETE SLAB 2" RIGID INSULATION 6MM POLYTHYLENE UNDER SLAB PROJECT NAME: FIRM: ADDRESS: FILE PATH: Autodesk Docs://F22 D8T5 (Project)/FINAL MODEL 10.29.rvt A40-01 The C.A.B.E. Connector Design 08_Tech 05 4201 Henry Avenue Jefferson University ARCHIVED 4201 Henry Avenue Philadelphia, PA 1/2" 1'-0" A31-01 CLT ROOF DETAIL CLT FLOOR TO WALL DETAIL 1/2" 1'-0" A12-02 CLT FLOOR TO GRADE DETAIL FOUNDATION DETAIL THE C.A.B.E CONNECTOR / TABLE OF CONTENTS 02 JF&JG SITE ANALYSIS PROGRAM & PRECEDENT ANALYSIS PARTI - DEVELOPMENT ENVIRONMENT MASSING STUDY BUILDING PLANS & CODES MECHANICAL SYSTEM STRUCTURAL SYSTEM MEP & STRUCTURAL ENVELOPE DETAILS PERSPECTIVES DATE: PROJECT NAME: CLASS NAME: ADDRESS: Autodesk Docs://F22 D8T5 (Project)/TRUSS STRUCTURE DIAGRAM JEF S10-01 Title Block Tech 05 12/5/2022 4201 Henry Avenue Philadelphia, PA 19144 Dane Bombara ARCHIVED 4201 Henry Avenue Philadelphia, PA 19144 1/8" = 1'-0" 106 A&D SEARCH HALL 11 EET ASS PA todes Do - D8T5 (Proje HVAC DIAGRAM JEF M10-01 he C.A.B.E. Conne De gn 08_Te 11/28/22 4201 Henr Av Phi ade phia, A Jefferson University 4201 Henr A Phi ade phia, A-SHEET NUMBER: SCALE: FILE PATH: 1/8" 1'-0" Autodesk Docs://F22 D8T5 (Project)/FINAL THIRD FLOOR RCP JEF A11-03 The C.A.B.E. Connector Design 08_Tech 05 12/05/2022 4201 Henry Avenue Philadelphia, PA Jefferson University ARCHIVED 4201 Henry Avenue Philadelphia, PA P . 03 - 10 P 11 - 14 P . 15 - 16 P . 17 - 20 P . 21 - 35 P 35 - 40 P 41 - 47 P 48 - 51 P . 52 - 62 P 63 - 72

THE C.A.B.E. CONNECTOR

SITE ANALYSIS

INVENTORY ( PEOPLE )

ANALYSIS ( PEOPLE )

INVENTORY ( CLIMATE )

ANALYSIS ( CLIMATE )

INVENTORY ( LAND )

ANALYSIS ( LAND )

INVENTORY ( BUILT )

ANALYSIS ( BUILT )

SITE ANALYSIS / INITIAL FINDINGS
04 JF&JG

LEGEND

MAJOR ( PEDESTRIAN )

INTERMEDIATE MINOR

05 JG SITE ANALYSIS / PEDESTRIAN CIRCULATION

MAJOR ( VEHICULAR )

MINOR SERVICE BIKE

SITE ANALYSIS / VEHICLE CIRCULATION
LEGEND
06 JG

SIGNIFICANT TREES

07 JF SITE
/ TREE
ANALYSIS
LOCATION LEGEND

SHADOWS

SITE ANALYSIS / CASTING SHADOWS LEGEND S F / S W 9 AM 12 PM 4 PM
08 JF
09 JF SITE ANALYSIS / WIND PATHS
LEGEND WIND

SHADOWS

SIGNIFICANT TREES

WIND

MAJOR ( VEHICULAR )

MINOR SERVICE BIKE

MAJOR ( PEDESTRIAN )

INTERMEDIATE

MINOR

SITE ANALYSIS / ELEMENTS COMBINED LEGEND S
F / S W 9 AM 12 PM 4 PM
10 JF&JG

THE

C.A.B.E.

CONNECTOR

PROGRAM & PRECEDENT ANALYSIS

PROGRAM & PRECEDENT ANALYSIS / SQUARE FOOTAGE EVALUATION
12 JF&JG
LOWER PLATE TOP OF LOWER PLATE UPPER PLATE PROGRAM EVALUATION
13 JG PROGRAM & PRECEDENT ANALYSIS / MILSTEIN HALL ANALYSIS
VARYING MATERIALS FLEXIBLE REVIEW SPACE

FLEXIBLE STUDIOS OUTDOOR CONNECTION

PROGRAM & PRECEDENT ANALYSIS / MILSTEIN HALL ANALYSIS
14 JF

CONNECTOR

PARTI-DEVELOPMENT

THE C.A.B.E.
PARTI - DEVELOPMENT / CONNECTION
16 JG
PATHS & VIEWS A&D AND SEARCH A&D SAWTOOTH SUN PATH

THE C.A.B.E. CONNECTOR

ENVIRONMENT MASSING STUDY

DESIGN DECISIONS

OUR ORIGINAL DESIGN FEATURED A SAWTOOTH FORM WITH GLAZING ON THE EASTERN AND SOUTHERN FACADES THESE DESIGN MOVES (BASED ON OUR HYPOTHESIS) WOULD MAXIMIZE THE SOLAR EXPOSURE DURING THE THREE SEASONS STUDENTS ARE USING THE BUILDING TO TEST OUR HYPOTHESIS WE RAN OUR STUDY WITH A FLAT ROOF AND NO SHADING DEVICES

OBSERVATIONS

THE HELIODON STUDY GAVE US THE CHANCE TO PROVE OUR HYPOTHESIS AND HIGHLIGHT WHEN THE SUN DID NOT HIT OUR BUILDING AS EXPECTED IN THE WINTER MORNINGS THE SUN HITS THE EASTERN FACADE AND PROVIDES AMPLE SUNLIGHT AT NOON FOR STUDIO IN THE FALL AND SPRING THERE WAS TOO MUCH LIGHT FROM THE SOUTH AND NOT ENOUGH ON THE EAST

RESPONSE

TO MANAGE THE EXCESSIVE SUN, WE DECIDED TO INTEGRATE BALCONIES ON THE SOUTHERN SIDE TO ACT AS A SHADING DEVICE SECONDLY, SLOPED ROOFS TO THE SOUTHEAST WERE APPLIED TO ALLOW MORE SUN INTO THE CENTRAL SPACE OF THE BUILDING

ENVIRONMENT MASSING STUDY / HELIODON STUDY 18 JG
DESIGN
MODIFIED
OBSERVATIONS
WINTER 9AM WINTER 12PM WINTER 12PM FALL/SPRING 12PM FALL/SPRING 12PM FALL/SPRING 4PM FALL/SPRING 4PM WINTER 9AM FLAT ROOF NO SHADING DEVICES
ON ROOF DECKS USED AS SHADING SCREENS ORIGINAL DESIGN IN NEED OF ROOF SKYLIGHTS LIGHT BRANCHING THROUGH TOO MUCH? LOTS OF LIGHT RUNNING THROUGH FROM SOUTH INTERESTING SHADOW WITH STAIR WALL GREAT LIGHT FOR STUDIO SPACES & GROUND FLOOR SKYLIGHTS VERY LITTLE LIGHT SOME LIGHT HITTING EASTERN FACE LARGE SHADOW FROM SEARCH & HAYWARD GREAT LIGHT FOR STUDIO BRING SOME SUN TO THE NORTH WITH SKYLIGHTS?
SKYLIGHTS

NO SHADING DEVICES

OBSERVATIONS

ENERGY INTENSITY

POWER IN SUMMER

4 80 KWH/FT^2 -4 80 KWH/FT^2 6 58 KWH/FT^2 -6 58 KWH/FT^2 0

6400 WATTS

0 WATTS -6400

ENERGY INTENSITY

POWER IN WINTER

AFTER SHADING & HVAC

DESIGN DECISIONS

ALONG WITH THE HELIODON STUDY, WE TESTED THE MODEL IN A GRASSHOPPER ENERGY SCRIPT WE FOCUSED ON TESTING A SINGLE STUDIO SPACE TO UNDERSTAND HOW MUCH ENERGY WAS BEING LOST AND GAINED DURING WINTER AND SUMMER MONTHS IN THE FIRST STUDY WE TESTED THE SPACE WITHOUT ANY SHADING DEVICES

OBSERVATIONS

UPON RUNNING THE SCRIPT IT BECAME EVIDENT THAT OUR BALCONIES (USED FOR SHADING) WERE NEEDED TO BALANCE THE AMOUNT OF ENERGY BEING LOST AND GAINED SINCE PENNSYLVANIA HAS COLD WINTERS AND HOT SUMMERS THE DATA EMPHASIZED A NEED FOR AN ADDITIONAL ENERGY DEVICE (SUCH AS AN HVAC SYSTEM) TO CREATE A COMFORTABLE STUDIO SPACE

RESPONSE

USING THE DATA FOUND FROM THE SCRIPT WE IMPLEMENTED A DECK AND HVAC SYSTEM THE DECK HYPOTHESIS FROM THE HELIODON STUDY PROVED TO BE TRUE BECAUSE IT HELPED TO SERVE AS A SHADING DEVICE ADDITIONALLY THE HVAC SYSTEM BALANCED OUT THE CHARTS AND PROVED TO BE NECESSARY FOR THE ROOMS THUS WE RESPONDED BY PLACING A MECHANICAL SYSTEM WITHIN OUR BUILDING

ENVIRONMENT MASSING STUDY / ENERGY STUDY 19 JG ORIGINAL DESIGN MODIFIED DESIGN
BEFORE SHADING & HVAC DECKS USED AS SHADING SCREENS
WATTS
WATTS -6400 WATTS
STORAGE COOLING WINDOW CONDUCTION OPAQUE CONDUCTION MECHANICAL VENTILATION INFILTRATION PEOPLE LIGHTING ELECTRONIC EQUIPMENT SOLAR HEATING
MODEL TRANSFORMATION
20 JG
ORIGINAL MODEL MODIFIED MODEL

C.A.B.E.

CONNECTOR

BUILDING PLANS & CODES

THE
BUILDING PLANS & CODES / INITIAL SKETCHES
22 JF&JG
FORM AND SPATIAL LAYOUT FLEXIBLE WALL DESIGN DESIGNING IN SECTION FINAL SKYLIGHT DESIGN INITIAL SKYLIGHT DESIGN INITIAL SKYLIGHT LAYOUT BASEMENT DESIGN FINAL SKYLIGHT LAYOUT
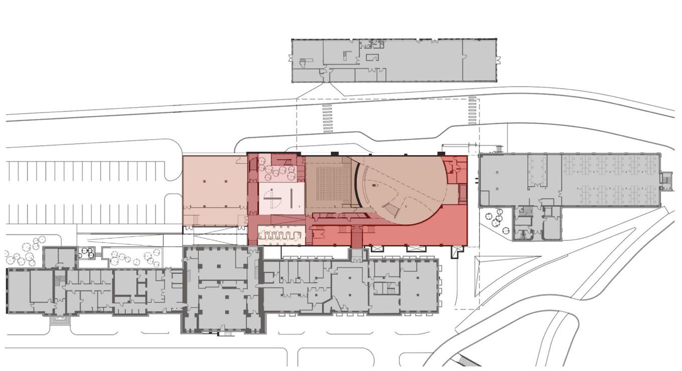
SHEET SHEET DRAWN DATE: PROJECT CLASS PROJECT SCALE: CLIENT FIRM: ADDRESS: FILE PATH: 1" Autodesk MODEL SITE JG The Design 12/05/2022 4201 Philadelphia, Jefferson ARCHIVED 4201 Philadelphia, A&D BUILDING SEARCH HALL HAYWARD HALL GUTMAN LIBRARY 23 JG C 0 20 N^ BUILDING PLANS & CODES / SITE PLAN C B A A B
UP 1 A30-01 522 SF LOADING ZONE A&D BASEMENT ENTRANCE 106 SF ELEVATOR 207 SF EGRESS 47 SF SHAFT 1 A31-01 A30-02 702 SF MECHANICAL 227 SF STORAGE 1094 SF LECTURE REVIEW 676 SF DIGITAL LAB 172 SF MEN'S RR 186 SF WOMEN'S RR DN A31-01 B C D E A BB CC 6 4 3 1 10 8 2 7 77 SF LASER LAB WOODSHOP 1365 SF LOUNGE/CRIT PIT 488 SF ELEVATOR 62 SF A&D SEARCH HALL 5 EGRESS 468 SF 9 DN 11 12 13 14 15 16 A20-01 A20-01 24 JG 0 5 10 20 N^ BUILDING PLANS & CODES / BASEMENT FLOOR PLAN A B C D E AA
UP 1 A30-01 522 SF LOADING ZONE A&D BASEMENT ENTRANCE 106 SF ELEVATOR 207 SF EGRESS 47 SF SHAFT 1 A31-01 A30-02 702 SF MECHANICAL 248 SF STORAGE 1079 SF LECTURE REVIEW 676 SF DIGITAL LAB 172 SF MEN'S RR 186 SF WOMEN'S RR DN A31-01 B C D E A BB CC 6 4 3 1 10 8 2 7 77 SF LASER LAB WOODSHOP 1365 SF LOUNGE/CRIT PIT 488 SF ELEVATOR 62 SF A&D SEARCH HALL 5 EGRESS 468 SF 9 DN 11 A20-01 A20-01 0 5 10 20 N^ 25 JG BUILDING PLANS & CODES / BASEMENT FLOOR PLAN (ALTERNATIVE)
1 A30-01 522 SF LOADING ZONE A&D BASEMENT ENTRANCE 1 A31-01 227 SF STORAGE B C D E A BB CC 6 4 3 1 10 8 2 7 A&D SEARCH HALL 5 9 11 12 13 14 15 16 A20-01 A20-01 0 5 10 20 N^ Use Type Allowed Have Area 18,000 15,793 Height Above Grade 85' 40' Stories Above Grade 6 3 Construction Type V-B III-A BUILDING PLANS & CODES / BASEMENT FLOOR CODES FLOOR CODE REQUIREMENTS Basement Room Name Function of Space Occupant Load Factor Square Footage Occupant load (SF/OL Factor) Allowable OL (Per Room) Egress sizing (Allowable OL *0.2") Number of Doors (Per Room) Workshop Shop area 50 Net 1365 27.3 28 5.6 1 Lecture/ Review Assembly w/out fixed seats, chairs only 7 Net 1094 156.3 157 31.4 2 Digital Lab Classroom Area 20 Net 676 33.8 34 6.8 1 Laser Lab Shop area 50 Net 77 1.54 2 0.4 1 Mechanical Accessory Storage Areas 300 Gross 663 2.2 3 0.6 1 Closet Accessory Storage Areas 300 Gross 227 0.8 1 0.2 1 Lounge/Crit Pit Assembly w/out fixed seats, unconcentrated 15 Net 488 32.5 33 6.6 1 Total 4590 258 26 JF&JG A B C D E AA
A30-02 A B C D E 1 2 3 4 5 6 7 8 9 10 BB CC AA 0 5 10 20 N^ BUILDING PLANS & CODES / GROUND FLOOR PLAN 27 JG

BUILDING REQUIREMENTS

B C D E 1 2 4 5 6 7 8 10 CC 0 5 10 20 N^ 28 JF&JG BUILDING PLANS & CODES / GROUND FLOOR CODES
All Levels Floor Total Occupant Load (OL) Egress Door Sizing (OL * 0.2") Egress Stair Sizing (OL * 0.3") Amount of Exit Doors/Stairs Required Door/Stair Width Sizing (in.)
2 Exit Stairs
Basement 258 51.6 77.4
38.7
Exit
Second Floor 208 41.6 62.4 2
Stairs 31.2 Third Floor 197 39.4 59.1 2 Exit Stairs 29.6 Ground Floor 663 132.6 N/A 3 44.2
A30-01 UP 350 SF EGRESS 106 SF ELEVATOR 257 SF WOMEN'S RR 124 SF OFFICE 122 SF OFFICE 122 SF OFFICE 280 SF CLASSROOM 283 SF CLASSROOM 592 SF STUDIO 677 SF STUDIO 385 SF LOUNGE 134 SF MATERIALS LIBRARY SNACK BAR & A&D MAIN FLOOR ENTRANCE SEARCH ENTRANCE SHAFT 64 SF A31-01 A30-02 2 A31-01 78 SF SHAFT B C D E A BB CC 6 4 3 1 10 8 2 7 5 ELEVATOR 62 SF MEN'S RR 193 SF 292 SF LOUNGE A&D SEARCH HALL 509 SF EGRESS 9 DN CLASSROOM 534 SF DN STUDIO 548 SF A20-01 A20-01 11 12 13 14 15 16 0 5 10 20 N^ 29 JG BUILDING PLANS & CODES / SECOND FLOOR PLAN A B C D E AA
A30-01 106 SF ELEVATOR A&D MAIN FLOOR ENTRANCE A31-01 A30-02 B C D E A 4 3 1 10 8 2 5 A&D SEARCH HALL 9 DN A20-01 A20-01 11 12 13 14 15 16 0 5 10 20 N^ FLOOR CODE REQUIREMENTS Level 2 Room Name Function of Space Occupant Load Factor Square Footage Occupant load (SF/OL Factor) Allowable OL (Per Room) Egress Sizing (Allowable OL *0. 2") Number of Doors (Per Room) Studio 1 Classroom Area 20 Net 592 29.6 30 6 1 Studio 2 Classroom Area 20 Net 677 33.9 34 6.8 1 Studio 3 Classroom Area 20 Net 548 27.4 28 5.6 1 Lounge Assembly w/out fixed seats, unconcentrated 15 Net 385 25.7 26 5.2 1 Lounge Assembly w/out fixed seats, unconcentrated 15 Net 326 21.7 22 4.4 Materials Library/Snack Bar Assembly w/out fixed seats, unconcentrated 15 Net 134 8.9 9 1.8 Classroom 1 Classroom Area 20 Net 280 14 14 2.8 Classroom 2 Classroom Area 20 Net 283 14.2 15 3 Classroom 3 Classroom Area 20 Net 534 26.7 27 5.4 Faculty Business Area 150 Gross 124 0.8 1 0.2 1 Faculty Business Area 150 Gross 122 0.8 1 0.2 1 Faculty Business Area 150 Gross 122 0.8 1 0.2 1 Total 4127 208 BUILDING PLANS & CODES / SECOND FLOOR CODES 30 JF&JG A B C D E AA
1 A30-01 122 SF OFFICE 122 SF OFFICE 124 SF OFFICE 257 SF WOMEN'S RR 193 SF MEN'S RR 542 SF EGRESS 677 SF STUDIO 511 SF STUDIO ELEVATOR 106 SF STUDIO 534 SF STUDIO 564 SF STUDIO 548 SF SHAFT 64 SF A31-01 1 A30-02 2 A31-01 B C D E A BB CC 6 4 3 1 10 8 2 7 5 78 SF SHAFT A&D 326 SF LOUNGE ELEVATOR 62 SF 9 SEARCH HALL DN EGRESS 350 SF STUDIO 548 SF A20-01 A20-01 11 12 13 14 15 16 0 5 10 20 N^ 31 JG BUILDING PLANS & CODES / THIRD FLOOR PLAN A B C D E AA
BUILDING PLANS THIRD FLOOR PLAN ALTERNATIVE 1 A30-01 122 SF OFFICE 122 SF OFFICE 124 SF OFFICE 257 SF WOMEN'S RR 193 SF MEN'S RR 542 SF EGRESS 5434 SF STUDIO 511 SF STUDIO ELEVATOR 106 SF STUDIO 534 SF STUDIO 564 SF STUDIO 548 SF SHAFT 64 SF A31-01 1 A30-02 2 A31-01 B C D E A BB CC 6 4 3 1 10 8 2 7 5 78 SF SHAFT A&D 326 SF LOUNGE ELEVATOR 62 SF 9 SEARCH HALL DN EGRESS 350 SF STUDIO 548 SF A20-01 A20-01 11 0 5 10 20 N^ 32 JG
1 A30-01 ELEVATOR 106 SF A31-01 1 A30-02 A31-01 B C D E A CC 6 4 3 1 10 8 2 7 5 A&D 9 SEARCH HALL A20-01 A20-01 11 12 13 14 15 16 33 JF&JG BUILDING PLANS & CODES / THIRD FLOOR CODES FLOOR CODE REQUIREMENTS Level 3 Room Name Function of Space Occupant Load Factor Square Footage Occupant load (SF/OL Factor) Allowable Occupant Load (Per Room) Egress Sizing (Allowable OL *0.2") Number of Doors (Per Room) Studio 4 Classroom Area 20 Net 534 26.7 27 5.4 1 Studio 5 Classroom Area 20 Net 548 27.4 28 5.6 1 Studio 6 Classroom Area 20 Net 677 33.9 34 6.8 1 Studio 7 Classroom Area 20 Net 511 25.6 26 5.2 1 Studio 8 Classroom Area 20 Net 548 27.4 28 5.6 1 Studio 9 Classroom Area 20 Net 564 28.2 29 5.8 1 Faculty Business Area 150 Gross 124 0.8 1 0.2 1 Faculty Business Area 150 Gross 122 0.8 1 0.2 1 Faculty Business Area 150 Gross 122 0.8 1 0.2 1 Lounge Assembly w/out fixed seats, unconcentrated 15 Net 326 21.7 22 4.4 1 Total 4076 197 0 5 10 20 N^ A B C D E AA
A B C D A30-01 A31-01 A30-02 A31-01 E AA BB CC 6 4 3 1 10 8 2 7 5 9 A&D SEARCH HALL
HIGH POINT: +48'-10" LOW POINT: +47'-6" A20-01 A20-01 BUILDING PLANS & CODES / ROOF PLAN 0 5 10 20 N^ 34 JG
1/4":12" 1/4":12" 1/4":12" 1/4":12"

MECHANICAL SYSTEM

THE C.A.B.E. CONNECTOR

POTENTIAL DUCT SIZES

:

AIR VOLUME / 20000 CFM

TOTAL CROSS SECTION SUPPLY / 12 SF

BRANCH DUCTS / 20 SF

FAN ROOM AREA / 650 SF

FRESH AIR LOUVERS / 50 SF

EXHAUST AIR LOUVERS / 40 SF

SYSTEM TYPE : FORCED AIR HVAC UNIT

LOCATION : 2 CENTRAL AIR CONDITIONERS ON GROUND LEVEL

ZONES : 2 ZONES / SPLIT UNIT

CHART FROM THE ARCHITECT'S STUDIO COMPANION

MECHANICAL SYSTEM / DUCT SIZING
36 JG

SUPPLY RETURN EXHAUST

ADDRESS:

7 9

PROJECT NAME:

The C.A.B.E. Connector

PROJECT ADDRESS:

4201 Henry Avenue Philadelphia, PA

11

ARCHIVED 4201 Henry Avenue Philadelphia, PA 10 WOOD PANEL CEILING 9'-0" A.F.F.

9 11

The C.A.B.E. Connector

PROJECT ADDRESS:

4201 Henry Avenue Philadelphia, PA

CLASS NAME:

8 WOOD PANEL CEILING 13'-0" A.F.F.

Design 08_Tech 05

CLIENT NAME:

Jefferson University

DRAWN BY:

Design 08_Tech 05

CLIENT NAME:

Jefferson University

10

4201 Henry Avenue Philadelphia, PA Jefferson University 5

12/05/2022

SCALE:

DATE:

12/05/2022

SCALE:

4201 Henry A Philadelphia,

SHEET NAME:

BASEMENT RCP

JEF A11-01

SHEET NUMBER:

FILE PATH:

1/8" 1'-0" Autodesk Docs://F22 - D8T5 (Project)/FINAL MODEL 10.29.rvt

JEF A11-01

BASEMENT RCP

FILE PATH:

1/8" 1'-0" Autodesk Docs://F22 D8T5 (Project)/FINAL MODEL 10.29.rvt

37 JF

MECHANICAL SYSTEM / BASEMENT DUCTS UP
LECTURE REV EW 1146 SF D G TAL LAB 755 SF MEN'S RR 172 SF WOMEN S RR 186 SF LOUNGE CR T P T 489 SF WOODSHOP 1365 SF MECHAN CAL
SF
M11
0 5 10 20 N^ LEGEND
BB CC 6 4
-8 7 5 9 WOOD PANEL CEILING 9'-0" A.F.F.
663 WOOD PANEL CEILING 13'-0" A.F.F.
SHEET NAME SHEET NUMBER DRAW N BY DATE: PROJECT NAME: CLASS NAME: PROJECT ADDRESS SCALE: CLIENT NAME FIRM ADDRESS FILE PATH: 1/8" = 1'-0" Autodesk Docs: /F22 - D8T5 BASEMENT DUCT JEF
The C.A.B.E. Design 08_Te 11/28/22
4201 Henry Av Philadelphia, Jefferson University
11
SHEET NAME: SHEET NUMBER: DRAWN BY: DATE: PROJECT NAME: CLASS NAME: PROJECT ADDRESS: SCALE: CLIENT NAME: FIRM: ADDRESS: FILE PATH: 1/8" 1'-0" Autodesk Docs://F22 - D8T5 (Project)/FINAL MODEL 10.29.rvt BASEMENT RCP JEF A11-01
The C.A.B.E. Connector
Design 08_Tech 05 12/05/2022 BB CC
ARCHIVED 4201 Henry Avenue Philadelphia, PA
6 10 8 7
DRAWN BY: DATE:
PROJECT NAME:
SHEET NAME:
SHEET NUMBER:
CLASS NAME:

BB CC

LEGEND

6 10 8 7

ARCHIVED

ADDRESS:

0 5 10 20 N^ 38 JF

PROJECT NAME:

The C.A.B.E. Connector

PROJECT ADDRESS:

4201 Henry Avenue Philadelphia, PA

PROJECT NAME:

The C.A.B.E. Connector

PROJECT ADDRESS:

11

4201 Henry Avenue Philadelphia, PA 10 WOOD PANEL CEILING 9'-0" A.F.F.

The C.A.B.E. Connector

CLASS NAME:

Design 08_Tech 05

CLIENT NAME:

Jefferson University

CLASS NAME:

Design 08_Tech 05

CLIENT NAME:

4201 Henry Avenue Philadelphia, PA Jefferson University

6 4 10 8 7 5 9

DRAWN BY: DATE:

4201 Henry Avenue Philadelphia, PA Jefferson University

JEF

12/05/2022

SCALE:

12/05/2022

SCALE:

MENSRR 193SF

Design 08_Tech 05 12/05/2022

JEF A11-01

BASEMENT RCP

FILE PATH:

STUDIO563SF STORAGE 124SF OFFICE122SF CLASSROOM 269SF

1/8" 1'-0" Autodesk Docs://F22 - D8T5 (Project)/FINAL MODEL 10.29.rvt

BASEMENT RCP

JEF A11-01

CLASSROOM 305SF STUDIO553SF

SHEET NAME:

BASEMENT RCP

SHEET NUMBER:

A11-01

1/8" 1'-0" Autodesk Docs://F22 D8T5 (Project)/FINAL MODEL 10.29.rvt

4201 Henry Aven Philadelphia, PA

FILE PATH:

STUDIO681SF LOUNGE410SF

PROJECT NAME: CLASS NAME

STUDIO595SF OFFICE122SF SHEET NAME: SHEET NUMBER

The C.A.B.E. Conne Design 08_Tech 11/28/22

CL ENT NAME:

4201 Henry Aven Philadelphia, PA Jefferson University

DRAW N BY: DATE:

PROJECT ADDRESS SCALE

1/8" = 1'-0"

SECOND FLOO DUCTS

M11-02

FIRM: ADDRESS: FI D8T5 (Proje

MECHANICAL SYSTEM / SECOND FLOOR DUCTS-
WOMENSRR 227SF
JEF
BB CC
WOOD PANEL CEILING 9'-0" A.F.F.
WOOD PANEL CEILING 13'-0" A.F.F.
SUPPLY RETURN EXHAUST
11
SHEET NAME: SHEET NUMBER: DRAWN BY: DATE: PROJECT NAME: CLASS NAME: PROJECT ADDRESS: SCALE: CLIENT NAME: FIRM: ADDRESS: FILE PATH: 1/8"
1'-0" Autodesk Docs://F22 - D8T5 (Project)/FINAL MODEL 10.29.rvt
5
ARCHIVED 4201 Henry Avenue Philadelphia, PA
9 11
SHEET NAME: SHEET NUMBER:
8 WOOD PANEL CEILING 13'-0" A.F.F.
7 9
DRAWN BY: DATE:

WOOD PANEL CEILING 9'-0" A.F.F.

5

BB CC

ADDRESS:

PROJECT NAME:

The C.A.B.E. Connector

PROJECT ADDRESS:

CC

9 11

PROJECT NAME:

ARCHIVED 4201 Henry Avenue Philadelphia, PA 10 WOOD PANEL CEILING 9'-0" A.F.F.

4201 Henry Avenue Philadelphia, PA

The C.A.B.E. Connector

PROJECT ADDRESS:

WOMENSRR 227SF

CLASS NAME:

8 WOOD PANEL CEILING 13'-0" A.F.F.

CLASS NAME:

Design 08_Tech 05

CLIENT NAME:

4201 Henry Avenue Philadelphia, PA Jefferson University

6 4 10 8 7 5 9

12/05/2022

SCALE:

MENSRR 193SF

The C.A.B.E. Connector

PROJECT NAME: CLASS NAME:

Design 08_Tech 05

CLIENT NAME:

Jefferson University

JEF A11-01

1/8" 1'-0" Autodesk Docs://F22 - D8T5 (Project)/FINAL MODEL 10.29.rvt

BASEMENT RCP

FILE PATH:

4201 Henry Avenue Philadelphia, PA Jefferson University

DRAWN BY:

Design 08_Tech 05 12/05/2022

CLIENT NAME:

PROJECT ADDRESS: SCALE:

12/05/2022

4201 Henry A Philadelphia, LEGEND

SCALE:

STUDIO600SF OFFICE122SF

FIRM: ADDRESS: FILE PATH:

STUDIO563SF STORAGE 124SF OFFICE122SF STUDIO564SF STUDIO553SF

JEF A11-01

1/8" 1'-0" Autodesk Docs://F22 - D8T5 (Project)/FINAL MODEL 10.29.rvt

BASEMENT RCP

SHEET NAME:

BASEMENT RCP

JEF A11-01

SHEET NUMBER:

STUDIO681SF STUDIO511SF

1/8" 1'-0" Autodesk Docs://F22 D8T5 (Project)/FINAL MODEL 10.29.rvt

FILE PATH:

PROJECT NAME: CLASS NAME:

CLIENT NAME

PROJECT ADDRESS SCALE:

DRAW N BY DATE:

JEF

FIRM ADDRESS FILE PATH:

1/8" = 1'-0" Autodesk Docs: /F22 - D8T5

SHEET NAME SHEET NUMBER

THIRD FLOOR

4201 Henry Av Philadelphia, Jefferson University 0 5 10 20 N^

39 JF MECHANICAL SYSTEM / THIRD
FLOOR DUCTS-
M11
The C.A.B.E. Design 08_Te 11/28/22
WOOD PANEL CEILING 13'-0" A.F.F.
SUPPLY RETURN EXHAUST
BB
11
SHEET NAME: SHEET NUMBER:
DRAWN BY: DATE:
ARCHIVED 4201 Henry Avenue Philadelphia, PA
6 10 8 7
SHEET NAME: SHEET NUMBER:
DRAWN BY: DATE:
7 9
11
DATE:
MECHANICAL SYSTEM / AXONOMETRIC SHEET NAME SHEET NUMBER: DRAW N BY DATE PROJECT NAME CLASS NAME: PROJECT ADDRESS SCALE CLIENT NAME FIRM ADDRESS FILE PATH Autodesk Docs: F22 - D8T5 (Projec ) MEP rv HVAC DIAGRAM JEF M10-01 The
11/28/22
2 HVAC D agram- Level 2 1 HVAC D agram- Level 3 3 HVAC D agram- Basement 4 HVAC D agram- Roo 40 JF
C.A.B.E. Connector Design 08_Tech 05
4201 Henry Avene Philadelphia, PA Jefferson University 4201 Henry Avene Philadelphia, PA

STRUCTURAL SYSTEM

THE C.A.B.E. CONNECTOR

STRUCTURAL STEEL BEAMS AND GIRDERS

STRUCTURAL STEEL TRUSSES

21 IN 28 FT-LONGEST BEAM SPAN 34 FT-LONGEST GIRDER SPAN (BETWEEN BEAMS)

This chart is for steel wide-flange beams, composite beams, and girders. For average and light loads, read toward the right in the indicated areas. For heavy loads, read toward the left.

Beams or girders acting as part of a rigid frame for lateral stability may be deeper than indicated by this chart.

Standard depths of shapes come in 2-in. (50-mm) increments up to 18 in. (450 mm) deep, and in 3-in. (75mm) increments for larger sizes.

103

106

FIRE-RESISTANCE RATINGS FOR STEEL BEAMS AND GIRDERS

CHART TAKEN FROM ARCHITECTS STUDIO COMPANION 42 JG

10 IN 34 FT 28 FT CHARTS FROM THE ARCHITECT'S STUDIO COMPANION

Widths of beams and girders range from approximately onethird to one-half the depth of the member. Heavy sections used for heavy loads or to conserve depth may be wider.

Depths of up to 36 in. (914 mm) are available as standard rolled sections. Deeper beams capable of longer spans may be shop-fabricated.

11 FT 145 FT 145 FT-LONGEST TRUSS SPAN

ECONOMICAL SPAN RANGES FOR PARALLEL CHORD TRUSSES

Parallel chord trusses are most economical for spans up to 120 to l40 ft (35 to 45 m) due to the increased difficulty of shipping elements greater than 12 ft (3.7 m) deep. Triangular and bowstring trusses can be shipped at slightly greater depths. Trusses spanning 300 ft (90 m) or more may be shipped in sections and assembled on site.

FIRE-RESISTANCE RATINGS FOR STEEL TRUSSES

Structural steel trusses may be used in both Combustible and Noncombustible Construction. Fire-resistance ratings of as high as 4 hours are achievable with applied fireproofing or an appropriately fire-resistive ceiling. Some building codes also allow reduced fire protection or exposed steel for roof structures that are 15 to 25 ft (4.6 to 7.6 m) or more above the floor.

CHART TAKEN FROM ARCHITECTS STUDIO COMPANION

The chart on this page is for steel trusses fabricated from structural steel members. Because these trusses are custom designed and fabricated, a great variety of shapes and configurations is possible.

STRUCTURAL SYSTEM / BEAMS & TRUSS SIZING
07_9780470641910-cmp04.indd 106 10/12/11 12:38 PM
SIZING THE STRUCTURAL SYSTEM
07_9780470641910-cmp04.indd 103 10/12/11 12:38 PM
Steel beams and girders may be used in both Combustible and Noncombustible Construction. Fire-resistance ratings of as high as 4 hours are achievable with applied fireproofing or an appropriately fireresistive ceiling. Some building codes also allow reduced fire protection or exposed steel for roof structures that are 15 to 25 ft (4.6 to 7.6 m) or more above the floor.

DESIGN DECISIONS

THE STRUCTURAL SYSTEM FOR OUR CANTELIEVERED BUILDING REQUIRED A TRUSS THAT WOULD HOLD THE LOAD THAT THE TWO EGRESS TOWERS TOUCHING THE GROUND COULD NOT OUR ORIGINAL DESIGN INTERGRATED VEIRENDEEL TRUSSES THAT RAN THE LENGTH OF THE BUILDING AND WERE SUPPORTED BY THE WALLS OF THE EGRESS TOWERS TO HOLD THE LOAD OF THE CANTELIEVERED STUDIOS WERE BEAMS AND GIRDERS THAT CONNECTED DIRECTLY TO THE VEIRENDEEL TRUSSES

OBSERVATIONS

AFTER CALCULATING THE SIZES OF THE BEAMS AND TRUSSES IT WAS EVIDENT THAT THEY WOULD BE TOO LARGE FOR THE BUILDING TO SUPPORT THE LOAD IT ALSO WAS EVIDENT THAT THE VIERENDEEL TRUSS WAS SUBJECT TO BENDING AND TITLTING DUE TO THE TRUSS DESIGN THUS A DIFFERENT LOCATION OF THE TRUSS AND INCORPORATION OF CROSS BRACING WAS NEEDED

RESPONSE

AS A RESULT OF THE LOAD AND DESIGN ISSUE WE REPLACED THE VIERENDEEL WITH A BOX TRUSS AND PLACED IT ON THE ROOF RATHER THAN SPANNING IT FROM FLOOR TO CEILING WE THEN "HUNG" THE BUILDING FROM THE TRUSS WITH THE USE OF COLUMNS HANGING THE STRUCTURE GAVE US AN OPEN FLOOR PLAN AND MADE THE SIZE OF THE BEAMS AND TRUSSES SMALLER

STRUCTURAL SYSTEM / STRUCTURE STUDY 43 JG
FLAT ROOF NO SHADING DEVICES SKYLIGHTS ON ROOF DECKS USED AS SHADING SCREENS ORIGINAL DESIGN MODIFIED DESIGN OBSERVATIONS 37 JF STRUCTURAL SYSTEM / STRUCTURE STUDY W21 COLUMN W14 X 233 COLUMN W21 GIRDER PARALLEL CHORD TRUSS CONCRETE FOOTING TRUSS CROSS BRACING PARALLEL CHORD TRUSS ORIGINAL
MODIFIED TRUSS
VIERENDEEL TRUSS WARREN BOX TRUSS FLOOR TO CEILING HEIGHT ONTOP OF ROOF CONCRETE EGRESS WALLS CONCRETE BASEMENT WALLS & FOOTING TEAK EGRESS WALLS COLUMNS SUSPENDED FROM TRUSS BEAMS & GIRDER SUPPORT FROM CENTRAL TRUSS 37 JF&JG STRUCTURAL SYSTEM / STRUCTURE STUDY SHEET SHEET DRAWN DATE: PROJECT CLASS PROJECT SCALE: CLIENT FIRM: ADDRESS: FILE Autodesk STRUCTURE.rvt STRUCTURE JEF Title Tech 12/5/2022 4201 Philadelphia, Dane ARCHIVED 4201 Philadelphia, STRUCTURAL CLT WALL W21 62 COLUMN W33 387 COLUMN W14 233 COLUMN W14 34 BEAM PARALLEL CHORD TRUSS STRUCTURAL CLT WALL CONCRETE FOUNDATION WALL CONCRETE FOOTING CONCRETE COLUMN FOOTER TRUSS CROSS BRACING PARALLEL CHORD TRUSS 1/8" ORIGINAL TRUSS STRUCTURE MODIFIED TRUSS STRUCTURE VIERENDEEL TRUSS WARREN BOX TRUSS FLOOR TO CEILING HEIGHT ONTOP OF ROOF CONCRETE EGRESS WALLS CONCRETE BASEMENT WALLS & FOOTING TEAK EGRESS WALLS COLUMNS SUSPENDED FROM TRUSS BEAMS & GIRDER SUPPORT FROM CENTRAL TRUSS SHEET NAME: SHEET NUMBER: DRAWN BY: DATE: PROJECT NAME: CLASS NAME: PROJECT ADDRESS: SCALE: CLIENT NAME: FIRM: ADDRESS: FILE PATH: Autodesk Docs://F22 D8T5 (Project)/TRUSS STRUCTURE.rvt STRUCTURE DIAGRAM JEF S10-01 Title Block Tech 05 12/5/2022 4201 Henry Avenue Philadelphia, PA 19144 Dane Bombara ARCHIVED 4201 Henry Avenue Philadelphia, PA 19144 STRUCTURAL CLT WALL W21 COLUMN W33 387 COLUMN W14 233 COLUMN W21 GIRDER CONCRETE FOUNDATION WALL CONCRETE FOOTING CONCRETE COLUMN FOOTER TRUSS CROSS BRACING 1/8" = 1'-0"
TRUSS STRUCTURE
STRUCTURE
A B C D 2 1 3 4 5 6 7 8 E BB AA W33 X 387 COLUMN CONCRETE FOUNDATION WALL CONCRETE FOOT NG CONCRETE SLAB CONCRETE FOOT NG STRUCTURAL SYSTEM / BASEMENT GRIDS SHEET NAME SHEET NUMBER DRAWN BY DATE C ASS NAME SCALE CL ENT NAME FILE PATH 1" = 10'-0" Au o es D c F22 - D T5 P ojec TRUSS STRUCTURE.r BASEMENT GRID JEF S11-01 Tech 05 12/5/2022 4201 Henry Avenue Philadelphia, PA 19144 Dane Bombara BASEMNT KEY D AGRAM 2 0 5 10 20 N^ 44 JF
45 JF STRUCTURAL SYSTEM / SECOND & THIRD FLOOR GRIDS A B C D 2 1 3 4 5 6 7 8 E BB AA STRUCTURAL CLT WALL W21 X 62 COLUMN W33 X 387 COLUMN W14 X 233 COLUMN W21 X 62 GIRDER W14 X 34 BEAM W21 X 62 G RDER PARALLEL CHORD TRUSS PARALLEL CHORD TRUSS SHEET NAME SHEET NUMBER DRAWN BY DATE C ASS NAME SCALE CL ENT NAME FILE PATH 1" = 10'-0" Au o es D c F22 - D T5 P ojec TRUSS STRUCTURE.r LEVEL 2 & 3 GRID JEF S11-02 Tech 05 12/5/2022 4201 Henry Avenue Philadelphia, PA 19144 Dane Bombara W14 233 CO UMN LEVELS 2 & 3 KEY D AGRAM 2 0 5 10 20 N^
STRUCTURAL SYSTEM / ROOF TRUSS GRID A B C D 2 1 3 4 5 6 7 8 E BB AA PARALLEL CHORD TRUSS PARALLEL CHORD TRUSS TRUSS CROSS BRAC NG SHEET NAME SHEET NUMBER DRAWN BY DATE C ASS NAME SCALE CL ENT NAME FILE PATH 1" = 10'-0" Au o es D c F22 - D T5 P ojec TRUSS STRUCTURE.r ROOF GRID JEF S11-03 Tech 05 12/5/2022 4201 Henry Avenue Philadelphia, PA 19144 Dane Bombara ROOF KEY D AGRAM 2 0 5 10 20 N^ 46 JF
47 JF STRUCTURAL SYSTEM / AXONOMETRIC SHEET NAME: SHEET NUMBER: DRAWN BY: DATE: PROJECT NAME: CLASS NAME: PROJECT ADDRESS: SCALE: CLIENT NAME: FIRM: ADDRESS: FILE PATH: Autodesk Docs://F22 - D8T5 (Project)/TRUSS STRUCTURE.rvt STRUCTURE DIAGRAM JEF S10-01 Title Block Tech 05 12/5/2022 4201 Henry Avenue Philadelphia, PA 19144 Dane Bombara ARCHIVED 4201 Henry Avenue Philadelphia, PA 19144 STRUCTURAL CLT WALL W21 X 62 COLUMN W33 X 387 COLUMN W14 X 233 COLUMN W21 X 62 GIRDER W14 X 34 BEAM PARALLEL CHORD TRUSS STRUCTURAL CLT WALL CONCRETE FOUNDATION WALL CONCRETE FOOTING CONCRETE COLUMN FOOTER TRUSS CROSS BRACING PARALLEL CHORD TRUSS 1/8" = 1'-0"

CONNECTOR

MEP & STRUCTURAL

THE C.A.B.E.

BB

PROJECT NAME:

ARCHIVED 4201 Henry Avenue Philadelphia, PA

The C.A.B.E. Connector

PROJECT ADDRESS:

4201 Henry Avenue Philadelphia, PA

PROJECT NAME:

The C.A.B.E. Connector

ARCHIVED 4201 Henry Avenue Philadelphia, PA 10 WOOD PANEL CEILING 9'-0" A.F.F.

PROJECT ADDRESS:

4201 Henry Avenue Philadelphia, PA

CLASS NAME:

11

The C.A.B.E. Connector

CLASS NAME:

CLIENT NAME:

Jefferson University

CLIENT NAME:

4201 Henry Avenue Philadelphia, PA Jefferson University CC

Jefferson University

DRAWN BY: DATE:

Design 08_Tech 05 12/05/2022

SCALE:

DRAWN BY: DATE:

Design 08_Tech 05 12/05/2022

SCALE:

JEF A11-01

BASEMENT RCP

ADDRESS: FILE PATH:

1/8" 1'-0" Autodesk Docs://F22 - D8T5 (Project)/FINAL MODEL 10.29.rvt

SHEET NUMBER:

BASEMENT RCP

JEF A11-01

- D8T5 (Project)/FINAL MODEL 10.29.rvt

SHEET NAME:

BASEMENT RCP

JEF A11-01

SHEET NUMBER:

FILE PATH:

1/8" 1'-0" Autodesk Docs://F22 D8T5 (Project)/FINAL MODEL 10.29.rvt

49 JF MEP & STRUCTURAL / BASEMENT FLOOR RCP B C D E A BB CC
3 1
2
5
WOOD PANEL CEILING
A.F.F.
WOOD
0 5 10 20 N^ LEGEND SUPPLY
BB CC 6 4
7 5
WOOD PANEL CEILING 9'-0" A.F.F.
WOOD PANEL CEILING 13'-0" A.F.F.
6 4
10 8
7
9
9'-0"
11
PANEL CEILING 13'-0" A.F.F. SHEET NAME: SHEET NUMBER: DRAWN BY: DATE: PROJECT NAME: CLASS NAME: PROJECT ADDRESS: SCALE: CLIENT NAME: FIRM: ADDRESS: FILE PATH: 1/8" 1'-0" Autodesk Docs://F22 D8T5 (Project)/FINAL MODEL 10.29.rvt BASEMENT RCP JEF A11-01 The C.A.B.E. Connector Design 08_Tech 05 12/05/2022 4201 Henry Avenue Philadelphia, PA Jefferson University ARCHIVED 4201 Henry Avenue Philadelphia, PA
RETURN EXHAUST
10 8
9
11
SHEET NAME: SHEET NUMBER: DRAWN BY: DATE: PROJECT NAME: CLASS NAME: PROJECT ADDRESS: SCALE: CLIENT NAME: FIRM: ADDRESS: FILE PATH: 1/8" 1'-0" Autodesk Docs://F22
Design 08_Tech 05 12/05/2022
6 10 8 7 5 9 11
SHEET NAME:
8 WOOD PANEL CEILING 13'-0" A.F.F.
7 9

50 JF

The C.A.B.E. Connector

7 9

8

4201 Henry Avenue Philadelphia, PA

11

ARCHIVED 4201 Henry Avenue Philadelphia, PA 10 WOOD PANEL CEILING 13'-0" A.F.F.

Jefferson University

MEP & STRUCTURAL / SECOND FLOOR RCP B C D E A BB CC 6 4 3 1 10 8 2 7 5 9 11 SUSPENDED WOOD BAFFLES 9'-6" A.F.F. SHEET NAME: SHEET NUMBER: DRAWN BY: DATE: PROJECT NAME: CLASS NAME: PROJECT ADDRESS: SCALE: CLIENT NAME: FIRM: ADDRESS: FILE PATH: 1/8" 1'-0" Autodesk Docs://F22 D8T5 (Project)/FINAL MODEL 10.29.rvt SECOND FLOOR RCP JEF A11-02 The C.A.B.E. Connector Design 08_Tech 05 12/05/2022 4201 Henry Avenue Philadelphia, PA Jefferson University ARCHIVED 4201 Henry Avenue Philadelphia, PA 0 5 10 20 N^ LEGEND SUPPLY RETURN EXHAUST BB CC 6 4 10 8 7 5 9 WOOD PANEL CEILING 9'-0" A.F.F. 11 WOOD PANEL CEILING 13'-0" A.F.F. SHEET NAME: SHEET NUMBER: DRAWN BY: DATE: PROJECT NAME: CLASS NAME: PROJECT ADDRESS: SCALE: CLIENT NAME: FIRM: ADDRESS: FILE PATH: 1/8" 1'-0" Autodesk Docs://F22 - D8T5 (Project)/FINAL MODEL
10.29.rvt BASEMENT RCP JEF A11-01
BB CC 6
8 7 5
ADDRESS:
The C.A.B.E. Connector Design 08_Tech 05 12/05/2022 4201 Henry Avenue Philadelphia, PA Jefferson University ARCHIVED 4201 Henry Avenue Philadelphia, PA
10
9 11 SHEET NAME: SHEET NUMBER: DRAWN BY: DATE: PROJECT NAME: CLASS NAME: PROJECT ADDRESS: SCALE: CLIENT NAME:
FILE PATH: 1/8" 1'-0" Autodesk Docs://F22 - D8T5 (Project)/FINAL MODEL 10.29.rvt BASEMENT RCP JEF A11-01
Design 08_Tech 05 12/05/2022
4201 Henry Avenue Philadelphia, PA Jefferson University WOOD PANEL CEILING 9'-0" A.F.F.
SHEET NAME: SHEET NUMBER: DRAWN BY: DATE: PROJECT NAME: CLASS NAME: PROJECT ADDRESS: SCALE: CLIENT NAME: FILE PATH: 1/8" 1'-0" Autodesk Docs://F22 D8T5 (Project)/FINAL MODEL 10.29.rvt BASEMENT RCP JEF A11-01
The C.A.B.E. Connector
Design 08_Tech 05 12/05/2022

The C.A.B.E. Connector

4201 Henry Avenue Philadelphia, PA

4201 Henry Avenue Philadelphia, PA Jefferson University

The C.A.B.E. Connector Design 08_Tech 05 12/05/2022

Jefferson University

Design 08_Tech 05 12/05/2022

JEF A11-01

BASEMENT RCP

51 JF MEP & STRUCTURAL / THIRD FLOOR RCP B C D E A BB CC 6 4 3 1 10 8 2 7 5 9 11 SUSPENDED WOOD BAFFLES 9'-6" A.F.F. SHEET NAME: SHEET NUMBER: DRAWN BY: DATE: PROJECT NAME: CLASS NAME: PROJECT ADDRESS: SCALE: CLIENT NAME: FIRM: ADDRESS: FILE PATH: 1/8" 1'-0" Autodesk Docs://F22 D8T5 (Project)/FINAL MODEL 10.29.rvt THIRD FLOOR RCP JEF A11-03 The C.A.B.E. Connector Design 08_Tech 05 12/05/2022 4201 Henry Avenue Philadelphia, PA Jefferson University ARCHIVED 4201 Henry Avenue Philadelphia, PA LEGEND SUPPLY RETURN EXHAUST BB CC 6 4 10 8 7 5 9 WOOD PANEL CEILING 9'-0" A.F.F. 11 WOOD PANEL CEILING 13'-0" A.F.F. SHEET NAME: SHEET NUMBER: DRAWN BY: DATE: PROJECT NAME: CLASS NAME: PROJECT ADDRESS: SCALE: CLIENT NAME: FIRM: ADDRESS: FILE PATH: 1/8" 1'-0" Autodesk Docs://F22 - D8T5 (Project)/FINAL MODEL 10.29.rvt
BB CC 6 10 8 7 5 9 11 SHEET NAME: SHEET NUMBER: DRAWN BY: DATE: PROJECT NAME: CLASS NAME: PROJECT ADDRESS: SCALE: CLIENT NAME: ADDRESS: FILE PATH:
Autodesk Docs://F22 - D8T5
BASEMENT RCP JEF A11-01 The C.A.B.E. Connector Design 08_Tech 05 12/05/2022 4201 Henry Avenue Philadelphia, PA Jefferson University ARCHIVED 4201 Henry Avenue Philadelphia, PA
1/8" 1'-0"
(Project)/FINAL MODEL 10.29.rvt BASEMENT RCP
JEF A11-01
WOOD PANEL CEILING 9'-0" A.F.F.
WOOD PANEL CEILING 13'-0" A.F.F.
ARCHIVED 4201 Henry Avenue Philadelphia, PA 10 8 7 9
11
SHEET NAME: SHEET NUMBER: DRAWN BY: DATE: PROJECT NAME: CLASS NAME: PROJECT ADDRESS: SCALE: CLIENT NAME: FILE PATH: 1/8" 1'-0" Autodesk Docs://F22 D8T5 (Project)/FINAL MODEL 10.29.rvt
0 5 10 20 N^

ENVELOPE DETAILS

THE C.A.B.E. CONNECTOR
ENVELOPE DETAILS / INITIAL SKETCHES
FACADE
53 JF&JG
FACADE
FACADE DESIGN FACADE DESIGN FACADE DESIGN ROOF & FACADE DESIGN
DESIGN IN SECTION
FACADE DESIGN
DESIGN
ENVELOPE DETAILS / NORTHEAST ELEVATION 0 5 10 20 54 JG
55 JG ENVELOPE DETAILS / SOUTHWEST ELEVATION 0 5 10 20
ENVELOPE DETAILS / MATERIAL AESTHETIC 56 JG
BLACK STEEL
57 JF ENVELOPE DETAILS / NORTHWEST SECTION 0 5 10 20 SHEET NAME: SHEET NUMBER: DRAWN BY: DATE: PROJECT NAME: CLASS NAME: PROJECT ADDRESS: SCALE: CLIENT NAME: FIRM: ADDRESS: FILE PATH: 1" 20'-0" Autodesk Docs://F22 D8T5 (Project)/FINAL MODEL 10.29.rvt SITE PLAN JG A10-00 The C.A.B.E. Connector Design 08_Tech 05 12/05/2022 4201 Henry Avenue Philadelphia, PA Jefferson University ARCHIVED 4201 Henry Avenue Philadelphia, PA A&D BUILDING HAYWARD HALL GUTMAN LIBRARY
ENVELOPE DETAILS / SOUTHWEST SECTION 0 5 10 20 SHEET NAME: SHEET NUMBER: DRAWN BY: DATE: PROJECT NAME: CLASS NAME: PROJECT ADDRESS: SCALE: CLIENT NAME: FIRM: ADDRESS: FILE PATH: 1" 20'-0" Autodesk Docs://F22 D8T5 (Project)/FINAL MODEL 10.29.rvt SITE PLAN JG A10-00 The C.A.B.E. Connector Design 08_Tech 05 12/05/2022 4201 Henry Avenue Philadelphia, PA Jefferson University ARCHIVED 4201 Henry Avenue Philadelphia, PA A&D BUILDING HAYWARD HALL GUTMAN LIBRARY 58 JG
59 JF ENVELOPE DETAILS / 3D WALL SECTION
7 BASEMENT 227' 0" LOBBY ENTRANCE 240' 0" LEVEL 2 F.F. 257' 11 9/32" LEVEL 3 F.F. 272' 11 9/32" ROOF 287' 11 9/32" CANTELIEVERED SECTION 1 A40-02 2 A40-02 BASEMENT 227'-0" GROUND FLOOR 240'-0" GROUND LEVEL CEILING 254'-11 1/4" LEVEL 2 257'-11 1/4" LEVEL 3 272'-11 1/4" ROOF 287'-11 1/4" 1 A40-01 2 A40-01 3 A40-01 4 A40-01 SHEET NAME: SHEET NUMBER: DRAWN BY: DATE: PROJECT NAME: CLASS NAME: PROJECT ADDRESS: SCALE: CLIENT NAME: FIRM: ADDRESS: FILE PATH: 1/2" 1'-0" Autodesk Docs://F22 - D8T5 (Project)/FINAL MODEL 10.29.rvt WALL SECTIONS JG A31-01 The C.A.B.E. Connector Design 08_Tech 05 12/05/2022 4201 Henry Avenue Philadelphia, PA Jefferson University ARCHIVED 4201 Henry Avenue Philadelphia, PA A40-02 3 ENVELOPE DETAILS / FULL WALL SECTIONS CURTAIN WALL SECTION CLT WALL SECTION 60 JG
SLOPED CAP FLASHING SELF-ADHERED MEMBRANE WOOD STUD BLOCKING 7" MINERAL WOOL INSULATION SELF-TAPPING SCREWS EPDM 1/8" COVERBOARD 13" RIGID INSULATION 8" CLT 1/2" VERTICAL TEAK SIDING 1" VERTICAL METAL FURRING CASCADIA RAINSCREEN CLIPS 3" MINERAL WOOL INSULATION BETWEEN FURRING VAPOR BARRIER 3/8" OSB 7 1/2" CLT 2" MINERAL WOOL BETWEEN STUD CAVITY 1/2" GYPSUM 1/2" ENGINEERED WOOD FINISH 0.20" POLYESTER FIBER MAT 1/2" OSB GYPCRETE BETWEEN 2X4 BLOCKING 1/2" RIGID FOAM INSULATION 10" CLT W21 X 62 I-BEAM 6" CLT LED RECESSED LINEAR LIGHT METAL BRACKET WITH SELF-TAPPING SCREWS 4" MINERAL WOOL INSULATION BETWEEN STUD CAVITY 1/2" GYPSUM BOARD FOUNDATION DAMP PROOFING 4" RIGID INSULATION 12" CONCRETE FOUNDATION WALL 2X8 WOOD BLOCKING FLASHING J-BOLT ANCHOR FINISH GRADE CONTINOUS
STONE
GEO-FABRIC
CAPILLARY
4"
2X3
6" CONCRETE SLAB 2" RIGID
6MM
UNDER SLAB CANT
1 1/2" 1'-0" A31-01 CLT ROOF DETAIL 1 1 1/2" 1'-0" A12-02 CLT FLOOR TO GRADE
3 FOUNDATION DETAIL 61 JG ENVELOPE DETAILS / DETAIL ASSEMBLIES SLOPED CAP FLASHING SELF-ADHERED MEMBRANE WOOD STUD BLOCKING 7" MINERAL WOOL INSULATION SELF-TAPPING SCREWS EPDM 1/8" COVERBOARD 13" RIGID INSULATION 8" CLT 1/2" VERTICAL TEAK SIDING 1" VERTICAL METAL
CASCADIA
CLIPS 3"
3/8"
7
2"
1/2"
1/2" ENGINEERED WOOD FINISH 0.20" POLYESTER FIBER MAT 1/2" OSB GYPCRETE BETWEEN 2X4 BLOCKING 1/2" RIGID FOAM INSULATION 10" CLT W21 X 62 I-BEAM 6" CLT LED RECESSED LINEAR LIGHT METAL BRACKET WITH SELF-TAPPING SCREWS 4" MINERAL WOOL INSULATION BETWEEN STUD CAVITY 1/2" GYPSUM BOARD FOUNDATION DAMP PROOFING 4" RIGID INSULATION 12" CONCRETE
WALL 2X8 WOOD
FLASHING J-BOLT ANCHOR FINISH GRADE CONTINOUS SEALANT BEAD SILL SEALER STONE PEBBLES GEO-FABRIC WRAP CAPILLARY BREAK 4" DIA. DRAIN PIPE 2X3 CONCRETE FOOTER 6" CONCRETE SLAB 2" RIGID INSULATION 6MM POLYTHYLENE UNDER SLAB CANT STRIP 1 1/2" 1'-0" A31-01 CLT ROOF DETAIL 1 1 1/2" 1'-0" A12-03 CLT FLOOR TO WALL DETAIL 2 1 1/2" 1'-0" A12-02 CLT FLOOR TO GRADE DETAIL 3 1 1/2" 1'-0" A12-01 FOUNDATION DETAIL 4 CLT FLOOR TO GRADE DETAIL CLT FLOOR TO WALL DETAIL CLT PARAPET DETAIL
SEALANT BEAD SILL SEALER
PEBBLES
WRAP
BREAK
DIA. DRAIN PIPE
CONCRETE FOOTER
INSULATION
POLYTHYLENE
STRIP
DETAIL
FURRING
RAINSCREEN
MINERAL WOOL INSULATION BETWEEN FURRING VAPOR BARRIER
OSB
1/2" CLT
MINERAL WOOL BETWEEN STUD CAVITY
GYPSUM
FOUNDATION
BLOCKING
7"
1 1/4" RIGID
STEEL
1/4:12 SLOPE EPDM 1/8" COVERBOARD 13" RIGID INSULATION AT HIGHEST POINT 8" CLT W10 X 90 STEEL I-BEAM THERMOPANE GLASS CURTAIN WALL STEEL PERFORATED DECKING 2" METAL RAILING W21 X 62 STEEL I-BEAM 1/2" ENGINEERED WOOD FINISH 0.20" POLYESTER FIBER MAT 1/2" OSB GYPCRETE BETWEEN 2X4 BLOCKING 1/2" RIGID FOAM INSULATION 10" CLT 4" MINERAL WOOL INSULATION BETWEEN STUD CAVITY 1/2"
FOUNDATION
4" RIGID INSULATION FINISH
6" CLT 4"
3/4"
12"
1 1/2" ALUMINUM PANEL BOX 1" WARM EDGE SPACER BAR ALUMINUM PROFILE CONTINOUS SEALANT BEAD AIR GAP TRIPLE PANE STEPPED GLASS BASEMENT WALL SHEET SHEET DRAWN DATE: PROJECT CLASS PROJECT SCALE: CLIENT FIRM: ADDRESS: 1 DETAILS JG The Design 12/05/22 4201 Philadelphia, Jefferson ARCHIVED 4201 Philadelphia, 1 1/2" 1'-0" A31-01 CURTAIN WALL ROOF DETAIL 1 1 1/2" 1'-0" A10-02 CURTAIN WALL FLOOR TO GRADE DETAIL 3 ENVELOPE DETAILS / DETAIL ASSEMBLIES ALUMINUM MULLION WOOD STUD BLOCKING RETAINER CLIP EXPANSION SCREWS SELF-TAPPING SCREWS 7" MINERAL WOOL INSULATION 1 1/4" RIGID INSULATION STEEL C-CHANNEL 1/4:12 SLOPE EPDM 1/8" COVERBOARD 13" RIGID INSULATION AT HIGHEST POINT 8" CLT W10 X 90 STEEL I-BEAM THERMOPANE GLASS CURTAIN WALL STEEL PERFORATED DECKING 2" METAL RAILING W21 X 62 STEEL I-BEAM 1/2" ENGINEERED WOOD FINISH 0.20" POLYESTER FIBER MAT 1/2" OSB GYPCRETE BETWEEN 2X4 BLOCKING 1/2" RIGID FOAM INSULATION 10" CLT 4" MINERAL WOOL INSULATION BETWEEN STUD CAVITY 1/2" GYPSUM BOARD FOUNDATION DAMP PROOFING 4" RIGID INSULATION FINISH GRADE 6" CLT 4" CONCRETE FLOORING REBAR 3/4" METAL DECKING 12" CONCRETE FOUNDATION WALL 1 1/2" ALUMINUM PANEL BOX 1" WARM EDGE SPACER BAR ALUMINUM PROFILE CONTINOUS SEALANT BEAD AIR GAP TRIPLE PANE STEPPED GLASS BASEMENT WALL 1 1/2" 1'-0" A31-01 CURTAIN WALL ROOF DETAIL 1 1 1/2"
TO
2
CLT
WALL STEEL PERFORATED DECKING 2" METAL RAILING W21 X 62 STEEL I-BEAM 1/2" ENGINEERED WOOD FINISH 0.20" POLYESTER FIBER MAT 1/2" OSB GYPCRETE BETWEEN 2X4 BLOCKING 1/2" RIGID FOAM INSULATION 10" CLT 4" MINERAL WOOL INSULATION BETWEEN STUD CAVITY 1/2" GYPSUM BOARD 12" CONCRETE FOUNDATION WALL 1 1/2" ALUMINUM
BOX 1" WARM EDGE
BAR ALUMINUM PROFILE CONTINOUS SEALANT BEAD AIR GAP TRIPLE PANE STEPPED GLASS BASEMENT WALL 1 1/2" 1'-0" A31-01 CURTAIN WALL ROOF DETAIL 1 1 1/2" 1'-0" A12-04 CURTAIN WALL FLOOR TO WALL DETAIL 2 1 1/2" 1'-0"
DETAIL 3 1 1/2" 1'-0" A10-02 CENTRAL SKYLIGHT DETAIL 4 SLOPED CAP FLASHING ALUMINUM MULLION WOOD STUD BLOCKING RETAINER CLIP EXPANSION SCREWS SELF-TAPPING SCREWS 7" MINERAL WOOL INSULATION 1 1/4" RIGID INSULATION STEEL C-CHANNEL 1/4:12 SLOPE EPDM 1/8" COVERBOARD 13" RIGID INSULATION AT HIGHEST POINT 8" CLT W10 X 90 STEEL I-BEAM THERMOPANE GLASS CURTAIN WALL STEEL PERFORATED DECKING 2" METAL RAILING W21 X 62 STEEL I-BEAM 1/2" ENGINEERED WOOD FINISH 0.20" POLYESTER FIBER MAT 1/2" OSB GYPCRETE BETWEEN 2X4 BLOCKING 1/2" RIGID FOAM INSULATION 10" CLT 4" MINERAL WOOL INSULATION BETWEEN STUD CAVITY 1/2" GYPSUM BOARD FOUNDATION DAMP PROOFING 4" RIGID INSULATION FINISH GRADE 6" CLT 4" CONCRETE FLOORING REBAR 3/4" METAL DECKING 12" CONCRETE FOUNDATION WALL 1 1/2" ALUMINUM PANEL BOX 1" WARM EDGE SPACER BAR ALUMINUM PROFILE CONTINOUS SEALANT BEAD AIR GAP TRIPLE PANE STEPPED GLASS BASEMENT WALL 1 1/2" 1'-0" A31-01 CURTAIN WALL ROOF DETAIL 1 1 1/2" 1'-0" A10-02 CURTAIN WALL FLOOR TO GRADE DETAIL 3 CENTER SKYLIGHT DETAIL BELOW GRADE DETAIL CURTAIN WALL FLOOR TO WALL DETAIL CURTAIN WALL PARAPET DETAIL 62 JG
SLOPED CAP FLASHING ALUMINUM MULLION WOOD STUD BLOCKING RETAINER CLIP EXPANSION SCREWS SELF-TAPPING SCREWS
MINERAL WOOL INSULATION
INSULATION
C-CHANNEL
GYPSUM BOARD
DAMP PROOFING
GRADE
CONCRETE FLOORING REBAR
METAL DECKING
CONCRETE FOUNDATION WALL
1'-0" A12-04 CURTAIN WALL FLOOR
WALL DETAIL
1 1/2" 1'-0" A10-02 CURTAIN WALL FLOOR TO GRADE DETAIL 3 1 1/2" 1'-0" A10-02 CENTRAL SKYLIGHT DETAIL 4 RETAINER CLIP EXPANSION SCREWS SELF-TAPPING SCREWS 7" MINERAL WOOL INSULATION 8"
W10 X 90 STEEL I-BEAM THERMOPANE GLASS CURTAIN
PANEL
SPACER
A10-02 CURTAIN WALL FLOOR TO GRADE

THE C.A.B.E. CONNECTOR

PERSPECTIVES

PERSPECTIVES / FACING KANBAR 64 JF
65 JF PERSPECTIVES / SKYLIGHT VIEW
PERSPECTIVES / MAIN ENTRANCE 66 JF
67 JF PERSPECTIVES / LECTURE HALL & REVIEW
PERSPECTIVES / LOUNGE 68 JF
69 JF PERSPECTIVES / FLEXIBLE PIN-UP SPACE
PERSPECTIVES / STUDIO 70 JF
71 JF PERSPECTIVES / BALCONY VIEW
PERSPECTIVES / BIRD'S EYE VIEW 72 JF

JESSICA FORSSELL

AFTER BEING GIVEN THIS DESIGN OPPORTUNITY , OUR INITIAL IDEA WAS A STUDIO WITHIN THE TREES . A STUDIO THAT FLOATS ABOVE THE PATHS THAT CUT THROUGH THE SITE , MAINTAINING THE STUDENTS ' CONNECTION THROUGH CAMPUS WHILE CREATING A CONNECTION TO THE ADJACENT BUILDINGS LITTLE DID WE KNOW THAT SUCH AN IDEA WOULD POSE AS MANY CHALLENGES AS THE ONES WE FACED DURING THIS PROJECT THE BIGGEST CHALLENGE WE ENCOUNTERED WAS HOW TO MAKE THIS BUILDING FLOAT FOR A MONTH WE EXPLORED VARIOUS STRUCTURAL SYSTEMS , DETERMINED TO FIND A SOLUTION THAT WOULD ALLOW US TO HAVE OUR FLOATING BUILDING WE EVENTUALLY FOUND A TRUSS SYSTEM THAT HAD THE STRENGTH TO SUPPORT OUR DESIGN . WITH THIS STRUCTURAL SYSTEM BROUGHT ABOUT A NEW AESTHETIC TO OUR BUILDING AND A NEW CHALLENGE FOR US TO NAVIGATE . DESPITE THIS , JULIANNE AND I PUSHED THROUGH AND PRODUCED THE BUILDING WE PRESENT TODAY THIS PROJECT AND OUR DESIGN SHOWED US THE STRENGTH IN OUR DETERMINATION AND OUR EFFORTS AS DESIGNERS

JULIANNE GROVE

GIVEN THE OPPORTUNITY TO DESIGN A STUDIO ADDITION FROM CONCEPT PHASE TO DETAIL DOCUMENTATION PHASE , ARCHIVED CHALLENGED THE IDEA OF A TRADITIONAL RECTANGULAR BUILDING NOT ONLY IN RESPONSE TO ALLOWING MAXIMUM SUN INTO THE STUDIOS , BUT ALSO BECAUSE IT FORCED JESSICA AND I TO STRENGTHEN OUR KNOWLEDGE OF ARCHITECTURE THROUGHOUT THE SEMESTER , WE KEPT HOLD OF OUR SINGLE CONCEPT OF A CANTELIEVERED SAWTOOTH STRUCTURE AND WITH EVERY DECISION , WE KEPT THE FORM AT THE FOREFRONT WHEN IT CAME TIME TO PLACE IN THE STRUCTURE AND THE MECHANICAL SYSTEMS , THE CANTELIEVERED FORM BECAME A CHALLENGE - AND WHILE MANY SUGGESTED THAT OUR STRUCTURE TOUCH THE GROUND , WE REMAINED STRONG IN THE IDEA THAT THE STUDIO ADDITION SHOULD REMAIN CANTELIEVERED ALTHOUGH THE UNIQUE FORM PRESENTED MANY CHALLENGES , I AM PROUD TO SAY THAT JESSICA AND I DID NOT GIVE UP ON OUR SAWTOOTH STUDIO DESIGN AND IN TURN PUSHED US TO BECOME BETTER DESIGNERS WHO CHALLENGE WHAT ARCHITECTURE IS AND CAN BE

THE C.A.B.E CONNECTOR / PROJECT REFLECTION

Turn static files into dynamic content formats.

Create a flipbook
Issuu converts static files into: digital portfolios, online yearbooks, online catalogs, digital photo albums and more. Sign up and create your flipbook.