Jules-Valentin Boucher
architecte hmonp docteur en architecture enseignant-chercheur musicien
né à Paris en 1990 basé à Montreuil
julesvalentin.net
PORTFOLIO




Gift, 2022.
Above : unfinished version.
Below : final version.
![]()
architecte hmonp docteur en architecture enseignant-chercheur musicien
né à Paris en 1990 basé à Montreuil
julesvalentin.net




Gift, 2022.
Above : unfinished version.
Below : final version.
Projets personnels :
04 APPARTEMENT #1
Rénovation d’appartement à Montreuil (93)
08 MACROHOME Tiny house
10 FEED BAR Bar éphémère & installation vidéo à Reims (51)
Lors de mon exercice chez les Ateliers Mathieu Laporte :
14 ORF 157 logements, commerces, bureaux à Orléans (45)
Sélection de mes projets d’étudiant :
ARCHITECTURE, MUSIQUE & SON
18 HABITER LA MUSIQUE 11 maisons (PFE)
28 CONSTRUIRE L’ÉCOUTE Mémoire de Master
32 SYLVAN THEATRE Salle de concert de 700 places LARGE
34 LIVING ON THE EDGE 5 000 logements à Rio de Janeiro
38 11,111111111111 Ville ex nihilo
42 DISSOCIATIVE ARCHITECTURE Équipement public
PIT STOPS Kiosque d’information
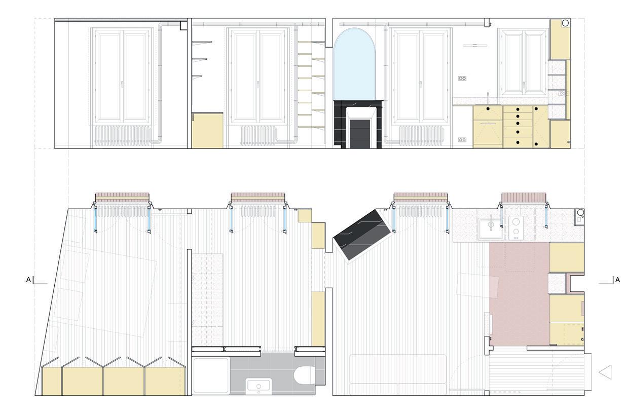
APPARTEMENT #1
Rénovation d’appartement
Site Montreuil, 93
Année 2021-2022
Équipe Jules-Valentin Boucher
Statut Livré
Surface 40m2
Budget ~ 50 000 € TTC
Menuiserie Florent Martel (Plan Bois Concepts)
Luminaires Jules-Valentin Boucher & Léopold Le Moigne
Table pliable Colomban de Mascarel
Photos Zoé Bouteleux-Boisnard & Manuel Devier
Projet La petite surface de cet appartement trois pièces nécessitait un projet compact. Une cloison a été abattue pour faire fusionner le salon et la cuisine, et des rangements sur mesure ont été conçus pour libérer le plus d’espace au sol. La cohérence du projet passe par une homogénéité des matériaux : du contreplaqué bouleau 18mm et du plastique recyclé 8mm et 18mm. Les matériaux d’origine ont tant que possible été conservés et restorés.
















MICROHOUSE MACROHOME
Micro maison autonome et low-tech
Site Site dégagé en climat tempéré Année 2020
Équipe Jules-Valentin Boucher
Statut Concours BeeBreeders
Surface De 25m2 à 40m2
Projet A self-sufficient house for a young couple. The project focuses on low-tech solutions and simple materials and details. The composition puts emphasis on indeterminacy as a way to create a relatively blank canvas. The idea is to reduce costs by focusing on the bare necessities that the house needs to provide. Initially, the house consists of 25m² floor space, but the double height ceiling allows the living area to be extended up to 40m².










designed climates, Kyōto solutions possibilities enhancing the space
“We carry our homes within us which enables us to fly, or to stay, to enjoy each.”
John Cage, “Juilliard Lecture” 1952
Corrugated (18/76) iron sheet
• Steel rod ø15mm
• Walls : - Exposed insulating wool made of recycled fabric t=120mm
- Structural plywood or OSB t=16mm
- Insulating wool made of recycled fabric or biobased wool such as cotton, linen or hemp t=100mm
- Waterproof sheet - Timber battens 60x40mm - Hardwood cladding 140x33mm water wax finish
B Section perspective 1/33e
The house is intended to endure In that it is never finished, but is designed with the capacity for future adaptation The space is continuous and only the vital functions of the house are defined : washing, drinking, cooking, heating, going to the loo The rest is free for interpretation The idea is to reduce costs by focusing on the bare necessities that the house
“There
Floor : - Hardwood decking planks 140x33mm - Timber battens 60x40mm
Structural plywood or OSB t=16mm - Insulating wool made of recycled fabric t=120mm - Insulating wool made of recycled fabric or biobased wool such as cotton linen or hemp t=100mm
Waterproof sheet - Timber battens 60x40mm
Hardwood decking planks 140x33mm water wax finish
Greenhouse :
• Roofing : corrugated (18/76)
translucent polycarbonate
Structure : wood or steel
75x75mm
• Rainwater and clean water storage : re-used water tanks
Phytodepuration : re-used bathtubs
• Gutter & angles : bent zinc or stainless steel
Henry David Thoreau, Walden, 1854
“These artists will in their
• Space for further installation of photovoltaic solar panels and/or solar thermal collector panels
Structure : horizontal, vertical & bracing timber studs 75x225mm 757,8mm between axes
• The type of foundations will be site specific
• Ceiling : - Exposed insulating wool made of recycled fabric t=160mm
- Structural plywood or OSB t=20mm
- Rigid insulation t=60mm
- Double structural plywood or OSB t=2x20mm
• Ladder to greenhouse
• Temporary railing
Water filters & copper pipes
• Windows & doors : double glazing, wooden frame
Stove : Re-used firebricks 220x110x60mm
Dry toilets under the stairs with evacuation trap on the outside
Plants &
Conception et réalisation d’une scénographie éphémère comprenant une installation vidéo interactive, un bar et du mobilier
Site Centre Culturel Numérique Saint-Exupéry, Reims (51)
Année 2018 (ouverture du 15 septembre au 19 décembre)
Équipe Jules-Valentin Boucher (architecte), Pablo Albandea (vidéaste) & Fabio Pin (designer)
Budget 3 550 € TTC (incluant frais artistiques)
Projet « Larsen (EFFET), phénomène de réaction prenant naissance dans une chaîne électro-acoustique lorsqu’une certaine fraction de l’énergie de sortie est réinjectée à l’entrée, et qui se manifeste par le déclenchement d’oscillations spontanées. On l’observe dans les installations d’amplification de son, lorsque le microphone capte les ondes sonores émises par le ou les haut-parleurs. Il doit son nom à Absalon Larsen (1871) » (Larousse trois volumes, Librairie Larousse, Paris, 1966, tome 2, p. 742).
Aujourd’hui, on l’appelle également effet de feedback
Notre projet explore les possibilités qu’ouvre cette notion de feedback ou larsen. Qu’il s’agisse de son, de vidéo, de design ou d’architecture, les matériaux / matières peuvent être traités comme des informations susceptibles d’être réinjectées selon différents cycles / circuits plus ou moins fermés.
Ainsi, le projet comporte du mobilier fait en partie de chutes issues du grand cube. Ce dernier, quant à lui, est la structure fixe qui intègre le bar et l’installation vidéo. Il est composé sur le mode du feedback : un cube de 3m par 3m, fait de cubes de 0,6m par 0,6m autrement dit, une grille tridimentionnelle dont les détails évoquent l’ensemble, dont les parties renvoient au tout. L’installation vidéo, quant à elle, est un larsen continu, dont le circuit fermé est perturbé par le passage des visiteurs dans l’arche.













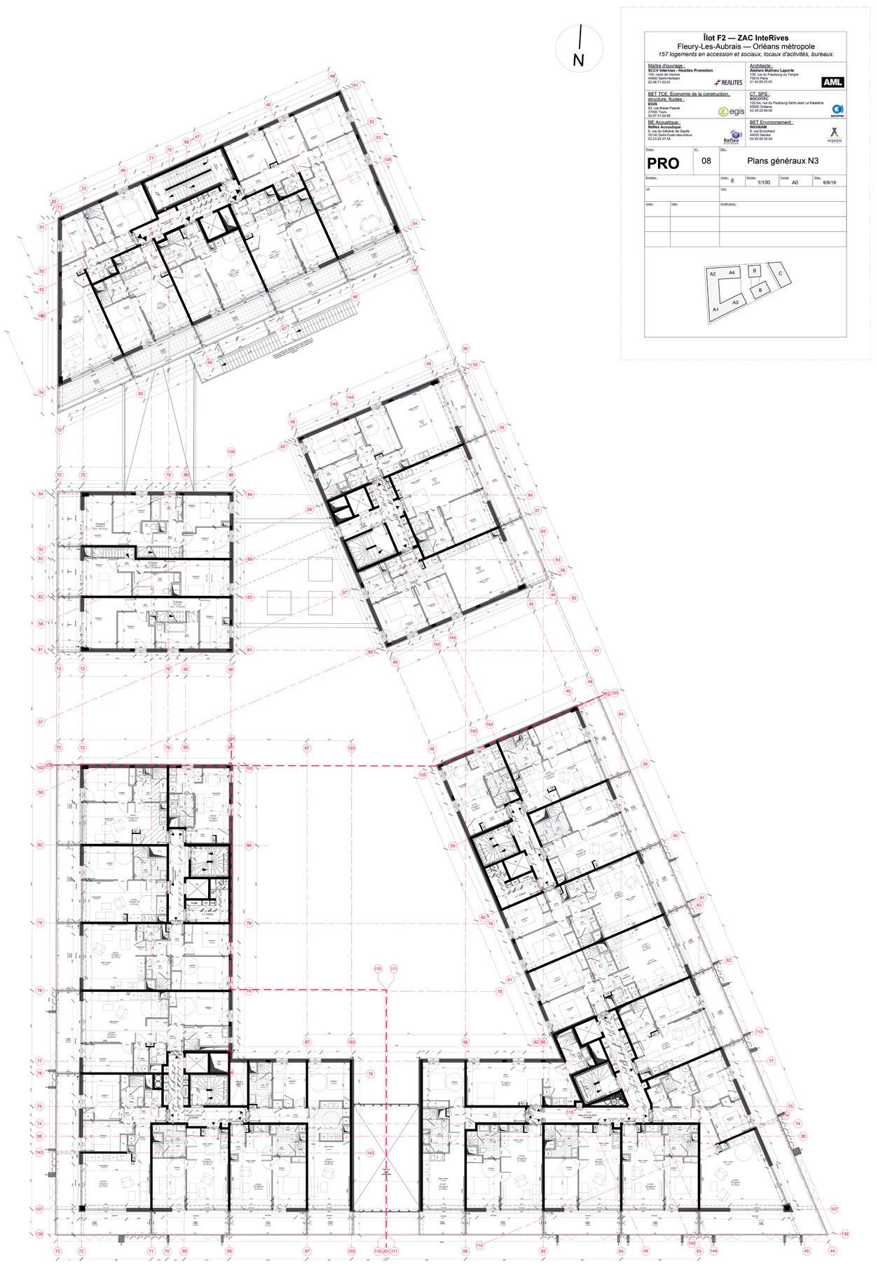
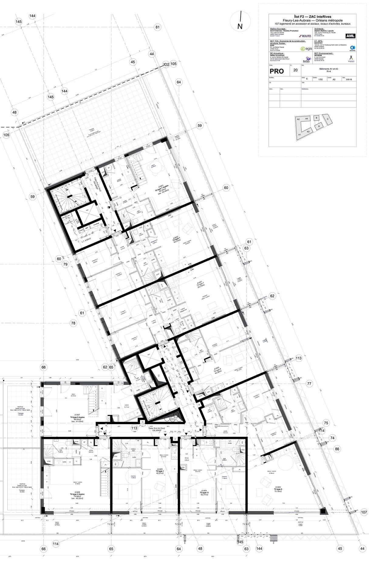
ORF
Construction neuve de 157 logements dont 27 logements sociaux et 20 logements en accession maîtrisée, de 3 commerces, de bureaux, d’une salle commune et de 236 places de stationnement sur deux niveaux de parking enterrés
Site ZAC InteRives, îlot F2, Fleury-Les-Aubray (45), Orléans Métropole
Année 2018-2019
Équipe Ateliers Mathieu Laporte (Mathieu Laporte avec Jules-Valentin Boucher & Gaëlle Pilon)
Phases Concours, APS, APD, PC, PRO, DCE
Travaux 16,5M € HT
Projet Pendant mes 20 mois d’exercice aux Ateliers Mathieu Laporte, j’ai travaillé sur ce projet depuis le début des esquisses pour le concours, jusqu’au rendu du DCE dont j’avais la charge.
La parcelle du projet, d’environ 4 200m2, se situe au centre d’une ZAC de grande envergure, où tout est encore à construire. De forme trapézoïdale, elle est entourée de rues et n’a donc aucun voisin mitoyen. Sa façade Sud donne sur la future place Rivière Casalis, cœur du quartier à venir.
Le programme est séquencé en 3 bâtiments : • Bâtiment A, au Sud. 110 logements en accession libre (décomposés en A1, A2, A3 et A4), une salle commune et 3 commerces
• Bâtiment B, au milieu : 27 logements sociaux • Bâtiment C, au Nord : 20 logements en accession maîtrisée et environ 1000m2 de bureaux.
Le bâti a une épaisseur constante de 12,95m, plus 1,95m de balcons préfabriqués sur consoles en porte-à-faux, pour un total de 14,9m. Cette épaisseur est structurée par des murs de refends intérieurs, et un système de façade poteaux-poutres béton et remplissage M.O.B. (Mur à Ossature Bois).
Jules-Valentin Boucher
Portfolio


Au-dessus La façade Sud, sur place Rivière Casalis. En bas Les façades Est, sur le parc des Manufactures.

Plan du R+3 de l’ensemble du projet, en phase DCE, au 100e sur un A0.

De la composition musicale comme inspiration architecturale
Thèmes Expérimentations spatiales, musique, transdisciplinarité
Programme Logement individuel
Année 2017 (Projet de Fin d’Études)
Enseignants Ido Avissar & Philippe Potié
Prix Prix d’encouragement décerné par la section Architecture de l’Académie des Beaux-Arts
Projet Mon travail de PFE est une exploration du potentiel de la musique à être une source d’inspiration architecturale, ou encore : une exploration des formes architecturales à partir de formes musicales.
La méthodologie mise en œuvre dans ce travail est expérimentale : il s’agit d’une exploration formelle libre, sensible, subjective, idiosyncratique et non exhaustive. C’est une exploration qui n’a pas de fin : on aurait pu continuer l’exercice avec mille et une musiques, mais on a choisi de s’arrêter à onze.
Ce travail se présente sous la forme de tentatives de transposition, plutôt que de traductions, avec ces onze musiques comme point de départ. Il s’agit de retirer des principes formels ou structurels de composition musicale et de les transposer en architecture. Ou autrement dit, d’identifier une forme musicale et de tenter de la mettre en espace.
Pour transposer ces musiques en architecture, on a décidé de prendre le logement comme prétexte. D’abord, pour ne pas tomber dans la facilité de concevoir des architectures-sculptures sans programme, mais aussi pour donner une échelle précise à ce travail, tout en concevant des espaces habitables : il était plus intéressant de voir jusqu’où on pouvait aller dans quelque chose de concret avec la musique comme point de départ.
À partir de onze musiques, j’ai donc conçu onze maisons, sans site. Ces maisons devaient faire entre 100 et 150m2 , et comporter plus ou moins les mêmes fonctions : deux chambres, un salon, une cuisine, des pièces d’eau, et éventuellement un espace de travail ou un bureau et un garage.
Satie, Vexations
Architecture & Musique : Influences réciproques
Thèmes Architecture, espace, musique, son, acoustique
Année 2017 (Mémoire de Master 2)
Enseignants Philippe Potié, Paolo Amaldi & Eliza Culea-Hong Prix Mention au Prix du Mémoire de Master en Architecture de la Fondation Rémy Butler
Résumé De tous les arts, l’architecture et la musique sont à la fois les deux arts les plus opposés l’une est matérielle, concrète, quand l’autre est immatérielle et impalpable — et les plus proches, car elles sont toutes deux les disciplines de l’espace et du temps. En effet, l’architecture se déploie dans l’espace mais ce n’est qu’à travers le temps et le mouvement que l’on peut percevoir ses objets et appréhender ses espaces. De son côté, la musique se déploie dans le temps, car sa structure est essentiellement chronologique, mais ce n’est qu’à travers l’espace que l’on peut la percevoir. De plus, une architecture a toujours une qualité sonore qui lui est propre, par sa forme et ses matériaux, qui lui confèrent ses caractéristiques acoustiques, et une musique peut être perçue comme étant déjà un espace en soi. Les deux interagissent d’une manière complexe : l’architecture, par son acoustique, façonne la musique, et la musique lit l’espace, comme le dit si bien le compositeur Luigi Nono. À travers un corpus d’œuvres architecturales et musicales, organisé en cinq grandes parties, l’idée générale de ce mémoire est de mettre en lumière les influences d’un art sur l’autre, en s’appuyant notamment sur la notion de l’écoute.
Jules-Valentin Boucher

«Statues parlantes». Dissimulés dans des statues, différents dispositifs qui amplifient le son venant de l’extérieur, et le retransmettent dans une pièce, permettent par exemple au prince d’espionner ses sujets. Gravure provenant de Athanasius Kircher, Musurgia universalis, sive ars magna consoni et dissoni, Rome, 1650, II, p. 303.



Miroirs sonores construits pendant la seconde guerre mondiale à Denge, Angleterre. Alors que le radar n’existait pas encore, ils servaient à localiser les avions ennemis par leur son (écholocation). Le grand mur courbe fait 60m de long, les paraboles font 7m et 10m de large.
Chambre réverbérante (Hallraum) de la TUD (Technische Universität Dresden). Elle sert à réaliser des mesures acoustiques, notamment pour tester les taux d’absorption acoustique de matériaux. Volume : 195m3 Temps de réverbération (Nachhallzeit) : environ 10 secondes.
Le compositeur John Cage visitant une chambre anéchoïque (probablement celle de l’université d’Harvard), vers la fin des années 40. Cette expérience sonore et spatiale alimentera ses réflexions sur la musique, le silence et l’environnement, qui le mèneront à composer son œuvre la plus célèbre, 4’33’’




Spherical Concert Hall : le Pavillon allemand du compositeur Karlheinz Stockhausen et de l’architecte Fritz Bornemann pour l’Exposition Universelle d’Ōsaka en 1970. 50 hauts-parleurs répartis sur toute la surface de la sphère permettent de spatialiser le son comme jamais auparavant. ©Stockhausen Foundation for Music.
Maquette en coupe de l’IRCAM (Institut de Recherche et Coordination Acoustique/Musique) de Renzo Piano. De gauche à droite, on aperçoit l’ESPRO, sa régie, la chambre anéchoïque, puis les studios d’enregistrement. ©Fondazione Renzo Piano.
Polytope de Cluny, «Actions de lumière et son» du compositeur et architecte Iannis Xenakis, Paris, 1972. Il s’agit d’un spectacle de sons et de lumières projetés dans l’espace des anciens thermes de Cluny. Ce Polytope fait partie d’une grande série d’œuvres environnementales conçues par Xenakis de 1958 (Pavillon Philips avec Le Corbusier et Edgar Varèse) à 1978 (Diatope).
Photographie de la Dream House : Sound and Light Environment du compositeur La Monte Young et de la plasticienne Marian Zazeela, New York, 1993. L’espace est baigné de lumières et de sons, créant un environnement méditatif avec des conséquences physiologiques. ©Marian Zazeela.
Précurseurs. Je fais ici un bref résumé des liens entre l’espace et le son, depuis la préhistoire jusqu’à Athanasius Kircher au XVIIème siècle, en passant par l’école polychorale vénitienne au XVIème siècle, dont la technique des cori spezzati (cœurs séparés) peut être considérée comme la première expérience de spatialisation de la musique.
Architectures de l’écoute. L’analyse de quelques dispositifs architecturaux de l’écoute montre que l’architecture a pu faire évoluer la musique, l’écoute ou encore notre rapport au son. Les kiosques à musique, les chambres anéchoïques, ou encore l’IRCAM de Renzo Piano à Paris, sont autant d’architectures au service de l’écoute.
Musiques qui ne s’écoutent pas. Quand les musiciens s’occupent de l’espace, ils changent le paradigme d’écoute de leurs compositions : de la Musique d’Ameublement d’Érik Satie à l’Ambient music de Brian Eno, en passant par la société Muzak, il s’agit de musiques qui s’affirment comme simples ornements architecturaux, comme musiques d’ambiance, ou encore comme musiques fonctionnelles, et qui refusent qu’on leur prête trop d’attention.
Écoutes de l’espace. À partir des cori spezzati du XVIème siècle, en passant par le Requiem d’Hector Berlioz en 1837 et jusqu’à aujourd’hui, les compositeurs sont de plus en plus à l’écoute de l’espace. John Cage, Karlheinz Stockhausen, Alvin Lucier, ou encore Pauline Oliveros, sont parmi les compositeurs ayant le plus utilisé l’espace comme matériau musical.
Architectures qui s’écoutent. La notion de Gesamtkunstwerk, d’œuvre d’art totale, prônée par Richard Wagner, a donné lieu a de nombreuses expériences synesthésiques où l’architecture et la musique font partie d’une seule et même œuvre, comme les compositions spatiales et sonores de Iannis Xenakis, la Dream House de La Monte Young et Marian Zazeela ou bien encore Prometeo, de Luigi Nono et Renzo Piano.
Salle de concert de 700 places
Thèmes Équipement public
Site Parc municipal de Cherkasy, Ukraine
Année 2016
Équipe Projet réalisé dans le cadre d’un stage à l’agence d’architecture NAAD (Kyōto, Japon), sous la direction de Yoichiro Hayashi et avec Ignacio Darras,Yohei Uchino, Juliette Cottereau, Emma Bourdon & Mathilde Dassonville
Projet La principale difficulté de ce projet fut de concevoir un bâtiment librement ouvert au public et à l’extérieur tout en gardant la possibilité d’en restreindre l’accès ou de le fermer complètement la nuit ou lors d’événements particuliers. C’est pourquoi sa peau est faite d’éléments mobiles : des rideaux métalliques rendent la façade transparente et changeante, et le toit est fait de toiles imperméables qu’on peut fermer si les conditions météo l’exigent. Ainsi, le projet a le caractère d’une tente : léger, minimal et perméable lorsqu’ouvert, ou affichant la forme claire d’un parallélépipède lorsque fermé.
La structure, de type poteaux/poutres-treillis industriels, a été choisie pour garantir un bâtiment très économique, rapide à construire, polyvalent et efficace.
La légèreté du projet, sa transparence, sa simplicité, sa modestie, sont également en lien avec le site : ils amoindrissent l’impact de la construction sur son environnement.



5000 logements
Thèmes Urbanisme, paysage & logement de masse
Site Santa Cruz (banlieue de Rio de Janeiro), Brésil
Année 2015 (projet long de Master)
Enseignants Djamel Klouche & Cédric Libert
Équipe Avec Ariane Huynh-Lenhardt
Analyse Nous avons étudié quelques projets de logement à grande échelle au Brésil lors d’un voyage d’études, et notamment le programme «Minha Casa, Minha Vida» («ma maison, ma vie»), qui est une politique de logement de masse à Rio de Janeiro et ses alentours. Ce programme se caractérise par la construction la plus rapide et économique possible d’un immeuble-type, répété autant de fois que possible, et par un cruel manque d’équipements publics et d’aménagements urbains.
Projet
Stratégie territoriale. Après avoir étudié le vaste territoire de Santa Cruz, nous avons découvert une figure à très grande échelle dans le paysage : une ligne de 12km, frontière entre différents morceaux de ville ou de nature qui semblaient n’entretenir aucune relation entre eux. Nous avons choisi d’implanter le projet le long de cette ligne, afin de tirer parti de cette condition frontalière et limitrophe. Nous avons dessiné des bâtiments linéaires de 20m de large sur des portions spécifiques de cette ligne.
Logements évolutifs. Quelques impératifs ont guidé le dessin des plans : un système constructif et des matériaux économiques mais permettant de garantir une bonne qualité de vie et, surtout, de rester ouvert à des évolutions ultérieures. Dans cette perspective, les plans devaient être assez neutres et ouverts pour être comme les générateurs d’une multiplicité de logements différents.
À toutes les échelles, notre projet est une tentative de négociation entre des éléments antinomiques :
condition générique collectif global macro planification formel
situations spécifiques individuel local micro improvisation informel

La ligne : une limite physique de 12km dans le territoire

Le projet est connecté aux infrastructures et aux quartiers existants le long de la ligne
11,111111111111
Ville ex nihilo
Thème Urbanisme
Programme Quartier de grande échelle
Site Site virtuel
Année 2013 (projet court de Licence 2)
Enseignants Djamel Klouche & Ido Avissar
Équipe Avec Alex Arnou, Hélène Battini, Eléonor Ferragu, Agathe Doreau, Camelia Petre, Clara Pailler & Anaïs
Maria
Projet L’objectif de ce workshop était de produire une ville virtuelle, chaque groupe ayant une parcelle, un thème et un C.O.S. donnés. Nous avons donc choisi le thème «microtissu» et on nous a attribué un C.O.S. 4. Le texte ayant joué un rôle important dans le projet, je le restitue dans son intégralité ci-après.



Que sont l’urbanité et la citadinité ? Partant du postulat d’un quartier résidentiel, comment envisager la vie quotidienne de ses habitants en termes de qualité de vie ? Comment favoriser les relations sociales inhérentes à un quartier tout en permettant une certaine intimité des individus ? Comment (ré)enchanter la ville ?
A la manière de Xenakis pour composer la musique, il s’agit de mêler la microcomposition et la macrocomposition de la ville, et de prendre en compte autant les mailles que le motif général du tissu urbain, qui devient un microtissu social et programmatique, dont la densité est toujours hétérogène. Partir du «petit», des usages tels que la promenade ou la vie de quartier, pour aller vers le «grand», l’échelle urbaine, macroscopique.
C’est ce qui nous amène à dessiner un quartier piéton où se mêlent logements, commerces, écoles, équipements culturels, sportifs, et parcs, avec une répartition du bâti qui s’organise selon un procédé autoritairement démocratique : plein, vide, plein, vide, plein, vide, … L’espace public occupe la totalité du sol et vient contredire cette trame régulière, qui est encore perturbée par les variations de hauteur du bâti.
Le choix de la trame est fixé par une largeur de 11,111m pour permettre de n’avoir que des logements traversants, et une orientation est-ouest pour l’ensoleillement.
• Le paysage : la densité, répartie inégalement sur l’ensemble des bandes pleines de la trame, génère une «skyline» qui est la résultante des macro et micro compositions.
• Le bâti : les espaces privés, logements ou bureaux, sont organisés sur une trame répétitive, macrocomposée, dont la seule erreur de tissage est un grand parc, véritable virgule dans la syntaxe urbaine.
• Le sol : l’espace entièrement public, microcomposé, donne lieu à un plan libre, laissant place aux usages et aux parcours de la vie. On y trouve une grande densité d’usages, de pratiques, de flux, de signes : jardins, restaurants, terrains de sport, lieux culturels, s’y croisent et s’y mêlent.
C’est ainsi que nous entendons traduire la complexité de la ville, entre radicalité, anarchie et négociation, comme une conjoncture des échelles micro, meso et macroscopique.
Le paysage Élévations
Plan masse ombré
Le bâti Plan masse
Plan d’étage
Plan de RDC
Le sol / plan Nolli
Équipement public
Programme Terrain multisports, auditorium, espaces culturels, crèche, MJC, logements, Site Meudon, France
Année 2014 (projet long de Licence 3)
Enseignant Sébastien Rinckel
Projet La complexité de ce projet a été d’imbriquer un programme vaste et complexe dans un site lui-même complexe et une parcelle de forme alambiquée. Mon choix a été d’exprimer l’indépendance de certains programmes par rapport à d’autres : ils sont tous regroupés dans le même bâtiment horizontal et de plein pied mais les usagers doivent passer par l’extérieur s’ils veulent aller d’un espace à un autre. Cette dissociation programmatique s’effectue également au niveau des logements, qui sont érigés à la verticale, en deux petites tours indépendantes bien que connectées au bâtiment horizontal. La dissociation a aussi guidé les autres aspects du projet puisque les éléments architecturaux ont été conçus presque séparément les uns des autres : la structure, l’enveloppe, les planchers, les toitures et les pièces ne coïncident presque jamais.
Kiosque d’information pour voyageurs
Thème
Micro-architecture
Site Plusieurs sites le long du Transsibérien, Russie
Année 2016
Équipe Projet réalisé dans le cadre d’un stage à l’agence d’architecture NAAD (Kyōto, Japon), sous la direction de Yoichiro Hayashi et avec Juliette Cottereau, Emma Bourdon & Simon Genillier Roelsgaard
Prix Mention honorable au concours international «Trans Siberian Pit Stops» organisé par BeeBreeders
Surface 60m2
Projet L’objet du concours était de concevoir un kiosque d’information pour les touristes voyageant le long de la ligne du Transsibérien. Le petit bâtiment serait donc construit un certain nombre de fois le long des 9 289km de la mythique voie ferrée.
La construction devait ainsi avoir une identité forte, afin d’agir comme un signal ou une borne kilométrique, aisément reconnaissable par les voyageurs, tout en pouvant s’adapter et révéler les spécificités de chaque site, en termes de culture, de paysage ou de climat. Nous avons donc choisi l’acier Cor-Ten pour la façade car il a la particularité de vieillir de différentes façons en fonction des conditions climatiques : ainsi le kiosque, bien que toujours identique, aurait évolué différemment en fonction de son emplacement. De plus, ce matériau pouvant être perforé, nous avons réinterprété un motif traditionnel russe хохлома (Khokhloma) pour l’appliquer à la peau du kiosque. Quant au plan, il est constitué de deux entités distinctes :
Vide
Transparent
Espace libre
Espace ouvert
Espace polyvalent
Mobilier amovible
Plein
Opaque
Espace fixe
Espace fermé et partitionné
Fonctions déterminées
Mobilier intégré
Jules-Valentin Boucher Portfolio




Toiture
Acier Cor-Ten
Peau
Acier Cor-Ten
Étagères
Bois
Fenêtres
Menuiseries aluminium
Murs
Isolation et plâtre
Structure
Acier











