

Juan Ignacio
Huerta Fernández de la Riva
+34 627 527 066
juanhuertafer@gmail.com

ACERCA DE MI:
Recientemente graduado en Fundamentos de la Arquitectura, mi motivación es seguir aprendiendo para crear proyectos con un enfoque sostenible y eficiente. Con una gran ética de trabajo y basándome en mis valores, busco participar en proyectos funcionales que tengan un impacto positivo en la sociedad. Mi experiencia viviendo en otros países me ha demostrado que el éxito reside en lograr resultados compartidos a partir de proyectos creados en equipo. Creo firmemente en el valor de la superación y de la mejora continua. Por ello me esfuerzo en aportar compromiso, esfuerzo y creatividad en todos los proyectos profesionales, académicos y personales en los que me involucro.
EXPERIENCIA PROFESIONAL FORMACIÓN
2024
HZSV diseño y construcción l Becario
Trabajos guiados de proyección de viviendas, seguimiento de obras, resolución de problemas in-situ, redacción de memorias arquitectónicas y captación de clientes.
2024-2025
HZSV diseño y construcción l Junior
Trabajos de manera autónoma de proyectos de ejecución, seguimiento de obras, resolución de problemas in-situ, redacción de memorias arquitectónicas, propuestas para concursos.
HABILIDADES
AutoCad
Revit
SketchUp
Adobe Photoshop
Adobe Illustrator
Adobe InDesign
2019-2025
Universidad Rey Juan Carlos Grado universitario
2018-2019
Internacional Aravaca, Madrid Bachillerato
2015-2018
Lycée Molière, Madrid Secundaria
Lycée Assomtion Lübeck, Paris Secundaria
TENSIÓN NA COSTA
DE ARRIBA A ABAJO ENTRE

Tensión na Costa
Año: 2024
Asignatura: Proyectos II
Curso: Cuarto

El proyecto se desarrolla en Malpica, localizado al noroeste de la península Ibérica. Malpica es un pintoresco municipio ubicado en la provincia de A Coruña, en la Comunidad Autónoma de Galicia.
El enunciado consistía en diseñar un laboratorio de investigación marina y un edificio administrativo. Además, debía incluir todos los espacios de servicio derivados de los mismos como almacenes, cámaras frigoríficas, acuarios, recepción...
El proyecto se centra en un edificio que a su vez se compone de dos volumenes.
El primero más alargado y bajo, que alberga el programa administrativo, tiene una altura menor para mantener una cordial relación con la trama urbanística de Malpica.
El segundo volumen trepa por el cielo del pueblo, y está localizado en el extremo del solar, el más cercano al mar Atlántico, posicionándose como si fuera el nuevo faro del puerto.
TENSIÓN NA COSTA




1.- Núcleo de ascensores
2.- Núcleo de escaleras
3.- Baño de hombres
4.- Baño mujeres
5.- Laboratorio individual
Zona de trabajo colectivos 7.- Estación de trabajo individual fija 8.- Cápsula de trabajo colectivo 9.- Sala de frío (muestras laboratorio)
TENSIÓN NA COSTA
tipo: Torre
El diseño se basa en el concepto de oficina paisaje (Bürolandschaft), un enfoque que aporta complejidad, dinamismo y flexibilidad al espacio de trabajo. La disposición de los equipos y las interacciones entre ellos permiten múltiples configuraciones, adaptándose a distintas necesidades y fomentando un entorno laboral versátil.

Para controlar parte de la oficina paisaje, se establecen varios núcleos fijos como lugares impresión, pequeños laboratorios y cámaras de frío. Alrededor de estos núcleos, se desarrollan distintas zonas de trabajo. No obstante, para dotar al proyecto de zonas donde los trabajadores puedan trabajar aislados, se han instalado cortinas de alta densidad para encapsular espacios.

TENSIÓN
La torre se sostiene sobre un gran núcleo de hormigón armado, que a su vez soporta una viga principal de acero. De esta viga cuelgan cables metálicos que sujetan los forjados, reduciendo al mínimo el impacto visual. Este diseño permite una visión periférica despejada del entorno, sin apenas interrupciones visuales.
La torre cuenta con una doble envolvente diseñada para minimizar el efecto invernadero. La capa interior está formada por un doble acristalamiento laminado, mientras que la exterior consiste en un entramado de lamas de madera dispuestas verticalmente. La separación entre estas lamas varía según la orientación de la fachada, optimizando la protección solar.

Sección en perspectiva

De Arriba a Abajo
Año: 2022
Asignatura: Proyectos I
Curso: Tercero


Este proyecto se desarrolla en Alcácer do Sal, un pueblo del oeste de Portugal situado en el estuario del río Sado, una zona históricamente vinculada a la producción de sal, actividad que le da nombre.
El encargo consiste en diseñar un complejo que integre un laboratorio de investigación alimentaria, un área de enseñanza superior y un mercado de uso semanal.
Un desafío clave es la topografía del terreno, ya que la parcela presenta un pronunciado desnivel con una diferencia de cotas superior a 25 metros. Esto exige soluciones arquitectónicas que se adapten al relieve, garantizando accesibilidad y una relación equilibrada con el entorno.
DE ARRIBA A ABAJO
El proyecto gira en torno a una torre ascensor diseñada para conectar los diferentes niveles del terreno de forma directa, ofreciendo ademásvistas panorámicas de la ciudad.
El programa se organiza en tres niveles. En la cota más alta se encuentra un pequeño aulario, conectado a una amplia pasarela que funciona como mirador y acceso a la torre ascensor.
En la cota intermedia se ubica el laboratorio, estructurado en torno a un gran patio central donde emergen las copas de los árboles, integrando el paisaje en el interior.
Finalmente, en la cota más baja, se sitúa el mercado temporal, diseñado para adaptarse al entorno y facilitar su uso semanal.



DE ARRIBA A ABAJO


Fotografía maqueta

Axonométrica explotada Fotografía maqueta

DE ARRIBA A ABAJO
Sección longitudinal




DE ARRIBA A ABAJO 02

ENTRE EL RIO Y LOS OLIVOS
Año: 2023
Asignatura: Proyectos I
Curso: Tercero


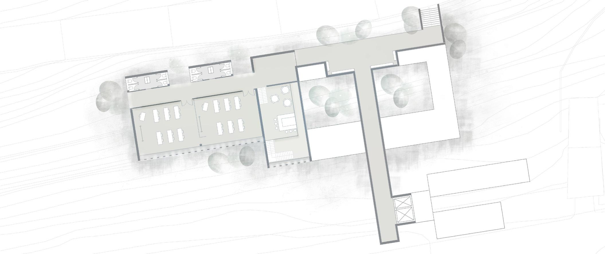
En este proyecto nos encontramos en Portugal, en Alcácer do Sal, un pequeño pueblo situado en el oeste del país, más concretamente en el estuario del río Sado, el cual se ha utilizado históricamente para la producción de sal en la zona. En el enunciado se pide que proyectemos una pequeña escuela infantil para alumnos de entre dos y seis años.
Esta nueva pequeña escuela consta de dos aulas para infantes de entre tres y cuatro años y otras dos para alumnos de entre cinco y seis años. También cuenta con cinco aulas exteriores, una por cada aula interior, con el objetivo de fomentar una enseñanza no estrictamente ligada al aula, brindando a los alumnos un espacio donde puedan aprender, experimentar y relacionarse.
Planta de situación

ENTRE EL RÍO Y LOS OLIVOS
1.- Baño adultos
2.- Sala de profesores
3.- Despacho dirección
4.- Recepción
5.- Sala psicomotricidad
6.- Cocina + Comedor
7.- Cuarto de instalaciones
8.- Lavandería
9.- Almacén lavandería
10.- Cuarto de basuras
11.- Aula exterior
12.- Aula exterior ``en el bosque´´
13.- Aula exterior ``mirador´´
14.- Baño niños 1-2 + baño adultos
15.- Almacén juguetes
16.- Aula niños 1-2
17.- Aula niños 3-4
18.- Baño niños 3-4
19.- Aula niños 5-6
20.- Aula ASCE
21.- Baño 5-6
22.- Patio
Axonométrica

Sección longitudinal
ENTRE EL RÍO Y LOS OLIVOS

ENTRE



Imagen interior



ENTRE EL RÍO Y LOS OLIVOS

Sección longitudinal

Una Grieta en la Playa
Año: 2023
Asignatura: Proyectos II
Curso: Cuarto

El proyecto se lleva a cabo en Calpe (Alicante). El objetivo es revitalizar el enclave conocido como ¨Los Baños de la Reina¨, un yacimiento arqueológico de gran valor histórico. El proyecto trata de generar un espacio alrededor de unas piscinas naturales que en su momento fueron unas piscifactorías romanas, tratando de reaprovecharlas para el uso público.

El concepto es generar dos grietas, aprovechadas para crear los recorridos del proyecto, reforzando la línea de costa presente al lado sur y la medianera situada en el lado norte. Los volúmenes que albergan el programa del proyecto se separan entre sí para generar los puntos de conexión entre los recorridos y las entradas de luz a las grietas.

UNA GRIETA EN LA PLAYA

UNA GRIETA EN LA PLAYA

Sección transversal ll

Sección transversal ll
Axonométrica explotada
UNA GRIETA EN LA PLAYA
Sección transversal lll




UNA GRIETA EN LA PLAYA 04



