


































































































“ARQUITECTURA: Una síntesis del accionar humano”
![]()



































































































“ARQUITECTURA: Una síntesis del accionar humano”
01:Complejo Educativo Deportivo Altos Del Cerro.
02:Proyecto Nueva Sabana.
03:VisuallizaciónArquitectócnica.
04:PerfilProfesional.
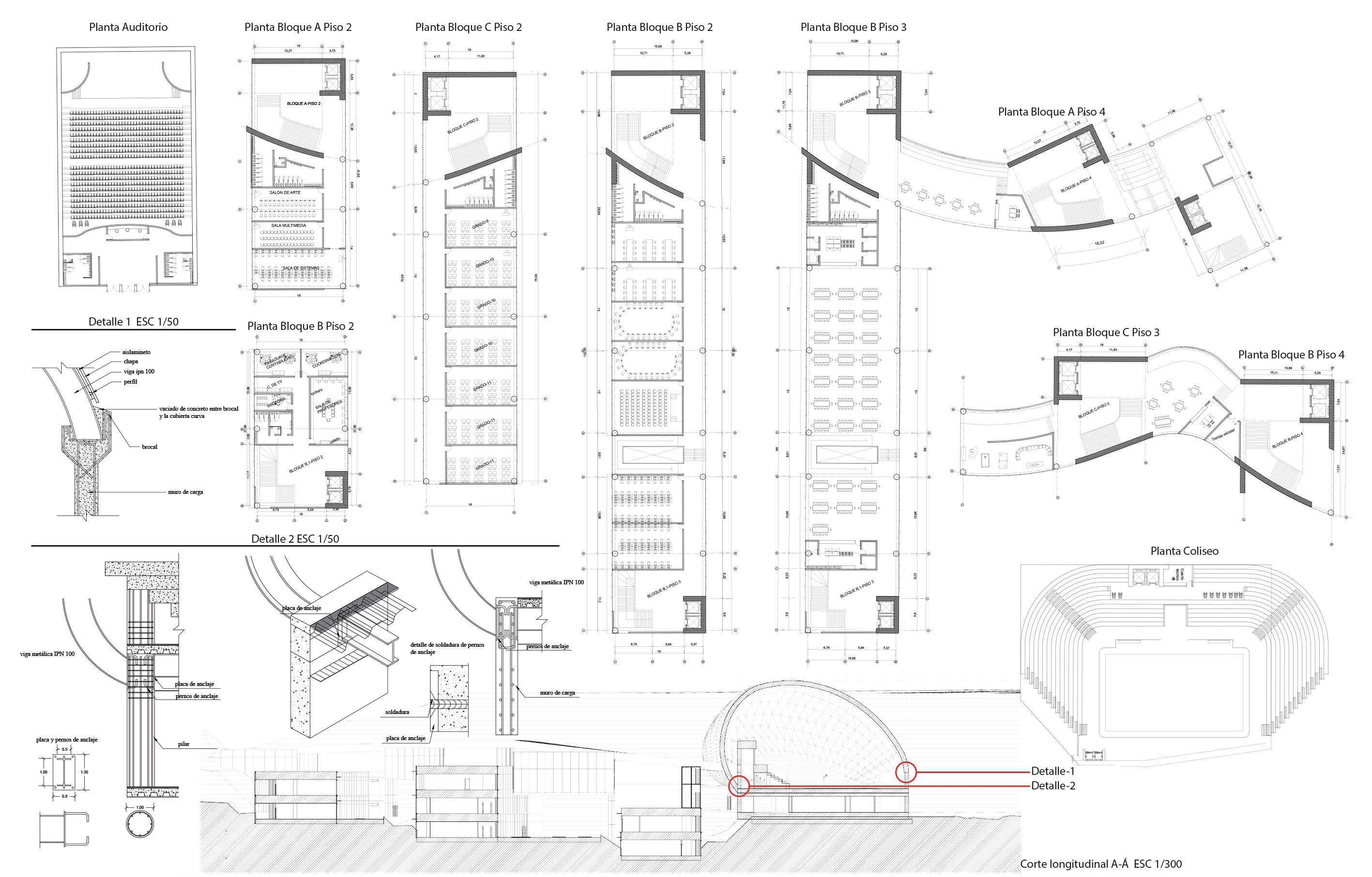
En este proyecto realice parte de la representación 2d en AutoCAD, así como los esquemas en Ilustrador y Photoshop.
Este proyecto esta propuesto cerca a los cerros orientales más exactamente en la U.P.Z pardo rubio, cuyo objetivo es el de Mantener la estructura ecológica principal de la ciudad de BOGOTÁ mediante la adecuación de espacios colindantes a los cerros que permitan minimizar el impacto del hombre sobre la naturaleza, propiciando una correcta relación entre lo construido y lo natural esto dentro del marco del desarrollo sostenible.
Para lo cual este proyecto en su conjunto cumple con barias funciones, siendo una de las principales, garantizar que las poblaciones que residen en los barrios ubicados cerca a la zona de intervención, tengan la posibilidad de mejorar la accesibilidad, en cuanto a servicios de tipo, económicos, sociales y ambientales, por lo que se plantea una serie de espacios de tipo RECREATIVO-DEPORTIVO que cumplirán la función tanto de reducir el déficit de espacio público presente en la zona de estudio, como el de ser un punto de acceso y llegada a los diferentes sistemas de transporte tanto propuestos como actuales, consolidando este sector como un espacio de tipo educativo de carácter regional, debido a los diferentes
equipamientos presentes en esta zona. En cuanto a su morfogénesis; el proyecto está compuesto por tres factores:
FACTOR AMBIENTAL, el cual consiste en el mejoramiento integral del ecosistema, enfocándonos en la mejora y restauración de los cuerpos hídricos presentes en el sector, además del uso de un sistema de taludes que permitirán la siembra de árboles y arbustos natos de la zona, propiciando una integración de la propuesta con la estructura ecológica de la ciudad;
FACTOR PÚBLICO, el cual consiste en la generación de espacios comunes de tipo recreativo- deportivo que aumenten el nivel de espacio público efectivo de la zona
FACTOR INSTITUCIONAL , el cual consiste en la generación de un equipamiento de tipo educativo que supla los niveles de escolaridad desde básica primaria hasta básica media, que hay en la zona.


Planteamiento general.
Espacio público
Movilidad

Deportivas
Cultura y recreación
Permanencia y contemplación
Equipamiento educativo
Unidades de vivienda
Verdes
Duras
Recuperación de cuerpos hidricos.
Estación Tren ligero
Trazado tren ligero
Ampliación y adecuación malla vial Regional
Ampliación y adecuación malla vial.
Recorrido de escaleras mecánicas
Red de caminos y ciclo-rutas






Representación 2d.
Autocad.
Representación 3d.
Programas Usados En El Proyecto.
Sketchup.
Postproducción y Divulgación.
Adobe Photoshop.
Adobe Illustrator.
New savanna project.
Proyecto nueva sabana.
En este proyecto fui el encargado de realizar el diseño arquitectónico de la edificación partiendo de la representación 2d en AutoCAD y posteriormente la realización del modelado 3D en el programa Revit.
La zona de intervención está ubicada estratégicamente sobre la avenida caracas, la calle 26, la avenida NQS y la calle 19.El proyecto tiene como objetivo principal reconocer, dignificar y mejorar las condiciones del trabajo sexual.
Este proyecto parte del estudio del funcionamiento de las edificaciones, a partir de su estructura formal y funcional y como estas a su vez se desarrollan: dentro y fuera de la edificación, de acuerdo a esto se propone el uso de nuevas tipologías edificatorias, cuya premisa es la de mantener la misma lógica funcional, de manera que se pueda MEJORAR Y DIGNIFICAR la espacialidad para cada actividad.
La forma en que se aborda el territorio esta dada por las operaciones estratégicas y el tratamiento del suelo, los cuales se estructuraron
mediante unas unidades de actuación las cuales tienen como objetivos y metas los siguientes:
La unidad de intervención estará enfocada al MEJORAMIENTO DEL ESPACIO PÚBLICO en donde se propone, dejar una huella de patrimonio, rehabilitando el uso de los edificios para uso de hoteles de paso o de una noche para lograr fomentar el turismo en este lugar.
A su vez se propone que en las tipologías exista COMERCIO EN LAS DOS PRIMERAS PLANTAS para lograr una serie de corredores comerciales que estén relacionados con el trabajo sexual, a partir de la tercera planta en adelante se propone el uso residencial, enfocado a solucionar un tema de movilidad de las personas que laboran en oficios relacionados al trabajo sexual.

Perspectiva Tipología implementada.



Representación 2d. AutoCAD.
Programas Usados En El Proyecto.
Representación 3d.
Sketchup.
Postproducción y Divulgación.
Revit. Adobe Photoshop. Adobe Illustrator.
En este capítulo se recopilan imágenes de algunos proyectos de tipo residencial, en los cuales se tomaron imágenes esteriores en donde se exponen imágenes en horario diurno como también nocturno, además de imágenes de tipo interior e imágenes tipo 360, las cuales permiten la sensación de estar en el lugar antes de efectuarse una compra o la construcción de un proyecto nuevo.


















• Representación 3d.
3D Max Sketchup. V-Ray.
• Motor De Renderizado
Programas Usados En Los Proyecto. Adobe Photoshop.
• Postproducción y Divulgación.


Arquitecto profesional, con más de dos (2) años de experiencia en el área del diseño y visualización arquitectónica 2D y 3D; apasionado por la representación y modelado 3d, la realización de imágenes fotorrealistas y la adquisición de nuevos conocimientos enfocados al mundo del ArchVIZ.
/Zipaquirá Colombia
• https://www.linkedin.com/in/juan-carlos-malaver-desing-model3d-archviz/
• arqjuancarlosmalaver@gmail.com
• 313 471 4043
Representación 2D.
AutoCAD-Nivel Profesional
Representación 3D.
Revit-Nivel Básico
3D max-Nivel Avanzado
Sketchup-Nivel Básico
Motor De Renderizado. Postproducción
V-Ray-Nivel Avanzado
Lumion-Nivel Básico
Unreal Engine Nivel Básico
Adobe Illustrator Nivel Avanzado
Adobe Photoshop Nivel Avanzado
Adobe InDesing Nivel Básico






















































































