Jack Schulman Architecture Portfolio

Page 1

WORKS 2020 - 2024 PORTFOLIO JS
JACK THOMAS SCHULMAN | ARCHITECTURE
SELECTED

JACK THOMAS SCHULMAN

CONTACTS

Email: Jackschulman.arc@gmail.com

Phone: 310 962 4339

Adress: Los Angeles, CA 90034

Website : TBA

SOCIALS

/jts_arc

INSTAGRAM LINKEDIN

/jack-schulman-arc

PROFILE

My name is Jack Schulman, a 23-year-old native of Los Angeles, California. I hold a Bachelor’s degree in Architecture from the University of Arizona.

I am recognized for my strong work ethic, sociable nature, and leadership capabilities. I believe in the power of architecture to address critical issues facing our society. My passion lies in finding innovative solutions to these challenges through architectural design. Throughout my architectural journey, I have embraced a professional and dedicated approach to my studies and projects. My goal is to make a meaningful impact in the field of architecture by utilizing its potential to create solutions for pressing global issues.

01

EXTRACURRICULARS

2018-20

- University of Arizona Wrestling Club

2022

- ACSA Cote Top 10 Competition

2023

- Volume Zero Tiny Library Competition

- Ivory Innovations Hack - A - House

2023-24

- AIAS Fundraising Director

EXPERIENCE

SOFTWARE PROFICENCY

Enscape 5 years

Lumion 5 years

InDesign 5 years

Rhino 5 years

Photoshop 4 years

Revit 2 years

AutoCad 2 years

Grasshopper 1 year

Illustrator 6 months

SKILLS & TRAITS

2024

- Collaborator for Professor Mike Silver

Digital Modeling & Research

-Inter nship

The M Group Architects Reston, VA

EDUCATION

Bachelor of Arts (B.A.) In Architecture

Aug 2018 - May 2024

Adaptable - I can be the team leader or the teamate

Optimistic - my glass is half full

Hardworking - always giving my 110%

Opportunistic - always looking for ways to improve myself and my work

Tech-Savvy - quick to master new technologies and programs

People Person - a smile goes a long way!

Craftsman - skilled with all forms of fabrication

AWARRDS & HONORS

2018

- Exellence in Architecture Award

2023

- CAPLA Student Profile

- University of Arizona Homecoming King Nominee (elected on behalf of CAPLA)

*1st Homecoming King to be nominated by CAPLA

02
03
01 02 03 Terraza Verde TRANSCENDENCE Raising The Bar
Hill
Physical
04 05 06 Harboring Resilience 04
House
Models

01 TRANSCENDENCE

In the vibrant landscape of New York City, Long Island City (LIC) stands as a pivotal hub, yet its potential remains largely untapped. As the adjacent boroughs grapple with congestion and gentrification, LIC holds the promise of becoming not just a pass-through point but a destination in its own right. The Sunnyside Nexus project seeks to address this dual challenge by reimagining transit infrastructure as a catalyst for urban vitality and socio-economic growth.

At its core, the project confronts pressing questions of urban connectivity and community engagement. How can we streamline the logistical flow between various modes of transportation without sacrificing simplicity? What are the implications, both positive and negative, of constructing over Sunnyside Yard? What innovative transit solutions can serve the diverse needs of LIC’s residents and workforce? How can the hub be designed to accommodate future expansion seamlessly? And perhaps most intriguingly, how do we navigate the complexities of creating a vertiport in an airspace devoid of current regulations?

Drawing on a theoretical framework that emphasizes the trifecta of movement through space, human comfort, wind harvesting, and adaptability to future technologies, the project envisions a transport hub that transcends mere functionality. It embraces sustainability as a guiding principle, leveraging renewable energy sources and prioritizing economic growth as a means to foster community resilience

The selection of Sunnyside Yard as the site for this transformative endeavor is deliberate. Positioned amidst existing transport arteries—Amtrak, Subway Line 7, Queens Blvd, and the Queensborough Bridge—it offers unparalleled connectivity. Moreover, the phased nature of the master plan to deck over Sunnyside Yard allows for a gradual evolution, affording time for airspace regulations to mature and adapt to emerging needs.

In pursuit of our goals—functionality, sustainability, and efficiency—the project proposes a spatial and systemic ordering that embraces complexity while maintaining clarity. Multiple transport stations, each tailored to the specific requirements of its mode, are woven together across different ground planes, creating a dynamic interplay of space and movement.

The intended outcomes of the Sunnyside Nexus project is to demonstrate the feasibility of a transportation nexus that not only serves the immediate needs of LIC but also anticipates and adapts to its evolving demands. By catalyzing an economic boom, the project aims to provide the financial impetus for the expansion of LIC over Sunnyside Yard, unlocking its full potential as a dynamic urban center.

05
06

Manhattan’s renown extends beyond its cultural, artistic, and economic hubs; it also stands out for its demographic density. As the most densely populated county in the US, Manhattan boasts the highest daytime-to-nighttime population ratio nationwide

Community Amenity: The park should serve as a substantial open-space amenity for both the proposed development and the existing adjacent community.

Access: Public access points should be available from multiple locations along the park’s perimeter to ensure ease of entry for all.

Programming: Alongside traditional park features like Lou Lodati Park, “Sunnyside Common” should prioritize community-centric amenities such as recreation courts, community gardens, water features, horticultural display gardens, and various comfortable seating options

Social Lawn: A spacious and adaptable social lawn is essential to accommodate both formal and informal gatherings, including picnics, sunbathing, and community events.

Plantings: The park should boast a diverse array of flora to offer shade and seasonal interest, with consideration given to incorporating areas for community gardens.

SUNNYSIDE YARD, NYC - 11101 - Lat, 40.73N : Lng, -73.94 W 1.3 mi Long Island City Queens Blvd Purple Line 7 Thomson Ave Skillman Ave
PROGRAM 1. Community Lawn 2. Water Plaza 3. Horticultural Gardens 4. Tennis Courts 5. Lou Lodati Playground 6. Basketball Courts 7. Garden Walk 8. Park Pavillion SUNNYSIDE PARK MASTER PLAN PROPOSAL 12:00 PM WEDNESDAY 12:00 AM - WEDNESDAY New York County (Manhattan) New York County (Manhattan) Est. Pop. for Wed, 12 PM: 3,906,165 Est. Pop. for Wed, 12 AM: 2,098,107 Wednesday Peak Pop. Change: 1,884,000 (92%)
TRANSPORTATION & CONGESTION 07

Aluminium Frame

Tempered Glass

Encapsulant - EVA

Solar Cells

Encapsulant - EVA

Back Sheet

Exploded Structural Axonometric

Steel Truss System Aluminium Panels (bottom) Aluminium Panels (top) Structural Glass Skylight + Steel Frame Parametric Column System Structural Glass Skylight + Steel Frame Steel Truss System Aluminium Panels (bottom) Aluminium Panels (top)
08

325 [W/m^2] of Potential Wind Power

QUEENS BLVD DESCEND TO ASCEND PURPLE LINE NO. 7 SUNNYSIDE YARD
Transportation
Areospace &
Museum
Lester Park
1,447 HOURS OF USABLE SUNLIGHT PER YEAR SYSTEM OUTPUT MAY RANGE FROM 1,631,815 TO 1,756,934 kWh PER YEAR NEAR THIS LOCATION 1,699,985 kWh/Year* LOCATION SUNNYSIDE YARD oct nov dec Percent of Total hHw/Yr jan 0% 7.5% 10% 2.5% 5% feb mar apr may jun jul aug sep WEATHER DATA SOURCE LAT, LNG: 40.73, -73.94 LATITUDE 40.73 * N LONGITUDE 73.94* W
Sunnyside Park
Section Perspective
>0 >17 >3 >24 >7 >31 N E W
-
09 90,000 sqft of potential solar arrangement
Long Island City offers ideal con
ditions for wind power harvesting due to its strategic location along the East River, where strong and consistent winds flow. Additionally, its open spaces and relatively low urban density provide ample room for the installation of wind turbines without significant obstructions.
10

02 Terraza Verde

Situated in Downtown Tucson, Arizona, this project showcases a mid-rise apartment complex spanning eight stories. The design prioritizes the well-being of reswwidents by incorporating green architecture, dedicated communal spaces, and opportunities for social interaction

With a total of 78 rooms, 60% of the units are designated as affordable housing, addressing the local community’s housing needs while fostering a sustainable and healthconscious living environment.

11
12 Floor Plan 01 Floor Plan 02 Floor Plan 07 Lobby East Lobby West HVAC Storage Bathroom Commercial space A,B,C Bicycle Storage Parking Unit x (x12) Unit y (x0) Unit Z (x4) Custodial Unit x (x0) Unit y (x5) Unit Z (x4) Study Center Social Space Custodial 20 40 80 1/32”=1’0” 1/32”=1’0” 1/32”=1’0”

December 12pm

Instances within the space that disrupt repetitive circulation and promotes community engagement

13

Every room recieves daylight year-round, optimizing the promotion of horticultural therapy, an oppertunity available to every resident.

14
Unit Z
NORTH | SOUTH SECTION 1/16”=1’0”
Communal spaces dedicated for social engagement
UNIT X UNIT Y 650 sq ft 650 sq ft 15
UNIT Z 1350 sq ft 16

03 The Bar

Situated in Oro Valley, Steam Pump Ranch is rejuvenated amidst the Canada Del Oro River and Catalina Mountains. The 16acre site, with underutilized structures, thrives through weekly events by The Historical Society. To preserve its history, building westward integrates the site effectively, creating a subgrade space for public engagement.

The manipulation of topography, besides addressing runoff concerns, forms a bioswale, featuring “The Oasis” pond for water storage. Abundant water fosters diverse vegetation, positively impacting mental health. Design decisions prioritize well-being, incorporating open workspaces, tall ceilings, visual connections to nature, and integration with natural systems.

The architectural intervention aims for carbon neutrality, employing six passive (e.g., evaporative cooling) and four active strategies (e.g., solar panels). This holistic approach ensures Steam Pump Ranch stands as a sustainable icon, preserving history while embracing environmentally conscious design in Oro Valley.

CARVE TAPER SUBMERGE

17

1ST FLOOR

1ST FLOOR

1ST FLOOR

2ND FLOOR

2ND FLOOR

2ND FLOOR

3RD FLOOR

3RD FLOOR

3RD FLOOR

CEILING PLAN

CEILING PLAN

CEILING PLAN

REFLECTED CEILING PLAN 2ND
FLOOR
REFLECTED CEILING PLAN 2ND FLOOR
REFLECTED CEILING PLAN 2ND FLOOR
Floor Plan 02 Floor Plan 03 Floor Plan 01 Water Preservation Museum HVAC Storage Bathroom Closet Main Office Laundry Room---------- 40 sq ft HVAC --------------------- 30 sq ft Storage ------------------- 25 sqft Bathroom ---------------- 80 sq ft Bedroom ----------------155 sq ft Closet -------------------- 50 sq ft Kitchen ----------------- 162 sq ft Laundry Room---------- 40 sq ft HVAC --------------------- 30 sq ft Storage ------------------- 25 sqft Bathroom ---------------- 80 sq ft Total: x sq ft 1/32”=1’0” 1/32”=1’0” 1/32”=1’0” 18
Sketches Refuge Prospect 19
of Water
North / South Section: Preliminary
Presence

North / South Section

0’ 13’ -26
1/32”=1’0”

Harboring Resillaince: A Revitilization Plan | Oakland, Califor nia

This project focuses on translating the resiliant nature that Oaklanders posess into the threads of the urban fabric. Being able to overcome challenges and setbacks is what Oakland is about, and this project emphasizes on adressing an challenge and overcoming that challenge

Shipping Containers: Why it Will Work

Obtaining shipping containers for repurposing into housing in Oakland is facilitated by the city’s extensive harbor port, ensuring convenient access to a steady supply of containers. The thriving port infrastructure not only streamlines the logistics but also aligns with Oakland’s innovative approach to sustainable urban development through the adaptive reuse of shipping containers. 2023

04
2123 local merchants safe streets bike amenities social space 1’=2500’
Mater Plan - Site Scale LOTX
Rec Center Boardwalk Affordable Housing Water Sports Center Dog Park Farmers Market Parking
PIER Outdooor
22 LOT X PIER
Site Evolution Diagram
Area of Interest Parks 23 Mater Plan - City Scale
1’=8000’
24 1’=8000’ Transit Sea Level Rise BART Locomotive Bus Stops Bus Routes 2’ 4’ 6’
Site Analysis - City Scale

05 Hill House

Hill House, situated on Sentinal Peak in Tucson, Arizona, reimagines architectural fabrication by drawing inspiration from aerospace engineering. Utilizing prefabricated shells made of S-Glass, a composite material with an oaky texture, the project explores innovative structural and thermal elements. This approach grants the architect meticulous control over openings and structural features.

The design’s programmatic layout is intricately linked to the opacity of the S-Glass threading, where spaces allowing more light embrace a public nature, contrasting with tightly woven, private areas. Supported by a concrete core, the house features expansive overhangs made possible by the lightweight yet robust nature of the composite material, enhancing both aesthetics and functionality.

25
26

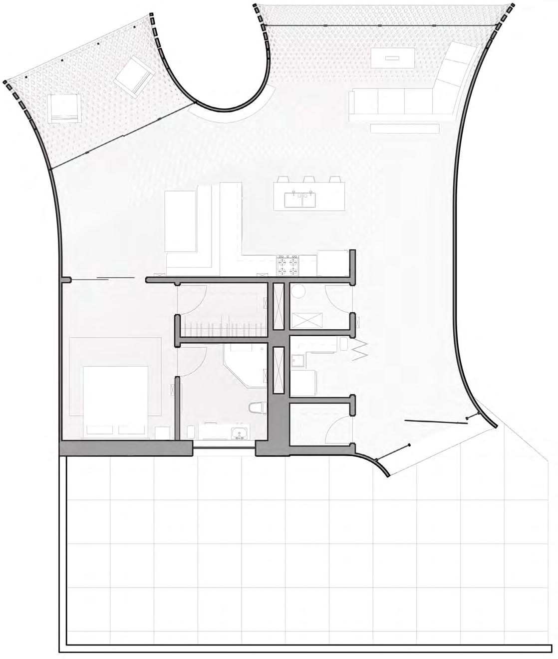
Hill House Floor Plan

1/8”=1’0”

Laundry Room---------- 40 sq ft

HVAC --------------------- 30 sq ft

Storage ------------------- 25 sqft

Bathroom ---------------- 80 sq ft

Bedroom ----------------155 sq ft

Closet -------------------- 50 sq ft

Kitchen ----------------- 162 sq ft

Living Room ----------- 663 sq ft

Hallway ----------------- 515 sq ft

Total: 1720 sq ft

27

Section Perspective

28
1/8”=1’0”
29
30

06 Models

Star Apartments Circulation Model

31

Merging Materialities

32
33
Terraza Verde Circulation Model
34

JACK THOMAS SCHULMAN

CONTACTS

Email: Jackschulman.arc@gmail.com

Phone: 310 962 4339

Adress: Los Angeles, CA 90034

Website : TBA

SOCIALS

INSTAGRAM LINKEDIN

/jts_arc /jack-schulman-arc

JS

Turn static files into dynamic content formats.

Create a flipbook
Issuu converts static files into: digital portfolios, online yearbooks, online catalogs, digital photo albums and more. Sign up and create your flipbook.
Jack Schulman Architecture Portfolio by JTS_Arc - Issuu