Justin Best 2025

Works
University of Southern California
School of Architecture
![]()

Works
University of Southern California
School of Architecture
justintybest@gmail.com (661) 645-9425
www.linkedin.com/in/justin--best
I am an architectural designer from Los Angeles, graduating from the University of Southern California School of Architecture. As a passionate designer, I value architecture as a gift that allows me to express myself creatively, while also allowing me to generously serve my community. I am a lifelong learner, always eager to acquire new techniques and skills. I look forward to using these design skills to shape human behavior and interactions in positive, meaningful ways.
Gensler — Architectural Intern — Sports
-Was integrated throughout different phases of design, primarily SD and CD phases
-Developed client presentation decks containing diagrams, renderings, area calculation charts. Created and developed site models and designed project components.
-Projects: Denver Broncos Training Facility, FAU BPF + Arena Renovation, Los Angeles Chargers Training Facility
Skidmore, Owings & Merrill (SOM) — Shadowship
-Honed presentation skills
-Took part in site visits
Gensler — Architectural Intern — Mixed Use/Retail
-Took part in the creation of drawings throughout different phases of design, primarily DD phase
-Created and updated presentation decks for frequent client and consultant meetings
NOMA — Summer Program Intern
-Taught classes for high-school students interested in architecture and aided them in the creation of a design project
Belmar History + Art (BH+A) — Designer
-Created designs for an art and history project commissioned by the City of Santa Monica, consisting of a permanent art installation that accompanied the grand opening of a new sports facility. This project commemorated and celebrated the history of thriving African American communities that were displaced in Santa Monica.
Jun 2023-Aug 2023
University of Southern California Bachelor of Architecture 2020-2025
La Salle (ETSALS) - Ramon Llull University
USC Scool of Architecture Meditteranean (MED) Study Abroad Program Spring 2024
2022 Socal NOMA Project of the Year Award
Thom Mayne Full Study Abroad Scholarship
USC Tau Sigma Delta: Honor Society for Architecture
Professor: Dora Chi
Located on the site of the historic Hamburger and Sons’ / May Co. Department Store, Ascend is a community center aimed at increasing the amount of elevated public space in Downtown Los Angeles. The project addresses the lack of existing open, public spaces by minimizing its footprint to allow for a continuous elevated public plaza throughout the rooftop. The main structure allows for a seamless transition between this public rooftop plaza and programmed elements. Additionally, through a cantilevering truss system held up by a large core at the center of the building, the main building on the site seemingly floats in the air when viewed from the street.
The thematic focus of this community center revolves around entertainment and film, inspired by the Broadway Historic Film District and the site’s closeness to Broadway Street. The primary “box” structure on the site consists of a film museum with an integrated film theater, as well as a multipurpose hall and library on its lower floor. In this structure, two components drive its formal character: the Veil and the Blanket. The Veil, using laminated glass and a curtain of thin white ceramic rods, allows for full visibility of the surrounding context, while controlling the amount of light entering the museum space on the third level. The Blanket, a suspended space frame structure, lifts people from the rooftop plaza into the free program spaces on the second level. A secondary building on the site consists of classrooms for young filmmakers, and a suspended platform for children’s play is situated between these two buildings on the site. The primary and secondary structures, as well as the continuous rooftop plaza and its elements, are threaded together by the “Red Carpet”, a walkway used as circulatory device to encourage movement throughout the site, as well as give the young filmmakers and museum-goers enthusiasm and motivation as they “Walk the Red Carpet”.

Software: Rhinoceros, Adobe Illustrator, Adobe Photoshop, Blender (Rendering)












Perspective Section





Professor: Lawrence Scarpa
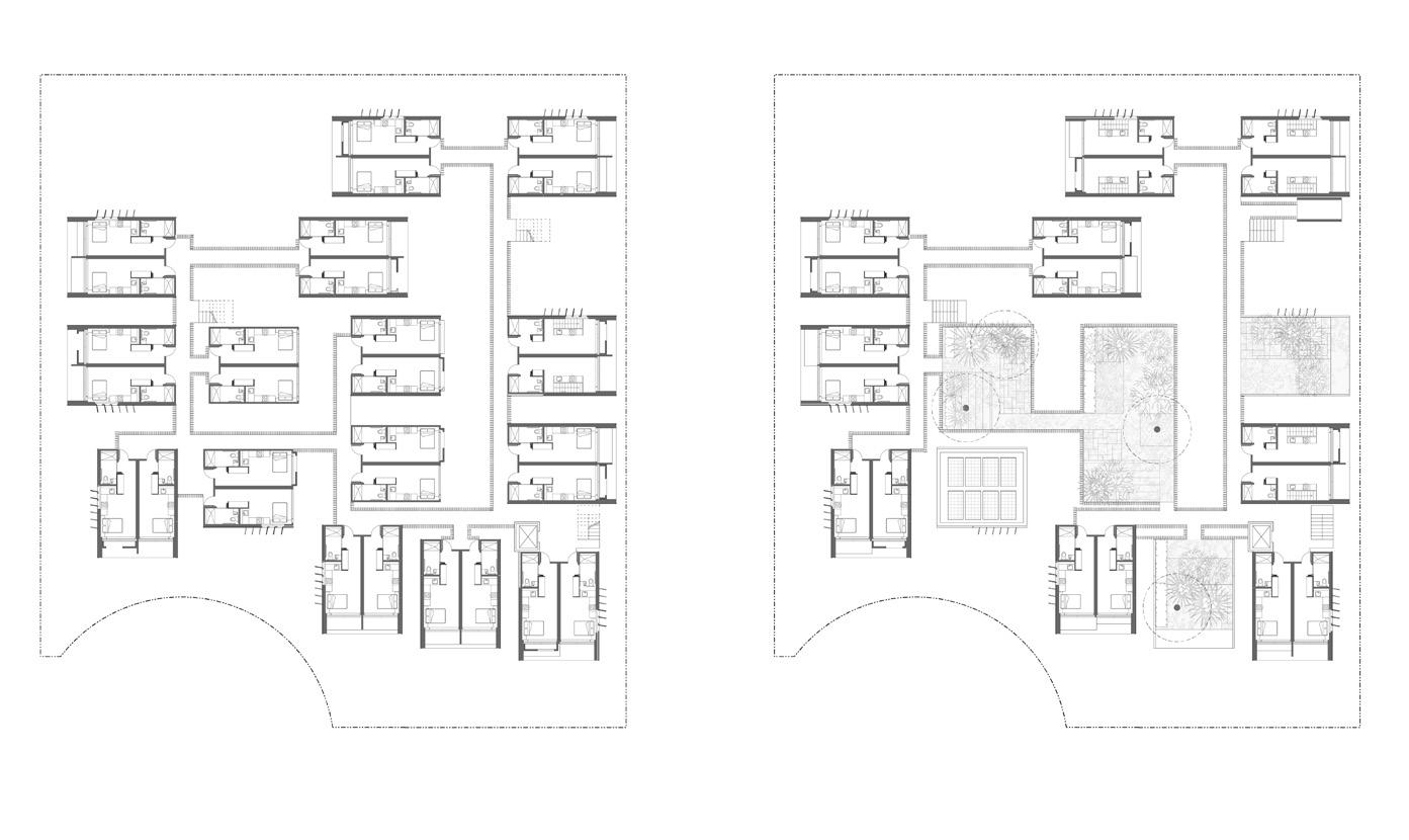
The formal strategy for this project sensitively takes into account the surrounding dense, yet open neighborhood fabric. The building is a multi-family cooperative home, and is comprised of a set of individual, yet connected, volumes that blend into their surrounding context.
The project approaches the topic of health from the standpoint of healthy food consumption. Food insecurity is a prominent issue as this site is located in the inner city of Los Angeles. Not only do many people not have access to healthy food options, but many can not afford healthier food from grocery stores that do exist. With the project being situated adjacent to a large private university, this issue becomes worse. The project addresses this by growing fresh produce on the rooftop terraces and 2nd floor continuous gardens, and then selling this food along with others in the market on the ground floor for a low price. This is made possible as transportation costs are eliminated as well as a variety of other factors in the food distribution process. This model allows for the organic nutritious food to be sold at a lower cost, allowing those experiencing food insecurity to access it. The amount of green spaces and food growth on the site is also aimed to foster a culture that promotes healthy food consumption instead of fast food. Ideally, this culture would radiate from the building into the surrounding community.

Software: Rhinoceros, Adobe Illustrator, Adobe Photoshop, Blender









Additional to encouraging healthy food consumption, the co-op aims to foster a culture that promotes excercise. The set of structures are threaded together by common gardens and courtyards, as well as open corridors leading to units and rooftop terraces. Not only do the separated volumes allow for the building to blend into its surroundings, but they also allow for a suspended open corridor circulation system that encourages walking by providing fresh air and views to different parts of the site and context.






Professor: Eric Nulman
With the goal of creating timeless, scaleless spaces within a film museum, this design explores how the appearance, both inside and out, of a monolithic form can create immersive, yet inviting spaces. Entrance into the museum occurs within a corridor projecting shifting light refractions onto the milled stone facade of the main structure, guiding visitors inward. Designed through perspective, the museum balances monumentality with movement, making the monolith both a spectacle and an immersive experience.


Software: Rhinoceros, Adobe Illustrator, Adobe Photoshop, Blender



The caustic corridor contains controlled light refractions creating shifting patterns across the adjacent architectural wall, guiding visitors into the museum. From the outside, the corridor transforms the museum into a spectacle— opening slightly to create an inviting entry while maintaining the building’s imposing presence

The wall is both a structural and experiential anchor within the museum. Acting as a shear transfer element, it supports a monocoque system of glulam beams and faceted CLT panels, allowing for vast, column-free interiors. Beyond its structural role, the wall functions as a wayfinding device, directing circulation through its form





The wall serves as both a structural backbone and an experiential guide within the museum. As a shear transfer element, it anchors a monocoque system of glulam beams and faceted CLT panels, enabling expansive, column-free interiors that reinforce the monolithic concept.















Featured in the USC Architecture Blueprint Exhibition
Featured on Archinect: ‘We Have To Get Much Better at Speaking To Wider and Wider Audiences: A Conversation With USC Architecture Dean Brett Steele’
This project questions and reimagines the conventions of monolithic architecture. It prompts a paradigm shift – from the monolithic perceived externally to one that resonates internally. This reimagined monolith is visualized by pliable vellum materials pressing against the multifaceted recesses of a building, their inflated silhouettes emerging through gaps and crevices, each discrete component set apart yet bound by the unifying vellum. Centered on the design of the National Concert Hall, the project represents a novel design expedition. From a sprawling main concert hall with 1500 seats, an intimate hall for 500, to inviting lobbies and essential backstage facilities, the project serves as a narrative fusion of pragmatism and critical architectural endeavours.

Software: Rhinoceros, Houdini (Computational Design), Z-Brush, Adobe Illustrator, Adobe Photoshop, Blender (Rendering)
















