portfolio .

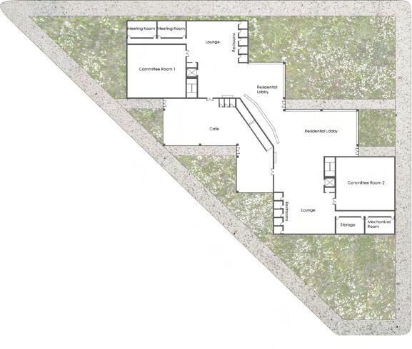
temporary living spaces for governmental personal and staff while congress is in session. The housing project is expected to be converted into regular hotel rooms


The building turns its back to the street, not out of hostility but to preserve a quiet interior ecology shaped by light and shadow. Circulation thickens into rooms, and rooms dissolve into thresholds, blurring the line between movement and dwelling. Architecture here is less an object to be seen than a condition to be entered and slowly understood.








Each room connects to the circulation through a subtle retreat rather than an open threshold. As one moves away from the passage, light gradually fades, reinforcing privacy through atmosphere instead of physical separation alone. Simplicity and efficiency is favored throughout the design to provide a seamless transition from work to rest.










Each room pulls back slightly from the circulation, but this space goes further by letting the occupant control its atmosphere. A slatted façade filters light and air while helping retain warmth. When partially closed, the slats soften and narrow the light, creating a quiet, insulated interior that supports solitude through both dimness and thermal comfort.







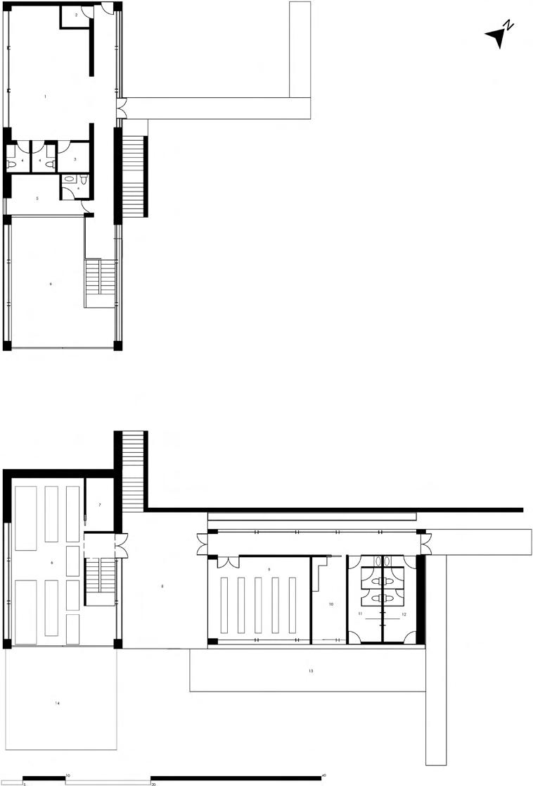
The Sailing School is targeted to be a community space for any water sports or activites during the summer. It contains multiple learning environments such as a library, an outdoor learning space, and an indoor classroom for lectures regarding sailing. It is also a fully functioning boat storage that can house 2-3 CFJ class, 2-3 Vanguard 15 class, and 3-4 Optimist class


The Sailing School is located within an active community that supports a wide range of recreational activities, including swimming, boating, water skiing, and various beach-based programs. The school is designed to serve as both a home base and a learning environment for individuals interested in the sport of sailing.





The boat storage and learning hall is a flexible, high-volume space designed to accommodate multiple sailing vessels while maintaining clear and efficient circulation. Generous open areas support hands-on instruction, maintenance, and rigging, allowing learning to occur directly alongside the boats. Natural light and ventilation enhance comfort and visibility, reinforcing the space as both a functional storage facility and an active educational environment.




03 Design Build Canopy Project Spring 2023
The project is a continuation of a project that has been started by alumnis of the school. The projects is a collaboration piece and aims to complete the canopy through the addition of the roofing and other forms of shading devices.


The canopy is conceived as a quiet piece of infrastructure that performs as both shelter and landscape. Its roof planes are subtly angled to direct rainfall, guiding water through an integrated gutter system within the ground that channels it downward to nourish the planting beds behind and beneath the structure.







The canopy is grounded in a material language that extends seamlessly into the tables and benches beneath it, creating a unified architectural ensemble. Reclaimed concrete blocks found on site anchor the structure and furnishings, giving weight and permanence to elements that emerge directly from the ground they occupy. Above and between them, aluminum frames provide a light, durable skeleton, while wood surfaces soften the assembly at points of touch, inviting rest and gathering.




