Pittman Portfolio

Page 1

Architecture

Plannning Interiors

2005 - 2024 JOSHUA PITTMAN PORTFOLIO
Contact Info: (469)569-5108 jopittma@gmail.com

Mixed Use (Experience)

• Arco Sao Goncalo, Sao Goncalo, Brazil

35,000 sqm. Shopping Centre, 10,000 sqm Hotel, 25,000 sqm., O ice Building

• Periferico 6666, Mexico City, Mexico

35,000 sqm., Retail 4,000 sqm, Cinema, 156 Key Hotel

2 - 300 Unit Residential Towers, 18,000 sqm O ice Tower

• Sante Fe Oriente, Mexico City, Mexico

83,000 sqm. O ice Tower, 40,000 sqm. Residential, 12,000 sqm. Hotel,

26,000 sqm. Retail and Restaurants

• Dubai Hills Masterplan, Dubai, UAE

200,000 sqm. Retail, Residential and Hospitality Masterplan

• 360 Tennis Expansion, Kuwait City, Kuwait

27,000 sqm. Arena, 20,000 sqm. Tennis Facilities, 25,000 sqm.

Retail 28,000 sqm. 250 key Hotel

• Cottonwood Salt Lake City, Utah

80,000 sq. ft. Residential, 675,000 sf Retail, and 195,000 sf. of O ice

• The Shops at Solana, McAllen, Texas

200,000 sf. Retail, 30,000 sf Cinema, 200 key Hotel and Conference Center

• Victory Park, Dallas Texas

Retail & Urban District planning

• Lone Star Brewery District, San Antonio Texas

90,000 sf Retail, 35,000 sf Restaurant, 100,000 sf O ice-

PROFESSIONAL EXPERIENCE

Hospitality & Residential (Experience)

• Four Seasons Hotel, St. George, Grenada

200 Key Resort Hotel

• Las Banderas Hotel, Puerta Vallarta, Mexico

250 Key Resort Hotel and 8 Villas

• Fairmont Sharm El Sheikh, Egypt

300 Key Resort and 25 Villas

• Hyatt Regency, Kuwait City, Kuwait

250 Key Hotel

• Regent Santa Fe, Santa Fe New Mexico

90 Key Hotel , 20 Branded Residences

• Wildhorse Meadows, Steamboat, CO

200 Unit Multi-Family, 90 Residential Units

Architecture Firm Experience:

HKS (Dallas, Texas) Intern Architect 2005-2010

Gensler (Newport Beach, Los Angeles) A ssociate 2010-2014

CallisonRTKL(Dallas, Los Angeles) Associate 2014-2018

SB Architects(Dallas) Regional Director2023

Real Estate Experience:

The Irvine Company(Irvine, CA) Vice President 2018-2023

Education:

Texas Tech University, Masters in Architecture

Licenses and Certifications:

Registered Architect: Texas, California

LEED AP BD+C

Professional A iliations:

American Institute of Architects

Texas Society of Architects

Urban Land Institute

Texas Real Estate Council

DESIGN

SHOPPING, ENTERTAINMENT
DUBAI CREEK HARBOR
ROLE: ASSOCIATE - CRTKL BRIEF: Anchored by an iconic sculptural spire this development this embodies the future in Retail Mixed Use Development. Grounded by its streets and square’s masterplan, the architectural interpretation is that of an Urban City with a blend of luxury and hospitality.
CONFIDENTIAL PROJECT
EXPERIENCE SELECT PROJECT EXPERIENCE AND PORTFOLIO
SHOPPING ARRIVAL/DROP OFF

WEST DROP-OFF @ LEVEL

A

DUBAI CREEK HARBOUR

CONNECTED CITY

OVERALL FLOOR PLAN

WEST PRECINCTS

WEST DIAGONAL (NORTH)

A CONTINUATION OF THE STRONG AXIS LEADING TO THE OBSERVATION TOWER

WEST AVENUE

A MORE INTIMATE SCALED ALLEY EXPERIENCE

WEST DIAGONAL (SOUTH)

A LINEAR, FORMAL PROCESSION ACCENTUATING THE AXIS OF THE TOWER

SOUTHWEST DROP-OFF

A GRAND EXTERNAL PRESENCE CREATING THE EXPERIENCE OF AN INTERNATIONAL HOTEL

EXPERIENCE
MORE INTIMATE BOUTIQUE HOTEL
+18
CONFIDENTIAL PROJECT SHOPPING ARRIVAL/DROP OFF EXPERIENCE PLAN
WEST AVENUE FLAT IRON BUILDING
SELECT PROJECT EXPERIENCE AND PORTFOLIO
WEST DROP-OFF
CONFIDENTIAL PROJECT
SELECT PROJECT EXPERIENCE AND PORTFOLIO
HIGH FASHION RESTAURANT DISTRICT

HIGH FASHION AND RESTAURANT DISTRICT

(TRADITIONAL OPTION)

CONFIDENTIAL PROJECT SELECT PROJECT EXPERIENCE AND PORTFOLIO
CONFIDENTIAL PROJECT SELECT PROJECT EXPERIENCE AND PORTFOLIO
WEST AVENUE SHOPPING DISTRICT

BRIEF: Located within the Heart of one of the world’s most historically significant metropolis’, the design team was tasked to create a new vision for the future and restore the heritage of the past of a public square rich in tradition and political controversy.

ROLE: ASSOCIATE - CRTKL

TAHRIR SQUARE

SHOPPING, ENTERTAINMENT

PROPOSED CURRENT EXISTING BUILDING CONDITIONS

BRIEF: Focusing on the Urban Edge, which defined this historic square, we proposed modern retail tenancies at street level with spill-out seating, meanwhile preserving pre-existing architectural details, introducing modest paint and finish Alterations as needed, which would appeal to a modern demographic and set a vision for the future.

RESTORED FACADE FENESTRATION
CONFIDENTIAL PROJECT SELECT PROJECT EXPERIENCE AND PORTFOLIO

CURRENT

EXISTING BUILDING CONDITIONS

BRIEF: is apartment block, rich and distinct in ornamental character, had begun to lose its heritage qualities as a by product of the instability of the local authorities. e buildings exterior still maintained an assemblance of its ornate character, which we chose to revitalize introducing several key concept, simplifying the base podium creating a tenancy, which reflected the romance of the neoclassical period. Enhanced the buildings ornate architectural detail and cra smanship with a combination of contemporary paint colors, pin mounted lettering and awnings, which were consistent with a more traditional time period.

PROPOSED
RESTORED FACADE FENESTRATION CONFIDENTIAL PROJECT SELECT PROJECT EXPERIENCE AND PORTFOLIO

BRIEF: WORLD CLASS SPORTS, ENTERTAINMENT AND SHOPPING CENTER EXPANSION LOCATED IN THE HEART OF KUWAIT CITY, KUWAIT, RE-VISIONING THE LEISURE EXPERIENCE.

BRIEF: WORLD CLASS SPORTS, ENTERTAINMENT AND SHOPPING CENTER EXPANSION LOCATED IN THE HEART OF KUWAIT CITY, EXPANDING ON THE SUCCESS OF THE ADJACENT 360 MALL

360

360

ROLE: ASSOCIATE - CRTKL

ROLE: SENIOR ARCHITECTURAL DESIGNER - RTKL

MALL TENNIS EXPANSION
HOSPITALITY, SPORTS, ENTERTAINMENT
RETAIL,
MALL EXPANSION
SHOPPING, ENTERTAINMENT, HOSPITALITY
ILLUSTRATIVE KUWAIT INTERNATIONAL TENNIS COMPLEX | 50% SCHEMATIC DESIGN GROUP | RTKL | PWP LANDSCAPE ARCHITECTURE GROUND LEVEL SITE PLAN OVERALL SITE PLAN 360 MALL EXPANSION SELECT PROJECT EXPERIENCE AND PORTFOLIO
SELECT PROJECT EXPERIENCE AND PORTFOLIO 360 TENNIS EXPANSION STADIUM ENTRY 360 MALL EXPANSION
SPORTS ARENA COMPLEX ENTRY SELECT PROJECT EXPERIENCE AND PORTFOLIO
TENNIS
SELECT PROJECT EXPERIENCE AND PORTFOLIO 360 TENNIS EXPANSION MALL ENTRY & SECTION EXTERIOR HOTEL PERSPECTIVE 360 MALL EXPANSION CLIFF GARDEN AT MALL LOWER LEVEL EXTERIOR PERSPECTIVE OF HOTEL SELECT PROJECT EXPERIENCE AND PORTFOLIO

BRIEF:

BRIEF:

ROLE: ASSOCIATE - CRTKL

ROLE: ASSOCIATE - RTKL

RETAIL, OFFICE, MASTERPLAN
LONE STAR BREWERY DISTRICT
REIMAGINING A TEXAS ICON, THE LONE STAR BREWERY LOCATED IN SAN ANTONIO, HAS BEEN REIMAGINED AS AN RETAIL, ENTERTAINMENT, OFFICE MIXED USE DEVELOPMENT.
LONE STAR BREWERY
SHOPPING, ENTERTAINMENT, HOSPITALITY, OFFICE
REINVENTING A TEXAS ICON, THE LONE STAR BREWERY LOCATED IN SAN ANTONIO, TEXAS, WAS TO BE A PIONEER IN ADAPTIVE REUSE AND MIXED-USE RETAIL SHOPPING.

OVERALL LONE STAR BREWERY MASTERPLAN

OVERALL MASTERPLAN

SELECT

CANNERY ENTRY

EXTERIOR RENDERINGS

PATIO DROP OFF

LONE STAR BREWERY

LONE STAR BREWERY SELECT

PROJECT EXPERIENCE AND PORTFOLIO
DISTRICT
PROJECT EXPERIENCE AND PORTFOLIO
LONE STAR BREWERY CONCEPT SKETCHES INTERIOR MALL - BREWERY BUILDING SELECT PROJECT EXPERIENCE AND PORTFOLIO

(N)

(N) GLASS GUARDRAIL 4’-6” IN

W/ STAINLESS STEEL SUPPORTS

(EXISTING ROOF STRUCTURE AT LEVEL 5 TO REMAIN (N) SLAB AND FLOOR TO BE BUILT OVER (E) ROOF TO ACCOMODATE (N) F&B TERRACE

(N) BOARD FORMED CONCRETE ELEVATOR CORE TO SERVE ALL LEVELS OF OFFICE IN BREWERY BUILDING

(N) CONCRETE FLOOR OVER COMPOSITE DECKING PAINTED OVER STEEL BEAMS PAINTED

(N) LIGHT FIXTURE ELEVATOR LOBBY STILL UNDER DEVELOPMENT

CUSTOM ELEVATOR SURROUND AND DOORS

POLISHED CONCRETE “NATURAL FINISH” TYPICAL LEVELS 2-5

GLASS GUARD RAIL

DISTRESSED STEEL CHANNEL ATTACHED TO THE BOTTOM OF WIDE FLANGE STEEL MEMBER PAINTED

CUSTOM CURTAIN WALL SYSTEM STILL UNDER DEVELOPMENT

STEEL AND GLASS CANOPY WITH SPIDER CLAMP ATTACHMENTS

CUSTOM CHANDELIER LIGHT FIXTURE STILL UNDER DEVELOPMENT

EXISTING FACADE TO REMAIN DEMO INTERIOR PORTION OF EXTERIOR FACADE LEAVING THE EXTERIOR PILASTERS AND AND DECORATION INTACT

INTERIOR AXON SECTION - CREATIVE OFFICE LOBBY LONE STAR BREWERY SELECT PROJECT EXPERIENCE AND PORTFOLIO CBL ASSOCIATES PROPERTIES, INC. 02.17.2017 DD SUPPLEMENTAL SKETCH PACKAGE & ADDITIONAL DESIGN DEVELOPMENT STUDIES 21 EAST GALLERY OFFICE LOBBY BREWERY BUILDING UNDERDEVELOPMENT HAS NOT BEEN APPROVED Ribbed Corrugated Metal Panel “Charcoal” 12” Steel Wide Flange Header Painted White Channel Lettering Custom Steel Lattice w/ Integrated Lighting Distressed Expanded Metal Panels attached to steel structure Railroad Tie Wood Panel Polished Concrete with Stain Finish Artwork by others Corian Solid Surface Glass Panel “Match Lone Star Beer Bottle Glass” Distressed Metal Panel Board Formed Concrete Elevator Core CBL & ASSOCIATES PROPERTIES, INC. 02.17.2017 DD SUPPLEMENTAL SKETCH PACKAGE & ADDITIONAL DESIGN DEVELOPMENT STUDIES 22 EAST GALLERY OFFICE LOBBY SECTION BREWERY BUILDING UNDERDEVELOPMENT BEEN APPROVED
HT.
PUNCHED STOREFRONT WINDOW SYSTEM

BRIEF: RETAIL FOCUSED MIXED USE MASTERPLAN ANCHORED BY A PREMIER SHOPPING CENTER, OFFICE AND RESIDENTIAL, LOCATED IN THE LOCAL COMMUNITY OF SAO GONCALO, BRAZIL.

BRIEF: MIXED-USE MASTERPLAN ANCHORED BY A PREMIER RETAIL CENTER , OFFICE AND CONFERENCE CENTER HOTEL

ROLE: ASSOCIATE - CRTKL

ROLE: SENIOR ARCHITECTURAL DESIGNER - RTKL

RETAIL, OFFICE, MASTERPLAN

SAO GONCALO MASTERPLAN SAO GONCALO MASTERPLAN
SHOPPING, ENTERTAINMENT, HOSPITALITY, OFFICE

BRIEF: RETAIL LIFESTYLE CENTER ANCHORED BY A CONFERENCE CENTER HOTEL, ENGAGING THE LOCAL COMMUNITY WITH A DESTINATION PEDESTRIAN ORIENTED SHOPPING EXPERIENCE.

BRIEF: RETAIL LIFESTYLE CENTER WITH A DESTINATION CONFERENCE CENTER HOTEL FOCUSED ON CREATING A WALKABLE RETAIL ENVIRONMENT ENRICHED BY A CENTRAL PARK PUBLIC GATHERING SPACE.

ROLE: ASSOCIATE - CRTKL

ROLE: SENIOR ARCHITECTURAL DESIGNER - RTKL

SHOPS AT SOLANA

SHOPS AT SOLANA

RETAIL, HOSPITALITY

SHOPPING, ENTERTAINMENT, HOSPITALITY SELECT PROJECT EXPERIENCE AND PORTFOLIO

AERIAL VIEW

AERIAL VIEW

AERIAL PERSPECTIVE PERSPECTIVE APPROACHING THE PASEO

VIEW FROM PASEO

INTERSTATE HWY 2 ACCESS RD 10TH STREET 12TH STREET LINDBERG AVE SELECT PROJECT EXPERIENCE AND PORTFOLIO SHOPS AT SOLANA
APPLE
RETAILER
SHOPS AT SOLANA
SELECT PROJECT EXPERIENCE AND PORTFOLIO
MIXED-USE CAMPUS, TUSTIN CALIFORNIA TUSTIN LEGACY ROLE: DESIGN ARCHITECT BRIEF: 12 STORY OFFICE BUILDING AND 3 STOREY AMENITY BUILDING WHICH INCLUDES A GROUND LEVEL CAFE AND UPPER LEVEL CONFERENCE SPACESSITUATED WITHIN THE 30 ACRE TUSTIN LEGACY MASTERPLANNED DEVELOPMENT.
SELECT PROJECT EXPERIENCE AND PORTFOLIO ENTRY DRIVE TUSTIN LEGACY
SELECT PROJECT EXPERIENCE AND PORTFOLIO
LEGACY STREET VIEW
TUSTIN
SELECT PROJECT EXPERIENCE AND PORTFOLIO
VALET DROP-OFF
TUSTIN LEGACY

BRIEF: REDEFINING A CLASS A OFFICE WORKING ENVIRONMENT FOR THE NEXT GENERATION OF PROFESSIONAL WORKERS. THE CREATIVE WORK ENVIRONMENT CREATES COLLABORATION WITH A VARIETY OF INTERCONNECTED WORK EXPERIENCES.

ROLE: PROJECT ARCHITECT - GENSLER

GENSLER NEWPORT BEACH

INTERIORS TENANT IMPROVEMENT

BRIEF: REDEFINING A CLASS A OFFICE WORKING ENVIRONMENT FOR THE NEXT GENERATION OF PROFESSIONAL WORKERS. THE CREATIVE WORK ENVIRONMENT CREATES COLLABORATION WITH A VARIETY OF INTERCONNECTED WORK EXPERIENCES.

ROLE: PROJECT ARCHITECT - GENSLER

GENSLER NEWPORT BEACH

INTERIORS TENANT IMPROVEMENT

BRIEF: REPOSITION AN EXISTING CLASS C OFFICE COMPLEX TO FIT THE NEEDS OF THE MILLENIAL GENERATION, WITH EXTE RIOR UPGRADES AND A FOCUS ON COLLABORATIVE WORK AREAS.

ROLE: ARCHITECTURAL DESIGNER - GENSLER

RAMPART CREATIVE CAMPUS

CREATIVE OFFICE CAMPUS, ANAHEIM, CA

BRIEF: REPOSITION AN EXISTING CLASS C OFFICE COMPLEX TO FIT THE NEEDS OF THE MILLENIAL GENERATION, WITH EXTE RIOR UPGRADES AND A FOCUS ON COLLABORATIVE WORK AREAS.

ROLE: ARCHITECTURAL DESIGNER - GENSLER

RAMPART CREATIVE CAMPUS

CREATIVE OFFICE CAMPUS, ANAHEIM, CA

BRIEF: REPOSITION AN EXISTING CLASS C OFFICE COMPLEX TO FIT THE NEEDS OF THE MILLENIAL GENERATION, WITH EXTERIOR UPGRADES AND A FOCUS ON COLLABORATIVE WORK AREAS.

ROLE: ARCHITECTURAL DESIGNER - GENSLER

RAMPART CREATIVE CAMPUS

CREATIVE OFFICE CAMPUS, ANAHEIM, CA

BRIEF: Mixed Use Outdoor Lifestyle Campus which incorporates shopping, entertainment and wellness, connecting adjacent residential and commercial districts.

ROLE: Design Architect

CAIRO, EGYPT
Kattameya Entertainment District

BRIEF: Mixed Use Outdoor Lifestyle Campus which incorporates shopping, entertainment and wellness, connecting adjacent residential and commercial districts.

ROLE: Design Architect

CAIRO, EGYPT
Kattameya Entertainment District

BRIEF: Mixed Use Outdoor Lifestyle Campus which incorporates shopping, entertainment and wellness, connecting adjacent residential and commercial districts.

ROLE: Design Architect

CAIRO, EGYPT
Kattameya Entertainment District

BRIEF: Conceptual Concept Sketches shown to the Client through the Design Process which helping to communicate design intent and direction.

ROLE: Design Architect

Mixed-Use Development - Design District, Dallas, TX
Process Sketches

SouthwestCornerConceptImagery

ROLE: ASSOCIATE - CRTKL

THROUGH FROM THE OUTSIDE STREET
Mixed Use Development - Seoul, Korea
BRIEF: Conceptual Concept Sketches shown to the Client through the Design Process which helping to communicate design intent and direction.
Process Sketches

View at SouthwestCorner

BRIEF: Conceptual Concept Sketches shown to the Client through the Design Process which helping to communicate design intent and direction. Process

ROLE: ASSOCIATE - CRTKL

Building Opportunity gives theopportunity to reduce theamount ofFloor Levels alongthe North and South Retail Blocks.
Mixed Use Development - Seoul, Korea
Sketches

BRIEF: Conceptual Concept Sketches shown to the Client through the Design Process which helping to communicate design intent and direction.

ROLE: ASSOCIATE - CRTKL

Process Sketches Mixed Use Development - Seoul, Korea

BRIEF: RESORT HOTEL DEVELOPMENT WITH A KEY COUNT OVER 200 AND 30 ON SITE RESIDENTIAL VILLAS NESTLED WITHIN THE NATURAL RESERVE OF ST. GEORGE, GRENADA.

ROLE: INTERMEDIATE ARCHITECTURAL DESIGNER -HKS

FOUR SEASONS GRENADA

RESORT HOSPITALITY

BRIEF: RESORT HOTEL DEVELOPMENT WITH A KEY COUNT OVER 200 AND 30 ON SITE RESIDENTIAL VILLAS NESTLED WITHIN THE NATURAL RESERVE OF ST. GEORGE, GRENADA.

ROLE: INTERMEDIATE ARCHITECTURAL DESIGNER -HKS

FOUR SEASONS GRENADA

RESORT HOSPITALITY

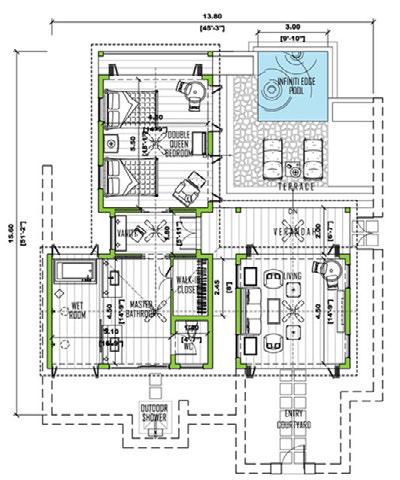
BOUTIQUE HOTEL

BRIEF: BOUTIQUE HOTEL DEVELOPMENT LOCATED NEAR THE HISTORICAL CITY OF PUERTO VALLARTA, THIS WATERFRONT VILLAGE, OFFERS THE HERITAGE OF THE LOCAL CULTURE WITH THE LUXURY AMENTIES OF A 5 STAR HOTEL GUEST EXPERIENCE.

ROLE: INTERMEDIATE ARCHITECTURAL DESIGNER -HKS

LAS BANDERAS

BEACH CLUB VILLAS
RESORT HOSPITALITY, PUERTO VALLARTA, MEXICO

Turn static files into dynamic content formats.

Create a flipbook
Issuu converts static files into: digital portfolios, online yearbooks, online catalogs, digital photo albums and more. Sign up and create your flipbook.