

Portfolio
BY Joshua A P CRoad
Seating Arrangement
Description:
My earliest noted introductions to a project surround architecture during my time at Auckland Grammmer Boys. We were tasked with creating a seating arrangement that addressed the stakeholder input decided by us students. Here I first show case skills in Photoshop and sketchup, alone with progression work.
Here I create a multi-story seating area with a hollow center so that a tree may be planted and flourish. My main goal was to create a creative yet functional seat for students to do their day-to-day while still creating an illusion of private spaces so they don't feel so open and “on display” for the students in the areas.






Description:
Grafton Pavilion
My last work at Auckland Grammar Boys, surrounding their architecture field. I had finished a majority of it but never submitted in the end.
Here we were tasked with replacing the current Graften Pavilion that commemorates the bodies and graves lost in the road construction in that area, mainly the Graften Bridge. There were main complications and wants surrounding the location, but mainly we focused on drawing people back into the area and creating safety and awareness using the design.
Here I create an indoor garden that is accessible to all, As you go to and from the grave, you are drawn to walk the length of the garden inside, and along the way, on all the walls are the names of all the bodies and graves lost to time, carved into the concrete.
My















Description:
Domain Pavilion
This was my first major project at AUT surrounding architecture. We were tasked with creating a semi-temporary structure at the Auckland Domain that serves a purpose of our choosing, focusing on one central idea.
For this I had chosen “Rest,” creating a space that harbors rest using different factors of the environment that I hoped allowed the stakeholders to express rest more thoroughly in their own lives.
The structures include an indoor greenhouse, a cafe, an underground foam room, an underground hydro garden, and a center pond. All housing different forms of seating and beds.














Urban Hāpori
Description:
This group project had the students participate in the uptown projects, a development plan focused on the upper areas of Auckland CBD. We were given the task of updating Tatai Hono Marae and its surrounding environment, using the constraints given by the stakeholders.
As a group we chose to create a multipurpose apartment with underground parking (to make up for what's taken away), front gardens (expressing a culturally significant story), as well as a small amount of shops.
I was tasked with creating the underground parking, with its many constraints, to list a few: can't go deeper than 9-10 meters, has to be at least 50-70 car parks, needs to be accessible by trucks for garbage pickup and removal…
All this work was done by me as part of the group collaboration. A lot of this work wasn't original to my task, but the groups had different priorities.










Description:
Dark Haven
This was my second year of group collaboration in creative technologies. We were tasked with creating a playable scenario within Unity that can be interacted with by the people going through the scenario using a computer.
As a group we decided to create a scenario that people can explore and learn from, following a horror trope.
Here is the scenario: “Two young boys; Ben Dover and Mike Hawk found themselves in the deep woods behind the huge forest land Ben’s Parents’ land property. They stumble upon an old victorian school. As they explored further, they discovered that it was actually an old orphanage founded by H.M Patricia in 18—.
A lot of history and murder happened within the walls of this orphanage kindergarden. The screams of the poor innocent children still lingers, praying for the injustice they experienced at the hands of the cruel, cold-hearted Head mistress as her image plastered on the building wall.
Will they be able to handle the truth of this orphanage from Hell? Will they be able to provide the peace the souls that remained trapped in the home longed for?”
I create a majority of the project by myself, excluding some materials, noises, props, and parts of the scenarios. But everything shown (excluding the visual imagery captured after it was put together by me) was made by myself, including the Unity work: triggers, inputs…

































Rataa Vine
Description:
For this project we were focused on the development of a small residential district and green patch in South Auckland that was harshly impacted by flooding. We were tasked with the area's development and the creation of safety precautions to fight against flooding and create a safer environment.
For this project, I implemented a number of different strategies to tackle the district. Firstly, surrounding the houses, I introduced new family houses that were set up for flood safety. In case of flooding, the houses would rise using the foundations as stabilizers. I reshaped the land and created better pathways for water to flow to deviate stress put on to the residential area. I also created lookout stations for both views and in case of flooding. Lastly, I created a gathering space for the community to come together, a big open area and 2 classrooms for local hobbies.
















Description:
Fire Haven
This occurred during my third year; as a group, we were tasked with creating a teachable interactive visual reality app that can be used on a smart phone. I created all 10 separate trigger sequences, as well as everything else involving unity.
The basic idea of our virtual reality experience is a way of teaching users to safely evacuate an apartment building in the event of a fire. They will need to make responsible decisions as they flee from the building in order to get out and into the safe below. The sequence repeats until the correct decisions are made and no danger sequences are activated.












Tūtūrau kei hea Whakapapa Tupu
Hunting Mountain, where family grows
Description:
Here we were tasked with designing some sort of building in a mountain rain in Karitane that can benefit the local marae and its community. There were many different discussions of what should and shouldn't be in this mountain rain close to a riverway, but mainly I focused on bringing back the culture into the maraes ancestral mountains that they were pushed out of so many years ago, and are now getting the chance at bridging that connection once more.
For this project I decided to create two separate structures that co-exist with one another. The first “Tinana Poaka” focuses on food and togetherness. The second “Tinana Tia” focuses on rest and connections.


















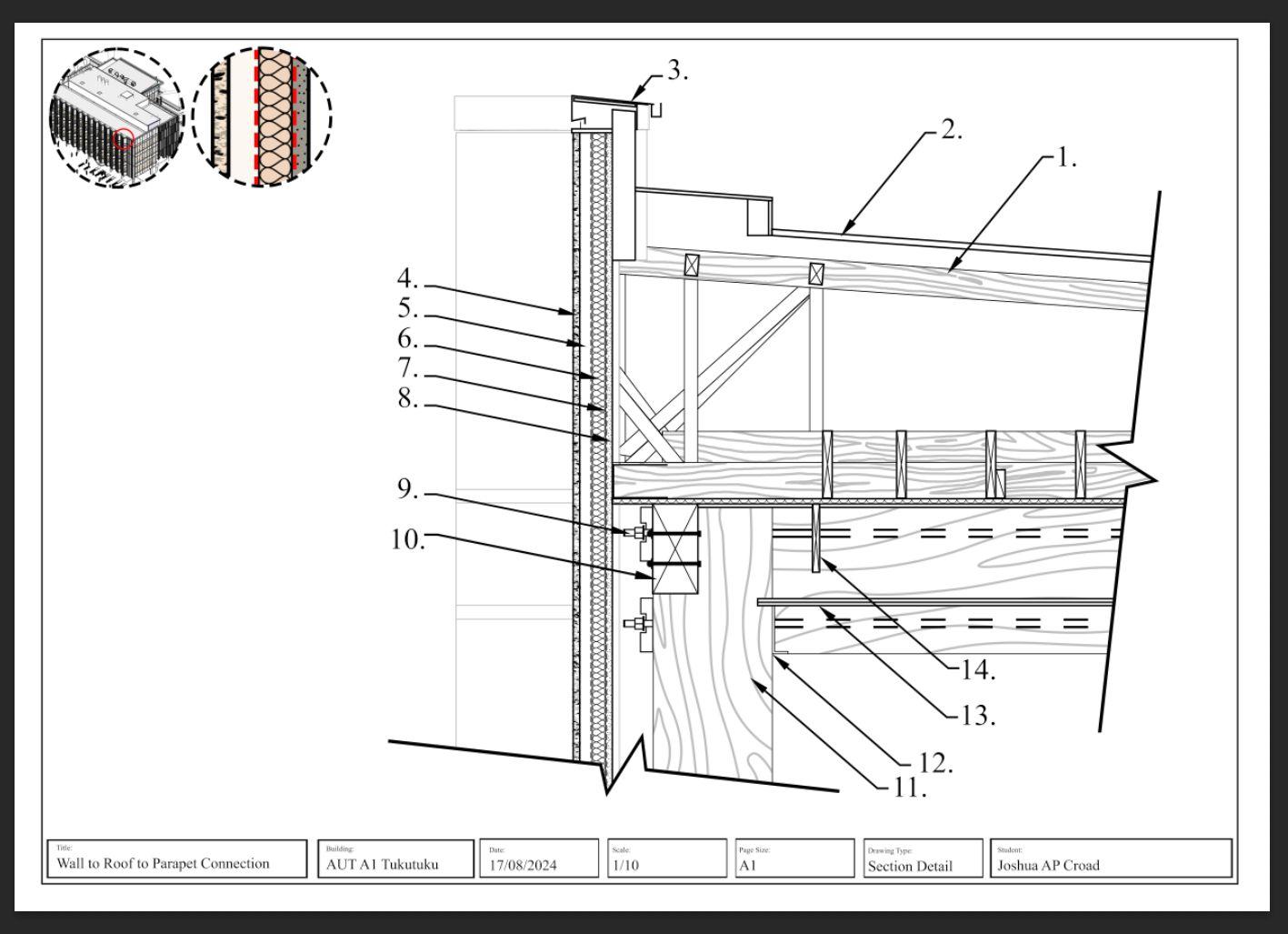
Maungarei Pavilion
Description:
This occurred during my last years of masters, my last project of the year at AUT.
Here we are tasked with creating a building to fit a chosen plot of land in panmure and create to the specifications of that plot of land as a part of a panmure development project, Eke Pankue.
For this project, I decided to create a building that would deepen panmures community connections and there interest in the area by introducing a multipurpose arts-focused design that included a theatrical theater, changing rooms, dance studios, and music studios, and rentable class rooms.






































Description:
Random
This holds all the work not part of a larger project but can still showcase some of my more refined works outside of a finished project. Some of this is practice, some of this is part of the buildup to another project, and other things, but this is all my personal work.































