Portfolio 2024 - Joseph Bondi

Page 1


PORTFOLIO

JOSEPH BONDI SELECTED WORKS

Resume

Architectural Associate, Designer

Cell: 214.709.1921

Work Experience

Education

Skills

Email: jcbon1600@gmail.com

Dallas-Fort Worth

SBL Architecture, Inc. | Architectural Associate, Project Coordinator

December 2021 - July 2024

• Worked on 10+ projects in the Healthcare, Commercial, Restaurant, and Higher Education Sectors

• Contributed to all phases of the project phases from pre-design through construction administration, primarily focused on the construction documents phase

• Responsible for correspondence with contractors and review of submittals

• Coordinated in-office CEU presentations for the architectural team

SBL Architecture, Inc. | Architectural Intern

May 2021 - December 2021

• Contributed to projects in the Design Development and Construction Document phases

• Built custom project components in Revit

• Reviewed redlines and implemented design changes based on user and architectural team feedback

• Presented design options to the Project Architect

Master of Architecture | Texas Tech University

January 2020 - May 2022

Bachelor of Science in Architecture | Texas Tech University

August 2016 - December 2019

• Revit

• Bluebeam

• Rhino 6.0

• Adobe Photoshop

• Adobe Illustrator

• Adobe Premiere

• Adobe InDesign

• AutoCad

• Coordination

• Project Planning

• Model Making

• Metal Fabrication

Professional

Academic

JPS Medical Home Southwest: Pages 1-4
Canyon House: Pages 15-18
Fossil Rim Veterinary Clinic: Pages 5-8
Recto Verso: Pages 13-14
Parallel Laminae: Pages 25-28
El Tiempo Cantina: Pages 9-10
Generative Design: Pages 19-24

Professional Works

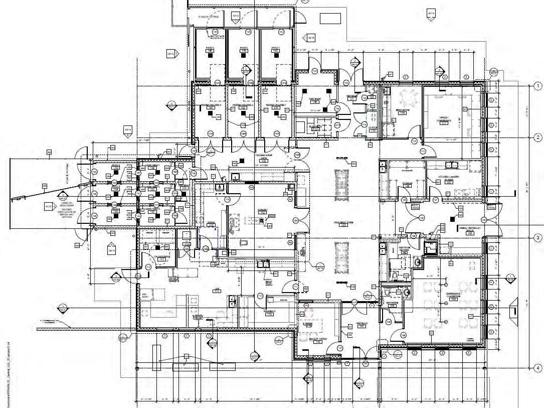
JPS Medical Home

Fort Worth, TX

JPS Medical Home Southwest Tarrant is a 39,000sf, 37 million dollar facility that will provide a Behavioral Health Clinic, Specialty Care, Family Medicine, Imaging, and a Pharmacy to better serve Southwest Tarrant County. The identifying feature of the building is a large radius curve of curtain wall that acts as the entrance and lobby.

My involvement with this project began in the Schematic Design phase and was mainly focused on the development of the floor plan. In the Design Development and Construction Document phases I communicated with suppliers and manufacturers to create detail components of specialty items such as overhead security doors and a retractable wall. I generated and developed interior elevations and enlarged floor plans, working closely with the Project Architect to review design options and potential issues. During the Construction Administration phase I responded to several RFI’s and modified exterior wall details to make changes to the waterproofing, per the owner and consultant’s request.

El Tiempo Cantina

Arlington, TX

El Tiempo Cantina is a Tex-Mex restaurant chain based in Houston, TX that wanted to expand its reach to the DallasFort Worth market. An empty section of the concourse at Choctaw Stadium in Arlington was selected as the site.

Being involved at the outset of this project, I assisted in dimensioning and documenting the existing site. Once the existing conditions were modeled in Revit, the interior layout was designed. This project needed to accommodate future expansion, and was designed with a future rooftop deck and bar in mind. I was involved with all project phases and performed several Construction Evaluation walks.

Fossil Rim Veterinary Clinic

Glen Rose, TX

Fossil Rim is an 1800 acre conservation center in Glen Rose, Texas that houses over 1,000 animals, of which several are endagered. Faced with an aging and inadequate existing veterinary clinic, they tasked us to create a new clinic that would better suit their needs and meet the Association of Zoos and Aquariums’ updated standards. The new clinic will include a surgery room, treatment room, laboratory, holding pens, and a classroom for educating the next generation of Veterinarians.

I was heavily involved during the enitrety of the project phases and was present during intial meetings with the client. Beginning with code research, I modified our schematic drawings to meet the requirements and develop a final site and floor plan. Collaboration with the structural consultant was established early in the DD phase and dictated parts of the interior layout. My role in this project was focused on documentation of the floor plan and interior/exterior elevations, and I had the chance to present and implement design ideas to the client and architectural team.

Academic Works

Recto Verso

Montréal Studio - 2019

The site is located in Old Montreal, which is dense with historical buildings and public spaces. The facade of the building is a “mask” that disguises the intervention within the building with the surrounding historic urban fabric.

This building respects the historical landscape it sits upon with a form that extends datum lines from the neighboring buildings. These tether the facade to the surrounding urban landscape.

Another important function is the extension of public space. The entrance is recessed beneath the extended outline of the facade. This volume carved out from the facade creates a sheltered threshold.

Basement Floor Ground Floor First Floor

Canyon House

Integrated Building - 2020

This project was centered around becoming proficient with Revit. Each section of the assignment centered on learning and applying a new skill.

Ransom Canyon in Lubbock, Texas served as the site, which provided several topographical challenges. My design embraced the complicated canyon landscape by extending a cantilevered porch over the ravine.

The interior features a double height ceiling and a wraparound staircase that leads to an interior loft and an exterior balcony. The roof overhang shelters a large porch on the ground floor. Punched windows and a glass curtain wall frame views of the canyon.

A glass curtain wall punctures through the roof of the first floor and reaches the roof of the second level.

Generative Design

Urban Design - 2021

This project used data-driven and simulation-based tools for generative urban design, in the context of compact, high-density cities. Generative Design is a framework that involves the integration of a rule-based geometric system, a series of measurable goals, and a system for automatically generating, evaluating, and evolving a very large number of design options.

The generations produced examined the nature and extent of relationships between the Urban Form (street grid, floor area ratios, and building typologies), Environmental Parameters (building energy use intensity, daylight availability, outdoor thermal comfort, and solar energy potential), and Social Parameters (accessibility, walkability, green spaces, and visual interest). The most efficient iteration with the most balanced tradeoffs was chosen and subsequently modified to increase the quality of the urban and architectural spaces

Based on the results of the generative design, a layout for the city blocks was created using a “Super Block” configuration. Buildings sit on connected podiums that are designed to provide ground level circulation below and between the building towers.

The final design for the site was developed based on the further criteria of local transportation, walkability, context and connectivity, preservation of the river, view from buildings towards the river, green space, and the promotion of human interaction. All existing transit connects to the redeveloped site and is sometimes re-purposed to become walking paths.

Parallel Laminae

ICASALS Building - 2022

The focus of this project was to create a new building for the International Center for Arid and SemiArid Land Studies. This building serves as is a symbolic representation of the landscape being studied within through its layered form that mimics the geological features of the area.

A layered form will stratify the programs while also serving as an organizational force. Just like soil, the bottom layer will hold the research and thesis students who have been there the longest. There are several axes that assist in regulating the space and represent shifts in geological features. The cladding of this form will consist of layered rammed earth panels that change striations as they travels upwards further reminding the users of the natural earth around them. Within the “tectonic shifts” of the building form there is glazing that mimics the crystalline interior of a geode. Inside, the building will use earthen materials and mass to create an experience tied to the earth. It interacts with the site by gradually elevating from the ground, appearing as core samples of the earth beneath being extruded.

“Agreat building must begin with the unmeasurable, must go through measurable means when it is being designed and in the end must be unmeasurable.” - Louis Kahn

Turn static files into dynamic content formats.

Create a flipbook
Issuu converts static files into: digital portfolios, online yearbooks, online catalogs, digital photo albums and more. Sign up and create your flipbook.