JORGEA. NOVOA
Proyectos Destacados
CONTÁCTAME




![]()
CONTÁCTAME





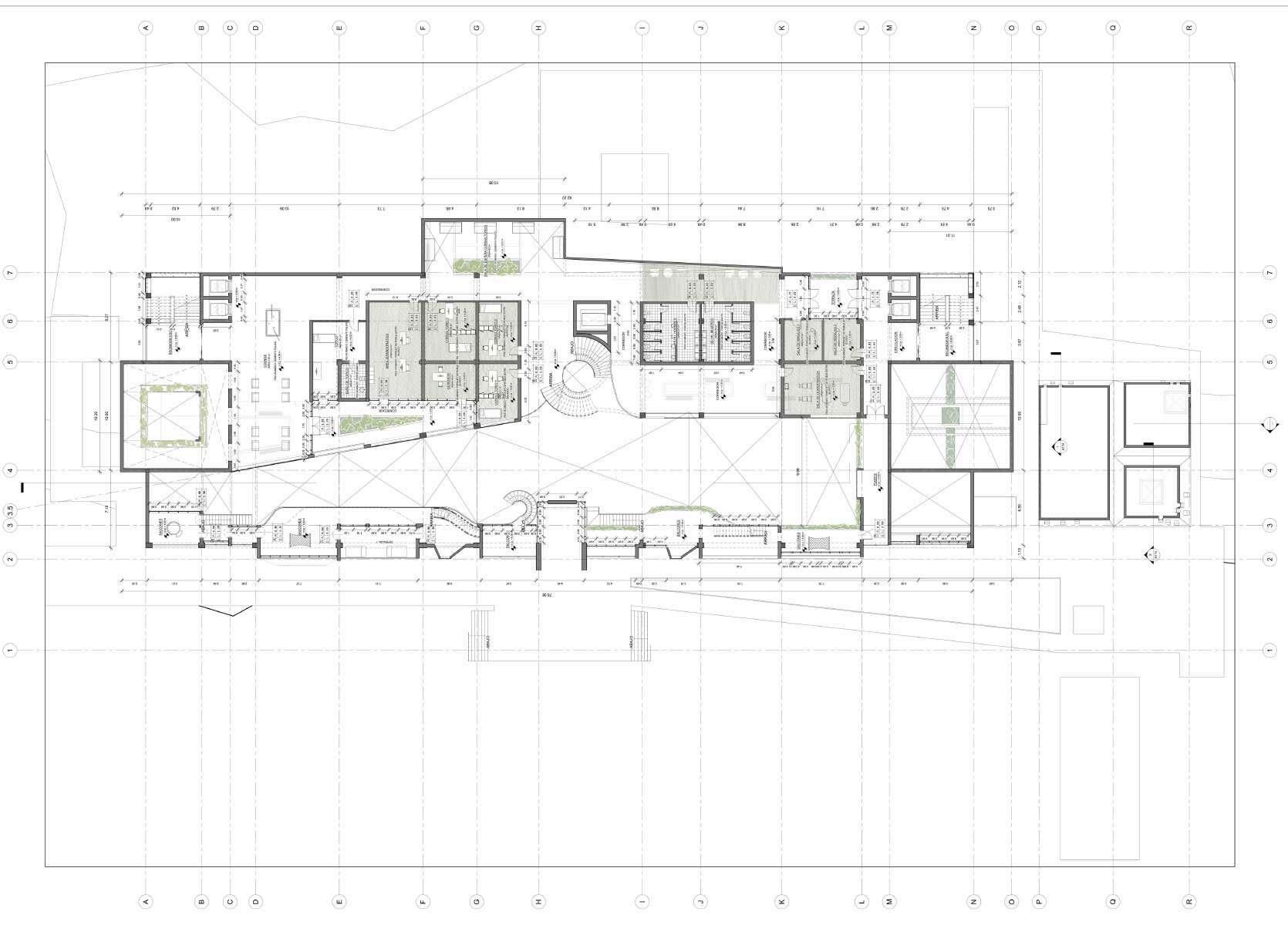
Intervenido en el centro histórico de Cajamarca, este proyecto consistió en la rehabilitación integral de una vivienda patrimonial, centrando la intervención en el cambio completo de la cubierta, en coordinación con la Dirección Desconcentrada de Cultura y la Municipalidad Provincial, respetando los criterios técnicos de conservación. La propuesta interior contempló la remodelación funcional y espacial de los ambientes, buscando modernizar la vivienda sin perder su carácter original, articulando materiales tradicionales con soluciones contemporáneas que respondieran a las necesidades actuales de habitabilidad.

La intervención en esta casona ubicada en el barrio San Pedro de Cajamarca tuvo un carácter profundamente personal, al tratarse de la antigua vivienda de mis abuelos. Inicialmente concebido como un proyecto de tres niveles para un hotel boutique, el diseño evolucionó hacia un nuevo programa que combina una clínica ocupacional y una escuela de manejo, respondiendo a nuevas necesidades funcionales sin perder el respeto por la memoria del lugar. La propuesta mantuvo elementos esenciales de la tipología original, integrando criterios contemporáneos de habitabilidad, accesibilidad y eficiencia espacial, en un proceso que articuló la herencia familiar con una visión renovada de servicio al entorno urbano.


La intervención en la cubierta partió de la detección de un avanzado estado de putrefacción en la estructura original de madera, lo que hizo necesaria su renovación completa. Se optó por respetar el sistema constructivo tradicional, reconstruyendo la techumbre con madera y teja serrana de arcilla, integrando de manera estratégica tecnologías contemporáneas como el manto asfáltico para mejorar el aislamiento y la durabilidad del conjunto. Esta combinación permitió preservar la autenticidad material del inmueble, mientras se aseguraba un mejor desempeño técnico frente a las condiciones climáticas y de uso actuales.








El proyecto de fin de ciclo, desarrollado en el taller de Baracco, consistió en el diseño de un hotel de convenciones cinco estrellas orientado a albergar encuentros de alto nivel diplomático. La propuesta exploró un enfoque postmodernista desde una mirada crítica, recuperando elementos del lenguaje arquitectónico prehispánico para reinterpretarlos en clave contemporánea. El diseño articuló espacios ceremoniales, circulaciones jerarquizadas y una materialidad austera pero monumental, buscando construir un lugar de representación simbólica que dialogara con la memoria cultural del territorio sin renunciar a las exigencias funcionales y técnicas de un programa de alta complejidad.











En el octavo ciclo, en el taller de Canales, se desarrolló un proyecto para un centro de talasoterapia en la Herradura, donde propuse una estrategia de reciclaje arquitectónico a partir de la estructura existente del antiguo edificio de Las Gaviotas, parcialmente abandonado. La intervención buscó rescatar la memoria arquitectónica del lugar, reinterpretándola y adaptándola a un nuevo programa de bienestar y salud, en diálogo con el paisaje marino. A través de esquemas y bocetos conceptuales, el proyecto planteó la revitalización de un sector de la costa limeña que ha sufrido un progresivo deterioro, apostando por una arquitectura que recupere la identidad del sitio mediante un lenguaje sensible y contemporáneo.


"Jasmine has a unique style and is a true professional."
El reciclaje arquitectónico parte de la premisa de dar nueva vida a estructuras existentes, reconociendo su valor material, histórico y urbano como un recurso activo en el diseño contemporáneo. Más que preservar de manera literal, implica reinterpretar y adaptar, integrando nuevas funciones y tecnologías sin borrar la memoria del edificio original. Esta práctica permite optimizar recursos, reducir el impacto ambiental y revitalizar entornos urbanos degradados, proponiendo una arquitectura que dialoga con el tiempo, respetando lo preexistente mientras proyecta hacia el futuro.









