JORDAN HILL

SELECTED WORKS 2026
JORDAN HILL

3600 Wheeler St Apt 2365, Dallas, TX 75209
TEL +1 405 990 8239 EMAIL Jordan.hill11@okstate.edu
CURRICULUM VITAE
EXPERIENCE
Feb 2024 - Present Project Specialist II | Corgan
Dallas, TX
Collaboratively worked within a studio environment to deliver the full life cycle of a project from early concept to project completion. Explored and illustrated design concepts to solve for creative solutions for multiple clients. An integral team member in the production of construction drawings. Executed construction administration responsibilities both in the field and in the office. Participated in the process of exploring and completing usable construction document detailing solutions. Coordinated with a variety of consultants.
May 2023 - Aug 2023 Intern Architect | Dewberry Architects
Tulsa, OK
Collaborated with professionals during Schematic Design and presented drawings and renderings to clients as well as designing graphics for marketing strategies Drafted construction documents using BIM software and authored construction specifications
Aug 2022 - Present Teaching Assistant | Assoc. Professor Paolo Sanza
History & Theory of Modern Italian Architecture
Participated in the organization of class materials and evaluation of student work Provided support to the teacher to ensure a safe and stimulating educational enviroment.
May 2021 - Dec 2022 Maintenance Tech | CStar Management
Stillwater, OK
Executed general building maintenance and repair work/ maintained and repaired mechanical and HVAC system components. Installed lighting, paneling, flooring /replaced malfunctioning plumbing parts
EDUCATION
Aug 2018 - Dec 2023 Oklahoma State University | School of Architecture
Bachelor of Architecture (Grad. Dec. 2023)
Minor in Entrepreneurship and Entrepreneurship in Architecture
May 2022 - Aug 2022 Study Abroad: Italy and Spain
Aug 2014 - May 2018
SKILLS
Edmond North High School






NUOVO STADIO MILANO
IN COLLABORATION WITH:
Jordan Hill
TERM:
2022 | Fall Architectural Design Studio 6
Ac Milan and Inter Milan have shared a stadium for the last 70 years and that’s not going to change anytime time soon. With the new stadium being built and planning on the two teams playing side by side again, I recognized this as not a challenge but a golden opportunity. The game of futbol is one of the most beautiful in the world if not the most beautiful and I want the people of milan to focus on that
SUPERVISION:
Asst. Prof. Blake Mitchell, AIA | Assoc. Prof. Paolo, Sanza, RA | Assoc. Prof. Awilda Rodriguez, RA
more than the fact they share a stadium with their rival. Using a modern soccer ball, I noticed how it was stitched together and I thought what better way to show the love of the sport. The stadium has a circular ramp that acts as a circulation method and relates to the stitching of a ball as well as wrapping the stadium in a light weight etfe skin that provides plenty of light inside and to the field.

Ac Milan and Inter Milan have shared a stadium for the last 70 years and that’s not going to change anytime time soon. With the new stadium being built and planning on the two teams playing side by side again, I recognized this as not
a challenge but a golden opportunity. The game of futbol is one of the most beautiful in the world if not the most beautiful and I want the people of milan to focus on that more than the fact they share a stadium with their rival.
Video Board
Skin System
Space Frame
Structure
Ramp





TIMBER IN THE CITY: URBAN HABITATS
IN COLLABORATION WITH: Jordan Hill
TERM:
2022 | Fall Architectural Design Studio 5
With the fourth iteration of the Timber in the city: Urban Habitats Competition underway. Our biggest challenge was embracing new structural and ecological possibilities of wood construction, thewill mid-rise, mixed-use complex includes short stay housing, a large community wellness facility, and an urban marketplace, all interlaced with a new urban transit center. We were very concerned with the integration of the building and chose designs to hep push that.
SUPERVISION:
Assoc. Prof. Jene Homer | Assoc. Prof. Jerry Stivers, RA | Assoc. Prof. Paolo, Sanza, RA
Midtown Atlanta has a high population of professional workers. Atlanta wants to change this for the future by having a diverse and inclusive community to share, spread, and create ideas. To do that, Atlanta needs a framework from which it can build towards a new future.
The timber high rise will embody this framework, giving Midtown Atlanta a symbol from which it can continue to advance inclusive ideas.

Housing 6th Floor 1” = 16’-0”
Housing 6th Floor 1” = 16’-0”








The lateral loads are resisted by various connections, rigid or semi-rigid, supplemented where necessary by bracing and truss elements. This type is used in the construction of buildings up to 60 storeys. Our columns are made with Glulam and ran through a layhte to create the cylindrical form as shown. The beams run across every storey and line the floors of the structure. This is both visually and structurally important. The columns go as far as entering the outdoor air market space to line the precession that runs througth the building.
ROOFTOP: 169’
HOUSING 10TH FLOOR: 157’
HOUSING 9TH FLOOR: 145’
HOUSING 8TH FLOOR: 133’
HOUSING 7TH FLOOR: 121’
HOUSING 6TH FLOOR: 109’
HOUSING 5TH FLOOR: 97’
HOUSING 4TH FLOOR: 85’
HOUSING 3RD FLOOR: 73’
HOUSING 2ND FLOOR: 61”
HOUSING 1ST FLOOR: 49’
HOUSING LOBBY/OFFICES: 37’ 2ND FLOOR: 25’
GROUND FLOOR: 0’
SUB FLOOR: - 15’



FASHIONING A PLYWOOD CHAIR
IN COLLABORATION WITH: Molly Hoback
TERM:
2022 | Fall Architectural Design Studio 5
The Tiney Chair is as it advertises - phonetically and linguistically. Small in stature, the Tiney Chair stands elegant, even in tight spaces. Pronged like a fork, the Tiney Chair is beautifully repetitious. The Tiney Chair was designed to be lightweight, economical, stylish, and customizable. The small number of discrete
SUPERVISION:
Assoc. Prof. Jene Homer | Assoc. Prof. Jerry Stivers, RA | Assoc. Prof. Paolo, Sanza, RA
elements combined with the straightforward assembly of nested dowels simplifies its construction. A happy mix of gracefulness and playfulness was achieved in the design of the Tiney Chair. Clean lines of flowing curves and bright hues of modern colors merge successfully, granting the Tiney Chair its unique flair.


Overall Dimensions
Exploded Assembly Detail
DETAIL A SCALE 1/2
DETAIL B
SCALE 1/2
Assembly Instructions
CNC - Ready Drawings

Packaging Logistics
Axonometric
The Grocery Manufacturers Association Pallet recommends a standard pallet footprint of 48″x40″x5.75”. Pallets of these dimensions are now commonly referred to as GMA pallets and are widely used in
North America and beyond.10 pallets will fit laterally, 20 pallets in total. 2 stacks of 14 chairs will fit per pallet. Which adds up to 28 * 20 = 560 chairs. $5000 shipping / 560 = $9 to ship each chair.
2Chairs
14
Chairs






MULTIMODAL TRANSPORTATION HUB
IN COLLABORATION WITH:
Jordan Hill
TERM:
2023 | Fall Architectural Design Studio 7
Located in the historic district of Edmond Oklahoma between the old railroad tracks and South Broadway is the new Edmond Multi-Modal Transit Hub. The new hub intends to serve as a gateway for citizens and visitors to explore the area, the nearby farmer’s market, and the plaza in front of the transportation building. This facility shall serve as a connection between Edmond, Oklahoma City, and Norman by utilizing commuter rail and the local bus system. Oriented toward Broadway, the eastern facade shares a
SUPERVISION:
Asst. Prof. Jay Yowell, AIA | Assoc. Prof. Jerry Stivers, RA | Asst. Prof. Keith Peiffer , AIA
central axis with the termination point of third street. By using this condition as the origin for the terminal building, the surrounding site revolves around it to create an invitation for citizens to experience the site. The identify of Edmond is acknowledged and preserved through the use of familiar materials (such as brick and stone), rectilinear forms, and progressive development. Planned as an extension of Edmonds Historic Downtown, the development is imagined as a hub for the community that unites both old and new for the citizens of Edmond.









































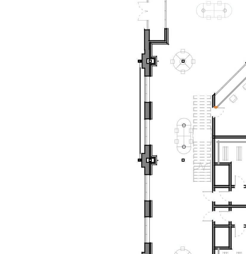
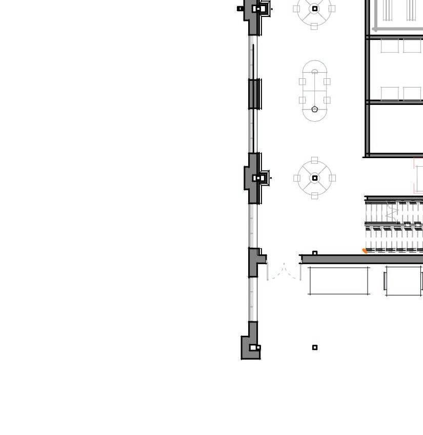
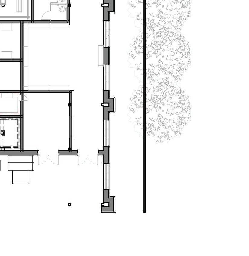
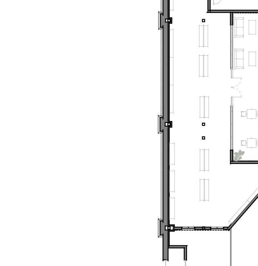
2nd Floor Plan 1” = 30’-0”
























The two-story terminal building boasts a historic brick façade with a bold modern interior that focuses on the manipulation of light. By using dramatic lightwells, the experience of the public space varies throughout the day which introduces new and unique qualities with every visit. The general mass is divided using the public atrium to define public and private departments; this division creates the interior form and establishes a central circulatory path towards the train platform.




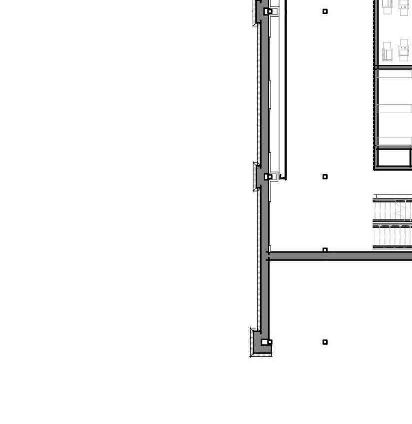
West Facade Wall Section
Bay Model

Detailed Wall Section Callouts

The new multimodal hub contains three light wells to allow daylight into the circulation spaces that surround the core of the building. Two of these light wells are in the corridors that span the East and West faces of the building, while the third light well is in the middle of the building. All three of the light wells pour into the open volume of the roof trusses. This allows for daylight to be present in the main volume of the building during the day hours.

To reduce heat gain from direct sunlight through the large window in the East and West light wells, large fabric sheets have been angled along the upper half of the inner façade. These sheets allow filtered light into the space while providing a unique architectural appearance without the negative effects of excessive UV light.




URBAN SPRAWL URBAN SPRAWL
where does your food come from?
URBAN SPRAWLBOARD GAME DESIGN
IN COLLABORATION WITH:
Jordan Hill, Nick Lehrer, Stephen Millet, Carson Voelker
TERM:
2023 | Fall Architectural Design Studio 9
Developers from local competing cities have found out about new proftiable land on the outskirts of their towns granting you and your fellow developers both new possibilites and an insatiable hunger for control of the land. Now you must relocate the farmers that currently hold the land in this urban sprawl parody of Monopoly. Each player is the developer of a competing city for agricultrual land. The landscape of Urban Sprawl is a map of the countryside formed by grided regions of different resources. The countryside is
SUPERVISION:
Asst. Prof. Blake Mitchell | Prof. Nathan Richardson, RA
home to unsuspecting farmers which you’ll have to challenge in order to expand your city. These farmers are represented by tokens and range in strength from one to four. This is how you will challenge a given farmer. After you’ve set up the board with farmer tokens face down in every region of the map except for the indicated starting regions, making sure that the number on the token is hidden and unknown. Place the following near the map within easy reach of all players as shown: the combat dice, the resource dice, the tokens, and the resource cards.




BRIDGING BOSTON UNIVERSITY - URBAN DESIGN
IN COLLABORATION WITH:
Jordan Hill, Nick Lehrer, Stephen Millet, Carson Voelker
TERM:
2023 | Fall Architectural Design Studio 9
Bridging Boston University - Generating a Social Fabric Prompted by “A Civic Vision for Turnpike Air Rights in Boston,” our group began to consider the air rights parcels 4, 5, & 6, situated within Boston University’s extensive campus. Alongside a week long site visit, each member actively considered the present site’s history, issues, and possible solutions, eventually settling on a campus housing neighborhood alongside a research tower and commercial base layer.
SUPERVISION:
Asst. Prof. Blake Mitchell | Prof. Nathan Richardson, RA
From this we envision a reignited student network that is activated and connected like never before. With the introduction of research facilities, Boston University can continue its trajectory a premier research institutions. Lastly, by introducing commercial facilities and green space within, campus life can be bridged, ending the damage inflicted by I-90 on BU’s student community.w





Housing Crisis
Current day south campus is composed of historic brownstones previously serving as multifamily residences.
Site Movement
A series of primary pathways are generated through existing site lines and connections to paths present on BU’s campus
Student Lawns
A rigid array of quads and lawns are created to provide BU students with much needed green space.


Transit
BU students are serviced by a multitude of transportation services, connecting them to the greater Boston area.
Non-Restrictive / Restrictive
Due to our sites previous relationship with adjacent roads, existing paths are now regulation, promoting student safety.
Student Lawns
Beyond public lawns, a series of outdoor cores are created through subtractions, providing exterior moments of solitude
1. Align to Context
The adjacent street organization modifies the overall generated form, allowing for light and continued street modules.
2. Split Program and Void for Light
A commercial pedestal lines the base layer, with residential units stacking on top. Cores are subtracted to allow for light
4. Add, Subtract & Skin
Rigid
forms mold into an array of parts, interconnecting on top of a social platform.








FREEHAND NOTES/ SKETCHES
IN COLLABORATION WITH: Jordan Hill
TERM:
2022 | Fall Architectural Design Studio 7
Architectural sketching is a fundamental and versatile tool in the field of architecture. It involves the creation of freehand drawings and sketches to explore, communicate, and visualize design ideas. There are several significant advantages to incorporating architectural sketching into the design process: Sketching allows architects to quickly and intuitively generate a
SUPERVISION:
Assoc. Prof. Paolo, Sanza, RA | Assoc. Prof. Awilda Rodriguez, RA
wide range of design ideas. It encourages free thinking and exploration, enabling architects to push the boundaries of their creativity. Rapid Communication: Hand-drawn sketches offer a quick and effective way to convey design concepts to clients, team members, and stakeholders. Sketches can communicate the essence of a design idea in a way that digital tools often cannot.




B.Sc. Architecture | 9. Semester | Fall 2023