Portafolio

Page 1


Sobre mí.

Datos Personales

Jonatán Ignacio Sánchez Alfaro, 23 años.

Perfil

Mi vocación por la arquitectura surge de la necesidad de poder crear y compartir

• +52 5523083287

• jonamtam@outlook.com Contacto

Concibo el diseño de objetos como la forma más elevada de expresar la creatividad.

• jonatansanchez317@aragon.unam.mx

Formación

Universidad Nacional Autónoma de México

• Facultad de Estudios Superiores Aragón. Licenciatura en arquitectura 2019 – en curso

Universidad Nacional Autónoma de México

• Colegio de Ciencias y Humanidades Plantel Oriente Bachillerato 2017-2019

04

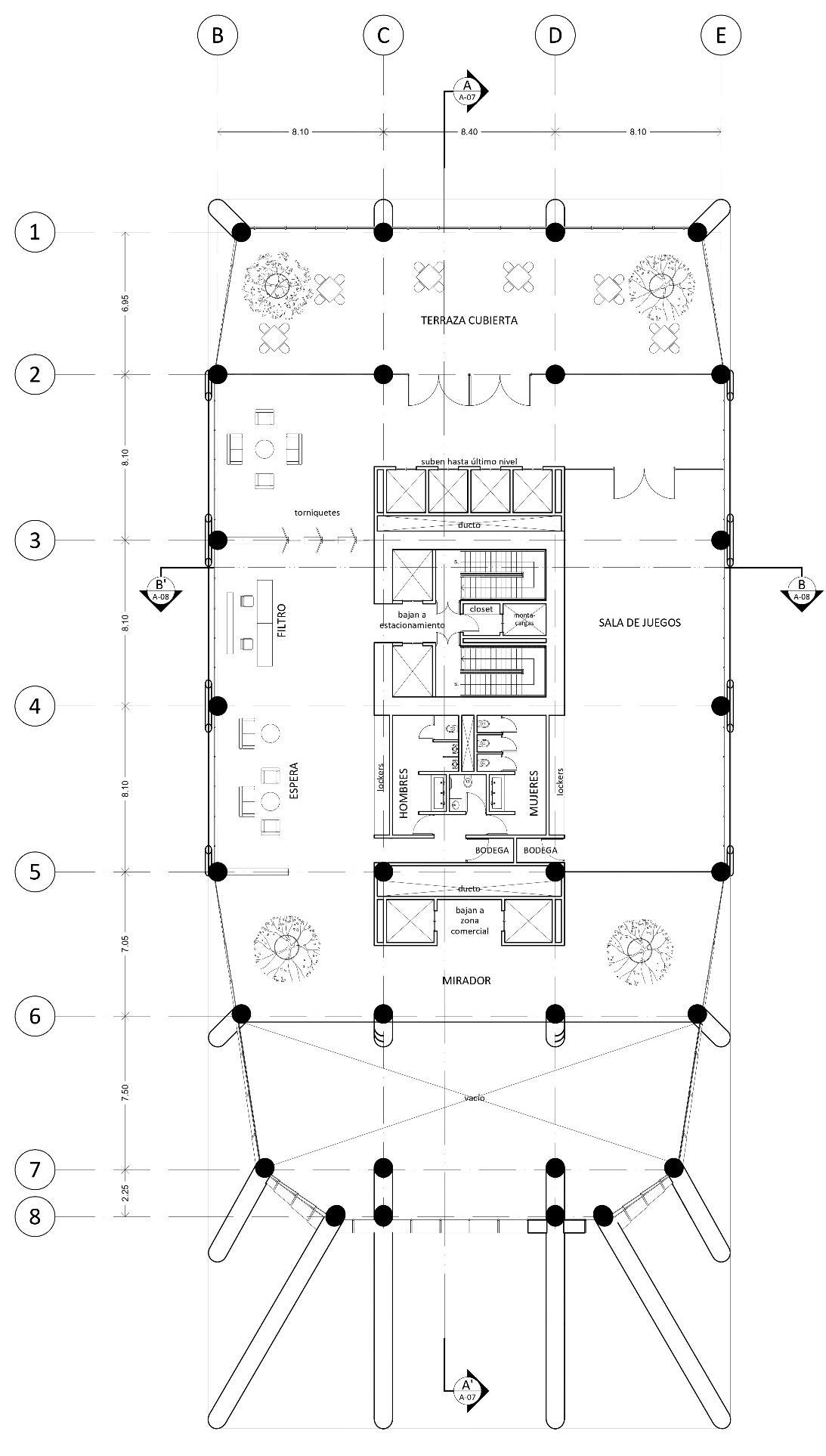
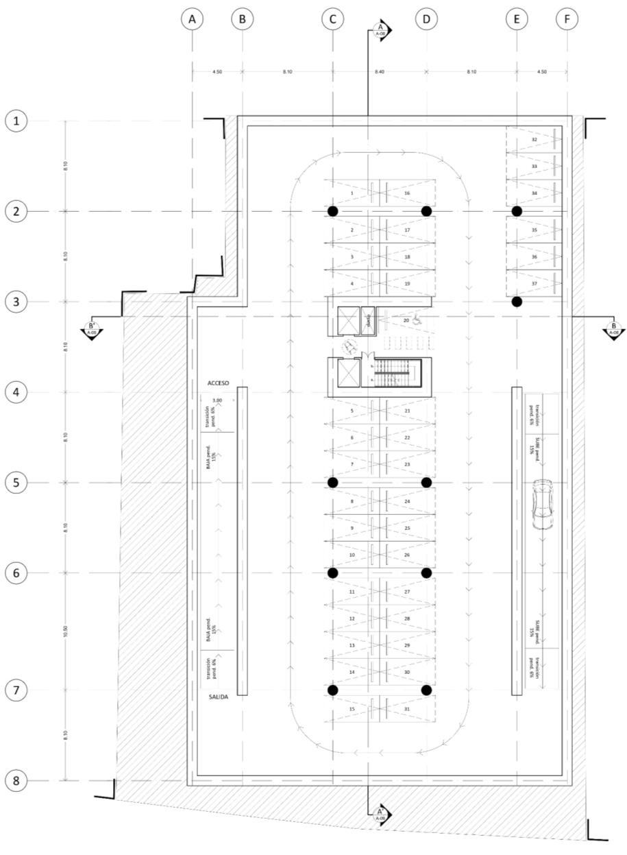
Corporativo KA Reforma

Torre de oficinas con zona comercial

Laboratorio UNAM

Taller de construcción para estudiantes de arquitectura.

Casa Lozano Martínez

Proyecto de remodelación para casa habitación

Skatepark La Perla

Pasantía en la fuente skateparks ®

01 Corporativo KA Reforma

Torre de oficinas con zona comercial.

El Paseo de la Reforma es una de las avenidas más importantes y emblemáticas de la Ciudad de México y de Latinoamérica. En su recorrido se ubican monumentos esenciales y edificios prominentes de interés financiero y comercial

Diversos estilos arquitectónicos pueden hallarse en “el Paseo”, y cada uno refleja el periodo histórico en el que fue construido: desde los pocos vestigios del modernismo y el estilo internacional de los cincuenta, hasta la arquitectura más fresca y contemporánea que pueda proyectarse

La propuesta para la nueva torre corporativa en Reforma se destaca de la imagen contextual: por la materialidad empleada en cada fachada; por el uso intensivo de la tecnología de punta; y por su alta calidad plástica, que aporta una envolvente utópica al entorno y a su vez obliga al proyecto a adaptarse suavemente a las restricciones de altura impuestas por la normativa urbana

INTEGRACIÓN URBANA
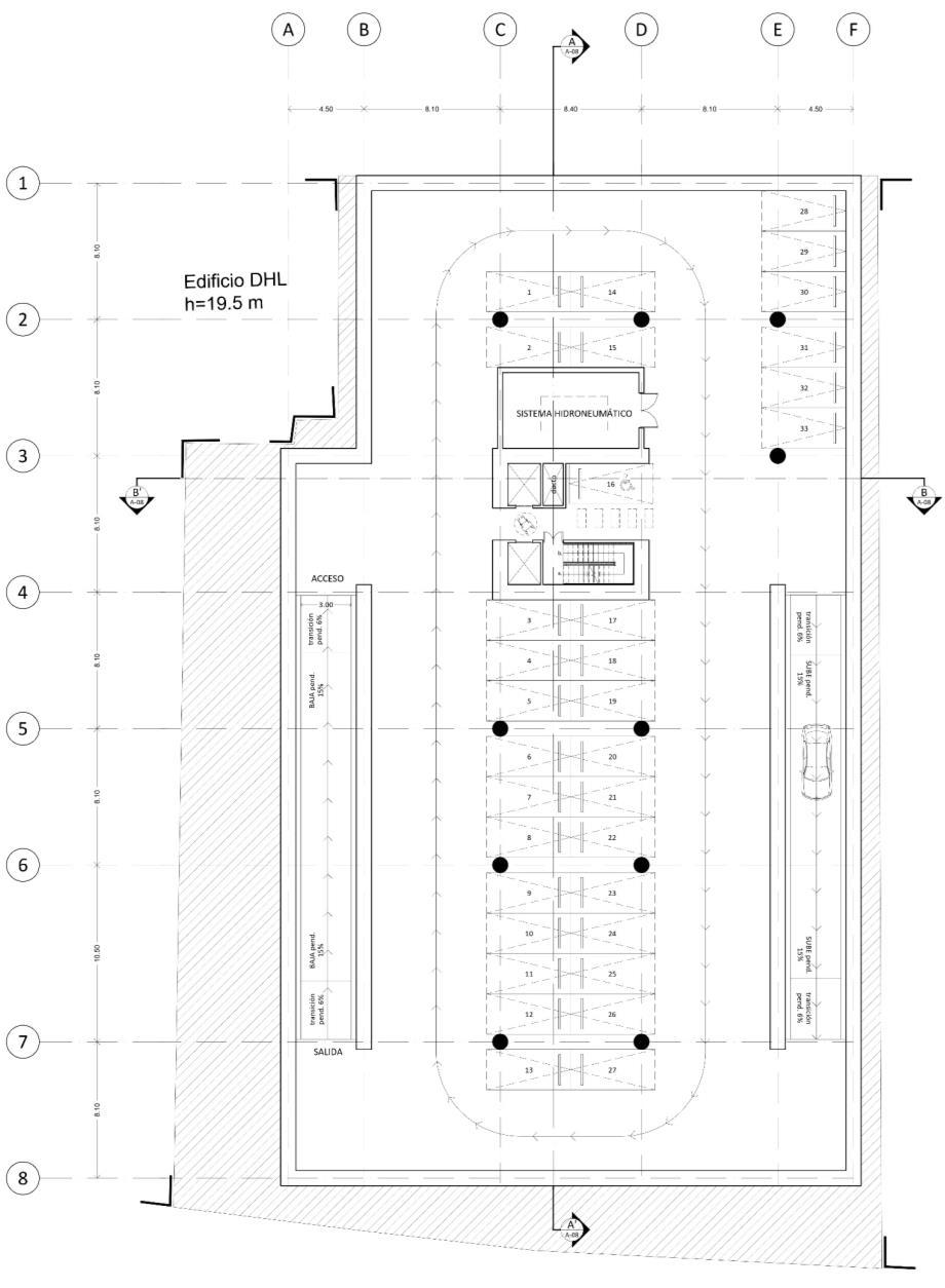
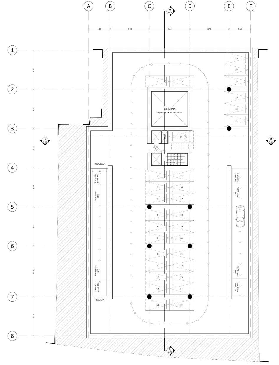
PLANTA. SÓTANO 2 Y 3
PLANTA. SÓTANO 1
PLANTA. SÓTANO 4
PLANTA. SÓTANO 5 Y 6
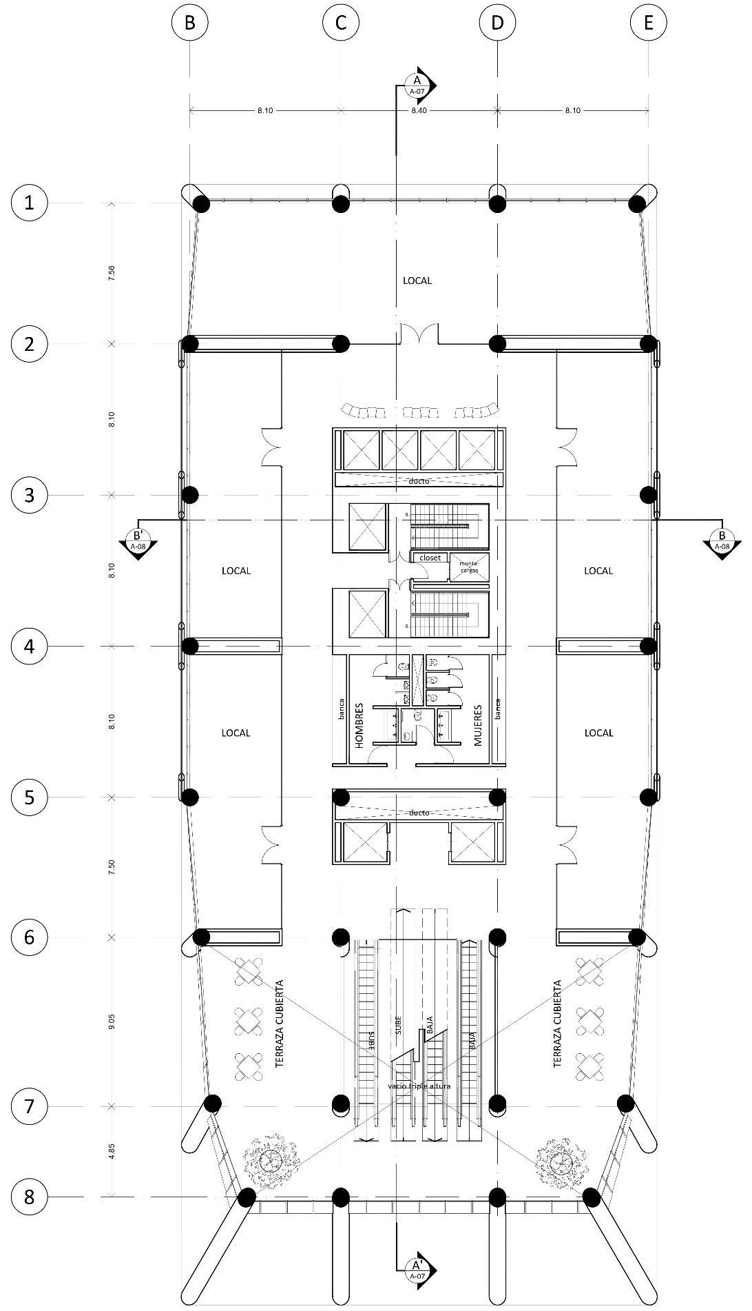
PLANTA
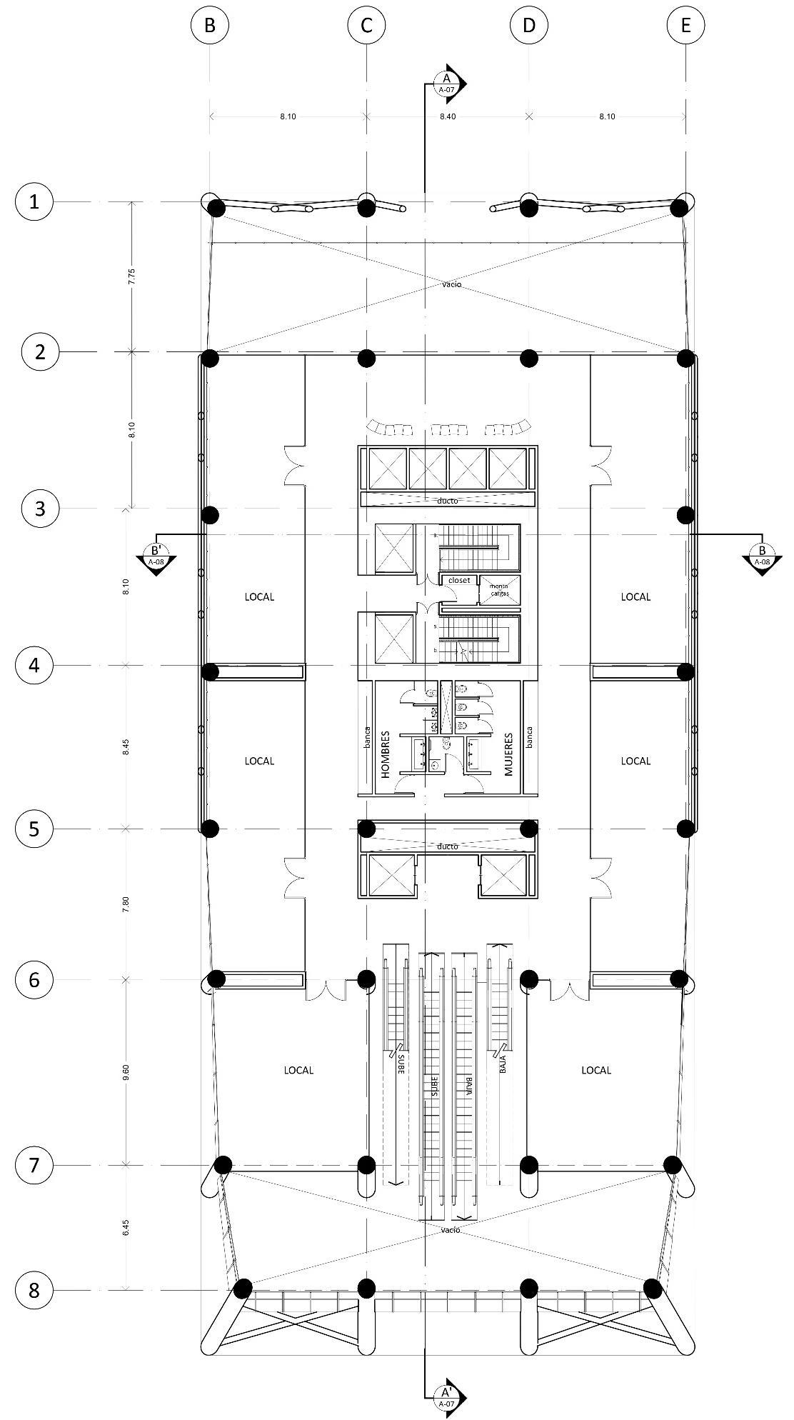
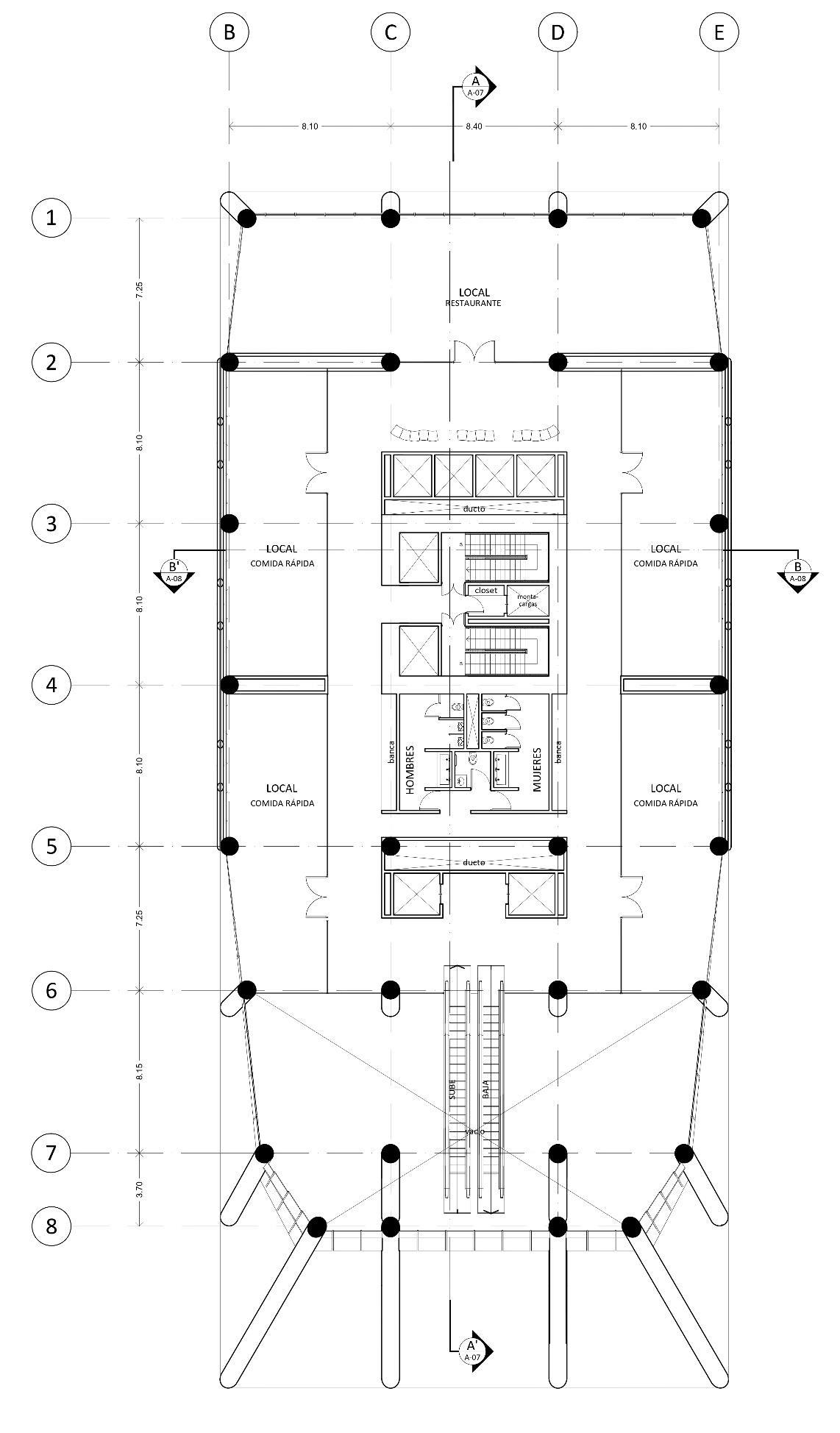
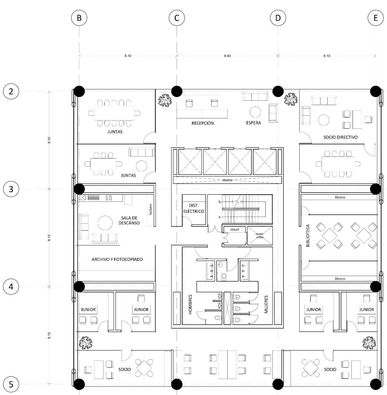
PLANTA NIVEL
PLANTA NIVEL 3
PLANTA NIVEL
NIVEL
NIVEL
NIVEL 23
PLANTA ÚLTIMO NIVEL

CORTE LONGITUDINAL

LARGUILLO ATENAS
LARGUILLO REFORMA

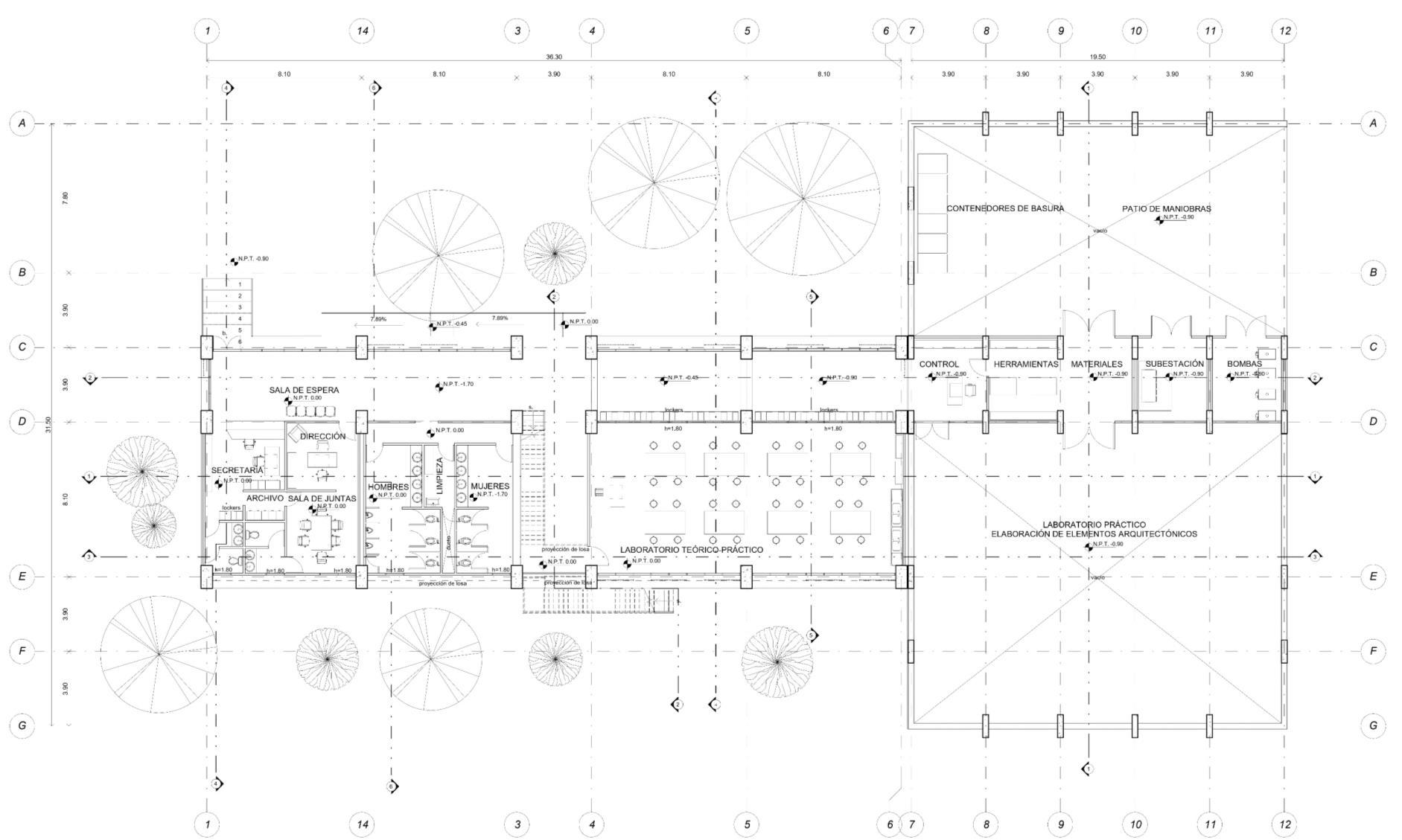
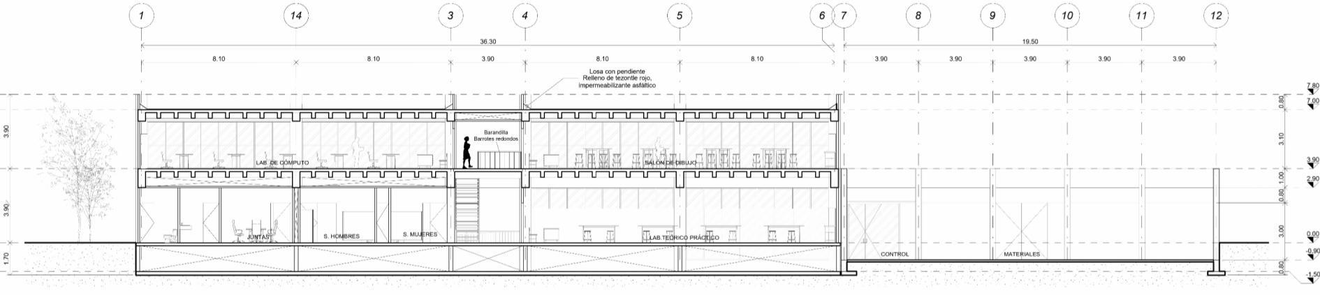
02 Laboratorio UNAM

Taller de construcción para estudiantes de arquitectura.

Los Laboratorios Universitarios de la UNAM se caracterizan por contar con tecnología de vanguardia Realizan investigación y prestan servicios dentro del instituto o centro que los alberga.

El objetivo del nuevo edificio en la Facultad de Estudios Superiores Aragón, es el de apoyar y complementar el proceso enseñanza-aprendizaje en las asignaturas teóricoprácticas de los planes de estudio de la licenciatura, en especial para las asignaturas de Elementos y Sistemas Constructivos, e Instalaciones

El programa arquitectónico se compone de: un laboratorio de cómputo, para brindar una formación en el uso de software; un salón de dibujo, en el que se transmite conocimiento teórico y se plasma en el papel; un laboratorio convencional, en el que se manejan dispositivos y herramientas utilizadas en diferentes tipos de instalaciones; y un espacio abierto para la elaboración de elementos arquitectónicos

CORREDOR PRINCIPAL
FACHADA. CORREDOR LATERAL
FACHADA. CORREDOR LATERAL Pág.
FACHADA. POSTERIOR DE EDIFICIO
FACHADA. ACCESO PRINCIPAL

CORTE TRANSVERSAL. ESCALERA PRINCIPAL

CORTE TRANSVERSAL. SALÓN DE DIBUJO

CORTE TRANSVERSAL. SERVICIOS

CORTE TRANSVERSAL. RECEPCIÓN

CORTE TRANSVERSAL. LABORATORIO TEÓRICO PRÁCTICO

CORTE TRANSVERSAL. SANITARIO HOMBRES

CORTE LONGITUDINAL. FRENTE DE LABORATORIOS

CORTE LONGITUDINAL. LABORATORIOS

CORTE LONGITUDINAL. CORREDOR PRINCIPAL

PLANTA BAJA
PLANTA DE AZOTEA
PLANTA DE ENTREPISO

03

Residencia Lozano Martínez

Proyecto de remodelación para casa habitación.

La propuesta para la remodelación de esta casa, ubicada en el municipio de Nezahualcóyotl, debía reflejar contemporaneidad y vanguardia.

En la fachada se modificó la altura de pretiles para ocultar la instalación de tinacos vistos desde nivel de calle; se jugó con la disposición de vanos para ofrecer más privacidad; se cambiaron los anticuados antepechos por una estructura metálica que sirve a la vez de parasol; y las protecciones de herrería metálica por un vidrio de seguridad templado y opaco

La esencia del proyecto es el color lila sobre los muros de tabique recocido, y la clara división en cuatro cuadrantes Estos valores se potenciaron en la propuesta remetiendo el cuadrante en donde se localiza el acceso y delimitando los ejes compositivos con tres tipos de material, conservando así la identidad y el sentido de pertenencia del hogar

Sumatoriamente, se entregan detalles constructivos que facilitan la instalación de puertas y ventanas.

RENDER DE LA PROPUESTA
ESTADO INICIAL DE LA VIVIENDA
PROCESO DE FOTOMONTAJE

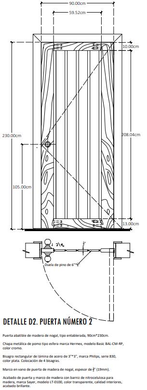
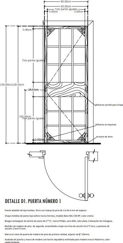
PUERTA NÚMERO 1

CORNISAS PERIMETRALES DE ILUMINACIÓN DIRECTA

EMBOQUILLADO DE YESO EN VANO DE PUERTA
PUERTA NÚMERO 2
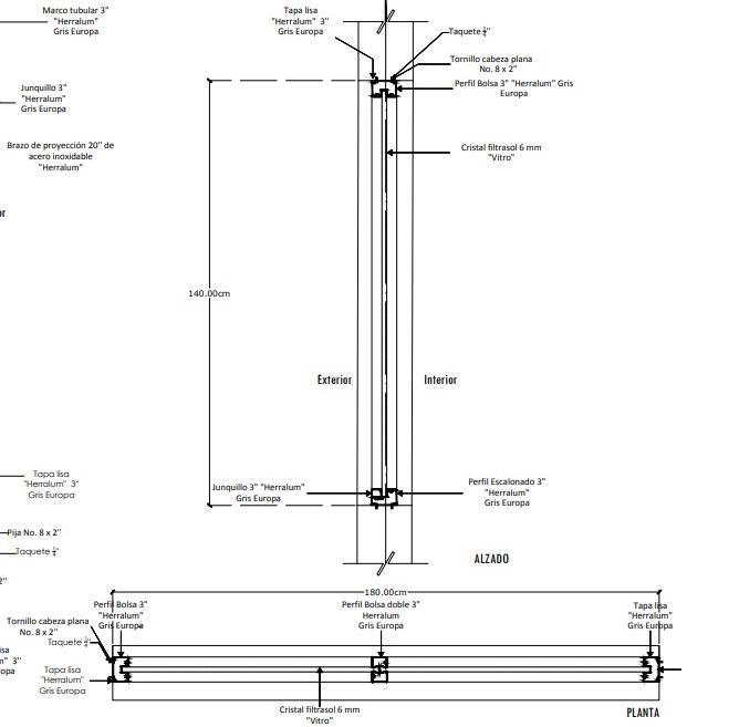
VENTANA DOBLE FIJA
VENTANA DE PROYECCIÓN

04

Skatepark La Perla Pasantía en

la fuente skateparks

®.

Bajo la tutoría y dirección del skater, constructor, diseñador y amigo: Raúl Mendoza, tuve la oportunidad de aprender mucho sobre lo que es el trabajo duro, la buena carpintería y el skateboarding

La fuente skateparks es un equipo maravilloso con el que pude dejar volar libremente mi imaginación, desarrollar mis habilidades de modelado 3D, y ver al fin muchas de mis ideas materializadas

Pero sin duda, de todo lo hecho en mi paso por “la fuente”, el proyecto en el que más

me enorgullece haber podido aportar un grano de arena, es La Perla, un skatepark indoor con una extensión aproximada de 200 m², ubicado dentro del centro comercial

“Centro de Vida La Perla” en Zapopan, Jalisco.

LAS RAMPAS - CENTRO DE VIDA LA PERLA ®

Gracias.

No puedo evitar sentir gratitud por las oportunidades que he tenido y la evoluciónque he experimentado

Gracias por tutiempo, saludos adistancia.

Turn static files into dynamic content formats.

Create a flipbook
Issuu converts static files into: digital portfolios, online yearbooks, online catalogs, digital photo albums and more. Sign up and create your flipbook.
Portafolio by Jonatán Sánchez Alfaro - Issuu