
Studio Three - 2024
Jonah Mauldin Academic Portfolio


![]()

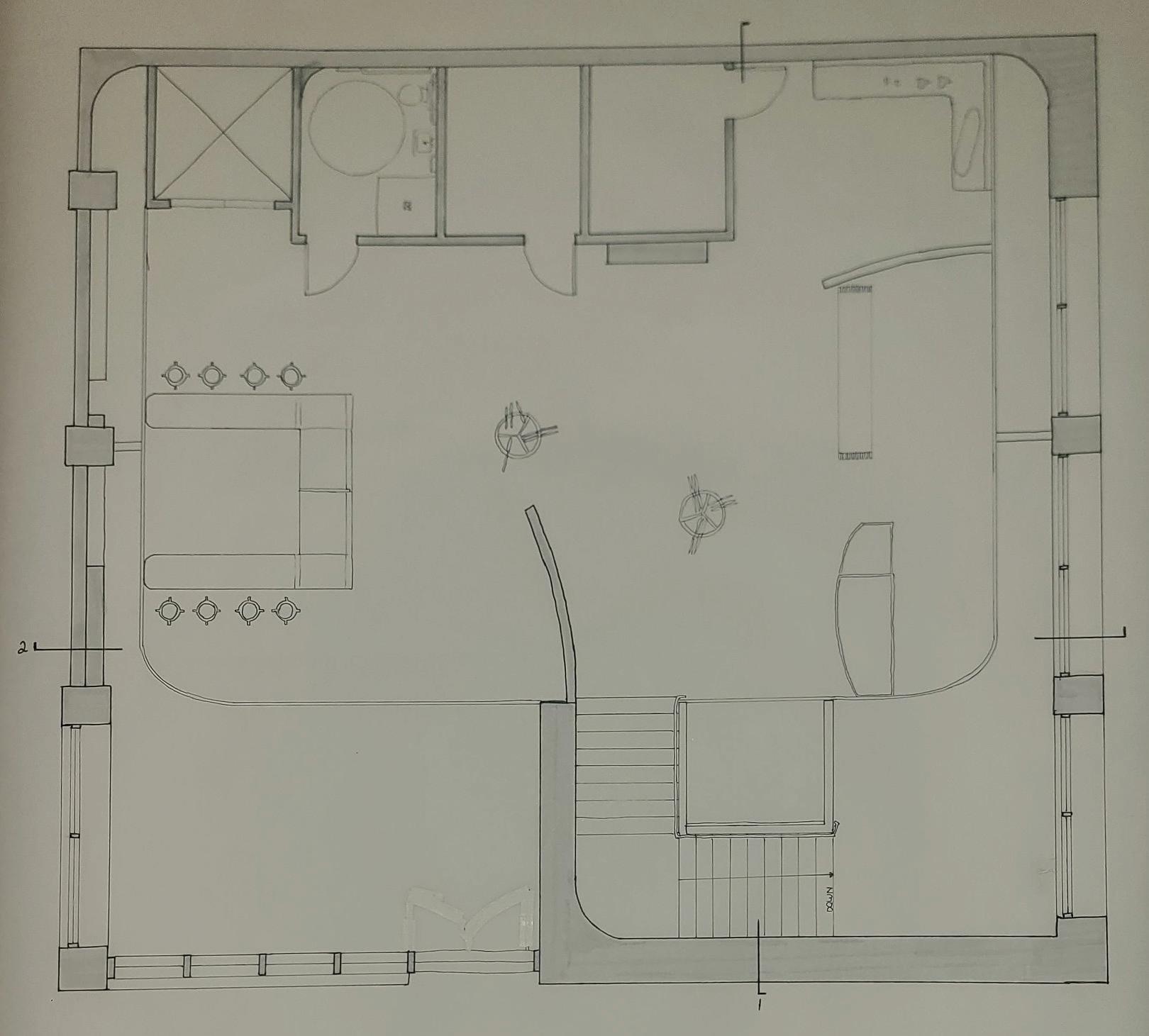
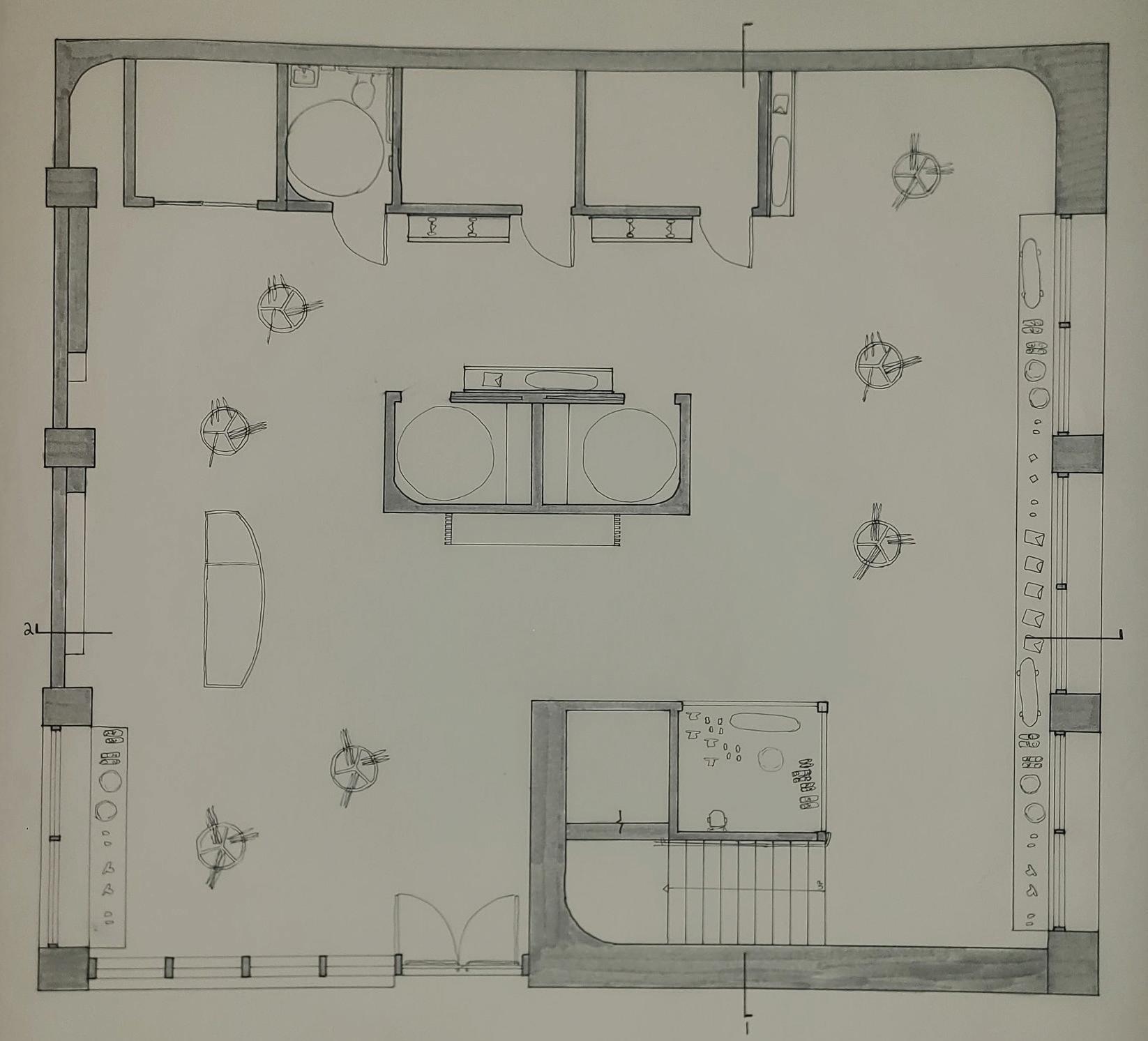
Studio Three - 2024





Creating rhythm through variation, inspiration from shapes of boards, wheels, trucks.
Evoking the traditional loading docks, construction zones, and abandoned properties that skaters have utilized historically
Casual and vibrant minimalist design to foster a comfortable environment that speaks to human scale

















