Architecture Drawing 3

Page 1

ARCHITECTU RE DRAWING III

PORTFOLIO HOR CHAN YEW
1002059367 AI404

CONTENT

TASK 01 :

ABOUT BAGAS ZAKARIAH AND RUMAH LENGGONG

PICTURES OF MEASURING AND DISCUSSING AT RUMAH LENGGONG

TASK 02 :

2D AND 3D JOINERIES DRAWINGS

TASK 03 :

TECHNICAL DRAWINGS

TASK 04:

VIDEOGRAPHY AND MAGAZINE

TASK 05:

LASERCUT MODEL

TASK 06 :

INTERIOR ARCHITECTURE STUDIO II TECHNICAL DRAWINGS

TASK 01

ABOUT BAGAS ZAKARIAH AND RUMAH LENGGONG

PICTURES OF MEASURING AND DISCUSSING AT RUMAH LENGGONG

ABOUT

RUMAH LENGGONG

Rumah Lenggung (actual spelling of Lenggong) is a traditional house in the Lenggong district of Perak, later transferred to Gopeng before its design was modernized. Rumah Lenggung was later rebuilt with some modifications but retained its original structure and is commonly known as Perak House or Kutai House.

Rumah Lenggong architecture and interior design by ATSA Architects SDN BHD was built in 1950.

BAGAS ZAKARIAH

The orchard has a wide variety of fruit trees and vegetation. It was a rubber plantation built in the 1920s and early 30s when rubber was booming in Malaya. The original owners, Ensic Zakaria Bin Malim Sulaiman and Puan Masia Binti Summitt, moved from Kukai to the area in the 1920s and grew rubber for a living. Later, the traditional Murray Yellow Planter's House (in typical Luma Pera style) was built, and his two other homes were built in his 2019 with a bit of imagination.

Live the Kampong life on 5 acres of lush greenery with a natural crystal clear stream running through the orchards. The 100-year-old enclave is home to his three traditional houses adapted to modern life. Bagas Zakariah is a sanctuary to escape the fast-paced city life and promote eco-friendly and sustainable living.

PICTURES OF MEASURING AND DISCUSSTION

DISCUSSING MEASURING TOOLS WITH MISS FATEHAH

GROUP MEMBERS OBESERVING

RESEARCHING JOINERIES

COMPILING DATA

DISTRIBUTING JOINERIES TASKS

GROUP MEMBERS MEASURING

TASK 02

2D AND 3D JOINERIES DRAWINGS

2D AND 3D JOINERIES DRAWINGS

TECHNICAL DRAWINGS

KEY PLAN

LOCATION PLAN

SITE PLAN

ROOF PLAN

FLOOR PLAN

COLUMN PLAN

SECTION X-X

SECTION Y-Y

CALL UP DETAILS (A,B,C,D)

FRONT ELEVATION

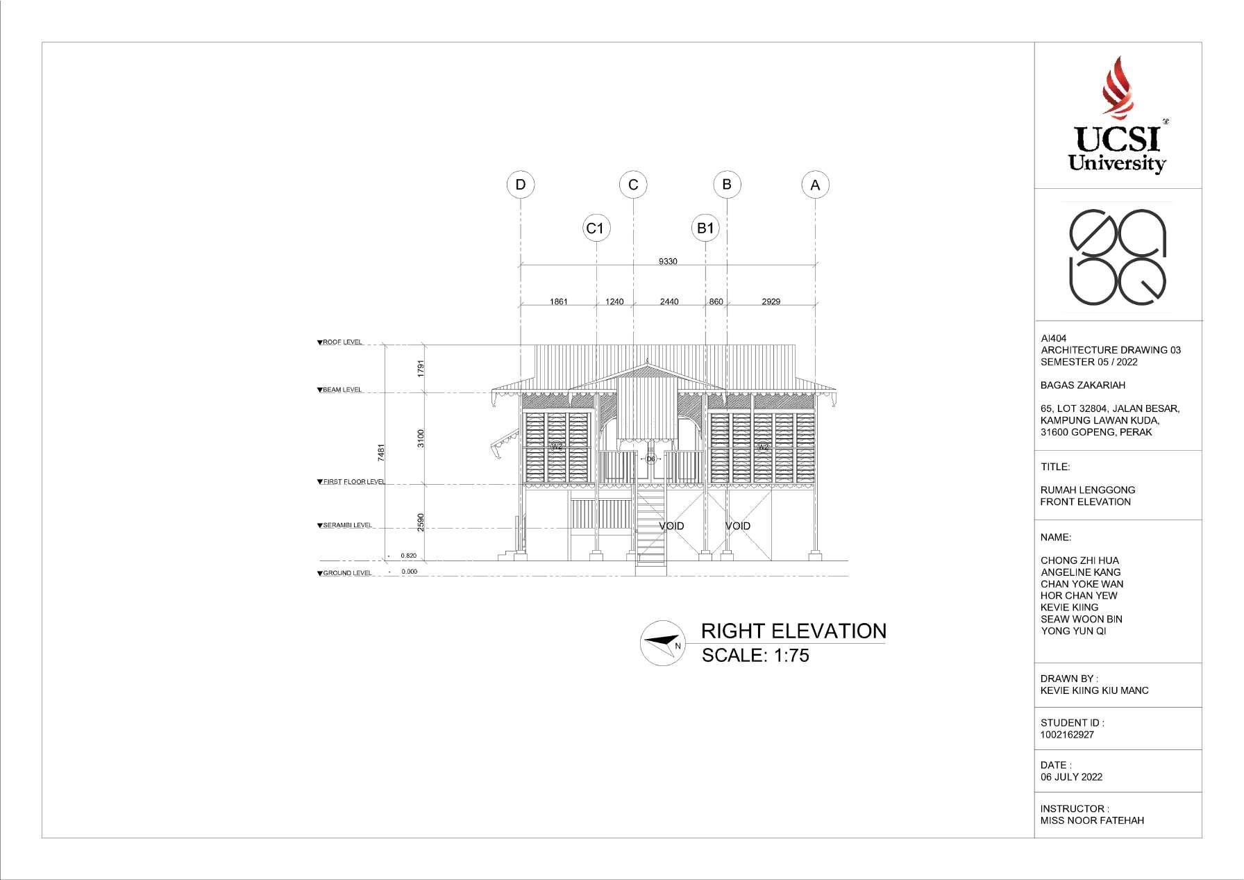
RIGHT ELEVATION

REAR ELEVATION

LEFT ELEVATION

WINDOW AND DOOR SCHEDULE

ORNAMENTS AND CARVINGS SCHEDULE

3D EXPLODED (AXONOMETRIC)

TASK
03

TECHNICAL DRAWINGS

TECHNICAL DRAWINGS

TECHNICAL DRAWINGS

TECHNICAL DRAWINGS

TECHNICAL DRAWINGS

TECHNICAL DRAWINGS

TECHNICAL DRAWINGS

TECHNICAL DRAWINGS

TECHNICAL DRAWINGS

TECHNICAL DRAWINGS

TECHNICAL DRAWINGS

TECHNICAL DRAWINGS

TECHNICAL DRAWINGS

TECHNICAL DRAWINGS

TECHNICAL DRAWINGS

TECHNICAL DRAWINGS

TASK 04

VIDEOGRAPHY AND MAGAZINE

TECHNICAL DRAWINGS

MAGAZINE'S QR CODE VIDEOGRAPHY'S QR CODE

TASK 05 LASERCUT MODEL

LASERCUT MODEL (GROUP)

RIGHT ELEVATIONS AND FRONT ELEVATION LASERCUT MODEL FLOOR PLAN LASERCUT MODEL

LASERCUT MODEL (INDIVIDUAL)

WINDOW AND DOOR SCHEDULE LASERCUT MODEL

INTERIOR ARCHITECTURE STUDIO II

TECHNICAL DRAWINGS

KEY PLAN LOCATION PLAN

SITE PLAN

LAYOUT PLAN

INTERIOR ELEVATION

FRONT FACADE ELEVATION

SECTION X-X SECTION Y-Y

SPEED BUMP DESIGN WITH SPECIFICATION WRITINGS

TASK 06

INTERIOR ARCHITECTURE STUDIO II TECHNICAL DRAWINGS

INTERIOR ARCHITECTURE STUDIO II TECHNICAL DRAWINGS

INTERIOR ARCHITECTURE STUDIO II TECHNICAL DRAWINGS

INTERIOR ARCHITECTURE STUDIO II TECHNICAL DRAWINGS

INTERIOR ARCHITECTURE STUDIO II TECHNICAL DRAWINGS

INTERIOR ARCHITECTURE STUDIO II

TECHNICAL DRAWINGS

INTERIOR ARCHITECTURE STUDIO II TECHNICAL DRAWINGS

INTERIOR ARCHITECTURE STUDIO II

TECHNICAL DRAWINGS

INTERIOR ARCHITECTURE STUDIO II

TECHNICAL DRAWINGS

INTERIOR ARCHITECTURE STUDIO II

TECHNICAL DRAWINGS

INTERIOR ARCHITECTURE STUDIO II

TECHNICAL DRAWINGS

THANK YOU

Turn static files into dynamic content formats.

Create a flipbook
Issuu converts static files into: digital portfolios, online yearbooks, online catalogs, digital photo albums and more. Sign up and create your flipbook.
Architecture Drawing 3 by Hor Chanyew - Issuu